_______________________________________________________________________________________________
Investors Information Kit
1
Hamriyah Free Zone Authority
! " # ! $ % &
' &%' ( ) %*
+
(01 – 06 – 2004)
_______________________________________________________________________________________________
Investors Information Kit
2
TABLE OF CONTENTS
&, " - %! -% ( , # & . / .0
( - 1 .
2 1 .
2 )& 3 -' !% ) ! ! 4 -% , # ! - , ! .5
! ( ' , !%$ %6 3 !+ & ) ! # % ! .7
0 # ! $ %" ' &%' ( ) %* 8 ' 9 . /
' : ) ; 6 < ' < ( : = .
2 ' < " : ( < .
> < 3 .?
0 # < .?
5 ' &% ( ) .
7 ' ! & % , ) - & % " !# - " ) ( &% -' , &
' , & ) ! ) 3 !+ ! -% - 2
) 1 1 = >@ > ( =
1 < = @ 1 < ( > @ 1 < =
2 = 1 ( 1 1 1 = >@
> ( = 1 < =
? % & ) -& ) - % ( -' ! -% ! % - ! !% )
, ! % -
0
A % & ) 2 -! % ! ) ! %' -& ) - % ) % -
# !* % B -" % B - ! ' !$) &
0
. ' ) !$ ( ! - , ! 5 / 2
3 C@< 1 ' > C @ = D - 1C< - >1 5
2 @ > & 3 C 5
@ 1 - 1C< 8 @< - 1C< 9 $ > 1 > =
1 < ? / 2
! & ! % -% # E $ % , 22
_______________________________________________________________________________________________
Investors Information Kit
3
2 !$ % % 3 !+ 2 D 2
: < = - 1 1 1C < 27
' ) -% ' % 2? / .
0 $ B $ $ B ! & $ % / 2
5 % & %
< 1 1 :
2 3 0
% < @ 0
0 3 , @ < 0
5 - < , 0
7 , !%$ % ) !% ( - % $ 5 / 0.
- 1 $ 5 / 7
! & !% ) !$ % / 0.
? ' , & ) ! ! % ! % " - ) % ! ( - % ! ! 0 / 02
A ) ! B% ' ! 0 / 00
$ C > => 00
2. ' !4 ' $ - & %* ! - $$ , , ' &%' -%
) - & %* -' -+& %
05 / 0A
05
2 : ) 1 < 07
F> @ 07
0 < 0
5 - < 0?
7 % @ ( = 0?
! 1 << : 0A
_______________________________________________________________________________________________
Investors Information Kit
4
& & ! ) ! - ) ! !) !$ - % , !,
<< < < 1 < = & G " !>< ! =>< @@< 1 <
: : 1 @ 1<> =" >
< ) /& G /20H AAA >@@< " ) < & > & G
? < " << < '
& G " ! =>< 1 1 1 "
1 :
6 ) < < = 1: ) < & G 208 AAA9
' : ) ; > < " ) 1 ( I, 1 = - < = J
-< 1 @ @@< 1 <
! = < >1 I! : < - J > < -
4> < * > >
@@< 1 < > < < < @ 1 1
= 1 < > 1 > = % 1 1 < ! G & 1 =
@@< 1
@@ @ < $ > <
_______________________________________________________________________________________________
__
Investors Information Kit
1
> < =" - >1 ( , < @
< =
!$ % ( - !% ) - %
! " #$ % $ & '% ( $ ( %
$$ )' $ ! % $ ( *$ +' ( # ' % $$ , %' $ % #$
)' $ * )' $ % $ & % - ! & % .
> < = ' / ( # , % '% % /
% $ . ' $ , ( %' ( 0-&1 '# # 1 2
% '$ .
2 > < = - @< - 1 - % & '% & '$ $ &, - $ & %
- !% ) - % $ , $$ +' ' $ % ! " 1 '$ .
& '$ ' % $ #' $ ( , # % $ % % $( $ % ' % ( % % $( % $$ (
$ ( ( , $ .
+' & '$ 2' % #' $ ' &, - $ & % - !% ) - %
. 0 % ' % % % . % % +' # ( % , $$ # / .
@ ) - 1 2 # &, - $ & % - !% ) - % , % $
$$ $ % ( % $ ' ( $$ $ 2'
' % @ 1 1 2' ' '$$ % $ % ! " $ 3
4 5'$ '$ .
$ ! % ) % - !% ) - % # % $ % %'
$ % #$ ( % $ , '$ # .
!# -
1 % '$ $$ $ $$ , % ' 6 7 %
% % % ( # & '% * 8 % ( %$' #' $ ' . $ % $$ # , %
, ' !"21 .
1 %:@ , @
* , $ % % 3 4 8 $ % % 9 2'
9 3 4 8 $ % % 9 2'
$ % < 2 # $ % ' % 3
$ % 2'
! ! * % $ - < , 1 4 8 & $ % 2'
% $ , ' $
, ( $ % ! '
$
$> 1 @ < : 4 8 :' % $ & 2'
* $ % $ % 4 8 * 2'
* %$ ;*< , (
$$ % $
' &- H $ - 2' % $$ ;*< $( =
% $
2$$ % $ % '% ( ( % % ( $$ , > '#8 % % $
%% '$ .
, ! $ % ! , % , !, - %! -%
• 2$$ $$ # # %' )4 4 %% #$ $ . 4 '% ' $ , '# $ $$
$, # ' , % $%'$ .
• #$ % ' % ' $ ( , >.
• #' $ $$ '% ' $ ' $ .
• ' +' 4 '% ' $ 4 $ 9 > ( & % 9 > # ' '# '% ' $ $ $( 4' '#
$ $ % '% # %% % , $ %' %
!"2 ' .
_______________________________________________________________________________________________
Investors Information Kit
2
4 ? @ A * @ @
• 2 % % 1 % % , $$ # +' $$ ' $ % '% ( '%
5 %> ( * , ( , ( & $ , ( & $$ ( & ( ' $ ( 4 ( & ( 4 > ( 5 ( ) $ (
& ( ; +' 1 ( ' B $ , $ % #$ .
• ) 1 3 C # % $ , # ' $ , A $ %% % ,
$ . % %% %$' ( %' % # $ $$ $ #
% % .
• ! 11 2 +' $ $$' 5 %% ( ' A , $ , # ' $ $$ #' $
% $ . , $$ $ ' # %> +' # ' $ . $ $ #$ %> # $$
$$ # ' $$ % . 0 % %%
#$ .
• ) )< & < )' $ $ $ $ $$ # ' $$ % 1 . $
%$ % % % $ $$ # . ( , ' . .
• > < />@ & #$ $ #' $ ' A C $ $ $
• % @ : - >1 D < 2 $ $$ # # $$ #' $ ( D '% '
% $ ( $ , ( ( /% , > % '% , $ $$ (
% +' ( $ E . 2 % $ % '% $$ '% ' # $
# ' $ ' %% % % ' .
• , = 2 ' $ / % % $ '% ' , $$ # # $
% % % '$ .
• , = - <1>< 4 '% ' $ , '# $ $$ $, # ' , % $%'$ .
• > - = #$ % ' % ' $ (
, >.
• >1 > < 3 C ' +' 4 '% ' $ 4 $ 9 > ( & % 9 > # ' '# '% ' $
$ $( 4' '# $ $ % '% # %% % , $ %'
% !"2 ' .
• > < - >1 2 % % 1 % % , $$ # +' $$
' $ % '% ( '% 5 %> ( * , ( , ( & $ , ( & $$ ( & ( ' $ ( 4 ( & ( 4
> ( 5 ( ) $ ( & ( ; +' 1 ( ' B $ , $ % #$ .
• ! : $$ # +' ' $$( $ > %% #$ ( $$ # %
. ' ( % $ , ' %.( $$ % ' . 2 % $ $$
4 8 2 % # # !"21 .
• : 3 C % $ $$ # %$' , % $ , % ( #$ , (
( '$$ ( , $$ $ ( $ $ . % $ ' $ E $$ %
$$ ,
$ < ) <
3 > < @ 3 > < @
@ @ 9& @ , # @ @ , @ 9& @ , # @
@
' ,
@ 9& @ , # @ , ' , @ 9& #
3 > < @
@ @ 9&
@ $ @ , # @
@
' ,
@ 9&
@ $( @ , #
• % < 1 > 1 % < @ << << 1 / @ G < > C =><
• < 1 1 < 3 C << < 1 1 < G C << 1 1 3 ! =>< " >1 > <
_______________________________________________________________________________________________
Investors Information Kit
3
• 3 3 C << G G C << 1 1 3 @@ G = " 1> " => <
>1
• 3 , = @@ @ : K 11> >< G << 1 << @
> 1 " 1<> = ! % @ " ! " " & 1 @ =
• '# - # < /1 F> << C 1 / = = << 1 < "
1 = @> < 1 11>@ < ' < F> % : << >1 1
@
• ) 1 " - < ) 1 < = = << @ << 1 << <
< 1 @< 1 G << G = >1 <" ! = < & 1 < %
: << 1 1 @ 1 @ @< @ @ : : K
• < % << G = @ 1 > < > < < 1 < @ " G 1 << G
:
9 < 1 1 : $ % % !"2 ' $ # $ % $ .( 4 8 $ % % 3 9 2' . $ % % ' $
$ $ $ % # # $ ,
@. ; , $ ? @ B( "
. $ ? @@( B(
% $ % % . . 9
9 ! F> < G > " 1 @
) G - 1 2 +' , ' ( % # '# !"2 ? . . , ' #$
. ' #$ .
) $ 1 3 C ! % , > $$ , , # '# 6 7 (
!"2 $ # . 2$ ( $ % $ ' . . 4 92 $ # # % '# !"2.
@. *$ ; ' .
. 4 $ ; .
. ; #' % '$ % % $ .
. ; ; ' .
. 4 $$ * , ; '
A. ; ' .
, ' $$ % % 9 , % % 9. 2$$ , ' , % , ' +'
$ 4 92.
29 ! F> < @< > < @< H > < = H >
* # +' #' $ ( 0.-.&.( # # 4 92 $$ , , % '# 6 ?
7 !"2 ? . - % .
, +'
@. *$ *$ .
. *$ ; ' .
. 4 $ ; .
. ; #' % '$ % % $ .
. ; ; ' .
A. 4 $$ * , ; ' .
F. *$ ; ' .
) G - 1 2 +' , % % $ # '# !"2 ? . . , ' #$
. ' #$ .
9 3
' $ , !"2 # $ % $ .( 4 8 $ % % 3 9 2' ( 4 8 . % , ! $$ < $$ .
9 ! F> < G > " 1 @
) 3 - 1 2 +' , % % , ' ( % # '# !"2 ? . .(
, ' #$ . ' #$ .
_______________________________________________________________________________________________
Investors Information Kit
4
29 ! F> < @< > < @< H > < = H >
* # +' #' $ ( 0.-.&. # # 4 92 $$ , , % '#
!"2 ? . - % .
, +'
@. *$ *$ ; ' . . 4 > $ .
. *$ ; ' , #' ; ' . . 9 $ % , .
) 3 - 1 2 +' , % % $ # '# !"2 ? . . , ' #$
. ' #$ .
-9 - < , 1 > : ! * % $$ ' +' # # & $
2' ( %% % , $$ , '$
- 9 ! F> < G > " 1 @
, ' ( % , #' $ $ # & $ % 2' . 0
$ $ +' ' $ ' #'
) $ 1 3 C $ % % ( # +' #' $
!"2( '$ # 0.-.&. # $ , , & $ % . '# 6 , 7
!"2.
@. *$ *$ ; ' .
. ! 2$ 4 ; ' .
. ! 2$ 4 ; ' .
- 29 ! F> < @< > < @< H > < = H >
* # +' #' $ !"2( '$ # 0.-.&. # $ , , & $ %
. '# 6 , 7 !"2.
@. *$ *$ ; ' . .
. ! 2$ 4 ; ' .
. ! ! 4 ; '
- = 8, 9
@. 7 )' $ * ( #' $ ( ( , ' #' $ ' 6A 7
#7 4 % $ E 4 '% ' % .
%7 2$ ( ( % / '% ' . 6A 7
7 ! % #' $
. +. .
. +. .
. @ % ' % %
. % '# +' % .
. 7 )' $ & $ & %
#7 2 $$ , ' %
0 % 6- $ ' 7
. * % '
. 7 - $ ! & % ? -*&
#7 2 $$ , ' %
%7 2 ' $ 5 , $ 5 $ % 6@ 7
. - $ '
. * % '
@ .
. !"21 3 4 5 '$ %' F . * '
. $ % %
% * , 3 9
& %
. 9
5 ' #$ %
0 ' #$ %
A. 9 ! $$ < $$
F. $ @ ( +. . (
G. $ @ ( ? ( +. . @ (
H. $ /% ( +. . @ (
/% 4I @ J . .AF
' $! * ' )! ;
<-B 50: 0 -! 4 25=2 !5 "-0 2 -5 K *.-. )-L @ FF( 4 25=2 ( 0 252) : 52 4.
& % 5 & -5 < 0 52; &-:: 5& 2; 5 & -5
2 M 25 54 ; HF@ A A !2L HF@ A A
:2 ; EN . . 9 ) 4 ,,,. E.%
_______________________________________________________________________________________________
Investors Information Kit
5
CONTRACTOR(S) APPROVED
NO
NO
CONSULTANT APPLIES FOR
ISSUANCE OF BUILDING PERMIT
WITH SUPPORTING DRAWINGS
DOCUMENTS & NOC’S
BUILDING PERMIT
ISSUED
BUILDING COMPLETION CERTIFICATE
ISSUED
INVESTOR READY TO
START OPERATION
CONSULTANT APPLIES TO
HFZA
For
BUILDING COMPLETION
PROJECT
EXECUTION
FINISH
CONSULTANT APPLIES TO HFZA
For
OPERATIONS FITNESS CERTIFICATION
OPERATIONS FITNESS CERTIFICATION ISSSUED
NO
NO
NO
ISSUANCE OF HFZA’S
LICENSE TO INVESTOR
HFZA PROCEDURAL
GUIDELINES
INVESTOR PROPOSES TO
HFZA
FOR APPROVALOF
CONSULTANT(S CONTRACTOR(S
CONSULTANT APPROVED
FZA’s CONSTRUCTION
& PLANNING REGULATIONS
PACKAGE
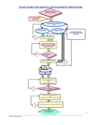
)& 3 -' !% ) ! ! 4 -% , # & $ % ! - , !
START
_______________________________________________________________________________________________
Investors Information Kit
6
' / # ! $ % &"
' &%'
EHS-DepartmentServices/Activities
Engg.-DepartmentServices/Activities
Inspection reports
Compliances Cheek list
Development Procedure Compliances
Assurances
HFZA to issue the OFC
Engineering
( ' , !%$ %6 3 !+ & ) ! # % !
1 Negotiation with Investor
2
Processing
IPP/Liscencing Application
3 Award of Liscence
4
Preconstruction/Building
Permit
5 Construction Phase
6
Pre-Operation Phase
OFC - Phase
7 Operational Phase
Stages
Issuance of EHS Regulations Copy
Review of Drawings/Layout
Safety Plans etc
EHS - Guidelines for safe work Practices
EHS - Inspection
EHS - Permit’s: Hot Work Permit etc.
Investors EHS-Plan’s Procedures/Review & Approval
EHS - Compliances Checklist
EHS - regulation’s Compliances Assurances
EHS - Inspection
EHS - Compliances Monitoring
Issuance of Eng.
fact sheet
Eng. Review/Comments
Feasibility Study
Technical Investigation
Issuance of
“HFZA Development Procedure”
Appoint of Consultant/Contractor
Submittal & review of necessary
design, drawings, Noc’s & documents
Consultant to submit necessary test
reports, QA/QC sheets etc. for HFZA
approval. HFZA to cary out periodic
audits & cheeks
Investor/Consultant to formally notify HFZA
major installations inspections by HFZA/ Third
party inspection agencies (if required).
• EHS-Review/Comments
• Technical Investigation
• Recommendations as Acceptable/Not Acceptable
Issuance of EHS
Fact Sheets
IIP/01/03EEHS - Investors Information Kit Date: 01/01/2001
_______________________________________________________________________________________________
Investors Information Kit
7
" ' < ( :
8 ' 9
9 ' $! * ' )! ; 6 # ! $ % & ' &%' ( ) %* ,
) $ E ( / % ! " % ' %$' 2' ( ( & %
4' $ $$ $ , $$ # % $$ , % $
- @< 1 ) 1 1 / 1 1: & % $ % % % % % 1 $ % %
• 5 '% $ % 1 % .
• 5 '% % 1 % .
• 5 '% / % $ # % .
• % $ % %$ # $ .
• : / E ' #$ ' , #$ ' % .
• / ' # $ % 1 '% .
• % % % 1 % .
1 @ E $ $ $$' % ' $ (
, ( # . ' # . E % #' ' % ( $ E $ ( %
. E % , ( % $$ E ' , ( , #$ % %$ $ . $$ ,
' #$ . > ' $$ ' #$ ' % ' .
% % % . / E % % '% , '% $$.
! C ! >1 $ $ > ' $ % ' , % , #
$ % $ % ' # # % $ % .
$ C = @ >1 1 $$ '% % E $ %
% ' % $ ' . % ' $ % ' '% % .
, = - @ > # $ , % ' # > '$$
% , $ % .
, 1< > %$ ' $ '#$ % % $ ' % ' $ $
E . %$ $ $( $ E # ' ( , , $$ > %
$ , % % $ E .
, 1 $ = % ' ' % $ * % $ . %$'
$ ( ' % ' ) % & / %' - %
> '$$ #$ $$ $ .
> % '% > '#$ % ' $ $ $' ' $ * % $
% $ , $ % #$ $ , '$ ' ' ' . , > , $ % $
' % ' , % , , $$ % $ ' $$ > $ #$ '#$ %.
29 ' &%'" ) %* ( # ! $ % &
• 5 2%% 2 ' 8' $ %% $$ # %% % , % ' !"21
$ $ 3 4 5 '$ . # $ '$ # !"2 4 %'
& $ 5 * O A F . 2 $ #$ ' , $$ '$ $ % % %
%.
• & $$ % % 9 ! " 2' $ E % 9 : 4 .
0 % % $ % $ #$ . & , $$ # $ % #$ .
• % 4 , 2 $$ % $ % > % $$ % > .
& , $$ # $ % #$ .
• - : ' % $$ # $ # #' $ , % %
8 % . & $$ # # ' $ $ % % ' $ >
%% ' $ % $ % %' % % +' $ % .
_______________________________________________________________________________________________
Investors Information Kit
8
$$ $$ # , $'/ $ % @ @ % '$$ $ .
• 3 > < = 2 , ' $$ % $ ( $ %$
$$ % +' ' ( % % +' %> %' '
. 4 %> * $ $$ # ( % $$ # $$
' @. : %$ % # % $ . $ $ '$ # > . 4 $ $$ %
#$ '% ' $ % . 4 $ $$ #$ % % #' #$ $ . 2 +' %$ % $$ #
% . $$ # > , ' #$ %$ % $ ( , $ % #$ .
• =
, 1>
$$ %' $ ' % % % % $ $$ # ' % % %
, .0. %$ % . % ' # > %$ E ' ' (
% '$ # > ' / $
• 4 %$ • $ % .
• % $ • ' .
• > • $ $ $ .
• • ' # .
& F> =
)'$> $ +' % # ' E ' $ % % $ ( % . 4 $$ #
% $ % $ . 4 $ +' % #
@. !'$$ ( , $ +' #'##$ % ' P
. !'$$ ' ( , $ +' # ' P
. 4 ( % , $ +' # $ , # ' #' ' ' #
%.
D K @< = > 1
2 : $ * % $ -E $ '# % ( !"2 % % $ < . '%
% $$ Q-4 1 R( %$' E $ '# % ( %$' &!& ( &!& ( )!& $ . !" % ' '
$ $ $ '# ' - 4( '% !& ( & *!& %. $$ $ % %$'
. 5 2 & .
#. 2 $
%. 4 $ .
. !' .
. 4 $
. ! / ' .
. 2
. & > .
9 , %! & 3 %
& F> 2$$ $ +' , '$ # 1 % $ . ' # %% % , !
" 1 $ 5 '$ . , $$ % , ! " 2' % % ' >
$ % $' % ' ( '% :' % $ *$ 4 8 & ( ; 4 %.
& %% % , 4 '% ' .
< ' $ $ , % E ' %$ % # 4 8 :' % $ 1 4 8 ( %% %
, :' % $ 1 % $ % #$ % .
' K > 3 , $$ # +' > % $ , % % ' . * $
$ % $ $ #$ , ! " # $ +' $ E ' , .
3 $ = : $$ > , # %% % , ! " $ % #$ '$ '$ .
' K > - 1 < ' < = & % $ , $$ # +' $$ , -4 2 ' O @@@ I' K - > 1 > <
- @< 1 J. ' $ ! " 4 5 '$ .
09 # & %
2 $ $ $ : & ( $ 3 4 ( # % %$' #
# $ , % '% ( , % # $$ , % Q9 0 % Q(
R& % 5 $ 2% 0 % R Q* # & - 0 % R.
$ < ' < = = $ $$ $$ , I ' $ % ! & ' ,& ( % ! J ' $ O
A( , % ! " 4 5'$ 5 '$ . ' $ % ( * $ ( : * ( : (
$ 4 : $ ( +' ( % 4 $ * % $ .
_______________________________________________________________________________________________
Investors Information Kit
9
$ < : , ! $ : $ & % $ ( +' '# $ 4 $$
$ %$' 5 , : $ ( 2 ( 2 / ' * '% . 2 ' $ Q:4 4R !"21 4
5 '$ .
4 : 4 8 # +' $$ % & '% ( $ % 8 % . 2 ' $
! " ( 4 5 '$ .
, 1 = &
<<> 8 $ L $ << 9
0- @ **: 4 **: 4 **: 0 **: &-
**:
*# @ S
- @ , : > < 8MH#L 1 : # <> " 3 H#L =H N9
0 FG. GC B 0 F . 9 B - .H C B - .@@C9 B
25 .H C B 25 @. GC9 B
,>
& ' . S !' ' # $ * % . .
.@ S
<<> > <
&- **: &- **: &
0- **: 2 **:
4 **: : % . **: 4 **:
0-L **: & # $ , / $ $
$ & F> <>
!$ #$ * A H 44 $ ' # F 0 )-
&- @ -& & .@ $ - $3< @ $ * $ .
$
& @ $
. : =
2 . 0 $ 2 . $ & ' . $ & $ @. $ &
$
& . $ & .@ $ *# .@ $ : %' . @ $ 0 %> $
.@ $
" % . $
% 3 =
)- @ $ 44 @ $ 5 . &$ . $ 0 - T@ $
&$ T $ * A. G $ < . 49 * 4 - $ & $
& <
; ) * 8 % G # * #' $ #
> @ = - < % $ $$ '$ # # % $$ ' %$' $ $
# .
: ) 1 < $ $ '$ # , $$ $ ( $ / $ '$ $ %$
. ' , %$ '$ $, # , ' $ $ 2 % , %$
'$ # , , / $ @ $ $ $ ' 1 $ . 2$$ $ / ' '$ # >
% .
' % $ % # / $ % $ # .
$ < ) <
3 > < @ 3 > < @
@ @ 9& @ , # @ @ , @ 9&( @ , # @
@ ' , @ 9& @ , # @ , ' , @ 9& #
3 > < @
@ @ 9&
@ $ @ , # @
@ ' , @ 9&
@ $( @ , #
_______________________________________________________________________________________________
Investors Information Kit
10
' < 2$$ '% 2 ' % $ , $ , # ! $ ; % $ < . 5 '$
> , '% # % %$ % . & % ' '% +' % $ '
% %' % $ % ' . $ 4 % ' $$ ' '% $
$ '#$ % % ' . $ $ $ # $ $ % %> % % '% , $$
$ $ & % $ ' ' $ % % .
' &% ( )
! ! % $ - = < = % - =
@ $ % $ $
% ? % .
2 * & $ *'#$ %
$ % %
2 ' $ % C $
/ ' . ( .
4 $ $
'% %
$ #
2 % % $$ % %
(
%' .
& . $
/ $ #$ %
4 $ , 6 ' $7 % $$ % 2 * % $$ % % $ . # /
$ #$ % $ %
%$
% '
B $ $ 5 '$ . % '
9 %$
$$ % ' .
B $ $ 5 '$ . @ % '
A % 4 , $' % 2 ( % % $$ %
$( 6$ 7
? C $ , # $$
6 ' 7 . .A
2 $ % &
#
2 / %
' ( % % $ % .
. ' %
A ! > $ '#$ %
, >
B $ '$ . ? & '
F ' $ $' % 2 % $$ % %
' >
* ,
% $ .
. @ . @ #
% 4 8 %
. .A C -
. @
4@ ! ! $' %% B $ '$ '$ . %
4 *) % (
, ' #$ %.
B $ '$ '$ - % . @ ? %
9 ' ; .
4 ! ' > %$ . 5 4 B $ . @ % ' .
4 ! 4 $$ $ ( % % $
%.
4 B $ . % .
4@ ! 4 $(
E '
% % $ ( . . % #
$ %
4 $
'$ $
. % '
4 %$' %$' ,
'% ( $
% $ % % .
& , %
'
. % '
@ ! ! $ $
$ # ' $ , G , % $ ,
%%' $ $ , >
B $ %%' $ $ $ ,. 2$$ '#$ % % %
$$ , $ ,. * $ '
%
. % ' .
* $ % > !"21
%% .
* $ $
$ 4 '$ .
. % '
- % % %%'
%%
* $ $
$ '$
.
_______________________________________________________________________________________________
Investors Information Kit
11
' ! & % , ) - & % " !# - " ) ( & % -' , &
' , @ 3 C < = = , @ 3 C <
' , @ 1 H 1 = , @ 1 H 1
' % 4 ! % 4 0 , ' % . ! % 4
• 4 5 , &
• % % $
• 5 % 2%% #$ 0
2%% #$
@. * % ** ; % %
2 $ %
• . 5 , &
• ! # $ 4 '
• % % $
' % 4 5 '$ & . 2, ; % %
' % Q !"2 $
* % ' R
5 , , ; '
4 *$ % . * % '% )' $ *
• 2 & '$
& %
• 4'# $ 3 , %
( , ( 0-& 3 %' .
• 4 <' $ , >
* % %
• 4 ? %
• 4 * 1 9 > * %.
. & '% *
• & '$ '# %
( M2 M& %. !"2
$. !"2 % ' %
' 3 % %>
• 4 *$ 1 * % ' 5 ,
3 2 $.
• 4 ? & $ % & %>$
• 4 '$ 1 & $ % 2 ' % .
. * - *
-!& ? *
• & '$ $$
!"2.
• : 8 $$ % #
!"2 %
% 6 +' 7.
• 4 ? %
• 4 ? & $ % : A. - $ *
• %
• & $ % & > $
• $ * % ' & $ %
2 ' %
• !"2 ' -!&
/% 4I @ J .AF
! "
' $! * ' )! ;
<-B 50: 0 -! 4 25=2 . !5 "-0 2 -5 K *.-. )-L @ FF( 4 25=2 ( 0 252) : 52 4.
& % 5 & -5 < 0 52; &-:: 5& 2; 5 & -5
2 M 25 54 ; HF@ A A !2L HF@ A A
:2 ; EN . . 9 ) 4 ,,,. E.%
_______________________________________________________________________________________________
Investors Information Kit
12
EHS
Guidelines
For
Safe Work
Practices
EEHS – Investors Information Kit Date: 01/01/2001 IIP/01/04
_______________________________________________________________________________________________
Investors Information Kit
13
) 1 1 = >@ > = 1 < = @ 1 < > / @ 1 <
=
@7 % > .
7 %% # $ ** & % # .
7 % ' # / % '# % ' % > .
7 % $ $ ' $ .
7 #$ %%$ ( %'$ $ , , ** &.
A7 % %$ # $ % % $ '# % .
F7 % %$ +' % .
G7 % %$ $ +' '$ .
H7 % # % % ( # % % $ $ $ $ $ # $
' % '$ , > ' .
@ 7 * %( # % $( $ # $ % $ % .
@@7 $ % $ % % % , > % $ .
@ 7 % %$ %%' $ / ' $ $ #$ %$ .
@ 7 4 % $ % ' % 4 $ % $ ' '
%%' % .
! 1
@. $ ; # ' - % ( 4 ( $ , > % % $ $ % ' ?
2 ;- % % % ( < ( 6@HGG7.
= 1 1 1 1 = >@ > = 1 < =
@7 +' , > % ' ' ' .
7 % % % $ , >( % $$ $ .
7 , > > ' # %% ' .
7 ' $ $ ' , > ( > %'$ ' $ % %% ' .
7 ! % ' ** (
A7 2 % # E ( % ( ' %'$ % ' % $ ( $ (
% $ $ $ ' , > , , $$ ' .
F7 $ % '% ' ( ( ' ( ( # ( $ ( %
' , > ' '$ $ .
G7 5 '% $ , > , % $ '$ $ % , %
%' '$ % .
H7 +' $ $ $$ , % , % ' ' , > +' .
@ 7 # % % , > $( ,
, .
@@7 % , ( % $ , % $ % $ +' .
@ 7 # % % ' % $ .
! 1
@. $ ; # ' - % ( 4 ( $ , > % % $ $ % '
? 2 ;- % % % ( < ( 6@HGG7
_______________________________________________________________________________________________
Investors Information Kit
14
% < ) -< 1 1 1 1 @ @ = > > 1
-< 1 - 1 1 @ @
@<
=
<:
< <
' = <:
< <
# : 1
% 1
' ><
-
2 '# % , % / $ ' % $ , % %>
% $' .
2 '# % , % $ / % % , % % , '# % (
%'$ $ $ #$ '# % .
2 $ +' $ $ & # $ $ +' $ &.
2 '# %
@. : # % $$ % % % % , # ' , '
$ % .
. $ $ % % # % % , ' %
, % % ' #' # % ' $ ' % .
. ' $ #$ $ ' .
. % % , , ( $ $ $ #$ '
+' P
. $ +' $ # $ , @ &
2 '# % , % $ > $ / $
' %' % % $ >
2 '# % , % $ > $ ' %'
% % $ > .
2 '# % , % $ > $ $ $
> .
2 '# % , % % % , $ ' .
2 % '# % , % ( ' ( $ % % ,
> '% ' # ( % % ' $ .
% < ) 2 - 1< 1 > 1 : 1" 1 ><
- = : $ < < 8&,5.9 $ < < 1 1
8&-5.9 :
2# # $$
6 > 7
2# # %' ' $
## 6 > 7
$ 6 $ 7 6 ' 7
B / %
/ %
'$
T
U
U
T
U
U
T .
U .
U
_______________________________________________________________________________________________
Investors Information Kit
15
' D ) 1 >
3 C@< 1 ' > C @ = D - 1C<
- >1
9 / $ , > $ % ' > % %>$ % '% V
,
< ' # > , > $ .
*$ +' $ % ( , ' $' $ .
, > $$ +' . , $ % .
, ( , , $( ' $ # '% .
4 %' $ $ $ $ .
5 # $ ' $' # .
, %
'## $$ $ $ $ 8 % . % ' % $ .
, $ $ .
$ , $ +' # , % #$ ' $ .
)< < H @< $ <
4 $ #$ / $ $ '% $ ( $ %$ $ .
$ #$ / $ $ % , % %$ $ > .
4 '$$ # $ ' .
$ $ # $ # $ %>.
4 # $ $ .
* # > ( $ ' % , $ #$ / $ $
.
4 % $$ % % $ ' .
: > % $ , $ Q R( $ '$$ $$ '$$ % $ .
B $ $$ $ .
' $$ $ % % / ' , % / $ , $ #$ $ .
' +' , %$ % % $ % % #' $ ' .
@ > & 3 C
2 ' $ / ' $ G ' V
: ' $ % % / ' # G ' , > $ $ $
, > . $ $ % ( $ , > % . 9 % $%'$ / ' $ / , >
'% @ ' ( ' > %% ' $ % $ / ' $
@ ' , >. $ , % ' % ' $ , > $ % /
'% , > % % .
2 % G ' @ ' ' % $$ , '
• ' , / ' $ $ )627
• * #$ $ ' % '% $ , >
• & # % % $ @ '
_______________________________________________________________________________________________
Investors Information Kit
16
' D ) 1 >
' G 1 <1>< @ > < O
F> < =: !><
: '$ % % , 6 927 ' $ $ G ) 627 H ) 627 / '
$ G ' , > .
$ - E E 6 4- 4 @HHH @HH 7 % ' +' $ % $ 6
) /% 7 % $%'$ 92 , >
; J H W @ $ 6G 7
9 J ' , > ' . 5 '$ '% % $%'$ ' / , > $ #$ @.
% <
%3 $
,> 3 C 8 9 @ > & 8 8 99 D %3
G H .
H GH.
@ GH.
@@ GG.A
@ GG.
@ GF.H
@ GF.A
/ ' $ @ ' ( # +' $ '$ ( GG. ) 627. , ( $ $ >
# $ , GG ) 627 ( %% +' $ % % ( / ' #$ $ /% .
<
2 $ ( % $$ ) 4% $ ( ' % $%'$ ;B $ ; B $' 7
% % $ #' % $ # ' % $%'$ / ' $ / , > .
% 92 % # # . > %% ' % ' % . / ' $
/ ( # ( $ #$ .
% < 2
& < 11 = 1 < $
3 C 8 9 @ > & 8 8 99
G H .
H GH.
@ GG.
@@ GF.F
@ GF.
@ GA.
@ G .
9 ( $ @ ' , > GF ) 627( , % $ , $$ , # 92 .
_______________________________________________________________________________________________
Investors Information Kit
17
' D ) 1 >
3 1 > O
' #$ '$ % %% #$ % $%'$ $ /
, > . ! / $ ( - ( / ' $ # : ; # ' . K ' '$ % %
% #$ $ '$ $ % #$ ' , > $ % +' # ' %
% ' % $%'$ / ' $ / , > .
3 < > G C O
• % +' % / , > $ > , . H ) 627 $ , G
' % @ ' # $' . , '$ %$'
' % % # , .
• % # ' ( # $ % ' ' /
' . , $$ > , % , % % . * #$
$ % ' # % , $$.
• $ @ ' # ' # ' # % . # / $ # '
%% # $ @ ' $.
_______________________________________________________________________________________________
Investors Information Kit
18
@ 1 - 1C< D @< - 1C< ) $ > 1 > = ) 1 <
3 @< @ 1 1 1C< > 1 > = 1 < :O
% @< > < < G < << @ < > 1 > = 1 < %
1 1C< : > G C@< 1 < @ : > @ 1 1 3
1 1C< " @ @ 1 @ 1 = >
-% ! ,
8 9 1 :
8B9 ! F> 1
' D ) 1 >
%!
% ,$ 8 #V
$ %$' ' , E
%% % , 8 #V
+' '% ' $ %
+' V
' % +' V
2 , > > ,$ #$ Q5 5 ' R
% ' V
# ! $ %
2 ' % $ #$ $ , % $
% 6 > , ( $ $ ( '$ # 7V
% #$ ( $ '
% ' E V
2 , > ' % ' % , , V
, > > , % ( > V
3 !+ ! -
2 > $ % >
' V
8 % # %% $
V
2 , > 6# E 7V
$$ '%> ( >$ +' # %
V
2 $ %> ' % ' $$ , V
$ +' , > % $ V
' ' % $$ % $ 8' V
& 1 - -
_______________________________________________________________________________________________
Investors Information Kit
19
' D ) 1 >
2 / ' % $ > $
V
2 ' / ' 8 #V
2 / ' $ % % %' ' $ > V
2 / ' $ ' $ %% #$ V
2 $$ / ' '$$ % #$ V
2 % $ ' / ' %$ $ > V
$ ) B %
2 ' / $$ , % V
$ %% / V
2 / ' $ %> $$ , V
2 / %$ $ > V
2 / / ' +' , % $ V
3 ! ' , '
2 %> $ ( #' ( % V
2 $ / ' % V
2 $$ , > %$ # V
2 $ $ %> % V
2 $ > $ % V
2 $ % $ '## V
2 $ $ $$ $ > V
# # $ #$ %$ ' $$ $ > V
2 $$ &$ '% &$ #' $
' , ' V
& , H & , ! -+
2 ( $ % #$ $
V
$ +' %
$ > V
2 $ % V
'# $$ , $ $ V
2 # ' % #$ # > V
_______________________________________________________________________________________________
Investors Information Kit
20
' D ) 1 >
2 % % ' V
$ % , 8' % # / ( %.
% 6 ' $ % 7V
& '%
$ $ $ +' % #$
% , >V
$ '% $ , > ' % ( B %
> # V
% $ +' '$ $ V
$ -' !,
2 $$ ' % +' $ ' V
% ' V
2 $ %> ' % ' $$ , ,
% , ' V
& -%! - &
& $ % % $ & ( '
% V
2 $$ % $ ' V
2 #$ $ ' '#$ '$ V
2 8' % # / %$ V
2 / % ' $ , % #
#' # %V
2 / % # ' , V
% & , $ -' !*
2 ' % ' ' $ > $$ $ % V
, $ % V
2 $ $ ' $ V
2 % $ %
'$ % V
2 $ % ' $ % % $
E V
' $
% V
2 ' $ $ ' V
_______________________________________________________________________________________________
Investors Information Kit
21
' D ) 1 >
! & ! % -% # E $ %
+' +' ( ' V
+' +' V
$ #$ V
$ % ' $ E $ ,
#$ % % #$ $ % $ E '
'# % % V
2 , $ $ $$ E V
$ % ! & ' ,& , % !
%$ % $$ +' ' $
V
$ #$ %' V
2 E V
2 $ $$ , >$ V
% $ % % # $
V
2 %> # 6# $ 7 ' , $
' $ %> '%> %> $ % V
2 % , % ' $,
V
2 % % / ' $ , %
$ ( $ V
2 %> $ $ $ , $
% % V
2 % ( $ +' $
> %% $ V
2 $ % $ # ' V
2 $$ ,( ( % $$ $ %
$ # ' V
2 $$ > % % % V
$ ' $ % +' V
E % % E '
, > V
2 $ ( ( % ( # $ ( %.( $ '
, $ % $ , V
%' $ ' ! # ' F( @HHG.
_______________________________________________________________________________________________
Investors Information Kit
22
* 54-02; *5- & B M *: 0 <
!#,
-&%'H
-#!&&
'!,'%
!#,
)%3!H%
!#,!&
!&#
,%$+
!!%!
-!%!,%*
!&
!,),!
&
$&%!
)-'&,
)%*'!(
&
-'$-&
!%%%
-'$-&
!%%
-%&%
!!%
!)&3',H
!H&#
)%*-%-&
3&,'&$%H
4!+H&#
,H!#*
$%!!,
)&$,
,&
-#!&&"&#
'-#!(
2& 20 ; 0< L L L L L L L L
)2 5K :2 0 020& L L L L L L
&2 4 & 4- 2 20 ; 0< L L L L L L L L
& : 0 20 ; 0< L L L L L L
& : &2; 20 ; 0< L L L L L L L L L
& ** 0< L L L L L
<5 24 0< L L L L L L L
5;; 0< L L L L L L
4 2 :-4* 5 4 L L L L L L
; & 5 &2; L L L
<5 0 0< L L L L L L L L
<5 );24 0< L L L
< 9 0 &-0 -0 L L L L L L L
< 2)-B : 54 L L L L
=2& 2:: 5 0< L L L L L L L L L
- ; 4*;;4 L L L L L L
*2 0 0< 64*52K7 L L L L L
52 -<52* K L L L L L
9-5 0< 0 < 0- 4 ; B ; L L L L L
9 9 2 5 &-0 -04 L L L L L
9 ; 0< L L L
;2)-52 -5K L L L
0 5K - ;2). 9-5 4 -* L L L
9-5 0 B & 0 K -! 9 ; 0< L L L L
420 0< :2& 0 -* 52 -04 L L L L L L L
24) 4 -4 20 ; 0< L L L L
9-52&BK
:2& 0 --;4 L L L L
% # $ $
#%&'& ! % (!)$ % %) !*& +%#*)$ $ , -!+ .+$ & %-$ $+#)/ 0 #%+' -1$%+.+, 2 0& 3 %-. -!+#%+.+%#.!+ 4 5!)' !6$)
5%#$)
5.11 )$7*)$ & $- .- $
P.P.
_______________________________________________________________________________________________
Investors Information Kit
23
!$ % % 3 !+
@.
25 2 20 B 44 ; 9M *: 0 * * ; 0
L2& ;-&2 -0
. 9-5 - ) -0 &-:*20K 0 :
: &
2 ; ) >
. 42! K *5 &2 -04
7 < 6, $ % #$ 7 !$ #$
B '
65 '$ $ # / 7 / % <
#7 * % +' # , -/
6 , % $ 7
@. 4
$
. 4
4 % %$
.
& %
$
< $
. ! %
4 $
.
$
A. 2 F. 4 $
%
&.2.).2
G.
&
2 $
).2.
H. '
: >
@.
:'
@@. <$
*.B.&.
< $
4 % $
@ . 5'##
)
64 $
% 7
@ .
* %
! ,
@ .
) '
@ .
*B&
4'
@A.
0
4'
@F.
#$
4'
@G. *$
- $$
5'##
- #
5'##
<$
@H. 4
%7 - * % '
0 .
;
' E *
$ -
B $
$
$
$ % #$
0
$
0
2
4
< B
; +'
4 $
2
% )) ) & %
2$ ' 8 # # $
' E (
$$ ' $ +' E '
% % $
$$ # G @ 1
1< =
> < C
0
7 2$$ : * , # $ $ %
& $ ' 6;-& 2< 5K7 K 0- 0 2 4 XXXXXX..XXX 2 4 '
7 $ % 4 XXXXXXXXX* ' >
, >
7 $ % % $ ' # , , ( $$ % %' 4 XXXXXXXXX. $ % %
7 $ % % $ % %' $ Q '#$ R $ 4 XXXXXXXXX $ % % .
. % 4 *$ & % +' # % ' , > $ 8 % ( *$ & ( &
% ( , > " @ ( - $ ( & % $ $ # > ( 2 # ( /% ( : # $ & ( 5 , >
U ( .B. $ % % .
4 XXXXXXXXXX* 4 '
. 7 - ) , - %!* 6& % $$ 4 2$ 6 ' 7
%% % , 5 '$ F & % $ 9 > 5 '$ ( @HH ( 4 % ! % 2% ( @HA@( %
# % % ( # ( '$$ $ ( # $ %% % ' # 4
*$
_______________________________________________________________________________________________
Investors Information Kit
24
& % 0 . XXXXXXXXXX.. ( ( XXXXXXXXX..
XXXXXXXXXXXXXXXXXX..
- XXXXXXXXXXXXXXXXXX. 4 XXXXXXXXXX
2 4 '
0 % 2 ' $
XXXXXXXXXXXXXXXXXXXXXXXXXXXXX..XXXXXXXXXXXX...
#7 ' % 3 !+ 6" @ -
%7 %' ! ' ; !, 3 !+ 64 4 *$ & % 7
% # 8 # , % # $ %% % ' ' $ # 4
*$
& % 0 . XXXXXXXXXXX.. , > XXXXXXXXX. XXXXXXX..
XXX...
4 XXXXXXXXX.. 2 4 '
F. ! # & ) !$ % % 3 !+
I am satisfied that this permit is properly authorised and that safe access is provided and that no work is taking place above or
below this job. Work may proceed from ……………….. to ………………….. on …………….. Date Signed:
………………………… Permit Signature
G. -- % - ) !$ % % 3 !+
' # % ' ' % , , $$ # . % $$
' * , $ +' # % +' # , 4 , '
4 2 % *$
4 ' XXXXXXXXXXXXXXXXX..
H. - $ & % ) !$ % % 3 !+
% 8 # % $ % $ 6 , 7( $$ ' # $ % %' (
$$ $ +' # = # 4 # $ %$ .
4 ' XXXXX.XXXXXXXXXX. XXXXXXXXXXXXXX..
XXXXXXXXXXXXXXXXXXXXX
! 3 & ) !$ % % 3 !+ 8- - % # ' )% &*9
@ . 2 ' $ XXXXXXXXXXXX XXXXXXXXXXXXX * 4 '
XXXXXXXXXX..
2 ' $ XXXXXXXXXXXX XXXXXXXXXXXXX * 4 '
XXXXXXXXXX..
% 9 8 # * ' # 4 % H ' ( 4 '$ 8 # # % $ #
% * ' # , . * % % $$ 2 6, #$ 7 ' .
8 !$ % % 3 !+ ! E ! , ) ! 3 !+ % !% 9 - !% ) - %
+ 6 &*
* 8 % &
4 %
- !$ 2 # : # $ & .B.
$ % %
-
) ! 3 !+
# &# *$
&
, >
" @
& % $ ;
) >
/% 5 , >
U
2 - !% ) - % & , ) ! * & %
2 > +' * $
/ % ; %
_______________________________________________________________________________________________
Investors Information Kit
25
3 !+ % ,
9 $ < : # $ & : # $ *' & : B %$ & $
$ $
@@ B% & %
,
&'
+'
2 % /%
; B
$ % %
* , $
-
$ & -! % 8 # % '#8 % $$ , % '
0 2
4 2 & 4'
0 B- # % % 8 # % '#8 % $$ , % '
0 2
4 2 & '% 4 '
4 2 $ % % $ 4 '
. ! )3 !+ D 3 !+ % ' '% , % % 8 # % '#8 %
$$ , % '
0 2
4 2 & '% 4 '
7 ' # & -%! - %* % 8 # % '#8 % $$ , % '
0 2
, $$ # , % # XXXXXXXXXX.
4 2 .B. $ % % $ 4 '
F. % 2 > B $ +' * $ ( % # # ( , $$ # , >
% ' $ # ( , % %> $ ( > .
2 $ % ' 6 ( , 7
2 , > ' # # # , > . 4 $
& %
B $ ' '
4 % AY 9 > # #
XXXXXXXXXXXXXXXXXXXXXXXXXXXXXXXXXXX
4 2 4 *$ & % 4 '
? ' % 3 !+ ; ! ; 2 ! ! ' # & -%! - & 3 !+ ! * & % -'
0 2
% # , > > $ % $$ %
4 2' E 4 '
A ! 3 & 4'#8 % % ' # % % ' ' $ .
5 , ' ' ' 6 4*&7
5 , ' ' ' 6 4*&7
5 , ' ' ' 6 4*&7
% 6 7 2 ' +' 4 % G. 6#7 & % $ ' $ $$ % ' #
# .
_______________________________________________________________________________________________
Investors Information Kit
26
) %* & - !% ) - % -' -+ & % 8 && ! E ! ,
! - % % ! ,9
! & ! - % ' % 3 !+ PP 1 >
@. 2$$ , $ +' 6 %$'
$ 7 ' # , $
$ # $ / .
. 2$$ , $ ' # @@ $ / ' .
. ' , ' $ % #$
, $ # @@ $
$ / $ .
. 4' #$ $ # ' .
. 4% $ # % % #
% % / # '
6 # $ / 7.
A. * $ $ .
F. $$ 6 . . 4 $ )$ %>7
G. & , > ( # # $ ,.
H. 0 8 % $ .
@ . & %> $$ $ ( /% ( , >
, % # %
, % / . 2 '%
E ' # +' $ $ .
@@. $ $$ , ,+' #
, > ;-& ( 2< 5K.
@ . & %> , # ' #
, > .
@ . % ' $
% # % $ , 1 ;
4 4 0 . 2 # .
@ .
@ .
! % -% # -& %'
@ . * % +'
@. & % $
< $
. ! %
4 $
.
$
. 2
. 4 $
%
&.2.).2.
A.
&
2 $
).2.
F. '
: >
G.
:'
H. <$
*B&
< .
4 %.
@ . 5##
)
64 $
% 7
@@.
* %
! ,
@ .
*B&
4'
@ .
0
4'
@ .
#$
4
@ . *$
- $$
5'##
- #
5'##
<$
@A.
4
@ . & %> , $ % #$ %
, ' % $ ' #$
'$ # ' # '
#$ % % . 9 $ ' ' $$
+' # .
@@. 4 % $ # %$ >
$ .
@ . & %> % #$ % $ > '.
@ . & %> % % $ '
$ , $ $$ 6 /
'% ' 7
@ . $$ % % % '
$' # , > .
@ . & %> / ' $ $
# %> # , '$
' $ ' $
# , % ' $ .
@A. & %> $$ %
$ % , %. '$
E $.
@F. % % ' $
.B. .
@G. 4 $ .&.
' %%' '$ , >
.
@H. & %> > % $ .
%!* % - ) , -
. 2$$ $ ' # $ ( #
$ % #$ > $
# $ .
@. $ # $ ' ( $$ ,
# ;-& 2< 5K.
. # ' $
6 ' # * 9 >7.
. , % , $ $ '$$
...
_______________________________________________________________________________________________
Investors Information Kit
27
%$ ' ! % %
. $ #$ ' 6 / $ 7
) !-5 9-5 4 25 4 5 * 2 B 5K
XX.. - 54 :-0 -5 &-0 0 - 4;K.
@. / ) !-5 9-5 4 25 4
5 * 2 B 5K XX. - 54 :-0 -5
&-0 0 - 4;K
. / % ) !-5 9-5
4 25 4 5 * 2
B 5KXXX.. - 54 :-0 -5
&-0 0 - 4;K.
. & %> $ % $ '
6T &7.
. 6 ' # ' 7
A. $ $
F. & %> +' % $
/
G. * #$ $ .
H. * , # '
' $.
@ . & % $ ' # > '
% % .
& ! +
. * $ # (
.
@. ) %' $ Q R $
'$ # $$ .
* % Q # R 6 %
% 7.
& %> $ ' .
$ $ ( $ > ' 6 7.
* % $ ? '$ , >
, .
A )$ > $ .
F !$' , , 8 # '
$ $$ $ .
G % $ ( % %$
# ( $ ( % % 6>
$ ' $ $
, %$ #$ $ 7
$ & -!
A . 4 $ $ ? # > # 9 >
* 6 %7.
A @. M' $ , % $ ?
0
XXXXXXXXXXXXXXXXXXX
XX.
A . & % $ $ % %> $ % $ ?
& '% 4' -, 1
5 6 % .7 % $.
B- # %
F .- @. ? & '%
% $
F @. $
F . 4 /% %' .
F . ' , %
' % 3 !+
. <' $$ > $ .
@. , > # $ , , , '
, .
. , % .
. & %> ' %
, >.
. & %> , > XX.. ' .
. 5' ' .
A. * / ' ( .
F. &$ $$ % #' #$ $ , >
.
G. 5 $$ '$$ ' .
H. $ , $ (
4 0 . @F
! ) 3 !+ ( ' '% ! % !
%' 5 $ %! 3' ! %'! !
!$ % --
G . & ,$ # ' # ' .
G @. 9 > % #
% # & '% 4 .
G . * , > $ , $
# .
_______________________________________________________________________________________________
Investors Information Kit
28
' ) -% ' %
, 1 = &
<<> 8 $ L $ << 9
0- @ **: 4- **: 4 **: 0 **: &- **:
*# @
- @ , : > < 8MH#L 1 : # <> " 3 H#L =H
0 FG. C B 0 F . 9 B - .H C B - .@@C9 B
25 .H C B 25 @. GC9 B
,>
& ' ?
.
!' ' ? # $ * % . .
.@
<<> > <
&- **: &- **: &
0- **: 2::-0 2 **:
4 ? **: : 5&2* 204 . **: 4- **:
0-L **: & # $ , / $
$
$ & F> <>
!$ #$ * A H 44 @ ' # F 0 )-
&- @ -& &
.@ @
- $ 3 <
@ @
* $
. @
&
@ @
. : =
2 . 0 @ 2 . @ & ' . @ & $ @. @ & @
& . @ & .@ @ *# .@ @ : %' . @ @ 0 %> $ .@ @
" % . @
% 3 =
)- @ @ 44 @ @ 5 . & . @ 0 - T@ @
& T @ * A. G @ < . 49 * 4 - $
& $
$$ , #$ $ $ < $ ' 6; # 7 F. # , $ % @ # * )' $
' , ' # / ' .
2 > @ = - <
% $ $$ '$ # # % $$ ' %$' $ $
# .
< 3
, $$ # $ #$ % $ # E ' E ' ' $ % 4 $ 9 $.
, % % , $$ # +' > , 4 8 :' % $ .
/ E. 9 $ % !".
_______________________________________________________________________________________________
Investors Information Kit
29
0 - :
& $$ # # 2' %' , $$ > %% ' $$
$ ' ' ( $( +' $ ( ' $ ' ( $ % $
% %' % ( %. $$ $$ # , $'/ $ % @ @ % '$$ $ .
' % $$ # $ # #' $ , % %
8 % .
& $$ # # ' $ $ % % ' $ >
%% ' $ % $ % %' % % E +' $ % .
'% > ( % '$ # / , ( ' $
'$ # % # % % #$ ' $ % % % .
@ << =
$$ # ' #$ $ , $$ ( , 2' .
5 : ) 1 <
% < $ '$ # , $$ $ ( $ / $ '$ $ %$ .
' , %$ '$ $, # , ' $ $ 2 % , %$
'$ # , , / $ @ $ $ $ ' 1 $ . 2$$ $
/ ' '$ # > % .
' % $ % # / $ % $ # .
$ < ) <
3 > < @
@ @ 9& @ , #
@
@ , @ 9& @ , #
@
@ ' , @ 9& @ , # @ , ' , @ 9& #
3 > < @
@ @ 9&
@ $ @ , #
@
@ ' , @ 9&
@ $( @ , #
7 ' <
2$$ '% 2 ' % $ $ , # ! $ ; % $ <
'$ > , '% # % %$ % . & % ' '% +'
% $ ' % %' % $ % ' . $ 4 % ' $$
' '% $ $ '#$ % % ' . $ $ $ # $ $
% %> % % '% , $$ $ $ & % $ ' ' $ %
% .
3 > < =
2 $$ % 1$ , ' ( $ %$ $$ % +'
' ( % % +' %> %' ' .
4 %> * $ $$ # ( % $$ # $$ ' @. :. %$ %
# % $ . $ $ '$ # > . 4 $ $$ % #$
'% ' $ % . 4 $ $$ #$ % 0-0 % #' #$ : $ 2 +' %$ % $$ #
% . $$ # > , ' #$ %$ % $ ( , $ % #$ .
? =
, 1>
$$ %' $ ' % % % % $ $$ # ' % %
% %% % , .0. %$ % .
_______________________________________________________________________________________________
Investors Information Kit
30
A = - 1 < , = >
2 ' '$ / % % $ ' . , # #$
% %% # $ % % % $ ' , 8 # % $$ $ (
%'$ $ % $ % ' % +' % .
% ' # > ' %$ E ' ' ( % '$ # >
' / $
Z 4 %$ Z $ %
Z % $ Z '
Z > Z $ $ $
Z Z ' #
. & F> = =
)'$> $ +' % # ' E ' $ % % $ ( % . 4 $$
# % $ % $ . 4 $ +' % #
7 !'$$ ( , $ +' #'##$ % ' P
#7 !'$$ ' ( , $ +' # ' P
%7 4 ( % , $ +' # $ , # ' #'
' # %.
_______________________________________________________________________________________________
Investors Information Kit
31
$ B $ $ B ! & $ %
! 1
> 1 ) ><
& = >
@ > < 8?/
> %3 1
@ 9
>
@ > <
8 ./ >
1
@ 9
@@ = @@ =
2% $ $ & J & &0
2 % 3 % ' /%
$ 6 2 7
2 .
)' @. & J & &0 J
&
@
)' / $ & H-& & - @
& ' 3 % '
% ' /% % '
/ ' % '
'$ 6 & 7
& .
& ' / ' 6 & 7 & - . .
& ' '$
6 #$ ' & 7
& 4 .
& # '$ &4 @
% $ & &$ @
. 1 % $ . 1 $
$ 6:#-&27
& 6&A & 0 7 .
/ $ & -& & - @ F
/ $ % & -& & --&
&
@
$ # ) & & ) @ G
$ / & & - @
! $ & - . .
% &0 @ @
% $$ 6 0&-7 . . F
: $ #
@ : / $
& -& & - &
@ A
: / $ & -& & - @A
: / $ %
& &--& & -
&
5'## % ' G
5'## ' .F
_______________________________________________________________________________________________
Investors Information Kit
32
! 1
> 1 ) ><
& = >
@ > < 8?/
> %3 1
@ 9
>
@ > <
8 ./ >
1 @ 9
@@ = @@ =
4 &A & J & @ @
@.@.@ % $ & &&$ @H
% $ $ &&$ J & &$ @ @ G
B $ % $ 8# :< 1 <
< > 1 =
> < > @ > <
@@ 9
& J & &$ F
B $ % $ & J && @
9 ' 6 , 7
& < 1:1< <> < <
_______________________________________________________________________________________________
Investors Information Kit
33
% & %
< @ < : > F>
@7 $ % %
7 9
7 $
7 9 $
7 & $
3 0 8 > 9 :@ 1 < <
@. * #' $ , ' @A A@ .
. *$ $ 6 E +' 7.
. - % % $ .
. 2%% & $ /.
& -%! - %*
$ $ $ % % ' $ @ B( * ( " $ , $ % ' @@ B( * ( "
$ % ' .
) / > < 3 >
2 $ #$ & % J F. 9 6 * ( "7
2 $ & % J . 9 6 * ( "7
4 & % J . 9 6 * ( "7
! % $$ ( ' .
!"2 4 92 % % . $$ , , # #
!"2 4 92 % % , > .
@. ; ' *$ *$ .
. 4 $ ; / .
. ; #' 4% '$ / .
. & % ; ? / .
. +' 4 .
% $ % % ' $$ # # # .
< ) &
+' $ % % ( # !"2 4 92 % % .
&; J $ & % ; J 9
! J ! % J 9
*! J * , ! % J .H
: J : / ' J 6 &; / !7 *! J 9
* $ % % , +' # # !"2 4 92.
% '$ % % $$ , %'
% .@.@ # !"2 4 92 % % , > .
_______________________________________________________________________________________________
Investors Information Kit
34
1 @ 1
# ' , $ #$ / % $ .
11 - @<
# ' , $ #$ / % $ .
< $ % % % % % % '# $ % %
% % $ % 4 92 , $ !"2.
2 3 % !
! , ' $ $ +' , # .
9 $$ .
< ! , % % % % '# , % %
$ % 4 92 , $ !"2.
% & '
2$$ +' ' % $ +'
0 $ $ +' J
0 4 0 +' J
0 ! / +' J
0 $ +' J
0 % $ +' J
2 +' +' J
0 3 % , &
$ $ J $$
, J
$ +' , J
5 - # & , )
$ # # & $ .( 4 8 .
% % , %' & $ # # $
$ !"2.
_______________________________________________________________________________________________
Investors Information Kit
35
, !%$ % ) !% , - % $
' !4 '
- , % ) % - % $ % !
* ! ' ! * ,# , % 1 > @
<< G
@. * $ % '$ $$ $ 4 8 * & > . * %% # $
%%' ' # ' # ' . $ '$ $$ '
: 1 % $ 1 % . * $ 1 % $$ ' % %' % / :
-, $ # $ %%' ' # ' # .
. : -, $ $$ # $ $ #$ 8 $ $$ % ' $ % +' $
, ( , % ' # $( ' %$' 4 8 * 2' $
% % ( ( '% ' ( +' ( % $
% , * 1 8' % . 4 8 * 2' $ ' $ %'
# ' % ' . $$ # , ' # ;$
4' % .
. 7 4 8 * 2' ( * 3 &' %% # $ $ # $ ,
% ' $ % +' $ ( '% ' ( $ ( +' (
% ( , # , % ' ' $1 % $$ %
% .
#7 %% %%' ( , % ' ( , % $
' % ' % $ $1 '$ ( :
-, ( - ( & $$ # $ $ #$ 8 $ $$ $
%$ % % +' $ $ ' %% . 4 8 * 2'
% '% , % , #
: -, ( - ( & .
%7 -, ( : ( - ( & 2 $ $ 4 8
* 2' ( $ ( ( ( % % $$ $ ( %$ (
' $ 8' '$
% +' % % , .
. : ' $$ %$ $ ' # ' % % $ $.
. 9 $ # ( ( : $$ '
7 $ +' $ $ $$ % '$
+' # * 2' 6 % , $$ # ' $ % %' % 7.
#7 2 %% $ ( , $$ ( +' $ $ ' ' >
$ , % ' ' .
%7 5 ' %' $ $$ , .
7 0 '# % ( $ % , # ( , 8 .
7 E ' '# % # , > ( $ $ 5 '$ 5 %
, * 1 '$ '$$ % $ , .
7 % , '$ '$ % %' 4 8 , $ # ' $ .
_______________________________________________________________________________________________
Investors Information Kit
36
A. 2$$ > ( & & 65 5 W ; ; 7 ' , ( ! 3 2 ( % $
@. : # , % , .
F. : $$ & & ' '% ! ! 3 % *$ * 2' ' $.
G. $ % $$ 1 & % $$ # '% * - % $ . 9
@ $ ( $ & % & 4 , ' # % E 2'
2 % $$ # # .
9 % % ' # $ ( , #$ ( #
* 2 4 1 / $ $ # % .
! $' '% % % * - % $ , : -, 8 $
$$ $ #$ ' . ( $ * 2 .
H. 0 # ' > , % , '$ ' , , ( , '
# , # ' : .
@ . 2 > $$' 4 8 9 % $ # . : -, &
- $ % ' $$' $$ 8 $ $$ # $ $ #$ ' . (
/ ( , % # %' $ %$ ' '% $$' . $$ $
8 $ $$ # $ $ #$ %$ $ # .
@@. : ' %$ , , # $ $ $ ' # .
! $' , $$ $ ' % +' % .
@ . 2$$ B $ 6 /% % 7 , % ' % # @2( @ 3 '$ # *
4 8 & $ ' 1 & %> .
_______________________________________________________________________________________________
Investors Information Kit
37
! & !% ) !$ %
# ' , % % @HG % $ @HGA( $$ , # % '% ;*<
$ # , % , # 4 2;&- # 2:-&-. 4 8 * 2' %+' $$ %
* * - . * $ $ % 2 #
* '$ ( @ . $ 0 & 4 8 * 4 8 & . ;*< $( - $ >
$( < $ & ) 4-5 $. #$ %% $ '
< $ & B $ , $$ ;*< > - $ > .
,# %
%% $ > $$ $ % % # ' <'$ 4 %$
'E 4 ' . 2 , $ , 4 8 & ' $ .
2 * 8 % ! " ( ! " #$ % .
!% & - %
* $ % ' $$ % $ # , 2$ M', 28 (
8 % ! " ( 4 8 ( 2 # .
-& $ %
%$ $ % $ 4 8 % % E # % $ , ' . ' $ $$
. % $ ' % #$ %% .
3 ,
, ' 2 # <'$ ' ' $$ $ $$ #$ , , +'
( #' %% $$ ' # , % . B # $ $$ .
- $$ - %
$ #$ % ' % , $ F ' $
'$ % % ' $ $ $. 4 8 * 2' * +'
, B ! ' $ +' % , % % $ @A 3 F .
! -' , % &
% $ ! , #' ' / [ . D0 [ A. D $ , $ ( $
% 2 @ % . % % $D % $ % / [ @D0 [ FD .
% $D $ ( . , @G , % $( % $(
@G # ' % $. % $ # @ , # '
# @ ' # A . : / ' ' $
% $$ * @ .
!%' , % &
* $ % '$ , % $. , $$ * ;- 4( <
)-2 4( :--5 0< &52! 4 20 :--5 0< : 0.
, % # ' 0 , , /% > . *
# ' # $ ' $ ' $ 6 8988 @A .7
! & - ! !%'
% '% # , % $ @HH . +' $ < $ & ) # %>
, % @A( +' . 4 M ;-2 @ ' % # %%
# . # % $$ #'$> % % ' $ ' %'
_______________________________________________________________________________________________
Investors Information Kit
38
8 % $ . #'$> % ( $ $ % $
.
& % !%'
* # % $$ %% - $ > . % $ % %% $ ' @G
$ ' ( , . H $ #' $ %% % , $
$ # ' # > % .
%' ! , % & ) % !%'
!%'
;-2 : ' 0 %
: / ' @G .
52! : / ' @ .A.:
- , @ :
) 3 # ' $ $ .
& , H & ,
; 5 @ : '
% 5 G : '
& % * 4 E G : $
% = $ H : .
4 E * $ @  . . $ <- 3 !-
@  . @ . $ ) ' .
& % !$ &
;*< $ ' ( F , > , % %' % . B $ , $$ #
' $ ' $ ( #' $ , $$ # ' . $ % ,
> #' , % % $ $ % $ .
) &H ! !%'
# / % % $$ $ $ . % $ % %%
> # , ( ( , .
, - $ % %
@. $D $ 0 % 2 $ ' # * 2' $ F ' $.
. , D % ' '# . * 3 &' $$ , %'
7 & :
#7 & *$
%7 % ;
7 ; ' & $ % .
. * $( ' > '$ # '# # % $$ % %
' . * &' $ $D % $$.
)! ' 3 % ! , ) &
! , $ #$ +' . !' $ % # ' $1 .
!% ! & %
, - $ %
_______________________________________________________________________________________________
Investors Information Kit
39
$$ , %' +' , $ % $$ *
. $ %$
#. & , ;
%. &$ % $ % $$
. &$ % & <' .
)&
B $ +' $ $ 2 # ' $ ' , $ 4 8
, . 4 8 $ , / @ ' % $ $ , 4 8 % $ .
- ! !
% $ > $ * , $$ # $$ , ;*< 8 .
, ( % # , > $ $ % # ' $D .
, ' ! & # , -! 3 -'
B $ $ 6 % $ % % 7 $$ , # > # > $ ;*<
= . & , % $$ , #' % ;*< $.
# % !
B $$ , $ ;*< $ , ' $ - .
!%' , !%' ) - & %
* , $$ # $$ # ' # % $ , , ' # $ # %
$ , % $ % ' % +' .
& $ % !* ! E ! $ %
@.@ 2' # , %
7 4 % $ +' % # # $ % > ' % $
$ .
#7 $ %'
2 B $ %
2' , , ' % ( / $ %$ $ '$
'$ ( ( '#8 % P #$ % ( % % $ '% / .
B- % & 3 ! , ,, % & $ !
0 , % '$ '$ ( 2' # /% $ ,
$ $ $ ' % ' , $$ $$ # '
.
' $! * ' !% ! &
%! )) - $ $ %
, * $ ( 2' , $$ % % : 5 '$
, % , $$ # # $ 0 , % # * ; .
2 - ! ! %
2 '$ ' % $ , * 2' , $$ (
& - 5 '$ %$ $ 2$ $$ %% , > % % ( ' $
5 % .
& %
_______________________________________________________________________________________________
Investors Information Kit
40
* $ , $ % '$ /% % , * $ / . 2'
, $$ $ 4 % .
0 - , -% !%
2$$ $ , ( % % , , $$ $ $ % '% % # # & '% *
5 '$ ' # 2' .
5 # ! $ % ! % -%
%% % , ' $ % ( % $ ( % ( % ' $ ( 2' , $$
% '$ ' $ > E .
-' ! , & % !, %
* % ( % @ $ ' ( , % # $$ ,
2 % 2 ; ' [ D 0-5
; ' [ D F 24
6 % ;*< ( > ( % ' % 7
2 % ) ; ' [ @D A 0-5
; ' [ D G 24
2 % & ; ' [ D G 0-5
; ' [ D G 24 D
< =
; ' [ D H 0-5
; ' [ D @A 24
62 / $ $ 0 9 ! , )' 7
0 9 $ %+' ' ( '% , ' '
* %%' % % $ ' ( %% # $ '
% # .
_______________________________________________________________________________________________
Investors Information Kit
41
' , & ) ! ! % ! % " - ) % ! , - % ! !
@. 2$$ % $ '$ # > $ $ % ( . $$ , %
%$ ' .
. 2 $ $ / #$ % % , $$ # +' # $$ ( '$ # '
% $ ( '$ # $ $ ( %.
. < % $ '$ # '#8 % % '$ # $ % ' '
. B $ $$ % $ ' $, # > %$ , > . )$ , # %> $ # .
. 2 $ % #$ / ' $$ # $$ $$ +' $ % .
A. * ' $ '% %. '$ % +' .
F. 0 $ / $ % % $ , , $$ # , ' $ !" 2' .
G. & > , $$ % $ '$ # ' $ .
H. 2 $ ( $ % % $ > $$ # $$
@ . 9 $ $ '$ # % $$ % $ .
@@. < '$ # $$ , $ % #$
@ . 2$$ % $ '$ # > %$
@ . 2 $ % #$ # # % $$ % # % $ ' $
@ . 2 $ ( > ' # $$ % % % .
@ . $$ # % # .
@A. 0 % $$ % $
@F. $ % $$ # % / %( # # ( , ( %$ %
%$ . ; ' $ '$ # $'/.
@G. ' $ $ '$ % % %
@H. & %> %$ $$ % $$ , % %
. 4%
@. &$ , , , .
. 4 $ E # % $ .
. # ' %> # %. 2$, %$ %$ # ' , %.
. ( , ( %$ +' '$ # ' ' .
. ! '$ % % % .
A. ! $ $ $$ $, # % %> .
_______________________________________________________________________________________________
Investors Information Kit
42
F. 4 , $ % $$ $ # , >. 4 , > ( ' ( E (
# ,$ '#$ '$ , >. &' # ' '$ # % , ,
# . ! $ '$ # , ' .
G. 4 > $$ $$ # # .
H. !"21 ( 4 '% ( '$ '$ , $$ # % $ $$ , .
. % %% ' $$ $ # . % $ $$ # +' , # /.
@. ; ' $ '$ # $'/.
. ' $ $ '$ % % %
. & %> %$ $$ % $$ , % %
. 4%
. &$ , , , .
A. 4 $ E # % $ .
F. # ' %> # %. 2$, %$ %$ # ' , %.
G. ( , ( %$ +' '$ # ' ' .
H. ! '$ % % %
. ! $ $ $$ $, # % %>
@. 4 , $ % $$ $ # , >. 4 , > ( ' ( E (
# ,$ '#$ '$ , >. &' # ' '$ # % , ,
# . ! $ '$ # , ' .
. 4 > $$ $$ # # .
. !"21 ( 4 '% ( '$ '$ , $$ # % $ $$ , .
. % %% ' $$ $ # . % $ $$ # +' , # /.
_______________________________________________________________________________________________
Investors Information Kit
43
) ! B% ' !
2 $ # $ #$ / ' % $ $ . )24 & +'
% ' #$ / ' .
9 V 2 , E ' / ' $$ ,
E> < 1
♦ 4 '$ # ' .
♦ 4 '$ # % $$ % #$ .
♦ 4 '$ > , '% .
♦ 4 '$ # % % ' .
2 F> @ @ 1 1
♦ 4 '$ # # % $ E % 8 9 % % ( ' , 7
♦ B $ ' .
♦ 4' #$ %$ +' . - / % #' #$ .
< 1 ' = = =>
'$ # / % $$ $$ , $ %
♦ - $ % % # .
♦ 0 / .
♦ 2%% #$ .
♦ ! % % $ . 6 - %$ % $ # / ' 7
♦ ! ' ' % . 6!' % ( ' ( ( , ( ' $ %7.
0 >1
♦ * % $$ % %> ' / ' .
♦ ! $$ , ' % ' '% % $ % .
♦ % $ % .
♦ %' %%' % $$ % $ .
♦ K ' ' .
♦ % % '$ % $ % % ' #$ / ' .
1 @ > ! :
' $ / ' % $ / ' .
% % % $ ( % ( % %'$ $ $ . /
% $ '% / ' , / $ , ' % '
' $ %' $ . M' ' # % # > ' $ %
% ( % ' $ # % ' '% $$ / ' , $ #$ % .
) % ' % % % ( ' +' $ % ' #$ / ' ( % $ % (
% ( ' ( '$ .
_______________________________________________________________________________________________
Investors Information Kit
44
$ !+ ! $ ! )) B , %' B% ' !
=< 1 1
L G " @ @ ( 1<
! F> 1 1
L < " @ < > ( =
<> 1 1< 1 1
- L < 1 1 < @@< 1
! 1 1
, L <
@. ' , / ' $ % % ( # % ' , % '% $ % % .
. 2$$ / ' % $$ $ . & '$$ '% / .
. K ' ' > , , ' % # / ' .
. K ' ' > , / ' 1 % / ' % ' .
' % ' #$ / ' % .
A
B
C
D
IMPORTANT INSTRUCTIONS ?
_______________________________________________________________________________________________
Investors Information Kit
45
' !4 ' $ - & %* ! - $$ , , ' &%' -%
) - & %* -' -+& %
<< ) > < < = F> @ @@ < ' <
1 & : $> 1 @ < :
@. ! $
> < =
> @ : > < =
• )' $ % $ $ % %$ / $ % .
• )' $ / ( % '% % . . .
, , ( % > $$ ( %. 6 %% .2. '$ 7.
2 > < =
, = " - >1 $ 1
• !$ ( , $$ ( % $ % '% / % $ ' #$ ( ' ( ( %$ #$
' #$ '% % ( 9 $$ $ % $ ' 62%% .2.
'$ 7.
• 9 ( , $$( $ % $ 8 $ $ %
% % $ %$ .
• !$ ' % $ $ +' ' $ .
• & $ '% ' ( % '% % .
• % $ +' % % .
• 2 #$ % $ $ , % %
'$ .
• 9 , % '% $ $ +' $ % ( , $ > $
# > $ , , D % '$ '$ % .
& = =
• ; '% '% % % % # % $
% '% .
• ; #'$# / ' $ % , / %> $ (
% % % # > .
0 # <
• B $ ' % /% ' %% #$ %%' '$
% ' % .
• B $ +' , %$ % $ >
% . ! $ %$ $ % .
5 3 , @ <
• , +' , .
_______________________________________________________________________________________________
Investors Information Kit
46
• 4 , $ % $ ' '% ' $ % $$
% .
• 2 +' % $ , $ #$ . % $
% .
• 9 % ' %$ $ ( $ > ( % $$ % .
• 9 '$ $ % %$ E , % E >
% .
• 9 $ % #$ ( , ' $ % , % % .
2 % !* ) - & %
2 @< : ) 1 <
• 9 % $ #$ ' , ( ( ' $
' #$ , # 6 %% .2. '$ 7. D
• 9 ( $' % % +' $
% .
• , .
• * % , +' ' # 6 %% ' # , > 7 '$$
+' , .
2 2 F> @ -< = K = ) 1 <
• : ' % ' % $ , %$ +' % $ .
• ! % $ % '% % $ % #$ # $ %$
, #$ , ' %$ % % $ ' .
2 3 ( 1
• 9 +' .2. 6 #$ 9 M' $ 7.
• 9 % +' $ 6 # $ 7 ' # +' $ % ' # > .
• ( ' % #$ % ( # %> $ , # %> ' .
• $' ( ' ' #$ , +' $$ '% %$ '
. .
• * '$ # $( , % , $$ $ > % .
• % ' % % % , #$ , %
% .
2 0
• ' $ * #$ , +' % 6 % $ #$ 7
$ +' .
. E $ %
< F> @
• +' ( % '% +' %
% '% ' H .
• +' ( % '% $$ # %% #$ %$ ( E ( %
% .
• 9 $ % #$ ( +' / ' ' /% % .
_______________________________________________________________________________________________
Investors Information Kit
47
• +' % % % .
• 9 % ( +' ' % %$ # % $ ' %
% % .
2 ) - 1 > 1
• ! % % ' % +' ' $ ( % ( # # (
% %> % % % , %$ .
• 2$$ % % ' % $ %% '$ %
.2. .
• +' ' % % $ ' % % % .
F> @ $ 1 - <
• ' % ' % , % % $ # ' +'
% ' % .
• : % % $ # +' # $ .D $.
• : % % % % $ +' %$' ( % +' # ( (
% ( % .
• & $ # % % % $ +' %$' % +' ( ( #$ (
% $ # '$ ( / % $ # ' .
• ' $$ E ' % > .
. ! &
0 % =
< ) ':= % =
• ' % ' % $ , $ .
• 2 # % $ $$ $
# $ % $ #$ .
• 2 % % ' $ ! '$ +'
$ .
• 2 $ % ' %' > ,$ +' %
% $ .
• 2$$ , > $ % ' , , > % .
0 2 ':= ' < ! F>
• 2$$ , ' $ ( # , >( $
% $ ( # > ' $ % $ .
• $ $ ( , %
.
• $ % %> ' , > $ % '% '$ $ % .
• $ # / # ' % % % % '$ '$ % .
• * $ # $ %$ > , $
% .
• % $ % % '% .
• * % %$ ( % ( , $ (
$ ( , .
• 2%% % $ % $$ #$ % .
0 - > 1 < , >
• ' % ' % $ %
_______________________________________________________________________________________________
Investors Information Kit
48
@. 5' '$ % $ % %>' $ %% .2. '$ . 2$$ , >
$ $ % .
. * $ > , # ' > , % #$
' , > $ .
. * $ , , ' %' ' $ %' % % .
. * $ ' % / # ' , >.
. : ' '$ % %> ' , > $ $ % %
> .
A. % %% ( 8' %% #$ $ ' ' % .
5 % - %! &
• % % $ .
• 5 % % $ %$'
@. B $ % $ % % , % # % % 2' .
. 5 % % $ % . . % ' ( $ % $ % (
#$ .
A. %! !% % , % !
• % $ ' #$ . ' % $$
% '% %% '$ % .2. 6 ' #$ % % 7.
• % $ % % $ '
% ' #$ .
• 2 %$ E %$ ' # $ % % ' #
> .
• % $ 6 ( ( %> 7 % %
.
7 % @ > - <
• ! +' [& $ $ .
! E D ' , 6$ [&7.
• ! '% % # $ % $( % $ % % $
% .
7 2 =
• ! +' [& $ $ 6 % 7.
! E ' , 6 $ [&7.
• ! %> $ $ , $ $
( % .
• A. & % $ 5 % 4
• & % $ % +' $ $ .
• & % $ '% # $ % %
% % ' % .
• & % $ % % $ $ # $ % .
• & % $ $ $ # $.
7 0 ) >1 =
• ! '% '$ # ,
% #$ .
• 5 ' % ( / ' % '% %$ $ $
.
_______________________________________________________________________________________________
Investors Information Kit
49
! - && * % $
1 >
• , % ' %$'
@. #$ . . % $$ % 6 7.
. $ # $ % $ % $$.
. : ( $ % % $ % $$ '% .
. 2 +' '% # % # E '$ #
%$' % $$.
• % ! & $ 4 % , ' % ' $ % .
% '$ %$' $$ ,
@. 2 ' '% '% ( #' .
. 0 ( E ( % ( $ ' # % $$ .
. 2 #' '% ( . . 0 $ 6 .2. 7 $.
. 5 % $$.
2 >1 - 1 8G :9
• % %> ( $ #$ ( % > $ ' # %> . .
• % #$ ( ( ( , % '% .
• & > ' / % % $ #$ .
• 9 ' ( % % $ #$ % % , .
! 1 << - @ < :
• ' % ' % #$ '% %%' $ # $$ %
'% % $ > $ % .
• ' % ' % ' $$ ,
@. 5 % &' D ( $ ' # $ #$ $ .
. 5 % '% ( #' # $ $ #$ $ .
. * % % # $ % ' $ % $ % $
$ % '% % % $ .
. 2 ' '% '% ( #' % % % $$
% ' .
, > ! 1
• #' % % ' % % # $ %'$ % $
' # .
• $$ , ' +' #' %
@. * '% % E .
. ; ' # & .
. M' .
. &' 1 ( ( ' # $ $ $ '% #' .

150397343 ims-ems-guide

  • 1.
  • 2.
    _______________________________________________________________________________________________ Investors Information Kit 2 TABLEOF CONTENTS &, " - %! -% ( , # & . / .0 ( - 1 . 2 1 . 2 )& 3 -' !% ) ! ! 4 -% , # ! - , ! .5 ! ( ' , !%$ %6 3 !+ & ) ! # % ! .7 0 # ! $ %" ' &%' ( ) %* 8 ' 9 . / ' : ) ; 6 < ' < ( : = . 2 ' < " : ( < . > < 3 .? 0 # < .? 5 ' &% ( ) . 7 ' ! & % , ) - & % " !# - " ) ( &% -' , & ' , & ) ! ) 3 !+ ! -% - 2 ) 1 1 = >@ > ( = 1 < = @ 1 < ( > @ 1 < = 2 = 1 ( 1 1 1 = >@ > ( = 1 < = ? % & ) -& ) - % ( -' ! -% ! % - ! !% ) , ! % - 0 A % & ) 2 -! % ! ) ! %' -& ) - % ) % - # !* % B -" % B - ! ' !$) & 0 . ' ) !$ ( ! - , ! 5 / 2 3 C@< 1 ' > C @ = D - 1C< - >1 5 2 @ > & 3 C 5 @ 1 - 1C< 8 @< - 1C< 9 $ > 1 > = 1 < ? / 2 ! & ! % -% # E $ % , 22
  • 3.
    _______________________________________________________________________________________________ Investors Information Kit 3 2!$ % % 3 !+ 2 D 2 : < = - 1 1 1C < 27 ' ) -% ' % 2? / . 0 $ B $ $ B ! & $ % / 2 5 % & % < 1 1 : 2 3 0 % < @ 0 0 3 , @ < 0 5 - < , 0 7 , !%$ % ) !% ( - % $ 5 / 0. - 1 $ 5 / 7 ! & !% ) !$ % / 0. ? ' , & ) ! ! % ! % " - ) % ! ( - % ! ! 0 / 02 A ) ! B% ' ! 0 / 00 $ C > => 00 2. ' !4 ' $ - & %* ! - $$ , , ' &%' -% ) - & %* -' -+& % 05 / 0A 05 2 : ) 1 < 07 F> @ 07 0 < 0 5 - < 0? 7 % @ ( = 0? ! 1 << : 0A
  • 4.
    _______________________________________________________________________________________________ Investors Information Kit 4 && ! ) ! - ) ! !) !$ - % , !, << < < 1 < = & G " !>< ! =>< @@< 1 < : : 1 @ 1<> =" > < ) /& G /20H AAA >@@< " ) < & > & G ? < " << < ' & G " ! =>< 1 1 1 " 1 : 6 ) < < = 1: ) < & G 208 AAA9 ' : ) ; > < " ) 1 ( I, 1 = - < = J -< 1 @ @@< 1 < ! = < >1 I! : < - J > < - 4> < * > > @@< 1 < > < < < @ 1 1 = 1 < > 1 > = % 1 1 < ! G & 1 = @@< 1 @@ @ < $ > <
  • 5.
    _______________________________________________________________________________________________ __ Investors Information Kit 1 >< =" - >1 ( , < @ < = !$ % ( - !% ) - % ! " #$ % $ & '% ( $ ( % $$ )' $ ! % $ ( *$ +' ( # ' % $$ , %' $ % #$ )' $ * )' $ % $ & % - ! & % . > < = ' / ( # , % '% % / % $ . ' $ , ( %' ( 0-&1 '# # 1 2 % '$ . 2 > < = - @< - 1 - % & '% & '$ $ &, - $ & % - !% ) - % $ , $$ +' ' $ % ! " 1 '$ . & '$ ' % $ #' $ ( , # % $ % % $( $ % ' % ( % % $( % $$ ( $ ( ( , $ . +' & '$ 2' % #' $ ' &, - $ & % - !% ) - % . 0 % ' % % % . % % +' # ( % , $$ # / . @ ) - 1 2 # &, - $ & % - !% ) - % , % $ $$ $ % ( % $ ' ( $$ $ 2' ' % @ 1 1 2' ' '$$ % $ % ! " $ 3 4 5'$ '$ . $ ! % ) % - !% ) - % # % $ % %' $ % #$ ( % $ , '$ # . !# - 1 % '$ $$ $ $$ , % ' 6 7 % % % % ( # & '% * 8 % ( %$' #' $ ' . $ % $$ # , % , ' !"21 . 1 %:@ , @ * , $ % % 3 4 8 $ % % 9 2' 9 3 4 8 $ % % 9 2' $ % < 2 # $ % ' % 3 $ % 2' ! ! * % $ - < , 1 4 8 & $ % 2' % $ , ' $ , ( $ % ! ' $ $> 1 @ < : 4 8 :' % $ & 2' * $ % $ % 4 8 * 2' * %$ ;*< , ( $$ % $ ' &- H $ - 2' % $$ ;*< $( = % $ 2$$ % $ % '% ( ( % % ( $$ , > '#8 % % $ %% '$ . , ! $ % ! , % , !, - %! -% • 2$$ $$ # # %' )4 4 %% #$ $ . 4 '% ' $ , '# $ $$ $, # ' , % $%'$ . • #$ % ' % ' $ ( , >. • #' $ $$ '% ' $ ' $ . • ' +' 4 '% ' $ 4 $ 9 > ( & % 9 > # ' '# '% ' $ $ $( 4' '# $ $ % '% # %% % , $ %' % !"2 ' .
  • 6.
    _______________________________________________________________________________________________ Investors Information Kit 2 4? @ A * @ @ • 2 % % 1 % % , $$ # +' $$ ' $ % '% ( '% 5 %> ( * , ( , ( & $ , ( & $$ ( & ( ' $ ( 4 ( & ( 4 > ( 5 ( ) $ ( & ( ; +' 1 ( ' B $ , $ % #$ . • ) 1 3 C # % $ , # ' $ , A $ %% % , $ . % %% %$' ( %' % # $ $$ $ # % % . • ! 11 2 +' $ $$' 5 %% ( ' A , $ , # ' $ $$ #' $ % $ . , $$ $ ' # %> +' # ' $ . $ $ #$ %> # $$ $$ # ' $$ % . 0 % %% #$ . • ) )< & < )' $ $ $ $ $$ # ' $$ % 1 . $ %$ % % % $ $$ # . ( , ' . . • > < />@ & #$ $ #' $ ' A C $ $ $ • % @ : - >1 D < 2 $ $$ # # $$ #' $ ( D '% ' % $ ( $ , ( ( /% , > % '% , $ $$ ( % +' ( $ E . 2 % $ % '% $$ '% ' # $ # ' $ ' %% % % ' . • , = 2 ' $ / % % $ '% ' , $$ # # $ % % % '$ . • , = - <1>< 4 '% ' $ , '# $ $$ $, # ' , % $%'$ . • > - = #$ % ' % ' $ ( , >. • >1 > < 3 C ' +' 4 '% ' $ 4 $ 9 > ( & % 9 > # ' '# '% ' $ $ $( 4' '# $ $ % '% # %% % , $ %' % !"2 ' . • > < - >1 2 % % 1 % % , $$ # +' $$ ' $ % '% ( '% 5 %> ( * , ( , ( & $ , ( & $$ ( & ( ' $ ( 4 ( & ( 4 > ( 5 ( ) $ ( & ( ; +' 1 ( ' B $ , $ % #$ . • ! : $$ # +' ' $$( $ > %% #$ ( $$ # % . ' ( % $ , ' %.( $$ % ' . 2 % $ $$ 4 8 2 % # # !"21 . • : 3 C % $ $$ # %$' , % $ , % ( #$ , ( ( '$$ ( , $$ $ ( $ $ . % $ ' $ E $$ % $$ , $ < ) < 3 > < @ 3 > < @ @ @ 9& @ , # @ @ , @ 9& @ , # @ @ ' , @ 9& @ , # @ , ' , @ 9& # 3 > < @ @ @ 9& @ $ @ , # @ @ ' , @ 9& @ $( @ , # • % < 1 > 1 % < @ << << 1 / @ G < > C =>< • < 1 1 < 3 C << < 1 1 < G C << 1 1 3 ! =>< " >1 > <
  • 7.
    _______________________________________________________________________________________________ Investors Information Kit 3 •3 3 C << G G C << 1 1 3 @@ G = " 1> " => < >1 • 3 , = @@ @ : K 11> >< G << 1 << @ > 1 " 1<> = ! % @ " ! " " & 1 @ = • '# - # < /1 F> << C 1 / = = << 1 < " 1 = @> < 1 11>@ < ' < F> % : << >1 1 @ • ) 1 " - < ) 1 < = = << @ << 1 << < < 1 @< 1 G << G = >1 <" ! = < & 1 < % : << 1 1 @ 1 @ @< @ @ : : K • < % << G = @ 1 > < > < < 1 < @ " G 1 << G : 9 < 1 1 : $ % % !"2 ' $ # $ % $ .( 4 8 $ % % 3 9 2' . $ % % ' $ $ $ $ % # # $ , @. ; , $ ? @ B( " . $ ? @@( B( % $ % % . . 9 9 ! F> < G > " 1 @ ) G - 1 2 +' , ' ( % # '# !"2 ? . . , ' #$ . ' #$ . ) $ 1 3 C ! % , > $$ , , # '# 6 7 ( !"2 $ # . 2$ ( $ % $ ' . . 4 92 $ # # % '# !"2. @. *$ ; ' . . 4 $ ; . . ; #' % '$ % % $ . . ; ; ' . . 4 $$ * , ; ' A. ; ' . , ' $$ % % 9 , % % 9. 2$$ , ' , % , ' +' $ 4 92. 29 ! F> < @< > < @< H > < = H > * # +' #' $ ( 0.-.&.( # # 4 92 $$ , , % '# 6 ? 7 !"2 ? . - % . , +' @. *$ *$ . . *$ ; ' . . 4 $ ; . . ; #' % '$ % % $ . . ; ; ' . A. 4 $$ * , ; ' . F. *$ ; ' . ) G - 1 2 +' , % % $ # '# !"2 ? . . , ' #$ . ' #$ . 9 3 ' $ , !"2 # $ % $ .( 4 8 $ % % 3 9 2' ( 4 8 . % , ! $$ < $$ . 9 ! F> < G > " 1 @ ) 3 - 1 2 +' , % % , ' ( % # '# !"2 ? . .( , ' #$ . ' #$ .
  • 8.
    _______________________________________________________________________________________________ Investors Information Kit 4 29! F> < @< > < @< H > < = H > * # +' #' $ ( 0.-.&. # # 4 92 $$ , , % '# !"2 ? . - % . , +' @. *$ *$ ; ' . . 4 > $ . . *$ ; ' , #' ; ' . . 9 $ % , . ) 3 - 1 2 +' , % % $ # '# !"2 ? . . , ' #$ . ' #$ . -9 - < , 1 > : ! * % $$ ' +' # # & $ 2' ( %% % , $$ , '$ - 9 ! F> < G > " 1 @ , ' ( % , #' $ $ # & $ % 2' . 0 $ $ +' ' $ ' #' ) $ 1 3 C $ % % ( # +' #' $ !"2( '$ # 0.-.&. # $ , , & $ % . '# 6 , 7 !"2. @. *$ *$ ; ' . . ! 2$ 4 ; ' . . ! 2$ 4 ; ' . - 29 ! F> < @< > < @< H > < = H > * # +' #' $ !"2( '$ # 0.-.&. # $ , , & $ % . '# 6 , 7 !"2. @. *$ *$ ; ' . . . ! 2$ 4 ; ' . . ! ! 4 ; ' - = 8, 9 @. 7 )' $ * ( #' $ ( ( , ' #' $ ' 6A 7 #7 4 % $ E 4 '% ' % . %7 2$ ( ( % / '% ' . 6A 7 7 ! % #' $ . +. . . +. . . @ % ' % % . % '# +' % . . 7 )' $ & $ & % #7 2 $$ , ' % 0 % 6- $ ' 7 . * % ' . 7 - $ ! & % ? -*& #7 2 $$ , ' % %7 2 ' $ 5 , $ 5 $ % 6@ 7 . - $ ' . * % ' @ . . !"21 3 4 5 '$ %' F . * ' . $ % % % * , 3 9 & % . 9 5 ' #$ % 0 ' #$ % A. 9 ! $$ < $$ F. $ @ ( +. . ( G. $ @ ( ? ( +. . @ ( H. $ /% ( +. . @ ( /% 4I @ J . .AF ' $! * ' )! ; <-B 50: 0 -! 4 25=2 !5 "-0 2 -5 K *.-. )-L @ FF( 4 25=2 ( 0 252) : 52 4. & % 5 & -5 < 0 52; &-:: 5& 2; 5 & -5 2 M 25 54 ; HF@ A A !2L HF@ A A :2 ; EN . . 9 ) 4 ,,,. E.%
  • 9.
    _______________________________________________________________________________________________ Investors Information Kit 5 CONTRACTOR(S)APPROVED NO NO CONSULTANT APPLIES FOR ISSUANCE OF BUILDING PERMIT WITH SUPPORTING DRAWINGS DOCUMENTS & NOC’S BUILDING PERMIT ISSUED BUILDING COMPLETION CERTIFICATE ISSUED INVESTOR READY TO START OPERATION CONSULTANT APPLIES TO HFZA For BUILDING COMPLETION PROJECT EXECUTION FINISH CONSULTANT APPLIES TO HFZA For OPERATIONS FITNESS CERTIFICATION OPERATIONS FITNESS CERTIFICATION ISSSUED NO NO NO ISSUANCE OF HFZA’S LICENSE TO INVESTOR HFZA PROCEDURAL GUIDELINES INVESTOR PROPOSES TO HFZA FOR APPROVALOF CONSULTANT(S CONTRACTOR(S CONSULTANT APPROVED FZA’s CONSTRUCTION & PLANNING REGULATIONS PACKAGE )& 3 -' !% ) ! ! 4 -% , # & $ % ! - , ! START
  • 10.
    _______________________________________________________________________________________________ Investors Information Kit 6 '/ # ! $ % &" ' &%' EHS-DepartmentServices/Activities Engg.-DepartmentServices/Activities Inspection reports Compliances Cheek list Development Procedure Compliances Assurances HFZA to issue the OFC Engineering ( ' , !%$ %6 3 !+ & ) ! # % ! 1 Negotiation with Investor 2 Processing IPP/Liscencing Application 3 Award of Liscence 4 Preconstruction/Building Permit 5 Construction Phase 6 Pre-Operation Phase OFC - Phase 7 Operational Phase Stages Issuance of EHS Regulations Copy Review of Drawings/Layout Safety Plans etc EHS - Guidelines for safe work Practices EHS - Inspection EHS - Permit’s: Hot Work Permit etc. Investors EHS-Plan’s Procedures/Review & Approval EHS - Compliances Checklist EHS - regulation’s Compliances Assurances EHS - Inspection EHS - Compliances Monitoring Issuance of Eng. fact sheet Eng. Review/Comments Feasibility Study Technical Investigation Issuance of “HFZA Development Procedure” Appoint of Consultant/Contractor Submittal & review of necessary design, drawings, Noc’s & documents Consultant to submit necessary test reports, QA/QC sheets etc. for HFZA approval. HFZA to cary out periodic audits & cheeks Investor/Consultant to formally notify HFZA major installations inspections by HFZA/ Third party inspection agencies (if required). • EHS-Review/Comments • Technical Investigation • Recommendations as Acceptable/Not Acceptable Issuance of EHS Fact Sheets IIP/01/03EEHS - Investors Information Kit Date: 01/01/2001
  • 11.
    _______________________________________________________________________________________________ Investors Information Kit 7 "' < ( : 8 ' 9 9 ' $! * ' )! ; 6 # ! $ % & ' &%' ( ) %* , ) $ E ( / % ! " % ' %$' 2' ( ( & % 4' $ $$ $ , $$ # % $$ , % $ - @< 1 ) 1 1 / 1 1: & % $ % % % % % 1 $ % % • 5 '% $ % 1 % . • 5 '% % 1 % . • 5 '% / % $ # % . • % $ % %$ # $ . • : / E ' #$ ' , #$ ' % . • / ' # $ % 1 '% . • % % % 1 % . 1 @ E $ $ $$' % ' $ ( , ( # . ' # . E % #' ' % ( $ E $ ( % . E % , ( % $$ E ' , ( , #$ % %$ $ . $$ , ' #$ . > ' $$ ' #$ ' % ' . % % % . / E % % '% , '% $$. ! C ! >1 $ $ > ' $ % ' , % , # $ % $ % ' # # % $ % . $ C = @ >1 1 $$ '% % E $ % % ' % $ ' . % ' $ % ' '% % . , = - @ > # $ , % ' # > '$$ % , $ % . , 1< > %$ ' $ '#$ % % $ ' % ' $ $ E . %$ $ $( $ E # ' ( , , $$ > % $ , % % $ E . , 1 $ = % ' ' % $ * % $ . %$' $ ( ' % ' ) % & / %' - % > '$$ #$ $$ $ . > % '% > '#$ % ' $ $ $' ' $ * % $ % $ , $ % #$ $ , '$ ' ' ' . , > , $ % $ ' % ' , % , , $$ % $ ' $$ > $ #$ '#$ %. 29 ' &%'" ) %* ( # ! $ % & • 5 2%% 2 ' 8' $ %% $$ # %% % , % ' !"21 $ $ 3 4 5 '$ . # $ '$ # !"2 4 %' & $ 5 * O A F . 2 $ #$ ' , $$ '$ $ % % % %. • & $$ % % 9 ! " 2' $ E % 9 : 4 . 0 % % $ % $ #$ . & , $$ # $ % #$ . • % 4 , 2 $$ % $ % > % $$ % > . & , $$ # $ % #$ . • - : ' % $$ # $ # #' $ , % % 8 % . & $$ # # ' $ $ % % ' $ > %% ' $ % $ % %' % % +' $ % .
  • 12.
    _______________________________________________________________________________________________ Investors Information Kit 8 $$$$ # , $'/ $ % @ @ % '$$ $ . • 3 > < = 2 , ' $$ % $ ( $ %$ $$ % +' ' ( % % +' %> %' ' . 4 %> * $ $$ # ( % $$ # $$ ' @. : %$ % # % $ . $ $ '$ # > . 4 $ $$ % #$ '% ' $ % . 4 $ $$ #$ % % #' #$ $ . 2 +' %$ % $$ # % . $$ # > , ' #$ %$ % $ ( , $ % #$ . • = , 1> $$ %' $ ' % % % % $ $$ # ' % % % , .0. %$ % . % ' # > %$ E ' ' ( % '$ # > ' / $ • 4 %$ • $ % . • % $ • ' . • > • $ $ $ . • • ' # . & F> = )'$> $ +' % # ' E ' $ % % $ ( % . 4 $$ # % $ % $ . 4 $ +' % # @. !'$$ ( , $ +' #'##$ % ' P . !'$$ ' ( , $ +' # ' P . 4 ( % , $ +' # $ , # ' #' ' ' # %. D K @< = > 1 2 : $ * % $ -E $ '# % ( !"2 % % $ < . '% % $$ Q-4 1 R( %$' E $ '# % ( %$' &!& ( &!& ( )!& $ . !" % ' ' $ $ $ '# ' - 4( '% !& ( & *!& %. $$ $ % %$' . 5 2 & . #. 2 $ %. 4 $ . . !' . . 4 $ . ! / ' . . 2 . & > . 9 , %! & 3 % & F> 2$$ $ +' , '$ # 1 % $ . ' # %% % , ! " 1 $ 5 '$ . , $$ % , ! " 2' % % ' > $ % $' % ' ( '% :' % $ *$ 4 8 & ( ; 4 %. & %% % , 4 '% ' . < ' $ $ , % E ' %$ % # 4 8 :' % $ 1 4 8 ( %% % , :' % $ 1 % $ % #$ % . ' K > 3 , $$ # +' > % $ , % % ' . * $ $ % $ $ #$ , ! " # $ +' $ E ' , . 3 $ = : $$ > , # %% % , ! " $ % #$ '$ '$ . ' K > - 1 < ' < = & % $ , $$ # +' $$ , -4 2 ' O @@@ I' K - > 1 > < - @< 1 J. ' $ ! " 4 5 '$ . 09 # & % 2 $ $ $ : & ( $ 3 4 ( # % %$' # # $ , % '% ( , % # $$ , % Q9 0 % Q( R& % 5 $ 2% 0 % R Q* # & - 0 % R. $ < ' < = = $ $$ $$ , I ' $ % ! & ' ,& ( % ! J ' $ O A( , % ! " 4 5'$ 5 '$ . ' $ % ( * $ ( : * ( : ( $ 4 : $ ( +' ( % 4 $ * % $ .
  • 13.
    _______________________________________________________________________________________________ Investors Information Kit 9 $< : , ! $ : $ & % $ ( +' '# $ 4 $$ $ %$' 5 , : $ ( 2 ( 2 / ' * '% . 2 ' $ Q:4 4R !"21 4 5 '$ . 4 : 4 8 # +' $$ % & '% ( $ % 8 % . 2 ' $ ! " ( 4 5 '$ . , 1 = & <<> 8 $ L $ << 9 0- @ **: 4 **: 4 **: 0 **: &- **: *# @ S - @ , : > < 8MH#L 1 : # <> " 3 H#L =H N9 0 FG. GC B 0 F . 9 B - .H C B - .@@C9 B 25 .H C B 25 @. GC9 B ,> & ' . S !' ' # $ * % . . .@ S <<> > < &- **: &- **: & 0- **: 2 **: 4 **: : % . **: 4 **: 0-L **: & # $ , / $ $ $ & F> <> !$ #$ * A H 44 $ ' # F 0 )- &- @ -& & .@ $ - $3< @ $ * $ . $ & @ $ . : = 2 . 0 $ 2 . $ & ' . $ & $ @. $ & $ & . $ & .@ $ *# .@ $ : %' . @ $ 0 %> $ .@ $ " % . $ % 3 = )- @ $ 44 @ $ 5 . &$ . $ 0 - T@ $ &$ T $ * A. G $ < . 49 * 4 - $ & $ & < ; ) * 8 % G # * #' $ # > @ = - < % $ $$ '$ # # % $$ ' %$' $ $ # . : ) 1 < $ $ '$ # , $$ $ ( $ / $ '$ $ %$ . ' , %$ '$ $, # , ' $ $ 2 % , %$ '$ # , , / $ @ $ $ $ ' 1 $ . 2$$ $ / ' '$ # > % . ' % $ % # / $ % $ # . $ < ) < 3 > < @ 3 > < @ @ @ 9& @ , # @ @ , @ 9&( @ , # @ @ ' , @ 9& @ , # @ , ' , @ 9& # 3 > < @ @ @ 9& @ $ @ , # @ @ ' , @ 9& @ $( @ , #
  • 14.
    _______________________________________________________________________________________________ Investors Information Kit 10 '< 2$$ '% 2 ' % $ , $ , # ! $ ; % $ < . 5 '$ > , '% # % %$ % . & % ' '% +' % $ ' % %' % $ % ' . $ 4 % ' $$ ' '% $ $ '#$ % % ' . $ $ $ # $ $ % %> % % '% , $$ $ $ & % $ ' ' $ % % . ' &% ( ) ! ! % $ - = < = % - = @ $ % $ $ % ? % . 2 * & $ *'#$ % $ % % 2 ' $ % C $ / ' . ( . 4 $ $ '% % $ # 2 % % $$ % % ( %' . & . $ / $ #$ % 4 $ , 6 ' $7 % $$ % 2 * % $$ % % $ . # / $ #$ % $ % %$ % ' B $ $ 5 '$ . % ' 9 %$ $$ % ' . B $ $ 5 '$ . @ % ' A % 4 , $' % 2 ( % % $$ % $( 6$ 7 ? C $ , # $$ 6 ' 7 . .A 2 $ % & # 2 / % ' ( % % $ % . . ' % A ! > $ '#$ % , > B $ '$ . ? & ' F ' $ $' % 2 % $$ % % ' > * , % $ . . @ . @ # % 4 8 % . .A C - . @ 4@ ! ! $' %% B $ '$ '$ . % 4 *) % ( , ' #$ %. B $ '$ '$ - % . @ ? % 9 ' ; . 4 ! ' > %$ . 5 4 B $ . @ % ' . 4 ! 4 $$ $ ( % % $ %. 4 B $ . % . 4@ ! 4 $( E ' % % $ ( . . % # $ % 4 $ '$ $ . % ' 4 %$' %$' , '% ( $ % $ % % . & , % ' . % ' @ ! ! $ $ $ # ' $ , G , % $ , %%' $ $ , > B $ %%' $ $ $ ,. 2$$ '#$ % % % $$ , $ ,. * $ ' % . % ' . * $ % > !"21 %% . * $ $ $ 4 '$ . . % ' - % % %%' %% * $ $ $ '$ .
  • 15.
    _______________________________________________________________________________________________ Investors Information Kit 11 '! & % , ) - & % " !# - " ) ( & % -' , & ' , @ 3 C < = = , @ 3 C < ' , @ 1 H 1 = , @ 1 H 1 ' % 4 ! % 4 0 , ' % . ! % 4 • 4 5 , & • % % $ • 5 % 2%% #$ 0 2%% #$ @. * % ** ; % % 2 $ % • . 5 , & • ! # $ 4 ' • % % $ ' % 4 5 '$ & . 2, ; % % ' % Q !"2 $ * % ' R 5 , , ; ' 4 *$ % . * % '% )' $ * • 2 & '$ & % • 4'# $ 3 , % ( , ( 0-& 3 %' . • 4 <' $ , > * % % • 4 ? % • 4 * 1 9 > * %. . & '% * • & '$ '# % ( M2 M& %. !"2 $. !"2 % ' % ' 3 % %> • 4 *$ 1 * % ' 5 , 3 2 $. • 4 ? & $ % & %>$ • 4 '$ 1 & $ % 2 ' % . . * - * -!& ? * • & '$ $$ !"2. • : 8 $$ % # !"2 % % 6 +' 7. • 4 ? % • 4 ? & $ % : A. - $ * • % • & $ % & > $ • $ * % ' & $ % 2 ' % • !"2 ' -!& /% 4I @ J .AF ! " ' $! * ' )! ; <-B 50: 0 -! 4 25=2 . !5 "-0 2 -5 K *.-. )-L @ FF( 4 25=2 ( 0 252) : 52 4. & % 5 & -5 < 0 52; &-:: 5& 2; 5 & -5 2 M 25 54 ; HF@ A A !2L HF@ A A :2 ; EN . . 9 ) 4 ,,,. E.%
  • 16.
  • 17.
    _______________________________________________________________________________________________ Investors Information Kit 13 )1 1 = >@ > = 1 < = @ 1 < > / @ 1 < = @7 % > . 7 %% # $ ** & % # . 7 % ' # / % '# % ' % > . 7 % $ $ ' $ . 7 #$ %%$ ( %'$ $ , , ** &. A7 % %$ # $ % % $ '# % . F7 % %$ +' % . G7 % %$ $ +' '$ . H7 % # % % ( # % % $ $ $ $ $ # $ ' % '$ , > ' . @ 7 * %( # % $( $ # $ % $ % . @@7 $ % $ % % % , > % $ . @ 7 % %$ %%' $ / ' $ $ #$ %$ . @ 7 4 % $ % ' % 4 $ % $ ' ' %%' % . ! 1 @. $ ; # ' - % ( 4 ( $ , > % % $ $ % ' ? 2 ;- % % % ( < ( 6@HGG7. = 1 1 1 1 = >@ > = 1 < = @7 +' , > % ' ' ' . 7 % % % $ , >( % $$ $ . 7 , > > ' # %% ' . 7 ' $ $ ' , > ( > %'$ ' $ % %% ' . 7 ! % ' ** ( A7 2 % # E ( % ( ' %'$ % ' % $ ( $ ( % $ $ $ ' , > , , $$ ' . F7 $ % '% ' ( ( ' ( ( # ( $ ( % ' , > ' '$ $ . G7 5 '% $ , > , % $ '$ $ % , % %' '$ % . H7 +' $ $ $$ , % , % ' ' , > +' . @ 7 # % % , > $( , , . @@7 % , ( % $ , % $ % $ +' . @ 7 # % % ' % $ . ! 1 @. $ ; # ' - % ( 4 ( $ , > % % $ $ % ' ? 2 ;- % % % ( < ( 6@HGG7
  • 18.
    _______________________________________________________________________________________________ Investors Information Kit 14 %< ) -< 1 1 1 1 @ @ = > > 1 -< 1 - 1 1 @ @ @< = <: < < ' = <: < < # : 1 % 1 ' >< - 2 '# % , % / $ ' % $ , % %> % $' . 2 '# % , % $ / % % , % % , '# % ( %'$ $ $ #$ '# % . 2 $ +' $ $ & # $ $ +' $ &. 2 '# % @. : # % $$ % % % % , # ' , ' $ % . . $ $ % % # % % , ' % , % % ' #' # % ' $ ' % . . ' $ #$ $ ' . . % % , , ( $ $ $ #$ ' +' P . $ +' $ # $ , @ & 2 '# % , % $ > $ / $ ' %' % % $ > 2 '# % , % $ > $ ' %' % % $ > . 2 '# % , % $ > $ $ $ > . 2 '# % , % % % , $ ' . 2 % '# % , % ( ' ( $ % % , > '% ' # ( % % ' $ . % < ) 2 - 1< 1 > 1 : 1" 1 >< - = : $ < < 8&,5.9 $ < < 1 1 8&-5.9 : 2# # $$ 6 > 7 2# # %' ' $ ## 6 > 7 $ 6 $ 7 6 ' 7 B / % / % '$ T U U T U U T . U . U
  • 19.
    _______________________________________________________________________________________________ Investors Information Kit 15 'D ) 1 > 3 C@< 1 ' > C @ = D - 1C< - >1 9 / $ , > $ % ' > % %>$ % '% V , < ' # > , > $ . *$ +' $ % ( , ' $' $ . , > $$ +' . , $ % . , ( , , $( ' $ # '% . 4 %' $ $ $ $ . 5 # $ ' $' # . , % '## $$ $ $ $ 8 % . % ' % $ . , $ $ . $ , $ +' # , % #$ ' $ . )< < H @< $ < 4 $ #$ / $ $ '% $ ( $ %$ $ . $ #$ / $ $ % , % %$ $ > . 4 '$$ # $ ' . $ $ # $ # $ %>. 4 # $ $ . * # > ( $ ' % , $ #$ / $ $ . 4 % $$ % % $ ' . : > % $ , $ Q R( $ '$$ $$ '$$ % $ . B $ $$ $ . ' $$ $ % % / ' , % / $ , $ #$ $ . ' +' , %$ % % $ % % #' $ ' . @ > & 3 C 2 ' $ / ' $ G ' V : ' $ % % / ' # G ' , > $ $ $ , > . $ $ % ( $ , > % . 9 % $%'$ / ' $ / , > '% @ ' ( ' > %% ' $ % $ / ' $ @ ' , >. $ , % ' % ' $ , > $ % / '% , > % % . 2 % G ' @ ' ' % $$ , ' • ' , / ' $ $ )627 • * #$ $ ' % '% $ , > • & # % % $ @ '
  • 20.
    _______________________________________________________________________________________________ Investors Information Kit 16 'D ) 1 > ' G 1 <1>< @ > < O F> < =: !>< : '$ % % , 6 927 ' $ $ G ) 627 H ) 627 / ' $ G ' , > . $ - E E 6 4- 4 @HHH @HH 7 % ' +' $ % $ 6 ) /% 7 % $%'$ 92 , > ; J H W @ $ 6G 7 9 J ' , > ' . 5 '$ '% % $%'$ ' / , > $ #$ @. % < %3 $ ,> 3 C 8 9 @ > & 8 8 99 D %3 G H . H GH. @ GH. @@ GG.A @ GG. @ GF.H @ GF.A / ' $ @ ' ( # +' $ '$ ( GG. ) 627. , ( $ $ > # $ , GG ) 627 ( %% +' $ % % ( / ' #$ $ /% . < 2 $ ( % $$ ) 4% $ ( ' % $%'$ ;B $ ; B $' 7 % % $ #' % $ # ' % $%'$ / ' $ / , > . % 92 % # # . > %% ' % ' % . / ' $ / ( # ( $ #$ . % < 2 & < 11 = 1 < $ 3 C 8 9 @ > & 8 8 99 G H . H GH. @ GG. @@ GF.F @ GF. @ GA. @ G . 9 ( $ @ ' , > GF ) 627( , % $ , $$ , # 92 .
  • 21.
    _______________________________________________________________________________________________ Investors Information Kit 17 'D ) 1 > 3 1 > O ' #$ '$ % %% #$ % $%'$ $ / , > . ! / $ ( - ( / ' $ # : ; # ' . K ' '$ % % % #$ $ '$ $ % #$ ' , > $ % +' # ' % % ' % $%'$ / ' $ / , > . 3 < > G C O • % +' % / , > $ > , . H ) 627 $ , G ' % @ ' # $' . , '$ %$' ' % % # , . • % # ' ( # $ % ' ' / ' . , $$ > , % , % % . * #$ $ % ' # % , $$. • $ @ ' # ' # ' # % . # / $ # ' %% # $ @ ' $.
  • 22.
    _______________________________________________________________________________________________ Investors Information Kit 18 @1 - 1C< D @< - 1C< ) $ > 1 > = ) 1 < 3 @< @ 1 1 1C< > 1 > = 1 < :O % @< > < < G < << @ < > 1 > = 1 < % 1 1C< : > G C@< 1 < @ : > @ 1 1 3 1 1C< " @ @ 1 @ 1 = > -% ! , 8 9 1 : 8B9 ! F> 1 ' D ) 1 > %! % ,$ 8 #V $ %$' ' , E %% % , 8 #V +' '% ' $ % +' V ' % +' V 2 , > > ,$ #$ Q5 5 ' R % ' V # ! $ % 2 ' % $ #$ $ , % $ % 6 > , ( $ $ ( '$ # 7V % #$ ( $ ' % ' E V 2 , > ' % ' % , , V , > > , % ( > V 3 !+ ! - 2 > $ % > ' V 8 % # %% $ V 2 , > 6# E 7V $$ '%> ( >$ +' # % V 2 $ %> ' % ' $$ , V $ +' , > % $ V ' ' % $$ % $ 8' V & 1 - -
  • 23.
    _______________________________________________________________________________________________ Investors Information Kit 19 'D ) 1 > 2 / ' % $ > $ V 2 ' / ' 8 #V 2 / ' $ % % %' ' $ > V 2 / ' $ ' $ %% #$ V 2 $$ / ' '$$ % #$ V 2 % $ ' / ' %$ $ > V $ ) B % 2 ' / $$ , % V $ %% / V 2 / ' $ %> $$ , V 2 / %$ $ > V 2 / / ' +' , % $ V 3 ! ' , ' 2 %> $ ( #' ( % V 2 $ / ' % V 2 $$ , > %$ # V 2 $ $ %> % V 2 $ > $ % V 2 $ % $ '## V 2 $ $ $$ $ > V # # $ #$ %$ ' $$ $ > V 2 $$ &$ '% &$ #' $ ' , ' V & , H & , ! -+ 2 ( $ % #$ $ V $ +' % $ > V 2 $ % V '# $$ , $ $ V 2 # ' % #$ # > V
  • 24.
    _______________________________________________________________________________________________ Investors Information Kit 20 'D ) 1 > 2 % % ' V $ % , 8' % # / ( %. % 6 ' $ % 7V & '% $ $ $ +' % #$ % , >V $ '% $ , > ' % ( B % > # V % $ +' '$ $ V $ -' !, 2 $$ ' % +' $ ' V % ' V 2 $ %> ' % ' $$ , , % , ' V & -%! - & & $ % % $ & ( ' % V 2 $$ % $ ' V 2 #$ $ ' '#$ '$ V 2 8' % # / %$ V 2 / % ' $ , % # #' # %V 2 / % # ' , V % & , $ -' !* 2 ' % ' ' $ > $$ $ % V , $ % V 2 $ $ ' $ V 2 % $ % '$ % V 2 $ % ' $ % % $ E V ' $ % V 2 ' $ $ ' V
  • 25.
    _______________________________________________________________________________________________ Investors Information Kit 21 'D ) 1 > ! & ! % -% # E $ % +' +' ( ' V +' +' V $ #$ V $ % ' $ E $ , #$ % % #$ $ % $ E ' '# % % V 2 , $ $ $$ E V $ % ! & ' ,& , % ! %$ % $$ +' ' $ V $ #$ %' V 2 E V 2 $ $$ , >$ V % $ % % # $ V 2 %> # 6# $ 7 ' , $ ' $ %> '%> %> $ % V 2 % , % ' $, V 2 % % / ' $ , % $ ( $ V 2 %> $ $ $ , $ % % V 2 % ( $ +' $ > %% $ V 2 $ % $ # ' V 2 $$ ,( ( % $$ $ % $ # ' V 2 $$ > % % % V $ ' $ % +' V E % % E ' , > V 2 $ ( ( % ( # $ ( %.( $ ' , $ % $ , V %' $ ' ! # ' F( @HHG.
  • 26.
    _______________________________________________________________________________________________ Investors Information Kit 22 *54-02; *5- & B M *: 0 < !#, -&%'H -#!&& '!,'% !#, )%3!H% !#,!& !&# ,%$+ !!%! -!%!,%* !& !,),! & $&%! )-'&, )%*'!( & -'$-& !%%% -'$-& !%% -%&% !!% !)&3',H !H&# )%*-%-& 3&,'&$%H 4!+H&# ,H!#* $%!!, )&$, ,& -#!&&"&# '-#!( 2& 20 ; 0< L L L L L L L L )2 5K :2 0 020& L L L L L L &2 4 & 4- 2 20 ; 0< L L L L L L L L & : 0 20 ; 0< L L L L L L & : &2; 20 ; 0< L L L L L L L L L & ** 0< L L L L L <5 24 0< L L L L L L L 5;; 0< L L L L L L 4 2 :-4* 5 4 L L L L L L ; & 5 &2; L L L <5 0 0< L L L L L L L L <5 );24 0< L L L < 9 0 &-0 -0 L L L L L L L < 2)-B : 54 L L L L =2& 2:: 5 0< L L L L L L L L L - ; 4*;;4 L L L L L L *2 0 0< 64*52K7 L L L L L 52 -<52* K L L L L L 9-5 0< 0 < 0- 4 ; B ; L L L L L 9 9 2 5 &-0 -04 L L L L L 9 ; 0< L L L ;2)-52 -5K L L L 0 5K - ;2). 9-5 4 -* L L L 9-5 0 B & 0 K -! 9 ; 0< L L L L 420 0< :2& 0 -* 52 -04 L L L L L L L 24) 4 -4 20 ; 0< L L L L 9-52&BK :2& 0 --;4 L L L L % # $ $ #%&'& ! % (!)$ % %) !*& +%#*)$ $ , -!+ .+$ & %-$ $+#)/ 0 #%+' -1$%+.+, 2 0& 3 %-. -!+#%+.+%#.!+ 4 5!)' !6$) 5%#$) 5.11 )$7*)$ & $- .- $ P.P.
  • 27.
    _______________________________________________________________________________________________ Investors Information Kit 23 !$% % 3 !+ @. 25 2 20 B 44 ; 9M *: 0 * * ; 0 L2& ;-&2 -0 . 9-5 - ) -0 &-:*20K 0 : : & 2 ; ) > . 42! K *5 &2 -04 7 < 6, $ % #$ 7 !$ #$ B ' 65 '$ $ # / 7 / % < #7 * % +' # , -/ 6 , % $ 7 @. 4 $ . 4 4 % %$ . & % $ < $ . ! % 4 $ . $ A. 2 F. 4 $ % &.2.).2 G. & 2 $ ).2. H. ' : > @. :' @@. <$ *.B.&. < $ 4 % $ @ . 5'## ) 64 $ % 7 @ . * % ! , @ . ) ' @ . *B& 4' @A. 0 4' @F. #$ 4' @G. *$ - $$ 5'## - # 5'## <$ @H. 4 %7 - * % ' 0 . ; ' E * $ - B $ $ $ $ % #$ 0 $ 0 2 4 < B ; +' 4 $ 2 % )) ) & % 2$ ' 8 # # $ ' E ( $$ ' $ +' E ' % % $ $$ # G @ 1 1< = > < C 0 7 2$$ : * , # $ $ % & $ ' 6;-& 2< 5K7 K 0- 0 2 4 XXXXXX..XXX 2 4 ' 7 $ % 4 XXXXXXXXX* ' > , > 7 $ % % $ ' # , , ( $$ % %' 4 XXXXXXXXX. $ % % 7 $ % % $ % %' $ Q '#$ R $ 4 XXXXXXXXX $ % % . . % 4 *$ & % +' # % ' , > $ 8 % ( *$ & ( & % ( , > " @ ( - $ ( & % $ $ # > ( 2 # ( /% ( : # $ & ( 5 , > U ( .B. $ % % . 4 XXXXXXXXXX* 4 ' . 7 - ) , - %!* 6& % $$ 4 2$ 6 ' 7 %% % , 5 '$ F & % $ 9 > 5 '$ ( @HH ( 4 % ! % 2% ( @HA@( % # % % ( # ( '$$ $ ( # $ %% % ' # 4 *$
  • 28.
    _______________________________________________________________________________________________ Investors Information Kit 24 &% 0 . XXXXXXXXXX.. ( ( XXXXXXXXX.. XXXXXXXXXXXXXXXXXX.. - XXXXXXXXXXXXXXXXXX. 4 XXXXXXXXXX 2 4 ' 0 % 2 ' $ XXXXXXXXXXXXXXXXXXXXXXXXXXXXX..XXXXXXXXXXXX... #7 ' % 3 !+ 6" @ - %7 %' ! ' ; !, 3 !+ 64 4 *$ & % 7 % # 8 # , % # $ %% % ' ' $ # 4 *$ & % 0 . XXXXXXXXXXX.. , > XXXXXXXXX. XXXXXXX.. XXX... 4 XXXXXXXXX.. 2 4 ' F. ! # & ) !$ % % 3 !+ I am satisfied that this permit is properly authorised and that safe access is provided and that no work is taking place above or below this job. Work may proceed from ……………….. to ………………….. on …………….. Date Signed: ………………………… Permit Signature G. -- % - ) !$ % % 3 !+ ' # % ' ' % , , $$ # . % $$ ' * , $ +' # % +' # , 4 , ' 4 2 % *$ 4 ' XXXXXXXXXXXXXXXXX.. H. - $ & % ) !$ % % 3 !+ % 8 # % $ % $ 6 , 7( $$ ' # $ % %' ( $$ $ +' # = # 4 # $ %$ . 4 ' XXXXX.XXXXXXXXXX. XXXXXXXXXXXXXX.. XXXXXXXXXXXXXXXXXXXXX ! 3 & ) !$ % % 3 !+ 8- - % # ' )% &*9 @ . 2 ' $ XXXXXXXXXXXX XXXXXXXXXXXXX * 4 ' XXXXXXXXXX.. 2 ' $ XXXXXXXXXXXX XXXXXXXXXXXXX * 4 ' XXXXXXXXXX.. % 9 8 # * ' # 4 % H ' ( 4 '$ 8 # # % $ # % * ' # , . * % % $$ 2 6, #$ 7 ' . 8 !$ % % 3 !+ ! E ! , ) ! 3 !+ % !% 9 - !% ) - % + 6 &* * 8 % & 4 % - !$ 2 # : # $ & .B. $ % % - ) ! 3 !+ # &# *$ & , > " @ & % $ ; ) > /% 5 , > U 2 - !% ) - % & , ) ! * & % 2 > +' * $ / % ; %
  • 29.
    _______________________________________________________________________________________________ Investors Information Kit 25 3!+ % , 9 $ < : # $ & : # $ *' & : B %$ & $ $ $ @@ B% & % , &' +' 2 % /% ; B $ % % * , $ - $ & -! % 8 # % '#8 % $$ , % ' 0 2 4 2 & 4' 0 B- # % % 8 # % '#8 % $$ , % ' 0 2 4 2 & '% 4 ' 4 2 $ % % $ 4 ' . ! )3 !+ D 3 !+ % ' '% , % % 8 # % '#8 % $$ , % ' 0 2 4 2 & '% 4 ' 7 ' # & -%! - %* % 8 # % '#8 % $$ , % ' 0 2 , $$ # , % # XXXXXXXXXX. 4 2 .B. $ % % $ 4 ' F. % 2 > B $ +' * $ ( % # # ( , $$ # , > % ' $ # ( , % %> $ ( > . 2 $ % ' 6 ( , 7 2 , > ' # # # , > . 4 $ & % B $ ' ' 4 % AY 9 > # # XXXXXXXXXXXXXXXXXXXXXXXXXXXXXXXXXXX 4 2 4 *$ & % 4 ' ? ' % 3 !+ ; ! ; 2 ! ! ' # & -%! - & 3 !+ ! * & % -' 0 2 % # , > > $ % $$ % 4 2' E 4 ' A ! 3 & 4'#8 % % ' # % % ' ' $ . 5 , ' ' ' 6 4*&7 5 , ' ' ' 6 4*&7 5 , ' ' ' 6 4*&7 % 6 7 2 ' +' 4 % G. 6#7 & % $ ' $ $$ % ' # # .
  • 30.
    _______________________________________________________________________________________________ Investors Information Kit 26 )%* & - !% ) - % -' -+ & % 8 && ! E ! , ! - % % ! ,9 ! & ! - % ' % 3 !+ PP 1 > @. 2$$ , $ +' 6 %$' $ 7 ' # , $ $ # $ / . . 2$$ , $ ' # @@ $ / ' . . ' , ' $ % #$ , $ # @@ $ $ / $ . . 4' #$ $ # ' . . 4% $ # % % # % % / # ' 6 # $ / 7. A. * $ $ . F. $$ 6 . . 4 $ )$ %>7 G. & , > ( # # $ ,. H. 0 8 % $ . @ . & %> $$ $ ( /% ( , > , % # % , % / . 2 '% E ' # +' $ $ . @@. $ $$ , ,+' # , > ;-& ( 2< 5K. @ . & %> , # ' # , > . @ . % ' $ % # % $ , 1 ; 4 4 0 . 2 # . @ . @ . ! % -% # -& %' @ . * % +' @. & % $ < $ . ! % 4 $ . $ . 2 . 4 $ % &.2.).2. A. & 2 $ ).2. F. ' : > G. :' H. <$ *B& < . 4 %. @ . 5## ) 64 $ % 7 @@. * % ! , @ . *B& 4' @ . 0 4' @ . #$ 4 @ . *$ - $$ 5'## - # 5'## <$ @A. 4 @ . & %> , $ % #$ % , ' % $ ' #$ '$ # ' # ' #$ % % . 9 $ ' ' $$ +' # . @@. 4 % $ # %$ > $ . @ . & %> % #$ % $ > '. @ . & %> % % $ ' $ , $ $$ 6 / '% ' 7 @ . $$ % % % ' $' # , > . @ . & %> / ' $ $ # %> # , '$ ' $ ' $ # , % ' $ . @A. & %> $$ % $ % , %. '$ E $. @F. % % ' $ .B. . @G. 4 $ .&. ' %%' '$ , > . @H. & %> > % $ . %!* % - ) , - . 2$$ $ ' # $ ( # $ % #$ > $ # $ . @. $ # $ ' ( $$ , # ;-& 2< 5K. . # ' $ 6 ' # * 9 >7. . , % , $ $ '$$ ...
  • 31.
    _______________________________________________________________________________________________ Investors Information Kit 27 %$' ! % % . $ #$ ' 6 / $ 7 ) !-5 9-5 4 25 4 5 * 2 B 5K XX.. - 54 :-0 -5 &-0 0 - 4;K. @. / ) !-5 9-5 4 25 4 5 * 2 B 5K XX. - 54 :-0 -5 &-0 0 - 4;K . / % ) !-5 9-5 4 25 4 5 * 2 B 5KXXX.. - 54 :-0 -5 &-0 0 - 4;K. . & %> $ % $ ' 6T &7. . 6 ' # ' 7 A. $ $ F. & %> +' % $ / G. * #$ $ . H. * , # ' ' $. @ . & % $ ' # > ' % % . & ! + . * $ # ( . @. ) %' $ Q R $ '$ # $$ . * % Q # R 6 % % 7. & %> $ ' . $ $ ( $ > ' 6 7. * % $ ? '$ , > , . A )$ > $ . F !$' , , 8 # ' $ $$ $ . G % $ ( % %$ # ( $ ( % % 6> $ ' $ $ , %$ #$ $ 7 $ & -! A . 4 $ $ ? # > # 9 > * 6 %7. A @. M' $ , % $ ? 0 XXXXXXXXXXXXXXXXXXX XX. A . & % $ $ % %> $ % $ ? & '% 4' -, 1 5 6 % .7 % $. B- # % F .- @. ? & '% % $ F @. $ F . 4 /% %' . F . ' , % ' % 3 !+ . <' $$ > $ . @. , > # $ , , , ' , . . , % . . & %> ' % , >. . & %> , > XX.. ' . . 5' ' . A. * / ' ( . F. &$ $$ % #' #$ $ , > . G. 5 $$ '$$ ' . H. $ , $ ( 4 0 . @F ! ) 3 !+ ( ' '% ! % ! %' 5 $ %! 3' ! %'! ! !$ % -- G . & ,$ # ' # ' . G @. 9 > % # % # & '% 4 . G . * , > $ , $ # .
  • 32.
    _______________________________________________________________________________________________ Investors Information Kit 28 ') -% ' % , 1 = & <<> 8 $ L $ << 9 0- @ **: 4- **: 4 **: 0 **: &- **: *# @ - @ , : > < 8MH#L 1 : # <> " 3 H#L =H 0 FG. C B 0 F . 9 B - .H C B - .@@C9 B 25 .H C B 25 @. GC9 B ,> & ' ? . !' ' ? # $ * % . . .@ <<> > < &- **: &- **: & 0- **: 2::-0 2 **: 4 ? **: : 5&2* 204 . **: 4- **: 0-L **: & # $ , / $ $ $ & F> <> !$ #$ * A H 44 @ ' # F 0 )- &- @ -& & .@ @ - $ 3 < @ @ * $ . @ & @ @ . : = 2 . 0 @ 2 . @ & ' . @ & $ @. @ & @ & . @ & .@ @ *# .@ @ : %' . @ @ 0 %> $ .@ @ " % . @ % 3 = )- @ @ 44 @ @ 5 . & . @ 0 - T@ @ & T @ * A. G @ < . 49 * 4 - $ & $ $$ , #$ $ $ < $ ' 6; # 7 F. # , $ % @ # * )' $ ' , ' # / ' . 2 > @ = - < % $ $$ '$ # # % $$ ' %$' $ $ # . < 3 , $$ # $ #$ % $ # E ' E ' ' $ % 4 $ 9 $. , % % , $$ # +' > , 4 8 :' % $ . / E. 9 $ % !".
  • 33.
    _______________________________________________________________________________________________ Investors Information Kit 29 0- : & $$ # # 2' %' , $$ > %% ' $$ $ ' ' ( $( +' $ ( ' $ ' ( $ % $ % %' % ( %. $$ $$ # , $'/ $ % @ @ % '$$ $ . ' % $$ # $ # #' $ , % % 8 % . & $$ # # ' $ $ % % ' $ > %% ' $ % $ % %' % % E +' $ % . '% > ( % '$ # / , ( ' $ '$ # % # % % #$ ' $ % % % . @ << = $$ # ' #$ $ , $$ ( , 2' . 5 : ) 1 < % < $ '$ # , $$ $ ( $ / $ '$ $ %$ . ' , %$ '$ $, # , ' $ $ 2 % , %$ '$ # , , / $ @ $ $ $ ' 1 $ . 2$$ $ / ' '$ # > % . ' % $ % # / $ % $ # . $ < ) < 3 > < @ @ @ 9& @ , # @ @ , @ 9& @ , # @ @ ' , @ 9& @ , # @ , ' , @ 9& # 3 > < @ @ @ 9& @ $ @ , # @ @ ' , @ 9& @ $( @ , # 7 ' < 2$$ '% 2 ' % $ $ , # ! $ ; % $ < '$ > , '% # % %$ % . & % ' '% +' % $ ' % %' % $ % ' . $ 4 % ' $$ ' '% $ $ '#$ % % ' . $ $ $ # $ $ % %> % % '% , $$ $ $ & % $ ' ' $ % % . 3 > < = 2 $$ % 1$ , ' ( $ %$ $$ % +' ' ( % % +' %> %' ' . 4 %> * $ $$ # ( % $$ # $$ ' @. :. %$ % # % $ . $ $ '$ # > . 4 $ $$ % #$ '% ' $ % . 4 $ $$ #$ % 0-0 % #' #$ : $ 2 +' %$ % $$ # % . $$ # > , ' #$ %$ % $ ( , $ % #$ . ? = , 1> $$ %' $ ' % % % % $ $$ # ' % % % %% % , .0. %$ % .
  • 34.
    _______________________________________________________________________________________________ Investors Information Kit 30 A= - 1 < , = > 2 ' '$ / % % $ ' . , # #$ % %% # $ % % % $ ' , 8 # % $$ $ ( %'$ $ % $ % ' % +' % . % ' # > ' %$ E ' ' ( % '$ # > ' / $ Z 4 %$ Z $ % Z % $ Z ' Z > Z $ $ $ Z Z ' # . & F> = = )'$> $ +' % # ' E ' $ % % $ ( % . 4 $$ # % $ % $ . 4 $ +' % # 7 !'$$ ( , $ +' #'##$ % ' P #7 !'$$ ' ( , $ +' # ' P %7 4 ( % , $ +' # $ , # ' #' ' # %.
  • 35.
    _______________________________________________________________________________________________ Investors Information Kit 31 $B $ $ B ! & $ % ! 1 > 1 ) >< & = > @ > < 8?/ > %3 1 @ 9 > @ > < 8 ./ > 1 @ 9 @@ = @@ = 2% $ $ & J & &0 2 % 3 % ' /% $ 6 2 7 2 . )' @. & J & &0 J & @ )' / $ & H-& & - @ & ' 3 % ' % ' /% % ' / ' % ' '$ 6 & 7 & . & ' / ' 6 & 7 & - . . & ' '$ 6 #$ ' & 7 & 4 . & # '$ &4 @ % $ & &$ @ . 1 % $ . 1 $ $ 6:#-&27 & 6&A & 0 7 . / $ & -& & - @ F / $ % & -& & --& & @ $ # ) & & ) @ G $ / & & - @ ! $ & - . . % &0 @ @ % $$ 6 0&-7 . . F : $ # @ : / $ & -& & - & @ A : / $ & -& & - @A : / $ % & &--& & - & 5'## % ' G 5'## ' .F
  • 36.
    _______________________________________________________________________________________________ Investors Information Kit 32 !1 > 1 ) >< & = > @ > < 8?/ > %3 1 @ 9 > @ > < 8 ./ > 1 @ 9 @@ = @@ = 4 &A & J & @ @ @.@.@ % $ & &&$ @H % $ $ &&$ J & &$ @ @ G B $ % $ 8# :< 1 < < > 1 = > < > @ > < @@ 9 & J & &$ F B $ % $ & J && @ 9 ' 6 , 7 & < 1:1< <> < <
  • 37.
    _______________________________________________________________________________________________ Investors Information Kit 33 %& % < @ < : > F> @7 $ % % 7 9 7 $ 7 9 $ 7 & $ 3 0 8 > 9 :@ 1 < < @. * #' $ , ' @A A@ . . *$ $ 6 E +' 7. . - % % $ . . 2%% & $ /. & -%! - %* $ $ $ % % ' $ @ B( * ( " $ , $ % ' @@ B( * ( " $ % ' . ) / > < 3 > 2 $ #$ & % J F. 9 6 * ( "7 2 $ & % J . 9 6 * ( "7 4 & % J . 9 6 * ( "7 ! % $$ ( ' . !"2 4 92 % % . $$ , , # # !"2 4 92 % % , > . @. ; ' *$ *$ . . 4 $ ; / . . ; #' 4% '$ / . . & % ; ? / . . +' 4 . % $ % % ' $$ # # # . < ) & +' $ % % ( # !"2 4 92 % % . &; J $ & % ; J 9 ! J ! % J 9 *! J * , ! % J .H : J : / ' J 6 &; / !7 *! J 9 * $ % % , +' # # !"2 4 92. % '$ % % $$ , %' % .@.@ # !"2 4 92 % % , > .
  • 38.
    _______________________________________________________________________________________________ Investors Information Kit 34 1@ 1 # ' , $ #$ / % $ . 11 - @< # ' , $ #$ / % $ . < $ % % % % % % '# $ % % % % $ % 4 92 , $ !"2. 2 3 % ! ! , ' $ $ +' , # . 9 $$ . < ! , % % % % '# , % % $ % 4 92 , $ !"2. % & ' 2$$ +' ' % $ +' 0 $ $ +' J 0 4 0 +' J 0 ! / +' J 0 $ +' J 0 % $ +' J 2 +' +' J 0 3 % , & $ $ J $$ , J $ +' , J 5 - # & , ) $ # # & $ .( 4 8 . % % , %' & $ # # $ $ !"2.
  • 39.
    _______________________________________________________________________________________________ Investors Information Kit 35 ,!%$ % ) !% , - % $ ' !4 ' - , % ) % - % $ % ! * ! ' ! * ,# , % 1 > @ << G @. * $ % '$ $$ $ 4 8 * & > . * %% # $ %%' ' # ' # ' . $ '$ $$ ' : 1 % $ 1 % . * $ 1 % $$ ' % %' % / : -, $ # $ %%' ' # ' # . . : -, $ $$ # $ $ #$ 8 $ $$ % ' $ % +' $ , ( , % ' # $( ' %$' 4 8 * 2' $ % % ( ( '% ' ( +' ( % $ % , * 1 8' % . 4 8 * 2' $ ' $ %' # ' % ' . $$ # , ' # ;$ 4' % . . 7 4 8 * 2' ( * 3 &' %% # $ $ # $ , % ' $ % +' $ ( '% ' ( $ ( +' ( % ( , # , % ' ' $1 % $$ % % . #7 %% %%' ( , % ' ( , % $ ' % ' % $ $1 '$ ( : -, ( - ( & $$ # $ $ #$ 8 $ $$ $ %$ % % +' $ $ ' %% . 4 8 * 2' % '% , % , # : -, ( - ( & . %7 -, ( : ( - ( & 2 $ $ 4 8 * 2' ( $ ( ( ( % % $$ $ ( %$ ( ' $ 8' '$ % +' % % , . . : ' $$ %$ $ ' # ' % % $ $. . 9 $ # ( ( : $$ ' 7 $ +' $ $ $$ % '$ +' # * 2' 6 % , $$ # ' $ % %' % 7. #7 2 %% $ ( , $$ ( +' $ $ ' ' > $ , % ' ' . %7 5 ' %' $ $$ , . 7 0 '# % ( $ % , # ( , 8 . 7 E ' '# % # , > ( $ $ 5 '$ 5 % , * 1 '$ '$$ % $ , . 7 % , '$ '$ % %' 4 8 , $ # ' $ .
  • 40.
    _______________________________________________________________________________________________ Investors Information Kit 36 A.2$$ > ( & & 65 5 W ; ; 7 ' , ( ! 3 2 ( % $ @. : # , % , . F. : $$ & & ' '% ! ! 3 % *$ * 2' ' $. G. $ % $$ 1 & % $$ # '% * - % $ . 9 @ $ ( $ & % & 4 , ' # % E 2' 2 % $$ # # . 9 % % ' # $ ( , #$ ( # * 2 4 1 / $ $ # % . ! $' '% % % * - % $ , : -, 8 $ $$ $ #$ ' . ( $ * 2 . H. 0 # ' > , % , '$ ' , , ( , ' # , # ' : . @ . 2 > $$' 4 8 9 % $ # . : -, & - $ % ' $$' $$ 8 $ $$ # $ $ #$ ' . ( / ( , % # %' $ %$ ' '% $$' . $$ $ 8 $ $$ # $ $ #$ %$ $ # . @@. : ' %$ , , # $ $ $ ' # . ! $' , $$ $ ' % +' % . @ . 2$$ B $ 6 /% % 7 , % ' % # @2( @ 3 '$ # * 4 8 & $ ' 1 & %> .
  • 41.
    _______________________________________________________________________________________________ Investors Information Kit 37 !& !% ) !$ % # ' , % % @HG % $ @HGA( $$ , # % '% ;*< $ # , % , # 4 2;&- # 2:-&-. 4 8 * 2' %+' $$ % * * - . * $ $ % 2 # * '$ ( @ . $ 0 & 4 8 * 4 8 & . ;*< $( - $ > $( < $ & ) 4-5 $. #$ %% $ ' < $ & B $ , $$ ;*< > - $ > . ,# % %% $ > $$ $ % % # ' <'$ 4 %$ 'E 4 ' . 2 , $ , 4 8 & ' $ . 2 * 8 % ! " ( ! " #$ % . !% & - % * $ % ' $$ % $ # , 2$ M', 28 ( 8 % ! " ( 4 8 ( 2 # . -& $ % %$ $ % $ 4 8 % % E # % $ , ' . ' $ $$ . % $ ' % #$ %% . 3 , , ' 2 # <'$ ' ' $$ $ $$ #$ , , +' ( #' %% $$ ' # , % . B # $ $$ . - $$ - % $ #$ % ' % , $ F ' $ '$ % % ' $ $ $. 4 8 * 2' * +' , B ! ' $ +' % , % % $ @A 3 F . ! -' , % & % $ ! , #' ' / [ . D0 [ A. D $ , $ ( $ % 2 @ % . % % $D % $ % / [ @D0 [ FD . % $D $ ( . , @G , % $( % $( @G # ' % $. % $ # @ , # ' # @ ' # A . : / ' ' $ % $$ * @ . !%' , % & * $ % '$ , % $. , $$ * ;- 4( < )-2 4( :--5 0< &52! 4 20 :--5 0< : 0. , % # ' 0 , , /% > . * # ' # $ ' $ ' $ 6 8988 @A .7 ! & - ! !%' % '% # , % $ @HH . +' $ < $ & ) # %> , % @A( +' . 4 M ;-2 @ ' % # %% # . # % $$ #'$> % % ' $ ' %'
  • 42.
    _______________________________________________________________________________________________ Investors Information Kit 38 8% $ . #'$> % ( $ $ % $ . & % !%' * # % $$ %% - $ > . % $ % %% $ ' @G $ ' ( , . H $ #' $ %% % , $ $ # ' # > % . %' ! , % & ) % !%' !%' ;-2 : ' 0 % : / ' @G . 52! : / ' @ .A.: - , @ : ) 3 # ' $ $ . & , H & , ; 5 @ : ' % 5 G : ' & % * 4 E G : $ % = $ H : . 4 E * $ @ . . $ <- 3 !- @ . @ . $ ) ' . & % !$ & ;*< $ ' ( F , > , % %' % . B $ , $$ # ' $ ' $ ( #' $ , $$ # ' . $ % , > #' , % % $ $ % $ . ) &H ! !%' # / % % $$ $ $ . % $ % %% > # , ( ( , . , - $ % % @. $D $ 0 % 2 $ ' # * 2' $ F ' $. . , D % ' '# . * 3 &' $$ , %' 7 & : #7 & *$ %7 % ; 7 ; ' & $ % . . * $( ' > '$ # '# # % $$ % % ' . * &' $ $D % $$. )! ' 3 % ! , ) & ! , $ #$ +' . !' $ % # ' $1 . !% ! & % , - $ %
  • 43.
    _______________________________________________________________________________________________ Investors Information Kit 39 $$, %' +' , $ % $$ * . $ %$ #. & , ; %. &$ % $ % $$ . &$ % & <' . )& B $ +' $ $ 2 # ' $ ' , $ 4 8 , . 4 8 $ , / @ ' % $ $ , 4 8 % $ . - ! ! % $ > $ * , $$ # $$ , ;*< 8 . , ( % # , > $ $ % # ' $D . , ' ! & # , -! 3 -' B $ $ 6 % $ % % 7 $$ , # > # > $ ;*< = . & , % $$ , #' % ;*< $. # % ! B $$ , $ ;*< $ , ' $ - . !%' , !%' ) - & % * , $$ # $$ # ' # % $ , , ' # $ # % $ , % $ % ' % +' . & $ % !* ! E ! $ % @.@ 2' # , % 7 4 % $ +' % # # $ % > ' % $ $ . #7 $ %' 2 B $ % 2' , , ' % ( / $ %$ $ '$ '$ ( ( '#8 % P #$ % ( % % $ '% / . B- % & 3 ! , ,, % & $ ! 0 , % '$ '$ ( 2' # /% $ , $ $ $ ' % ' , $$ $$ # ' . ' $! * ' !% ! & %! )) - $ $ % , * $ ( 2' , $$ % % : 5 '$ , % , $$ # # $ 0 , % # * ; . 2 - ! ! % 2 '$ ' % $ , * 2' , $$ ( & - 5 '$ %$ $ 2$ $$ %% , > % % ( ' $ 5 % . & %
  • 44.
    _______________________________________________________________________________________________ Investors Information Kit 40 *$ , $ % '$ /% % , * $ / . 2' , $$ $ 4 % . 0 - , -% !% 2$$ $ , ( % % , , $$ $ $ % '% % # # & '% * 5 '$ ' # 2' . 5 # ! $ % ! % -% %% % , ' $ % ( % $ ( % ( % ' $ ( 2' , $$ % '$ ' $ > E . -' ! , & % !, % * % ( % @ $ ' ( , % # $$ , 2 % 2 ; ' [ D 0-5 ; ' [ D F 24 6 % ;*< ( > ( % ' % 7 2 % ) ; ' [ @D A 0-5 ; ' [ D G 24 2 % & ; ' [ D G 0-5 ; ' [ D G 24 D < = ; ' [ D H 0-5 ; ' [ D @A 24 62 / $ $ 0 9 ! , )' 7 0 9 $ %+' ' ( '% , ' ' * %%' % % $ ' ( %% # $ ' % # .
  • 45.
    _______________________________________________________________________________________________ Investors Information Kit 41 ', & ) ! ! % ! % " - ) % ! , - % ! ! @. 2$$ % $ '$ # > $ $ % ( . $$ , % %$ ' . . 2 $ $ / #$ % % , $$ # +' # $$ ( '$ # ' % $ ( '$ # $ $ ( %. . < % $ '$ # '#8 % % '$ # $ % ' ' . B $ $$ % $ ' $, # > %$ , > . )$ , # %> $ # . . 2 $ % #$ / ' $$ # $$ $$ +' $ % . A. * ' $ '% %. '$ % +' . F. 0 $ / $ % % $ , , $$ # , ' $ !" 2' . G. & > , $$ % $ '$ # ' $ . H. 2 $ ( $ % % $ > $$ # $$ @ . 9 $ $ '$ # % $$ % $ . @@. < '$ # $$ , $ % #$ @ . 2$$ % $ '$ # > %$ @ . 2 $ % #$ # # % $$ % # % $ ' $ @ . 2 $ ( > ' # $$ % % % . @ . $$ # % # . @A. 0 % $$ % $ @F. $ % $$ # % / %( # # ( , ( %$ % %$ . ; ' $ '$ # $'/. @G. ' $ $ '$ % % % @H. & %> %$ $$ % $$ , % % . 4% @. &$ , , , . . 4 $ E # % $ . . # ' %> # %. 2$, %$ %$ # ' , %. . ( , ( %$ +' '$ # ' ' . . ! '$ % % % . A. ! $ $ $$ $, # % %> .
  • 46.
    _______________________________________________________________________________________________ Investors Information Kit 42 F.4 , $ % $$ $ # , >. 4 , > ( ' ( E ( # ,$ '#$ '$ , >. &' # ' '$ # % , , # . ! $ '$ # , ' . G. 4 > $$ $$ # # . H. !"21 ( 4 '% ( '$ '$ , $$ # % $ $$ , . . % %% ' $$ $ # . % $ $$ # +' , # /. @. ; ' $ '$ # $'/. . ' $ $ '$ % % % . & %> %$ $$ % $$ , % % . 4% . &$ , , , . A. 4 $ E # % $ . F. # ' %> # %. 2$, %$ %$ # ' , %. G. ( , ( %$ +' '$ # ' ' . H. ! '$ % % % . ! $ $ $$ $, # % %> @. 4 , $ % $$ $ # , >. 4 , > ( ' ( E ( # ,$ '#$ '$ , >. &' # ' '$ # % , , # . ! $ '$ # , ' . . 4 > $$ $$ # # . . !"21 ( 4 '% ( '$ '$ , $$ # % $ $$ , . . % %% ' $$ $ # . % $ $$ # +' , # /.
  • 47.
    _______________________________________________________________________________________________ Investors Information Kit 43 )! B% ' ! 2 $ # $ #$ / ' % $ $ . )24 & +' % ' #$ / ' . 9 V 2 , E ' / ' $$ , E> < 1 ♦ 4 '$ # ' . ♦ 4 '$ # % $$ % #$ . ♦ 4 '$ > , '% . ♦ 4 '$ # % % ' . 2 F> @ @ 1 1 ♦ 4 '$ # # % $ E % 8 9 % % ( ' , 7 ♦ B $ ' . ♦ 4' #$ %$ +' . - / % #' #$ . < 1 ' = = => '$ # / % $$ $$ , $ % ♦ - $ % % # . ♦ 0 / . ♦ 2%% #$ . ♦ ! % % $ . 6 - %$ % $ # / ' 7 ♦ ! ' ' % . 6!' % ( ' ( ( , ( ' $ %7. 0 >1 ♦ * % $$ % %> ' / ' . ♦ ! $$ , ' % ' '% % $ % . ♦ % $ % . ♦ %' %%' % $$ % $ . ♦ K ' ' . ♦ % % '$ % $ % % ' #$ / ' . 1 @ > ! : ' $ / ' % $ / ' . % % % $ ( % ( % %'$ $ $ . / % $ '% / ' , / $ , ' % ' ' $ %' $ . M' ' # % # > ' $ % % ( % ' $ # % ' '% $$ / ' , $ #$ % . ) % ' % % % ( ' +' $ % ' #$ / ' ( % $ % ( % ( ' ( '$ .
  • 48.
    _______________________________________________________________________________________________ Investors Information Kit 44 $!+ ! $ ! )) B , %' B% ' ! =< 1 1 L G " @ @ ( 1< ! F> 1 1 L < " @ < > ( = <> 1 1< 1 1 - L < 1 1 < @@< 1 ! 1 1 , L < @. ' , / ' $ % % ( # % ' , % '% $ % % . . 2$$ / ' % $$ $ . & '$$ '% / . . K ' ' > , , ' % # / ' . . K ' ' > , / ' 1 % / ' % ' . ' % ' #$ / ' % . A B C D IMPORTANT INSTRUCTIONS ?
  • 49.
    _______________________________________________________________________________________________ Investors Information Kit 45 '!4 ' $ - & %* ! - $$ , , ' &%' -% ) - & %* -' -+& % << ) > < < = F> @ @@ < ' < 1 & : $> 1 @ < : @. ! $ > < = > @ : > < = • )' $ % $ $ % %$ / $ % . • )' $ / ( % '% % . . . , , ( % > $$ ( %. 6 %% .2. '$ 7. 2 > < = , = " - >1 $ 1 • !$ ( , $$ ( % $ % '% / % $ ' #$ ( ' ( ( %$ #$ ' #$ '% % ( 9 $$ $ % $ ' 62%% .2. '$ 7. • 9 ( , $$( $ % $ 8 $ $ % % % $ %$ . • !$ ' % $ $ +' ' $ . • & $ '% ' ( % '% % . • % $ +' % % . • 2 #$ % $ $ , % % '$ . • 9 , % '% $ $ +' $ % ( , $ > $ # > $ , , D % '$ '$ % . & = = • ; '% '% % % % # % $ % '% . • ; #'$# / ' $ % , / %> $ ( % % % # > . 0 # < • B $ ' % /% ' %% #$ %%' '$ % ' % . • B $ +' , %$ % $ > % . ! $ %$ $ % . 5 3 , @ < • , +' , .
  • 50.
    _______________________________________________________________________________________________ Investors Information Kit 46 •4 , $ % $ ' '% ' $ % $$ % . • 2 +' % $ , $ #$ . % $ % . • 9 % ' %$ $ ( $ > ( % $$ % . • 9 '$ $ % %$ E , % E > % . • 9 $ % #$ ( , ' $ % , % % . 2 % !* ) - & % 2 @< : ) 1 < • 9 % $ #$ ' , ( ( ' $ ' #$ , # 6 %% .2. '$ 7. D • 9 ( $' % % +' $ % . • , . • * % , +' ' # 6 %% ' # , > 7 '$$ +' , . 2 2 F> @ -< = K = ) 1 < • : ' % ' % $ , %$ +' % $ . • ! % $ % '% % $ % #$ # $ %$ , #$ , ' %$ % % $ ' . 2 3 ( 1 • 9 +' .2. 6 #$ 9 M' $ 7. • 9 % +' $ 6 # $ 7 ' # +' $ % ' # > . • ( ' % #$ % ( # %> $ , # %> ' . • $' ( ' ' #$ , +' $$ '% %$ ' . . • * '$ # $( , % , $$ $ > % . • % ' % % % , #$ , % % . 2 0 • ' $ * #$ , +' % 6 % $ #$ 7 $ +' . . E $ % < F> @ • +' ( % '% +' % % '% ' H . • +' ( % '% $$ # %% #$ %$ ( E ( % % . • 9 $ % #$ ( +' / ' ' /% % .
  • 51.
    _______________________________________________________________________________________________ Investors Information Kit 47 •+' % % % . • 9 % ( +' ' % %$ # % $ ' % % % . 2 ) - 1 > 1 • ! % % ' % +' ' $ ( % ( # # ( % %> % % % , %$ . • 2$$ % % ' % $ %% '$ % .2. . • +' ' % % $ ' % % % . F> @ $ 1 - < • ' % ' % , % % $ # ' +' % ' % . • : % % $ # +' # $ .D $. • : % % % % $ +' %$' ( % +' # ( ( % ( % . • & $ # % % % $ +' %$' % +' ( ( #$ ( % $ # '$ ( / % $ # ' . • ' $$ E ' % > . . ! & 0 % = < ) ':= % = • ' % ' % $ , $ . • 2 # % $ $$ $ # $ % $ #$ . • 2 % % ' $ ! '$ +' $ . • 2 $ % ' %' > ,$ +' % % $ . • 2$$ , > $ % ' , , > % . 0 2 ':= ' < ! F> • 2$$ , ' $ ( # , >( $ % $ ( # > ' $ % $ . • $ $ ( , % . • $ % %> ' , > $ % '% '$ $ % . • $ # / # ' % % % % '$ '$ % . • * $ # $ %$ > , $ % . • % $ % % '% . • * % %$ ( % ( , $ ( $ ( , . • 2%% % $ % $$ #$ % . 0 - > 1 < , > • ' % ' % $ %
  • 52.
    _______________________________________________________________________________________________ Investors Information Kit 48 @.5' '$ % $ % %>' $ %% .2. '$ . 2$$ , > $ $ % . . * $ > , # ' > , % #$ ' , > $ . . * $ , , ' %' ' $ %' % % . . * $ ' % / # ' , >. . : ' '$ % %> ' , > $ $ % % > . A. % %% ( 8' %% #$ $ ' ' % . 5 % - %! & • % % $ . • 5 % % $ %$' @. B $ % $ % % , % # % % 2' . . 5 % % $ % . . % ' ( $ % $ % ( #$ . A. %! !% % , % ! • % $ ' #$ . ' % $$ % '% %% '$ % .2. 6 ' #$ % % 7. • % $ % % $ ' % ' #$ . • 2 %$ E %$ ' # $ % % ' # > . • % $ 6 ( ( %> 7 % % . 7 % @ > - < • ! +' [& $ $ . ! E D ' , 6$ [&7. • ! '% % # $ % $( % $ % % $ % . 7 2 = • ! +' [& $ $ 6 % 7. ! E ' , 6 $ [&7. • ! %> $ $ , $ $ ( % . • A. & % $ 5 % 4 • & % $ % +' $ $ . • & % $ '% # $ % % % % ' % . • & % $ % % $ $ # $ % . • & % $ $ $ # $. 7 0 ) >1 = • ! '% '$ # , % #$ . • 5 ' % ( / ' % '% %$ $ $ .
  • 53.
    _______________________________________________________________________________________________ Investors Information Kit 49 !- && * % $ 1 > • , % ' %$' @. #$ . . % $$ % 6 7. . $ # $ % $ % $$. . : ( $ % % $ % $$ '% . . 2 +' '% # % # E '$ # %$' % $$. • % ! & $ 4 % , ' % ' $ % . % '$ %$' $$ , @. 2 ' '% '% ( #' . . 0 ( E ( % ( $ ' # % $$ . . 2 #' '% ( . . 0 $ 6 .2. 7 $. . 5 % $$. 2 >1 - 1 8G :9 • % %> ( $ #$ ( % > $ ' # %> . . • % #$ ( ( ( , % '% . • & > ' / % % $ #$ . • 9 ' ( % % $ #$ % % , . ! 1 << - @ < : • ' % ' % #$ '% %%' $ # $$ % '% % $ > $ % . • ' % ' % ' $$ , @. 5 % &' D ( $ ' # $ #$ $ . . 5 % '% ( #' # $ $ #$ $ . . * % % # $ % ' $ % $ % $ $ % '% % % $ . . 2 ' '% '% ( #' % % % $$ % ' . , > ! 1 • #' % % ' % % # $ %'$ % $ ' # . • $$ , ' +' #' % @. * '% % E . . ; ' # & . . M' . . &' 1 ( ( ' # $ $ $ '% #' .