PORTE FOLIO

DE LAYOS DANIEL
Layos Daniel
Porte-folio
5, Rue Claude Bernard
75005, Paris
0637399766
layicos@gmail.com

Layos Daniel
Architecte technique

Diplômée de l’Université d’Alicante en 2013

Né le 1er Mars 1986 à Alicante, Espagne
27 ans - Nationalité espagnole - Célibataire sans enfant

FORMATION
2007/2013

Diplôme d’Architecture technique

2009/2010

Master 1 d’Architecture

2004/2007

Licence 3 d’Architecture

2004

Universidad de Alicante, Alicante, Espagne
École Natiomale d’Architecture Paris Malaquais, Paris
Universidad Politécnica de Cataluña, ETSAB Barcelona, Espagne

BAC S mention TB

Lycée Français d’Alicante, Alicante, Espagne

EXPÉRIENCES PROFESSIONNELLES

BAGAGES
LOGICIELS
Architecture Autocad 2010-2014, Autocad Architecture 14,
Archicad 16
Dessin 3D
Autocad2010 -2014, 3d max Studio 2012-2014
Sketchup pro 8
Calcul de
Cypecad 2010-2013
structures
Adobe

Photoshop CS6, InDesign CS6

LANGUES

De février 2012 à
Juillet 2012

Professeur de Français à l’École Élémentaire de Boudib
Projet de construction de la nouvelle école de Boudib

D’Octobre 2011 à
Février 2012

Professeur de soutien scolaire à l’école élémentaire
Gambetta de Vanves

Anglais

De Juin 2011 à
Octobre 2011
De Janvier 2010 à
Aout 2010

Projet de Maison d’été dans la forêt de Bjergsterd

QUALITÉS

De Septembre 2008
à Octobre 2009

Dessinateur-projeteur, économiste du bâtiment,
suivi de chantier

Volontariat, dans l’Association Boudib et Tazoulait, Boudib, Maroc

Mairie de Vanves, Paris, France

Espagnol
Français

Stage chez SAARK Architects, Stavanger, Norvège

Scénariste pour la compagnie de Théatre itinérant
Los insolventes
Volontariat dans l’Association el Ring, Alicante

J. Luis Pérez Molina, Architecte, Alicante, Espagne

Langue Maternelle
Diplôme DALF C2. Maîtrise de la langue
française. Novembre 2012.
Diplôme niveau B2 du cadre européen.
EOI de l’université d’Alicante. février 2011
Polyvalence dans le milieu de l’architecture.
Capacité de synthèse et improvisation.
Expérience dans des pays de cultures différentes.

VOYAGES	
	
	 Route panaméricaine (9 mois), Maroc, Norvège.
LOISIRS	

	

Jazz (guitarre et basse), écriture, dessin. Voile.
Sommaire

Page 1		
RÉNOVATION DU MARCHÉ CENTRAL ET PLACE DU MARCHÉ CENTRAL
		2010 à Alicante, Espagne
		Concours ouvert de la mairie d’Alicante
Page 9		
MAISON D’ÉTÉ DANS LA FORÊT DE BJERGSTERD
		2011 à Stavanger, Norvège
		Stage chez SAARK architects
Page 12	
ÉCOLE ÉLÉMENTAIRE DE BOUDIB/ ÉCOLE POUR FEMMES ADULTES
		
2012 à Boudib, Maroc
		Volontariat Association Boudib et Tazoulait
Page 17	
PROJET D’ÉXÉCUTION D’UN COMPLEXE RÉSIDENTIEL: ARCHITECTURE, PARCELATION, STRUCTURE, 		
		
INSTALLATIONS ET CANALISATIONS, LOGEMENTS ADAPTÉS.
		2013 à Alicante, Espagne
		Projet de fin d’études à L’Université d’Alicante
		
Page 28	

FENÊTRES
RÉNOVATION DU MARCHÉ CENTRAL ET PLACE DU
MARCHÉ CENTRALE,
2010 Alicante, Espagne
Concours ouvert de la mairie d’Alicante
1

Rénovation du Marché
Central et Place du Marché
Central à Alicante,
2010
Programme / Situation

Marché de producteurs certifiés Bio, réunis en coopératives agricoles locales. Les coopératives sont propriétaires des stands du marché ou
agissent comme intermédiaire auprès des anciens propietaires des stands.
Bibliothèque - Médiathèque. Salle de prêt: livres, filmothèque, discothèque et matériel multimedia. Salle d’études 24 heures avec 108 postes.
10 Salle d’Activités culturelles d’occupation publique: 6 consacrés aux jeunes de moins de 26 ans et 4 pour retraités. Théatre-Scène gratuit.
Cinéma d’été en plein aire, 100 places. Espace verts surface totale 3568,24 m2.

Marché de la
Plaza del Mar

1er Marché de la Plaza del Mar, dans le port d’ Alicante, 1897

L´actuel marché Central
d’Alicante se situe dans le
coeur de l’ancien centre-ville ;
134 des 252 postes originaux
sont fermés. 52 des postes
encore ouverts, sont en cours
de transaction ou expropriés
par la Banque.
Le
Marché
Central
d´alimentation général est
ouvert les jeudis et samedis.
Les propriétaires des stands
achètent à des entreprises
privées
de
distribution
nationale. Le prix moyen des
produits est plus élévé que
celui de la grande distribution
et la
plage horaire plus
restrictive.

Inauguration du Marché Central d’Alicante, 1911

Place du Marché Central
Marchés de plein air dans un rayon de 2km.
Marchés de grande surface dans un rayon de
2km.
Marchés de petite ou moyenne surface dans
un rayon de 500 m.

Marché Central en 1922 dans son emplacement actuel.
2

Rénovation du Marché
Central et Place du Marché Central à Alicante,
2010
Plan de masse/ Surfaces / Coupe

Salle d’activités. Surface 253 m2
Bureau d’Admistration du Théatre.
Bureau Administration du marché. Surface 52 m2
Salle d’informatique . Surface 66,5 m2
Matériel Scène/loge. Surface 18 m2
Scène démontable. Surface 70 m2

Espace
vert 2

Espace vert 1
2096,45 m2
Espace vert 2
594.25 m2
	
	

Plan de masse

Coupe principale

Plan sous sol

Bibliothèque
90 m2
Cinéma Plein air
45 m2

Plan niveau 1

Espace
vert 1
3

Rénovation du Marché
Central et Place du Marché
Central à Alicante,
2010
Perpective Est

À 11.15h du 25 Mai 1938, vers la fin de la guerre en Espagne, 9 avions Savoia S-79 (Sparviero italiens du front national), ont échappé aux
écoutes anti-aériennes situés dans le port et la plage d’Alicante; orientées vers la mer, en atteignant la ville par le Nord-Ouest. À cette heure là,
le marché était plein de gens, surtout des femmes et des enfants. Le bombardement se déroule en 4 minutes, 393 morts; 151 femmes, 45 enfants
et 97 cadavres sans identifier selon le document redacté par le front national le 27 Mai 1938, sous le titre: ‘‘Relation numérique des morts dans
la ville à conséquence du bombardement aérien registré le 25.05.1938 ’’

Un avion
républicain
sous la Façade
Principale
du marché,
instants après le
bombardement
Vue vol d’oiseau d’Alicante heures après
le bombardement.

Perspective Est

Cave du marché
completement détruite.
26 Mai 1938

2 femmes,
victimes du
bombardement
étendues dans
la rue pleine de
sang.
25 Mai 1938
4

Rénovation du Marché
Central et Place du Marché
Central à Alicante,
2010
Vues/ perspective Ouest

La plupart des victimes furent
enterrées dans les fosses comunes du cadre nº12 du
Cimetière Municipale d’Alicante, sans pierre tombale ni
plaque jusqu’à l’année 1995.
63 procès juridiques sont encore ouverts actuellemenent,
demandant l’exumation des
cadavres par les proches des
victimes. Il restent encore 74
tombes à identifier. L’association des victimes du bombardement sous le nom: Victimes
du bombardement franquiste
du 25 Mai 1938, n’ est pas réconnue officiellment jusqu’en
2008. En 2010, une plaque
commémorative de 50 x
30cm a été placé par la mairie
d’Alicante sur le façade nord
du marché. Le maire prononça un discours où les mots
fasciste et front nationale ont
été évoqués par première fois
par une autorité en relation au
bombardement.

Profil gauche

Profil droit

Des volumes rudes. Un
aménagement étrange
par rapport au quartier,
qui coupe l’axe centrale
de l’avenue comme un
terrain expropié par
l’histoire. Un trou.
La réconstruction
du marché a effacé la
mémoire.
Les cyprès contre les
palmiers, le betón
contre les pavés clairs
et les petits modules de
jardins.
Perspective Ouest
5

Rénovation du Marché
Central et Place du Marché
Central à Alicante,
2010
Toiture du marché/ détails

Dans les années 50 le marché
fut reconstruit entièrement
identique à l’ancien marché,
avec des matérieux de basse
qualité. Cela engendra des
nombreuses réparations, particulièrement de la structure
métallique du toit qui souffre
de dilations thermiques en été.
Le cout total des réparations
depuis sa réconstruction a été
chiffré en 2009 de 585.789,32
euros.
Selon les autorités republiquaines, en Mai 1938 le toit du
marché a reçu l’impact de 21
obus.
Structure du toit du marché
Air de l’extérieur

Schéma de
protection du cube
de l’eau

Parcours de l’air
Évacuation d’eau

Détail du sol de
l’espace vert sur le
toit du marché
6

Rénovation du Marché
Central et Place du Marché
Central à Alicante,
2010

Plan sous sol / Perspective intérieure

La mairie d’Alicante à lancé en avril 2010 un concours
ouvert, pour la rénovation du Marché Central et la
Place du Marché Central.
Description:
Surface terrain 9253,4m2
Budget: 2.145.256.56 €
Surface espace vert: 2105 m2
Surface Marché: 825 m2
Limite de reception des projets 25/02/2011

Le marché sera reconverti
en un marché spécialisé en
produits d’alimentation bio.
Le nombre des postes se
réduira à une cinquième part
du nombre de stands originaux,
pour que le marché soit
compétitif, avec un total de 44
stands. Les coopératives locales
deviendront
propiétaires
des stands, ou seront le seul
intermediaire avec le marché
pour la distribution des
produits, dans les cas ou les
actuels propiétairs des stand
qui veuillent les garder.

Perspective intérieure du marché

Façade Sud, où se situe l’entrée sud du marché
7

Rénovation du Marché
Central et Place du Marché
Central à Alicante,
2010

Cirque d’été
Théatre Cinéma

La Place du Marché d’avant-guerre, était un lieu de rencontre et le coeur culturel d’une
ville qui commençait à croître au dela du port. Entre le Théatre Principale d’Alicante
situé au Nord de la Place et le cinéma ‘‘El Monumental’’, qui projeté des films dans sur sa
toiture en été, les terraces des bars occupaient une grand surface de la place.

Perspective intérieur Sous sol

Vue aérienne d’Alicante 1906
Théatre Principale D’Alicante en 1908.

Théatre Principal d’Alicante actuellement.

Bar du marché central, 1922

Perspective intérieure du sous-sol

Façade Nord
du Cinéma
Monumental,
1923

Intérieur
du cinéma
Monumental
8

Rénovation du Marché
Central et Place du Marché
Central à Alicante,
2010
Perspective intérieur Théatre

L’ancien Théatre Municipale D’Alicante fu inauguré en 1892. L’ édifice jamais reconstruit ni démoli complètement, reste toujours début,
entouré de supermarchés et cybers-cafés. La dernière pièce joué a été La vida es sueño de Calderón de la barca (Nom de la rue ou est
toujours le théatre) le 21 Avril 1938, en pleine guerre; un mois avant du bombardement, l’entrée a été gratuite.

Après la guerre, la projection de films dans le salles a été interdite pendant deux ans en Espagne. Le 9 Mai de 1941 a été projeté
au cinéma Monumental le premier film après-guerre à Alicante, il s’agissait de Raza; un film écrit par le propre Franco sous le
pseudonyme de Jaime de Andrade.

Bibliothèque
Salle d’études

Plan étage 1
Cinéma plein air. Session de nuit

Perspective du théatre. Nuit
L’accès aux gradins
se fait a travers
la marche située
dans les latéraux
de la toiture, en
béton imprimé,
selon le graphique.
D’autre part on
disposera d’une
scène facillement
démontable et
stockable dans la loge.

Cinéma plein air
Salle d’études

Plan étage 2

Perspective intérieure

Distribution du public
MAISON D’ÉTÉ DANS LA FORÊT DE
BJERGSTERD
2011 à Stavanger, Norvège
Stage chez SAARK architects
10

Maison d’été
Stage à Saark architects
Stavanger, Norvège
2011
Situation/ Vues

Maison d’été pour deux personnes. 2 étages, surface du terrain 50 m2, comble-grenier
Matériaux: fresne lacqué, toiture de tuile en ardoise rouge.
Fondation: élévation avec blocs de béton en masse. Terrain avec flanc d’eau à -1,25m.
Client particulier.
Sthétique des maison traditionnelles norvegiennes

Randaberg

Profil Est
r
ange
Stav

Plan situation. Forêt de Bjergsterd

Façade Sud-est

Profil Ouest

Façade Nord-Ouest

Maison d’été dans la
forêt de Bejergsted.
1969
11

Maison d’été
Stage à Saark architects
Stavanger, Norvège
2011
Plan étages / coupe

Maison d’éte finie. Septembre 2011

Plan rez-de-chaussée

Coupe

Façade Nord-Ouest

Plan étage 1

Hall escalier.
Étage 1.
Septembre 2011
ÉCOLE ÉLÉMENTAIRE DE BOUDIB/ ÉCOLE POUR FEMMES ADULTES
						
2012 à Boudib, Maroc
			
Volontariat Association Boudib et Tazoulait
13

École Élémentaire/
École de femmes adultes,
Boudib, Maroc
2012
Situation

École Élémentaire pour accueillir un total de 60 élèves. La moyenne d’élèves maximum se trouve en CM2 avec un total de 11. Éviter le mélange des
élèves de cours consécutifs en réduissant la taille des classes, suprimer les heures livres. Modules indépendants pour chaque classe.
L’école ne compte pas avec des canalisations d’eau, ni d’électricité. Lumière naturelle. Cour ouverte.
Horaires d’hiver: École élementaire: 7- 11.30h et 13-15h, femmes 15-17h. Horaires d’été: école élementaire 8-12.30h et de 14-16h, femmes de 1618h.

Sortie du village de Boudib, route direction Errachidia. Avril 2012

Boudib

Élèves de CM1 et CM2, à l’École de
Boudib.
Avril 2012

Situation de Boudib
Bâtiment CP,
CE1,CE2

Classe de
CM1, CM2

Mosquée

Actuel école de
Boudib
Femmes de 15 à 30 ans sans ocupation, en
cours à l’école de Boubid.
Avril 2012
Village de Boudib, 2012

Plan masse

Ruines de l’ancien
village de Boudib
14

École Élémentaire/
École de femmes adultes,
Boudib, Maroc
2012

Vues/Perspective

Façade Nord

Profil Ouest

Perspective Sud Est

Perspective Nord Ouest
15

École Élémentaire/
École de femmes adultes,
Boudib, Maroc
2012
Plan de masse/ Vues

Façade Sud

Plan de masse
Il n’y a pas de mur qui sépare le
village de l’école, la cour est donc
ouverte au village.

Profil Est
16

École Élémentaire/
École femmes adultes,
Boudib, Maroc
2012

Coupes

A

B

Coupe B-B’

Niveau 2 A’

A

B
B

A’
Niveau 1

Coupe A-A’
B’
PROJET D’ÉXÉCUTION D’UN
COMPLEXE RÉSIDENTIEL:
ARCHITECTURE,
PARCELATION, STRUCTURE,
INSTALLATIONS ET
CANALISATIONS, LOGEMENTS
ADAPTÉS.
2013 à Alicante, Espagne
Projet de fin d’études à
l’Université d’Alicante
		

Programme

Plan de masse

Profil Est

Façade Sud

Façade Nord

Profil Ouest

Perspective principale

Projet d’Ëxécution d’un bâtiment résidentiel, pour une habitation plurifamiliale: Sous-sol
avec parking et débarra individuel, Rez-de-chaussée espace diaphane, 5 étages d’usage
résidentiel dont un logement est adapté, Toiture accesible et parcelation avec piscine.
-	 Surfaces construites au sol: Terrain: 2729 m2, Sous-sol: 694,34m2,
	
Rez-de-chaussée: 244,45m2, Par étage : 277,21 m2, Toiture : 277,21 m2
- Surface habitable par étage d’usage résidentiel: 252,97m2
- Plans du projet: Structure, Instalation Electrique et Télécomunications, Résseau 	
	
d’évacuation d’eau: Système séparatif de pluviales et usées. Canalisation d’eau 	
	
avec panneaux solaires pour ECS.
18

Projet Fin d’Études
Université d’Alicante
Execution de complexe
résidentiel, 2013
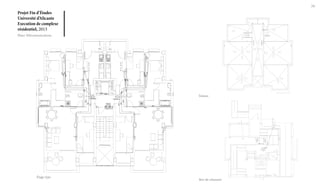
Plan cotés/ Surfaces

Plan rez-de-chaussée

Plan Sous-sol

Plan toiture
19

Projet Fin d’Études
Université d’Alicante
Execution de complexe
résidentiel, 2013
Plans cotés/Surfaces

Plan étage type

Plan étage adaptée
20

Projet Fin d’Études
Université d’Alicante
Execution de complexe
résidentiel, 2013
Plans structure

Mur et semelle type

Mur type

Fondations
Sous -sol

Semelle type
21

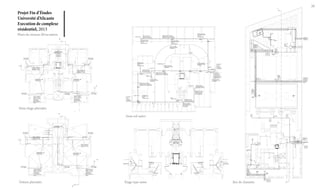
Projet Fin d’Études
Université d’Alicante
Execution de complexe
résidentiel, 2013
Plans structure

Coupe rez-de-chaussée

Rez-de-chaussée

Rez-de-chaussée +1m
22

Projet Fin d’Études
Université d’Alicante
Execution de complexe
résidentiel, 2013
Plans structure

Portique principale

Poutre type

Étage type
Pilier type
23

Projet Fin d’Études
Université d’Alicante
Execution de complexe
résidentiel, 2013
Plans électricité

Illumination étage type

Rez-de-chaussée

Étage type

Toiture
24

Projet Fin d’Études
Université d’Alicante
Execution de complexe
résidentiel, 2013
Plans Télécomunications

Toiture

Étage type

Rez-de-chaussée
25

Projet Fin d’Études
Université d’Alicante
Execution de complexe
résidentiel, 2013
Plans de plomblerie/solaire ECS

Toiture/ plaques solaires

Étage type

Rez-de-chaussée
26

Projet Fin d’Études
Université d’Alicante
Execution de complexe
résidentiel, 2013
Plans du résseau d’évacuation

5ême étage pluviales
Sous-sol usées

Toiture pluviales

Étage type usées

Rez de chaussée
27

Projet Fin d’Études
Université d’Alicante
Execution de complexe
résidentiel, 2013

Plans résseau de ventilation

Rez-de-chaussée

Sous-sol

Étage type

Toiture
28

Cruce desde mi ventana. Avenida Jaime II/ calle Ramos Carratalá, Alicante, Espagne 2005

Sortie Sud de la gare St Charles à Marseille, 2011

				

Place St Jean à Lyon, 2011

Parque Antonio Machado, Soria, Espagne.2007
29

Escaleras. Plaza Ramón y Cajal, Cúllar (Grenade), Espagne, 2011

Portefolio s

  • 1.
    PORTE FOLIO DE LAYOSDANIEL Layos Daniel Porte-folio
  • 2.
    5, Rue ClaudeBernard 75005, Paris 0637399766 layicos@gmail.com Layos Daniel Architecte technique Diplômée de l’Université d’Alicante en 2013 Né le 1er Mars 1986 à Alicante, Espagne 27 ans - Nationalité espagnole - Célibataire sans enfant FORMATION 2007/2013 Diplôme d’Architecture technique 2009/2010 Master 1 d’Architecture 2004/2007 Licence 3 d’Architecture 2004 Universidad de Alicante, Alicante, Espagne École Natiomale d’Architecture Paris Malaquais, Paris Universidad Politécnica de Cataluña, ETSAB Barcelona, Espagne BAC S mention TB Lycée Français d’Alicante, Alicante, Espagne EXPÉRIENCES PROFESSIONNELLES BAGAGES LOGICIELS Architecture Autocad 2010-2014, Autocad Architecture 14, Archicad 16 Dessin 3D Autocad2010 -2014, 3d max Studio 2012-2014 Sketchup pro 8 Calcul de Cypecad 2010-2013 structures Adobe Photoshop CS6, InDesign CS6 LANGUES De février 2012 à Juillet 2012 Professeur de Français à l’École Élémentaire de Boudib Projet de construction de la nouvelle école de Boudib D’Octobre 2011 à Février 2012 Professeur de soutien scolaire à l’école élémentaire Gambetta de Vanves Anglais De Juin 2011 à Octobre 2011 De Janvier 2010 à Aout 2010 Projet de Maison d’été dans la forêt de Bjergsterd QUALITÉS De Septembre 2008 à Octobre 2009 Dessinateur-projeteur, économiste du bâtiment, suivi de chantier Volontariat, dans l’Association Boudib et Tazoulait, Boudib, Maroc Mairie de Vanves, Paris, France Espagnol Français Stage chez SAARK Architects, Stavanger, Norvège Scénariste pour la compagnie de Théatre itinérant Los insolventes Volontariat dans l’Association el Ring, Alicante J. Luis Pérez Molina, Architecte, Alicante, Espagne Langue Maternelle Diplôme DALF C2. Maîtrise de la langue française. Novembre 2012. Diplôme niveau B2 du cadre européen. EOI de l’université d’Alicante. février 2011 Polyvalence dans le milieu de l’architecture. Capacité de synthèse et improvisation. Expérience dans des pays de cultures différentes. VOYAGES Route panaméricaine (9 mois), Maroc, Norvège. LOISIRS Jazz (guitarre et basse), écriture, dessin. Voile.
  • 3.
    Sommaire Page 1 RÉNOVATION DUMARCHÉ CENTRAL ET PLACE DU MARCHÉ CENTRAL 2010 à Alicante, Espagne Concours ouvert de la mairie d’Alicante Page 9 MAISON D’ÉTÉ DANS LA FORÊT DE BJERGSTERD 2011 à Stavanger, Norvège Stage chez SAARK architects Page 12 ÉCOLE ÉLÉMENTAIRE DE BOUDIB/ ÉCOLE POUR FEMMES ADULTES 2012 à Boudib, Maroc Volontariat Association Boudib et Tazoulait Page 17 PROJET D’ÉXÉCUTION D’UN COMPLEXE RÉSIDENTIEL: ARCHITECTURE, PARCELATION, STRUCTURE, INSTALLATIONS ET CANALISATIONS, LOGEMENTS ADAPTÉS. 2013 à Alicante, Espagne Projet de fin d’études à L’Université d’Alicante Page 28 FENÊTRES
  • 4.
    RÉNOVATION DU MARCHÉCENTRAL ET PLACE DU MARCHÉ CENTRALE, 2010 Alicante, Espagne Concours ouvert de la mairie d’Alicante
  • 5.
    1 Rénovation du Marché Centralet Place du Marché Central à Alicante, 2010 Programme / Situation Marché de producteurs certifiés Bio, réunis en coopératives agricoles locales. Les coopératives sont propriétaires des stands du marché ou agissent comme intermédiaire auprès des anciens propietaires des stands. Bibliothèque - Médiathèque. Salle de prêt: livres, filmothèque, discothèque et matériel multimedia. Salle d’études 24 heures avec 108 postes. 10 Salle d’Activités culturelles d’occupation publique: 6 consacrés aux jeunes de moins de 26 ans et 4 pour retraités. Théatre-Scène gratuit. Cinéma d’été en plein aire, 100 places. Espace verts surface totale 3568,24 m2. Marché de la Plaza del Mar 1er Marché de la Plaza del Mar, dans le port d’ Alicante, 1897 L´actuel marché Central d’Alicante se situe dans le coeur de l’ancien centre-ville ; 134 des 252 postes originaux sont fermés. 52 des postes encore ouverts, sont en cours de transaction ou expropriés par la Banque. Le Marché Central d´alimentation général est ouvert les jeudis et samedis. Les propriétaires des stands achètent à des entreprises privées de distribution nationale. Le prix moyen des produits est plus élévé que celui de la grande distribution et la plage horaire plus restrictive. Inauguration du Marché Central d’Alicante, 1911 Place du Marché Central Marchés de plein air dans un rayon de 2km. Marchés de grande surface dans un rayon de 2km. Marchés de petite ou moyenne surface dans un rayon de 500 m. Marché Central en 1922 dans son emplacement actuel.
  • 6.
    2 Rénovation du Marché Centralet Place du Marché Central à Alicante, 2010 Plan de masse/ Surfaces / Coupe Salle d’activités. Surface 253 m2 Bureau d’Admistration du Théatre. Bureau Administration du marché. Surface 52 m2 Salle d’informatique . Surface 66,5 m2 Matériel Scène/loge. Surface 18 m2 Scène démontable. Surface 70 m2 Espace vert 2 Espace vert 1 2096,45 m2 Espace vert 2 594.25 m2 Plan de masse Coupe principale Plan sous sol Bibliothèque 90 m2 Cinéma Plein air 45 m2 Plan niveau 1 Espace vert 1
  • 7.
    3 Rénovation du Marché Centralet Place du Marché Central à Alicante, 2010 Perpective Est À 11.15h du 25 Mai 1938, vers la fin de la guerre en Espagne, 9 avions Savoia S-79 (Sparviero italiens du front national), ont échappé aux écoutes anti-aériennes situés dans le port et la plage d’Alicante; orientées vers la mer, en atteignant la ville par le Nord-Ouest. À cette heure là, le marché était plein de gens, surtout des femmes et des enfants. Le bombardement se déroule en 4 minutes, 393 morts; 151 femmes, 45 enfants et 97 cadavres sans identifier selon le document redacté par le front national le 27 Mai 1938, sous le titre: ‘‘Relation numérique des morts dans la ville à conséquence du bombardement aérien registré le 25.05.1938 ’’ Un avion républicain sous la Façade Principale du marché, instants après le bombardement Vue vol d’oiseau d’Alicante heures après le bombardement. Perspective Est Cave du marché completement détruite. 26 Mai 1938 2 femmes, victimes du bombardement étendues dans la rue pleine de sang. 25 Mai 1938
  • 8.
    4 Rénovation du Marché Centralet Place du Marché Central à Alicante, 2010 Vues/ perspective Ouest La plupart des victimes furent enterrées dans les fosses comunes du cadre nº12 du Cimetière Municipale d’Alicante, sans pierre tombale ni plaque jusqu’à l’année 1995. 63 procès juridiques sont encore ouverts actuellemenent, demandant l’exumation des cadavres par les proches des victimes. Il restent encore 74 tombes à identifier. L’association des victimes du bombardement sous le nom: Victimes du bombardement franquiste du 25 Mai 1938, n’ est pas réconnue officiellment jusqu’en 2008. En 2010, une plaque commémorative de 50 x 30cm a été placé par la mairie d’Alicante sur le façade nord du marché. Le maire prononça un discours où les mots fasciste et front nationale ont été évoqués par première fois par une autorité en relation au bombardement. Profil gauche Profil droit Des volumes rudes. Un aménagement étrange par rapport au quartier, qui coupe l’axe centrale de l’avenue comme un terrain expropié par l’histoire. Un trou. La réconstruction du marché a effacé la mémoire. Les cyprès contre les palmiers, le betón contre les pavés clairs et les petits modules de jardins. Perspective Ouest
  • 9.
    5 Rénovation du Marché Centralet Place du Marché Central à Alicante, 2010 Toiture du marché/ détails Dans les années 50 le marché fut reconstruit entièrement identique à l’ancien marché, avec des matérieux de basse qualité. Cela engendra des nombreuses réparations, particulièrement de la structure métallique du toit qui souffre de dilations thermiques en été. Le cout total des réparations depuis sa réconstruction a été chiffré en 2009 de 585.789,32 euros. Selon les autorités republiquaines, en Mai 1938 le toit du marché a reçu l’impact de 21 obus. Structure du toit du marché Air de l’extérieur Schéma de protection du cube de l’eau Parcours de l’air Évacuation d’eau Détail du sol de l’espace vert sur le toit du marché
  • 10.
    6 Rénovation du Marché Centralet Place du Marché Central à Alicante, 2010 Plan sous sol / Perspective intérieure La mairie d’Alicante à lancé en avril 2010 un concours ouvert, pour la rénovation du Marché Central et la Place du Marché Central. Description: Surface terrain 9253,4m2 Budget: 2.145.256.56 € Surface espace vert: 2105 m2 Surface Marché: 825 m2 Limite de reception des projets 25/02/2011 Le marché sera reconverti en un marché spécialisé en produits d’alimentation bio. Le nombre des postes se réduira à une cinquième part du nombre de stands originaux, pour que le marché soit compétitif, avec un total de 44 stands. Les coopératives locales deviendront propiétaires des stands, ou seront le seul intermediaire avec le marché pour la distribution des produits, dans les cas ou les actuels propiétairs des stand qui veuillent les garder. Perspective intérieure du marché Façade Sud, où se situe l’entrée sud du marché
  • 11.
    7 Rénovation du Marché Centralet Place du Marché Central à Alicante, 2010 Cirque d’été Théatre Cinéma La Place du Marché d’avant-guerre, était un lieu de rencontre et le coeur culturel d’une ville qui commençait à croître au dela du port. Entre le Théatre Principale d’Alicante situé au Nord de la Place et le cinéma ‘‘El Monumental’’, qui projeté des films dans sur sa toiture en été, les terraces des bars occupaient une grand surface de la place. Perspective intérieur Sous sol Vue aérienne d’Alicante 1906 Théatre Principale D’Alicante en 1908. Théatre Principal d’Alicante actuellement. Bar du marché central, 1922 Perspective intérieure du sous-sol Façade Nord du Cinéma Monumental, 1923 Intérieur du cinéma Monumental
  • 12.
    8 Rénovation du Marché Centralet Place du Marché Central à Alicante, 2010 Perspective intérieur Théatre L’ancien Théatre Municipale D’Alicante fu inauguré en 1892. L’ édifice jamais reconstruit ni démoli complètement, reste toujours début, entouré de supermarchés et cybers-cafés. La dernière pièce joué a été La vida es sueño de Calderón de la barca (Nom de la rue ou est toujours le théatre) le 21 Avril 1938, en pleine guerre; un mois avant du bombardement, l’entrée a été gratuite. Après la guerre, la projection de films dans le salles a été interdite pendant deux ans en Espagne. Le 9 Mai de 1941 a été projeté au cinéma Monumental le premier film après-guerre à Alicante, il s’agissait de Raza; un film écrit par le propre Franco sous le pseudonyme de Jaime de Andrade. Bibliothèque Salle d’études Plan étage 1 Cinéma plein air. Session de nuit Perspective du théatre. Nuit L’accès aux gradins se fait a travers la marche située dans les latéraux de la toiture, en béton imprimé, selon le graphique. D’autre part on disposera d’une scène facillement démontable et stockable dans la loge. Cinéma plein air Salle d’études Plan étage 2 Perspective intérieure Distribution du public
  • 13.
    MAISON D’ÉTÉ DANSLA FORÊT DE BJERGSTERD 2011 à Stavanger, Norvège Stage chez SAARK architects
  • 14.
    10 Maison d’été Stage àSaark architects Stavanger, Norvège 2011 Situation/ Vues Maison d’été pour deux personnes. 2 étages, surface du terrain 50 m2, comble-grenier Matériaux: fresne lacqué, toiture de tuile en ardoise rouge. Fondation: élévation avec blocs de béton en masse. Terrain avec flanc d’eau à -1,25m. Client particulier. Sthétique des maison traditionnelles norvegiennes Randaberg Profil Est r ange Stav Plan situation. Forêt de Bjergsterd Façade Sud-est Profil Ouest Façade Nord-Ouest Maison d’été dans la forêt de Bejergsted. 1969
  • 15.
    11 Maison d’été Stage àSaark architects Stavanger, Norvège 2011 Plan étages / coupe Maison d’éte finie. Septembre 2011 Plan rez-de-chaussée Coupe Façade Nord-Ouest Plan étage 1 Hall escalier. Étage 1. Septembre 2011
  • 16.
    ÉCOLE ÉLÉMENTAIRE DEBOUDIB/ ÉCOLE POUR FEMMES ADULTES 2012 à Boudib, Maroc Volontariat Association Boudib et Tazoulait
  • 17.
    13 École Élémentaire/ École defemmes adultes, Boudib, Maroc 2012 Situation École Élémentaire pour accueillir un total de 60 élèves. La moyenne d’élèves maximum se trouve en CM2 avec un total de 11. Éviter le mélange des élèves de cours consécutifs en réduissant la taille des classes, suprimer les heures livres. Modules indépendants pour chaque classe. L’école ne compte pas avec des canalisations d’eau, ni d’électricité. Lumière naturelle. Cour ouverte. Horaires d’hiver: École élementaire: 7- 11.30h et 13-15h, femmes 15-17h. Horaires d’été: école élementaire 8-12.30h et de 14-16h, femmes de 1618h. Sortie du village de Boudib, route direction Errachidia. Avril 2012 Boudib Élèves de CM1 et CM2, à l’École de Boudib. Avril 2012 Situation de Boudib Bâtiment CP, CE1,CE2 Classe de CM1, CM2 Mosquée Actuel école de Boudib Femmes de 15 à 30 ans sans ocupation, en cours à l’école de Boubid. Avril 2012 Village de Boudib, 2012 Plan masse Ruines de l’ancien village de Boudib
  • 18.
    14 École Élémentaire/ École defemmes adultes, Boudib, Maroc 2012 Vues/Perspective Façade Nord Profil Ouest Perspective Sud Est Perspective Nord Ouest
  • 19.
    15 École Élémentaire/ École defemmes adultes, Boudib, Maroc 2012 Plan de masse/ Vues Façade Sud Plan de masse Il n’y a pas de mur qui sépare le village de l’école, la cour est donc ouverte au village. Profil Est
  • 20.
    16 École Élémentaire/ École femmesadultes, Boudib, Maroc 2012 Coupes A B Coupe B-B’ Niveau 2 A’ A B B A’ Niveau 1 Coupe A-A’ B’
  • 21.
    PROJET D’ÉXÉCUTION D’UN COMPLEXERÉSIDENTIEL: ARCHITECTURE, PARCELATION, STRUCTURE, INSTALLATIONS ET CANALISATIONS, LOGEMENTS ADAPTÉS. 2013 à Alicante, Espagne Projet de fin d’études à l’Université d’Alicante Programme Plan de masse Profil Est Façade Sud Façade Nord Profil Ouest Perspective principale Projet d’Ëxécution d’un bâtiment résidentiel, pour une habitation plurifamiliale: Sous-sol avec parking et débarra individuel, Rez-de-chaussée espace diaphane, 5 étages d’usage résidentiel dont un logement est adapté, Toiture accesible et parcelation avec piscine. - Surfaces construites au sol: Terrain: 2729 m2, Sous-sol: 694,34m2, Rez-de-chaussée: 244,45m2, Par étage : 277,21 m2, Toiture : 277,21 m2 - Surface habitable par étage d’usage résidentiel: 252,97m2 - Plans du projet: Structure, Instalation Electrique et Télécomunications, Résseau d’évacuation d’eau: Système séparatif de pluviales et usées. Canalisation d’eau avec panneaux solaires pour ECS.
  • 22.
    18 Projet Fin d’Études Universitéd’Alicante Execution de complexe résidentiel, 2013 Plan cotés/ Surfaces Plan rez-de-chaussée Plan Sous-sol Plan toiture
  • 23.
    19 Projet Fin d’Études Universitéd’Alicante Execution de complexe résidentiel, 2013 Plans cotés/Surfaces Plan étage type Plan étage adaptée
  • 24.
    20 Projet Fin d’Études Universitéd’Alicante Execution de complexe résidentiel, 2013 Plans structure Mur et semelle type Mur type Fondations Sous -sol Semelle type
  • 25.
    21 Projet Fin d’Études Universitéd’Alicante Execution de complexe résidentiel, 2013 Plans structure Coupe rez-de-chaussée Rez-de-chaussée Rez-de-chaussée +1m
  • 26.
    22 Projet Fin d’Études Universitéd’Alicante Execution de complexe résidentiel, 2013 Plans structure Portique principale Poutre type Étage type Pilier type
  • 27.
    23 Projet Fin d’Études Universitéd’Alicante Execution de complexe résidentiel, 2013 Plans électricité Illumination étage type Rez-de-chaussée Étage type Toiture
  • 28.
    24 Projet Fin d’Études Universitéd’Alicante Execution de complexe résidentiel, 2013 Plans Télécomunications Toiture Étage type Rez-de-chaussée
  • 29.
    25 Projet Fin d’Études Universitéd’Alicante Execution de complexe résidentiel, 2013 Plans de plomblerie/solaire ECS Toiture/ plaques solaires Étage type Rez-de-chaussée
  • 30.
    26 Projet Fin d’Études Universitéd’Alicante Execution de complexe résidentiel, 2013 Plans du résseau d’évacuation 5ême étage pluviales Sous-sol usées Toiture pluviales Étage type usées Rez de chaussée
  • 31.
    27 Projet Fin d’Études Universitéd’Alicante Execution de complexe résidentiel, 2013 Plans résseau de ventilation Rez-de-chaussée Sous-sol Étage type Toiture
  • 32.
    28 Cruce desde miventana. Avenida Jaime II/ calle Ramos Carratalá, Alicante, Espagne 2005 Sortie Sud de la gare St Charles à Marseille, 2011 Place St Jean à Lyon, 2011 Parque Antonio Machado, Soria, Espagne.2007
  • 33.
    29 Escaleras. Plaza Ramóny Cajal, Cúllar (Grenade), Espagne, 2011