Commune d’ORGERUS
AVANT-PROJET - Dossier de demande de subvention
1 sur 40
Commune d’ORGERUSPlace des Halles,
78 910 ORGERUS
Tel : 01 34 87 20 31 - Fax : 01 30 88 32 46
Courriel : mairie@orgerus.fr
Projets de travaux et d’aménagements
1. Création d’une sente piétonne rue de Béconcelle
2. Extension de la cantine scolaire
3. Aménagement d’un espace vert communal
4. Construction d’un tennis couvert
Commune d’ORGERUS
AVANT-PROJET - Dossier de demande de subvention
2 sur 40
TABLE DES MATIERES
1. DOSSIER GENERAL..........................................................................................................................................3
1.1 RAPPORT DE PRESENTATION.....................................................................................................................3
1.1.1 CONTEXTE GEOGRAPHIQUE .............................................................................................................................. 3
1.1.2 EQUIPEMENTS............................................................................................................................................... 4
1.1.3 DEPLACEMENTS............................................................................................................................................. 5
1.1.4 COMMERCES DE PROXIMITE, ARTISANS ET ENTREPRISES ET AGRICULTURE .................................................................... 5
1.1.5 PROFESSIONS DE SANTE................................................................................................................................... 6
1.1.6 MOTIVATIONS DE LA DEMANDE DE SUBVENTION ................................................................................................... 6
1.1.7 OBJECTIFS RECHERCHES ET ACTIONS PROJETEES AU TRAVERS DU CONTRAT D’AMENAGEMENT REGIONAL ET DU CONTRAT
DEPARTEMENTAL EQUIPEMENT.......................................................................................................................... 7
1.1.8 DELIBERATION DU CONSEIL MUNICIPAL ............................................................................................................... 8
2. DOSSIER PAR OPERATION ..............................................................................................................................8
2.1 SECURISER LA CIRCULATION : CREATION D’UNE SENTE PIETONNE RUE DE BECONCELLE .........................8
2.1.1 OBJET DU PROJET........................................................................................................................................... 8
2.1.2 LOCALISATION GEOGRAPHIQUE DU SITE ............................................................................................................... 8
2.1.3 DESCRIPTION DU PROJET.................................................................................................................................. 9
2.1.4 REPORTAGE PHOTOGRAPHIQUE DU SITE .............................................................................................................. 9
2.1.5 PLAN GENERAL D’AVANT-PROJET ..................................................................................................................... 12
2.1.6 ESTIMATION DES TRAVAUX............................................................................................................................. 13
2.2 AUGMENTER LA CAPACITE DE NOS INSTALLATIONS : EXTENSION DE LA CANTINE SCOLAIRE .................13
2.2.1 OBJET DU PROJET......................................................................................................................................... 13
2.2.2 LOCALISATION GEOGRAPHIQUE DU SITE ............................................................................................................. 13
2.2.3 DESCRIPTION DU PROJET................................................................................................................................ 14
2.2.4 REPORTAGE PHOTOGRAPHIQUE DU SITE ............................................................................................................ 14
2.2.5 PLAN GENERAL D’AVANT-PROJET ..................................................................................................................... 16
2.2.6 ESTIMATION DES TRAVAUX............................................................................................................................. 21
2.3 PROTEGER NOTRE « POUMON VERT » AU CŒUR DE NOTRE VILLAGE : REAMENAGEMENT D’UN ESPACE VERT
MUNICIPAL ...........................................................................................................................................................21
2.3.1 OBJET DU PROJET......................................................................................................................................... 21
2.3.2 LOCALISATION GEOGRAPHIQUE DU SITE ............................................................................................................. 21
2.3.3 DESCRIPTION DU PROJET................................................................................................................................ 22
2.3.4 REPORTAGE PHOTOGRAPHIQUE DU SITE ............................................................................................................ 22
2.3.5 PLAN GENERAL D’AVANT-PROJET ..................................................................................................................... 25
2.3.6 ESTIMATION DES TRAVAUX............................................................................................................................. 26
2.4 RENFORCER NOS ETABLISSEMENTS SPORTIFS : CONSTRUCTION D’UN TENNIS COUVERT......................26
2.4.1 OBJET DU PROJET......................................................................................................................................... 26
2.4.2 LOCALISATION GEOGRAPHIQUE DU SITE ............................................................................................................. 26
2.4.3 DESCRIPTION DU PROJET................................................................................................................................ 27
2.4.4 REPORTAGE PHOTOGRAPHIQUE DU SITE ............................................................................................................ 28
2.4.5 PLAN GENERAL D’AVANT-PROJET ..................................................................................................................... 31
2.4.6 ESTIMATION DES TRAVAUX............................................................................................................................. 33
Commune d’ORGERUS
AVANT-PROJET - Dossier de demande de subvention
3 sur 40
1. DOSSIER GENERAL
1.1 RAPPORT DE PRESENTATION
1.1.1 Contexte géographique
Orgerus est située dans le département des Yvelines à une soixantaine de kilomètres à l’ouest de Paris, à 42
Km de Versailles, à 30 Km de Dreux et à 11 Km de Houdan. Situé dans le canton de Bonnières-sur-Seine et
l’arrondissement de Mantes-la-Jolie dans les Yvelines, le village est adhérent de la Communauté de Communes du Pays
Houdanais (CCPH).
Commune de 2 390 habitants (selon le dernier relevé INSEE), elle doit cependant avoisiner les 2 500 habitants
compte tenu des 120 permis de construire délivrés depuis mars 2014. Le prochain recensement de la commune est
prévu début 2018. Située sur le plateau de Versailles, avec près de 90% de sa superficie en espaces naturels, agricoles
ou forestiers, la commune d’Orgerus est avant tout un territoire rural. Ces 1250 hectares environ (sur les 1434 que
compte la commune) se répartissent schématiquement entre 1/3 de forêt et 2/30 d’espaces agricoles :
 Au sud, la forêt des 4 Piliers, pointe nord du Massif forestier de Rambouillet, classé en forêt de protection, située
sur une partie de la commune
 A l'ouest une partie du bois du Teil limitrophe avec la commune de Tacoignières
 Au nord-ouest la forêt de la haute borne
 Les plaines agricoles constituent pour l'essentiel les frontières naturelles avec les communes limitrophes
Cette diversité du couvert végétal allié à un relief accentué qui offre des vues lointaines apportent une grande
qualité aux paysages d’Orgerus. Le territoire communal est traversé par l'Aqueduc de l'Avre, propriété de la ville de
Carte des Yvelines (78)
Sans échelle
ORGERUS
(78910)
Commune d’ORGERUS
AVANT-PROJET - Dossier de demande de subvention
4 sur 40
Paris, qui apporte l'eau de l'Avre vers les territoires de Saint Cloud et le ru du Moulin de l’Etang qui se jette au nord dans
la rivière la Flexanville.
Le village a la particularité d’avoir un centre bourg regroupant la mairie et de nombreux commerces de proximité
ainsi que la majorité des métiers de santé (listes reprises en annexe), un hameau appelé « Le Moutier » situé à environ
1km du centre bourg, avec l’Eglise Saint-Pierre-es-Liens d’Orgerus, classée aux monuments historiques et la gare SNCF,
deux lotissements :
 le Pré du Bourg qui jouxte le centre du village
 Sous le Parc, situé à proximité du hameau "Le Moutier"
Un terrain de football situé sur un terrain en partie boisé, sépare le centre bourg d’un quartier résidentiel appelé
« Le Parc ». Cet ensemble constitue l'agglomération de la commune, et au-delà, 6 hameaux complètent l’étendue du
village, éparpillés sur le territoire dont certains à quelques kilomètres du centre village. (Le Tremble, L’Arnière, La
Rolanderie, La Goupillerie, La Jouannerie, L’Aunay,). Orgerus dispose d’environ 26 km de voirie et 33 km de chemin
communaux. 6 Kilomètres séparent le hameau de la Rolanderie au Nord au Moutier au Sud.
1.1.2 Equipements
Bien qu’elle comprenne moins de 2500 habitants, Orgerus est un petit pôle urbain qui offre à ses habitants la
plupart des services nécessaires à la vie quotidienne et assure de ce fait, un rôle de centralité pour les petites communes
rurales de ses environs. C’est un pôle d'attractivité de la CCPH (2ème commune en nombre d'habitants) du fait
notamment qu’elle compte de nombreux équipements d'intérêts communal et intercommunal :
 les écoles (maternelle et élémentaire) situées dans le centre village, derrière la mairie. L'école maternelle "Le
Champ de la poussinière" a accueilli 77 enfants à la rentrée scolaire de 2017 et l'école élémentaire 146. Cette
dernière qui disposait de 5 classes au cours de l'année scolaire 2016 - 2017 a vu l'ouverture d'une classe
supplémentaire à la rentrée 2017
 La garderie périscolaire accueille 180 enfants en moyenne depuis le début de la rentrée scolaire et l'étude
surveillée (gratuite) une trentaine
 La cantine scolaire sert journellement 188 repas en moyenne dans des locaux construits en 2005 mais dont la
capacité a atteint son seuil critique (96 enfants par service, il en existe 2 aujourd'hui)
 Un Centre de Loisirs, compétence CCPH, construit également en 2005 par la commune, qui fait bloc avec la
cantine scolaire, d'une capacité de 60 enfants, a, lui, atteint ses limites car des enfants d'Orgerus ne peuvent le
fréquenter compte tenu des critères de priorité déterminés par la CCPH
 Un gymnase, compétence CCPH, qui accueille les associations sportives dont celles d'Orgerus (basket, tennis,
judo) ainsi que les écoles, moyennant paiement des heures d'utilisation (à la charge de la commune pour les
écoles)
 une salle polyvalente, propriété de la commune disposant d'une salle principale de 300m2 et de 5 salles allant
de 20m2 à 50m2 qui accueille gratuitement les activités des nombreuses associations, et permet l'organisation
de manifestations festives, caritatives et familiales
 Un collège prévu pour 600 élèves, accueillant les élèves d’Orgerus et des communes limitrophes, Béhoust,
Flexanville, Osmoy, Prunay-le-Temple, Septeuil, Tacoignières, Orvilliers, Saint Martin des Champs, Bazainville,
Mulcent, Courgent
 3 terrains de tennis non couverts et son "club house"
 un terrain de football (compétence CCPH)
 Une station d’épuration, située le long du ru du Moulin de l’Etang vers le village de Béhoust, gérée par le SIARO
(Syndicat Intercommunal d'Assainissement de la Région d'Orgerus regroupant 3 communes : Tacoignières,
Béhoust et Orgerus)
Commune d’ORGERUS
AVANT-PROJET - Dossier de demande de subvention
5 sur 40
1.1.3 Déplacements
Orgerus possède une gare ferroviaire, située sur la ligne Paris-Montparnasse - Dreux – Granville. Trois Routes
Départementales traversent le village :
 La Route Départementale 42 arrivant de Béhoust pour rejoindre Septeuil
 La Route Départementale 45 arrivant de Flexanville pour rejoindre Tacoignières
 La Route Départementale 130 démarrant à Orgerus (Rue du Poirier d’Argent) pour rejoindre Osmoy
Plus de 22 kms de routes sont des RPH (routes du Pays Houdanais), gérées par la Communauté de Communes.
Trois lignes régulières de bus sillonnent la commune :
 La ligne Express 67 : Houdan, Saint Quentin en Yvelines
 La ligne 2 : Dammartin en Serve, Montfort L’Amaury
 la ligne 55 : Thoiry Orgerus
1.1.4 Commerces de proximité, artisans et entreprises et agriculture
Comme signalé précédemment, l'attractivité est amplifiée par la présence de nombreux commerçants dans le
centre du village :
 2 boulangeries
 Une boucherie
 3 Salons de coiffure
 Un café tabac, journaux, brasserie
 Un restaurant Pizzeria
 Un caviste
 Une esthéticienne
 Un magasin d'habillement et mercerie
 Une boutique de plats à emporter et de restauration rapide
 Un magasin d'alimentation Coccimarket
 Une auto-école
 Un fleuriste
 Une banque
 2 garages automobiles
 2 agences immobilières
 Un bureau de poste
Une zone commerciale est installée en périphérie du village regroupant un Supermarché, un magasin de
Bricolage, une station essence, une blanchisserie industrielle. De nombreux artisans et entreprises sont également
installés sur la commune : plombiers, peintres, électriciens, entreprises de maçonnerie, de terrassement. Une ferme
traditionnelle est située sur la commune, près de la Place de la liberté (M Muret) et une ferme céréalière la ferme de
Moyencourt (M. Benoist).
Commune d’ORGERUS
AVANT-PROJET - Dossier de demande de subvention
6 sur 40
1.1.5 Professions de santé
Bien que de nombreux métiers de santé soient installés sur Orgerus, la commune a souffert comme beaucoup
d'autres du « désert médical ». De juillet 2015, date de départ des 2 médecins en exercice, il a fallu attendre septembre
2016 pour trouver des remplaçants. Les élus se sont énormément investis pour y arriver et la commune a dépensé + de
70 000,00€ pour réhabiliter un appartement qu'elle possédait pour le transformer en cabinet médical. Orgerus a dû
assumer seule cette dépense. Maintenant nous avons la satisfaction d'avoir un panel quasi complet de métiers liés à la
santé :
 Un cabinet médical situé Impasse des Ecoles regroupant 2 médecins généralistes
 Un cabinet d’infirmières
 Une psychologue
 Une pharmacie
 Un dentiste
 Les Ambulances Bleues
 3 kinésithérapeutes
 Un orthophoniste
 Deux ostéopathes
 Deux pédicures-podologues
 Une sage-femme
 Un cabinet vétérinaire
L’hôpital de Houdan est à 10 km et regroupe bons nombres de spécialistes, ainsi qu'une maison de retraite.
L’hôpital le plus proche pour les urgences est situé à Mantes-La-Jolie à 20 km.
1.1.6 Motivations de la demande de subvention
Localisée dans un environnement agréable, tant pour la qualité des paysages que pour la richesse de la
biodiversité et disposant de la présence des principales fonctions urbaines. Orgerus est une commune très attractive
pour y résider. La population de la commune est relativement âgée (recensement 2007). Le taux de personnes d'un âge
supérieur à 60 ans (21,9 %) est en effet supérieur au taux national (21,6 %) et au taux départemental (17,5 %).
Le futur recensement qui doit se dérouler en début d'année 2018 devrait confirmer une évolution sensible de la
population par rapport au précédent recensement, car nous constatons l'arrivée de jeunes familles qui s’installent
progressivement sur notre territoire.
Cette mixité de population intergénérationnelle avec des seniors actifs, des familles composées de jeunes
enfants et d'adolescents, caractérise l’offre de nos activités associatives qui au-delà de la compétition sportive, sont
très dirigées vers les activités de maintien physique, de la préservation de la santé et du bien-être, du développement
physique et de l’équilibre mental, mais également de l’enseignement de la citoyenneté et des valeurs du « vivre
ensemble ».
Avec l'école maternelle, l'école élémentaire et un collège, la commune d’Orgerus offre à ses habitants des
établissements scolaires de qualité, est proche d’une liaison ferroviaire, d’un réseau de bus et d’un réseau routier
départemental pour les déplacements vers les communes avoisinantes et les pôles d’activités économiques et urbains
de proximité.
Avec ses 27 d’associations sportives, culturelles et de loisirs, encadrées par des bénévoles dirigeants, animateurs
ou éducateurs sportifs et adhérents associatifs très dynamiques, la commune d’Orgerus offre un grand panel d’activités
pratiquées en majorité dans les espaces communaux mais également intercommunaux : basket ball, tennis de table,
course à pied, tennis, judo, musique, danse de salon, danse classique, ainsi que de multiples activités culturelles, de
détente et de loisirs permettant à nos administrés de « consommer" une activité communale de proximité. Cette
Commune d’ORGERUS
AVANT-PROJET - Dossier de demande de subvention
7 sur 40
capacité d’autonomie est un atout majeur pour l’économie de notre village et pour son développement. Malgré
l’éloignement physique de notre village des centres économiques urbains, cela nous permet de garder notre
authenticité rurale tout en conservant une dynamique de développement maîtrisé.
La commune dispose également d’une salle polyvalente « la salle du Pré Romain » avec de nombreuses salles
permettant aux associations communales la pratique régulière de leurs activités. Nous disposons également d'un
gymnase intercommunal utilisé par les associations d'intérêt communautaire et loué pour les autres associations
notamment celles de notre village ainsi qu'aux écoles. Ces équipements sont complétés par un stade de football où
évolue le FCRH (Football Club de la Région Houdanaise) et qui accueille aussi bien les entraînements que les matchs
officiels.
Cet équipement extérieur dispose d’un terrain annexe et un grand espace boisé (géré par la commune) qui est
un lieu très fréquenté par les Orgerusiens. C’est le poumon vert du village. Un lieu central pour la pratique des activités
de pleine nature (football, jeux de ballon, pétanque, course libre, …), mais également un lieu de libre accès et de jeu
pour les parents avec les jeunes enfants et les adolescents. Cet espace est également utilisé par la municipalité pour
l’accueil des manifestations festives. Nous comptons également parmi les équipements municipaux un club house pour
le tennis et trois tennis découverts à proximité des établissements scolaires : maternelle, élémentaire et collège.
Ce récapitulatif démontre s'il s'en faut l'attractivité de notre commune mais aussi le dynamisme qu'ont toujours
voulu entretenir les précédentes municipalités, œuvrant chacune à leur manière pour offrir un cadre de vie agréable
pour le bien-être de leurs administrés.
La municipalité en place, élue en juin 2015 après de nouvelles élections, a donc pour objectif de poursuivre le
développement réfléchi et harmonieux de la commune en corrélation avec les besoins grandissants liés notamment à
la forte urbanisation constatée depuis mars 2014 (120 nouveaux logements ont où sont en cours de construction). Cette
urbanisation galopante liée au PLU adopté en 2013 et amplifié par la loi ALUR n’est pas sans incidence sur les
infrastructures communales en général (puissance des réseaux électriques, assainissement, voirie et sécurité, utilisation
de la salle polyvalente, …). En parallèle l’augmentation de la circulation intramuros s’est développée pour des raisons
évidentes : la superficie du village oblige l’utilisation des véhicules pour accompagner les enfants aux écoles, au collège
ou/et se rendre à la gare très excentrée dans le hameau du moutier. A cela s’ajoutent les habitants des communes
environnantes qui traversent Orgerus pour se rendre à la gare qui dispose d'un "Parc Relais"
1.1.7 Objectifs recherchés et actions projetées au travers du Contrat d’Aménagement
Régional et du Contrat départemental équipement
Fort de ce constat, la Commune d’Orgerus désire réaliser un programme d’investissement pluriannuel selon 4
axes stratégiques :
 Sécuriser la circulation des piétons notamment sur les axes qui mènent à la gare et au centre du village, axes les
plus empruntés par les piétons afin d’encourager les administrés à ce type de déplacement sans pour autant être
contraints à marcher sur la route du fait de l’état dégradé des trottoirs ou de leur absence. Nous avons d’ailleurs
déjà procédé à la réfection des trottoirs de 2 rues très empruntées en direction de la gare et 2 autres rues sont
également en cours de rénovation (accès au centre village et au collège). Ces investissements s’inscrivent dans
le cadre du triennal
 augmenter la capacité de nos installations de restauration scolaire et extra-scolaire, car aujourd’hui, ce bâtiments
a atteint son seuil critique (on rappellera ici que nous avons ouvert une classe à la rentrée scolaire 2017), compte
tenu de l’augmentation des constructions et donc de notre population, même si nous n’en avons pas encore
appréhendé tous les effets (beaucoup de constructions ne sont pas encore achevées). Ceci est une preuve du
renouvellement de notre village et de son attractivité
 renforcer nos établissements sportifs. A ce jour, nous sommes dans une impasse pour répondre à la demande
croissante de nos administrés, sur la pratique de certaines activités sportives, due à la forte fréquentation du
gymnase qui est utilisé par le collège et par la CCPH et de la salle polyvalente, occupée par les nombreuses
associations (27) regroupant nos administrés et ceux de la plupart des villages environnants démunis de telles
installations
Commune d’ORGERUS
AVANT-PROJET - Dossier de demande de subvention
8 sur 40
 protéger notre "poumon vert" au cœur de notre village, en le réaménagement de tel sorte qu'il soit un espace
de rencontre intergénérationnel. Cela passe par son aménagement qui pourra accueillir un jardin pédagogique,
des jardins participatifs ainsi que des aires de jeux pour petits et adolescents qui n'existent pas à Orgerus pour
cette tranche d'âge (12 - 15 ans). Au-delà cela permettra aux résidents du quartier "du Parc" d'avoir une liaison
avec le centre économique du village, par l'aménagement d'une sente piétonne
Ces 4 axes stratégiques font l'objet des projets, développés plus précisément à la suite de cet exposé pour
lesquels nous sollicitons des subventions.
1.1.8 Délibération du conseil municipal
2. DOSSIER PAR OPERATION
2.1 SECURISER LA CIRCULATION : CREATION D’UNE SENTE PIETONNE RUE DE
BECONCELLE
2.1.1 Objet du projet
L’objet du projet est « Création d’une sente piétonne, enfouissement des réseaux aériens et installation
d’éclairage public dans la rue de Béconcelle ».
2.1.2 Localisation géographique du site
Mairie
Carte d’ORGERUS (78910)
Sans échelle Création d’une sente piétonne
rue de Béconcelle
Commune d’ORGERUS
AVANT-PROJET - Dossier de demande de subvention
9 sur 40
2.1.3 Description du projet
2.1.3.1 Contexte
La rue de Béconcelle est l’artère principale qui relie la RN 12 à Orgerus. Elle traverse pour cela la commune de
Bazainville. Si la circulation a toujours été dense sur cette voie, elle a fortement augmenté depuis l’installation sur la
commune d’Orgerus d’un « Parc Relais » tout à proximité de la gare située à la sortie de la rue de Béconcelle et, point
important, depuis la mise en place par la SNCF du cadencement (trains plus réguliers aux heures de pointe et plus
fréquents aux heures creuses). Au-delà, l’urbanisation le long de cette voie s’est développée depuis l’adoption du PLU
en 2013. Il existe environ 30 habitations le long de cette voie. Elle est donc empruntée par de nombreux piétons qui
rejoignent la gare et les administrés qui se rendent dans le massif forestier en lisière d’Orgerus.
La dangerosité de cette voie n’est plus à démontrer. Tronçon d’environ 900 mètres, emprunté par des voitures,
des camions et engins agricoles, il est constitué d’une route, très détériorée, sans bas-côtés, qui ne permet pas ainsi aux
piétons, allant vers la gare SNCF et vers le collège, de se mettre naturellement à l’abri lors des passages de véhicules.
De plus, l’insécurité est augmentée compte tenu de l’étroitesse de la voie et l’absence de visibilité à de nombreux
endroits en raison des virages qui se succèdent. On a pu recenser le passage de plus de 200 véhicules/heure aux heures
de pointe.
2.1.3.2 Motivations
La topographie de cette voie a été effectuée par un géomètre. A la lecture du document rendu, nous avons pu
constater que le tracé existant n’est pas conforme aux relevés cadastraux. A certains endroits les propriétés (terrains)
des riverains empiètent sur l’emprise publique et à d’autres, c’est le contraire. Ce projet intègre donc un recalibrage de
la route, l’achat de bandes de terrains aux riverains de 1 à 3 mètres afin de pouvoir intégrer une sente piétonne de 1,40
mètre.
Des maisons, implantées en bordure de voie ne permettront pas de construire une sente d’un seul tenant et il
est donc prévu une traversée et la continuité de la sente sur le côté opposé. Nous allons également profiter de ces
travaux pour réorienter l’écoulement des eaux pluviales afin d’éradiquer les inondations fréquentes lors de fortes pluies.
2.1.4 Reportage photographique du site
Commune d’ORGERUS
AVANT-PROJET - Dossier de demande de subvention
10 sur 40
Commune d’ORGERUS
AVANT-PROJET - Dossier de demande de subvention
11 sur 40
Commune d’ORGERUS
AVANT-PROJET - Dossier de demande de subvention
12 sur 40
2.1.5 Plan général d’avant-projet
Commune d’ORGERUS
AVANT-PROJET - Dossier de demande de subvention
13 sur 40
2.1.6 Estimation des travaux
Le coût global estimé des travaux (sente piétonne + enfouissement réseaux aériens +
éclairage public) s’élève à 1 024 170,00€ H.T. intégrant 5% d'aléas et les honoraires de la
maîtrise d'œuvre, du SPS et du bureau de contrôle.
2.2 AUGMENTER LA CAPACITE DE NOS INSTALLATIONS : EXTENSION DE LA CANTINE
SCOLAIRE
2.2.1 Objet du projet
L’objet du projet est « Extension de la cantine scolaire ».
2.2.2 Localisation géographique du site
Mairie
Carte d’ORGERUS (78910)
Sans échelle
Extension de la cantine scolaire
Ecole
Cantine scolaire
Mairie
Commune d’ORGERUS
AVANT-PROJET - Dossier de demande de subvention
14 sur 40
2.2.3 Description du projet
2.2.3.1 Contexte
Depuis la mise en place du PLU voté le 24 avril 2013 et le décret d'application de la loi ALUR, Orgerus est confrontée à une
urbanisation que l'on pourrait juger excessive eu égard aux infrastructures existantes.
Alors que le rythme de construction était sur la dernière décennie de 4,5 habitations par an, depuis mars 2014, 120
logements ont été construits ou sont en passe de l'être, sans compter les déclarations préalables enregistrées et les permis en
attente de traitement. La rentrée scolaire 2017 a été marquée par l'ouverture d'une classe supplémentaire en élémentaire compte
tenu de l'augmentation des effectifs qui sont passés de 135 à 146 enfants.
Dans ce contexte, la cantine a atteint son seuil critique car nous servons depuis la rentrée en moyenne 188 repas sur 2
services, la cantine ayant une capacité d'accueil au grand maximum de 96 places par service. Pour arriver à satisfaire au mieux
l'intérêt des enfants nous sommes dans l'obligation de scinder des classes pour associer les enfants de la maternelle avec une
partie des enfants de CP ce qui n'est pas optimal compte tenu de l'attention particulière que nous devons porter aux jeunes
enfants. L'organisation est donc assez difficile notamment lorsque les pics de fréquentation sont atteints.
2.2.3.2 Motivations
Bien que nous essayons de connaître la composition des familles lors de la demande de permis de construire, nous n'en
avons qu'une vue très parcellaire, compte tenu notamment du fait que très peu de particuliers déposent leur demande
directement (en général les demandes sont déposées par des constructeurs ou des architectes qui ne disposent pas de ces
informations).
Nous n'avons donc pas aujourd'hui la vision objective de l'augmentation du nombre d'enfants qui seront scolarisés à très
court terme mais considérons qu'il faut anticiper les besoins qui se dessinent.
C'est pourquoi nous envisageons d'agrandir la cantine scolaire pour doubler sa capacité. Si à court terme cela peut paraître
excessif, le bâtiment envisagé serait modulable pour une utilisation mixte (cantine et classe scolaire). Cette solution permettrait
ainsi d'avoir un local bien spécifique pour l'étude surveillée dispensée gratuitement par la commune, et qui depuis la rentrée pose
problème car il n'existe plus de classe "vide" disponible compte tenu de l'ouverture de la classe supplémentaire.
2.2.3.3 Implantation de l’extension de la cantine scolaire
Le groupe scolaire est composé de plusieurs bâtiments (maternelle, nouvelle école et ancienne école) et il existe des voies
de cheminements internes pour se rendre à la cantine. La construction envisagée serait élaborée dans l'enceinte de l'ancienne
école et ne devrait pas impacter la surface de la cour de récréation. De la sorte, le parcours des enfants est préservé, même
simplifié.
Pour ce qui concerne l'architecture des volumes avec l'extension, nous envisageons un petit bâtiment avec un toit en tuiles
à 2 pentes qui ne rejoindrait pas le grand toit existant sur cuisine et salle à manger, mais qui serait relié par un petit toit terrasse.
Cela pour ne pas toucher le bâtiment existant et limiter les coûts. Ce petit module intermédiaire pourrait être vitré et incorporerait
une porte de sortie directe sur la cour. L'ensemble des bâtiments scolaires et les surfaces annexes appartiennent à la mairie.
2.2.4 Reportage photographique du site
Commune d’ORGERUS
AVANT-PROJET - Dossier de demande de subvention
15 sur 40
Commune d’ORGERUS
AVANT-PROJET - Dossier de demande de subvention
16 sur 40
2.2.5 Plan général d’avant-projet
Commune d’ORGERUS
AVANT-PROJET - Dossier de demande de subvention
17 sur 40
Commune d’ORGERUS
AVANT-PROJET - Dossier de demande de subvention
18 sur 40
Commune d’ORGERUS
AVANT-PROJET - Dossier de demande de subvention
19 sur 40
Commune d’ORGERUS
AVANT-PROJET - Dossier de demande de subvention
20 sur 40
Commune d’ORGERUS
AVANT-PROJET - Dossier de demande de subvention
21 sur 40
2.2.6 Estimation des travaux
Le coût estimé des travaux s’élève à 457 200,00€ H.T. intégrant 5% d'aléas et les
honoraires de la maîtrise d'œuvre, du SPS et du bureau de contrôle..
2.3 PROTEGER NOTRE « POUMON VERT » AU CŒUR DE NOTRE VILLAGE : REAMENAGEMENT
D’UN ESPACE VERT MUNICIPAL
2.3.1 Objet du projet
L’objet du projet est « Réaménagement d’un espace vert municipal ».
2.3.2 Localisation géographique du site
Mairie
Carte d’ORGERUS (78910)
Sans échelle
Réaménagement d’un
espace vert municipal
Commune d’ORGERUS
AVANT-PROJET - Dossier de demande de subvention
22 sur 40
2.3.3 Description du projet
2.3.3.1 Motivations
Les motivations sont multiples :
 Aménager les espaces verts d’une façon ludique et accessible à tous : aux jeunes adolescents, aux sportifs, aux familles avec
des enfants et petits-enfants, ainsi qu’aux élèves de nos écoles et aux associations communales
 Redynamiser le site en proposant des infrastructures de qualité conformes aux normes de sécurité
 Proposer des équipements innovants pour les ados en respectant l’environnement naturel existant
 Favoriser la mobilité en proposant aux "habitants excentrés" une liaison sécurisée et rapide avec le centre économique du
village
 Favoriser les rencontres intergénérationnelles
 Protéger cet espace en partie boisé
2.3.3.2 Conception
 Aménagement du petit bois avec des jardins pédagogiques pour les écoliers ; création des espaces propices à l’éducation
environnementale pour le jeune public et faciliter la circulation du public dans un espace boisé préservé
 Réhabilitation du parcours VTT, BMX pour les jeunes sans nuire à l’esthétique du site
 Configuration de l’espace vert proche du stade de football avec des activités pour les enfants :
o Un skate parc pour la pratique des sports de glisse
o Des activités /jeux pour les enfants (3 à 6 ans et 6 à 12 ans)
o Des espaces pique-niques pour les parents, les promeneurs et randonneurs
o Une sente qui sera la continuité d’un nouveau sentier de randonnée pédestre qui traversera le stade pour aller
jusqu’au village afin de valoriser notre centre et favoriser la fréquentation de nos commerces
o Un jardin participatif collaboratif pour nos habitants et associations du village
Le terrain de football en annexe de notre stade restera ouvert au public pour la pratique des activités libres et l’accueil de
nos manifestations sportives et culturelles. Dans l’ensemble de cet aménagement, l’activité de la pétanque avec son terrain et la
facilité d’accès au site seront pris en compte.
2.3.4 Reportage photographique du site
Commune d’ORGERUS
AVANT-PROJET - Dossier de demande de subvention
23 sur 40
Commune d’ORGERUS
AVANT-PROJET - Dossier de demande de subvention
24 sur 40
Commune d’ORGERUS
AVANT-PROJET - Dossier de demande de subvention
25 sur 40
2.3.5 Plan général d’avant-projet
Commune d’ORGERUS
AVANT-PROJET - Dossier de demande de subvention
26 sur 40
2.3.6 Estimation des travaux
Le coût estimé des travaux s’élève à 505 200,00€ H.T. intégrant 5% d'aléas et les
honoraires de la maîtrise d'œuvre, du SPS et du bureau de contrôle.
2.4 RENFORCER NOS ETABLISSEMENTS SPORTIFS : CONSTRUCTION D’UN TENNIS COUVERT
2.4.1 Objet du projet
L’objet du projet est « Construction d’un tennis couvert ».
2.4.2 Localisation géographique du site
Mairie
Carte d’ORGERUS (78910)
Sans échelle Construction d’un
tennis couvert
Ateliers municipaux
Square
du Pré
Romain
Gymnase
Salle polyvalente
Commune d’ORGERUS
AVANT-PROJET - Dossier de demande de subvention
27 sur 40
2.4.3 Description du projet
2.4.3.1 Contexte
Alors qu'au début des années 2014, le Tennis Club d'Orgerus (TCO) comptait 241licenciés, il n'en possède plus aujourd'hui
que 131 dont 50% de jeunes de moins de 18 ans. Cette désaffection est liée à l'absence d'infrastructure couverte qui ne permet pas
aux adhérents de pratiquer leur activité en toute saison même si le TCO peut disposer de créneaux dans le gymnase (compétence
CCPH) mais ceux-ci ne sont pas souvent en adéquation avec la disponibilité des adhérents.
Le club ne dispose que de 3 courts extérieurs en béton poreux omnisports et le besoin de construction d’un nouvel
équipement devient vital afin d’assurer en priorité la continuité de l’école de tennis, l’équilibre entre la compétition et le loisir et
l’organisation ponctuelle d’événements sportifs et éducatifs.
La dynamique du club repose sur les structures existantes mais également sur des équipes dirigeantes et des équipes
pédagogiques performantes. Ces équipes, très engagées permettent aux adhérents jeunes et adultes de réaliser de nombreux
résultats sportifs sans négliger pour autant la population qui pratique plutôt un sport de loisir, mais qui est certainement insatisfaite
par l’absence de structures couvertes. Le club du TC ORGERUS est une des associations phares de la commune et est responsable
de l’emploi d’enseignants professionnels. Emplois qui ne pourront être pérennisés que par la mise à disposition d’un équipement
couvert. Faute de moyens le Club a été dans l'obligation de licencier un des deux éducateurs.
"Quelques chiffres clés au niveau national :
 Le club affilié moyen est de 135 licenciés avec 4 courts dont 1 couvert
 La moyenne nationale est de 122 licenciés par court couvert (100 licenciés étant le seuil idéal à atteindre pour trouver un
équilibre entre le loisir et la compétition)
 + 36,8 % est la progression moyenne des clubs réceptionnant un 1er court couvert
 L’espace de vie moyen est de 92 m² avec 2 licencié/m²… Le club comptait près de 300 licenciés il y a moins de 10 ans ;
l’absence de structures couvertes et la présence de courts couverts dans les villes proches sont une des explications à la
baisse des adhérents"
JEUNES / ADULTES 2014 2015 2016 2017
effectif effectif effectif effectif
Adultes 96 72 88 61
Jeunes 145 201 85 74
Total 241 273 173 135
Commune d’ORGERUS
AVANT-PROJET - Dossier de demande de subvention
28 sur 40
2.4.3.2 Motivations
Les motivations sont multiples :
 Proposer aux licenciés et non licenciés une activité tennistique dans de bonnes conditions notamment en périodes de
conditions climatiques défavorables
 Dynamiser l'économie locale et conserver l’attractivité de notre village
 Offrir la possibilité au Tennis Club d’Orgerus de retrouver son rayonnement et son niveau d'adhérents qui est en baisse
constante
 Libérer des créneaux horaires du gymnase pour la pratique d'activités des autres associations
 Favoriser la pratique du tennis dans le cadre du sport scolaire de l’école élémentaire et du collège
2.4.3.3 Conception
Ce bâtiment sera conçu de manière à ce qu'il s'intègre parfaitement dans son environnement, avec une valorisation
environnementale du bâtiment pour une pratique responsable et économe. Cet équipement permettra aux gestionnaires de
l’ensemble des bâtiments communaux de mieux répartir les activités entre les associations et favoriser une pratique sécurisée.
2.4.3.4 Implantation
Le terrain de tennis couvert sera construit à proximité des bâtiments scolaires (écoles et collège), à proximité du gymnase et
de la salle polyvalente sur un terrain appartenant à la commune.
2.4.4 Reportage photographique du site
Commune d’ORGERUS
AVANT-PROJET - Dossier de demande de subvention
29 sur 40
Commune d’ORGERUS
AVANT-PROJET - Dossier de demande de subvention
30 sur 40
Commune d’ORGERUS
AVANT-PROJET - Dossier de demande de subvention
31 sur 40
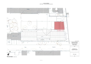
2.4.5 Plan général d’avant-projet
Commune d’ORGERUS
AVANT-PROJET - Dossier de demande de subvention
32 sur 40
2.4.6 Estimation des travaux
Le coût estimé des travaux s’élève à 720 000,00€ H.T. intégrant 5% d'aléas et les
honoraires de la maîtrise d'œuvre, du SPS et du bureau de contrôle.
Note
***
L’étude correspond à une réflexion globale sur l’amélioration du cadre de vie des
habitants et l’évolution de la population pour les années à venir. Le caractère
environnemental et durable de ces projets reste une préoccupation majeure et une
réelle volonté du conseil municipal d’investir dans ce domaine.
***

Présentation du projet d'aménagement

  • 1.
    Commune d’ORGERUS AVANT-PROJET -Dossier de demande de subvention 1 sur 40 Commune d’ORGERUSPlace des Halles, 78 910 ORGERUS Tel : 01 34 87 20 31 - Fax : 01 30 88 32 46 Courriel : mairie@orgerus.fr Projets de travaux et d’aménagements 1. Création d’une sente piétonne rue de Béconcelle 2. Extension de la cantine scolaire 3. Aménagement d’un espace vert communal 4. Construction d’un tennis couvert
  • 2.
    Commune d’ORGERUS AVANT-PROJET -Dossier de demande de subvention 2 sur 40 TABLE DES MATIERES 1. DOSSIER GENERAL..........................................................................................................................................3 1.1 RAPPORT DE PRESENTATION.....................................................................................................................3 1.1.1 CONTEXTE GEOGRAPHIQUE .............................................................................................................................. 3 1.1.2 EQUIPEMENTS............................................................................................................................................... 4 1.1.3 DEPLACEMENTS............................................................................................................................................. 5 1.1.4 COMMERCES DE PROXIMITE, ARTISANS ET ENTREPRISES ET AGRICULTURE .................................................................... 5 1.1.5 PROFESSIONS DE SANTE................................................................................................................................... 6 1.1.6 MOTIVATIONS DE LA DEMANDE DE SUBVENTION ................................................................................................... 6 1.1.7 OBJECTIFS RECHERCHES ET ACTIONS PROJETEES AU TRAVERS DU CONTRAT D’AMENAGEMENT REGIONAL ET DU CONTRAT DEPARTEMENTAL EQUIPEMENT.......................................................................................................................... 7 1.1.8 DELIBERATION DU CONSEIL MUNICIPAL ............................................................................................................... 8 2. DOSSIER PAR OPERATION ..............................................................................................................................8 2.1 SECURISER LA CIRCULATION : CREATION D’UNE SENTE PIETONNE RUE DE BECONCELLE .........................8 2.1.1 OBJET DU PROJET........................................................................................................................................... 8 2.1.2 LOCALISATION GEOGRAPHIQUE DU SITE ............................................................................................................... 8 2.1.3 DESCRIPTION DU PROJET.................................................................................................................................. 9 2.1.4 REPORTAGE PHOTOGRAPHIQUE DU SITE .............................................................................................................. 9 2.1.5 PLAN GENERAL D’AVANT-PROJET ..................................................................................................................... 12 2.1.6 ESTIMATION DES TRAVAUX............................................................................................................................. 13 2.2 AUGMENTER LA CAPACITE DE NOS INSTALLATIONS : EXTENSION DE LA CANTINE SCOLAIRE .................13 2.2.1 OBJET DU PROJET......................................................................................................................................... 13 2.2.2 LOCALISATION GEOGRAPHIQUE DU SITE ............................................................................................................. 13 2.2.3 DESCRIPTION DU PROJET................................................................................................................................ 14 2.2.4 REPORTAGE PHOTOGRAPHIQUE DU SITE ............................................................................................................ 14 2.2.5 PLAN GENERAL D’AVANT-PROJET ..................................................................................................................... 16 2.2.6 ESTIMATION DES TRAVAUX............................................................................................................................. 21 2.3 PROTEGER NOTRE « POUMON VERT » AU CŒUR DE NOTRE VILLAGE : REAMENAGEMENT D’UN ESPACE VERT MUNICIPAL ...........................................................................................................................................................21 2.3.1 OBJET DU PROJET......................................................................................................................................... 21 2.3.2 LOCALISATION GEOGRAPHIQUE DU SITE ............................................................................................................. 21 2.3.3 DESCRIPTION DU PROJET................................................................................................................................ 22 2.3.4 REPORTAGE PHOTOGRAPHIQUE DU SITE ............................................................................................................ 22 2.3.5 PLAN GENERAL D’AVANT-PROJET ..................................................................................................................... 25 2.3.6 ESTIMATION DES TRAVAUX............................................................................................................................. 26 2.4 RENFORCER NOS ETABLISSEMENTS SPORTIFS : CONSTRUCTION D’UN TENNIS COUVERT......................26 2.4.1 OBJET DU PROJET......................................................................................................................................... 26 2.4.2 LOCALISATION GEOGRAPHIQUE DU SITE ............................................................................................................. 26 2.4.3 DESCRIPTION DU PROJET................................................................................................................................ 27 2.4.4 REPORTAGE PHOTOGRAPHIQUE DU SITE ............................................................................................................ 28 2.4.5 PLAN GENERAL D’AVANT-PROJET ..................................................................................................................... 31 2.4.6 ESTIMATION DES TRAVAUX............................................................................................................................. 33
  • 3.
    Commune d’ORGERUS AVANT-PROJET -Dossier de demande de subvention 3 sur 40 1. DOSSIER GENERAL 1.1 RAPPORT DE PRESENTATION 1.1.1 Contexte géographique Orgerus est située dans le département des Yvelines à une soixantaine de kilomètres à l’ouest de Paris, à 42 Km de Versailles, à 30 Km de Dreux et à 11 Km de Houdan. Situé dans le canton de Bonnières-sur-Seine et l’arrondissement de Mantes-la-Jolie dans les Yvelines, le village est adhérent de la Communauté de Communes du Pays Houdanais (CCPH). Commune de 2 390 habitants (selon le dernier relevé INSEE), elle doit cependant avoisiner les 2 500 habitants compte tenu des 120 permis de construire délivrés depuis mars 2014. Le prochain recensement de la commune est prévu début 2018. Située sur le plateau de Versailles, avec près de 90% de sa superficie en espaces naturels, agricoles ou forestiers, la commune d’Orgerus est avant tout un territoire rural. Ces 1250 hectares environ (sur les 1434 que compte la commune) se répartissent schématiquement entre 1/3 de forêt et 2/30 d’espaces agricoles :  Au sud, la forêt des 4 Piliers, pointe nord du Massif forestier de Rambouillet, classé en forêt de protection, située sur une partie de la commune  A l'ouest une partie du bois du Teil limitrophe avec la commune de Tacoignières  Au nord-ouest la forêt de la haute borne  Les plaines agricoles constituent pour l'essentiel les frontières naturelles avec les communes limitrophes Cette diversité du couvert végétal allié à un relief accentué qui offre des vues lointaines apportent une grande qualité aux paysages d’Orgerus. Le territoire communal est traversé par l'Aqueduc de l'Avre, propriété de la ville de Carte des Yvelines (78) Sans échelle ORGERUS (78910)
  • 4.
    Commune d’ORGERUS AVANT-PROJET -Dossier de demande de subvention 4 sur 40 Paris, qui apporte l'eau de l'Avre vers les territoires de Saint Cloud et le ru du Moulin de l’Etang qui se jette au nord dans la rivière la Flexanville. Le village a la particularité d’avoir un centre bourg regroupant la mairie et de nombreux commerces de proximité ainsi que la majorité des métiers de santé (listes reprises en annexe), un hameau appelé « Le Moutier » situé à environ 1km du centre bourg, avec l’Eglise Saint-Pierre-es-Liens d’Orgerus, classée aux monuments historiques et la gare SNCF, deux lotissements :  le Pré du Bourg qui jouxte le centre du village  Sous le Parc, situé à proximité du hameau "Le Moutier" Un terrain de football situé sur un terrain en partie boisé, sépare le centre bourg d’un quartier résidentiel appelé « Le Parc ». Cet ensemble constitue l'agglomération de la commune, et au-delà, 6 hameaux complètent l’étendue du village, éparpillés sur le territoire dont certains à quelques kilomètres du centre village. (Le Tremble, L’Arnière, La Rolanderie, La Goupillerie, La Jouannerie, L’Aunay,). Orgerus dispose d’environ 26 km de voirie et 33 km de chemin communaux. 6 Kilomètres séparent le hameau de la Rolanderie au Nord au Moutier au Sud. 1.1.2 Equipements Bien qu’elle comprenne moins de 2500 habitants, Orgerus est un petit pôle urbain qui offre à ses habitants la plupart des services nécessaires à la vie quotidienne et assure de ce fait, un rôle de centralité pour les petites communes rurales de ses environs. C’est un pôle d'attractivité de la CCPH (2ème commune en nombre d'habitants) du fait notamment qu’elle compte de nombreux équipements d'intérêts communal et intercommunal :  les écoles (maternelle et élémentaire) situées dans le centre village, derrière la mairie. L'école maternelle "Le Champ de la poussinière" a accueilli 77 enfants à la rentrée scolaire de 2017 et l'école élémentaire 146. Cette dernière qui disposait de 5 classes au cours de l'année scolaire 2016 - 2017 a vu l'ouverture d'une classe supplémentaire à la rentrée 2017  La garderie périscolaire accueille 180 enfants en moyenne depuis le début de la rentrée scolaire et l'étude surveillée (gratuite) une trentaine  La cantine scolaire sert journellement 188 repas en moyenne dans des locaux construits en 2005 mais dont la capacité a atteint son seuil critique (96 enfants par service, il en existe 2 aujourd'hui)  Un Centre de Loisirs, compétence CCPH, construit également en 2005 par la commune, qui fait bloc avec la cantine scolaire, d'une capacité de 60 enfants, a, lui, atteint ses limites car des enfants d'Orgerus ne peuvent le fréquenter compte tenu des critères de priorité déterminés par la CCPH  Un gymnase, compétence CCPH, qui accueille les associations sportives dont celles d'Orgerus (basket, tennis, judo) ainsi que les écoles, moyennant paiement des heures d'utilisation (à la charge de la commune pour les écoles)  une salle polyvalente, propriété de la commune disposant d'une salle principale de 300m2 et de 5 salles allant de 20m2 à 50m2 qui accueille gratuitement les activités des nombreuses associations, et permet l'organisation de manifestations festives, caritatives et familiales  Un collège prévu pour 600 élèves, accueillant les élèves d’Orgerus et des communes limitrophes, Béhoust, Flexanville, Osmoy, Prunay-le-Temple, Septeuil, Tacoignières, Orvilliers, Saint Martin des Champs, Bazainville, Mulcent, Courgent  3 terrains de tennis non couverts et son "club house"  un terrain de football (compétence CCPH)  Une station d’épuration, située le long du ru du Moulin de l’Etang vers le village de Béhoust, gérée par le SIARO (Syndicat Intercommunal d'Assainissement de la Région d'Orgerus regroupant 3 communes : Tacoignières, Béhoust et Orgerus)
  • 5.
    Commune d’ORGERUS AVANT-PROJET -Dossier de demande de subvention 5 sur 40 1.1.3 Déplacements Orgerus possède une gare ferroviaire, située sur la ligne Paris-Montparnasse - Dreux – Granville. Trois Routes Départementales traversent le village :  La Route Départementale 42 arrivant de Béhoust pour rejoindre Septeuil  La Route Départementale 45 arrivant de Flexanville pour rejoindre Tacoignières  La Route Départementale 130 démarrant à Orgerus (Rue du Poirier d’Argent) pour rejoindre Osmoy Plus de 22 kms de routes sont des RPH (routes du Pays Houdanais), gérées par la Communauté de Communes. Trois lignes régulières de bus sillonnent la commune :  La ligne Express 67 : Houdan, Saint Quentin en Yvelines  La ligne 2 : Dammartin en Serve, Montfort L’Amaury  la ligne 55 : Thoiry Orgerus 1.1.4 Commerces de proximité, artisans et entreprises et agriculture Comme signalé précédemment, l'attractivité est amplifiée par la présence de nombreux commerçants dans le centre du village :  2 boulangeries  Une boucherie  3 Salons de coiffure  Un café tabac, journaux, brasserie  Un restaurant Pizzeria  Un caviste  Une esthéticienne  Un magasin d'habillement et mercerie  Une boutique de plats à emporter et de restauration rapide  Un magasin d'alimentation Coccimarket  Une auto-école  Un fleuriste  Une banque  2 garages automobiles  2 agences immobilières  Un bureau de poste Une zone commerciale est installée en périphérie du village regroupant un Supermarché, un magasin de Bricolage, une station essence, une blanchisserie industrielle. De nombreux artisans et entreprises sont également installés sur la commune : plombiers, peintres, électriciens, entreprises de maçonnerie, de terrassement. Une ferme traditionnelle est située sur la commune, près de la Place de la liberté (M Muret) et une ferme céréalière la ferme de Moyencourt (M. Benoist).
  • 6.
    Commune d’ORGERUS AVANT-PROJET -Dossier de demande de subvention 6 sur 40 1.1.5 Professions de santé Bien que de nombreux métiers de santé soient installés sur Orgerus, la commune a souffert comme beaucoup d'autres du « désert médical ». De juillet 2015, date de départ des 2 médecins en exercice, il a fallu attendre septembre 2016 pour trouver des remplaçants. Les élus se sont énormément investis pour y arriver et la commune a dépensé + de 70 000,00€ pour réhabiliter un appartement qu'elle possédait pour le transformer en cabinet médical. Orgerus a dû assumer seule cette dépense. Maintenant nous avons la satisfaction d'avoir un panel quasi complet de métiers liés à la santé :  Un cabinet médical situé Impasse des Ecoles regroupant 2 médecins généralistes  Un cabinet d’infirmières  Une psychologue  Une pharmacie  Un dentiste  Les Ambulances Bleues  3 kinésithérapeutes  Un orthophoniste  Deux ostéopathes  Deux pédicures-podologues  Une sage-femme  Un cabinet vétérinaire L’hôpital de Houdan est à 10 km et regroupe bons nombres de spécialistes, ainsi qu'une maison de retraite. L’hôpital le plus proche pour les urgences est situé à Mantes-La-Jolie à 20 km. 1.1.6 Motivations de la demande de subvention Localisée dans un environnement agréable, tant pour la qualité des paysages que pour la richesse de la biodiversité et disposant de la présence des principales fonctions urbaines. Orgerus est une commune très attractive pour y résider. La population de la commune est relativement âgée (recensement 2007). Le taux de personnes d'un âge supérieur à 60 ans (21,9 %) est en effet supérieur au taux national (21,6 %) et au taux départemental (17,5 %). Le futur recensement qui doit se dérouler en début d'année 2018 devrait confirmer une évolution sensible de la population par rapport au précédent recensement, car nous constatons l'arrivée de jeunes familles qui s’installent progressivement sur notre territoire. Cette mixité de population intergénérationnelle avec des seniors actifs, des familles composées de jeunes enfants et d'adolescents, caractérise l’offre de nos activités associatives qui au-delà de la compétition sportive, sont très dirigées vers les activités de maintien physique, de la préservation de la santé et du bien-être, du développement physique et de l’équilibre mental, mais également de l’enseignement de la citoyenneté et des valeurs du « vivre ensemble ». Avec l'école maternelle, l'école élémentaire et un collège, la commune d’Orgerus offre à ses habitants des établissements scolaires de qualité, est proche d’une liaison ferroviaire, d’un réseau de bus et d’un réseau routier départemental pour les déplacements vers les communes avoisinantes et les pôles d’activités économiques et urbains de proximité. Avec ses 27 d’associations sportives, culturelles et de loisirs, encadrées par des bénévoles dirigeants, animateurs ou éducateurs sportifs et adhérents associatifs très dynamiques, la commune d’Orgerus offre un grand panel d’activités pratiquées en majorité dans les espaces communaux mais également intercommunaux : basket ball, tennis de table, course à pied, tennis, judo, musique, danse de salon, danse classique, ainsi que de multiples activités culturelles, de détente et de loisirs permettant à nos administrés de « consommer" une activité communale de proximité. Cette
  • 7.
    Commune d’ORGERUS AVANT-PROJET -Dossier de demande de subvention 7 sur 40 capacité d’autonomie est un atout majeur pour l’économie de notre village et pour son développement. Malgré l’éloignement physique de notre village des centres économiques urbains, cela nous permet de garder notre authenticité rurale tout en conservant une dynamique de développement maîtrisé. La commune dispose également d’une salle polyvalente « la salle du Pré Romain » avec de nombreuses salles permettant aux associations communales la pratique régulière de leurs activités. Nous disposons également d'un gymnase intercommunal utilisé par les associations d'intérêt communautaire et loué pour les autres associations notamment celles de notre village ainsi qu'aux écoles. Ces équipements sont complétés par un stade de football où évolue le FCRH (Football Club de la Région Houdanaise) et qui accueille aussi bien les entraînements que les matchs officiels. Cet équipement extérieur dispose d’un terrain annexe et un grand espace boisé (géré par la commune) qui est un lieu très fréquenté par les Orgerusiens. C’est le poumon vert du village. Un lieu central pour la pratique des activités de pleine nature (football, jeux de ballon, pétanque, course libre, …), mais également un lieu de libre accès et de jeu pour les parents avec les jeunes enfants et les adolescents. Cet espace est également utilisé par la municipalité pour l’accueil des manifestations festives. Nous comptons également parmi les équipements municipaux un club house pour le tennis et trois tennis découverts à proximité des établissements scolaires : maternelle, élémentaire et collège. Ce récapitulatif démontre s'il s'en faut l'attractivité de notre commune mais aussi le dynamisme qu'ont toujours voulu entretenir les précédentes municipalités, œuvrant chacune à leur manière pour offrir un cadre de vie agréable pour le bien-être de leurs administrés. La municipalité en place, élue en juin 2015 après de nouvelles élections, a donc pour objectif de poursuivre le développement réfléchi et harmonieux de la commune en corrélation avec les besoins grandissants liés notamment à la forte urbanisation constatée depuis mars 2014 (120 nouveaux logements ont où sont en cours de construction). Cette urbanisation galopante liée au PLU adopté en 2013 et amplifié par la loi ALUR n’est pas sans incidence sur les infrastructures communales en général (puissance des réseaux électriques, assainissement, voirie et sécurité, utilisation de la salle polyvalente, …). En parallèle l’augmentation de la circulation intramuros s’est développée pour des raisons évidentes : la superficie du village oblige l’utilisation des véhicules pour accompagner les enfants aux écoles, au collège ou/et se rendre à la gare très excentrée dans le hameau du moutier. A cela s’ajoutent les habitants des communes environnantes qui traversent Orgerus pour se rendre à la gare qui dispose d'un "Parc Relais" 1.1.7 Objectifs recherchés et actions projetées au travers du Contrat d’Aménagement Régional et du Contrat départemental équipement Fort de ce constat, la Commune d’Orgerus désire réaliser un programme d’investissement pluriannuel selon 4 axes stratégiques :  Sécuriser la circulation des piétons notamment sur les axes qui mènent à la gare et au centre du village, axes les plus empruntés par les piétons afin d’encourager les administrés à ce type de déplacement sans pour autant être contraints à marcher sur la route du fait de l’état dégradé des trottoirs ou de leur absence. Nous avons d’ailleurs déjà procédé à la réfection des trottoirs de 2 rues très empruntées en direction de la gare et 2 autres rues sont également en cours de rénovation (accès au centre village et au collège). Ces investissements s’inscrivent dans le cadre du triennal  augmenter la capacité de nos installations de restauration scolaire et extra-scolaire, car aujourd’hui, ce bâtiments a atteint son seuil critique (on rappellera ici que nous avons ouvert une classe à la rentrée scolaire 2017), compte tenu de l’augmentation des constructions et donc de notre population, même si nous n’en avons pas encore appréhendé tous les effets (beaucoup de constructions ne sont pas encore achevées). Ceci est une preuve du renouvellement de notre village et de son attractivité  renforcer nos établissements sportifs. A ce jour, nous sommes dans une impasse pour répondre à la demande croissante de nos administrés, sur la pratique de certaines activités sportives, due à la forte fréquentation du gymnase qui est utilisé par le collège et par la CCPH et de la salle polyvalente, occupée par les nombreuses associations (27) regroupant nos administrés et ceux de la plupart des villages environnants démunis de telles installations
  • 8.
    Commune d’ORGERUS AVANT-PROJET -Dossier de demande de subvention 8 sur 40  protéger notre "poumon vert" au cœur de notre village, en le réaménagement de tel sorte qu'il soit un espace de rencontre intergénérationnel. Cela passe par son aménagement qui pourra accueillir un jardin pédagogique, des jardins participatifs ainsi que des aires de jeux pour petits et adolescents qui n'existent pas à Orgerus pour cette tranche d'âge (12 - 15 ans). Au-delà cela permettra aux résidents du quartier "du Parc" d'avoir une liaison avec le centre économique du village, par l'aménagement d'une sente piétonne Ces 4 axes stratégiques font l'objet des projets, développés plus précisément à la suite de cet exposé pour lesquels nous sollicitons des subventions. 1.1.8 Délibération du conseil municipal 2. DOSSIER PAR OPERATION 2.1 SECURISER LA CIRCULATION : CREATION D’UNE SENTE PIETONNE RUE DE BECONCELLE 2.1.1 Objet du projet L’objet du projet est « Création d’une sente piétonne, enfouissement des réseaux aériens et installation d’éclairage public dans la rue de Béconcelle ». 2.1.2 Localisation géographique du site Mairie Carte d’ORGERUS (78910) Sans échelle Création d’une sente piétonne rue de Béconcelle
  • 9.
    Commune d’ORGERUS AVANT-PROJET -Dossier de demande de subvention 9 sur 40 2.1.3 Description du projet 2.1.3.1 Contexte La rue de Béconcelle est l’artère principale qui relie la RN 12 à Orgerus. Elle traverse pour cela la commune de Bazainville. Si la circulation a toujours été dense sur cette voie, elle a fortement augmenté depuis l’installation sur la commune d’Orgerus d’un « Parc Relais » tout à proximité de la gare située à la sortie de la rue de Béconcelle et, point important, depuis la mise en place par la SNCF du cadencement (trains plus réguliers aux heures de pointe et plus fréquents aux heures creuses). Au-delà, l’urbanisation le long de cette voie s’est développée depuis l’adoption du PLU en 2013. Il existe environ 30 habitations le long de cette voie. Elle est donc empruntée par de nombreux piétons qui rejoignent la gare et les administrés qui se rendent dans le massif forestier en lisière d’Orgerus. La dangerosité de cette voie n’est plus à démontrer. Tronçon d’environ 900 mètres, emprunté par des voitures, des camions et engins agricoles, il est constitué d’une route, très détériorée, sans bas-côtés, qui ne permet pas ainsi aux piétons, allant vers la gare SNCF et vers le collège, de se mettre naturellement à l’abri lors des passages de véhicules. De plus, l’insécurité est augmentée compte tenu de l’étroitesse de la voie et l’absence de visibilité à de nombreux endroits en raison des virages qui se succèdent. On a pu recenser le passage de plus de 200 véhicules/heure aux heures de pointe. 2.1.3.2 Motivations La topographie de cette voie a été effectuée par un géomètre. A la lecture du document rendu, nous avons pu constater que le tracé existant n’est pas conforme aux relevés cadastraux. A certains endroits les propriétés (terrains) des riverains empiètent sur l’emprise publique et à d’autres, c’est le contraire. Ce projet intègre donc un recalibrage de la route, l’achat de bandes de terrains aux riverains de 1 à 3 mètres afin de pouvoir intégrer une sente piétonne de 1,40 mètre. Des maisons, implantées en bordure de voie ne permettront pas de construire une sente d’un seul tenant et il est donc prévu une traversée et la continuité de la sente sur le côté opposé. Nous allons également profiter de ces travaux pour réorienter l’écoulement des eaux pluviales afin d’éradiquer les inondations fréquentes lors de fortes pluies. 2.1.4 Reportage photographique du site
  • 10.
    Commune d’ORGERUS AVANT-PROJET -Dossier de demande de subvention 10 sur 40
  • 11.
    Commune d’ORGERUS AVANT-PROJET -Dossier de demande de subvention 11 sur 40
  • 12.
    Commune d’ORGERUS AVANT-PROJET -Dossier de demande de subvention 12 sur 40 2.1.5 Plan général d’avant-projet
  • 13.
    Commune d’ORGERUS AVANT-PROJET -Dossier de demande de subvention 13 sur 40 2.1.6 Estimation des travaux Le coût global estimé des travaux (sente piétonne + enfouissement réseaux aériens + éclairage public) s’élève à 1 024 170,00€ H.T. intégrant 5% d'aléas et les honoraires de la maîtrise d'œuvre, du SPS et du bureau de contrôle. 2.2 AUGMENTER LA CAPACITE DE NOS INSTALLATIONS : EXTENSION DE LA CANTINE SCOLAIRE 2.2.1 Objet du projet L’objet du projet est « Extension de la cantine scolaire ». 2.2.2 Localisation géographique du site Mairie Carte d’ORGERUS (78910) Sans échelle Extension de la cantine scolaire Ecole Cantine scolaire Mairie
  • 14.
    Commune d’ORGERUS AVANT-PROJET -Dossier de demande de subvention 14 sur 40 2.2.3 Description du projet 2.2.3.1 Contexte Depuis la mise en place du PLU voté le 24 avril 2013 et le décret d'application de la loi ALUR, Orgerus est confrontée à une urbanisation que l'on pourrait juger excessive eu égard aux infrastructures existantes. Alors que le rythme de construction était sur la dernière décennie de 4,5 habitations par an, depuis mars 2014, 120 logements ont été construits ou sont en passe de l'être, sans compter les déclarations préalables enregistrées et les permis en attente de traitement. La rentrée scolaire 2017 a été marquée par l'ouverture d'une classe supplémentaire en élémentaire compte tenu de l'augmentation des effectifs qui sont passés de 135 à 146 enfants. Dans ce contexte, la cantine a atteint son seuil critique car nous servons depuis la rentrée en moyenne 188 repas sur 2 services, la cantine ayant une capacité d'accueil au grand maximum de 96 places par service. Pour arriver à satisfaire au mieux l'intérêt des enfants nous sommes dans l'obligation de scinder des classes pour associer les enfants de la maternelle avec une partie des enfants de CP ce qui n'est pas optimal compte tenu de l'attention particulière que nous devons porter aux jeunes enfants. L'organisation est donc assez difficile notamment lorsque les pics de fréquentation sont atteints. 2.2.3.2 Motivations Bien que nous essayons de connaître la composition des familles lors de la demande de permis de construire, nous n'en avons qu'une vue très parcellaire, compte tenu notamment du fait que très peu de particuliers déposent leur demande directement (en général les demandes sont déposées par des constructeurs ou des architectes qui ne disposent pas de ces informations). Nous n'avons donc pas aujourd'hui la vision objective de l'augmentation du nombre d'enfants qui seront scolarisés à très court terme mais considérons qu'il faut anticiper les besoins qui se dessinent. C'est pourquoi nous envisageons d'agrandir la cantine scolaire pour doubler sa capacité. Si à court terme cela peut paraître excessif, le bâtiment envisagé serait modulable pour une utilisation mixte (cantine et classe scolaire). Cette solution permettrait ainsi d'avoir un local bien spécifique pour l'étude surveillée dispensée gratuitement par la commune, et qui depuis la rentrée pose problème car il n'existe plus de classe "vide" disponible compte tenu de l'ouverture de la classe supplémentaire. 2.2.3.3 Implantation de l’extension de la cantine scolaire Le groupe scolaire est composé de plusieurs bâtiments (maternelle, nouvelle école et ancienne école) et il existe des voies de cheminements internes pour se rendre à la cantine. La construction envisagée serait élaborée dans l'enceinte de l'ancienne école et ne devrait pas impacter la surface de la cour de récréation. De la sorte, le parcours des enfants est préservé, même simplifié. Pour ce qui concerne l'architecture des volumes avec l'extension, nous envisageons un petit bâtiment avec un toit en tuiles à 2 pentes qui ne rejoindrait pas le grand toit existant sur cuisine et salle à manger, mais qui serait relié par un petit toit terrasse. Cela pour ne pas toucher le bâtiment existant et limiter les coûts. Ce petit module intermédiaire pourrait être vitré et incorporerait une porte de sortie directe sur la cour. L'ensemble des bâtiments scolaires et les surfaces annexes appartiennent à la mairie. 2.2.4 Reportage photographique du site
  • 15.
    Commune d’ORGERUS AVANT-PROJET -Dossier de demande de subvention 15 sur 40
  • 16.
    Commune d’ORGERUS AVANT-PROJET -Dossier de demande de subvention 16 sur 40 2.2.5 Plan général d’avant-projet
  • 17.
    Commune d’ORGERUS AVANT-PROJET -Dossier de demande de subvention 17 sur 40
  • 18.
    Commune d’ORGERUS AVANT-PROJET -Dossier de demande de subvention 18 sur 40
  • 19.
    Commune d’ORGERUS AVANT-PROJET -Dossier de demande de subvention 19 sur 40
  • 20.
    Commune d’ORGERUS AVANT-PROJET -Dossier de demande de subvention 20 sur 40
  • 21.
    Commune d’ORGERUS AVANT-PROJET -Dossier de demande de subvention 21 sur 40 2.2.6 Estimation des travaux Le coût estimé des travaux s’élève à 457 200,00€ H.T. intégrant 5% d'aléas et les honoraires de la maîtrise d'œuvre, du SPS et du bureau de contrôle.. 2.3 PROTEGER NOTRE « POUMON VERT » AU CŒUR DE NOTRE VILLAGE : REAMENAGEMENT D’UN ESPACE VERT MUNICIPAL 2.3.1 Objet du projet L’objet du projet est « Réaménagement d’un espace vert municipal ». 2.3.2 Localisation géographique du site Mairie Carte d’ORGERUS (78910) Sans échelle Réaménagement d’un espace vert municipal
  • 22.
    Commune d’ORGERUS AVANT-PROJET -Dossier de demande de subvention 22 sur 40 2.3.3 Description du projet 2.3.3.1 Motivations Les motivations sont multiples :  Aménager les espaces verts d’une façon ludique et accessible à tous : aux jeunes adolescents, aux sportifs, aux familles avec des enfants et petits-enfants, ainsi qu’aux élèves de nos écoles et aux associations communales  Redynamiser le site en proposant des infrastructures de qualité conformes aux normes de sécurité  Proposer des équipements innovants pour les ados en respectant l’environnement naturel existant  Favoriser la mobilité en proposant aux "habitants excentrés" une liaison sécurisée et rapide avec le centre économique du village  Favoriser les rencontres intergénérationnelles  Protéger cet espace en partie boisé 2.3.3.2 Conception  Aménagement du petit bois avec des jardins pédagogiques pour les écoliers ; création des espaces propices à l’éducation environnementale pour le jeune public et faciliter la circulation du public dans un espace boisé préservé  Réhabilitation du parcours VTT, BMX pour les jeunes sans nuire à l’esthétique du site  Configuration de l’espace vert proche du stade de football avec des activités pour les enfants : o Un skate parc pour la pratique des sports de glisse o Des activités /jeux pour les enfants (3 à 6 ans et 6 à 12 ans) o Des espaces pique-niques pour les parents, les promeneurs et randonneurs o Une sente qui sera la continuité d’un nouveau sentier de randonnée pédestre qui traversera le stade pour aller jusqu’au village afin de valoriser notre centre et favoriser la fréquentation de nos commerces o Un jardin participatif collaboratif pour nos habitants et associations du village Le terrain de football en annexe de notre stade restera ouvert au public pour la pratique des activités libres et l’accueil de nos manifestations sportives et culturelles. Dans l’ensemble de cet aménagement, l’activité de la pétanque avec son terrain et la facilité d’accès au site seront pris en compte. 2.3.4 Reportage photographique du site
  • 23.
    Commune d’ORGERUS AVANT-PROJET -Dossier de demande de subvention 23 sur 40
  • 24.
    Commune d’ORGERUS AVANT-PROJET -Dossier de demande de subvention 24 sur 40
  • 25.
    Commune d’ORGERUS AVANT-PROJET -Dossier de demande de subvention 25 sur 40 2.3.5 Plan général d’avant-projet
  • 26.
    Commune d’ORGERUS AVANT-PROJET -Dossier de demande de subvention 26 sur 40 2.3.6 Estimation des travaux Le coût estimé des travaux s’élève à 505 200,00€ H.T. intégrant 5% d'aléas et les honoraires de la maîtrise d'œuvre, du SPS et du bureau de contrôle. 2.4 RENFORCER NOS ETABLISSEMENTS SPORTIFS : CONSTRUCTION D’UN TENNIS COUVERT 2.4.1 Objet du projet L’objet du projet est « Construction d’un tennis couvert ». 2.4.2 Localisation géographique du site Mairie Carte d’ORGERUS (78910) Sans échelle Construction d’un tennis couvert Ateliers municipaux Square du Pré Romain Gymnase Salle polyvalente
  • 27.
    Commune d’ORGERUS AVANT-PROJET -Dossier de demande de subvention 27 sur 40 2.4.3 Description du projet 2.4.3.1 Contexte Alors qu'au début des années 2014, le Tennis Club d'Orgerus (TCO) comptait 241licenciés, il n'en possède plus aujourd'hui que 131 dont 50% de jeunes de moins de 18 ans. Cette désaffection est liée à l'absence d'infrastructure couverte qui ne permet pas aux adhérents de pratiquer leur activité en toute saison même si le TCO peut disposer de créneaux dans le gymnase (compétence CCPH) mais ceux-ci ne sont pas souvent en adéquation avec la disponibilité des adhérents. Le club ne dispose que de 3 courts extérieurs en béton poreux omnisports et le besoin de construction d’un nouvel équipement devient vital afin d’assurer en priorité la continuité de l’école de tennis, l’équilibre entre la compétition et le loisir et l’organisation ponctuelle d’événements sportifs et éducatifs. La dynamique du club repose sur les structures existantes mais également sur des équipes dirigeantes et des équipes pédagogiques performantes. Ces équipes, très engagées permettent aux adhérents jeunes et adultes de réaliser de nombreux résultats sportifs sans négliger pour autant la population qui pratique plutôt un sport de loisir, mais qui est certainement insatisfaite par l’absence de structures couvertes. Le club du TC ORGERUS est une des associations phares de la commune et est responsable de l’emploi d’enseignants professionnels. Emplois qui ne pourront être pérennisés que par la mise à disposition d’un équipement couvert. Faute de moyens le Club a été dans l'obligation de licencier un des deux éducateurs. "Quelques chiffres clés au niveau national :  Le club affilié moyen est de 135 licenciés avec 4 courts dont 1 couvert  La moyenne nationale est de 122 licenciés par court couvert (100 licenciés étant le seuil idéal à atteindre pour trouver un équilibre entre le loisir et la compétition)  + 36,8 % est la progression moyenne des clubs réceptionnant un 1er court couvert  L’espace de vie moyen est de 92 m² avec 2 licencié/m²… Le club comptait près de 300 licenciés il y a moins de 10 ans ; l’absence de structures couvertes et la présence de courts couverts dans les villes proches sont une des explications à la baisse des adhérents" JEUNES / ADULTES 2014 2015 2016 2017 effectif effectif effectif effectif Adultes 96 72 88 61 Jeunes 145 201 85 74 Total 241 273 173 135
  • 28.
    Commune d’ORGERUS AVANT-PROJET -Dossier de demande de subvention 28 sur 40 2.4.3.2 Motivations Les motivations sont multiples :  Proposer aux licenciés et non licenciés une activité tennistique dans de bonnes conditions notamment en périodes de conditions climatiques défavorables  Dynamiser l'économie locale et conserver l’attractivité de notre village  Offrir la possibilité au Tennis Club d’Orgerus de retrouver son rayonnement et son niveau d'adhérents qui est en baisse constante  Libérer des créneaux horaires du gymnase pour la pratique d'activités des autres associations  Favoriser la pratique du tennis dans le cadre du sport scolaire de l’école élémentaire et du collège 2.4.3.3 Conception Ce bâtiment sera conçu de manière à ce qu'il s'intègre parfaitement dans son environnement, avec une valorisation environnementale du bâtiment pour une pratique responsable et économe. Cet équipement permettra aux gestionnaires de l’ensemble des bâtiments communaux de mieux répartir les activités entre les associations et favoriser une pratique sécurisée. 2.4.3.4 Implantation Le terrain de tennis couvert sera construit à proximité des bâtiments scolaires (écoles et collège), à proximité du gymnase et de la salle polyvalente sur un terrain appartenant à la commune. 2.4.4 Reportage photographique du site
  • 29.
    Commune d’ORGERUS AVANT-PROJET -Dossier de demande de subvention 29 sur 40
  • 30.
    Commune d’ORGERUS AVANT-PROJET -Dossier de demande de subvention 30 sur 40
  • 31.
    Commune d’ORGERUS AVANT-PROJET -Dossier de demande de subvention 31 sur 40 2.4.5 Plan général d’avant-projet
  • 32.
    Commune d’ORGERUS AVANT-PROJET -Dossier de demande de subvention 32 sur 40
  • 33.
    2.4.6 Estimation destravaux Le coût estimé des travaux s’élève à 720 000,00€ H.T. intégrant 5% d'aléas et les honoraires de la maîtrise d'œuvre, du SPS et du bureau de contrôle. Note *** L’étude correspond à une réflexion globale sur l’amélioration du cadre de vie des habitants et l’évolution de la population pour les années à venir. Le caractère environnemental et durable de ces projets reste une préoccupation majeure et une réelle volonté du conseil municipal d’investir dans ce domaine. ***