MAISON  B T P PROJET POUR LE COLLECTIF INNOVONS ENSEMBLE DONG-HA / OCHO CRISTIAN 2007_12_20 B OIS,  T ERRE, PAILLE B T P
INTRODUCTION B T P
LES  ATTENTES « …l’objet est la mise en œuvre d’un projet d’auto-construction. » « Réduire drastiquement le coût d’accès au logement » « Prendre en compte l’évolution sociétale telle que la perte d’autonomie… » « Disposer d’espace pour créer sa propre activité économique. » « Utilisation de matières premières facilement transformables (terre, paille, bois, chanvre,…) » « Enfin, la prise en compte technique du principe de la maison passive… »   Propos tiré du document « Innovons ensemble » du 2 mai au 5 juin 2007  B T P INTRODUCTION
Économie Matières premières Auto-construction Flexibilité et évolutivité spatial Conception bioclimatique La construction en bande (horizontale) permet de s’adapter à différents contextes ou terrains potentiels. La échelle artisanale du bâtiment, est idéale pour l’auto construction. Utilisation de matières premières facilement transformables, comme la botte de paille, la terre et le bois. Conception bioclimatique pour permettre des économies d’énergie. Flexibilité, évolution et adaptation spatiale aux familles.    B T P INTRODUCTION LE PROJET
STRATEGIE ECONOMIQUE B T P Le choix de l’échelle artisanale du bâtiment, est idéale pour l’auto construction ; ceci permet de profiter de l’aide des familles bénéficiaires et de baisser le coût global de l’intervention.    La proposition tente en effet de réduire au maximum les coûts de main d’œuvre et de matériaux, tout en utilisant les ressources locales et des matières premières facilement transformables, comme la botte de paille, la terre et le bois. Il s’agit de matières bon marché qui permettent une mise en oeuvre facile et l’intervention de personnel non qualifié. Le projet vise, en plus, à permettre des économies d’énergie, grâce à une conception bioclimatique et au choix de techniques et de matériaux adaptés : orientation plein sud, une enveloppe de botte de paille, des enduits de terre et de la chaux, des éléments pour stocker la chaleur,une serre, etc .
B T P STRATEGIE ECONOMIQUE
B T P STRATEGIE ECONOMIQUE
PRINCIPE D’IMPLANTATION B T P Le choix de l’échelle artisanale du bâtiment, est idéale pour l’auto construction ; ceci permet de profiter de l’aide des familles bénéficiaires et de baisser le coût global de l’intervention.    La proposition tente en effet de réduire au maximum les coûts de main d’œuvre et de matériaux, tout en utilisant les ressources locales et des matières premières facilement transformables, comme la botte de paille, la terre et le bois. Il s’agit de matières bon marché qui permettent une mise en oeuvre facile et l’intervention de personnel non qualifié. Le projet vise, en plus, à permettre des économies d’énergie, grâce à une conception bioclimatique et au choix de techniques et de matériaux adaptés : orientation plein sud, une enveloppe de botte de paille, des enduits de terre et de la chaux, des éléments pour stocker la chaleur,une serre, etc .
Composer avec la pente Optimiser l’orientation Réutilisation de la terre du terrain B T P IMPLANTATION
B T P IMPLANTATION
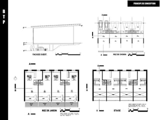
PRINCIPE DE CONCEPTION B T P La maison BTP répond à la demande du collectif d’adaptation à l’évolution sociétale et à la perte d’autonomie, grâce à la conception d’un volume habitable qui peut être densifié selon les besoins et les ressources du moment. Cette implosion du volume permet à l’unité d’habitation de s’adapter et d’évoluer selon les besoins des usagers sans modifier la morphologie extérieure de l’ensemble. Ainsi, l’unité d’habitation peut être adaptée à des personnes handicapées, à différentes structures familiales ou à la croissance des familles .
Flexibilité spatial Occupation optimale de l’espace Adaptation aux besoins Densification du volume B T P PRINCIPE DE CONCEPTION
L’ESPACE INTERIEUR L’espace et l’enveloppe La serre: Un espace tampon B T P PRINCIPE DE CONCEPTION
B T P PRINCIPE DE CONCEPTION
LA MORPHOLOGIE Maisons en bande Volumétrie rational et minimale Mariage des différents  matériaux B T P PRINCIPE DE CONCEPTION
PRINCIPE CONSTRUCTIF B T P
OSSATURE : BOIS REMPLISSAGE : BOTTES DE PAILLE La Botte de paille: Matière naturelle et matériau isolant constructif performant Conformation de murs selon la Technique Greb La terre comme un accumulateur d’énergie sera présente dans les enduits intérieurs et extérieurs et dans les cloisons mélangée avec la paille Structure en bois: Simplicité constructive B T P PRINCIPE CONSTRUCTIF
DETAILS DE FABRICATION B T P
B T P DETAILS DE FABRICATION

Maison Bois Terre Paille

  • 1.
    MAISON BT P PROJET POUR LE COLLECTIF INNOVONS ENSEMBLE DONG-HA / OCHO CRISTIAN 2007_12_20 B OIS, T ERRE, PAILLE B T P
  • 2.
  • 3.
    LES ATTENTES« …l’objet est la mise en œuvre d’un projet d’auto-construction. » « Réduire drastiquement le coût d’accès au logement » « Prendre en compte l’évolution sociétale telle que la perte d’autonomie… » « Disposer d’espace pour créer sa propre activité économique. » « Utilisation de matières premières facilement transformables (terre, paille, bois, chanvre,…) » « Enfin, la prise en compte technique du principe de la maison passive… » Propos tiré du document « Innovons ensemble » du 2 mai au 5 juin 2007 B T P INTRODUCTION
  • 4.
    Économie Matières premièresAuto-construction Flexibilité et évolutivité spatial Conception bioclimatique La construction en bande (horizontale) permet de s’adapter à différents contextes ou terrains potentiels. La échelle artisanale du bâtiment, est idéale pour l’auto construction. Utilisation de matières premières facilement transformables, comme la botte de paille, la terre et le bois. Conception bioclimatique pour permettre des économies d’énergie. Flexibilité, évolution et adaptation spatiale aux familles.    B T P INTRODUCTION LE PROJET
  • 5.
    STRATEGIE ECONOMIQUE BT P Le choix de l’échelle artisanale du bâtiment, est idéale pour l’auto construction ; ceci permet de profiter de l’aide des familles bénéficiaires et de baisser le coût global de l’intervention.   La proposition tente en effet de réduire au maximum les coûts de main d’œuvre et de matériaux, tout en utilisant les ressources locales et des matières premières facilement transformables, comme la botte de paille, la terre et le bois. Il s’agit de matières bon marché qui permettent une mise en oeuvre facile et l’intervention de personnel non qualifié. Le projet vise, en plus, à permettre des économies d’énergie, grâce à une conception bioclimatique et au choix de techniques et de matériaux adaptés : orientation plein sud, une enveloppe de botte de paille, des enduits de terre et de la chaux, des éléments pour stocker la chaleur,une serre, etc .
  • 6.
    B T PSTRATEGIE ECONOMIQUE
  • 7.
    B T PSTRATEGIE ECONOMIQUE
  • 8.
    PRINCIPE D’IMPLANTATION BT P Le choix de l’échelle artisanale du bâtiment, est idéale pour l’auto construction ; ceci permet de profiter de l’aide des familles bénéficiaires et de baisser le coût global de l’intervention.   La proposition tente en effet de réduire au maximum les coûts de main d’œuvre et de matériaux, tout en utilisant les ressources locales et des matières premières facilement transformables, comme la botte de paille, la terre et le bois. Il s’agit de matières bon marché qui permettent une mise en oeuvre facile et l’intervention de personnel non qualifié. Le projet vise, en plus, à permettre des économies d’énergie, grâce à une conception bioclimatique et au choix de techniques et de matériaux adaptés : orientation plein sud, une enveloppe de botte de paille, des enduits de terre et de la chaux, des éléments pour stocker la chaleur,une serre, etc .
  • 9.
    Composer avec lapente Optimiser l’orientation Réutilisation de la terre du terrain B T P IMPLANTATION
  • 10.
    B T PIMPLANTATION
  • 11.
    PRINCIPE DE CONCEPTIONB T P La maison BTP répond à la demande du collectif d’adaptation à l’évolution sociétale et à la perte d’autonomie, grâce à la conception d’un volume habitable qui peut être densifié selon les besoins et les ressources du moment. Cette implosion du volume permet à l’unité d’habitation de s’adapter et d’évoluer selon les besoins des usagers sans modifier la morphologie extérieure de l’ensemble. Ainsi, l’unité d’habitation peut être adaptée à des personnes handicapées, à différentes structures familiales ou à la croissance des familles .
  • 12.
    Flexibilité spatial Occupationoptimale de l’espace Adaptation aux besoins Densification du volume B T P PRINCIPE DE CONCEPTION
  • 13.
    L’ESPACE INTERIEUR L’espaceet l’enveloppe La serre: Un espace tampon B T P PRINCIPE DE CONCEPTION
  • 14.
    B T PPRINCIPE DE CONCEPTION
  • 15.
    LA MORPHOLOGIE Maisonsen bande Volumétrie rational et minimale Mariage des différents matériaux B T P PRINCIPE DE CONCEPTION
  • 16.
  • 17.
    OSSATURE : BOISREMPLISSAGE : BOTTES DE PAILLE La Botte de paille: Matière naturelle et matériau isolant constructif performant Conformation de murs selon la Technique Greb La terre comme un accumulateur d’énergie sera présente dans les enduits intérieurs et extérieurs et dans les cloisons mélangée avec la paille Structure en bois: Simplicité constructive B T P PRINCIPE CONSTRUCTIF
  • 18.
  • 19.
    B T PDETAILS DE FABRICATION