vous présente


    DC CAD-Electro
Plus de 10 ans au service des
         électriciens
DC Cad-Electro

Dessiner un plan d’implantation
Plan d’implantation
• Dessiner les murs
Cliquez ici pour
commencer un nouveau
        plan
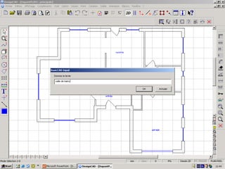
Donnez un nom de dossier
  et un numéro de page
Donnez les dimensions
maximales du plan à dessiner
Dessinez à présent les murs
 l’un après l’autre avec la
     commande mur.
Placez les points pour le mur.
Tapez ‘Enter’ après le
    dernier point
Posez les points pour le mur
           suivant.
Au dernier point vous pouvez
   aussi ‘double-cliquer’.
Les intersections
 de murs qui se
  croisent sont
    nettoyées
automatiquement
Les intersections
 de murs qui se
  croisent sont
    nettoyées
automatiquement
Les intersections
 de murs qui se
  croisent sont
    nettoyées
automatiquement
Les intersections
 de murs qui se
  croisent sont
    nettoyées
automatiquement
Les intersections
 de murs qui se
  croisent sont
    nettoyées
automatiquement
Les intersections
 de murs qui se
  croisent sont
    nettoyées
automatiquement
Les intersections
 de murs qui se
  croisent sont
    nettoyées
automatiquement
Les intersections
 de murs qui se
  croisent sont
    nettoyées
automatiquement
Les intersections
 de murs qui se
  croisent sont
    nettoyées
automatiquement
Les intersections
 de murs qui se
  croisent sont
    nettoyées
automatiquement
Les intersections
 de murs qui se
  croisent sont
    nettoyées
automatiquement
Plan d’implantation
• Enlever des morceaux de mur
Cliquez ici pour couper
  un partie d’un mur.
Posez deux points pour
  montrer la partie à
       effacer.
Continuez pour la
 partie suivante.
Vous pouvez adapter l’épaisseur
des murs. Double-cliquez pour
        ‘boîte d’info’.
30 au lieu de 10.
Plan d’implantation
• Insertion de portes
Cliquez ici pour
implanter des portes
Donnez la largeur et
  cliquez ‘OK’
Placez le point pour la
      charnière.
Montrez la direction
avec le deuxième point.
Continuez avec la porte
      suivante.
Si nécessaire, vous
pouvez adapter la taille.
100 au lieu de 80.
Cet outil automatique pré-visualise la
position de la porte et ensuite découpe
    et insère la porte dans un mur
Cet outil automatique pré-visualise la
position de la porte et ensuite découpe
    et insère la porte dans un mur
Vous pouvez changer la
précision (25cm ou 5cm).
Vous pouvez zoomer
   sur un détail.
Cliquez ici pour avoir
    la vue entière.
Plan d’implantation
• Insertion de fenêtres
Cliquez ici pour
implanter des fenêtres
Cet outil automatique découpe et insère la
    fenêtre à dimension dans un mur
Cet outil automatique découpe et insère la
    fenêtre à dimension dans un mur
Cet outil automatique découpe et insère la
    fenêtre à dimension dans un mur
Cet outil automatique découpe et insère la
    fenêtre à dimension dans un mur
Cet outil automatique découpe et insère la
    fenêtre à dimension dans un mur
Cet outil automatique découpe et insère la
    fenêtre à dimension dans un mur
Cet outil automatique découpe et insère la
    fenêtre à dimension dans un mur
Cet outil automatique découpe et insère la
    fenêtre à dimension dans un mur
Cet outil automatique découpe et insère la
    fenêtre à dimension dans un mur
Cet outil automatique découpe et insère la
    fenêtre à dimension dans un mur
Cet outil automatique découpe et insère la
    fenêtre à dimension dans un mur
Cet outil automatique découpe et insère la
    fenêtre à dimension dans un mur
Cet outil automatique découpe et insère la
    fenêtre à dimension dans un mur
Cet outil automatique découpe et insère la
    fenêtre à dimension dans un mur
Cet outil automatique découpe et insère la
    fenêtre à dimension dans un mur
Cet outil automatique découpe et insère la
    fenêtre à dimension dans un mur
Cet outil automatique découpe et insère la
    fenêtre à dimension dans un mur
Cet outil automatique découpe et insère la
    fenêtre à dimension dans un mur
Cet outil automatique découpe et insère la
    fenêtre à dimension dans un mur
Plan d’implantation
• Ajouter des textes
Cliquez ici pour
implanter des textes
Plan d’implantation
• Dessiner un escalier
Implantation de prises de courant
Positionnement direct des symboles électriques et
domotiques par rotation automatique en fonction du
                       mur.
Positionnement direct des symboles électriques et
domotiques par rotation automatique en fonction du
                       mur.
Positionnement direct des symboles électriques et
domotiques par rotation automatique en fonction du
                       mur.
Positionnement direct des symboles électriques et
domotiques par rotation automatique en fonction du
                       mur.
Implantation de l’éclairage
Cliquez ici pour
sélectionner le type de
    point lumineux
Cliquez sur
 l’interrupteur qui
détermine le circuit
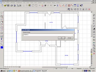
Donnez le code
  du circuit
Placez le point
d’insertion pour
 l’interrupteur
Placez le point
d’insertion pour
   l’éclairage
Tapez ‘Enter’ pour
    terminer
Implanter des appareils
Choisisez l’appareil à
     implanter
Donnez le code
  du circuit
Positionnement direct des symboles
électriques et domotiques par rotation
   automatique en fonction du mur.
Positionnement direct des symboles
électriques et domotiques par rotation
   automatique en fonction du mur.
Positionnement direct des symboles
électriques et domotiques par rotation
   automatique en fonction du mur.
Positionnement direct des symboles
électriques et domotiques par rotation
   automatique en fonction du mur.
Positionnement direct des symboles
électriques et domotiques par rotation
   automatique en fonction du mur.
Positionnement direct des symboles
électriques et domotiques par rotation
   automatique en fonction du mur.
Positionnement direct des symboles
électriques et domotiques par rotation
   automatique en fonction du mur.
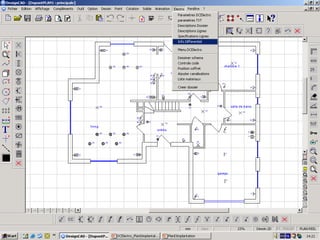
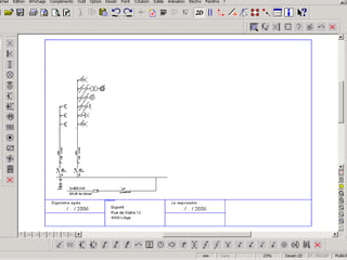
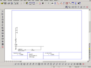
De cette façon nous réalisons le
        schéma complet
Avant de générer le schéma
unifilaire, nous pouvons vérifier
les paramètres suivants
• Paramètres DC Electro
• Description Dossier
• Description Lignes
• Spécifications Lignes
• Info Différentiel
Clic sur l’icône pour générer le
       schéma unifilaire
DC CAD-Electro
   Plus de 10 ans au service
        des électriciens
 Comeplan organise également des présentations gratuites. Les dates
sont disponibles sur le site www.comeplan.be à la rubrique présentation
                                gratuite

Présentation programme de dessin