1
Remerciements :
D’abord, je remercier Dieu, et je tiens remercier mes parents et ma
tous les Personnes de ma famille.
Et je tiens à remercier tout l’équipe de ISTA de Meknès spécialement,
mon formateur Monsieur , sur leur aide moi.
Et je tiens à remercier généralement les techniciens qui
travaillent au bureau sud infra pour leurs conseils spéciaux et
leurs renseignements durant le cours du stage.
2
Sommaire :
Remerciements………………………………………………………………………………..1
Introduction…………………………………………………………………………… ....….3
Présentation de la société…………………………………………………………………….4
Description de projet ………………………………………………………………………...5
Travail effectué……………………………………………………………………………..11
Liste des abréviations……………………………………………………………………….11
Définition…………………………………………………………………………………..12
a/ Béton armé et ses constituants…………………………………………………………..12
b/Les matériaux entrant dans constitution du béton armé……………………………….…12
c/Les charges……………………………………………………………………………….12
1 Conception des plans de fondation et de coffrage:………………………………………12
Plan fondation……………………………………………………………………………...13
Dessin des plans de coffrage……………………………………………………………….13
2 Etude…………………………………………………………………………………….14
3 Etablissement de plan de fondation et des plans de coffrage d’un logement R+2………15
Plans de fondations ………………………………………………………………………..15
Plans de coffrage…………………………………………………………………………..16
Détailles de ferraillage……………………………………………………………………..18
4 Visites des chantiers (la réception)………………………………………………………21
Conclusion…. ……………………………………………………………………..………23
3
Introduction :
La formation de Technicien spécialisé en gros œuvre au sein de l’Institut
Spécialisé de Technologie Appliquée –MEKNES n’est pas limitée à la
transmission théorique des connaissances mais consiste également à
perfectionner les aptitudes des stagiaires par le moyen d’une période de stage
d’un mois dans des entreprises ou des bureaux d’études.
J’ai passé ma période de stage au sein du chantier ALMR TRAVEAU à
MEKNES et principalement au domaine du bâtiment. Mon objectif principal a
été l’ouverture sur le monde du travail et la découverte de la vie professionnelle.
Pendant cette période de stage, j’ai assimilé plusieurs informations techniques
qui concerne le domaine du gros œuvre en participant à plusieurs tâches dans le
bureau ; à savoir l’établissement des plans de coffrages, impression des plans,
estimation du béton armé dans un projet de construction…etc.
En général, je peux dire que ma période de stage est divisée en trois grandes
parties :
1ère partie: La conception de plan de fondation et des plans coffrage d’un
logement de R+2.
2éme partie : faire l’étude des poteaux, semelle, poutres, et Les planchers.
3éme partie : Etablissement de plan de fondation et des plans de coffrage d’un
logement R+2.
4éme partie : calculer du lot gros œuvre (béton, ferraillage) du logement R+2.
5éme partie : visites des chantiers.
4
Présentation de la société :
SOCIETE ALMR TRAVAUX
Soyez le premier à évaluer cette société
Activité :
Travaux divers. Mécanique auto et tôlier. Location d'engins
Adresse :
N30 Bis Rue 8 Hay El Amane - Meknès (M)
Capital :
100 000 DH
ALMR TRAVEAUX adapte ses prestations aux demandes et aux exigences des clients, à
savoir:
• Etudes techniques
• Project-management
• Etude de faisabilité
• Assistance à l’élaboration de dossiers de consultation des entreprises
• Estimation budgétaire des travaux
• Contrôle technique, suivi et surveillance des travaux sur le chantier
• Gestion et suivi financier
• Réception de l’ouvrage
5
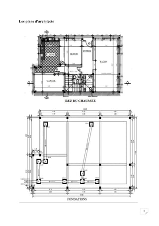
Description de projet
Ce logement d’habitation R+2 a une surface au sol de 129m². La hauteur sous plancher à
chaque niveau est de 3m. Soit une hauteur totale de 9m.
Pour permettre la circulation et le passage à niveau, il est prévu des passerelles et des escaliers
à chaque niveau.
La constitution de logement est la suivante :
Au Rez-de-chaussée :
- Une cuisine……………………………….17.62m²
- Un garage……………….………………..15m²
- Un séjour…………..……………………...15.84 m²
- Un salon…………………………………….35.0.47 m²
- Deux Hall…………………….…………...14.16 m²
1er étage :
- Un hall ………………………..…………….5.175 m²
- Trois chambre…………..……..………..63.35 m²
- Dressing …………………………………….6.75 m²
- Trois salle de bain……………………...23.96 m²
2eme étage :
- Deux chambre………..………………….39.26m²
- Un hall ……………………………………...12.76 m²
- Un salon……………………….…………….35.05m²
- Un s.d.b………………………………………7.45 m²
- Une toilette………………………………..7 m²
6
Les plans d’architecte
7
8
9
10
11
Travail effectué :
Liste des abréviations
DP : Dalle pleine
LG : Longrine
BN : Bonde noyée
P : Poteau
R/T : poutre
S : Semelle E : Espacement
# : Quadrillage
PV : procès-verbal
R.D.C : Rez-de chaussée
M.E.G.B : Massif en gros béton
12
Définition
A/ Béton armé et ses constituants :
On appelle béton le matériau constitué par le mélange dans les proportions convenables, de
ciment, de granulats (sable, pierrailles) et d’eau de gâchage .Et béton armé le matériau obtenu
par l’association de béton et de l’armature qui est représenté en barre d’acier. Dans
l’association béton armée : Le béton résiste aux efforts de compression et l’acier à la traction.
L’acier résiste aux efforts de compression et éventuellement, à la compression si le béton ne
peut y suffire à lui seul Le béton a plusieurs avantages sur les autres matériaux de
construction comme la souplesse d’utilisation, l’économie, la résistance au feu…
B/ Les matériaux entrant dans constitution du béton armé :
Le béton :
Le béton destiné au béton armé se différencie du béton ordinaire par son dosage et la grosseur
du granulat utilisé. - Le dosage c'est-à-dire le poids de ciment par mètre de béton mis en
œuvre est, généralement, compris entre 350 et 400 kg de ciment / m³ de béton. - Les granulats
utilisés en béton ont une dimension maximale de 25 mm - Le sable est constitué par des grains
provenant de la déségrégation des roches ; les grosseurs sont généralement inférieures de 5
mm et il doit être propre. - Les pierrailles sont constituées par des grains rocheux peuvent être
extraites du lit des rivières ou par concassage de roches dures. Et ils doivent être propres. -
l’eau entant dans la composition des bétons devra être pure, sans acide. Sauf indication
contraire du cahier des prescriptions spéciales.
Les Aciers :
Aciers rends lisses : on utilise les nuances : FeE400 et FeE500. De diamètre : 6, 8, 10,12, 14,
16, 20, 25,32, 40et50. Filles haut adhérence, de diamètre : 4, 5, 6, 7, 8, 9, 10, 12,14. Treillis
soudés. Tous les aciers utilisés ont un cœfficient de sécurité γs = 1.15 et ils travaillent dans un
domaine élastique et il ne faut qu’ils dépassent ses limites élastique Fe=400mpa.
C/ Les charges :
Types de charges :
Pour les bâtiments a usage administratif ou d’usage d’habitation on distingue, couramment,
deux charges principales :
1 - Charges permanentes : G
2 - Charges d’exploitations ou surcharges: Q
- combinaisons de charges :
Les règles B.A.E.L préconisent l’utilisation des combinaisons suivantes :
Etat limite ultime : 1,35G + 1.5 Q
Etat limite de service : G + Q
1-Conception des plans de fondation et de coffrage :
On réalisé les plans de fondation et de coffrages a bas des plans d’architecte à l’aide de
l’AUTO
CAD Il faut suivre les étapes suivantes :
13
On prend le plan d’Architecte et on trace sur ce dernier (pour le plan de fondation prend
plan 1er
étage et pose sur plan fondation, et pour le plan de coffrage de 1er
étage on pose
le plan d’Archi de 2éme étage et pose sur le plan de 1er
étage).
plan de fondation :
Nous associons au choix de notre fondation les critères suivants :
- Stabilité de l’ouvrage (rigidité)
- Facilité d’exécution (coffrage) : tenir compte de la disponibilité humaine et
matérielle.
- Economie : chercher le meilleur coupe sécurité / coût
Méthodologie :
La méthodologie utilisée pour la présente étude est celle basée sur l’ordre privilégié suivant :
- Semelles (isolées et filantes)
- Radier général
- Fondation profonde (Pieux)
Cependant, par insuffisance de données géotechniques, les fondations profondes seront
* pour le cas des semelles isolées on a deux types centre et excentre nous utilise la
dernier lorsque on a les voisinages ; lorsque la surface occupée par celles-ci dépasse
50% de la superficie totale du bâtiment, il y’aura un risque inévitable de
chevauchement des semelles, par exemple :
En considérant les semelles homothétiques autour des poteaux, la surface d’une semelle
carrée est donnée par la relation : Semelle = [Nu/Ϭ sol] = (1200/105) = 11,5m² soit des
semelles de 3,40x3, 40 (surface réelle : 11,56m²)
Surface totale occupée par les semelles : Les semelles isolées étant présentes sous chacun
des 46 poteaux, donc 46x11, 56 =531,76m² > 50% de la surface du bâtiment (213,5m²).
Conclusion : au vu de ces résultats ci-haut, il y’a impossibilité de réaliser des semelles pour
le bâtiment, Cela est dû à la faible portance du sol. (Argile plastique)
Et donc nous passerons au choix suivant (semelles filantes ou continue).
-Les semelles : soit en utilise semelle isole ou continue vérifier après l’étude.
- Le mur de fondation : on prend l=45 cm
-Les Poteaux : le minimum est 600 cm² sa déponde l’étude.
-Longrine : une longrine est une poutre en béton armé disposée horizontalement entre ou le
long de massifs de fondation et servant à mieux répartir les charges des éléments supportés
(murs, poteaux, dalles) ou/et à les reporter vers des appuis ponctuels (micropieux,…) et il y a
deux types de longrines on a LR : longrine de redressement et LG on utilise le premier
lorsque on a semelle excentre et le déférent dans les armatures nous augmentent les
renforcements a cote de semelle = L/3.
Bonde noyée : un chainage, par exemple on ne peut pas construire de la maçonnerie (double
cloisons) sur un plancher en corps creux en dehors des poutres, pour cela on prévoit une
14
poutre noyée de même épaisseur que le plancher (i pour ça qu'on l'appelle bande noyée (elle
apparait pas)
-dallage : l’épaisseur 13<e<20 sa dépond si une habitation ou industriel.
2- L’étude :
-voile : lorsque on a la poussée de terre (dans le sous-sol) on utilise comme un mur de
soutènement e=15cm si il y a une dalle au-dessous (sur le voile) si non e=20cm a 25cm.
-dans la fondation on utilise un chainage périphérique de e=15cm et l=45cm qui support
entre 20 et 25ton de la charge de semelle il doit déduire 20ton de la charge de semelle.
-longrine =20x40, si L>5m on doit faire massif de 50x50x50 dans le centre.
-forme en béton y/c aciers (dallage) : e=13cm.
-Chainage de fondation : 45x20cm.
-chainage périphérique : 45x15cm.
-dimensions des poteaux :
• Les poteaux de corner (suivante la méthode de B.A.E.L) :
*Gmur=65.9kn
*Gend=10.18kn
*GD1=7.57kn
*Gptr1=6.068kn
*Get=1.35kn
*Gpltr=81.09kn
*GD2=7.57kn
*Gptr=6.068kn
*Grev=1.081kn
*GD=7.57kn
*Gptr=6.068kn
*Gconsl=2.24kn
15
3 - Etablissement de plan de fondation et des plans de coffrage d’un
logement R+2 :
Conception plan de fondation avant l’étude :
Conception plan de fondation après l’étude :
16
-chainage intermédiaire : on utilise lorsque surface >20m² ou la hauteur ou longueur > 4m.
- Les poutres : e=L/10 (L : est longueur de poutre, e : est profondeur ou épaisseur) et
l=suivant e de mur inferieur.
- Les bondes noyées : 20x20.
-les consoles : si L<= 60cm e=15cm si L>60cm on doit faire le contre poids = L+20 et
e=L/20+7cm.
-les escaliers : On considère qu’une hauteur de marche confortable doit être entre 17 et 18
cm, et que le giron doit être entre 25 et 30 cm. Grâce à la formule 2h + g, il est alors aisé
de connaître le nombre de marches d’un escalier, mais dans notre cas l’architecte
déterminer g=30 et n=56 donc h=15cm.
-Les hourdis: e (avec dalle de compression)=L/22.5 avec L est longueur de poutrelle, et
l’épaisseur de dalle de compression entre 5 et 7, et les hourdis :12-15-20-25-30, Après on
trace le sens des nervures pour les dalles : dans ce plan j’ai pris ce sens pour les nervures
parce qu’elles suivent la direction de la portée la plus petite.
Les plans de coffrages :
17
18
Détailles de ferraillage :
 Les longrines et poutres: 6HA T10 ET RENFORT : T10, Lr=L/3 +l poteaux +encrage.
19
20
21
4 -Visites des chantiers :
Chantier à Siège 23 bir anzarane essada meknès
22
23
Conclusion:
Le stage que j’ai effectué au sein de l’entreprise ALMR
TRAVEAUX s’est déroulé dans des meilleures conditions, car j’ai pu
enrichir et approfondir mes connaissances.
Ce stage m’a permet d’acquérir les notions théoriques que j’ai
reçu au sein de l’Institut Spécialisé de Technologie Appliquée –
MEKNES (I.S.T.A). Il m’a permis de mettre mes apprentissages
théoriques en application durant toute la période du stage.
Finalement, je tiens à remercier chaque personne qui m’a aidé
de près ou de loin pour passer mon stage dans les meilleures
conditions.

rapport de stage gros oeuvre_compressed.pdf

  • 1.
    1 Remerciements : D’abord, jeremercier Dieu, et je tiens remercier mes parents et ma tous les Personnes de ma famille. Et je tiens à remercier tout l’équipe de ISTA de Meknès spécialement, mon formateur Monsieur , sur leur aide moi. Et je tiens à remercier généralement les techniciens qui travaillent au bureau sud infra pour leurs conseils spéciaux et leurs renseignements durant le cours du stage.
  • 2.
    2 Sommaire : Remerciements………………………………………………………………………………..1 Introduction…………………………………………………………………………… ....….3 Présentationde la société…………………………………………………………………….4 Description de projet ………………………………………………………………………...5 Travail effectué……………………………………………………………………………..11 Liste des abréviations……………………………………………………………………….11 Définition…………………………………………………………………………………..12 a/ Béton armé et ses constituants…………………………………………………………..12 b/Les matériaux entrant dans constitution du béton armé……………………………….…12 c/Les charges……………………………………………………………………………….12 1 Conception des plans de fondation et de coffrage:………………………………………12 Plan fondation……………………………………………………………………………...13 Dessin des plans de coffrage……………………………………………………………….13 2 Etude…………………………………………………………………………………….14 3 Etablissement de plan de fondation et des plans de coffrage d’un logement R+2………15 Plans de fondations ………………………………………………………………………..15 Plans de coffrage…………………………………………………………………………..16 Détailles de ferraillage……………………………………………………………………..18 4 Visites des chantiers (la réception)………………………………………………………21 Conclusion…. ……………………………………………………………………..………23
  • 3.
    3 Introduction : La formationde Technicien spécialisé en gros œuvre au sein de l’Institut Spécialisé de Technologie Appliquée –MEKNES n’est pas limitée à la transmission théorique des connaissances mais consiste également à perfectionner les aptitudes des stagiaires par le moyen d’une période de stage d’un mois dans des entreprises ou des bureaux d’études. J’ai passé ma période de stage au sein du chantier ALMR TRAVEAU à MEKNES et principalement au domaine du bâtiment. Mon objectif principal a été l’ouverture sur le monde du travail et la découverte de la vie professionnelle. Pendant cette période de stage, j’ai assimilé plusieurs informations techniques qui concerne le domaine du gros œuvre en participant à plusieurs tâches dans le bureau ; à savoir l’établissement des plans de coffrages, impression des plans, estimation du béton armé dans un projet de construction…etc. En général, je peux dire que ma période de stage est divisée en trois grandes parties : 1ère partie: La conception de plan de fondation et des plans coffrage d’un logement de R+2. 2éme partie : faire l’étude des poteaux, semelle, poutres, et Les planchers. 3éme partie : Etablissement de plan de fondation et des plans de coffrage d’un logement R+2. 4éme partie : calculer du lot gros œuvre (béton, ferraillage) du logement R+2. 5éme partie : visites des chantiers.
  • 4.
    4 Présentation de lasociété : SOCIETE ALMR TRAVAUX Soyez le premier à évaluer cette société Activité : Travaux divers. Mécanique auto et tôlier. Location d'engins Adresse : N30 Bis Rue 8 Hay El Amane - Meknès (M) Capital : 100 000 DH ALMR TRAVEAUX adapte ses prestations aux demandes et aux exigences des clients, à savoir: • Etudes techniques • Project-management • Etude de faisabilité • Assistance à l’élaboration de dossiers de consultation des entreprises • Estimation budgétaire des travaux • Contrôle technique, suivi et surveillance des travaux sur le chantier • Gestion et suivi financier • Réception de l’ouvrage
  • 5.
    5 Description de projet Celogement d’habitation R+2 a une surface au sol de 129m². La hauteur sous plancher à chaque niveau est de 3m. Soit une hauteur totale de 9m. Pour permettre la circulation et le passage à niveau, il est prévu des passerelles et des escaliers à chaque niveau. La constitution de logement est la suivante : Au Rez-de-chaussée : - Une cuisine……………………………….17.62m² - Un garage……………….………………..15m² - Un séjour…………..……………………...15.84 m² - Un salon…………………………………….35.0.47 m² - Deux Hall…………………….…………...14.16 m² 1er étage : - Un hall ………………………..…………….5.175 m² - Trois chambre…………..……..………..63.35 m² - Dressing …………………………………….6.75 m² - Trois salle de bain……………………...23.96 m² 2eme étage : - Deux chambre………..………………….39.26m² - Un hall ……………………………………...12.76 m² - Un salon……………………….…………….35.05m² - Un s.d.b………………………………………7.45 m² - Une toilette………………………………..7 m²
  • 6.
  • 7.
  • 8.
  • 9.
  • 10.
  • 11.
    11 Travail effectué : Listedes abréviations DP : Dalle pleine LG : Longrine BN : Bonde noyée P : Poteau R/T : poutre S : Semelle E : Espacement # : Quadrillage PV : procès-verbal R.D.C : Rez-de chaussée M.E.G.B : Massif en gros béton
  • 12.
    12 Définition A/ Béton arméet ses constituants : On appelle béton le matériau constitué par le mélange dans les proportions convenables, de ciment, de granulats (sable, pierrailles) et d’eau de gâchage .Et béton armé le matériau obtenu par l’association de béton et de l’armature qui est représenté en barre d’acier. Dans l’association béton armée : Le béton résiste aux efforts de compression et l’acier à la traction. L’acier résiste aux efforts de compression et éventuellement, à la compression si le béton ne peut y suffire à lui seul Le béton a plusieurs avantages sur les autres matériaux de construction comme la souplesse d’utilisation, l’économie, la résistance au feu… B/ Les matériaux entrant dans constitution du béton armé : Le béton : Le béton destiné au béton armé se différencie du béton ordinaire par son dosage et la grosseur du granulat utilisé. - Le dosage c'est-à-dire le poids de ciment par mètre de béton mis en œuvre est, généralement, compris entre 350 et 400 kg de ciment / m³ de béton. - Les granulats utilisés en béton ont une dimension maximale de 25 mm - Le sable est constitué par des grains provenant de la déségrégation des roches ; les grosseurs sont généralement inférieures de 5 mm et il doit être propre. - Les pierrailles sont constituées par des grains rocheux peuvent être extraites du lit des rivières ou par concassage de roches dures. Et ils doivent être propres. - l’eau entant dans la composition des bétons devra être pure, sans acide. Sauf indication contraire du cahier des prescriptions spéciales. Les Aciers : Aciers rends lisses : on utilise les nuances : FeE400 et FeE500. De diamètre : 6, 8, 10,12, 14, 16, 20, 25,32, 40et50. Filles haut adhérence, de diamètre : 4, 5, 6, 7, 8, 9, 10, 12,14. Treillis soudés. Tous les aciers utilisés ont un cœfficient de sécurité γs = 1.15 et ils travaillent dans un domaine élastique et il ne faut qu’ils dépassent ses limites élastique Fe=400mpa. C/ Les charges : Types de charges : Pour les bâtiments a usage administratif ou d’usage d’habitation on distingue, couramment, deux charges principales : 1 - Charges permanentes : G 2 - Charges d’exploitations ou surcharges: Q - combinaisons de charges : Les règles B.A.E.L préconisent l’utilisation des combinaisons suivantes : Etat limite ultime : 1,35G + 1.5 Q Etat limite de service : G + Q 1-Conception des plans de fondation et de coffrage : On réalisé les plans de fondation et de coffrages a bas des plans d’architecte à l’aide de l’AUTO CAD Il faut suivre les étapes suivantes :
  • 13.
    13 On prend leplan d’Architecte et on trace sur ce dernier (pour le plan de fondation prend plan 1er étage et pose sur plan fondation, et pour le plan de coffrage de 1er étage on pose le plan d’Archi de 2éme étage et pose sur le plan de 1er étage). plan de fondation : Nous associons au choix de notre fondation les critères suivants : - Stabilité de l’ouvrage (rigidité) - Facilité d’exécution (coffrage) : tenir compte de la disponibilité humaine et matérielle. - Economie : chercher le meilleur coupe sécurité / coût Méthodologie : La méthodologie utilisée pour la présente étude est celle basée sur l’ordre privilégié suivant : - Semelles (isolées et filantes) - Radier général - Fondation profonde (Pieux) Cependant, par insuffisance de données géotechniques, les fondations profondes seront * pour le cas des semelles isolées on a deux types centre et excentre nous utilise la dernier lorsque on a les voisinages ; lorsque la surface occupée par celles-ci dépasse 50% de la superficie totale du bâtiment, il y’aura un risque inévitable de chevauchement des semelles, par exemple : En considérant les semelles homothétiques autour des poteaux, la surface d’une semelle carrée est donnée par la relation : Semelle = [Nu/Ϭ sol] = (1200/105) = 11,5m² soit des semelles de 3,40x3, 40 (surface réelle : 11,56m²) Surface totale occupée par les semelles : Les semelles isolées étant présentes sous chacun des 46 poteaux, donc 46x11, 56 =531,76m² > 50% de la surface du bâtiment (213,5m²). Conclusion : au vu de ces résultats ci-haut, il y’a impossibilité de réaliser des semelles pour le bâtiment, Cela est dû à la faible portance du sol. (Argile plastique) Et donc nous passerons au choix suivant (semelles filantes ou continue). -Les semelles : soit en utilise semelle isole ou continue vérifier après l’étude. - Le mur de fondation : on prend l=45 cm -Les Poteaux : le minimum est 600 cm² sa déponde l’étude. -Longrine : une longrine est une poutre en béton armé disposée horizontalement entre ou le long de massifs de fondation et servant à mieux répartir les charges des éléments supportés (murs, poteaux, dalles) ou/et à les reporter vers des appuis ponctuels (micropieux,…) et il y a deux types de longrines on a LR : longrine de redressement et LG on utilise le premier lorsque on a semelle excentre et le déférent dans les armatures nous augmentent les renforcements a cote de semelle = L/3. Bonde noyée : un chainage, par exemple on ne peut pas construire de la maçonnerie (double cloisons) sur un plancher en corps creux en dehors des poutres, pour cela on prévoit une
  • 14.
    14 poutre noyée demême épaisseur que le plancher (i pour ça qu'on l'appelle bande noyée (elle apparait pas) -dallage : l’épaisseur 13<e<20 sa dépond si une habitation ou industriel. 2- L’étude : -voile : lorsque on a la poussée de terre (dans le sous-sol) on utilise comme un mur de soutènement e=15cm si il y a une dalle au-dessous (sur le voile) si non e=20cm a 25cm. -dans la fondation on utilise un chainage périphérique de e=15cm et l=45cm qui support entre 20 et 25ton de la charge de semelle il doit déduire 20ton de la charge de semelle. -longrine =20x40, si L>5m on doit faire massif de 50x50x50 dans le centre. -forme en béton y/c aciers (dallage) : e=13cm. -Chainage de fondation : 45x20cm. -chainage périphérique : 45x15cm. -dimensions des poteaux : • Les poteaux de corner (suivante la méthode de B.A.E.L) : *Gmur=65.9kn *Gend=10.18kn *GD1=7.57kn *Gptr1=6.068kn *Get=1.35kn *Gpltr=81.09kn *GD2=7.57kn *Gptr=6.068kn *Grev=1.081kn *GD=7.57kn *Gptr=6.068kn *Gconsl=2.24kn
  • 15.
    15 3 - Etablissementde plan de fondation et des plans de coffrage d’un logement R+2 : Conception plan de fondation avant l’étude : Conception plan de fondation après l’étude :
  • 16.
    16 -chainage intermédiaire :on utilise lorsque surface >20m² ou la hauteur ou longueur > 4m. - Les poutres : e=L/10 (L : est longueur de poutre, e : est profondeur ou épaisseur) et l=suivant e de mur inferieur. - Les bondes noyées : 20x20. -les consoles : si L<= 60cm e=15cm si L>60cm on doit faire le contre poids = L+20 et e=L/20+7cm. -les escaliers : On considère qu’une hauteur de marche confortable doit être entre 17 et 18 cm, et que le giron doit être entre 25 et 30 cm. Grâce à la formule 2h + g, il est alors aisé de connaître le nombre de marches d’un escalier, mais dans notre cas l’architecte déterminer g=30 et n=56 donc h=15cm. -Les hourdis: e (avec dalle de compression)=L/22.5 avec L est longueur de poutrelle, et l’épaisseur de dalle de compression entre 5 et 7, et les hourdis :12-15-20-25-30, Après on trace le sens des nervures pour les dalles : dans ce plan j’ai pris ce sens pour les nervures parce qu’elles suivent la direction de la portée la plus petite. Les plans de coffrages :
  • 17.
  • 18.
    18 Détailles de ferraillage:  Les longrines et poutres: 6HA T10 ET RENFORT : T10, Lr=L/3 +l poteaux +encrage.
  • 19.
  • 20.
  • 21.
    21 4 -Visites deschantiers : Chantier à Siège 23 bir anzarane essada meknès
  • 22.
  • 23.
    23 Conclusion: Le stage quej’ai effectué au sein de l’entreprise ALMR TRAVEAUX s’est déroulé dans des meilleures conditions, car j’ai pu enrichir et approfondir mes connaissances. Ce stage m’a permet d’acquérir les notions théoriques que j’ai reçu au sein de l’Institut Spécialisé de Technologie Appliquée – MEKNES (I.S.T.A). Il m’a permis de mettre mes apprentissages théoriques en application durant toute la période du stage. Finalement, je tiens à remercier chaque personne qui m’a aidé de près ou de loin pour passer mon stage dans les meilleures conditions.