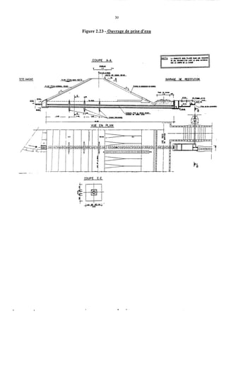
68
Figure 4.3 :Courbe Hymoniétrique (Altitude moyenne 460 M)
1500-
1400-
1300-
1200,
I I 0 0 -
iooo.
900.
aoo.
700
soa
s a
400-
300-
200-
IOo.
O
- ISim
Point culminant

C o t a d u rdro da I’echrllr : 290,083
l
O/, d e Io s u r f a c e du b a s s i n
I I I 1 1
3 IO 20 30 40 50 00 70 80 90 IQO
- Le Niger A Kouiikoro
I
89
Figure 4.19: Temps de base en zone troDicnle sèche
I
1-
I
I
I
I
" 1 I1
! l j I I
--, --.
-. ..
90
Figure 4.20 :Temps de montée pour S< 10 km2 en zone sahélienne
l I
1
. 4
3 5
SuperScie en km2
91
Figure 4.21 :Temps de montée pour S > IO km2 en zone sahélienne
92
En zone tropicale sèche, le rapport Qret1O/Qxr 1O semble lié davantage à la surface du bassin dont
dépendent les possibilités de stockage superficiel (dans les lits des cours d'eau par exemple) ou
interne (horizons pédologiques, voire géologiques) qui favorisent l'écoulement retardé :
- pour les petits bassins imperméables (jusqu'àquelques dizaines de km2) :
QmaxlO = 1,03.Qxr10;
- pour les petits bassins perméables : Qmax10 = 1,05.Qxr10;
- pour les grands bassins imperméables (plusieurs centaines de km2) avec un réseau
hydrographique bien marqué : Qmax10 = (1,lO à 1,15).Qxr10;
- pour les grands perméables avec des lits suffisamment larges :
Qmax10 = (1,15 à 1,20).Qxr10
7. Estimer éventuellement le volume total de crue : VclO = (QmrlO + QretlO).TblO
8. Préciser la forme de I'hydrogramme décennal en déterminant également le temps de montée
Tm10.
2.2.2 Détermination de la crue centennale
Sauf dans certains cas particuliers, une durée de vie égale à dix ans est insuffisante. Faute de
mesures suffisamment nombreuses, pour protéger un ouvrage contre une crue d'une durée de
retour supérieure à dix ans, on convient généralement de majorer la crue décennale à l'aide d'un
certain coefficient sans que nécessairement on ait une idée précise de la fréquence de la crue ainsi
calculée.
- G. MATON (11) proposait de multiplier par 1,45 la valeur de la crue décennale pour évaluer
la crue centenaire.Cette valeur est tenue maintenant pour trop faible.
- L'ASEER (Association Européenne d'Etudes d'Equipements Ruraux) (1) en 1963 préconisait
de multiplier par 2 la crue décennale pour obtenir la valeur d'une crue "exceptionnelle" qu'on
peut appeler crue de projet (crue trentenaire? centenaire ?).
Méthode d'établissement du coeff7cientmaiorateur d'aDrès GRESILLON,
HERTER, et LAEIAYE
GRESILLON, HERTER, L A E U E se proposent de définir Ie coefficient majorateur à adopter à
partir d'une estimation de la crue centenaire d'après la méthode du gradex de GUILLOT et
DUBAND.
L'hypothèse de base de la méthode est que le supplément de pluie par rapport à une certaine valeur
dont la durée de retour est grande ruisselle intégralement. Si la loi de probabilité des pluies de
durées t données a une décroissance exponentielle (gradient exponentielle = gradex), on montre
alors que Ia loi de probabilité des débits moyens sur la durée t est "parallèle'' à celle des pluies
(exprimées dans la même unité) pour les faibles probabilités de dépassement : le gradex des pluies
est égal au gradex des débits. Une fois obtenu le débit moyen, on calcule le débit de pointe de
l'hydrogramme en admettant que le rapport R de ces quantités est constant.
93
On supposera ici :
a) - Que la méthode est applicable au delà de la crue décennale. Cette hypothèse est bien entendu
d'autant plus contestable que la perméabilité du bassin du bassin est plus forte : très
vraissemblable pour un bassin dont le coefficient de ruissellement de la crue décennale est égal
à 0,6, elle l'est beaucoup moins lorsque ce même coefficient est égal à 0.1. Nous nous
limiterons donc aux perméabilités P2 et P3 de la classification précédente (Bassins
"relativementimperméables" selon les auteurs de la méthode du gradex).
b) - que la loi de probabilité des valeurs extrêmes des pluies a une décroissance exponentielle. Les
études de BRUNET -MORET ainsi que quelques ajustements effectués au Burkina montrent
que cette hypothèse est admissible.
c) - Que l'hydrogramme proposé par RODER et A U W Y est applicable au calcul de la crue
centenaire (dans la réalité les phénomènes mis en jeu ne sont pas linéaires et les durées
caractéristiques des hydrogrammes peuvent varier notablement en fonction de l'intensité de la
pluie).
d) - Que le rapport R de la valeur du débit de pointe au débit moyen sur la durée t retenue est égal
au coefficient de pointe a10 adopté par RODER et AUVRAY pour les hydrogrammes. En
conséquence, nous choisissons un intervalle de temps t (pour la pluie comme pour la crue
moyenne) égal au temps de base de les l'hydrogramme. Il y a donc ici une incohérence
théorique entre le diverses durées utilisées, le calcul de la crue décennale étant effectué à
partir de la pluie journalière et celui du "supplément de pluie" sur une durée différente.
Cependant, sur le plan pratique, cette différence ne doit:pas conduire à une erreur importante
car les courbes intensité durée sont rapidement décroissantes (les averses ont en général une
durée inférieure à cinq heures et la pluviométrie est ainsi sensiblement constante pour des
variations importantesde la durée).
Que, pour une fréquence donnée, les hauteurs d'eau précipitées sont liées à leur durée par une
loi de MONTANA h = h$! D'après les études de BRUNET -MORET et plus récemment
celles de MOUNIS et MANSONGI sur les averses exceptionnelles en Afrique Occidentale et
Centrale
Le coefficient n ne dépend pratiquement pas de la dunie de retour et présente une variation
spatiale faible (et sans tendance systématique). On retiendra donc une valeur unique pour les
pluies décennales et centenaires : n = 0.12. On vérifie ici par la faible valeur de ce coefficient
que les courbes précipitations durées sont très plates.
Que le coefficient d'abattement est le même pour les crues décennales et centenaires : (la
formule proposée par VUILLAUME permettrait de déceler des variations de l'ordre de 10%
qui ne sont pas significatives).De toute façon le coefficient d'abattement est très certainement
décroissant avec la pluviométrie et le coefficient retenu pour la crue centenaire va ainsi dans le
sens de la sécurité.
94
Dans ces conditions :
Si QlOO
QI0 est la crue décennale
tblO
PlOO
P10
al0, A et S les mêmes qu'auparavant
Kr10
est la crue centenaire cherchée
est le temps de base du bassin exprimé en heures
est la pluie centenaire de vingt quatre heures
est la pluie décennale de vingt quatre heures
le coefficient de ruissellement de la crue décennale
n
a .A.S
QlOO = QlO +
t.
" O L 1
Le coefficient maiorateur C
La crue centenaire est donc déduite de la crue décennale par l'intermédiaire d'un coefficient
majorateur
Pl00-P10 (tbl0/24)n
KrlO
)P10
C = l + (
L'étude du rapport (P100 - P1O)PlO en Afrique Occidentale permet de constater que ce rapport
est sensiblement constant et de retenir pour la suite de cette note les valeurs 0,45 en régime
sahélien et 0,38 en régime tropical. Sur la figure ci-dessus, on a représenté la valeur du coefficient
majorateur C en fonction du coefficient Kr pour diverses valeurs du temps de base tb.
La signification de ce coefficient est Drobablement douteuse Dour des valeurs de Kr
inférieures à û,3.
On constate que le coefficient majorateur proposé par MATON (1,45) représente un ordre de
grandeur valable pour des bassins imperméables (Kr > 0.6). Pour les petits bassins la valeur
proposée par I'ASEER (2.00) surestime les crues centenaires et particulièrement en régime
tropical.
On vérifie d'autre part que les variations en fonction de tblo ne sont pas très importantes
(exposant n = O. 12 faible)
Enfin, on remarque que la distinction entre régime tropical et sahélien conduit à des différences
peu importantes. Nous conserverons néanmoins cette distinction puisqu'elle existe déjà dans le
calcul du débit décennal. Cette remarque nous permet cependant de constater que le rapport
(PI00 - PlO)/PlO peut présenter des variations assez importantes sans que la valeur de C soit
beaucoup modifiée et que les résultats obtenus sont donc également acceptables dans les zones de
la côte occidentale pour lesquelles le rapport ' p l ~ ~-'10' est plus élevé.
pl O
Figure 4.23 :Rapport entre la crue ceriteiinale et la crue décennale en fonction du
coefficient de ruissellemerit pour la crue décennale et pour divers temps de base de
1’11ydrog ramme
C = l + P I O O - P I 0 ( t b / 2 4 ) ’ ” *
P IO K R
, - P I O O - P I 0
P IO
r e g i m e s a h i l i e n r e g i m e t r o p i c a l - ‘‘O :0,38
P 10
96
2.2.3 - Schématisation des hydroerammes d'après GRESILLON, HERTER et
LAHAYE
11importe de connaître la forme des hydrogrammes des crues exceptionnelles contre lesquelles on
a choisi de protéger les ouvrages.
Les hydrogrammes dont on connaît les temps de base et temps de montée grâce à la note de MM.
RODER et AUVRAY sont intitulés "hydrogrammes unitaires". Pourtant la note en question qui
effectue le calcul des débits des crues exceptionnelles en adoptant ces temps comme
caractéristiques des hydrogrammes adoptés par les auteurs à partir des données présentées par
DnREUIL montre que ceux-ci peuvent en fait être considérés effectivement comme typiques des
crues exceptionnelles et non unitaires.
Ainsi, nous construisons des hydrogrammes schématiques en trois tronçons linéaire respectant les
données relatives a ces crues et déjà rencontrées auparavant :
Qmax :
tblO : temps de base de hydrogramme
tm10 : temps de montée des eaux
a10 :
débit maximum de pointe calculé précédemment
rapport entre débit de pointe et débit moyen de la crue.
Figure 4.24 :Schématisation de I'hvdroeramme
temps
I t m i o t
La diminution du débit est représentée par une ligne brisée dont la première partie est constituée
par le symétrique de la montée et la fin par une droite rejoignant la durée tblo. Le changement de
pente s'effectue à un débit Q dont la valeur est fixée par une relation exprimant que le débit
maximum et le débit moyen de la crue sont dans un rapport a l 0
. b r
97
0 -alO-tm10
On montre en réalité que dans les cas les plus courants, la deuxième partie de la descente ne joue
aucun rôle en ce qui concerne le rapport Qemax/Qmax, c'est ce qui nous a permis de ramener
I'hydrogramme à une montée linéaire de durée tm et une descente symétrique. Les paramètres
définissant l'hydrogramme sont alors : Qmax et tinlO.
La crue exceptionnelle dont le débit maximum est égal à Q m a est théoriquement provoquée par
une pluie uniforme dont la durée est égaie au temps de montée tm10. On sait que les pluies de
même fréquence mais dont les durées sont supérieures à tm ont une intensité moindre et
provoquant des débits maxima de crue inférieure à Qmax . Toutefois l'effet du laminage sur celles-
ci est moins fort et il importe de rechercher la valeur Qerna la plus importante après laminage,
aussi avons-nous considéré également des hydrogrammes schématisés par une forme trapézoïdale :
- Montée des eaux de durée tln 10
- Valeur maximum du débit Qcm depuis le temps tmlO jusqu'au temps to
- Descente des eaux symétrique de la inontee.
Cet hydrogramme représente théoriquement une crue provoquée par une pluie uniforme dont la
durée est to
Le débit Qcm est lié au débit maximum Qmax de la crue et aux temps tm10 et tO si l'on admet que
la loi de MONTANA s'applique aux pluies considérées et si d'autre part on considère pour
simplifier, que les débits maxima Qmax et Qcm sont proplortionneis aux intensités des pluies qui
les provoquent 1
Figure 4.25 : Hvdrograrnme tramboïdaie
temps
-..--. .
.--CI-1! ...*-
i I ...-.*--
itn 1- - _ . 4:'
intensité
: I
Q
O
I
98
ICHAPITREV 1
1 - PRINCIPE DU LAMINAGE -MISE EN EQUATION
Dans les petits bassins versants, les débits de crue instantanés sont souvent relativement élevés,
mais le volume des crues est en général assez faible et les crues peuvent être laminées de façon
appréciable par stockagedans la tranche disponible entre la. cote du déversoir et celle des plus
hautes eaux. Le débit qui passe dans l'évacuateur de crue (Qe) est inférieur à celui de la pointe
de la crue à l'entrée de la retenue (Qc). L'effet de laminage de crue dépend de la forme de
I'hydrogramme de la crue entrant dans la retenue, de la capacité d'évacuation du déversoir de
crue et de la forme de la partie supérieurede la retenue.
L'étude du laminage consiste soit à déterminer la cote maximale atteinte par le plan d'eau
pendant la crue, les dimensions du déversoir de crue (longueur déversante) étant fixées à
priori, soit à déterminer les dimensions de l'évacuateur de crue, la hauteur maximale du plan
d'eau au-dessus de l'évacuateur de crue étant fixée à priori;
En général, pour des raisons d'hydraulique, on adopte une hauteur du plan d'eau au-dessus du
seuil des évacuateurs de crue à système de contrôle déversant comprise entre 0,60 et 1,50m.
L'étude doit être effectuée pour des crues de forme et de durée diverses afin de déterminer la
cote maximale du plan d'eau et le débit maximal correspondant de l'évacuateur de crue dans
les conditionsles plus défavorables de laminage.
Cette étude peut être faite sur ordinateur, ce qui permet d'utiliser un grand nombre
d'hydrogrammes et d'obtenir des résultats assez précis si l'on dispose de bonnes données
hydrologiques.
. .
99
Figure 5.1 - Effet du laminage de crue sur l'liydrograrnrne ii la sortie de la retenue
Y------
1O 0
Figure 5.2 - Laminaee de crue par la retenue
Hydrogramme de crue
2 l’entrée de la reienueI Débits
~~
Volume stocke
Hydrogramme sortant
a I’evacuateur de crue-
Volume destocke
===--Temps
Le mécanisme du Iaminage peut être traduit rigoureusement par l’équation différentielle suivante :
Q, (t)d t = Q, ( 2 ) d t t
élément de élément de Variation
volume = volume + de volume
entrant sortant dans la retenue
A(z) dz
t : temps
z
Q,
Q,
A@) : Aire du pian d’eau à la cote z.
: cote du pian d’eau
: débit de crue entrant dans la retenue.
: débit sortant de la retenue par l’évacuateuride crue
101
- EQUATION DE CONTUINITE
Nous écrivonsle bilan en volume des différents apports pendant le temps dt :
- volume entrant Qc(t)dt
-volume sortant Qe( W
- variation de stock : A ( Z W
ce qui permet d'écrire :
2 - RESOLUTTON
Il existe de nombreuses méthodes pour résoudre cette équation.
2.1 - Calcui numériclue
La résolution de l'équation peut aussi être faite numériquement par exemple avec la méthode
de Runge-Kutta.
L'équation est de type :
dz
dt
-= f(t,z)
Les différentielles totales sont apptoximées par des différences finies :
Azdz
dt At
Y --
La valeur de la fonction f(t,z) est estimée dans l'intervelle [t ;t +At] par une fonction <b(t,z,At).
La valeur de 4 est une moyenne de valeurs de f dans l'intervalle [t ;t +At].
Quatrevaleurs de f sont calculées :
f* =f(t,z)
fi =f(t +-,,+for>At At
2
f2 = f(t +-,z+f,Z>At At
2
f3 =f(t +-,z+fzAt)At
2
dont nous faisons une moyenne
+(t,z,At) =z[fo +2fi +2f2 +f3]
La vaieur de la cote du plan d'eau au temps t + At es ainsi :
Z =Zt +&t,z,At).At
Le calcul est poursuivijusqu'à obtention de l'hydrograrmne laminé complet.
1
t-At
102
2.2 - Méthode basée sur l'éqiiation de coiitiniiité : tableau de calcul
AV
Qc =Qe +x
AV = Variation de volume dans un pas de temps donné At
AV=(Qc-Qe)At et AV=AAh
A b =(Qc-Qe>At
n
-
Qe = 1nLJ28h'.~ -+ Qe = ~ n L f i A h ' * ~(Pour un déversoir)
On fait le tableau ci-après, la longueur (L) du déversoir de crue étant fixée à priori.
.
104
Procédure de calcul par tableau
Le calcul s'effectue pas à pas suivant les différentes colonnes.
Chaque étape (intervalle de temps entre deux instants) est bâtie sur les résultats de l'étape
antérieure. A l'instant to = O. On est à la cote du plan d'eau normal (PEN) et aucun débit
entrant n'est observé ;le barrage est plein mais ne déverse pas.
Le cheminement du calcul établit une itération à partir des colonnes 7 à 14 pour calculer la
lame d'eau sur le seuil. Après épuisement des calculs d'une étape, on revient toujours à la cote
du PEN pour faire le cumul de la lame d'eau et obtenir la cote atteinte par le plan d'eau à
l'étape considérée (colonne 7) ;On fait : cote PEN + lame d'eau sur le seuil.
Entre deux instantsti-1 et ti, on lit sur l'hydrogramme de cnie les débits entrant Qc(ti-1 ) et
Qc (t; ). Connaissant l'intervalle de temps At entre ti-1 et ti, on calcule le volume moyen
entrant de la crue par :
A partir de la colonne 7 on se donne à priori une valeur de lame d'eau à la colonne 9 (h
estimé).
On calcule P(ti) = PEN +hestimé et on lit sur la courbe Hauteur - Surface, la surface S(ti) du
plan d'eau. On calcule dans la colonne 10 le débit sortant à l'évacuateur à l'instant ti avec la
lame d'eau considérée (hestimé ). Ensuite on calcule selon les colonnes 11 et 12 le volume
moyen sortant à l'évacuateur par :
Dans Ia colonne 13, on calcule la variation de volume AV durant At entre ti- 1 et ti :
AV =vc-Ve ,c'est dire (colonne 6 - colonne 12)
La variation de volume s'accompagne d'une variation Ah de la lame d'eau que l'on calcule à la
colonne 14 par :
Après avoir obtenu une valeur de Ah, on la rajoute à la valeur h(ti-1) de la lame d'eau sur le
déversoir à l'instant ti-1 pour calculer la nouvelle valeur h(ti) de la lame d'eau :
h(t;) = h(ti-1) + Ah
Entre les colonnes 7 à 14, les calculs sont reconduits pour chaque étape jusqu'à convergence
de la valeur de Ah qui fixera la convergence de la lame d'eau sur le seuil. On obtiendrait alors
h(ti) identique à hestimé
2.3 - Laminaige par l'éqriatiori de continuité :Abaques de calcul
La forme de I'hydrogramme de crues est :
- soit triangulaire (pointu)
- soit arrondi.
On associe le débit de pointe, Qc de I'hydrogramme à une hauteur fictive, zCsur le seuil
T,(s) = temps de montée
A(&) = surface du plan d'eau à la cote de déversement
a(m) = hauteur au-dessus du seuil telle qu'à cette hauteur ia surface du plan d'eau passe à 2A.
curface 3A
P
1 l a
Le débit de pointe de la crue laminée, Qe est telle que :
2 Cas de calcul :
- On se fixe à priori une longueur de déversement.
On calcule les termes suivants :
Z QeMC et A s on lit sur l'abaque le rapport -
QcTm a Qc
- On se fixe à priori une hauteur de déversement (Ze fixé)
On calcule les termes suivants :
ze Qeet -3 lire sur l'abaque le rapport -
a QcQcTm 1
'Noter : Q(m3/m)
A(m2)
.
1O6
Figure 5.3 :HYDROGRAltlME ARRONDI
n.. l
2
Q e 1.0
Q c
-
0.9
O. 8
/
Y /'
d é f i n i l i o n d e a :
surface ?A
F
1 1 0 1 O0
0.0 2
107
Figure 5.4 :HYDROGRAMME POTNTU
y/” û e iaminé -
1
ddfinition de O :
0.25 0.50 0.7 5 1.00 us ’ 1.5 O
- dftermiiilitioii gr;ipliicpc du débit lamini ;cas d’une m e i hydropmme pointu.
,
1O8
2.4 - Enure de blackmore
On peut également effectuer l'étude de laminase de crue par la méthode graphique de
Blackmore dont le principe est le suivant :
Pendant un intervalle de temps At, la variation du volunie d'eau stockée A v se traduit par
l'expression :
Dans un plan repéré par un système d'axes avec les volumes stockés en ordonnée et les débits
en abscisse, pendant un intervalle de temps At, l'équation v = f(Q) est représentée par une
droite de pente At et passant par les points d'abscisses Qc et Qe
On établit un graphique
Figure 5.5 - Coristructiori craphiqiie de l'épure de Blackmore
20
18
16
14
12
10
a
6
4
h max
1 1
1
Charge sur le déversoir en rn.
,
- - - - - - - - -
- - - - - - - - -
- ---- - - - -
- - - - - - - - -
- - - - -
- - - - ---- -
- - - - -
- - - - -
I L
- - - - - -
10 - 4 0 5 0 a+
Debits de crue et d'évacuation PR m 3 l s
OStail d'un intervalle
O,= debit de crue
Q,:debit de l'évacuateur de crue
Pendant l'intervalle de temps At entre t3 et t4 on a :
- Qe4 +Qe3
Qemoyen - 2
At
2En construisant à partir du point 3 d'abscisse Qe une demi-droite de pente -, jusqu'au point
At
2d'abscisse Qcmoyen, puis de ce point une autre demi-droite de pente - -. celle-ci recoupe la
courbe des Qe en Qe4 tel que
En poursuivant la construction on passe par un maximum (point 11) dont l'ordonnée
correspond au volume maximal stocké dans la retenue pendant la crue.
110
Déversoir
FRONTAL
/CHAPITREVI 1
Coursier
Canai à surface libre
1 - DEFTNTTTON
COL LATERAL
TULIPE
Les évacuateurs de crues sont des dispositifs de sécurité placés dans les barrages pour assurer
convenablement l'évacuation des trop-pleins et leur restitution adéquate dans le thalweg en
aval. Ces trop-pleins sont calculés sous forme de crues exceptionnelles.
-
Ecouiement mixte par
2 - GENERALITES :CONSTITUTION ET CHOIX DES EVACUATEURS DE CRUES
SIPHON
Généralement un évacuateur de crue est constitué de trois parties ou organes principaux
-
-
-
un organe de contrôle du débit (par exemple un déversoir, une vanne,...)
un coursier (canal, conduite) ;
un dissipateur d'énergie installé au pied du coursier.
conduite -
en charge
Il existe plusieurs types d'évacuateurs de crues d'hydraulicitk différente.
EVACUATEUR TOTAL
1LATERAL 1Canal à surfàce libre
PRISE DE FONDr en charge
lvms A CLAPETS
Dissipation
Becs déviateurs
Bassin à ressaut
Bassin à ressaut
Impact
Bassin à ressaut
Impact
Impact l
Becs déviateurs
Saut de ski-
1)EVERSOIRS
Jet 3 l'air libre
ou
j e t noyé
--_-__L_
Surface libre
ressaut
-___---
Jcl sur iine
structure
Forniules
r ;O ;longueur
i'ositionricmcril du rcssaul.
Calcul de profondeurs coriju
guies.
~
Abaques
--
Sitrface llbrc
jet dans l'eau
nrriortlwxnciit
par difîusion
,-
A baqucs
C'al cIll
CalciilF:colllelliciit
Siirfacc liluc
dénoy6
ou iioyc
- --_-
Siirfacc libre
dénoyé
O11 noyé
iifacc lihc
dénoyé
CI1 Clinlp,C
__---
c o i i hncII I
en cliargc
-. --.-
'coiilrlilciil
en cliargo
I
Surfece livre
dénoyé
Vennc6
v O
c
urfacc librl
dénoyé
orifice
Fioulcniznt
Ctieriai d'écaiile-
nicnt Iluvi.~i
Y
torrestici
-__.-
Forniiilt
I'siiniation de Ils
ciilcu1.tic courbe
ûe rci1ious
-----
OU
- -
Canai à surface Libre neci ciiviatcurs
-
en charge
-
ilüssins à ressautConduite en charge
~
Mixte dans une condulic cri charge à
l'riiii oiit
j l'aval
SurfaCC llble Courbe de rerrious
en cicial
circuIaire
112
Fig.6.2:Déversoirfrontal(iprofilcreagermodifié
8
4
.-
II>
O
.-
O
3
114
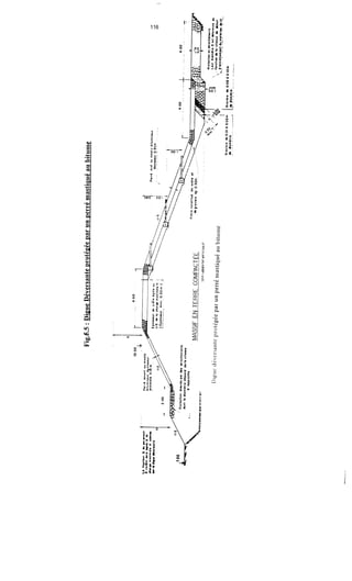
Fig.6.4 :Tulipe -Déversoir à Daroi latérale
-1
# *
115
Fig 6.4. bis - Déversoir posé sur le barrage
116
117
Fig. 6.6 : Evacuateur siphon sommaire Doiir petit barrage
{extrait de "desigii of small dams")
Figure 6.7 : Evacuateur siphoii ifaible charee et fort débit
{extrait de "design of small dams")
tube de
égaliseur de pression
- . . . - - . - -- . . . . . . _ . . . .. _ _ _- - - - . _ . . _
nappe
- - - - _ _ .
A - - -
.. .... -
p o i n t de :accordement
6 '.
RC
D
On recommande une courbure du siphon telle que : -=2.5
.
118
Les critères de choix d'un évacuateur de crue sont les suivants. Ils sont au nombre de 7 :
1. sûreté - sécurité de fonctionnement ;
2. Prix (facteur économique) ;
3. Difficulté de calcul hydraulique ;
4. Difficulté de calcul hydraulique ;
5. Exigence topographique, géologique et géotechnique ;
6. Facilité d'entretien ;
7. Possibilité de modifier l'ouvrage.
3 - CALCUL HYDRAULIQUE DES EVACUATEURS DE CRUES
3.1 - Déversoir
Le débit d'un évacuateur de crue est généralement contrôlé par le déversoir situé dans la partie
amont de l'évacuateur. Pour qu'il en soit ainsi, les parties aval (chenal, coursier, puits, galerie,
bassin de dissipation d'énergie...) doivent être conçues pour évacuer le débit du déversoir sans
perturber l'écoulement de celui-ci, c'est-à-dire de telle manière que cet écoulement soit dénoyé
3.1.1 - Déversoir linéaire
Le débit déversoir linéaire en écoulement dénoyé est donné par :
L = longueur déversante
h = charge sur le déversoir
C = m a = 4,429 m
m = coefficient de débit qui dépend notamment de l'épaisseur B du déversoir par rapport à la
charge h, et de la forme de la crête du déversoir. Les courbes ci-après donnent les valeurs
approchées de m (de C) dans l'hypothèse où la profondeur de pelle P est suffisante pour
que la vitesse d'approche du déversoir par l'eau soit négligeable.
Q = C$/2
Fig.6.8 :Profils de déversoirs linéaires
Déversoir à .cré:e v i v e ( 2 )
Fig. 6.9 :Valeurs approchées du coefficient de débit d'iiri déversoir linéaire
C I
2,04 j
1.95 j
t , 8 6 ,
1 , 7 7 '
i 3 8
1 , 5 9
1 . 5 1
! , 4 2
1.33 ~
ni
O ,46
0 , 4 4
0 , 4 2
0 . 4 0
O , 3 8
0.36
0.34
0 , 3 2
O ,30
b .
.
120
Fig.6.iO :Coeficients de débit
_. . .. . _."I. . .. ._- . ...... ..
121
Si la profondeur de pelle P à l'amont du déversoir se rapproche de la charge h ou devient
inférieure à celle-ci la vitesse d'approche de l'eau n'est plus négligeable et le coefficient de débit
m est légèrement majoré en fonction du rapport h/P.II peut être calculé par la formule de
Rehbock pour un déversoir à paroi mince :
- h
Déversoir mince paroi quand : B 5 -
2
h
Seuil épais quand B > -
2
Quand P+h ou quand P 5 h,
h
1050h - 3 P
+ 0,OS-)
23 m = -(0,605 +3
3.1.2 - Cas d'un déversoir fonctionnant en récime nové
Si l'évacuation des eaux à l'aval du déversoir se fait dans des conditions telles que le niveau de
l'eau en aval remonte au-dessus de la cote de la crête du déversoir, lorsque la hauteur d'eau h2
au dessus se cette cote atteint ou dépasse les 2/3 de la charge h l sur le déversoir, celui-ci sera
considéré comme noyé !
2
sih2 27 hi, alors déversoir noyé.
Fig. 6.11 : Déversoir en écoulement riové
Le débit d'un seuil épais en écoulement noyé peut être calculé par la formule :
Q = 0,90Lh2 J 2g(h1-h2)
.
122
Une digue déversante peut être considérée comme un seuil épais, d'épaisseur égale ii la
largeur en crête de la digue.
Lorsque le seuil est noyé, il y a réduction
le rapport hl - h2 est petit. La courbe
coefficient de réduction k à appliquer.
hl
du coefficient de débit d'autant plus importante que
établie par 1"'U.S. Bureau of Reclamation" donne le
Figure 6.12 :Réduction du coefficient de débit d'un seuil normal en écoulement noyé
.
123
Figure6.13:Coefficientdedébitpourseuilnoyé
.
124
3.1.3 - Les seuils normaux
Fig. 6.14 :Seuil normal
Les seuils normaux (profil Craeger, profil Scimeni) sont des déversoirs dont la crête et la partie
aval sont profilées de manière à épouser la forme de la lame déversante. Les indications de la
figure permettent de déterminer le profil normal d'un déversoir à parement amont vertical.
Le coefficient de débit m d'un seuil normal varie de 0,45 (C = 1,99) à 0,49 (C = 2,17) suivant
la vitesse d'approche de l'eau en fonction de la profondeur de pelle P à l'amont du déversoir.
3.1.4 - Déversoirs circulaires pour Puits ou Tulipes ou Moines
Les déversoirs circulaires (puits ou tulipes) fonctionnent comme les déversoirs linéaires du
même type tant que le rayon R du déversoir est suffisamment grand par rapport à la charge h
sur le déversoir pour que la contraction des filets liquides dans le puits ne gène pas
I'écoulement sur le déversoir qui reste alors dénoyé. Le déversoir est donné par la formule:
- Q = m2&& h3'2 = 27,83idU1~'~
h
R
-Pour des valeurs de - < 0,25, m prend
linéaires
les mêmes valeurs que pour les déversoirs
h
R
- Pour 0,25<- < 0,50, la valeur de m décroîtjusqu'à 25% environ
h
R
- Pour des valeurs de - > 0,50, la valeur de m décroît très rapidement et l'écoulement
est noyé.
125
En écoulement noyé,
puits et galerie qui
augmenter
Lorsque le déversoir
le débit est contrôlé d'abord par l'orifice du puits et ensuite par l'ensemble
fonctionne comme une conduite en charge si la charge h continue à
fonctionne en "dénoyé", il faut éviter les dépressions dans les puits. Pour
cela il faut que la charge disponible dans chaque section du puits (distance de la section à la
surface libre moins les pertes de charge jusqu'à Ia section) soit supérieure à la charge
équivalente à la vitesse de circulation de l'eau dans la section (-). Dans ce but on prévoira
V2
29
un déversoir de grand diamètre suivi d'un convergent et d'un tube de plus petit diamètre
.
126
Fig. 6.15 :Coefficients de débit pour diversoir en Tulipe
127
3.2 - Siphon
L'écoulement dans un siphon se calcule comme dans un tuyau coudé. Pour mener l'évaluation,
il faut connaître :
- la charge disponible ;
-
-
les pertes de charge à prendre en compte ;
la fraction de pression atmosphérique disponible pour la partie ascendante amont.
Pour un siphon de section rectangulaire constante, le débit par unité de largeur est donné par la
formule :
D = hauteur de la section,
H = différencede charge disponible entre le réservoir à l'amont et la cote de restitution ,
j = Somme des différences pertes le long du trajet de l'eau à savoir, al, et v1 étant l'aire
de passage et la vitesse au niveau de la section supérieure du siphon et a0 et vo l'aire
de passage et la vitesse à la section de sortie :
3
v1
29
- pertes à l'entrée dans le convergent je =0,2-
- pertes dues au frottement j, = 0,25--
3
v1
2g
V?
- pertes dues aux courbures supérieures et inférieures jc = 0,42-
29
3 3
v l VL,
- pertes au divergent de sortie j, = 0,2(-- - -)
29 29
a, v l
- pertes à l'orifice de sortie js= (A)""-)
a. 39
Figure 6.16 - Schéma d'un siphon rectanguiaire
128
Pour éviter les phénomènes de cavitation très nuisibles et générateurs de vibrations et chocs
dangereux, il faut vérifier :
[d + pertes de charge depuis l'entréejusqu'à la crête + hauteur due à la mise en vitesse
2V,
Rappel : Cavitation = mise en vaporisation de l'eau sous l'effet de la dépression
L'eau se vaporise à eu près à + 0.50 m en pression absolue ou -9.50 m en pression relative.
1 atm = 1 bar = 10PPa= 10 in CE
3.3 - CHENAL D'ECOULEMENT ET COURSIER
Fig. 6.17 : Chenal d'écoulement et coursier
pi; e 2 L
I i
I Il
l
I
8
I L '
i r
i
seuil l I 1 I
c hena 1 l coursier I bassin de dissipation1
I
- - .
1
Section de contr
3.3.1 Chenal d'Ecoiilement
Le chenal fait directement suite au déversoir, dans le cas d'un évacuateur de surface. Sa pente
est suffisamment faible (KIc) pour le régime y soit fluvial.
En général, le chenal est de section rectangulaire qui est la disposition hydraulique la plus
intéressante après un déversoir. Sa longueur est rarement importante car il sert uniquement à
passer le sommet du barrage avant d'aboutir au coursier en aval.
Les calculs hydrauliques sont difficiles et inaccessibles si l'on ne dispose pas de moyens
informatiques avec les programmes adéquats ou si l'on ne réalise pas un essai en modèle réduit.
129
Le chenal étant trop court, le régime n'y est pas uniforme en général. immédiatementà l'aval du
déversoir, il s'établit un ressaut qui amène l'écoulement fluvial. A l'extrémité du chenal, là où
s'amorce le coursier, on établit au niveau du changement de pente un léger rétrécissement en
convergent pour bien marquer le passage en écoulement torrentiel.
Les conditionsd'écoulement se vérifient en calculant la profondeur critique yc.
Pour un canal rectangulaire :-
= 0.47(r)Q 2/3
C
où
Q = débit en m3/s
L = largeur du canal en m
g = accélérationde la pesanteur en m/s2
La profondeur normale Yn (profondeur qui apparaît pour le débit Q et la pente 1du chenal si
l'écoulement était uniforme) se déduit de la formule de Mavining - Strickler
R = rayon hydraulique en m
1= pente en m/m
s= Sectionmouillée en m2
K = coefficient de rugosité
L'écoulement est fluvial si yn > y,
Le calcul s'effectuepour le débit maximum, mais aussi pour des débits intermédiaires.
3.3.2 - Coursier
Le coursier fait suite au chenal et conduit l'eau au thalweg. Il est plus souvent construit en
béton et il est fortement conseillé de lui donner une section rectangulaire, ce qui assure un
écoulement régulier. L'expérience montre que la forme la plus économique correspond à une
largeur égale ii cieux fois le tirant d'eau.
1=2y
En première approximation,la largeur du coursier peut être donnée par la relation :
1 -~ 0 . 4
l(m>, Q(m3W
En général, le coursier commence par un convergent amenant à la section de contrôle (section
où la hauteur critique est atteinte), à partir de la quelle la pente augmente.
La longueur minimum du convergent est donnée par :
Lc = 2.5 (il - 12)
1, = largeur au plafond du bief amont
i, = largeur au plafond de la section de contrôle
,
130
Calcul du tirant d'eau y :
- A la section de contrôle on a y = y,
- le long du coursiery <yc Il s'estime aisément avec les abaques.
Hs = énergie spécifique (énergie ramenée au radier du canal)
)
QL'abaque donne y/Hs = f(
f i 1
1= largeur du coursier
Hs dépend de la charge amont et de la perte le long du coursier. Hs est variable selon la section
considérée.
* pertes de charge linéairej = qAH
avec q = O pas de perte de charge
q = O. 1 coursier court c-à-d inférieur à 5 A H
q = 0.2 coursier long c-à-d supérieur à 5AH
* Pertes de charge singulières :js
si les convergents et divergents sont dimensionnésde telle sorte que
tg a < -où F = nombre de Froude F = -
Dans le cas contraire, il faut calculer les pertes de charge singulières selon les coefficients
usuels de pertes de charge dans les élargissements rétrécissements.
1
3F
V
on prendrajs:=O
Jgy
Dans une section quelconque : H, = AH - pertes de charge.
A la section de contrôle : Hc= 1.5 yc
131
Connaissant &,l'abaque permet de déterminer le tirant d'eau correspondant.
11est ainsi possible d'avoir section par section un ordre de grandeur assez approché du tirant
d'eau.
En pratique, il suffit de calculer y à chaque changement de pente et d'interpoler linéairement
entre les sections.
Pour déterminer la largeur du coursier 1= 2y, on procédera par approximationssuccessives en
se donnant au départ, a partir de la longueur du chenal, une première valeur de 1.
132
Figure 6.18 :Abaque pour le calcul du tirant d'eau dans le coursier
133
Calcul de la revanche
La revanche à donner au coursier est selon "Design of small dams''
R = 0.6
R (m) = revanche
V ( d s ) =vitesse de l'eau
y (m) =tirant d'eau
+0.05 V 5
Pour des raisons topographiques, le tracé du coursier est souvent courbe.
Soit r = rayon de courbure
Il se produit une accélération centrifuge V2/rentraînant entre les 2 rives du coursier de largeur
1une différence de niveau Ah telle que :
v = vitesse moyenne de l'eau
Exemple
v=lOm/s
r = 2 0 m
1 = 2 m
Ah = 1 m ,ce qui est considérable
3.4 - COURSIER CONDUITE
Lorsque le système d'évacuation comporte une conduite le calcul est particulier, en effet cette
conduite peut être en charge à l'amont et à surface libre à l'aval. Lorsque la conduite est
entièrement en charge (ce qui est déconseillé) le calcul est une simple application de
l'hydraulique en charge. Dans ie cas d'une tulipe classique quatre types d'écoulement peuvent
se produire :
. .
Figure 6.19 :Fonctionnements d'un coursier conduite
1 - écoulement entièrement dénoyé
1 bis - l'écoulement est noyé par l'amont, il
faut absolument éviter ce genre de situation
3 - écoulement dénoyé sur la crête déversante
3 - écoulement noyé sur la crête déversante
135
3.4.1 - Dimensionnement dii Coursier - Conduite
Figure 6.20 :Profilage d'une tulipe
L'Elimination du cas 1 bis se fait par un
profilage de la tulipe à l'aide d'un calcul de
batistique :
Pour éviter le cas 1 bis, on conseille de
prendre
Y = hauteur déversante Y z 5 7 - hD
h-
Y = hauteur pour laquelle on passe du
diamètre D à d.
d reste constant jusqu'au passage a surface
libre
En admettant le passage en chargeI à cette distance1 Y de la crête, on peut dimensionner d
On dimensionne ensuite le rayon R de la conduite dans la zone a surf'acelibre :
On vérifie en plus que
3.4.2 - Calcul du coursier conduite
Après avoir choisi le dimensionnement,on effectue les calculs
3.4.2.1 - Calculer v,,-et ys dans Iri conduite ii surface libre
11faut impérativementvérifier Yn < yc
En ce cas, l'écoulement à surface libre ne posera aucun problème.
136
3.4.2.2. - La condition à la limite aval de la zone d'écoulement en charge
La condition à vérifier est la valeur de l'énergie.
Soit Hlimite notée He l'énergie à la limite aval de zone d'écoulement en charge tel que :
- soit Yn est beaucoup plus petit que d. Il faut alors prendre :He = Hs(Yn)
n
- soit Yn n'est pas trop différente de d (il faut essayer de vérifier Yn d au
dimensionnement).Il faut alors prendre : He = H,(d)
3
d"
Nota : S = Ir-
4
3.42.3 - Calcul en charge
Soient :
Z! : cote du fond au changement de diamètre (passage en charge, passage à surface libre)
Zd : cote de déversement de la crête de la tulipe.
2, : cote du plan d'eau dans le cas de l'écoulement type 2
2, : cote du plan d'eau dans le cas de l'écoulementtype 3
K, : coefficient de perte de charge à l'entrée
K, : coefficient de p.d.c linéairex longueur
K, : coefficient de p.d.c dans le coude
K, : coefficient de p.d.c à la sortie
dLoù s=n-
4
z3(noyé) = Z! +H! +(K, + K C + - - J + K ~ ) ~
d 2gs2
Pour que le régime soit bien dénoyé, il faut vérifier :
n 2 3
< Z +"h dénoyétype2
d 3
Sinon la cote du plan d'eau est Z3 et on a un écoulement de type 3.
De plus si 22 <zd - Y, on a un écoulement de type 1.
137
NOTA
Si les conditions hydrauliques ne sont pas satisfaisantes, il faut reprendre le calcul avec un
autre dimensionnement.
Il ne faut pas oublier que pour qu'un écoulement à surface libre soit stable, un reniflard doit
assurer l'aération de l'écoulement au niveau de l'élargissement de la conduite.
Pour la zone d'écoulement à surface libre; il est toujours possible d'estimer globalement les
pertes de charge.
L'ABAQUE ci-après permet de relier Hs et Y. (page 141)
Pour que l'écoulement à surface libre soit stable dans la galerie, un reniflard doit assurer
l'aération de l'écoulement au niveau de l'élargissement de la conduite
Figure 6.21. :Evacuateur en Duits noyé
c !
[RENIFLARD
H
GALERIE
- 1Section de controle s
.
138
Table Geometric Elements of CHANNEL SECTIONS
a
/
B
+
C'I
a
l 4
f
a
2
2ci
-3
n
i l s
m Ica
1%
"Ah
+
a t m
h
t
a
-c
h
L@a
+
a
fL
I
Co
hY
-
+
* '
l
I
j:
c -3-ci L
I
-.Y
+O
+ A l -L
1 .h
cy
I
c
'7
135,
Fig 6.22 :Courbes de calcul de la rwofondeiir normale
.-.---.-
O0
r3'
a

N
az
'J
C
O
-O
.
6
1-10
Fig.6.23 : Courbes de détermiriiitioti de la profondeiir critique
.
V
141
Fig.6.24 :Energie spécifique en canai circulaire
.
1-12
3.5 - LA DISSIPATION DE L'ENERGIE
Que ce soit à la traversée d'un déversoir ou au bas d'un coursier d'évacuateur, les eaux arrivent
au bas de l'ouvrage avec une énergie cinétique importante qu'il s'agit de dissiper le plus possible
à l'intérieur du liquide lui même plutôt que sur le fond ou les rives du thalweg ce qui
entraînerait à la longue un déchaussement de l'ouvrage évacuateur. Dans ce but on fait suivre
les ouvrages évacuateurs d'un ouvrage dit de dissipation ou de tranquilisation. Plusieurs types
d'ouvrages de dissipation peuvent être envisagés.
Les différentes méthodes utilisables pour dissiper l'énergie cinétique de l'eau, ont été étudiées
de façon approfondie par le U.S. Bureau of Reclamation et les résultats de ces études ont été
publiés dans "Design of Small Dams''
Certains dispositifs comme les becs déviateurs (cuillers) et les cuvettes de dissipation
submergées sont peu utilisés pour les petits et moyens barrages.
Les procédés les plus fréquemment employés sont les bassins à ressaut et les bassins du type
impact.
Pour les petites hauteurs, il est souvent économique de ne pas faire de coursier et de déverser
directement dans un bassin de plongée renfermant un matelas d'eau qui forme un excellent
dissipateur et débouchant directement dans un chenal à faible pente conduisant à la rivière.
3.5.1 - Les becs déviateurs
Les becs déviateurs constituent un procédé intéressant pour les barrages en béton.
Le principe consiste à installer, en bas du déversoir un bec relançant l'eau vers le haut suivant
un angle 8en générai de l'ordre de 35 à 45".
Le jet se désintègre et retombe dans une cuvette de dissipation à une distance
V2
x = 1,8(y+-)sin219
2ç
8 = 35"à 45" en général !
Y = entrant d'eau
V = vitesse au départ du bec
Le rayon de courbure du bec doit être d'au moins 5 fois le tirant d'eau y.
r?5y
,i
Figure 6.25 - Bec déviateur
Y et V sont calculés par les formules suivantes et par itération successives.
r n 1
.
144
3.5.2 - Les becs déviateurs :Cas où 0 < 30°
D'après Rémi POCHAT du CTGREF - (1980) Bulletin technique du Génie Rural no 125.on
peut effectuer le dimensionnement comme ci-après dans le cas où 0 < 30"
Fig.6.26: Bec déviateur et fosse
- -- --
On respectera les limites suivantes :
8< 30" ; -< 2.4
P
P3
avec P = pression au creux du bec déviateur
avec q = débit par unité de largeurPet r > q.v. -
P
v = vitesse à la sortie du bec
La profondeur de la fosse est alors calculée par les formules :
H = 0.9 sin20.Ht+ a
q(m'/s) = débit par mètre de largeur
3.5.3 - Les cuvettes de dissipation submergées
Une cuvette submergée, éventuellement à bords crénelés dévie la lame déversante provenant
du seuil vers le haut. Il se forme ainsi 2 rouleaux, l'un en surface au-dessus de la cuvette, l'autre
au fond, se mouvant en sens inverse, en aval du bord de la cuvette. Les mouvements des
rouleaux s'imbriquent dans la lame et dissipent ainsi l'énergie disponible de l'eau.
Figure 6.27 - Cuvettes de dissiilation (extrait de"desi2n of srnail dam")
( A ) -CUVETTE LISSE
(A) CUVETTE LISSE
bou i I Ionnement
/
(AICUVETTE TYPE LJSSE
(BICUVETTE A 80RD CRENELE
(B) CUVETTE A BORD CRENELE
ciéie
permanente
( B I CUVETTE TYPE CRENELE
(A) CUVETTE TYPE LISSE (B) CUVETTE TYPE CRENELE
Les abaques de "Design of Sinall Dams" permettent de déterminer les dimensions de ce type
d'ouvrage.
3.5.4 - Les bassins ii ressaut
Le bassin a ressaut est un moyen très efficace pour réduire la vitesse de sortie à une valeur
compatible avec la stabilité des berges à l'aval.
La forme du ressaut et ses caractéristiques dépendent directement du nombre de Froude :
F=-
YI : tirant d'eau en régime torrentiel avant le ressaut
V : vitesse.
V
@i-
F est proportionnel à V donc dépend directement de la hauteur de chute. Pratiquement dès que
cette dernière dépasse 6 m, V devient supérieure à 10 d s . Pour des barrages de 15 à 18 m de
haut (et en admettant une perte de charge de 20%) elle peut atteindre 16 à 17 m/s.
F est inversement proportionnel à fi.On peut donc faire croître F en diminuant y ce qui
revient à augmenter la largeur du coursier et du bassin. Nous verrons que du point de vue
hydraulique on a souvent intérêt à augmenter F donc à diminuer y, mais cela augmente le coût
des ouvrages.
Différents types de bassins suivant les valeurs de F
1) Pour F = 1, y = y, ;il n'y a pas de ressaut
2) Pour 1 < F < 1,7
Le courant incident a une profondeur légèrement inférieure à la profondeur critique ; le
passage à une profondeur plus grande est graduel et ne se inanifeste que par une agitation de
surface.
Il n'est alors pas nécessaire d'établir un bassin spécial de tranquilisation. Pour F = 1,7 le tirant
d'eau à la sortie y2 est de l'ordre de 2 fois celui à l'entréey1 et la vitesse de sortie est d'environ
la moitié de la vitesse à l'entrée (v2=-).v1
2
Aucun déflecteur n'est nécessaire : un simple bétonnage du canal sur une longueur de 4 à 6 y2
à partir de l'endroit où la profondeur commence à se modifier (c'est-à-dire immédiatement
après la rupture de pente en fin de coursier) est suffisant.
3) Pour 1,7 < F < 2,5 un ressaut commence à apparaître mais n'est pas très turbulent (on parle
de "pré-ressaut").
Les déflecteurs et seuils ne sont pas encore nécessaires et il faudra simplement veiller comme
en (2) à ce que le bassin soit sufisamment long pour contenir l'écoulement pendant son
ralentissement.
Les graphes ci-après donnent le rapport y-/yI des profondeurs conjuguées avant et après
ressaut en fonction de F et le rapport L/y2 de la longueur du ressaut (donc de la longueur
minimale du bassin) au tirant d'eau aval également en fonction de F.
147
Figure 6.28 :Détermination des caractéristiques du ressaut en fonction du nombre de
FROUDE
F
. b *
1-18
Vf
F = 2 d ( y I + T )
l -,z
4)
IF en Newton
Pour 2,5 < F < 4,5 le phénomène est dans un stade de transition et il se forme un ressaut
instable, le jet incident se développant de façon intermittente le long du fond ou de la
surface libre.
Cette instabilité rend le ressaut difficile à contrôler et il faut amortir les vagues par des
obstacles.
La forme (type 1) est relativement efficace. Le rapport des hauteurs conjuguées y2/yi est
donné en fonction de F par le gaphe associé. Pour amortir le mouvement des vagues on a
intérêt à prendre pour le bassin une profondeur y; = 1.1 y?. La longueur du ressaut est
donnée en fonction de F sur le second graphe.
Dans cette gamme de valeurs de F l'efficacité du bassin type 1n'est pas très bonne. On a intérêt,
si on le peut, à passer au type II valable pour F > 4,5 en accroissant la largeur du bassin donc
en diminuant yl (faisant ainsi passer F dans le cadre du cas nos).
5 ) F > 4,5 . Le ressaut se produit alors nettement. La mise en place de blocs, de déflecteurs
permettent de raccourcir le bassin et évite le déplacement du ressaut à l'aval.
Si la vitesse d'entrée ne dépasse pas i5in/s, on pourra utiliser le bassin de type II
Les graphes associés à la figure donnent en fonction du nombre de Froude, le rapport y2/y1
des tirants d'eau amont et aval, la hauteur h l des blocs chicanes, h4 du seuil aval et la longueur
L du ressaut. Les blocs chicanes sont soumis à leur face amont à une force :
;R poids spécifique de l'eau (1 1O00 N/in3 à 12 O00N/m3 pour les eaux chargées)
S : aire de la face amont du bloc (in2)
+-v: : énergie spécifique de la lame d'eau à l'entrée.
2g
Si la vitesse d'entrée dépasse 15m/s, il est préférable d'utiliser le bassin en type III avec blocs
de chute et seuil crénelé.
Le premier graphe associé donne la profondeur y2 conjueée de yl. Pour mieux stabiliser le
ressaut, on a intérêt à prendre y'7- = 1,05 y7.I Le deuxième graphe donne également en fonction
de F la longueur du ressaut L.
Figure 6.29 :Longueur du ressaut iivdrnuiiaue daris un canai rectangulaire i fond
horizontal selon I'USBR
a
O
Q
9
A.-
.
150
Fig 6.30 :Courbes caractéristiqries du ressaut hydraulique dans iin carial rectanglularie (i
forid plat
NOTA : hj = y2 - y1
151
Abaque de syntlz2se -Dkternzintrtiongklhnk de kti profontleur du hnssin et des tirnnts d'mu
L'abaque de la figure synthétise ce qui a été dit sur les profondeurs. Elle permet, en fonction :
- du débit par m de largeur d'ouvrage, q
- de la différence du niveau h entre le niveau de la retenue et celui de l'écoulement aval,
- de la perte de charge aH évaluée dans le coursier, de déterminer la profondeur conjuguée y2
c'est -à-dire la profondeur du bassin.
Pour un bassin à l'aval direct du déversoir : cc = O
Si la longueur de l'ensemble chenal + coursier est inférieure à 5 fois la hauteur de chute :a=O, 1
Si la longueur dépasse 5 fois cette hauteur cc =û,2
Pour un bassin de type 1, la profondeur sera y 2 = 1,1 y2
Pour un bassin de type III, la profondeur sera y'2 = 1,05 y2
.
152
Bassins a ressaut : Abaque de synthèse
Figure 6.31 : Abaque polir le c:ilctil de la profoiidetir du bassin de dissipation
' 10
9
8
7
6
Niveau de la' retenue
Ii30
1
I Pour calculer y2 en fonction ;
de q et de h , faire d'abord une 1
4 hypothèse sur la perte de
I charge dans le coursier
'
-si cette perte de charge est
3
2
FT( mètres 1
1
0.8
I négligeable lire y2 sur ia iigne il)'
! -si cette perte de charge peut '
etre approchée par 0,2 ( h+y) j
b .
I
lire y2 sur la iigne iZ1
I
hI 9 Y 2
( mètres )
153
.
3.5.4.1 Calcul du bassin d'amortissemerit ressaut
Fig.6.3.2 :Eléments de calcul d'un bassin h ressaut
H
i
P = pelle
He = hauteur d'énergie = h + -
h = hauteur de lame d'eau sur le seuil
VO = Vitesse d'eau sur le seuil
g = accélération de la pesanteur = 9,81 d s '
V, = vitesse d'eau avant le ressaut
yl = profondeur d'eau en régime torrentiel
a = chute fixe sur la construction
q = rdéversoir = débit spécifique Ah0 = enfoncement du bassin
V2= vitesse en régime iluvial
y2 = profondeur d'eau en régime fluvial
yi et y2 = profondeurs conjuguées
H = cote déversion - cote seuil bassin de dissipation
Hd= charge disponible = H + Ah,, + h + -
v2
2g
= a +He = dénivelée entre le niveau d'énergie amont et le plafond du bassin
Q
q = voh = vlyl = ~ 2 ~ 2
VI)
2 3
154
On écrit Bernoulli entre le seuil et le bas du seuil :
A -
(Zo+-+-) - (Z1+-+-)=AHpl vf (1)
2g 2g
On considère AH = 10% de la charge disponible
PO= P1 = pression atmosphérique
20-21 = H+Aho+h-Y1
AH = a(H+Aho+h+-)vO
2g
3 3
vô v î
(1) : Zo-Z1+--- = rn
2g 2g
2 2 2
H+Aho+h-yl+---=vo v1 a(H+Aho+h+-)vO
2g 2g 2g
3 n
“ - ( l - a)(H+Aho+h+-)6
2g
YI+%-
(3) :
qv1=-
Y1
(4) : Frl =-
Résolution par Itérations successives :
Jgyl
VL
2g
(1 - a)(H+Aho+h+-)-ylO
3
V A
2g
2 = H+ Aho +h+- O
Remarque : a = O pour un bassin à l’avalimmédiat d’undéversoir.
a = O. 1 si la longueur du chenal + coursier 5 5 fois la hauteur de chute
a = 0.2 si la longueur du chenal + coursier > 5 fois la hauteur de chute.
155
La profondeur conjuguéey2 se calcule :
Pour que le ressaut ne quitte pas le bassin on doit vérifier :
Y2 -<Y,+&
La revanche du bassin de dissipation est donnée par :
R = O. 1 (Y2+V1)
La détermination du type de bassin à ressaut se fait en calculant le nombre de Froude et vitesse
à l'entrée du bassin (V,).
R(m) ;V l ( W ;Y2(")
I
m
*
O
OO
O
-
I
L
O
a
P
-
*
in
O
I l
2
O
n
O
9
157
Figure 6.33 - Détermination des caractéristiques du bassin de dissipation pour un
nombre de FROUDE compris entre 2.5 et 4 3 (extrait de "design of smail dams")
 BASSiN DE TYPE I
Figure 6.34 - Détermination des caractéristiclues du bassin de dissipation nour un
nombre de FROUDE suiiérieiw ;i4 5 et une vitesse de l'eau B
l'entrée du bassin inférieure ,? lSni/s (extrait de "design of smdl dams")
F
I
Figure 6.35 - Détermiriatioii des caractéristiques du bassin de dissination pour un
nombre de FROUDE suliérieur A 4 5 et une vitesse de l'eau A l'entrée du bassin
supérieure ;j 15 ni/s (extrait de "design of small dams")
BASSIN DE TYPE
Blocs de chute
F
1GO
3.5.4.2 - Oiielqiies éléments sur la dissirmtiori par ressaut hvdraiiliqiie
* Perte d'énergie dans le ressaut : AE
La perte d'énergie dans le ressaut hydraulique est égale a la différence des énergies spécifiques
avant et après le ressaut.
* Eficience du ressaut : -E2
L'efficiencedu ressaut est le rapport des énergies spécifiques après et avant Ie ressaut
E2 - (8F; +1)3/2 -4FS +1
* Hauteur du ressaut : hr
--
8F: (2+Ff )
Perte relative d'énergie est :
E2
El
- -
Longueur de protection après le bassin de dissipation
s'agira de dissiper 1'éner;ie résiduelle après le ressaut dans un voluine d'eau a raison de-
La puissance résiduelle à dissiper peut être calculée par :
p -9 -(aQ +->pHe
r-K 75 21
Le volume nécessaire à la dissipation de Pr est
Connaissant la largeur du bassin et la profondeur d'eau après
longueur de protection.
3.5.4.3 - Calage du Radier du bassiri de dissiristiori
le ressaut, on en déduit une
On établit la courbe 2 = f(Q) du cours d'eau ii l'aval de l'évacuateurde crue.
Pour un débit donné, la courbe 2 = f(Q) donne la cote du plan d'eau aval ZA.
Pour le même débit on calcule le tirant d'eau y? après le ressaut.
. 4 * d
161
Pour que le ressaut ne quitte pas le bassin il faut bien placer la cote 20 du radier de telle
manière que :
20 +Y2 = z A
Bien évidemment cette égalité ne pourra Stre réalisée que pour une valeur du débit.
Pour adapter les profondeurs, on procède comme suit :
-
-
-
tracer la courbe (1) : 2 = f(Q) de l'écoulement aval
tracer la courbe (2) des profondeurs conjuguées : y2 = f(Q) pour un bassin de largeur 1
tracer la courbe (3) des profondeurs conjuguées y2 = f(Q) pour un bassin de largeur 21
On superpose les 3 courbes sur un même graphe en choisissant comme point d'intersection D,
dont l'abscisse est le débit maximal du déversoir (crue de projet après laminage). La différence
d'ordonnée à l'origine des courbes donnera la difTérence de cote entre le radier du bassin et le
fond du lit.
.
163
Figure 6.37 :Dimerisiori inaxirnuiii des eiirochemeiits de protectioii en aval des
dissi1) ateurs
Vb =2.57Jd
Where
vb = bottom velocity in Channel in feet per second
d = diameter of particles in inches (specific gravity 2.65)
SlZE OF RIPRAP TO BE USED DOWNSTREAM FROM STILLING BASINS
The riprop should be cornposed of O
rell groded mixture but most of
the slones should bc of the SI=
indtcoted by the curve.Rigrop should
k ploced mer O filttr blonket or
resist movement.
Cwvc is îentotive ond
B O T T O M VELOCITY IN FEET PER SECOND
Fraonr - c u d LO ddcrmtnc manmum 8 h C n i e iiinprap mulutr.
Pour des pierres de densité quelconque Mavis et Laushey proposent :
V - !-Jd&Ï avec d en m m S densité du matériau
b - 2
. .
3.5.4 - Bassiii de tyiie imnact
Dans ce type de bassin la dissipation est réalisée par le choc du jet incident sur un écran
vertical qui est en générai une poutre traversant le bassin de part en part. Le jet réfléchi vers
l'arrière, heurte lejet incident et crée des tourbillons qui absorbent l'énergie.
Ce type d'ouvrage est extrêmement efficace.
II peut être utilisé aussi bien au débouché d'une canalisation qu'en bas d'un coursier.
Fig. 6.38 : Dimensions d'iiii btissiii de type iinpact (entrait de desieri of small dams)
. -
:-
a
9 L? r9 +. Co? c
O o a o o o
165
3.5.5 - Calcul de l'affouillerneiit 1'wi1l d'une chute
Fig.6.39 - Abmue poiir le calcul de I'sffouillement ,? l'aval d'une chute
Véronèse :
c
h Y .
-50
- 4 0
-30
-20
-15
-10
- 5
. 2
- 1
166
3.5.6 - Bassin de type pioncoée : Cas de petites chutes
Dans le cas des petites hauteurs, les caractéristiques dimensionnelles de l'ouvrage peuvent être
obtenues à partir de la figure ci-dessous et de l'abaque.
Figure 6.40 - Caixtéristiques d'ririe petite chute
:ti
i
I
L
2 = H + h - B - O.06Lp - y
B = 0 . 8 ~ ~
167
Figure 6.41 - Abaque de calcul des cartictéristiques d'une petite chute
/' -cprofondeur cri t i q u eYc - -
/' q = Q / L
1
168
4 -LES BARRAGES - POIDS EN BETON
4.1 - ACTION DE L'EAU
4.1.1 - Poussée de Peau et des sédiments
L'action de l'eau se manifeste d'abord par la pression qu'elle exerce directement
amont de l'ouvrage.
sur le parement
A une profondeur z, la pression hydrostatique est :
Pe = ywz où yw = poids volumique de l'eau.
La poussée résultante Pe s'exerce au tiers inférieur de la hauteur de la retenue H, et a pour
valeur :
Figure 6.42 - Poussée d'eau
b : avec déversement
Lorsque l'ouvrage déverse avec une charge h, le diaçramme des pressions prend la forme d'un
trapèze et la poussée totale devient :
s'exerçant au centre de gravité du trapèze.
La composante de pression de l'eau s'écoulant au sommet n'intervient pas.
Dans les déversoirs à profil normal, on ne tient pas compte non plus de l'eau s'écoulant sur le
parement aval, ni de son effet stabilisateur.
169
yw = 10 O00 N/m3 pour une eau pure.
yw peut atteindre 11000, 12000 voire 13000 N/m3 pour une eau chargée de particules en
suspension.
Lorsque un dépôt de vase se forme au droit de l'ouvrage ou lorsqu'il s'agit d'un barrage de
restauration des terrains en montagne, le poids volumique global de la vase ou de la boue peut
être considérable : 16000 à 19000N/m3.
Si il y a une cumulation de sédiments en amont du déversoir d'épaisseur importante, il faut
ajouter à la poussée hydrostatique une poussée des terres horizontales
yi = poids volumique immergé des sédiments en Newtodm3
(en première approximation, la valeur de 10 O00 N / d peut être prise)
h = épaisseur de la couche de sédiments en m
41 = angle de frottement interne des sédiments (coinpris entre 15 et 30°, 30" étant une première
approximation)
PT s'exprimeen Newton par mètre de largeur ;comme pour l'eau, le diagramme de répartition
est triangulaire, la poussée s'exerçant au centre de gravité.
Figure 6.43 - La poussée des sédiments saturés s'aioute ii 1a poussée hvdrostatiaue
, .
170
4.1.2 - Sous Pressions
Quelle que soit la qualité du sol ou du rocher de fondation, il s'établit toujours une circulation
d'eau. Cette eau est à l'origine des sous-pressions.
Si le sol de fondation a globalement un comportement hydraulique homogène et isotrope,
l'étude de l'écoulement homogène et des sous-pressions peut être faite par application de la loi
de DARCY, par analogie électrique ou par calcul numérique sur ordinateur.
La sous-pression décroît régulièrement de l'amont vers l'aval de l'ouvrage, avec comme valeurs
limites les hauteurs d'eau à l'amont et à l'aval si iW= 1. On remarque qu'une approximation
linéaire de la sous-pression est parfaitement justifiée.
Figure 6.44 - Sous-uressions
Lignes d'bcouiernent sous l'ouvrage
rw'-J----/
Sous-pressions
171
La prise en compte des sous -pressions se fera en choisissant l'un des diagrammes ci-dessous
correspondant à l'une des hypothèses suivantes :
- Diagramme a : les fondations hétérogènes et anisotropes ne sont pas traitées. II peut
exister des fissures en communication avec l'amont du barrage qui ne débouchent pas à
l'aval. La sous-pression s'établit alors sous tout l'ouvrage avec une valeur constante
correspondant à la charge amont.
- Diagramme b : les fondations homogènes et isotropes ne sont pas traités. On admet qu'il y
a circulation d'eau d'amont en aval avec perte de charge linéaire. La sous-pression décroît
linéairement de la valeur yw H, charge aval.
- Diagramme c : les fondations homogènes sont étanchées par un rideau d'injection ou tout
autre coupure étanche en amont, qui entraîne une perte de charge amont importante. Les
sous-pressions décroissent linéairement d'une valeur amont yw[h +/i(H- h)] à une valeur
aval yw h. On admet en général h = X .
- Diagramme d : les fondations homogènes et étanches sont drainées à l'aval de l'organe
d'étanchéité. On admet en général que le drainage est efficace à 50?6 et que, au niveau du
drain, la sous-pression tombe à la valeur ;yw - h) =-yw(H + h)
1 :
Les diagrammes correspondant aux cas a et b sont rarement observés en fait. Les cas c et d
sont ceux qui correspondent le mieux aux mesures qui ont pu être faites. Il faut noter toutefois
que ces mesures ont été réalisées sur des ouvrages bien conçus et bien réalisés.
172
Figure 6.45 - Diagrammes des sous-pressioris
c
a
A
C
b
173
Remaraue
Si du fait de la porosité du béton ou de fissures, l'eau pénètre à l'intérieur de l'ouvrage, il s'y
établit des sous-pressions dont la répartition peut se faire suivant un diagramme de type a.
Ce phénomène est particulièrement dangereux pour la pérennité de l'ouvrage et doit être évité.
41.3 - Autres Formes de l'action de l'eau
- Affouillement en aval
-
- Actions chimiques
- Actions thermiques.
Erosion des parois du béton si eau chargée de particules dures
4.2 - ACTION DU POIDS PROPRE DU BARRAGE
Elle participe à la stabilité de l'ouvrage. 11 convient par conséquent d'évaluer le poids
volumique du béton que l'on est assuré d'atteindre à la mise en oeuvre.
En général, on peut compter sur un poids volumique de 24000 N/m3.
4.3 - ACTION DES SEISMES
Les secousses telluriques provoquent des vibrations dans les ouvrages d'art, c'est-à-dire des
accélérations variables qui se combinent a celle de la pesanteur. Ainsi, le poids propre de
l'ouvrage, l'action de l'eau et les caractéristiques des fondations s'en trouvent modifiés.
A l'instar des calculs en la matière pour les bâtiments, on peut considérer que les séismes ont
pour effet de réduire la pesanteur de O à 30% et d'y ajouter une composante horizontale kg, kg
compris entre O et 0.2 g.
WESTERGARD a calculé la suppression hydrostatique ( A R à une profondeur z sous l'effet
d'un séisme provoquant une accélération horizontale kg.
1 ap=o.S75 kJHZ 1
aP(m>
H(m) = hauteur maximale du barrage
Pour un parement amont incliné de 0 par rapport à la verticale, AP doit être multiplié par cos 8
. [TI n'y a pas lieu de faire appel à des formules plus compliquées vu l'incertitude sur le choix de
kl.
. O !
174
4.4 - VARIATION THERMIQUE -RETRAIT ET GONFLEMENT
DU BETON
Ces phénomènes se traduisent par des variations dimensionnelles (élongation ou contraction)
qui, si elles sont gênées, provoquent l'apparition de contrainte supplémentairedans le béton. Il
peut en résulter des fissures. La conception des ouvrages, les techniques d'exécution et
certainesprécautions particulières en réduisent les effets.
Coefficient de dilatation thermique du béton : 7 à 14 p/nd0c
5 - ETUDE DE STABILITE DES BARRAGES POIDS EN BETON
L'étude de stabilité des barrages poids en béton concerne l'équilibred'ensemble de l'ouvrage.
L'ouvrage doit résister au glissement sur la fondation et au renversement, de même que sa
stabilité interne (résistance aux contraintes développées dans sa masse doit être assurée.
5.1 - Stabilité au glissement
Les forces horizontales (D)telles que la poussée de l'eau et des terres qui s'exercent sur le
barrage tendent à le déplacer vers l'aval. La résistance a ces forces horizontales est offerte par
les fondations grâce à leur cohésion (c) et à leur coefficient de fiottement (tgcp). En général on
néglige la cohésion car c'est une caractéristique variable et aléatoire dont la pérennité en milieu
saturé n'est pas assurée.
Figure 6.46 - Diagramme des forces apissantes
m
La stabilité au glissement assurée si :
T P
Le coefficient de sécurité au glissement F est alors :
On admet habituellement F 2 1
Si on tient compte également de la cohésion des fondations, le coefficient de sécurité au
glissement devient :
cs+C(w-u)tgq
cp
F=
S = surface de glissement
175
Dans ce cas, compte tenu de l'incertitude sur la cohésion, on adopte en Sénéral une valeur de F
de 4 en fonctionnement normal ;et son vérifie que la valeur de F n'est pas inférieure à 2,s dans
les conditions exceptionnelles.
W = poids du barrage
P = poussé de l'eau (et des sédiments)
U = sous-pressions sous l'ouvrage.
+ Valeurs de tgq pour fondations sur sols meubles :
- sable : 0.5 à 0.6
- silt : 0.4
- argile : 0.2 à 0.35
cp = angle de frottement sol-béton
4 angle de frottement interne du sol.
2/3 4
5.2 - Stabilité au renversement
La cause d'une rupture par renversement est l'existence de forces horizontales suffisamment
grandes comparées aux forces verticales pour amener, la résultante de toutes Ies forces
agissant sur le barrage y compris les forces de sous-pression, en dehors des limites de la
surface de base l'ouvrage. Lorsque la résultante s'approche du pied aval du barrage, les
contraintes de compression dans le béton ausinentent rapidement.
Ainsi, la rupture par renversement serait précédée et accélérée par une rupture locale par
compression du pied aval de l'ouvrage.
Figure 6.47 - Répartition des contraintes
En fait, lorsque la résultante passe de façon appréciable à l'extérieur du tiers central de la
section de base, une fissure horizontale de traction peut apparaître en amont, ce qui réduit
considérablement la résistance au cisaillement et augmente la sous-pression.
Une première approche de l'étude de stabilitéau renversement pourrait consister à calculer, par
rapport au point B, les moments de forces appliquées(forces motrices et forces résistantes).
176
- C(w-u)(1; ?)
I n B - b A
On calculerait alors un coefficient de sécurité F définit par
moments stabilisants
Cmoments Renversants
F =
Si F 2 1.5, la stabilité au renversement serait assurée.
Mais cette méthode parait illusoire puisqu'elle ne correspond pas à un mécanisme réel de
rupture, celle-ci intervenant avant que ce rapport atteigne la valeur unité. C'est pourquoi le
calcul de stabilité au renversement doit être conduit de façon à évaluer la réaction des
fondations et à vérifier qu'elle est compatible avec les caractéristiques du sol de fondation et du
béton.
Des méthodes de calculs numériques élaborées basées sur la théorie des éléments finis ou des
différences finies existent, mais pour les barrages de moyennes et petites dimensions et même
pour les grands ouvrages ne présentant pas de dificultés particulières, il est fait appel à des
méthodes moins complexes :
On suppose que la réaction des fondations est linéairement répartie sur la surface d'appui.
Cette hypothèse tient compte du comporteinent ilastique du béton et des fondations.
Si e est l'excentricité du point d'application de la résultante des forces appliquées à l'ouvrage
par rapport au centre de gravité G de la surface de base S considérée, en un point situé à une
distance y de G la valeur de la contrainte normale ny est donnée par la formule de résistance
des matériaux.
nv = contrainte normale
1= moment principal d'inertie
Si on calcule par tranche d'ouvrage d'1 in on a :
On en déduit :
D'autre part si on impose que la contrainte normale reste positive (pas de traction) on retrouve
la règle classique du tiers central.
177
La règle du tiers central est satisfaite si :
-- IeI- ;e = excentricité du point du point d'application de la résultante R.b b
. 6 6
1REGLE DU TIERS CENTRAL
5.3 -Remarque sur les sous-pressions
Lorsque le diagramme des sous-pressions est linéaire entre l'amont et l'aval, on peut calculer
les contraintes en négligeant les sous pressions puis en les retranchant en tout point pour
retrouver la contrainte effective. Toutefois, ce calcul simplifié n'est valable que si la contrainte
normale due au poids de l'ouvrage et à la poussée de l'eau est en tout point supérieure à la
sous-pression (n>u>
Si la sous-pression en A est supérieure à la contrainte due au poids du barrage et à la poussée
de l'eau (UA > nA), on calcule selon l'hypothèse qu'une fissure se forme en A et s'étend vers
l'aval jusqu'au point où la contrainte normale due au poids du barrage et à la poussée de l'eau
est égaie à la sous-pression qui s'exerce au pied amont du barrage. Dans cette fissure on a une
sous-pression amont (UA). Le diagramme des contraintes se construit comme ci-dessous
Diagramme théorique des contraintes sans tenir compte des sous-pressions :
Fig.6.48 Réiwrtition des contraintes
A O B
Diagramme des sous-pressions sans fissure amont :
UA> "A
Diagramme des contraintes effectives avec fissure ouverte suivant AD :
. . O '
178
Diagramme des contraintes effectives avec fissure ouverte suivant AD :
En D : nD = UA
-
e Cw
- Excentricité : e' =
-Longueurcomprimée: b' = 3(: - et)
CW - upyb
+ UA
I 2(cw - u, . b)
- Contrainte en B : nB =
b'
5.4 - Conduite du calcul
La stabilité au glissement et la stabilité au renversement sont assurées dès que la réaction des
fondations ne fait pas avec la verticale un angle supérieur à une valeur correspondant au
coefficient de frottement du béton sur le sol de fondation et lorsque cette réaction, compte-
tenu des sous-pressions passe par le tiers central de la fondation.
De plus il faut vérifier que les contraintes normales ne sont pas trop élevées pour le béton (ce
qui est en général réalisé pour les ouvrages de hauteur faible ou moyenne) et pour un bon sol
de fondation (rocher). Pour des ouvrages de plus de 10 mètres, il faut systématiquement
prévoir des dispositifs d'étanchéité et de drainage, ce qui apporte une sécurité complémentaire
dont on peut modérément tenir compte dans le calcul (établissement du diagramme de sous-
pression).
L'adoption d'un talus aval de 0.7WlV à 1 W1V permet en générai de satisfaire les conditions
ci-dessus.
179
5.5 - Stabilité interne des barrages -poids
Il s'agit de retrouver les contraintes dans l'ouvrage compte tenu des actions extérieures qui lui
sont appliquées et d'éventuelles actions internes telles que les pressions interstitielles dans les
fissures.
On peut utiliser une méthode dérivée de la résistance des matériaux.
Chaque tranche du barrage est assimilée à une poutre console verticale, encastrée dans les
fondations.
On détermine les contraintes dans des sections horizontales à partir des formules de la flexion
composée.
Figure 6.49 - Calciil de stabilité interne
Pour une tranche de largeur
- W b3ny - -+EX; I=-
b I 12
ny = contrainte normale
1 in
La méthode est approximative puisque d'une part les sections varient rapidement et que d'autre
part la ligne moyenne n'est pas en général verticale.
Les contraintes normales admissibles dans le béton doivent :
- rester positives car le béton étant non armé ne peut supporter de traction,
I
- ne pas dépasser une certaine fraction de la contrainte à la rupture du béton à 28 jours 028
.
180
- conserver une contrainte normale sufisante au niveau du parement amont pour qu'en cas
d'infiltration ou de fissure le calcul ne soit pas remis en cause. Pour cela Maurice LEVY a
proposé que la contrainte nA reste toujours supérieure ou égale à la pression de l'eau au
même niveau. Pour qu'il en soit ainsi, on vérifie la relation :
r"A 2. - - En général r = 75 où yw = poids volumique de l'eau.
YWH 100 '
Figure 6.50 :Calcul de la stabilité iiiteriie : cas d'une fissure ouverte
181
D,
5.6 - Stabilité au Doinçonnemeiit
+On calcule la charge admissible du SOI : qadm
1
-y.b.N y
2u
effet de la pesanteur
= poids spécifique du sol.
C = cohésion du soi
+ C" + y.D.Nq
-7-Y -coheslon Profondeur (D=profondeur d'encastrement)
C O S ( 7 d 4 - @/2)
2cos (n14 + # / 2 )N y = K p 2
Nq = e d g h g 2 ( d 4 + 412)
Nc = (Nq - l)cotg@
4= angle de frottement
Kp = coefficient de butée donné par les tables de Caquot et kérisel correspondant à :
Ir
p = 0 ; A = -(--#/2) ; 3' = - 4
4
+On calcule la charge imposée au sol de fondation amax :
qadm+On vérifie que - 2 1.5
Dmax
182
1CHAPITRE VI1 1
Les barrages en terre peuvent être constitués par des matériaux de caractéristiquestrès diverses. Le
terme "terre" couvre donc une gamme de matériaux allant de l'argile pure très fine à des éléments
très grossiers. Dans certains cas, on utilise des roches altérées facilement compactablestels que des
latérites, des schistes et grès tendre, etc.
Les volumes de terre à mettre en oeuvre pour la construction d'un barrage en terre sont importants :
- 20 000 à 100 000 m3pour les petits ouvrages,
- des millions voire des dizaines de millions de m3pour les grands ouvrages.
Le transport et la mise en oeuvre des matériaux constituent donc les éléments essentiels du prix de
revient.
Il existe différents types de barrages en terre :
- barrage homogène ;
- barrage à noyau ou à zones ;
- barrage à masque amont ;
- barrage à paroi moulée.
(on se référera au chapitre 2 pour leur description).
1 - PRINCIPES DE CONCEPTION DES DIGUES DE BARRAGES
La conception des digues de barrage devra répondre aux 7 critères suivants :
1.
3I .
3.
4.
5.
La digue devra être sécurisée contre les surverses vis à vis des crues par l'aménagement d'un
évacuateur de capacité suffisante. A cet aspect devra s'ajouter celui de la possibilité de
vidange.
Les pentes des talus doivent être stables pendant la construction, pendant la mise en eau et la
mise en exploitation de l'ouvrage, ainsi que dans les cas de vidange rapide.
La digue devra être conçue de manière à ne pas imposer des pressions excessives sur la
fondation.
Les infiltrations à travers la digue et le sol de fondation doivent être limitées et contrôlées de
façons à éviter des risques de renard.
La digue doit être sécuriséevis à vis de l'effet des vagues.
183
6. Le talus amont doit être protégé contre le batillage (pompage des matériaux par l'action des
vagues), la Crète et le talus aval seront protégés contre l'érosion due au vent et au
ruissellement des eaux de pluies.
7. Si le barrage est dans une région sujette a des séismes, sa conception sera telle que le séisme
le plus sévère, raisonnablement prévisible, n'endommage pas la fonction de ia structure.
Fig. 7.1 :SCHEMAS DE PRTNCIPE DES BARRAGES EN TERRE
.
1s4
2 - ASPECTS GEOTECHNIQUES
2.1 - Choix des mtitéri;iiix
Une reconnaissance à la tarière cî main ou avec un appareil de sondage permet de faire des
prélèvements pour analyser les sols et délimiter l'étendue des éventuelles ballastières. 11 existe peu
de sols qui ne puissent vraiment pas convenir pour la construction d'un barrage en terre ;mise à part
les terres très organiques (tourbes) qui peuvent présenter des tassements très importants, et les
terres contenant des éléments solubles dans l'eau (gypses, sel), les autres pourront en général être
utilisées sinon pour un barrage homogène, du moins associées à d'autres dans un barrage à zones.
On éliminera donc les terres contenant plus de 6 50 de niatières organiques (6 % en poids, la mesure
étant faite par brûlage à i'eau oxygénée des Sléinerits organiques d'un échantillon qu'on a porté à
ébullition dans de l'eau distillée) et celles qui contiennent du Lypse reconnaissable par sa couleur
très blanche ou du sel reconnaissable à sa stnicture cristalline et à son Soût.
2.1.1 - Identification des terres :
Les caractéristiques d'identification les plus iiiiportantes pour le choix du matériau de la digue sont
les caractéristiques granuloinétriques cornplitees par les limites d'Atterberg précisant la nature de la
portion fine des terres. On a une idée plus ou moins pricise de ces caractéristiques selon qu'on les
mesures au laboratoire ou qu'on les estime par des tests rapides sur place.
- Au laboratoire :
La courbe granulométrique est tracée apres un tainisage et éventuellement une sédimentométri.
Les limites d'Atterberg sont déterminées apres des essais norinalisés sur des éléments plus petits que
0,5 mm.
Sur la base des dimensions granulométriques on définit dans la classification internationale :
Cailloux Graviers Sables Sables fins limons ou silts arsiles ultra argiles
20 mm 2 inm 0,2 min 0,02 min 0,002 mm 0,0002 rnrn
300 11 30 j.l - p 0 2 p
Une granulométrie étant rarement situ& entièrement l'intérieur de I'une des tranches
g-ranuiométriques ou nommera un sol ''limon argileux" ou bien sable argileux ou etc. selon
l'importance relative des divers constituants.
- Les limites d'Atterberg renseignent sur la plasticité du sol c'est à dire sur l'étendue de la
plage des teneurs en eau à l'intérieur de laquelle le sol remanié a un comportement
"plastique" c'est à dire pâteux. L'abaque de plasticité de Cassagande définit une
classification des sols fins au seul vu des limites de liquidité et de plasticité.
185
Fig 7.2 - DIAGRAMME DE PLASTTCTTE DE CASSAGRANDE
Utilisé pour la classification des sols fins et la fraction d’élémentsfins des sols grenus
O
a O
n
I
O
tA O
. .
186
- Tests de chantier : classificationdu Bureau of réclamations
La granulométrie est jugée à l'oeil en séparant les éléments visibles à l'oeil nu des autres et
dans ceux qui sont visibles à l'oeil nu, ceux qui sont plus petits ou plus gros que 5 mm, enfin
en estimant la continuité de la granulométrie.
. Pour les éléments fins on remplace les limites d'Atterberg par les tests :
Secousse :
On prend dans la paume un échantillon de sol saturé et on lui imprime des secousses ; la surface
devient brillante. On écrase la boule entre les doigts :
- si la surface devient immédiatement terne : pas de plasticité ; c'est un sable très fin, un silt,
un sol peu plastique.
- si la surface devient terne lentement : faible plasticité, limon moyennement plastique, argile
si1teuse.
- la surface ne change pas d'aspect : grande plasticité, sol argileux. Pour ces sols il a été
dificile de faire apparaître la luisance de la surf'ace.
Résistance à sec
On pétrit une petite quantité de sol (1O çr) saturé. on le laisse sécher au soleil et on l'écrase entre les
doigts :
- s'il est presque impossible d'écraser l'échantillon : argile très plastique
- si la résistance est faible : il peut s'agir d'un sable très fin, dans ce cas la surface est rugueuse
I ou d'un limon dans ce cas la surface est douce.
Plasticité
On exécute des rouleaux de 3 rnm de diamètre puis on les remodèle pour faire une boule :
- si le fil est résistant et ia boule facile à refaire le sol est très plastique
- si le fil est fragile et le remodelage impossible : faible plasticité.
157
- Classification
Un tableau permet ensuite de classer les terres ; on peut même ainsi définir un ordre d'aptitude pour
les barrages parmi ces terres (cf classification).
- D'autres grandeurs doivent être mesurées pour "identifier"véritablement une terre ;ce sont :
La teneur en eau ; rapport du poids de l'eau contenu dans un échantillon de sol à son
poids lorsqu'il est sec.
poids dkau
poids de sol sec
W =
Cette grandeur est intéressante à connaître en particulier pour le compactage.
La masse volumique des grains de sol.
0 L'indice des vides e (volume des vides divisé par le volume des grains) ou la porosité
(volume des vides divisé par le volume total).
IDEMTIFICATIOMCLASSIFiCATIOnETPROPRIETES
DETtRRiZSD€sTltl€€SALAC0MS'TRUCTIOi-iDE5BARRAGES
189
A partir du tableau de classification, on peut tirer le résumé suivant.
Toutes les autres conditions étant les mêmes, lapèrménbililk est plus grande :
- pour les terres à gros grains que pour les terres igrains fins,
- pour les terres à granulométrie étroite que pour les terres à granulométrie étendue,
- pour les terres légères que pour les terres lourdes.
La résistance air cisaillement est plus grande :
- pour les terres à gros grains que pour les terres à grains fins,
- pour les terres à granulométrie étendue que pour les terres à grandornétrie étroite
Le tassement est plus grand :
- pour les terres à grains fins que pour les terres a grains plus gros,
- pour les terres à grains ronds que pour les terres à grains anguleux,
- pour les terres à granulométrie étroite que pour les terres à granulométrie étendue,
- pour les terres légères que pour les terres lourdes.
La dèizsiti est plus grande :
- pour les terres à gros grains que pour les terres à grains fins,
- pour les terres à grains ronds que pour les terres à grains anguleux,
- pour les terres à ganulométrie etendue que pour les terres à granulométrie étroite,
Quelques commentaires nratiques pour le choix des matérimx
Les matériaux aptes à la construction des digues doivent avoir les caractéristiques principales
suivantes :
- Proportion d'éléments fins < O, 1 mm (tamis O,OS, module 20) comprise entre 20 % et 70 %.
- Proportion d'éléments inférieurs à 0,05 comprise entre 10 % et 40 %.
- Equivalent de sable inférieur à 40.
- Perméabilité inférieure ou égale à 10-7rn/s après compactage.
Qualité des matériaux selon I'USBR
1. Sols bons à excellents
S.M. (Sables limoneux, mélange mal calibré de sable et de limon).
S.C. (Sables argileux).
2. Sols moyens à bons
S.M. et S.C. ;C.L. (argile peu plastique)
Remarque : ** Pour ces sols, prévoir des protections superficielles soignées.
. 4 *
3. Sois moyens à passables
M.L. (limons inorganiques, sables très fins, farine de rocher, sables fins limoneux à faible
plasticité)
C.M. (argile inorganique à grande plasticité)
O.L. (limons organiques, mélanges de limons et argile organique à faible plasticité).
Remarque : ** Ces sols présentent l'inconvénient de grands risques de retrait et de tassement.
4. Sols mauvais
4.1. GW, GP, SW et SP (graviers, sables, milanges et graviers et de sables peu ou pas fins)
Remarque : * Ces SOIS donnent des massifs perméables.
4.2. MH, CH, OH (limons inorzaniques, sables fins ou limons micacés, argiles organiques a
plasticité moyenne et élevée).
Remarque : * Ces sois présentent de très forts tassements après mise en oeuvre.
2.1.2 - Influence des caractéristiques d'identification des terres sur leurs propriétés
mécti niqII es OLI livdrodvII a111iq II es :
2.1.2.1 - La rierniéabilité:
On sait que le coefzcient de perméabilité I< mesure l'aptitude d'un sol a se laisser traverser par l'eau.
L'expérience montre que la vitesse fictive d'écoulement de l'eau dans le soi est proportionnelle à ce
Ie long de I'écouiement (Darcy). On montre que
A H
coefficient K et au gradient hydraulique -
A l
l'expression de cette perméabilité peut s'écrire sous la forme :
C : un coefficient de forme
g : accélération de la pesanteur
u : viscosité cinématique de l'eau
ps : masse spécifique des grains de sol (peu variable d'un sol à l'autre)
S : surface spécifique des gains (surface extérieure de l'unité de poids des grains).
e : indice des vides.
La perméabilité d'un soi est donc avant tout fonction de la surface spécifique des grains qui elle-
même varie considérablement avec la diinension de ceux-ci : S est =rand pour les sols fins (S est
inversement proportionnel au diainètre). Les argiles sont donc les sols les plus imperméables d'où
leur utilisation coinme masques d'étanchéité dans les barrages.
- L'indice des vides intervient aussi dans i'expression de cette perméabilité : un sol compacté e
petit) est moins perméable qu'un sol Icîche.
1
l I
On ne pourra utiliser un matériau pour une digue homogène que s'il contient un
minimum de 5 à 10 % d'éléments plus petits que 0,08 mm ; pour le noyau d'un
barrage à zone il faut un minimum de 20 à 30 % d'inférieurs à 0,023 mm.
2.1.212. - Résistance au cis:~illement
La résistance maximum au cisaillement d'un sol obéit en Sénéral à
7 = c 4- O" tg$
7: = Contrainte de cisaillement sur
le plan sur lequel s'exerce la
contrainte normale qI
la loi de Coulomb :
7
C et 41 des caractéristiques intrinsèques du soi
C est la cohésion et $ l'angle de frottement du sol.
Dès qu'il existe un plan a l'intérieur d'un sol soumis a un état de contrainte homogène
sur lequel la contrainte de cisaillement atteint la valeur T = c + ontg $, il y a
glissement le long de ce plan.
- La cohésion qui est due il'attraction des particules les unes vers les autres dépend de la dimension
des particules ; en effet cette attraction est provoquie soit par les tensions capillaires que produit
l'eau en contact avec les gains, soit par les phénoinènes d'attraction électriques entre l'eau et les
grains. L'une et l'autre force sont d'autant plus fortes que les intervalles entre grains et donc les
grains eux-mêmes sont plus petits. Une argile pourra présenter une forte cohésion (ordre du
kg/cm2);un sable fin une très légère cohésion s'il est tiuinide, (ordre du grainmekm') ; un gravier
n'aura jamais aucune cohésion.
- L'angle de frottement est dli i la ruyosité de la siirface d'un sol : pour cisaiiler selon un plan il faut
désenchevêtrer les grains : ce désenchevêtreinent est plus faciie pour les grains fins que pour les
gros ; plus facile pour les grains ronds et lisses (galets roulés - torrents) que pour les grains
anguleux (concassés) les angles de frottements pourront varier entre 35" et 50" seion le type de
sol.
NIobiIis;itioii de C et 4
m
.
192
~~
- Mais la différence de résistance mécanique entre les diférentes terres provient essen-
tiellement du fait que sur un sol saturé les caractéi-istiques intrinsèques C et 4 peuvent
être mobilisées instantanément si les grains sont gros, elles ne peuvent être mobilisées
qu'après un temps très Ions si les grains sont petits.
En effet, dans ce cas, l'eau est emprisonnée entre les grains. si l'on exerce un effort à la surface d'un
sol fin saturé toute diminution ou augmentation de volume du sol étant empêchée par la présence
des grains et de l'eau incompressibles, l'effort se traduira ilninediatement par une supression dans
l'eau qui ne se dissipera que lorsque l'eau aura pu etre suffisamment chassée pour que la pression de
l'eau reprenne sa valeur d'équilibre.
Sur un plan quelconque ii l'intérieur du massif si :
- 0' est la contrainte qui s'exerce de grain
à grain (intergranulaire)
- u est la pression de l'eau (contrainte interstitielle)
On appelle G telle que ci = 0' + CI la contrainte totale s'sserçant sur le pian.
La loi de Coulomb déiinissant C' et 4'caractéristiques dites "intergranulaires" ne considère que les
contraintes interminulaires (de gains il grains).
r = C' + 0:: tS 4 = ci+ - t3 4'
L'effort appliqué sur le sol entraîne à l'instant initial une modification A u de la contrainte
interstitielle et aucune modification de la contrainte intergranulaire.
Ainsi la contrainte de cisaillement rnaximuin.
ir = C' f on'tg 4' n'a pas changé , elle va s'ainéliorer au cours du temps jusqu'à ce que la
contrainte interstitielle soit redescendue il sa valeur- d'squilibre et que l'efort soit encaissé par les
grains uniquement (O,' aura alors auginentee sa valeur de Au et T admissible de Au tg 4).
C'est la raison pour laquelle un sol fin est plus fragile qu'un sol gros grains et pour laquelle aussi on
définit pour les premiers des caracteristiques C,, et $x dites "apparentes" ou l'non drainées" et des
caractéristiques C' et $' dites "intei-3ran"cilair-es"ou drainées.
- Les caractéristiques apparentes C,, et (tli sont inesurées en et'fectuant un essai rapide (ou non
drainé) à l'appareil de cisaillement ou au triaxial. Pour utiliser Cu et $u apparents il faut écrire la
loi de Coulomb :
Les contraintes O,,étant des contraintes totales.
- Les caractéristiques "intergranulaires" C' et $' sont mesurées en efectuant un essai (ou drainé)
avec les mêmes appareils. La loi de Coulomb utilisant les caractéristiques C' et 4' devra faire
intervenir les contraintes intergrandaires :
7 = C' + O"' tg4'
C' varie de O pour un sol à gros grains à 1 ou 2 kg / cm2
pour une argile saturée surconsolidée.
4' entre 25" pour une argile à 45 - 50" pour un gravier concassé.
Ordres de grandeurs :
C . varie entre O et quelques kg/ cm' pour une argile
9, varie entre O" ( q i l esaturée) et @ pour les sols plus gros.
2.1.2.3 - Compressibilité :
Sous l'action d'une charge les grains d'un soi modifient légèrement leur arrangement, il s'ensuit un
tassement dont l'importance dépend de la nature du sol. D'autre-part, comme pour la résistance au
cisaillement le sol, s'il est fin, présente un tassement instantané (correspondant à un comportement
non drainé) et le tassement diRéré qu'on appelle "consolidation''. Cette distinction ne se justifie pas
pour les sables et graviers puisqu'elle est due a l'apparition des pressions interstitielles sous la charge
et à leur dissipation dans le temps. On itudie les tasseiiients i l'aide de l'essai oedoinétrique qui
permet de définir :
A 0
Le module oedométrique E , = - -
"h<,
A c
L'indice de compression c_= - dans la partie linéaire de la courbe e = f(log O)
A Log 0
193
. , . _. . . ... . .
Fig 7.3 : Courbes oedornétriques
- CEàomttre.
-Essai ae compressibiiite.
1 l
0.1 1 l @ ! 10 100 1000 i o o o o seConoes
contrainte v e r t i c a l e e n b a r s t e m p s
U
(N.B.) l'indice de compression et le module oedoinétrique sont liés :
1 f e
Ec,= 2,3 O --
c;
En dépit de la "souplesse" des barrages, les tasseinents doivent rester limités, des valeurs trop
importantes pourraient provoquer des fissurations en particulier s'il s'agit d'un barrage à zones dont
les terres ne tassent pas de la même façon. Les tassements peuvent être dus aux fondations de
l'ouvrage, il y a donc lieu de reconnaître ces fondations, OU à la digue elle-même, on cherche à les
réduire en effectuant un bon compactage.
- Tassements des sols à gros crains : il ne s'agit là que d'un tassement instantané. L'importance de
ces tassements et faible, la compressibilité des sables et graviers étant faible : les modules
oedométriques sont rarement inférieurs à 500 bars dans ces sols.
- Tassements des sols fins : L'essai oedométrique sur ces sols saturés permet d'étudier le tassement
final à prevoir et la durée de ce tasseinent. On iitiiise ici plutôt l'indice de compressibilité C, ou
pente de la courbe e = f(log G) pour prévoir. les tassements finaux. Skempton a trouvé une
corréiation entre C, et la limite de liquidité WL:
lCL = 0,009 ( 1 0 IV.- - IO) SKEWTON 1
Une argile est donc d'autant plus coinpr-essibleqiikliz est pliis plastique (WLgrand). Par ailleurs eile
est d'autant plus compressible que sa teneur en eaii zn place est plus forte. L'étude du tassement en
fonction du temps s'efYectiie aussi a I'oecioinètr-e. Le tasseinent instantané pour les argiles ne
représente qu'une petite partie du tassernent tinal ct de toutes tàçons il n'est pas dangereux
puisqu'on peut le "rattraper" en cours de construction. 11 est par contre intéressant de limiter au
minimum le tassement qui se produira iiitSrieiirement. c'est la raison pour laquelle il arrive que l'on
réalise des remblais plus hauts que prévus qii'on arase après un certain temps, a la côte définitive.
. %
2.1.2.4 - Goriflenient - retrait :
Dans les sols fins l'eau occupe les intervalles tres petiIs entre grains ; la tension capillaire dans ce cas
est importante , au cours du séchage les filets liquides se séparent, les courbures des ménisques
augmentent et la tension capillaire croit ; tout se passe comme si, à égalité de tensions capillaires la
pression extérieure appliquée au sol avait augmenté de la grandeur Ap : 3 il y a diminution du
volume ; c'est ce qu'on appelle le retrait. Celui-ci se manifeste donc particulièrement dans les zones
exposées à l'air les zones plus proibndes n'étant pas soumises à la dessiccation. Ainsi if y a retrait en
sudace et pas en masse : des fissures apparaissent qui peuvent cûinpromettre un ouvrage si elles
sont importantes. Le gonflement est le phénomène inverse qui se manifeste a l'humidification des
sols fhs.
Le retrait et le gonilement peuvent se mesurer ci la. variation de l'indice des vides :
.
O étant la pression initiale avant ia variation de la pression capillaire. Ae est donc d'autant plus
important que G est faible (proche de la surface) et que C est jrand. C est équivalent un indice de
compression mais est mesuré au gonflement sur un échantillon que l'on porte à saturation. C'est le
coeficient de gonflement. Il est prudent de se limiter a des valeurs de C inférieures à 0,07 pour
8 '
l'utilisation dans les barrages en terre. La encore les terres les plus gonflantes et qui présentent le
plus de retrait sont celles ayant le plus fort indice de plasticité.
D'après Seed, une argile compactée à l'optimum (Proctor standard), sonflera de :
3 'Yh si soli IP = 30
9 II 1 4 II = j()
= 4020 II 11 11
32 O/, 1) 1) II = j()
2.1.2.5 - Ailtitiide ;LI cornptictaee :
Le compactage de la terre (équivalent à un écrouissase) a pour but d'améliorer toutes les propriétés
mécaniques de celles-ci : augmentation de la col~ésionet de l'angle de frottement, diminution de la
compressibilité, diminution de la perméabilité etc. Afin de tirer parti de cette possibilité
d'amélioration on choisira entre deux terrains, comparables par ailleurs, celui qui prête le mieux au
compactage.
- Les sols dont la granulométrie est coinprise dans les hseaux granulométriques de TALBOT
présentent cet avantage.
P
D,,,,, : dimensions des particules les plus grosses de I'ichantillon
r
: pourcentage en poids des grains dont le diamètre est infirieur à D.
: coetkient compris entre 0,35 et 0,40, ces deus i*aleursdéfinissant deux granulométries qui
sont les limites du fuseau.
Cette condition n'est pas impérative, un sol qui s'écarte du &seau peut convenir s'il présente par
ailleurs des caractéristiques suffisantes.
Fig 7.4 : Frise:iri de Talbot
Plus simplement, on peut définir un coeflicient d'uniformité ['A,")minimum pour qu'un sol
puisse se compacter correctement. Cette valeur est voisine de 50.
Les terres trop plastiques sont ii éviter car elles se compactent difficilement tout en exigeant
souvent beaucoup d'eau. On a intérêt i.i se limiter à des valeurs de Tp < 15.
197
2.2 - Le compactme
2.2.1 - Raopel des essais Proctor : on sait qu'un compactage est particulièrement efficace
pour une certaine teneur en eau de la terre. Préalablement a une opération de compactage une étude
au laboratoire doit préciser la valeur de la teneur en eau et de la densité sèche que l'on doit obtenir.
Cette étude est réalisée au moyen des essais Proctor.
On réalise un compactage sur la portion fine (< 5 mm) des terres dans un moule cylindrique au
moyen d'un pilon tombant d'une hauteur fixée. Ce compactage est réalisé sur la même terre pour
différentes teneurs en eau. Par pesage et séchage en détermine après coup la densité sèche et la
teneur en eau correspondant à chaque compactage.
Aux faibles teneurs en eau, l'eau est en quantité insuffisantepour jouer convenablement son rôle de
lubrifiant, aux fortes teneurs en eau, elle s'oppose à la diminution du volume de la terre car elle
occupe une proportion trop importante du volume des vides.
Fig 7.5 : Courbes Proctor
4,
a
I li
!
O 5 10 1s 20 25
Teneur en eou W%
On peut faire le même essai pour différentes valeurs de l'énergie de compactage, les courbes ont
l'allure indiquée par la figure : plus l'énergie de compactage est forte, plus la teneur en eau
''optimum'' est faible et bien sûr plus le poids spécifique optimum est grand. Les courbes
expérimentales sont limitées à droite par la courbe "de saturation" correspondant au sol dont tous
les vides sont occupés par l'eau ; la zone limitée au dessus de cette courbe est inaccessible.
L'expression de cette courbe est :
Y s
1 + a w
Y W
Y
Yd =
avec ys
?d
W
poids spécifique des grains
poids spécifique du sol sec
teneur en eau du sol.
Il existe deux normes de compactage au laboratoire : la norme "Proctor standard'' et la norme
"Proctor modifiée" qui définissent deux énergies de référence. Les cahiers des charges exigent en
général des entrepreneurs qu'ils obtiennent après compactage une densité sèche supérieure ou égale
à 95 YOde celle qui correspond à l'optimum Proctor (l'un ou l'autre).
. I .
198
2.2.2 - Influence des cailloux sur ia densité sèche :
On réalise l'essai Proctor sur des échantillons de sols débarrassés de leurs gros éléments, pour la
commodité de l'expérimentation ; on élimine en effet tous les éléments plus gros que 5 mm. De la
sorte on étudie la portion la pius fine c'est à dire la plus importante puisque c'est elle qui détermine
les caractéristiques essentielles du mélange. Toutefois la présence des cailloux a tendance à
augmenter la densité sèche et il est intéressant de connaître comment.
Soit yi la densité sèche de la terre fine (< 5 mm) obtenue à l'optimum Proctor.
Soit y2 la densité sèche des cailloux seuls. Cette mesure peut être obtenue par exemple en
remplissant un volume connu et en pesant ce volume. Il n'est pas nécessaire de
compacter, le compactage a un effet assez réduit sur les blocs seuls.
Si l'on suppose que dans les cailloux seuls on ajoute de la terre fine, celle-ci pourra se loger dans les
vides laissés entre grains jusqu'à les avoir tous remplis. Ainsi la densité du mélange n'aura pu
qu'augmenter depuis y2 jusqu'à une valeur maximum après laquelle rajouter de la terre revient à
augmenter le volume du mélange.
La densité du mélange -yrn est donc limitée à une valeur maximum qu'on peut calculer en supposant
que tous les vides sont occupés par la terre fine coinpactée à sa densité ; J ~
l + e
/ 3 ' / l
l + e
Terre fine
Caiiloux
K
199
Dans ce cas la proportion maximum de cailloux est égale à
avec e = - - 1Y S
m =
ys + e YI Y2
exemple : ys = 2,6
yi = 2 3
y, = 1,73
t r nY = 2,4
pourm = 72 %
On admet en général une loi de proportionnalité du type :
Yi . Ys Tant que m la proportion en poids des cailloux
est faible, inférieure à la valeur calculée
précédemment.
En fait, tant Quecette proportion reste inférieure à 1/3 environ l'ensemble possède les Dropriétés
mécaniques de la portion fine seule, au delà les propriétés changent et il est bon dans ce cas
d'étudier le mélange et non la seule portion fine.
216
Cette loi s'exprime donc par la relation :
V est la vitesse fictive ou vitesse de DARCY
Elle est inférieure à la vitesse réelle car dans la loi de Darcy, on suppose que l'eau occupe la
totalité du volume de l'échantillon, alors qu'elle n'occupe en réalité que le volume des vides, soit
une fraction n < 1 (porosité) du volume total. La vitesse réelle est donc de l'ordre de -V > V.
n
K la perméabilité du sol. C'est une grandeur homogène à une vitesse.
La loi de Darcy montre d'autre part que la vitesse de l'écoulement est proportionnelle à la perte
de charge. L'écoulement de l'eau dans le sol est donc un écoulement laminaire.
5.1.2. Equations du mouvement de l'eau dans un sol isotrone.
L'étude de l'évolution de la charge le long d'un échantillon homogène de sol montre qu'elle varie
linéairement d'une extrémité à l'autre de l'échantillon. Si on appelle alors dH la variation de charge
A Hest constant et égal à -
d H
pour une variation dl de la longueur de l'échantillon, le rapport -
Ce rapport est appelé le %radienthydraulique i.
d l A 1 '
. -
1=- H , le signe - rappelant que H diminue dans le sens de l'écoulement.
dl
-
On peut exprimer ce gradient hydraulique sous forme vectorielle i= - grad H
La loi de DARCY peut donc s'exprimer sous forme vectorielle :
- -
V=Ki = - KgradH
Le milieu étant saturé, l'eau étant incompressible, l'équation de continuité dans l'eau s'écrit :
div v=O
div (- K grad H) = O Q div ç r d H = OSoit
c'est à dire 1 A H = O 1
v2 P V2
2g P g 2 .q
ou encore, puisque H = -+-+z et que dans un sol - est très faible et peut être négligée,
P
P g
A ( - + z ) = O
La charge de l'eau dans le sol est donc une fonction harmonique. Elle sera donc entièrement
déterminée quand les conditions aux limites seront fixées.
217
5.1.3. Equations du mouvement de l'eau dans un sol anisotroDe
On se limitera ici à une anisotropie due à la structure stratifiée du sol. C'est une hypothèse qui
s'accorde bien avec l'étude des remblais compactés, puisqu'il arrive que cette anisotropie
apparaisse à la suite du compactage par couches horizontales successives.
5.1.3.1. Perméabilité horizontale d'un sol stratifié
On considère un sol constitué de couches horizontales superposées, de perméabilité et
d'épaisseurs différentes. On va chercher a définir une perméabilité horizontale moyenne Kh pour
cette série de sols.
Fig. 7.12 - Perméabilité horizontale dans un sol stratifié.
H
?-
I1
iI
y
-'/v,
X lm
-Y
En admettant que le débit s'écoule horizontalement à travers une largeur de
couches, on pourra écrire :
Q = QI + 42 +......+ Qn
soit Q = VIH,+ V2H2 + ... + VnHn (X 1 m)
Comme l'écoulement a lieu parallèlement dans toutes les couches, le gradient
même. On peut donc transformer l'expression ci-dessus comme suit :
Q= K, i H, +K, i H2 +.....+K, i H,
Q=i(K,Hl+K, H2+ .....+ KnH,)
Or la perméabilité horizontale Kh est telle que :
donc
soit KI HI +K, H2 +........+Kn Hn
i K h = H
1 m des différentes
hydraulique i est le
.
203
3 - DTMENSTONNEMENTDES DTGUES DE BARRAGE
3.1 - Aspects tonoeraphiques et hydrauliques
3.1.1 - Hauteur de la digue (El
Dans le langage courant la hauteur du barrage (E) est égale à la hauteur normale de retenue des
eaux (P) majorée de la charge maximale au-dessus du déversoir de crues (h = 1.5 m, maximum
pratique h = 1.20m) et de la revanche (R).
La hauteur totale du barrage serait la hauteur E définie ci-dessus augmentée de la profondeur de
traitement des fondations.
Fig 7.6 :Hauteur d'une digue
deversoi&ass in dissip
3.1.2 - Plan d'eau normal (PEN au niveau de retenue)
Le plan d'eau normal (hauteur de retenue normale) est calculé selon la capacité utile à stocker pour
satisfaire tes objectifs et les pertes. On prend en compte une tranche morte en fond de retenue pour
emmagasiner les dépôts. Cette tranche devrait intégrer aussi la notion de volume sanitaire et de
stock de sécurité (éviter d'assécher la retenue et assurer la continuité d'approvisionnement des
hommes et du bétail). La tranche morte pourrait être prise de l'ordre de 1 à 2 mètres ou quelques
fois moins sur les ouvrages de moins de 5 mètres de hauteur.
3.1.3 - Niveau des plus hautes eaux (PHE)
Le niveau des plus hautes eaux (PHE) est égal au niveau de retenue normale augmenté de la lame
d'eau au déversoir compte tenu de l'effet de laminage.
3.1.4 - Revanche (R)
La revanche libre (R) est une tranche comprise entre le PHE et la Crète du barrage. Le calcul de la
revanche tient compte de la hauteur des vagues qui se forment sur le plan d'eau et la projection de
l'eau vers le haut du barrage due à la vitesse de propagation des vagues lorsque celles-ci rencontrent
le barrage.
.
202
Densitomètre à membrane : même technique de
prélèvement de la terre ; le volume du trou est
mesuré en appliquant une membrane de caoutchouc
le long des parois du trou par une pression d'eau
que l'on injecte au moyen d'un piston. La tige du
piston est graduée.
Le densitomètre est appliqué avant que l'on ait pratiqué le
après avoir creusé le trou : le piston note un volume Vl :
( i l rn,trou : la tige du piston note un volume V, ; il est appliquée
3 h m cl iY F84UaI Salen e cbitm n- ï deRnrknmrc.u-n - 4 H c r n b u rv n a ~ rsoupk - 5 Eiu
v1- vo est le volume du trou
.Certains contrôles indirects de la compacité sont possibles. Ainsi l'aiguille Proctor qui a été
très employée par les Américains ; elle consiste en un petit pénétromètre auquel on transmet
l'effort manuel exercé sur un piston par l'intermédiaire d'un ressort dont le raccourcissement
mesure l'effort appliqué.
On enfonce l'aiguille de 1 cm sans utiliser le piston puis on
le fait pénétrer d'environ 8 cm en six secondes dans le
nécessaire. Cet effort divisé par la section de l'aiguille
.,1.1,.
-fi_.I....
remblai en effectuant la mesure de l'effort maximum
donne la résistance à la pénétration de la terre.
Il est nécessaire d'associer à cette mesure, celle de la teneur
en eau du remblai, la valeur de la résistance à la pénétration
du sol étant beaucoup pius forte sur les terres sèches que
sur les terres mouillées ; la teneur en eau doit être celle qui
est prescrite pour le compactage, la résistance à la
pénétration voisine de celle que l'on a mesuré au
Laboratoire dans le moule Proctor après compactage à la
teneur en eau optimale.
7-
Cette méthode exige que l'on ait aiTaire à un sol fin, la présence de cailloux rendant impossible son
utilisation. C'est là une sérieuse limitation à la méthode.
20 1
2.2.4 - Exécution et contrôle du comptictnee
2.2.4.1 - Eneins de compnctaee et exécution du corngnctage
Le compactage est réalisé sur le chantier au moyen d'engins qui sont capables de fournir une énergie
voisine de celle du Proctor modifié.
- Les rouleaux lisses conviennent pour le compactage des sols durs mais leur l'effet ne s'étend pas
prof0ndément.
- Les rouleaux à pieds de moutons dont la surface comprend des poinçons qui pénètrent dans le sol
réalisent de très fortes pressions en contact. Ces appareils conviennent bien pour le compactage
des barrages homogènes ou pour compacter un noyau d'argile car ils sont bien adaptés aux terres
cohérentes c'est à dire légèrement plastiques comme il est nécessaire pour les barrages. 11s ne
conviennent pas pour les sables.
- Les rouleaux à pneus : ils sont très lourds et permettent d'atteindre des profondeurs plus
importantes pour le compactage. Ils conviennent pour tous les matériaux sauf les sols
pulvérulents.
- Les plaques vibrantes : pour les sables et iniiieux pulvérulents. On associe parfois rouleaux et
vibrations -+ rouleaux vibrants.
- Le pilonnage : c'est un type de compactage qui se répand. On l'utilise principalement pour
compacter les zones proches des inaçonneries (bajoyers de déversoir par exemple) là où les gros
engins ne peuvent parvenir : l'appareil est la "grenouille sauteuse".
On effectue en général un essai de compactage sur une aire d'environ 5 m x 20 m avant d'attaquer le
chantier, afin de définir le nombre de passes d'engins et l'épaisseur des couches à répandre avant
compactase.
Cette épaisseur dépend du type de compacteur et de la terre. On cherche à obtenir des couches qui
une fois compactée mesurent 15 cm. Le nombre de passes doit être tel que la densité sèche obtenue
soit celle que l'on s'est fixé comme limite inférieure (optimum Proctor par exemple).
Il s'agit ensuite de s'assurer que la digue est coinpactée partout selon les normes retenues, donc de
contrôler le compactage.
2.2.4.2 - Contrôle iiri cornpacttiee
- Le contrôle le plus important consiste a vérifier que le compactage est bien réalisé ainsi qu'il a été
prescrit : nombre de passes des engins, ipaissecir des couches teneur en eau de mise en place (au
chantier on la mesure directement en séchant la terre par brûlage à l'alcool ou par passage à la
poêle).
- Le contrôle direct de la compacité doit ètre erectué de temps en temps. Il convient à mesurer la
densité sèche du matériau compacté.
Méthode au sable : on réalise un trou dans la digue compactée (30 cm de profondeur
p.e.). On pèse la terre retirée et on mesure sa teneur en eau et le poids sec. On remplit
ensuite le trou d'un sable sec bien calibré avec une technique de mise en place normalisée
(à l'entonnoir sans chute libre) qui dispose le sable à la densité d connue si m est la masse
de sable nécessaire pour remplir le trou, son volume est v = m/d.
200
2.2.3 - Choix de la teneur en eau de compactage
L'essai Proctor définit une teneur en eau optimum qui permet le meilleur compactage ; on, choisit
cette teneur en eau pour les ouvrages de petites dimensions ou pour les terres pas trop fines. Dans
le cas des ouvrages importants, la surcharge provoquée par le remblai provoque un tassement des
terres qui en diminuant l'importance des vides peut amener la terre à la saturation et provoquer des
pressions interstitielles dangereuses pour la stabilité de l'ouvrage ; on devra alors choisir une teneur
en eau inférieure à la teneur optimum de compactage.
En effet, on peut calculer la pression interstitielle dans un sol qui subit une compression Av au
moyen de la formule de Hamilton :
v a + f v e Hamilton
Pa : pression initiale de l'air (pression atmosphérique)
Va : volume initial de l'air contenu
V, : volume de l'eau
f : coefficient de solubilité de l'air dans l'eau (0,02 à 7OOC)
AV : variation du volume total.
On réalise des essais oedométriques sur des échantillons à teneur en eau différentes, inférieures à
celle de l'optimum, les charges appiiquées étant celles que provoquera le remblai. La variation AV
de volume mesurée permet de calculer ainsi la surpression u qui sera provoquée. On choisit alors fa
teneur en eau de compactage telle qu'elle ne provoque pas de pression interstitielle dangereuse. (La
teneur en eau de compactage sera donc plus faible pour les couches inférieures que pour les
couches supérieures).
En fait pour les petits barrages on cherchera à utiliser des teneurs en eau inférieures de 1 % à ceIle
de l'optimum.
215
5. INFILTRATIONS ET HYDRAULIQUE INTERNE
Les problèmes d'étanchéité d'un barrage se situent en général à trois niveaux qu'il convient de bien
distinguer :
- l'étanchéité de la cuvette,
- l'étanchéité du corps de remblai,
- l'étanchéité de la fondation et des rives qui assure la liaison entre les deux précédentes.
Il s'agit ici d'analyser les conditions d'étanchéité des corps de remblai, en partant du constat que
les infiltrations peuvent provoquer trois types de phénomènes préjudiciables à la bonne tenue de
l'ouvrage :
- des hites d'eau, souvent inévitables, mais qu'il convient de limiter afin qu'elles n'engen-
drent pas de problèmes plus graves.
- des sous-pressions qui sont en général défavorables à la stabilité des ouvrages (déversoirs
en particulier)
- si l'eau débouche sur le talus aval dans des zones peu ou pas aménagées, le gradient
hydraulique peut avoir une valeur telle qu'une érosion régressive prenne naissance et
creuse une sorte de tunnel : c'est le phénomène de renard qui menace gravement la survie
même de l'ouvrage.
5.1. Rappel des équations du mouvement de l'eau dans un soi
5.1.1. La loi de DARCY
La loi de DARCY montre que la vitesse d'un écoulement a travers un milieu poreux est
proportionnelle à la perte de charge entre deux sections quelconques de cet écoulement et
inversement proportionnelle à la distance A 1 qui sépare ces deux sections.
Le schéma suivant représente l'expériencede DARCY.
Fig 7.11 - L'expérience de Darcy
.
214
4.3 - La Crête
II est nécessaire de protéger la crête pour lutter contre la dessiccation mais aussi pour assurer la
circulation éventuelle d'engins. On a l'habitude de mettre en oeuvre une couche de couronnement
d'au moins 20 cm d'épaisseur en matériau graveleux (latérite par exemple).
Pour se prémunir contre l'érosion de la crête par prolongement (recul) des griffes d'érosion sur les
talus, mais aussi pour assurer une évacuation des eaux de ruissellement de la Crète du barrage vers
l'amont (côté retenue), on met en place deux murets de crête. Les murets de crête sont construits
soit en maçonnerie de moellons, soit en béton ordinaire coulé sur place ou exécuté des sections
carrées de 40 ou 50 cm de côtés.
Fig. 10 - Protection de la crête
- Murettes de crêje 1
en maçonnerie i
de moellons 1
:budiedecouronnement)1' 1
I -- 1 i
- Murettes de crête
i (budiedecouronnement)
en béton ,
/---------.1
/
1 '
Remblai cqmpacte
corps de digue
213
4.1.4 - Autre protection dii talus amont :technique du ciment compacté
Fig 7.9 - Protection amont en sol-ciment
Soi ciment, compact
Une protection possible du talus amont peut consister en un traitement du remblai au ciment sur
une épaisseur de 0,6 m à 1 in le long du parement amont. C'est une technique américaine. Quoique
les dosages en ciment doivent etre assez importants (6 i 12 YOdu poids de terre traitée), cette
solution peut se révéler intiressante dans les zones où l'enrochement est cher ou inexistant. On
réalise une série de couches horizontales de sol-ciment compacté de 2 à 3 in de large.
Le ciment est répandu sur la couche de terre a coinpacter et le mélange terre-ciment est réalise par
malaxage au ROTAVATOR avant corripactage. Le compactage se fait de la m&ne façon que les
couches du massif. Le talus est nivelé après coinpactage.
Pour tenir compte des sous-pression en cas de vidange, ii est recoininandé de placer un drain (filtre)
entre le massif du barrage et Ie sol-ciment.
1.2 - Le talus aval
Longtemps, on a recommandé I'enherbement. Pour des barrages de grande hauteur, cette technique
est associée à des risbernes (terrasses) . Dans les zones arides ou semi-arides, l'enherbement est
détruit pendant la saison seche. ce qui fragilise la protection à l'arrivée de la prochaine saison de
pluies. Par ailleurs I'enherbement attire le betail. ce qui peut constituer aussi des causes de
dégradation de la digue.
Actuellement pour les petits barrages de hauteur superficielle inférieure ;Z 10 m les revêtements en
matériau graveleux latéritique légèrement tasse sont adoptés pour la protection du talus avai. Une
épaisseur de 30 cm s'avère raisonnable. En ef'fèt, sous l'effet de la chaleur et de l'humidité, la latérite
se transforme en une croûte résistante.
Pour les ouvrages importants on envisage des protections du talus aval en rip-rap avec des
enrochements de petite taille.
2 13
4.1.2 - Perré rangé il la main
Parfois un perré rangé à la main est plus économique, l'épaisseur pouvant être réduite de moitié si
les pierres sont résistantes et durables (épaisseur 30 à 60 cm). Les pierres, généralement assez
petites pour être maniées par un seul homme sont disposées, comme dans le cas de l'enrochement
en vrac, sur une couche de pose constituée de gravier et de sable de granulométrie appropriée
jouant le rôle de filtre. Une épaisseur de 20 cm à 30 cm peut être requise.
Le perré doit être bloqué à la partie inférieure sur un épaulement (butée) ou sur une risberne de
façon à écarter toute possibilité de glissement.
Ce genre de revèteinent n'est que très rarement utilisé sur le talus aval des barrages.
Pour les petits barrages en terre en Afrique Occidentale (hauteur superficielle du barrage < 10 m),
on utilise des perrés de queue moyenne 30 an. Les pierres sont disposées sur une couche de pose
filtrante en tout venant gavillonnaire 0/25 et d'épaisseur d'environ 20 cm. Les pierres sont
soigneusement bloquées les unes aux autres par des éclats de pierres. Quelquefois après exécution
du perré, on répand une terre graveleuse sur le talus qui vient combler les interstices et donner une
meilleure résistance à la structure.
4.1.3 - Revêtement en Béton
Un revêtement en béton est parfois employé sur le taliis trniorit lorsque aucun enrochement de
qualité n'est économiquement disponible (très longues distances de transport).
On ne cherche qu'a protéger le reinblai contre l'érosion des ngues, et il faut 6viter que ce
revêtement soit étanche.
Il peut ètre constitué soit par des dalles prifabriquees, soit par un revètement en béton armé
monolithicpie, inuni ou non de joints de contraction (section d'aciers = O,? i 0,5 ?/'O de la section de
béton).
Dans tous les cas il est nécessaire de disposer sous le béton une couche de %ravieret sable formant
filtre, d'une épaisseur au inoins égale a 30 cin.
Le revètement est buté a l'extrémité inférieure par une risberme.
Le dmiri~zgede la terre sous-jacente doit être largement assuré de telle sorte que le revêtement ne
soit pas soufflé lors d'une vidange rapide pas I'eiTet de la pression hydrostatique interne. L'eau
s'écoule soit par les interstices laisses entre les dalles. soit par de très nombreuses barbacanes
aménagées dans le revêtement monolithique.
Il arrive que ce revêtement constitue l'organe étanche du barrage, mais cette solution est à
déconseiller en raison des fissures qui se produisent inévitablement, à moins d'aménager de
nombreux joints avec laines d'étanchéité très couteuses.
On utilise parfois des revêtements de protection en béton poreux disposés sur une couche de
vgravier permettant ainsi un drainage rapide grice auquel les soiis-pressions n'apparaissent pas.
Les Ingénieurs de l'Armée utilisent de préférence le tableau suivant qui donne f'épaisseur minimum
de la couche d'enrochements ainsi que les dimensions minima des blocs en fonction de la hauteur
des vagues déterminée à partir de l'abaque de 1'U.SArmy corps of Engineers.
HAUTEUR DES VAGUES
(mètres)
EPAISSEUR
d'enrOc11einent (111 ètres)
minima de la couche Di,,MINIMUM
(mètres)
L
O à 0,30 0 , X 0,20
0,30 à 0,60 0.40 0,25
0,60 à 1,20 O,45 0,30
1 1,20 à 1,SO
1
1,80 a 2,40 O,70
2,40 à 3,oo o s 0
0,35
O,%
Aucune spécification nkst souvent précisée quant i la granulométrie des enrochements. On se
contente d'éliminer les fins par tirase sur une grille dont les barreaux sont écartés de 100 à 150 mm,
la limite supérieure étant donnée par les possibilités pratiques de manutention et de mise en place
des enrochements.
Pour la qualité de i'enrochemenr. il faut disposer d'une roche dure (et bien résistant au gel). Les
schistes et les grès sont en générai à proscrire.
+ Le dimensionnement du poids et de l'épaisseur ininimuin de l'enrochement peut se calculer aussi
par les formules suivantes :
- formule de HUDSON
y Il3
k, Cotg a (ci - 1)'
I
avec :
P = Poids unitaire de la rnoitie des en enrochements
"/
d
cotg a = fmit du talus
h
kp peut être pris égal à 5
= Masse volumique des enrochements
= densité des enrochements par rapports it l'eau
= coefficient de dégât
= hauteur des vagues en m
kP
L'épaisseur minimale de l'enrochement est ivalutie a
210
f
y = 2,50
1/12 O,024 0,022
+/ = 3,65
1/4 1 0,027 0,024
4 - PROTECTION DES TALUS
y = 2,80
0,020
0,023
Les talus doivent être protégés contre les dangers d'érosion provoqués par les vagues de la retenue,
par le ruissellement de la pluie ou par le vent. 11faut parfois prévoir une protection (enrochement,
béton, grillage) contre les animaux fouisseurs qui peuvent creuser des terriers dans les digues.
!
1/2 0,03 1
1/1,5 0,036
1/1 1 0,047
4.1 - Le talus amont
0,028 0,026
0,032 0,03O
0,041 O,O38
1
La protection du talus amont doit être assurée contre le batillage ou action érosive des vagues.
4 1 . 1 - Enrochement en vrac ou rip-rail
C'est le matériau le plus couramment utilisé pour la protection du talus amont. Quelquefois, il peut
s'avérer économique dans les possibilités de protection du talus aval. Il y a nécessité de disposer
entre l'enrochement et le remblai une couche de transition (couche de pose filtrante) d'épaisseur
d'environ 30à 30 cm, constituée de gravier et de sable (tout venant gavillonnaire) de granulométrie
appropriée. Pour être stable, ce filtre doit avoir Fsj > 25 mn. Si la hauteur des vagues est
supérieure à 1.50 m, on fixera Fy5> 40à 50 inin. A noter qu'une seule couche de
granulométrie convenable suffit en général.
+ L'épaisseur minimum de la couche d'enrochement est donnée par la relation suivante utilisée pare
la "TENNESSEE VALLEY AUTHORITY" (T.V.A):
e = C V '
V = vitesse des vagues en m / s seion la formule de GAILLARD
C = coefficient dépendant de la pente du talus et du poids spécifique y de
e = épaisseur minimum de la couche d'enrochement en m.
l'enrochement utilisé.
i
P E N E DU TALUS 1 VALEURS DE c Pt 11,XDIFFERENTS POIDS SPECIFIQUES
I 0,028 1 0,035 1 0,023
I1 1/3
Quant aux diniwsioiis des iZknier7t.r elles seront telles que 50 YOde l'enrochement soit constitué de
blocs d'un poids égal ou supérieur au poids calculé par la formule
P = 0.53 y e3
P est donné en tonnes quand e est en mètres.
- . 1 - ..... ,
Formule de G m L A R D pour le calcul de la vitesse des vagues et de la revanche libre
La vitesse de propagation des vagues peut être évaluées approximativement par la formule de
Gaillard:
V = 1.5 + 2 h
V = vitesse de propagation des vagues en m / s
h = hauteur des vagues en m.
L'effet de projection des vagues vers le haut du parement amont peut être évalué en calculant le
terme -, g étant l'accélération de la pesanteur.
V'
2,o
Finalement, la revanche libre minimum pour tenir compte de l'action des vagues peut être prise
approximativementégale à :
R = 0.75 h 4-
V'-
2s
Autre Formule
On peut aussi évaluer directement la revanche libre par la formule simplifiée :
R = 1 + 0.3 y%;oÙ F = fetch en kim
R(1n)
La revanche doit en outre permettre de compenser le tassement du barrage après sa réalisation.
3.2.4 - Remarque
Dans certains grands barrages en terre, la revanche totale dépasse 5 m et peut même atteindre 10 m.
Cependant, en général, elle n'est pas aussi forte. Amsi le Bureau Of Reclamation admet une
revanche totale de 2.50 m pour des barrages inférieurs à 60 m de haut, reposant sur des fondations
rocheuses, et si, le réservoir ayant une capacité supérieure à 12 millions de m3, la longueur du fetch
F est inférieure à 8 km. Lorsque l'une de ces conditions fait défaut, la revanche totale minimum est
portée à 3 m.
Ces valeurs s'appliquent au cas d'un déversoir muni de vannes.
Dans le cas d'un déversoir libre, sans vanne, la revanche peut être réduitejusqu'à 3 m.
En pratique on pourra adopter les valeurs de revanche libre minimale ci-après :
- Barrages de moins de 10 m de haut
0.80 2 R 5 1.50 m
- Barrages de 10 à 20 m de haut
1.50 2 R 5 2 m
, .
20%
Il est préférable d'utiliser l'abaque suivant dressé à la suite de nombreuses observations
océanographiques corrigées par les Ingénieurs de l'Armée pour tenir compte du fetch relativement
court mesuré dans les retenues de barrage.
Cet abaque fait intervenir la durée minimum pendant laquelle un vent de vitesse donnée doit souffler
à la surface d'une retenue pour que la hauteur des vagues produites atteigne le maximum
correspondant à la valeur indiquée par l'abaque.
Exemple : il faut qu'un vent de 40 k d h soufile au moins pendant 2 H 30 Inn pour que, sur une
retenue ayant un fetch de 16 km, les vagues atteignent leur hauteur maxima de 1.20m.
Fig. 7.8 : DETERMTNATION DE LA HAUTEUR MAXTMA DES V.1GUES D'APRES U.S.
ARMY CORPS OF ENGTNEERS
LÉGENDE
Hauteur mLxima des vagues en mètres.
- - - - - - Durée du vent en heures.
207
Remarque : Dans les cas où le barrage est situé dans une région très froide ou dans une région très
chaude et sèche, et particulièrement si les matériaux de construction utilisés pour le
corps de digue sont du type CL et CH, une augmentation de la revanche libre sera
envisagée pour des fetchs de 2.5 miles ou inférieurs.
Il est aussi recommandé d'augmenter les valeurs de revanches libres du tableau ci-dessus de 50 %
en cas de revêtement lisse du talus amont.
3.2.3 - Autres formiiles ou abaques de calcul de la hauteur des vagues
D'autres formules empiriques permettent d'évaluer la hauteur des vagues en fonction de la longueur
du plan d'eau ou Fetch et de la vitesse du vent.
Formule de STEVENSON
PourF < 18 Jan, h = 0.75 + 0.34 -&- 0.36 'fi
Pour F > 18 kin, 11 = 0.34 fi
fetcli F en hn et 11 = hauteur des v q w s en 111.
Ces formules ne sont valables que polir un vent ne dépassant pas 100 k r d h .
Formule de MOLITOR
-
Pour F < 30 km,11 = 0.76 + 0.032 JUF - 0.26 'fi
Pour F > 30 kin, 11 = 0.032 JÜF
F = fetch en km
U = vitesse du vent en km/h
h = hauteur des vagues en mètres.
Il faut noter que la première formule de MOLITOR donne une hauteur de vague non nulle pour U =
O, ce qui est anormal ; ces forinules empiriques ne sont donc valables que pour des vents de vitesse
appréciable.
Les valeurs de la formule de MOLITOR sont données par les courbes de la figure ci-après.
FIGURE 7.7 : DETERMINATION DE LA HAUTEUR DES VAGUES
Fetch
40 __
30 __
20 --
IO .-
(Km)
tesse du vent (Krn/h)
1 ' 2 3 Hauteur des vagues (m
.
3.2.2 -Tableau de I'American Society of Civil Engineers
Fetch, miles Wind velocity
miles per hour
1 50
1 75
2.5 50
Wave heigt, feet
2.7
3.0
3.2
2.5
2.5
5
75 3.6
1O0 3.9
5O 3.7
5
5
r- 10
75 1.2
1O0 1.8
1O0
10
10
6.1
50 4.5
5.475
I
1 mile = 1.61 km
1 foot = 0.305 m
Fetch, miles Revanche
libre
normale,
pieds
inférieur à 1 4
Toutes les conditions affectant l'exposition du barrage au vent doivent être considérées dans le
choix de la vitesse maximum du vent.
Revanche
libre
minimum,
pieds
3
La revanche libre normale est calculée selon Lin vent de vitesse 100 miledhour et la revanche libre
minimum selon un vent de 50 miles/h.
1
I 5 4
I Il 6 52.5
1
5 6
l
10
1 l 0
1 pied = 0.305 m - 1 mile = 1.61km.
205
3.2 - Effets de vagues et revanche libre
La hauteur des vagues provoquées par les vents dans la retenue dépend de la vitesse du vent, de la
durée du vent, du fetch (longueur du plan d'eau exposée au vent), de la profondeur de l'eau et de la
largeur du plan d'eau.
La hauteur des vagues à l'approche du talus amont de la digue du barrage est diminuée du fait de
l'augmentation de la profondeur d'eau et/ou du fait du rétrécissement en largeur du plan d'eau.
En ce qui concerne le contact des vagues avec le talus amont du barrage, l'effet des vagues est
influencé par l'angle d'incidence, la pente du talus amont, la texture de la surface du talus amont.
La hauteur des vagues peut être calculée selon des formules empiriques.
3.2.1 - Formiile de Mallet et Pscquant
1h = '+ f3 Jf 1h = hauteur des vagues en mètres
2
f = fetch en kilomètres
La vitesse de propagation des vagues de hauteurs coinprises entre 0.5 et 2 m est donnée par :
I n I
Où V en ~n/s
h en mètres
La revanche libre R est donnée par :
h en mètres
v en m i s
g en m/s2
A = Coefficient de sécurité entre 1 et 3
N.B. :
la revanche libre est la dénivellation entre le PHE et la crête de la digue.
le fetch est nui pour un vent soufflant de la digue vers la retenue et maximal pour un vent
soufflant en sens inverse.
- __ .- -
204
3.1.5 - Largeur en crête (Lc)
La largeur en crête doit être suffisante pour autoriser la circulation d'engins pour la finition de
l'ouvrage et ultérieurement pour son entretien. En pratique, la largeur en crête (lc) est supérieure à
3 mètres.
Pour des digues de hauteur (E)supérieure a 9 m, on adopte souvent : lc = E/3.
Quelques formules
KNAPPEN :
PREECE :
Autre formule
1, = 1.1 JE + 1
1, (m),E(m)
1, = 3.6 - 3
1, (in). H(rn)
N.B. : Dans le cas de matériaux sableux, la largeur en crête doit être supérieure à ces valeurs.
3.1.6 - Pente des taliis
Voir tableau dans la partie "Stabilité de la digue"
.
21s
5.1.3.2. Perméabilité verticale d'un sol stratifié
On considère à présent la même série de sol, mais traversée par un débit Q (vitesse v)
perpendiculaireà l'ensemble des strates.
Fig. 7.13. Perméabilité verticale dans un sol stratifié.
Perte de
charge
totaie
A h
X
Dans ce cas donc, le débit Q qui traverse chaque couche est le même, mais la perte de charge et le
gradient hydraulique dans chaque couche sont différents. On définit donc une perméabilité
verticale moyenne K,, telle que selon la loi de DARCY :
Ah V HV=K,-oKv=-
H Ah
Ecrivons que la vitesse V reste la même dans chaque couche traversée :
V =KI il =K2 i2 =........=Kn in
La perte de charge Ah est la somme des pertes de charge dans les différentes couches traversées
donc A h=Hl il +H2 i2 +.._....+H, in
H H
v v V
donc Kv === H, il
- + -
En remplaçant V par
T7
Soit en définitive
3n expression d
H
Hn
Kl K2 Kn
K,= H,
- +-HZ +.....+-
219
ns chaque couche traversé
H
K, =
H2 i2 Hn in
Klil K2'2 Kn in
il +-+.....+--
on obtient :
En conclusion, dans un terrain stratifié on considérera une perméabilité moyenne K qui
s'exprimera:
Le coefficient de perméabilité K est une caractéristique intrinsèque du matériau. On peut l'estimer
au laboratoire par un essai au perméamètre ou un essai oedométrique. On vérifiera qu'un soi
compacté à vocation d'étanchéité présente un coefficient de perméabilité inférieur à
1 0 - ~- IO-* m/s.
5.1.3.3. Forme des équations du mouvement dans un sol stratifié.
On considère à nouveau une série de sois d'épaisseurset de perméabilités différentes.
Supposons que l'écoulement ait lieu dans le plan (x,y) (cf fig. 7.14) ;la vitesse s'écrit alors :
- -
Y=Vx+VY = V x i + V y j
i
220
Fig. 7.14. Ecoulement dans un milieu stratiflé.
Dans un sol anisotrope l'équation de continuité s'écrit toujours divv =O
soit
Or selon la loi de DARCY et les résultats des paragraphes précédents :
dH
V =-K,-
x dX
dH
Vy = - K, -
dY
L'équation de continuité devient donc :
Appliquons le changement de variable :
r
soit
22 1
donc
en remplaçant dans l'équation :
û2H d2H
+-=O
dxI2 ay2
C'est à dire A H =O
Donc au changement de variable près, l'équation du mouvement
aussi à une équation du type AH = O, comme en milieu isotrope.
dans un soi stratifié se ramène
La solution en milieu anisotrope peut donc se ramener à une solution dans un sol isotrope en
posant le changement de variable x'=x Kv , c'est à dire en contractant les distances
l/%-
horizontales dans le rapport
On trace le réseau d'écoulement dans le système d'axes x'y et on effectue le changement de
variable inverse pour obtenir la forme de l'écoulement dans le repère initiai. La figure suivante
illustre ceci dans le cas d'un barrage en terre.
Fig. 7.15. Résolution dans un milieu anisotrope.
222
1) Représentation du barrage dans le système d'axe xy
2) Réduction des distances horizontales dans le rapport /get résolution du problème
d'écoulement dans ce milieu considéré comme isotrope.
3) Déduction graphique de l'écoulement dans le milieu anisotrope par application de l'opération
inverse.
5.2. Résolution des équations du mouvement dans le cas des barrapes en terre
Les équations du mouvement se ramènent donc à AH =O, dont la solution est une fonction
harmonique vérifiant les conditions aux limites du projet. Il existe des solutions analytiques plus
OU moins complexes à cette équation. Mais on peut également étudier les infiltrations par
modélisation informatique, par analogie électrique ou par une méthode simplifiée fondée sur des
approximations et des propriétés graphiques du réseau d'écoulement.
5.2.1. Etude des conditions aux limites
Considérons un barrage homogène posé sur une première couche de fondation de perméabilité
voisine surmontant une autre couche beaucoup plus imperméable.
Fig. 7.16. Ecouiements dans les barrages :conditions aux limites
Plan d'eau - - Ligne phréatique
ou ligne de courant supérieure
-Surfaces de suintement
/' Massidep-e Kr H = z (cote)
Surfaces fiitrantes
Cê sat des Sufaces epidiages.ti =üek. ,
I l
'/[ Lignesde courant/--'-----'
1
I
- - -- -h:-v-v- -v--v--v--
Zone de perméabilitévoisine a Kr
- Au contact entre le milieu relativement perméable et la couche de fondation très imperméable,
les vitesses de l'eau sont parallèles à la surface de contact.
- Le contact entre un milieu poreux et un volume d'eau au repos constitue une surface filtrante. Il
en est ainsi pour le parement amont et le fond de la cuvette. L'eau est au repos et a donc une
charge identique dans toute sa masse. Cette surface de contact est donc une surface équicharge
- La surface (la ligne en coupe transversale) le long de laquelle la pression hydrostatique de l'eau
d'infiltration est nulle est appelée surface phréatique (ligne phréatique en coupe transversale).
Elle est généralement distincte de la surface de saturation, la différence entre les deux étant la
hauteur d'élévation capillaire.
- - . .
223
En choisissant la pression atmosphérique comme origine des pressions, H = z, sur une surface
phréatique, le niveau d'eau dans un piézomètre représentera alors le niveau de cette surface libre.
Une autre propriété est que les vitesses de l'eau sont parallèles à cette surface.
- Les surfaces de suintement
Ce sont les surfaces séparant le sol saturé de l'atmosphère. Ainsi, lorsque l'eau débouche sur le
talus aval (non drainé) la surface de celui-ci constitue une surface de suintement. A cet endroit la
pression est égale à la pression atmosphérique (H = z) et les vitesses ne sont pas parallèles à la
surface.
La surface horizontale à l'aval du barrage est une surface de suintement particulière : elle
horizontale donc H = cte ;c'est une ligne équicharge analogue aux surfaces filtrantes.
5.2.2. Hypothèse simr>lificatrice
On peut simplifier ie problème de l'hydraulique interne d'un barrage en terre en considérant
que les vitesses sont contenues dans des plans perpendiculaires à l'axe du barrage et qu'elles
sont identiques quelque soit le plan considéré (écoulements plans). Cette supposition
trouve sajustification dans le fait que la longueur du remblai est très supérieure aux
autres dimensions.
est
Fig. 7.17. Ecoulements plans
Surfcri
Zone S
.
221
5.2.2.1. Première conséquence : définition de lit fonction de courant et des Iignes de
co11 rant
Rappels sur l'opérateur rotationnel
Si A=A, :+A j + ~ ~k aiors:
Y
l kf A,div rot A = O l
e rotationnel d'un vecteur
P
Comme l'eau est incompressiblediv V =O .
Le rappel précédent montre que l'on peut considérer la vitesse comme
@car V A. div rot A= O
toujours nulle. Si le vecteur k est perpendiculaire aux plans d'écoulement alors le vecteur vitesse-
et donc le vecteur W s'écrit :
w IoO
I - c'y/
eneEet V = rot@ t', ; V =-
Y A
i
La fonction y/ que l'on vient ainsi de définir a une propriété remarquable ; elle est constante sur
une ligne de courant, une ligne ainsi nommée étant une ligne tangente en chacun de ses points au
vecteur vitesse.
En et'fet en mettant la fonction sous forme différentielle :
soit dry=- Vy d x + V x d y (1)
225
Traduisons le fait qu'une ligne de courant est tangente en chacun de ses points au vecteur vitesse :
Soit dïi Li;)le vecteur unitaire de la ligne de courant alors dü ??v.Ceci s'écrit encore :
dx Vx
Idy vyI= O a V Ydx -V, dy = O
soit Vy dx = Vx dy
l'expression (1) devient donc :
d v = - VXdy + VXdy = O
donc le long d'une ligne de courant dw = O c'est à dire v = constante.
~~~ ~
Une ligne de courant, trajectoire des particules d'eau, peut donc être définie par
= constante. c/(x.v) est appelée fonction de courant.
5.2.2.2. Deuxième conséquence :débit écoulé entre deux nappes de courant.
Considérons deux nappes de courant très proches et représentant i'écoulement à travers une
tranche unitaire de lm d'épaisseur de remblai. Ceci est décrit sur le schéma suivant :
Fig. 7.18. Débit écoulé entre deux nappes de courant.
.
X
i
. ... ,
226
. Y est la vitesse d'écoulement tangente à la nappe y1en A,. Comme les deux nappes sont
. La surface d s est égale a Al A2 x 1 m=Al A2
. fiest le vecteur unitaire perpendiculaire à la surface dS. Ïi .dS est donc le vecteur surface.
infiniment proches, c'est aussi la vitesse tangente à y2 en A,.
donc dS=A,A,
fi a pour coordonnées : [i:ns:]
. A x = x ~- x2 ; AY=Y,-Y2 ; (Xi.Y1) e t ( x 2 4
étant les coordonnées respectivement de A, et A,
Ecrivons le débit qui s'écoule entre ces deux nappes de courant :
dq = V.dS ou encore vectoriellement dq = V.fi dS
- -
Or iï = cos a i + sin aj
(le signe - s'explique par le fait que Ax = x1 - x2 > O et que a
-Ax -Axsina =-- --
A1A2 d S
Ax< O ;donc sin a < O et comme Ax > O, sin a = - -
Al A2 )
donc E-dS = cosa-dSi f sin m d S j
or V = - 1 - -- "wl
dY dX
donc dq = v . fi dS = -w - Ay + - Ax
dY dX
Donc entre deux lignes de courant, il s'écoule par unité d'épaisseur un débit égal à la variation
de la fonction de courant entre les deux lignes
5.2.2.3. Troisième conséquence : définition des éaui~otentielleset forme du réseau
de lignes
Considérons la fonction <p = - KH. Elle est telle que :
Y = - K gradH = gr5d - KH = gitad p
soit V=gradg>J
(0 est la fonction de potentiel
227
La vitesse v=@d p est toujours perpendiculaire à la ligne cp = constante (donc aussi à la ligne
équicharge correspondante).
Y étant tangente en tout point aux lignes de courant :
Les lignes de courant (y = constante) et les équipotentielles(cp = constante)forment un
réseau de lignes orthogonales
Etudions les propriétés de ce réseau de nappes (réseau de lignes en coupe transversale).
Considérons deux nappes de courant et deux nappes équipotentielles infiniment proches.
Fig. 7.19 - Nappes de courant et équipotentielles.
dSq est l'élément de surface de la nappe cp1 entre y1 et v/2 et sur une épaisseur unitaire de
remblai.
dS<p=ABxlm=AB
dSW est l'élément de surface de la nappe y 2 entre 'pi et 'p2 et sur une épaisseur unitaire de
remblai.
dSty = BD x 1 m = BD.
!
228
De plus dq = V . dSq ;or on a vu en 5.2.2.1 que dq = dw ;donc d y = V dSq,
Si l'on a un réseau orthogonal à mailles carrées, c'est à dire si AB = BD a dSq = dSy, alors
v = d(P - dv = dq=dry.
dSy dSp
Si l'on prend soin de tracer le réseau de lignes de courant et d'équipotentiellestel que les
mailles qui le constituent soient carrées, alors on aura dq = dw
5.2.3. Etude du réseau de lienes de courant et d'éauiDotentielles dans un barrage
en terre
l'étude et le tracé précis des lignes de courant et des équipotentielles ne s'imposent que dans le cas
des grands barrages en remblai. Pour le suivi de ces ouvrages, il sera en effet nécessaire de
connaitre de manière fine les débits de fuite et les pressions interstitielles de manière à conduire
des calculs de stabilité les plus détaillés possibles et à vérifier que les fuites restent acceptables
tant du point de vue économique que sécuritaire.
Pour les petits ouvrages, dont traite essentiellement ce cours, un tracé sommaire par méthode
graphique sera généralement suffisant pour en comprendre l'hydraulique interne. On s'attachera
ainsi à déterminer les données nécessaires au calcul de stabilité (position et forme de la surface
libre par exemple) et au choix d'un dispositif de drainage.
Le tracé théorique de la ligne de saturation permettra aussi de vérifier que la ligne observée (dans
des piézométres par exemple) en réalité n'est pas plus élevée que prévu. Ce serait en effet
dangereux pour la stabilité du talus aval, cela pourrait créer des sous-pressions anormales sous les
ouvrages en béton posés sur le remblai, et enfin provoquer des fùites très préjudiciables pouvant
conduire à la naissance d'un renard;
Lorsque l'on soupçonnera que l'ouvrage puisse présenter une anisotropie de perméabilité (Kh >>
KJ, on appliquera les méthodes classiques à un massif déduit du massif réel par une affinité d'axe-
horizontal et de rapport Kv
d.h
5.2.3.1. Procédés anaIopiaues
11 s'agit essentiellement de l'analogie électrique. Elle est fondée sur le fait que "l'écoulement'' du
courant électrique est régi par des lois similaires a celles qui concernent les mouvements de l'eau
dans le sol :
229
1
v = - K g r Z d H e j = - -grZdu
P
( jest le vecteur densité de courant)
lignes équipotentielleshydrauliques a lignes équipotentielles électriques
lignes de courant hydraulique0 lignes de courant électrique
On réalise donc un modèle réduit du barrage avec un papier conducteur. Au moyen de contacts
électriques on impose le potentiel aux limites du modèle (conformément aux conditions aux
limites). Puis avec une sonde reliée à un voltmètre, on trace par tâtonnements les équipotentielles
point par point.
Ce procédé permet, avec une certaine habitude, de tracer le réseau de lignes précisément, et en
particulier dans Ie cas de barrages importants. Cependant, il s'adapte mal à des situations
complexes où sejuxtaposent des terrains de perméabilitésdifférentes.
ia figure suivantedonne l'exemple du réseau de lignes orthogonalestel que l'on peut l'obtenir avec
cette méthode, dans le cas d'un remblai posé sur un terrain d'assise de perméabilité équivalente et
muni d'un drain de pied.
Fig. 7.20 -Réseau de lignes
Lignes de courant
Lignes equipotentiel
Mentionnons également l'analogie- visqueuse. En remarquant que l'écoulement dans le sol est
laminaire, on cherchera à reproduire cet écoulement laminaire a une échelle réduite, ce qui est
relativement simple pour les écoulements plans. On réalise en effet, à conditions aux limites
égales, un écoulement d'un fluide visqueux entre des plaques planes parallèles et rapprochées dont
I'une est en verre pour visualiser la position du liquide. Cette méthode permet en particulier de
matérialiser la surface libre et d'étudier des écoulements non permanents.
230
5.2.3.2. Calcul numérique sur ordinateur
Il existe un certain nombre de logiciels permettant de résoudre numériquement Ie problème des
écoulements dans un massif. Ils permettent généralement de déterminer la position de la ligne de
saturation, de calculer les valeurs du potentiel hydraulique au sein de l'ouvrage et de ses
fondations, ainsi que d'évaluer les débits de fkite dus aux infiltrations.
On peut ainsi citer NAPLIB, programme de calcul d'hydraulique souterraine mis au point
conjointement par 1'Ecoledes Mines et le CEMAGREF (FRANCE).
Il utilise la méthode des éléments finis et peut être appliqué à tous les problèmes bidimensionnels
pour les sols hétérogènes ou anisotropes. Cette méthode consiste à discrétiser l'équation de
Laplace afin de se ramener à des équations linéaires où les inconnues sont les potentiels aux
noeuds d'un maillage en triangles qui correspond au découpage arbitraire du modèle en surfaces
élémentaires.
La résolution du problème consistera alors à rechercher un ensemble de valeurs du potentiel
obéissant en tout point à la loi de Laplace et respectant les conditions aux limites (potentiel obligé
de certains points : parement amont, existence d'une surface de suintement : parement aval, drain,
etc.).
5.2.3.3. La méthode simplifiée de la riarabole de KOZENY : cas d'un remblai
homogène drainé sur fondation imperméable
Cette méthode simplifiée est la plus utilisée dans le domaine des petits barrages. Elle donne en
effet des résultats approchés, mais généralement suffisants.
Après avoir déterminé la forme générale des lignes de courant et des équipotentielles et
avoir tracé les lignes remarquables (frontières imperméables, surfaces de pénétration de l'eau,
etc.), de simples règles "de bon sens hydraulique" permettent ensuite de dessiner les lignes
intermédiaires, pour peu que l'on prenne soin de respecter l'orthogonalité des lignes de courant et
des équipotentielles. Si l'on trace un réseau à mailles carrées, on peut aussi avoir une idée du débit
de hite (selon la propriété énoncée au 5.2.2.3.).
a). Equation de ia parabole de KOZENY
KOZENY a montré que, dans un barrage en terre non drainé, la liane de saturation peut être
assimilée dans sa partie médiane à une parabole d'axe horizontal dont le foyer est situé au pied du
parement aval du barrage.
Lorsque le barrage est muni d'un drain, celui-ci rabat la ligne phréatique à l'intérieur du remblai.
Dans ce cas la parabole de KOZENY a pour foyer l'extrémité amont du drain auquel se raccorde
la lisne de saturation.
Considéronstout d'abord un écoulement dans un massif semi-infini homogène vers un drain-tapis.
Dans ce cas ;comme dans quelques autres, on peut trouver une fonction f(z) = cp + iy (z = x + iy
= reie), appelée potentiel complexe de l'écoulement, qui vérifie les conditions aux limites. l'étude
du réseau consistera donc dans l'étude et le tracé des fonctionsu/ = constante et cp = constante.
231
Dans le cas du massif semi-infini drainé. on montre que le potentiel complexe ffz) = K dG
satisfait les conditions aux limites.
Fig 7.21 - lignes de courant dans un massif semi-infini drainé
Massif h Yde perméabiiite K
Zone irnpermécbie
p + i 'y = K 4~ (cos + i sin $1
Soit
6- i-cosedonc c/2 = 2 y. K2 r sin2 ; or sin --
& 2 2
donc y? = y. K2 r (1 - cos 9) = y. K2 (r - r cos 0)
3
c'est à dire c/2 = y, K2 (r - x) a r -- -y"
YoK2
+ x
or r =,/x2 + y' donc r2=x2+ y2 ; donc:
2
x2 + y2 = [<+x)
Y0 K
Soit
L
232
Or rappelons que le long d'une liane de courant L/= Constante.
Donc pour y = Constante, l'équation ci-dessus est celle d'une ligne de courant, qui est donc une
parabole.
Les lignes de courant sont donc des paraboles homofocales dont le foyer est le début
du drain. Les équipotentiellessont les paraboles orthogonales.
Vérifions que ce potentiel complexe satisfait la condition aux limites qui définit la ligne
phréatique.
p+i y = K ,/=donc (p+iw>2= 2y,K2z=2yoK2 (x+iy)
(p2 - v 2 + 2 i cpy1=2y0K2 x + 2 y. K2 iydonc
8 e(p2 =2 y, r K2 cos 2- et w2 =2y0 r K2 sin 2 -
2 2
(p2 - = 2 y, r KZ[cos2 i-sin2 !) = 2 Y , K ~ r cos û
2
(p2 - y2 = 2 y. K2x 2y, k2 x
2 i cp v = 2 y, K2 i ydonc
soit cp = y, K2 y = y, K (Ky)
Or cp = Ky est la définition du potentiel sur la ligne phréatique, laquelle est alors caractérisée par
y/ = y,K = constante.
De ce résultat, on déduit l'équation de la ligne phréatique (w = y&)
y''= 2Y02K2 x + hJK4r-4 y2 =2y, x + y, 2
YoK2 Yo2 K4
ly2-2y0x- yo2 = O
Considérons maintenant le fait que le massif n'est pas semi-infini à l'amont.
Les travaux de CASAGRANDE ont montré que la ligne phréatique théorique passe par un point
E situé à la surface de la retenue et éloigné de 0.3 b du parement amont, b étant la longueur de la
projection horizontale de la longueur mouillée du parement (cf fig. 7.22).
Les coordonnées de ce point E (d, H) vérifient donc l'équation de la parabole de KOZENY, ce qui
permet de définir le paramètre y, :
233
Fig. 7.22 - Tracé de la ligne phréatique
d Y
U
d Y
 X O
X
4
A' = d2 +H2
Y0' = - d - , , / m , t y i = - d + i d 2 + H2
: donc cette équation a deux solutions
Or y. étant une distance et - d - Jd2 + H2 < O, on retiendra
En outre, on doit tenir compte du fait que le parement amont est une équipotentielle (H =
constante). On raccorde donc la parabole de KOZENY au point M du plan d'eau amont par une
courbe normale au parement amont en M et tangente à la parabole.
b). Utilisation de cette méthode pour résoudre quelques problèmes simples
La ligne phréatique étant ainsi déterminée, on établit tout au long un certain nombre de points de
potentiel, c'est à dire de cotes régulièrement décroissantes. A partir de ces points, on trace des
éléments de courbe qui se raccordent orthogonalement à la ligne phréatique et à la ligne de
contact avec les fondations imperméables.Ces courbes constituent le réseau d'équipotentielles.On
obtient les lignes de courant en construisant le réseau de courbes orthogonales à ces
équipotentielles. (fig. 7.23).
234
Fige7.23 - Tracé des équipotentielles et des lignes de courant
A partir de ce tracé, on peut estimer sommairement le débit de fiite. En effet la ligne de saturation
est caractérisée par la constante y = yoK. De même, le fond imperméable est caractérisé par y =
eO (0 = O, donc IV= K J2'2y,r sin - = O).
2
Or on a vu qu'entre deux nappes de courant infiniment voisines, il s'écoulait un débit dq = A y (cf
5.2.2.2.)donc Q = jdq = C A ry
soit Q = yoK - O = yoK
En fait on montre que ce résultat est valable pour a > 30" ;pour a < 30°, on adoptera :
Lorsque l'on dispose du réseau de lignes, on peut facilement calculer la pression interstitielle
théorique en tout point.
Fige7.24 - Détermination de la pression interstitielle
235
Calculons par exemple la pression en Mo situé à la cote zo. En s'appuyant sur la forme des
courbes voisines, on trace l'équipotentielle qui passe par ce point et qui coupe la ligne
phréatique en Ml. On lit la cote z1 de ce point et l'on écrit la constancedu potentielle le long de la
donc z1=-+zoPO . La pression en vaut donc z1 - zo en mètre de colonne d'eau ou
Pg
po =pg (zl -zo) en pascal.
5.2.3.4. La méthode sirnDlifiée de la parabole de KOZENY :Cas d'un barrage à
zones sur fondation imperméable
Dans ce type d'ouvrage, le noyau étanche a une perméabilité beaucoup plus faible que les
recharges amont et aval. On montre que l'on peut également modéliser les lignes de courant dans
le noyau par des paraboles en considérant comme parfaitement perméable la recharge amont. La
figure suivante schématise cette situation.
Fig. 7.25 -Ligne de saturation dans un barrage à zones.
Ligne de sofurolion
7Parabole ihiorioue
La ligne de saturation dans le noyau de perméabilité Kz est construite à partir de la parabole de
base, suivant les règles précédentes, en considérant cependant le fait que la ligne débouche plus
bas que la ligne théorique, à la hauteur hs, déterminéeà l'aide de l'abaque suivant :
.
236
Fig. 7.26- - Détermination de hS
Dans la recharge aval de perméabilité K3,l'écoulement peut-être assimilé à un écoulement à
travers un massif rectangulaire de longueur L. Si ho est le niveau aval et h, la cote amont de la
ligne de saturationdans la recharge aval, le débit est donné par :
Ce débit doit être égal à celui qui traverse le noyau et qui peut s'écrire au moyen de la formule :
q = K,e.
En éliminant q entre les deux équations ci-dessus, on obtient : h, = 2 L e -+K2 hz
d K3
La connaissance de hl permet de tracer la ligne de saturation dans la recharge aval avec une
précision suffisanteen l'assimilant à une droite.
5.2.3.5. Le rwoblème de la vidange raDide
On peut considérer comme rapide une vidange qui s'effectue en un délai inférieur à un ou
plusieurs mois. La configuration du réseau de ligne est alors totalement différente des cas
précédents. le parement amont n'est plus une équipotentielle, mais son potentiel varie avec la cote
du point considéré. Ce cas, assez complexe, doit être étudié par calcul informatique ou analogie
électrique.
237
Fig. 7.27 - Equipotentieiies et lignes de courant dans le cas d'une vidange rapide.
On voit qu'àla vidange, les lignes de courant ressortent sur le parement amont dénoyé. Ceci milite
encore pour que soit disposé sous le perré amont une couche de pose filtrante afin d'éviter la fùite
des fines lors de la vidange, cette couche de pose servant déjà à lutter contre les effets du
batillage.
. .
5. bis -
L'étude
238
INFILTRATIONS DANS LE BARRAGE ET DANS LES FONDATIONS
des infiltrations permet de déterminer les éléments suivants :
- la ligne de saturation ou plus exactement la ligne phréatique du massif du barrage,
- le débit de fbite
- la pression de l'eau interstitielle dans le massif (sous-pressions).
Fig 7.28 - Trajectoire de l'eau à travers le barrage
.
239
5. bis.1 -Détermination des éauipotentielleset des lignes de courant
5 bis 1.1 - Tracé de la lime phréatique
5 bis. 1.1.1 - Cas d'un massif homoPéne non drainé
Fig 7.29 - Détermination de la ligne phréatique
Définitions
h = charge d'eau = tirant d'eau
d = largeur en base du barrage diminuée de 0.7b [et de la largeur du filtre s'il y a lieu]
b = projection horizontale de la partie mouillée du parement amont.
K, = coefficient de perméabilité du remblai de la digue (remblai compacté)
E = hauteur de l'endiguement
a = angle du talus aval.
En partant du cas théorique simple d'un écoulement plan a travers un massif Dermeable reposant
sur une fondation plane imperméable à l'amont jusqu'au point O et de même perméabilité que Ie
massif vers l'aval à partir du point O, KOZENY a montré que, dans un barrage en terre homogène
non drainé, la ligne phréatique peut être assimilée dans sa partie médiane à une parabole d'axe
horizontal dont le foyer O est situé au pied du parement aval du barrage.
Etant donné que la parabole admet le point O comme foyer, son équation serait :
. # *
240
D'autre part, la parabole coupe le plan d'eau amont en un point A situé à une distance telle que
BA = 0.3 b. b est la projection horizontale de la partie mouillée du parement amont. Pour
satisfaire cette condition on doit avoir (cf figure et équation de la parabole) :
h' = yod +
soit: y, = Jd2 + h2 - d
En effet
en A on
y = h et x = d
Aussi, en transformant l'équation :
11' + d2 = d2 + 2y0d + y: = (d + y,>'
Pour obtenir la ligne phréatique à partir de la parabole de KOZENY, on raccorde celle-ci au point
B du plan d'eau amont par une courbe normale au parement amont en B et tangente à la parabole.
En aval on fait aboutir la ligne phréatique en un point D sensiblement situé au 2/3 de OC,
théoriquement tel que :
DC 3 a-
- cos -- -
oc 8 2
CASAGRANDE a démontré que DC (Al) dépend de la distance focale de la parabole de base et
de l'angle a du talus aval. Il a dressé la table de :
en fonction de a
- ai-
ao l + A l
On peut déterminer ainsi le point D
si a
si 30" < a < 180°, 1 = y,
30", 1 = 4- - ,/d2 - h2cotg2 a
1 - a.
1 - COS^
5 bis.l.l.2 - Cas d'un massif homogène drainé (avec drain aval)
En général les barrages en terre sont munis d'un drain avai qui rabat la ligne phréatique à
l'intérieur du barrage. Dans ce cas la parabole de KOZENY a pour foyer l'extrémité amont du
drain auquel se raccorde la ligne phréatique. Le raccordement amont se fait comme
précédemment.
241
Fig 7.30 -Tracé de la ligne de saturation dans le cas d’un barrage drainé
Cas d’un drain horizontal
242
5 bis 1.1.3 - Cas d'un massif anisotroi>e
Ce qui vient d'être exposé ci-dessus n'est valable que si le coefficient de perméabilité est identique
dans les directions horizontale et verticale. Dans le cas des barrages en terre ceci n'est
généralement pas vérifié compte tenu des procédés de constmction.
Dans un massif anisotrope de perméabilité verticale Kv et de perméabilité horizontal K,,
SAMSIOE a démontré qu'il suffisait d'appliquer la méthode précédente (cas du massif homogène)
à un barrage dont les dimensions horizontales sont réduites dans le rapport
Les ordonnées de la ligne phréatique ainsi obtenues sont reportées sur la section réelle du barrage
aux points d'abscisses correspondantes.
5 bis 1.1.4 - Cas d'une digue à zones (a noyau imperméable)
Dans le cas d'un barrage à zones, les zones perméables n'ont généralement aucune influence sur la
ligne phréatique de la zone imperméable en raison des très grandes différences de perméabilité (1
à 100 au minimum). On construit la ligne phréatique comme précédemment en considérant la zone
imperméable seule.
Fig 7.31 - Tracé de la ligne de saturation dans le cas d'un barrage à noyau
243
5 bis 1.1.5 - Remaraue : Barrage sur fondation perméable
Si le barrage repose sur une fondation perméable, la méthode ci-dessus reste valable ; la ligne
phréatique est inchangée, seules les autres lignes de courant sont modifiées.
5 bis 1.2 - Tracé des éauiootentielles et des lignes de courant
5 bis 1.2.1 - Cas d'une retenue pleine
Après la détermination de la ligne phréatique on peut tracer les équipotentiellesgraphiquement.
Le parement amont est une équipotentielle.
La ligne phréatique ainsi que le contact avec la fondation imperméable sont des lignes de courant.
La pression hydrostatique étant nulle le long de la ligne phréatique, le potentiel en un point de
cette ligne est dû uniquement à la côte de ce point. On constmit un certain nombre de points de
potentiel, c'est-à-dire le long de la ligne phréatique.
Fig 7.32 - Tracé des équipotentiellesdes lignes de courant
A partir de ces points on trace les éléments de courbes se raccordant orthogonalement à ligne
phréatique en ces points et à la ligne de contact avec les fondations imperméables. Ces courbes
constituent le réseau d'équipotentielles. Les lignes de courant sont obtenues en construisant le
réseau de courbes orthogonales à ces équipotentielles.
5 bis 1.2.2 - Cas d'une vidange rapide
,
Toute vidange pratiqué en des délais inférieurs à un ou plusieurs mois est qualifiée de rapide. En
cas de vidange rapide, le volume de digue imbibé d'eau reste pratiquement dans cet état, le niveau
d'eau amont étant partieliement descendu ou ramené au pied du parement amont. Le parement
amont n'est plus une équipotentielle et le réseau dans le massif est totalement différent du cas
d'une retenue pleine.
244
Dans le cas de la vidange rapide, le potentiel du parement amont varie avec la côte du point
considéré. La répartition des équipotentielles peut être obtenue par analogie électrique ou par
calcul sur ordinateur, mais l'on peut aussi en avoir une approximation par dessin à la main.
Fig 7.33 - Equipotentielles et lignes de courant dans le cas d'une vidange rapide
A la vidange rapide, les lignes de courant ressortent sur le parement amont dénoyé. Il y a donc un
risque d'entraînement de fines, et pour cela, on place un filtre entre l'enrochement de protection et
le massif
5 bis 1.3 - Calcul du débit de fuites
5 bis 1.3.1 - CaIcul des débits de fuites iitravers le barrape q
On applique la loi de DARCY :
q = K , . i . A
Or, dans le cas de l'écoulement parabolique
= O a Al = 0 ~ - 4D = C la section Aestmesurée
1hl
l + A l
a = 180° a, =
par l'ordonnée y de la ligne phréatique et le gradient hydraulique i par sa pente -dY
dx
dont 1'intégration
Bi
245
En se référant à l'équation de la parabole vue précédemment : y2 - 2 x y. - y: = O,on peut
poser :
q(m'/ml.s) Kr (m/s) h(m)
d(m)
Pour 30" < a < 180°, la relation ci-dessus donne toujours une approximation suffisante.
Pour a < 30°, on applique la relation :
Iq = Kr . y, . sin2a avec
IV, = 4- - ,/d2 - h2cotg2a 1
Pour un massif anisotrope de perméabilités verticaleK, et horizontaleKH, on prendra
K = JKV. K, pour les calculs.
5 bis 1.3.2 - Calcui du débit de fuites à travers la fondation
On peut estimer grossièrement le débit par mètre linéaire passant sous le barrage à l'aide de la
formule tirée de la loi de DARCY.
Pour une fondation relativement perméable, comme représentée ci-après, on admet que la
longueur moyenne (L) de la ligne de courant est celle de la ligne de contact du massif
imperméable avec la fondation plus perméable.
Fig 7.34 - Débit de fuite a travers une couche de fondations perméables
Fondation perméable
Substratum imperméable,
.
246
F/T
C
D'après la figure :
0.1 0.2 0.3 0.4 O.5 O.6 0.7 o.8 0.9
1O0 80 67 58 50 43 37 31 25
L = B + 2 F
S . K,
H
L
S = longueur mouillée de la couche de fondation
S = (T - F)
K, = valeur moyenne du coefficient de perméabilité horizontale de la fondation ( d s )
q (m3/ml.s)
H(m) = charge d'eau
T(m) = profondeur de la couche perméable
B(m) = épaisseur de base de la zone imperméable y compris le tapis amont
F(m) = profondeur de parafouille.
Si B est négligeable devant F, on peut utiliser la formule de SCHOKLITSCH :
q = C . K H . H
C = f(;)
Autre Formule de calcul du Débit de fuite dans les fondations.
La formule analytique ci-après donne une estimation plus précise :
247
5 bis 1.4 - Calcul de la nression interstitielle
A l'aide du réseau d'équipotentielles, on peut déduire la pression interstitielle en tout point. Soit la
figure ci-après.
Fig 7.35 - Détermination de la pression interstitielle
Massif du barrage
Liçne 7hréaiique
Pour calculer la pression interstitielle en Mo, on part de Mo et on trace au jugé une courbe
équipotentielle s'intégrant dans le réseau. Cette courbe coupe la ligne phréatique en un point M,
de potentiel égal à la cote 2, de ce point.
L'égalité de potentiel en Moet Ml s'écrit :
2, + Po = 2,
d'où Po = 2, - 2, = pression interstitielleen M
exprimée en mètre d 'eau
A la vidange rapide, même si l'on ne dispose pas du réseau d'équipotentielles, on a une bonne
approximation de la pression interstitielle en Mo,en prenant comme valeur :
Pi = 2, - 2, où 2, = cote du point M,, point de contact de la ligne phréatique ou du parement
amont avec la verticale issue de Mo.
Cette méthode donne des valeurs de la pression par excès, (ce qui va dans le sens de la sécurité).
248
6 - PROTECTION CONTRELE RENARD
Lutter contre la formation des renards consiste :
- soit à supprimer les infiltrations si on le peut en formant des coupures imperméables par un
écran étanche.
- soit à réduire la force volumique visqueuse, c'est-à-dire à réduire la valeur du gradient
hydraulique, donc à allonger les lignes d'écoulement.
- soit à empêcher l'amorçage du phénomène, c'est-à-dire disposer dans la zone de résurgence des
filtres chargés d'empêcher l'entraînement des particules solides.
6.1 - Ecrans étanches
Il existe différentes techniques utilisables pour réaliser ces écrans (murs en béton, noyaux d'argile,
murs de palplanches, parois moulées, voiles d'injection).
6.2 -Allowement des lipnes d'écoulement
Afin de réduire les forces volumiques visqueuses on cherche à rallonger le parcours moyen des
lignes d'écoulement.
BLIGHT puis LANE ont proposé des règles expérimentales définissant un gradient moyen
maximum qui est supposé tel qu'en aucun point dans le sol les conditions d'entraînement du sol ne
soient requises. D'autre part ce gradient est défini sur la ligne de courant qui suit le contact
ouvrage-sol de fondation ;en effet, ce contact est un lieu d'écoulement privilégié où les renards
risquent davantage de se former.
Il est possible d'obtenir un allongement de cette ligne de courant particulière en réalisant un ou
plusieurs parafouilles imperméables.
BLIGHT proposait la condition :
2
1
= c
LANE a modifié cette condition en affectant un coefficient minorateur égal à 1/3 aux distances
horizontales pour tenir compte des décollements possibles par suite de tassements sous la
fondation.
1/3 L, + C 1,
-1
Le coefficient C dépend de la nature
des terrains.
239
COEFFICIENTDE LANE
NATURE DU TERRAIN
Sablesfins et limons
Sables fins
Sables moyens
Gros sables
Petits graviers
Gros graviers
Mélange de graviers et de gros galets
Argile plastique
No C
875
7
6
5
4
5
2,s
3
1
-
2
3
4
5
6
7
8
9
10
Remarque
L'application de la règle de LANE pour le dimensionnement de la fondation de la digue doit se
faire avec discernement et prudence en se référant suriout au profil géotechnique du terrain de
fondation. En effet, cette règle empirique a été conçue pour des ouvrages rigides fondés sur
terrains meubles, les tassements différentiels pouvant alors être à l'origine des cheminements
préférentiels au contact sol-béton. Un tel risque est bien moindre pour un massif de remblai au
contact de sa fondation meuble. A contrario, la règle de LANE supposant des sols de fondation
homogènes, elle ne permet pas de rendre compte des hétérogénéités parfois très localisées qui
vont bien sûr constituer les lieux d'écoulement privilégiés (lentilles sableuses, argiles à canaux,
cuirasses latéritiques).Enfin, la règle de Lane s'applique à la prévention du phénomène de renard
et non à la mise en oeuvre de l'échantéité de la fondation (même si les deux choses sont liées, un
défaut d'étanchéité pouvant sous certaines conditionsentraînerun renard).
Il faut donc accorder plus d'importance à la reconnaissance visuelle des sols de fondation de la
digue.
6.3 - Utilisation des filtres
L'apparition du renard est due à l'existence de contraintes effectives trop faibles dans les zones de
résurgence. Un moyen de lutte contre le renard consiste alors à charger ces zones avec des
matériaux plus perméables les contraintes effectives sont ainsi augmentées ;les pertes de charges
dans le matériau filtrant étant négligeables le risque de renard dans le filtre n'existe donc pas (au
contraire une charge constituée par un matériau imperméable serait dangereuse : toute la perte de
charge s'y concentrerait et le renard ne s'y formerait que mieux).
.
250
Pour la protection des massifs de barrage, on a souvent recourt à deux types de filtre :
- la filtre (ou drain) de pied horizontal ou drain tapis
- le filtre (ou drain) cheminée (ou drain vertical)
Fig 7.36 - Utilisation des filtres
Cas d'un drain horizontal
.--- . _._ Cas d'un drain vertical
25 1
6.3.1 -Drain taois
Pour intercepter les infiltrations dans le massif d'un barrage en terre on dispose habituellement
dans la partie aval du massif et au contact de celui-ci avec les fondations, un drain-tapis filtrant
destiné à rabattre la ligne phréatique à l'intérieur du massif Ce drain s'étend sur b à - de
l'emprise du barrage. Son épaisseur se calcule en fonction du débit de fùite.
1 1,
4 3
Fig 7.37 -Drain de tapis filtrant
Lorsqi
a) Cas d'une fondation b) Cas d'une fondation
l.sabk fin relativement pcrmeaole
2Sable grussier
impctméa b le
ie la fondation n'est pas complètement imperméable, ce drain interceptera
2
2
1
3
1
également les
infiltrations a travers la fondation. Il doit être alors protégé contre l'entraînement des éléments fins
de la fondation par un filtre inversé.
Le drain tapis filtrant est efficace dans la mesure où la perméabilité du massif est isotrope. Très
souvent, du fait de la technique d'exécution des barrages en terre qui consiste à compacter la terre
par couches horizontales, il existe une anisotropie assez forte du barrage, la perméabilité verticale
étant inférieure à la perméabilité horizontale. De ce fait le drain-tapis est souvent inefficace et on
observe des affleurements de nappes sur les talus aval de nombreux barrages munis de drain-tapis.
- Débit Unitaire et éDaisseur du drain taDis
Fig 7.38 - Débit unitaire a travers un filtre horizontal
. -*-.. . . . . . . . ..!
Si q est le débit d'infiltration à travers un mètre de largeur du barrage qu'il faut évacuer à travers
le filtre de perméabilitéKf est, on peut écrire :
.
252
q = Kf i A où A = valeur moyenne de la section mouillée
(moyenne)
e + h
et A = -
2
e2 - h2
4 = Kf 3 1
1 A
On peut négliger h2 h étant petit
II est prudent de prendre un débit q égal au double du débit de fùite escompté. Ainsi, l'épaisseur e
du filtre à prévoir sera :
La valeur de 1 n'est pas égale à la longueur totale du tapis filtrant, il faut retrancher la Iongueur de
résurgence qui est égale à :
avec
K, (m/ s) = perméabilité du remblai du barrage
a enm
q en m3/s.d
La longueur totale (If) du tapis filtrant sera :
I f = l + a
253
6.3.2 -Drain vertical
Le drain vertical placé au centre de la digue constitue une solution plus efficace pour intercepter
les eaux d'infiltration. Un tel drain est constitué d'un rideau d'une largeur (épaisseur) minimale de
1 m en matériau grossier (graviers et sables) dont la granularité est choisie de manière à ce que les
conditions de filtre soient réalisées. Ce rideau peut être mis en oeuvre par déversement du
matériau convenable dans une tranchée d'une profondeur de 1,50 à 2x11, recreusée dans le massif
compacté, au fur et à mesure de l'avancement du terrassement du barrage. II peut remonter
pratiquementjusqu'à la cote moyenne du plan d'eau dans la retenue.
Fig 7.39 -Drain vertical
Drain vertical
drainées
L'eau de percolation interceptée par ce drain filtrant est évacuée soit par un réseau de tuyaux-
drains soit par un drain-tapisfiltrant, s'il est également nécessaire de drainer les fondations.
Le drain vertical peut être constitué uniquement de gravier, le rôle de filtre étant alors assuré par
un tapis synthétiquenon tissé placé en fond de tranchée, le long de la paroi amont du drain et au-
dessus du drain. Dans ce cas l'épaisseurdu drain pourra être diminuée.
6.3.3 - Loi des filtres ou règles de non contamination
Un filtre ne doit ni se dégrader par entraînement de ses éléments, ni se colmater. Il est conseillé
pour cela d'utiliser des sables dont le coefficient d'uniformité 160 est supérieur à Z1.Ceci étant, si
on schématise par F, et sxles dimensions des grains du filtre et du matériau de base2 qui sur la
courbe granulométnque correspondent au point d'ordonnée x %, les conditions a respecter sont,
d'aprèsTERZAGHI.
F*o
Les indices indiquent le pourcentage des grains de diamètre inférieur a la valeur de l'indice (en mm).
Dans le cas d'un filtre constitué de plusieurs couches, pour chaque couche le matériau de base est la
couche précédente du tapis filtrant, dans le sensde la circulation de l'eau.
.
(1)
(2)
(3)
Granulométrieétroite :
Fi5
Granulométrie étendue : - < 4 0 u 5
s*,
Fi5
- > 4 0 u 5
SI5
5 < --0 < 10
s,,
La figure schématiseces conditions
Fig 7.40 - Granulométrie d'un filtre
f i l t r e
La courbe granulométrique du matériau constituant chaque couche du filtre doit être à peu près
parallèle à celle du matériau de la couche précédente.
L'épaisseur de chaque couche doit être au moins de 20 à 30 cm et en tout cas supérieure ou égale
à 50 fois le diamètre F15.
Il existe des tapis de fibres synthétiques (non tissées) qui permettent de réaliser des fiItres faciles à
mettre en place.
Quand on est en présence de matériaux qui ne satisfont pas aux règles ci-dessus mentionnées il est
conseillé de vérifier la stabilité du filtre et l'absence de colmatage par une essai sur modèle.
255
Quand une couche filtrante sert de drain,
débit à drainer. Si elle contient des drains
doivent être de diamètre inférieur à 0.5 fois
elle doit permettre l'évacuation
poreux ou percés de trous, les
de diamètreFg5.
d'un débit double du
orifices de ces drains
La valeur de la perméabilité d'un filtre est donnée avec une assez bonne approximation (50 %) par
la formule de Hazen pour les matériaux sableux.
K = 100 où FIoest en cm et K en c d s .
6.3.4 - Puits filtrants
Des puits filtrants de décompression peuvent être nécessaires pour assurer le drainage des
fondations et éliminer les sous-pressions dans la zone du talus aval du barrage, lorsque les
fondations sont relativement perméables mais hétérogènes. Ce cas est fréquent, les dépôts
alluvionnaires étant souvent formés de lentilles ou de couches alternées d'argile, de limons, de
sables, de graviers.
Les puits remblayés en matériau filtrant analogue à ceux d'un drain vertical débouchent dans un
drain-tapissous le talus du barrage et à l'aval de celui-ci.
Fig 7.41 - Puits filtrants
i
256
La profondeur des puits devra être sufisante pour drainer les couches perméables situées à une
profondeur inférieure à environ 50 % de la hauteur du barrage et susceptibles d'être alimentées
par la retenue, leur densité est fonction de l'hétérogénéitédu terrain.
Lorsqu'il s'agit de drainer une couche de terrain perméable d'épaisseur limitée séparée du barrage
par une couche imperméable, les puits devront traverser la couche imperméable et pénétrer la
couche perméable sous-jacente sur au moins - de l'épaisseur de la couche imperméable.
1
4
Les puits drainants peuvent être équipés de piézomètres en vue de la surveillance du barrage.
Le calcul approché d'un réseau de puits filtrants peut se faire à l'aide d'abaque, de modèle
électriqueou de modèle numérique sur ordinateur.
Un puits filtrant ne doit pas avoir un diamètre inférieur à 15 cm.
L'espacement entre les puits est un facteur dont I'importance est moindre que leur enfoncement
dans la couche perméable. Cela veut dire qu'il vaut mieux peu de puits filtrants mais profonds que
beaucoup de puits peu profonds.
L'étude théorique de la réduction de pression provoquée par un système de puits filtrants a été
réalisée par Muskat et traduite sous forme d'abaques par Jervis.
257
7 - STABJLITEDES DIGUES
7.1 - Définition du coefficient de sécurité
La définitiondu coefficient de sécurité des talus à l'égard de la rupture demeure une des questions
les plus controversées de la mécanique des sols. Plusieurs approches ont été proposées sans pour
autant qu'il ne soit possible de trouver une synthèse pleinement satisfaisante. Le débat reste donc
ouvert !
Soit la figure donnée ci-dessous :
Fig 7.42- Principe du calcul de la stabilité d'un talus
%se mant
4p5s:be,
Pour étudier la stabilité du système, on cherche les conditions d'équilibre de la masse ABCMA.
L'arc AMC est une ligne de glissement possible.
Par souci de simplification, on retient comme forces sollicitant la masse ABCMA :
- le poids W qui exerce un moment moteur tendant à faire pivoter la masse ABCMA le long de
l'arc de cercle AMC dans le sens de A vers C ;
- Les contraintes de cisaillement le long de la ligne de glissement qui exercent un moment résistant
pour équilibrer le moment moteur.
Onécrit : WI= r J A d s
Puisque le talus est en équilibre stable, la distribution des contraintes de cisaillement z dans
l'équation ci-dessus n'est pas une distribution de contraintes critiques. On dispose donc d'une
certaine marge de sécurité que l'on apprécie à l'aide d'un coefficient de sécurité F.
A l'arc de cercle AMC, correspond une valeur numérique précise du coefficient de sécurité F. On
peut rechercher la ligne de glissement pour laquelle on obtient la valeur la plus faible de F.
258
7.1.1 - Efforts mobilisables et efforts appliqués
On compare les efforts de cisaillement réellement appliqués t et les efforts de cisaillement
((mobilisables))z
'
t f = c + a tg4
' -- contraintes normales réellement appliquées
(3
t f = intensité maximale de la composante de cisaillement compatible
Le coefficient de sécurité se définit par le
moment des efforts mobilisables
rapport :
t
avec G
A -
moment des efforts appliqués
A
A
rlc z ds
rJc z ds
fF =
rJfi(c+c&g+)ds
F =
W
Cette définition de F renferme une contradiction car si la ligne de glissement potentielle reste à
l'état d'équilibre élastique, on ne peut définir de façon précise les efforts de cisaillement
mobilisable (tf),c'est à dire disponible au moment de la rupture puisque précisément on suppose
que la rupture ne peut se produire.
Si l'équilibre limite est réalisé sur la ligne de glissement on a
t = t f e t F = 1
7.1.2 - Caractéristiques réelIes et caractéristiques réduites
Une autre manière d'évaluer la marge de sécurité consiste à remplacer les caractéristiques réelles
C et 4 du matériau par des caractéristiques Ct'et 4'' pour lesquelles le talus sera sur le point de se
rompre.
On définit deux coefficients de sécurité, l'un par rapport à la cohésion et l'autre par rapport au
frottement interne.
Pour des raisons de commodité, on définit un coefficient unique :
259
L'équilibre du massif se traduit par :
rIA' (c + d t g @ ds = WI
C F
r jcA(c + a'tg4) ds
F =
w1
Cette formule n'est identique qu'en apparence à la formule équivalente correspondant à la
première définition. En effet, dans le premier cas les contraintes normales O' sont dits
réellement appliquées dans un d'équilibre élastique, tandis que dans le deuxième cas, il s'agit
d'une distribution d'efforts virtuels dans un état d'équilibre plastique.
7.2 - Calcul de la stabilité d'un barrape en terre par la méthode des tranches
La stabilité d'un barrage en terre est ceile de la stabilité de son talus amont et de son talus aval sur
sa fondation. Au niveau actuel des connaissances il n'existe pas de méthodes permettant de
calculer la stabilité sans faire des hypothèses.
On se donne une surface de rupture au contact de laquelle il peut avoir glissement. Pour cela, on
prend en général une surface cylindrique circulaire à axe horizontal, qui apparaît comme un cercle
de glissement dans une coupe verticale de la digue. Il s'avère que cette hypothèse est bien traduite
en pratique.
En plus de cette hypothèse, on découpe le terrain en tranches verticales de faible épaisseur
juxtaposées et on étudie l'équilibre de l'ensemble.
Fig 7.43 - Calcul de stabilité :méthode des tranches
Ligne phréotique
Tronche d'ordre n
Talus amont
260
7.2.1 -Définition
di = portion de cercle de glissement interceptée par a tranche d'ordre n
1 = longueur de l'arc de cercle situé dans la partie saturée, c'est à dire sous la ligne phréatique
(on admet que la partie non saturée est fissurée et a une cohésion nulle c = O)
Nn = la composante normale et T, = composantetangentielle du poids P, de la tranche ramené au
niveau du cercle de glissement
Xn et 2, = composante de l'action de la tranche d'ordre n - 1 sur la tranche d'ordre n
Pour tenir compte de l'action du séisme, on réduit la pesanteur de O à 20 % et on y ajoute une
composante horizontal comprise entre O et 0,2 g.
Xn + 1 et 2, + = composantes de l'action de la tranche d'ordre n + 1 sur la tranche n
a = angle entre l'élément dl et l'horizontale.
On sait que le barrage et sa fondation quand elle est alluvionnaire sont formés de terres dont la
résistance au cisaillement T est fonction de la contrainte normale N, de la pression interstitielle u
et des deux caractéristiques cohésion C est angle de frottement interne 4 dans le domaine inter-
granulaire selon la relation :
T = C + (N- U) tg$ (résistance au cisaillement).
Selon la nature des hypothèses considérées sur les interactions entre tranches et sur la pression
interstitielle, il existe plusieurs méthodes.
Nous parlerons de la méthode de Fellenius perfectionnée par Bishop
7.2.2 - Méthodes de FelIenius et de Bishop
Dans les deux cas on admet que la rupture suit une surface de glissement de forme cylindrique
circulaire et qu'elle se produit instantanément et simultanément le long de toute la surface. On
considère d'autre part qu'il n'y a aucune interaction dans la 3èmedimension du barrage transversale
à la vallée. Pour que cette approximation soit valable, la longueur de barrage dans cette 3he
dimension doit être 2 à 3 fois la longueur de l'arc de rupture. Cette hypothèse étant faite, on trace
sur une coupe transversale du barrage plusieurs cercles de glissement et on recherche Ie cercle le
plus critique, c'est à dire celui qui représente le coefficient de sécurité le plus faible.
261
7.2.2.1 - Méthode de Felleniiis
Hvpothèse :
1) xn+i- xn= O
1) zn+l- 2, = O
(au niveau de chaque tranche)
Cela veut dire qu'il n'y a pas d'interaction.
2) La force tangentielle T est motrice car elle a tendance à entraîner le glissement.
T, = composantetangentielle du poids du (sol + l'eau) contenus dans la tranche n
La densité utilisée pour calculer T,, est la densité saturée pour la portion située sous la ligne
phréatique et la densité humide pour la partie située au-dessus.
3) La force N est stabilisatrice car elle mobilise le frottement interne. Elle crée une force résistante
Ntg$ opposé à T. Mais en milieu saturé, seules les forces intra-gramilaires sont susceptibles de
mobiliser le fiottement. N est donc la composante normale du poids immergé, c'est à dire le
poids calculé à partir de la densité saturée diminuée de 1. On l'appelle généralement N'.
Soit R = rayon du cercle de glissement.
moment des forces résistantes = E (moments des forces de frottement et de celles de cohésion)
C (N'tg$) R + C (c. dl) R = (XN't& f ci) R
moment des forces motrices : C T.R = R C T
On calcule le coefficient de sécurité F :
CN'. tg4 + c.1
F =
C T
7.2.2.2 -Variante
Une variante de la méthode Fellinius consiste a omettre l'hypothèse simplificatrice no 3 et à tenir
compte de la pression interstitielle. On prend alors pour N la composante normale du poids total
calculé à partir de la densité saturée. N engendre sur dl une pression totale moyenne - de
laquelle il faut déduire la pression interstitielle u régnant dans cette zone. La force de frottement
mobilisée le long de dl est alors :
N
dl
.
(z- U) tg&dl = (N - udl) tg@
262
Moment des forces résistantes :
C(N - udl) tg$ R + C(c.dl)R = R [C(N - udl) t& + CI]
Moment des forces motrices : CTR = U T
Le coefficient de sécurité :
C(N- udl)tg4 + clF =A
CT
7.2.2.3 - Méthode de Bishon
Elle est plus générale car si l'on conserve zn+, - zn= 0 . On admet que Xn+,# X,
D'autre part on tient compte systématiquement de la pression interstitielle, comme dans la 2ème
variante de la méthode de Fellenius.
Le coefficient de sécurité a la même définition que ci-dessus, mais son expression est plus
complexe :
cdl + tg$ (N - üdl)
mx = coefficient différent pour chaque tranche et lui- même fonction de F
(a= angle entre l'élément dl et l'horizontale)
Le calcul s'opère par itérations successives. On évalue par la méthode le Fellenius une première
valeur de F qui est introduite dans le calcul, ce qui donne une deuxième évaluation plus fine etc.
La méthode de Bishop est plus précise que celle de Fellenius mais elle nécessite 3 à 4 fois plus de
calculs (obligation d'opérer 3 à 4 itérations). Les coefficients de sécurité obtenus sont en général
un peu plus élevés.
Le plus souvent, pour alléger les calculs, on détermine d'abord le cercle le plus critique par la
méthode de Fellenius et on vérifie que la valeur du coefficient de sécurité calculé par la méthode
de Bishop est supérieure à celle calculée par la méthode Fellenius. Si ce n'est pas le cas, il faut
reprendre la recherche du cercle critique selon la méthode de Bishop.
263
Fig 7.44 - Stabilité du talus amont calculée sur ordinateur
. .
SOC;REAiIIly."t.P" G l u i l .
a----1-IAUTEUR DIGUE 5.00m < 1.1 ,< 6,OUm.TA
10 SURFACES ESSAYEES LES PLUS CRllIOUES
COEF. OE SECURITE FlNlMUM = 1.03
US A 3 ?T2/1 .VIDANGE RAPIDE.
WI'E P.VOL P.VOL COll~SiONANGLE DE PR SSION FACTEUR LIGNE
SOC IlUMlOE SAlURET INTERNE FROTIEM. INfERÇII. PRESSION PIEZO.
NO. (KN/M3) (KN/MS) (KPA) (DEC) PARAMETRE (KPA) NO.
21.0 10 JO 0.00 0.0
21.0 10 JO 0.00 0.0
1 20.0
2 20.0
1
1
3 20.0 21.0 O JO 0.00 0.0 1
DISIANCE
t-+-4-+-
5 10 15 20 25 30 35 40 45 50 55
Programme SIAOL V J.12 - SOCRW! 12/02/9{
264
Hauteur du Barrage
(en m>
Inférieure à 5 m
5 à 1 0 m
1 0 à 2 0 m
7.3 -Ouelaues valeurs forfaitaires de dimensionnement des pentes
de talus de digues de barrages
Type du Barrage
- Homogène
- A zones
- Homogène, granularité étendue
- Homogène, à fort pourcentage
d'argile
- A zones
- Homogène, granularité étendue
- Homogène, à fort pourcentage
d'argile
- A zones
A titre indicatif, le tableau ci-après donne quelques valeurs de dimensionnement qui devront être
confirmées par une étude de stabilité.
Pentes des talus
ÏAmont
2/25
1/ 2
112
113.5
1/2
U2.5
113
1/ 2
1/2 I
V2.5
U2.5
1
112.5
U2.5
l1/3
.
,.--. . . .
BIBLIOGRAPHIE
1. AUVRAY C. et RODER J. "Estimation des débits de crues décennales pour
les bassins versants de superficie inférieure à
200 km2 en Mique Occidentale",
ORSTOM, 30 p., 1965
2. BECOM
3. CARLIERM.
4. CEMAGREF
5. CORIPAORE M.L
"HydrauliqueRoutière" ibfinistère fiançais de la
coopération et du développement,342 p., 1981
"HydrauliqueGénérale et Appliquée,
Ed. Eyrolles, Pans, 565 p. , 1986
"Introduction de techniques innovantes en
matière de Barrages en terre en zone
sahélienne",
CEMAGREF, 56 p., 1989
"Etude comparative, technique et économique
d'un déversoir central de barrage et d'un
déversoir en béton armé type tête de mouton",
Mémoire, 80 p. 1984
6. C0STET.J et SANGLERAT G. "Cours pratique de mécanique des sols"
-Tomes 1 et 2,
Edition Dunod, Paris 1983
7. CHUZEVlLLE B.
8. D'AT DE ST FOULC J.,
GILARD O.,
PIATON H.
9. GROUPE D'AUTEURS
"Hydrologie tropicale et appliquée en Afhque
subsaharienne" ;Ministère de la coopération et
du développement (FRrtlTCE), 275 p., 1990
"Petitsbarrages en terre au Burkina Faso : bilan
et analyse critique", CIEH, UNESCO, EIER,
180p. 1986
"Techniques des barrages en aménagement
rural" - Ministère de l'Agriculture (FRANCE),
325 p . , 1977
II_______-- ___
*
10. GRESILLON J.M.
11. GRESILLON J.M,
LAEMYE J.P.,
HERTER P.,
METRO T.
12. KREMENETSKI N.,
SCHTERENLIHT D.
ALYCHEV V.
YAKOVLEVA L.
13. POCHAT R.
14. POST G., LONDE P.
15. SCHNEEBELI G.
"Petits barrages en terre en Afrique
Occidentale" - Polycopié de cours EIER,
155p., 1976
"Quelques aspects de l'hydraulique des
barrages" - EIER - CIEH, 74 p., 1978
"Hydraulique",Ed. MIR Moscou, 3 19 p, 1980
"Evacuateurs de crues", CTGREF - Bulletin
Technique du Génie Rural N0125,43 p, 1980
"Les barrages en terre compactée - Pratiques
américaines", Ed. Gauthier - Villars, 175 p.,
1953
"Hydraulique souterraine", Ed. Eyroiles, Park,
362p., 1978
16. U.S. BUREAU OF RECLAMATION "Design of small dams'', Washington, 816 p.
1977
17. VARLET H.
18. VEN TE CHOW
19. VEN TE CHOW
"Barrages Réservoirs" Tome 1, Ed. Eyrolles,
Paris, 335 p., 1966
"Handbook of applied hydrology",
Mc Graw-HillBook COMPANY,1964
"Open Channel hydraulics",
Ed. Mc Graw-Hill, 680 p., 1986
.

cours de barrage 2ème edition M.L COMPAORE

  • 79.
    68 Figure 4.3 :CourbeHymoniétrique (Altitude moyenne 460 M) 1500- 1400- 1300- 1200, I I 0 0 - iooo. 900. aoo. 700 soa s a 400- 300- 200- IOo. O - ISim Point culminant C o t a d u rdro da I’echrllr : 290,083 l O/, d e Io s u r f a c e du b a s s i n I I I 1 1 3 IO 20 30 40 50 00 70 80 90 IQO - Le Niger A Kouiikoro I
  • 100.
    89 Figure 4.19: Tempsde base en zone troDicnle sèche I 1- I I I I " 1 I1 ! l j I I --, --.
  • 101.
    -. .. 90 Figure 4.20:Temps de montée pour S< 10 km2 en zone sahélienne l I 1 . 4 3 5 SuperScie en km2
  • 102.
    91 Figure 4.21 :Tempsde montée pour S > IO km2 en zone sahélienne
  • 103.
    92 En zone tropicalesèche, le rapport Qret1O/Qxr 1O semble lié davantage à la surface du bassin dont dépendent les possibilités de stockage superficiel (dans les lits des cours d'eau par exemple) ou interne (horizons pédologiques, voire géologiques) qui favorisent l'écoulement retardé : - pour les petits bassins imperméables (jusqu'àquelques dizaines de km2) : QmaxlO = 1,03.Qxr10; - pour les petits bassins perméables : Qmax10 = 1,05.Qxr10; - pour les grands bassins imperméables (plusieurs centaines de km2) avec un réseau hydrographique bien marqué : Qmax10 = (1,lO à 1,15).Qxr10; - pour les grands perméables avec des lits suffisamment larges : Qmax10 = (1,15 à 1,20).Qxr10 7. Estimer éventuellement le volume total de crue : VclO = (QmrlO + QretlO).TblO 8. Préciser la forme de I'hydrogramme décennal en déterminant également le temps de montée Tm10. 2.2.2 Détermination de la crue centennale Sauf dans certains cas particuliers, une durée de vie égale à dix ans est insuffisante. Faute de mesures suffisamment nombreuses, pour protéger un ouvrage contre une crue d'une durée de retour supérieure à dix ans, on convient généralement de majorer la crue décennale à l'aide d'un certain coefficient sans que nécessairement on ait une idée précise de la fréquence de la crue ainsi calculée. - G. MATON (11) proposait de multiplier par 1,45 la valeur de la crue décennale pour évaluer la crue centenaire.Cette valeur est tenue maintenant pour trop faible. - L'ASEER (Association Européenne d'Etudes d'Equipements Ruraux) (1) en 1963 préconisait de multiplier par 2 la crue décennale pour obtenir la valeur d'une crue "exceptionnelle" qu'on peut appeler crue de projet (crue trentenaire? centenaire ?). Méthode d'établissement du coeff7cientmaiorateur d'aDrès GRESILLON, HERTER, et LAEIAYE GRESILLON, HERTER, L A E U E se proposent de définir Ie coefficient majorateur à adopter à partir d'une estimation de la crue centenaire d'après la méthode du gradex de GUILLOT et DUBAND. L'hypothèse de base de la méthode est que le supplément de pluie par rapport à une certaine valeur dont la durée de retour est grande ruisselle intégralement. Si la loi de probabilité des pluies de durées t données a une décroissance exponentielle (gradient exponentielle = gradex), on montre alors que Ia loi de probabilité des débits moyens sur la durée t est "parallèle'' à celle des pluies (exprimées dans la même unité) pour les faibles probabilités de dépassement : le gradex des pluies est égal au gradex des débits. Une fois obtenu le débit moyen, on calcule le débit de pointe de l'hydrogramme en admettant que le rapport R de ces quantités est constant.
  • 104.
    93 On supposera ici: a) - Que la méthode est applicable au delà de la crue décennale. Cette hypothèse est bien entendu d'autant plus contestable que la perméabilité du bassin du bassin est plus forte : très vraissemblable pour un bassin dont le coefficient de ruissellement de la crue décennale est égal à 0,6, elle l'est beaucoup moins lorsque ce même coefficient est égal à 0.1. Nous nous limiterons donc aux perméabilités P2 et P3 de la classification précédente (Bassins "relativementimperméables" selon les auteurs de la méthode du gradex). b) - que la loi de probabilité des valeurs extrêmes des pluies a une décroissance exponentielle. Les études de BRUNET -MORET ainsi que quelques ajustements effectués au Burkina montrent que cette hypothèse est admissible. c) - Que l'hydrogramme proposé par RODER et A U W Y est applicable au calcul de la crue centenaire (dans la réalité les phénomènes mis en jeu ne sont pas linéaires et les durées caractéristiques des hydrogrammes peuvent varier notablement en fonction de l'intensité de la pluie). d) - Que le rapport R de la valeur du débit de pointe au débit moyen sur la durée t retenue est égal au coefficient de pointe a10 adopté par RODER et AUVRAY pour les hydrogrammes. En conséquence, nous choisissons un intervalle de temps t (pour la pluie comme pour la crue moyenne) égal au temps de base de les l'hydrogramme. Il y a donc ici une incohérence théorique entre le diverses durées utilisées, le calcul de la crue décennale étant effectué à partir de la pluie journalière et celui du "supplément de pluie" sur une durée différente. Cependant, sur le plan pratique, cette différence ne doit:pas conduire à une erreur importante car les courbes intensité durée sont rapidement décroissantes (les averses ont en général une durée inférieure à cinq heures et la pluviométrie est ainsi sensiblement constante pour des variations importantesde la durée). Que, pour une fréquence donnée, les hauteurs d'eau précipitées sont liées à leur durée par une loi de MONTANA h = h$! D'après les études de BRUNET -MORET et plus récemment celles de MOUNIS et MANSONGI sur les averses exceptionnelles en Afrique Occidentale et Centrale Le coefficient n ne dépend pratiquement pas de la dunie de retour et présente une variation spatiale faible (et sans tendance systématique). On retiendra donc une valeur unique pour les pluies décennales et centenaires : n = 0.12. On vérifie ici par la faible valeur de ce coefficient que les courbes précipitations durées sont très plates. Que le coefficient d'abattement est le même pour les crues décennales et centenaires : (la formule proposée par VUILLAUME permettrait de déceler des variations de l'ordre de 10% qui ne sont pas significatives).De toute façon le coefficient d'abattement est très certainement décroissant avec la pluviométrie et le coefficient retenu pour la crue centenaire va ainsi dans le sens de la sécurité.
  • 105.
    94 Dans ces conditions: Si QlOO QI0 est la crue décennale tblO PlOO P10 al0, A et S les mêmes qu'auparavant Kr10 est la crue centenaire cherchée est le temps de base du bassin exprimé en heures est la pluie centenaire de vingt quatre heures est la pluie décennale de vingt quatre heures le coefficient de ruissellement de la crue décennale n a .A.S QlOO = QlO + t. " O L 1 Le coefficient maiorateur C La crue centenaire est donc déduite de la crue décennale par l'intermédiaire d'un coefficient majorateur Pl00-P10 (tbl0/24)n KrlO )P10 C = l + ( L'étude du rapport (P100 - P1O)PlO en Afrique Occidentale permet de constater que ce rapport est sensiblement constant et de retenir pour la suite de cette note les valeurs 0,45 en régime sahélien et 0,38 en régime tropical. Sur la figure ci-dessus, on a représenté la valeur du coefficient majorateur C en fonction du coefficient Kr pour diverses valeurs du temps de base tb. La signification de ce coefficient est Drobablement douteuse Dour des valeurs de Kr inférieures à û,3. On constate que le coefficient majorateur proposé par MATON (1,45) représente un ordre de grandeur valable pour des bassins imperméables (Kr > 0.6). Pour les petits bassins la valeur proposée par I'ASEER (2.00) surestime les crues centenaires et particulièrement en régime tropical. On vérifie d'autre part que les variations en fonction de tblo ne sont pas très importantes (exposant n = O. 12 faible) Enfin, on remarque que la distinction entre régime tropical et sahélien conduit à des différences peu importantes. Nous conserverons néanmoins cette distinction puisqu'elle existe déjà dans le calcul du débit décennal. Cette remarque nous permet cependant de constater que le rapport (PI00 - PlO)/PlO peut présenter des variations assez importantes sans que la valeur de C soit beaucoup modifiée et que les résultats obtenus sont donc également acceptables dans les zones de la côte occidentale pour lesquelles le rapport ' p l ~ ~-'10' est plus élevé. pl O
  • 106.
    Figure 4.23 :Rapportentre la crue ceriteiinale et la crue décennale en fonction du coefficient de ruissellemerit pour la crue décennale et pour divers temps de base de 1’11ydrog ramme C = l + P I O O - P I 0 ( t b / 2 4 ) ’ ” * P IO K R , - P I O O - P I 0 P IO r e g i m e s a h i l i e n r e g i m e t r o p i c a l - ‘‘O :0,38 P 10
  • 107.
    96 2.2.3 - Schématisationdes hydroerammes d'après GRESILLON, HERTER et LAHAYE 11importe de connaître la forme des hydrogrammes des crues exceptionnelles contre lesquelles on a choisi de protéger les ouvrages. Les hydrogrammes dont on connaît les temps de base et temps de montée grâce à la note de MM. RODER et AUVRAY sont intitulés "hydrogrammes unitaires". Pourtant la note en question qui effectue le calcul des débits des crues exceptionnelles en adoptant ces temps comme caractéristiques des hydrogrammes adoptés par les auteurs à partir des données présentées par DnREUIL montre que ceux-ci peuvent en fait être considérés effectivement comme typiques des crues exceptionnelles et non unitaires. Ainsi, nous construisons des hydrogrammes schématiques en trois tronçons linéaire respectant les données relatives a ces crues et déjà rencontrées auparavant : Qmax : tblO : temps de base de hydrogramme tm10 : temps de montée des eaux a10 : débit maximum de pointe calculé précédemment rapport entre débit de pointe et débit moyen de la crue. Figure 4.24 :Schématisation de I'hvdroeramme temps I t m i o t La diminution du débit est représentée par une ligne brisée dont la première partie est constituée par le symétrique de la montée et la fin par une droite rejoignant la durée tblo. Le changement de pente s'effectue à un débit Q dont la valeur est fixée par une relation exprimant que le débit maximum et le débit moyen de la crue sont dans un rapport a l 0 . b r
  • 108.
    97 0 -alO-tm10 On montreen réalité que dans les cas les plus courants, la deuxième partie de la descente ne joue aucun rôle en ce qui concerne le rapport Qemax/Qmax, c'est ce qui nous a permis de ramener I'hydrogramme à une montée linéaire de durée tm et une descente symétrique. Les paramètres définissant l'hydrogramme sont alors : Qmax et tinlO. La crue exceptionnelle dont le débit maximum est égal à Q m a est théoriquement provoquée par une pluie uniforme dont la durée est égaie au temps de montée tm10. On sait que les pluies de même fréquence mais dont les durées sont supérieures à tm ont une intensité moindre et provoquant des débits maxima de crue inférieure à Qmax . Toutefois l'effet du laminage sur celles- ci est moins fort et il importe de rechercher la valeur Qerna la plus importante après laminage, aussi avons-nous considéré également des hydrogrammes schématisés par une forme trapézoïdale : - Montée des eaux de durée tln 10 - Valeur maximum du débit Qcm depuis le temps tmlO jusqu'au temps to - Descente des eaux symétrique de la inontee. Cet hydrogramme représente théoriquement une crue provoquée par une pluie uniforme dont la durée est to Le débit Qcm est lié au débit maximum Qmax de la crue et aux temps tm10 et tO si l'on admet que la loi de MONTANA s'applique aux pluies considérées et si d'autre part on considère pour simplifier, que les débits maxima Qmax et Qcm sont proplortionneis aux intensités des pluies qui les provoquent 1 Figure 4.25 : Hvdrograrnme tramboïdaie temps -..--. . .--CI-1! ...*- i I ...-.*-- itn 1- - _ . 4:' intensité : I Q O I
  • 109.
    98 ICHAPITREV 1 1 -PRINCIPE DU LAMINAGE -MISE EN EQUATION Dans les petits bassins versants, les débits de crue instantanés sont souvent relativement élevés, mais le volume des crues est en général assez faible et les crues peuvent être laminées de façon appréciable par stockagedans la tranche disponible entre la. cote du déversoir et celle des plus hautes eaux. Le débit qui passe dans l'évacuateur de crue (Qe) est inférieur à celui de la pointe de la crue à l'entrée de la retenue (Qc). L'effet de laminage de crue dépend de la forme de I'hydrogramme de la crue entrant dans la retenue, de la capacité d'évacuation du déversoir de crue et de la forme de la partie supérieurede la retenue. L'étude du laminage consiste soit à déterminer la cote maximale atteinte par le plan d'eau pendant la crue, les dimensions du déversoir de crue (longueur déversante) étant fixées à priori, soit à déterminer les dimensions de l'évacuateur de crue, la hauteur maximale du plan d'eau au-dessus de l'évacuateur de crue étant fixée à priori; En général, pour des raisons d'hydraulique, on adopte une hauteur du plan d'eau au-dessus du seuil des évacuateurs de crue à système de contrôle déversant comprise entre 0,60 et 1,50m. L'étude doit être effectuée pour des crues de forme et de durée diverses afin de déterminer la cote maximale du plan d'eau et le débit maximal correspondant de l'évacuateur de crue dans les conditionsles plus défavorables de laminage. Cette étude peut être faite sur ordinateur, ce qui permet d'utiliser un grand nombre d'hydrogrammes et d'obtenir des résultats assez précis si l'on dispose de bonnes données hydrologiques. . .
  • 110.
    99 Figure 5.1 -Effet du laminage de crue sur l'liydrograrnrne ii la sortie de la retenue Y------
  • 111.
    1O 0 Figure 5.2- Laminaee de crue par la retenue Hydrogramme de crue 2 l’entrée de la reienueI Débits ~~ Volume stocke Hydrogramme sortant a I’evacuateur de crue- Volume destocke ===--Temps Le mécanisme du Iaminage peut être traduit rigoureusement par l’équation différentielle suivante : Q, (t)d t = Q, ( 2 ) d t t élément de élément de Variation volume = volume + de volume entrant sortant dans la retenue A(z) dz t : temps z Q, Q, A@) : Aire du pian d’eau à la cote z. : cote du pian d’eau : débit de crue entrant dans la retenue. : débit sortant de la retenue par l’évacuateuride crue
  • 112.
    101 - EQUATION DECONTUINITE Nous écrivonsle bilan en volume des différents apports pendant le temps dt : - volume entrant Qc(t)dt -volume sortant Qe( W - variation de stock : A ( Z W ce qui permet d'écrire : 2 - RESOLUTTON Il existe de nombreuses méthodes pour résoudre cette équation. 2.1 - Calcui numériclue La résolution de l'équation peut aussi être faite numériquement par exemple avec la méthode de Runge-Kutta. L'équation est de type : dz dt -= f(t,z) Les différentielles totales sont apptoximées par des différences finies : Azdz dt At Y -- La valeur de la fonction f(t,z) est estimée dans l'intervelle [t ;t +At] par une fonction <b(t,z,At). La valeur de 4 est une moyenne de valeurs de f dans l'intervalle [t ;t +At]. Quatrevaleurs de f sont calculées : f* =f(t,z) fi =f(t +-,,+for>At At 2 f2 = f(t +-,z+f,Z>At At 2 f3 =f(t +-,z+fzAt)At 2 dont nous faisons une moyenne +(t,z,At) =z[fo +2fi +2f2 +f3] La vaieur de la cote du plan d'eau au temps t + At es ainsi : Z =Zt +&t,z,At).At Le calcul est poursuivijusqu'à obtention de l'hydrograrmne laminé complet. 1 t-At
  • 113.
    102 2.2 - Méthodebasée sur l'éqiiation de coiitiniiité : tableau de calcul AV Qc =Qe +x AV = Variation de volume dans un pas de temps donné At AV=(Qc-Qe)At et AV=AAh A b =(Qc-Qe>At n - Qe = 1nLJ28h'.~ -+ Qe = ~ n L f i A h ' * ~(Pour un déversoir) On fait le tableau ci-après, la longueur (L) du déversoir de crue étant fixée à priori.
  • 114.
  • 115.
    104 Procédure de calculpar tableau Le calcul s'effectue pas à pas suivant les différentes colonnes. Chaque étape (intervalle de temps entre deux instants) est bâtie sur les résultats de l'étape antérieure. A l'instant to = O. On est à la cote du plan d'eau normal (PEN) et aucun débit entrant n'est observé ;le barrage est plein mais ne déverse pas. Le cheminement du calcul établit une itération à partir des colonnes 7 à 14 pour calculer la lame d'eau sur le seuil. Après épuisement des calculs d'une étape, on revient toujours à la cote du PEN pour faire le cumul de la lame d'eau et obtenir la cote atteinte par le plan d'eau à l'étape considérée (colonne 7) ;On fait : cote PEN + lame d'eau sur le seuil. Entre deux instantsti-1 et ti, on lit sur l'hydrogramme de cnie les débits entrant Qc(ti-1 ) et Qc (t; ). Connaissant l'intervalle de temps At entre ti-1 et ti, on calcule le volume moyen entrant de la crue par : A partir de la colonne 7 on se donne à priori une valeur de lame d'eau à la colonne 9 (h estimé). On calcule P(ti) = PEN +hestimé et on lit sur la courbe Hauteur - Surface, la surface S(ti) du plan d'eau. On calcule dans la colonne 10 le débit sortant à l'évacuateur à l'instant ti avec la lame d'eau considérée (hestimé ). Ensuite on calcule selon les colonnes 11 et 12 le volume moyen sortant à l'évacuateur par : Dans Ia colonne 13, on calcule la variation de volume AV durant At entre ti- 1 et ti : AV =vc-Ve ,c'est dire (colonne 6 - colonne 12) La variation de volume s'accompagne d'une variation Ah de la lame d'eau que l'on calcule à la colonne 14 par : Après avoir obtenu une valeur de Ah, on la rajoute à la valeur h(ti-1) de la lame d'eau sur le déversoir à l'instant ti-1 pour calculer la nouvelle valeur h(ti) de la lame d'eau : h(t;) = h(ti-1) + Ah Entre les colonnes 7 à 14, les calculs sont reconduits pour chaque étape jusqu'à convergence de la valeur de Ah qui fixera la convergence de la lame d'eau sur le seuil. On obtiendrait alors h(ti) identique à hestimé
  • 116.
    2.3 - Laminaigepar l'éqriatiori de continuité :Abaques de calcul La forme de I'hydrogramme de crues est : - soit triangulaire (pointu) - soit arrondi. On associe le débit de pointe, Qc de I'hydrogramme à une hauteur fictive, zCsur le seuil T,(s) = temps de montée A(&) = surface du plan d'eau à la cote de déversement a(m) = hauteur au-dessus du seuil telle qu'à cette hauteur ia surface du plan d'eau passe à 2A. curface 3A P 1 l a Le débit de pointe de la crue laminée, Qe est telle que : 2 Cas de calcul : - On se fixe à priori une longueur de déversement. On calcule les termes suivants : Z QeMC et A s on lit sur l'abaque le rapport - QcTm a Qc - On se fixe à priori une hauteur de déversement (Ze fixé) On calcule les termes suivants : ze Qeet -3 lire sur l'abaque le rapport - a QcQcTm 1 'Noter : Q(m3/m) A(m2) .
  • 117.
    1O6 Figure 5.3 :HYDROGRAltlMEARRONDI n.. l 2 Q e 1.0 Q c - 0.9 O. 8 / Y /' d é f i n i l i o n d e a : surface ?A F 1 1 0 1 O0 0.0 2
  • 118.
    107 Figure 5.4 :HYDROGRAMMEPOTNTU y/” û e iaminé - 1 ddfinition de O : 0.25 0.50 0.7 5 1.00 us ’ 1.5 O - dftermiiilitioii gr;ipliicpc du débit lamini ;cas d’une m e i hydropmme pointu. ,
  • 119.
    1O8 2.4 - Enurede blackmore On peut également effectuer l'étude de laminase de crue par la méthode graphique de Blackmore dont le principe est le suivant : Pendant un intervalle de temps At, la variation du volunie d'eau stockée A v se traduit par l'expression : Dans un plan repéré par un système d'axes avec les volumes stockés en ordonnée et les débits en abscisse, pendant un intervalle de temps At, l'équation v = f(Q) est représentée par une droite de pente At et passant par les points d'abscisses Qc et Qe On établit un graphique Figure 5.5 - Coristructiori craphiqiie de l'épure de Blackmore 20 18 16 14 12 10 a 6 4 h max 1 1 1 Charge sur le déversoir en rn. , - - - - - - - - - - - - - - - - - - - ---- - - - - - - - - - - - - - - - - - - - - - - ---- - - - - - - - - - - - I L - - - - - - 10 - 4 0 5 0 a+ Debits de crue et d'évacuation PR m 3 l s
  • 120.
    OStail d'un intervalle O,=debit de crue Q,:debit de l'évacuateur de crue Pendant l'intervalle de temps At entre t3 et t4 on a : - Qe4 +Qe3 Qemoyen - 2 At 2En construisant à partir du point 3 d'abscisse Qe une demi-droite de pente -, jusqu'au point At 2d'abscisse Qcmoyen, puis de ce point une autre demi-droite de pente - -. celle-ci recoupe la courbe des Qe en Qe4 tel que En poursuivant la construction on passe par un maximum (point 11) dont l'ordonnée correspond au volume maximal stocké dans la retenue pendant la crue.
  • 121.
    110 Déversoir FRONTAL /CHAPITREVI 1 Coursier Canai àsurface libre 1 - DEFTNTTTON COL LATERAL TULIPE Les évacuateurs de crues sont des dispositifs de sécurité placés dans les barrages pour assurer convenablement l'évacuation des trop-pleins et leur restitution adéquate dans le thalweg en aval. Ces trop-pleins sont calculés sous forme de crues exceptionnelles. - Ecouiement mixte par 2 - GENERALITES :CONSTITUTION ET CHOIX DES EVACUATEURS DE CRUES SIPHON Généralement un évacuateur de crue est constitué de trois parties ou organes principaux - - - un organe de contrôle du débit (par exemple un déversoir, une vanne,...) un coursier (canal, conduite) ; un dissipateur d'énergie installé au pied du coursier. conduite - en charge Il existe plusieurs types d'évacuateurs de crues d'hydraulicitk différente. EVACUATEUR TOTAL 1LATERAL 1Canal à surfàce libre PRISE DE FONDr en charge lvms A CLAPETS Dissipation Becs déviateurs Bassin à ressaut Bassin à ressaut Impact Bassin à ressaut Impact Impact l Becs déviateurs Saut de ski-
  • 122.
    1)EVERSOIRS Jet 3 l'airlibre ou j e t noyé --_-__L_ Surface libre ressaut -___--- Jcl sur iine structure Forniules r ;O ;longueur i'ositionricmcril du rcssaul. Calcul de profondeurs coriju guies. ~ Abaques -- Sitrface llbrc jet dans l'eau nrriortlwxnciit par difîusion ,- A baqucs C'al cIll CalciilF:colllelliciit Siirfacc liluc dénoy6 ou iioyc - --_- Siirfacc libre dénoyé O11 noyé iifacc lihc dénoyé CI1 Clinlp,C __--- c o i i hncII I en cliargc -. --.- 'coiilrlilciil en cliargo I Surfece livre dénoyé Vennc6 v O c urfacc librl dénoyé orifice Fioulcniznt Ctieriai d'écaiile- nicnt Iluvi.~i Y torrestici -__.- Forniiilt I'siiniation de Ils ciilcu1.tic courbe ûe rci1ious ----- OU - - Canai à surface Libre neci ciiviatcurs - en charge - ilüssins à ressautConduite en charge ~ Mixte dans une condulic cri charge à l'riiii oiit j l'aval SurfaCC llble Courbe de rerrious en cicial circuIaire
  • 123.
  • 125.
    114 Fig.6.4 :Tulipe -Déversoirà Daroi latérale -1 # *
  • 126.
    115 Fig 6.4. bis- Déversoir posé sur le barrage
  • 127.
  • 128.
    117 Fig. 6.6 :Evacuateur siphon sommaire Doiir petit barrage {extrait de "desigii of small dams") Figure 6.7 : Evacuateur siphoii ifaible charee et fort débit {extrait de "design of small dams") tube de égaliseur de pression - . . . - - . - -- . . . . . . _ . . . .. _ _ _- - - - . _ . . _ nappe - - - - _ _ . A - - - .. .... - p o i n t de :accordement 6 '. RC D On recommande une courbure du siphon telle que : -=2.5 .
  • 129.
    118 Les critères dechoix d'un évacuateur de crue sont les suivants. Ils sont au nombre de 7 : 1. sûreté - sécurité de fonctionnement ; 2. Prix (facteur économique) ; 3. Difficulté de calcul hydraulique ; 4. Difficulté de calcul hydraulique ; 5. Exigence topographique, géologique et géotechnique ; 6. Facilité d'entretien ; 7. Possibilité de modifier l'ouvrage. 3 - CALCUL HYDRAULIQUE DES EVACUATEURS DE CRUES 3.1 - Déversoir Le débit d'un évacuateur de crue est généralement contrôlé par le déversoir situé dans la partie amont de l'évacuateur. Pour qu'il en soit ainsi, les parties aval (chenal, coursier, puits, galerie, bassin de dissipation d'énergie...) doivent être conçues pour évacuer le débit du déversoir sans perturber l'écoulement de celui-ci, c'est-à-dire de telle manière que cet écoulement soit dénoyé 3.1.1 - Déversoir linéaire Le débit déversoir linéaire en écoulement dénoyé est donné par : L = longueur déversante h = charge sur le déversoir C = m a = 4,429 m m = coefficient de débit qui dépend notamment de l'épaisseur B du déversoir par rapport à la charge h, et de la forme de la crête du déversoir. Les courbes ci-après donnent les valeurs approchées de m (de C) dans l'hypothèse où la profondeur de pelle P est suffisante pour que la vitesse d'approche du déversoir par l'eau soit négligeable. Q = C$/2
  • 130.
    Fig.6.8 :Profils dedéversoirs linéaires Déversoir à .cré:e v i v e ( 2 ) Fig. 6.9 :Valeurs approchées du coefficient de débit d'iiri déversoir linéaire C I 2,04 j 1.95 j t , 8 6 , 1 , 7 7 ' i 3 8 1 , 5 9 1 . 5 1 ! , 4 2 1.33 ~ ni O ,46 0 , 4 4 0 , 4 2 0 . 4 0 O , 3 8 0.36 0.34 0 , 3 2 O ,30 b .
  • 131.
  • 132.
    _. . ... _."I. . .. ._- . ...... .. 121 Si la profondeur de pelle P à l'amont du déversoir se rapproche de la charge h ou devient inférieure à celle-ci la vitesse d'approche de l'eau n'est plus négligeable et le coefficient de débit m est légèrement majoré en fonction du rapport h/P.II peut être calculé par la formule de Rehbock pour un déversoir à paroi mince : - h Déversoir mince paroi quand : B 5 - 2 h Seuil épais quand B > - 2 Quand P+h ou quand P 5 h, h 1050h - 3 P + 0,OS-) 23 m = -(0,605 +3 3.1.2 - Cas d'un déversoir fonctionnant en récime nové Si l'évacuation des eaux à l'aval du déversoir se fait dans des conditions telles que le niveau de l'eau en aval remonte au-dessus de la cote de la crête du déversoir, lorsque la hauteur d'eau h2 au dessus se cette cote atteint ou dépasse les 2/3 de la charge h l sur le déversoir, celui-ci sera considéré comme noyé ! 2 sih2 27 hi, alors déversoir noyé. Fig. 6.11 : Déversoir en écoulement riové Le débit d'un seuil épais en écoulement noyé peut être calculé par la formule : Q = 0,90Lh2 J 2g(h1-h2) .
  • 133.
    122 Une digue déversantepeut être considérée comme un seuil épais, d'épaisseur égale ii la largeur en crête de la digue. Lorsque le seuil est noyé, il y a réduction le rapport hl - h2 est petit. La courbe coefficient de réduction k à appliquer. hl du coefficient de débit d'autant plus importante que établie par 1"'U.S. Bureau of Reclamation" donne le Figure 6.12 :Réduction du coefficient de débit d'un seuil normal en écoulement noyé .
  • 134.
  • 135.
    124 3.1.3 - Lesseuils normaux Fig. 6.14 :Seuil normal Les seuils normaux (profil Craeger, profil Scimeni) sont des déversoirs dont la crête et la partie aval sont profilées de manière à épouser la forme de la lame déversante. Les indications de la figure permettent de déterminer le profil normal d'un déversoir à parement amont vertical. Le coefficient de débit m d'un seuil normal varie de 0,45 (C = 1,99) à 0,49 (C = 2,17) suivant la vitesse d'approche de l'eau en fonction de la profondeur de pelle P à l'amont du déversoir. 3.1.4 - Déversoirs circulaires pour Puits ou Tulipes ou Moines Les déversoirs circulaires (puits ou tulipes) fonctionnent comme les déversoirs linéaires du même type tant que le rayon R du déversoir est suffisamment grand par rapport à la charge h sur le déversoir pour que la contraction des filets liquides dans le puits ne gène pas I'écoulement sur le déversoir qui reste alors dénoyé. Le déversoir est donné par la formule: - Q = m2&& h3'2 = 27,83idU1~'~ h R -Pour des valeurs de - < 0,25, m prend linéaires les mêmes valeurs que pour les déversoirs h R - Pour 0,25<- < 0,50, la valeur de m décroîtjusqu'à 25% environ h R - Pour des valeurs de - > 0,50, la valeur de m décroît très rapidement et l'écoulement est noyé.
  • 136.
    125 En écoulement noyé, puitset galerie qui augmenter Lorsque le déversoir le débit est contrôlé d'abord par l'orifice du puits et ensuite par l'ensemble fonctionne comme une conduite en charge si la charge h continue à fonctionne en "dénoyé", il faut éviter les dépressions dans les puits. Pour cela il faut que la charge disponible dans chaque section du puits (distance de la section à la surface libre moins les pertes de charge jusqu'à Ia section) soit supérieure à la charge équivalente à la vitesse de circulation de l'eau dans la section (-). Dans ce but on prévoira V2 29 un déversoir de grand diamètre suivi d'un convergent et d'un tube de plus petit diamètre .
  • 137.
    126 Fig. 6.15 :Coefficientsde débit pour diversoir en Tulipe
  • 138.
    127 3.2 - Siphon L'écoulementdans un siphon se calcule comme dans un tuyau coudé. Pour mener l'évaluation, il faut connaître : - la charge disponible ; - - les pertes de charge à prendre en compte ; la fraction de pression atmosphérique disponible pour la partie ascendante amont. Pour un siphon de section rectangulaire constante, le débit par unité de largeur est donné par la formule : D = hauteur de la section, H = différencede charge disponible entre le réservoir à l'amont et la cote de restitution , j = Somme des différences pertes le long du trajet de l'eau à savoir, al, et v1 étant l'aire de passage et la vitesse au niveau de la section supérieure du siphon et a0 et vo l'aire de passage et la vitesse à la section de sortie : 3 v1 29 - pertes à l'entrée dans le convergent je =0,2- - pertes dues au frottement j, = 0,25-- 3 v1 2g V? - pertes dues aux courbures supérieures et inférieures jc = 0,42- 29 3 3 v l VL, - pertes au divergent de sortie j, = 0,2(-- - -) 29 29 a, v l - pertes à l'orifice de sortie js= (A)""-) a. 39 Figure 6.16 - Schéma d'un siphon rectanguiaire
  • 139.
    128 Pour éviter lesphénomènes de cavitation très nuisibles et générateurs de vibrations et chocs dangereux, il faut vérifier : [d + pertes de charge depuis l'entréejusqu'à la crête + hauteur due à la mise en vitesse 2V, Rappel : Cavitation = mise en vaporisation de l'eau sous l'effet de la dépression L'eau se vaporise à eu près à + 0.50 m en pression absolue ou -9.50 m en pression relative. 1 atm = 1 bar = 10PPa= 10 in CE 3.3 - CHENAL D'ECOULEMENT ET COURSIER Fig. 6.17 : Chenal d'écoulement et coursier pi; e 2 L I i I Il l I 8 I L ' i r i seuil l I 1 I c hena 1 l coursier I bassin de dissipation1 I - - . 1 Section de contr 3.3.1 Chenal d'Ecoiilement Le chenal fait directement suite au déversoir, dans le cas d'un évacuateur de surface. Sa pente est suffisamment faible (KIc) pour le régime y soit fluvial. En général, le chenal est de section rectangulaire qui est la disposition hydraulique la plus intéressante après un déversoir. Sa longueur est rarement importante car il sert uniquement à passer le sommet du barrage avant d'aboutir au coursier en aval. Les calculs hydrauliques sont difficiles et inaccessibles si l'on ne dispose pas de moyens informatiques avec les programmes adéquats ou si l'on ne réalise pas un essai en modèle réduit.
  • 140.
    129 Le chenal étanttrop court, le régime n'y est pas uniforme en général. immédiatementà l'aval du déversoir, il s'établit un ressaut qui amène l'écoulement fluvial. A l'extrémité du chenal, là où s'amorce le coursier, on établit au niveau du changement de pente un léger rétrécissement en convergent pour bien marquer le passage en écoulement torrentiel. Les conditionsd'écoulement se vérifient en calculant la profondeur critique yc. Pour un canal rectangulaire :- = 0.47(r)Q 2/3 C où Q = débit en m3/s L = largeur du canal en m g = accélérationde la pesanteur en m/s2 La profondeur normale Yn (profondeur qui apparaît pour le débit Q et la pente 1du chenal si l'écoulement était uniforme) se déduit de la formule de Mavining - Strickler R = rayon hydraulique en m 1= pente en m/m s= Sectionmouillée en m2 K = coefficient de rugosité L'écoulement est fluvial si yn > y, Le calcul s'effectuepour le débit maximum, mais aussi pour des débits intermédiaires. 3.3.2 - Coursier Le coursier fait suite au chenal et conduit l'eau au thalweg. Il est plus souvent construit en béton et il est fortement conseillé de lui donner une section rectangulaire, ce qui assure un écoulement régulier. L'expérience montre que la forme la plus économique correspond à une largeur égale ii cieux fois le tirant d'eau. 1=2y En première approximation,la largeur du coursier peut être donnée par la relation : 1 -~ 0 . 4 l(m>, Q(m3W En général, le coursier commence par un convergent amenant à la section de contrôle (section où la hauteur critique est atteinte), à partir de la quelle la pente augmente. La longueur minimum du convergent est donnée par : Lc = 2.5 (il - 12) 1, = largeur au plafond du bief amont i, = largeur au plafond de la section de contrôle ,
  • 141.
    130 Calcul du tirantd'eau y : - A la section de contrôle on a y = y, - le long du coursiery <yc Il s'estime aisément avec les abaques. Hs = énergie spécifique (énergie ramenée au radier du canal) ) QL'abaque donne y/Hs = f( f i 1 1= largeur du coursier Hs dépend de la charge amont et de la perte le long du coursier. Hs est variable selon la section considérée. * pertes de charge linéairej = qAH avec q = O pas de perte de charge q = O. 1 coursier court c-à-d inférieur à 5 A H q = 0.2 coursier long c-à-d supérieur à 5AH * Pertes de charge singulières :js si les convergents et divergents sont dimensionnésde telle sorte que tg a < -où F = nombre de Froude F = - Dans le cas contraire, il faut calculer les pertes de charge singulières selon les coefficients usuels de pertes de charge dans les élargissements rétrécissements. 1 3F V on prendrajs:=O Jgy Dans une section quelconque : H, = AH - pertes de charge. A la section de contrôle : Hc= 1.5 yc
  • 142.
    131 Connaissant &,l'abaque permetde déterminer le tirant d'eau correspondant. 11est ainsi possible d'avoir section par section un ordre de grandeur assez approché du tirant d'eau. En pratique, il suffit de calculer y à chaque changement de pente et d'interpoler linéairement entre les sections. Pour déterminer la largeur du coursier 1= 2y, on procédera par approximationssuccessives en se donnant au départ, a partir de la longueur du chenal, une première valeur de 1.
  • 143.
    132 Figure 6.18 :Abaquepour le calcul du tirant d'eau dans le coursier
  • 144.
    133 Calcul de larevanche La revanche à donner au coursier est selon "Design of small dams'' R = 0.6 R (m) = revanche V ( d s ) =vitesse de l'eau y (m) =tirant d'eau +0.05 V 5 Pour des raisons topographiques, le tracé du coursier est souvent courbe. Soit r = rayon de courbure Il se produit une accélération centrifuge V2/rentraînant entre les 2 rives du coursier de largeur 1une différence de niveau Ah telle que : v = vitesse moyenne de l'eau Exemple v=lOm/s r = 2 0 m 1 = 2 m Ah = 1 m ,ce qui est considérable 3.4 - COURSIER CONDUITE Lorsque le système d'évacuation comporte une conduite le calcul est particulier, en effet cette conduite peut être en charge à l'amont et à surface libre à l'aval. Lorsque la conduite est entièrement en charge (ce qui est déconseillé) le calcul est une simple application de l'hydraulique en charge. Dans ie cas d'une tulipe classique quatre types d'écoulement peuvent se produire : . .
  • 145.
    Figure 6.19 :Fonctionnementsd'un coursier conduite 1 - écoulement entièrement dénoyé 1 bis - l'écoulement est noyé par l'amont, il faut absolument éviter ce genre de situation 3 - écoulement dénoyé sur la crête déversante 3 - écoulement noyé sur la crête déversante
  • 146.
    135 3.4.1 - Dimensionnementdii Coursier - Conduite Figure 6.20 :Profilage d'une tulipe L'Elimination du cas 1 bis se fait par un profilage de la tulipe à l'aide d'un calcul de batistique : Pour éviter le cas 1 bis, on conseille de prendre Y = hauteur déversante Y z 5 7 - hD h- Y = hauteur pour laquelle on passe du diamètre D à d. d reste constant jusqu'au passage a surface libre En admettant le passage en chargeI à cette distance1 Y de la crête, on peut dimensionner d On dimensionne ensuite le rayon R de la conduite dans la zone a surf'acelibre : On vérifie en plus que 3.4.2 - Calcul du coursier conduite Après avoir choisi le dimensionnement,on effectue les calculs 3.4.2.1 - Calculer v,,-et ys dans Iri conduite ii surface libre 11faut impérativementvérifier Yn < yc En ce cas, l'écoulement à surface libre ne posera aucun problème.
  • 147.
    136 3.4.2.2. - Lacondition à la limite aval de la zone d'écoulement en charge La condition à vérifier est la valeur de l'énergie. Soit Hlimite notée He l'énergie à la limite aval de zone d'écoulement en charge tel que : - soit Yn est beaucoup plus petit que d. Il faut alors prendre :He = Hs(Yn) n - soit Yn n'est pas trop différente de d (il faut essayer de vérifier Yn d au dimensionnement).Il faut alors prendre : He = H,(d) 3 d" Nota : S = Ir- 4 3.42.3 - Calcul en charge Soient : Z! : cote du fond au changement de diamètre (passage en charge, passage à surface libre) Zd : cote de déversement de la crête de la tulipe. 2, : cote du plan d'eau dans le cas de l'écoulement type 2 2, : cote du plan d'eau dans le cas de l'écoulementtype 3 K, : coefficient de perte de charge à l'entrée K, : coefficient de p.d.c linéairex longueur K, : coefficient de p.d.c dans le coude K, : coefficient de p.d.c à la sortie dLoù s=n- 4 z3(noyé) = Z! +H! +(K, + K C + - - J + K ~ ) ~ d 2gs2 Pour que le régime soit bien dénoyé, il faut vérifier : n 2 3 < Z +"h dénoyétype2 d 3 Sinon la cote du plan d'eau est Z3 et on a un écoulement de type 3. De plus si 22 <zd - Y, on a un écoulement de type 1.
  • 148.
    137 NOTA Si les conditionshydrauliques ne sont pas satisfaisantes, il faut reprendre le calcul avec un autre dimensionnement. Il ne faut pas oublier que pour qu'un écoulement à surface libre soit stable, un reniflard doit assurer l'aération de l'écoulement au niveau de l'élargissement de la conduite. Pour la zone d'écoulement à surface libre; il est toujours possible d'estimer globalement les pertes de charge. L'ABAQUE ci-après permet de relier Hs et Y. (page 141) Pour que l'écoulement à surface libre soit stable dans la galerie, un reniflard doit assurer l'aération de l'écoulement au niveau de l'élargissement de la conduite Figure 6.21. :Evacuateur en Duits noyé c ! [RENIFLARD H GALERIE - 1Section de controle s .
  • 149.
    138 Table Geometric Elementsof CHANNEL SECTIONS a / B + C'I a l 4 f a 2 2ci -3 n i l s m Ica 1% "Ah + a t m h t a -c h L@a + a fL I Co hY - + * ' l I j: c -3-ci L I -.Y +O + A l -L 1 .h cy I c '7
  • 150.
    135, Fig 6.22 :Courbesde calcul de la rwofondeiir normale .-.---.- O0 r3' a N az 'J C O -O . 6
  • 151.
    1-10 Fig.6.23 : Courbesde détermiriiitioti de la profondeiir critique . V
  • 152.
    141 Fig.6.24 :Energie spécifiqueen canai circulaire .
  • 153.
    1-12 3.5 - LADISSIPATION DE L'ENERGIE Que ce soit à la traversée d'un déversoir ou au bas d'un coursier d'évacuateur, les eaux arrivent au bas de l'ouvrage avec une énergie cinétique importante qu'il s'agit de dissiper le plus possible à l'intérieur du liquide lui même plutôt que sur le fond ou les rives du thalweg ce qui entraînerait à la longue un déchaussement de l'ouvrage évacuateur. Dans ce but on fait suivre les ouvrages évacuateurs d'un ouvrage dit de dissipation ou de tranquilisation. Plusieurs types d'ouvrages de dissipation peuvent être envisagés. Les différentes méthodes utilisables pour dissiper l'énergie cinétique de l'eau, ont été étudiées de façon approfondie par le U.S. Bureau of Reclamation et les résultats de ces études ont été publiés dans "Design of Small Dams'' Certains dispositifs comme les becs déviateurs (cuillers) et les cuvettes de dissipation submergées sont peu utilisés pour les petits et moyens barrages. Les procédés les plus fréquemment employés sont les bassins à ressaut et les bassins du type impact. Pour les petites hauteurs, il est souvent économique de ne pas faire de coursier et de déverser directement dans un bassin de plongée renfermant un matelas d'eau qui forme un excellent dissipateur et débouchant directement dans un chenal à faible pente conduisant à la rivière. 3.5.1 - Les becs déviateurs Les becs déviateurs constituent un procédé intéressant pour les barrages en béton. Le principe consiste à installer, en bas du déversoir un bec relançant l'eau vers le haut suivant un angle 8en générai de l'ordre de 35 à 45". Le jet se désintègre et retombe dans une cuvette de dissipation à une distance V2 x = 1,8(y+-)sin219 2ç 8 = 35"à 45" en général ! Y = entrant d'eau V = vitesse au départ du bec Le rayon de courbure du bec doit être d'au moins 5 fois le tirant d'eau y. r?5y ,i
  • 154.
    Figure 6.25 -Bec déviateur Y et V sont calculés par les formules suivantes et par itération successives. r n 1 .
  • 155.
    144 3.5.2 - Lesbecs déviateurs :Cas où 0 < 30° D'après Rémi POCHAT du CTGREF - (1980) Bulletin technique du Génie Rural no 125.on peut effectuer le dimensionnement comme ci-après dans le cas où 0 < 30" Fig.6.26: Bec déviateur et fosse - -- -- On respectera les limites suivantes : 8< 30" ; -< 2.4 P P3 avec P = pression au creux du bec déviateur avec q = débit par unité de largeurPet r > q.v. - P v = vitesse à la sortie du bec La profondeur de la fosse est alors calculée par les formules : H = 0.9 sin20.Ht+ a q(m'/s) = débit par mètre de largeur 3.5.3 - Les cuvettes de dissipation submergées Une cuvette submergée, éventuellement à bords crénelés dévie la lame déversante provenant du seuil vers le haut. Il se forme ainsi 2 rouleaux, l'un en surface au-dessus de la cuvette, l'autre au fond, se mouvant en sens inverse, en aval du bord de la cuvette. Les mouvements des rouleaux s'imbriquent dans la lame et dissipent ainsi l'énergie disponible de l'eau.
  • 156.
    Figure 6.27 -Cuvettes de dissiilation (extrait de"desi2n of srnail dam") ( A ) -CUVETTE LISSE (A) CUVETTE LISSE bou i I Ionnement / (AICUVETTE TYPE LJSSE (BICUVETTE A 80RD CRENELE (B) CUVETTE A BORD CRENELE ciéie permanente ( B I CUVETTE TYPE CRENELE (A) CUVETTE TYPE LISSE (B) CUVETTE TYPE CRENELE Les abaques de "Design of Sinall Dams" permettent de déterminer les dimensions de ce type d'ouvrage. 3.5.4 - Les bassins ii ressaut Le bassin a ressaut est un moyen très efficace pour réduire la vitesse de sortie à une valeur compatible avec la stabilité des berges à l'aval. La forme du ressaut et ses caractéristiques dépendent directement du nombre de Froude : F=- YI : tirant d'eau en régime torrentiel avant le ressaut V : vitesse. V @i-
  • 157.
    F est proportionnelà V donc dépend directement de la hauteur de chute. Pratiquement dès que cette dernière dépasse 6 m, V devient supérieure à 10 d s . Pour des barrages de 15 à 18 m de haut (et en admettant une perte de charge de 20%) elle peut atteindre 16 à 17 m/s. F est inversement proportionnel à fi.On peut donc faire croître F en diminuant y ce qui revient à augmenter la largeur du coursier et du bassin. Nous verrons que du point de vue hydraulique on a souvent intérêt à augmenter F donc à diminuer y, mais cela augmente le coût des ouvrages. Différents types de bassins suivant les valeurs de F 1) Pour F = 1, y = y, ;il n'y a pas de ressaut 2) Pour 1 < F < 1,7 Le courant incident a une profondeur légèrement inférieure à la profondeur critique ; le passage à une profondeur plus grande est graduel et ne se inanifeste que par une agitation de surface. Il n'est alors pas nécessaire d'établir un bassin spécial de tranquilisation. Pour F = 1,7 le tirant d'eau à la sortie y2 est de l'ordre de 2 fois celui à l'entréey1 et la vitesse de sortie est d'environ la moitié de la vitesse à l'entrée (v2=-).v1 2 Aucun déflecteur n'est nécessaire : un simple bétonnage du canal sur une longueur de 4 à 6 y2 à partir de l'endroit où la profondeur commence à se modifier (c'est-à-dire immédiatement après la rupture de pente en fin de coursier) est suffisant. 3) Pour 1,7 < F < 2,5 un ressaut commence à apparaître mais n'est pas très turbulent (on parle de "pré-ressaut"). Les déflecteurs et seuils ne sont pas encore nécessaires et il faudra simplement veiller comme en (2) à ce que le bassin soit sufisamment long pour contenir l'écoulement pendant son ralentissement. Les graphes ci-après donnent le rapport y-/yI des profondeurs conjuguées avant et après ressaut en fonction de F et le rapport L/y2 de la longueur du ressaut (donc de la longueur minimale du bassin) au tirant d'eau aval également en fonction de F.
  • 158.
    147 Figure 6.28 :Déterminationdes caractéristiques du ressaut en fonction du nombre de FROUDE F . b *
  • 159.
    1-18 Vf F = 2d ( y I + T ) l -,z 4) IF en Newton Pour 2,5 < F < 4,5 le phénomène est dans un stade de transition et il se forme un ressaut instable, le jet incident se développant de façon intermittente le long du fond ou de la surface libre. Cette instabilité rend le ressaut difficile à contrôler et il faut amortir les vagues par des obstacles. La forme (type 1) est relativement efficace. Le rapport des hauteurs conjuguées y2/yi est donné en fonction de F par le gaphe associé. Pour amortir le mouvement des vagues on a intérêt à prendre pour le bassin une profondeur y; = 1.1 y?. La longueur du ressaut est donnée en fonction de F sur le second graphe. Dans cette gamme de valeurs de F l'efficacité du bassin type 1n'est pas très bonne. On a intérêt, si on le peut, à passer au type II valable pour F > 4,5 en accroissant la largeur du bassin donc en diminuant yl (faisant ainsi passer F dans le cadre du cas nos). 5 ) F > 4,5 . Le ressaut se produit alors nettement. La mise en place de blocs, de déflecteurs permettent de raccourcir le bassin et évite le déplacement du ressaut à l'aval. Si la vitesse d'entrée ne dépasse pas i5in/s, on pourra utiliser le bassin de type II Les graphes associés à la figure donnent en fonction du nombre de Froude, le rapport y2/y1 des tirants d'eau amont et aval, la hauteur h l des blocs chicanes, h4 du seuil aval et la longueur L du ressaut. Les blocs chicanes sont soumis à leur face amont à une force : ;R poids spécifique de l'eau (1 1O00 N/in3 à 12 O00N/m3 pour les eaux chargées) S : aire de la face amont du bloc (in2) +-v: : énergie spécifique de la lame d'eau à l'entrée. 2g Si la vitesse d'entrée dépasse 15m/s, il est préférable d'utiliser le bassin en type III avec blocs de chute et seuil crénelé. Le premier graphe associé donne la profondeur y2 conjueée de yl. Pour mieux stabiliser le ressaut, on a intérêt à prendre y'7- = 1,05 y7.I Le deuxième graphe donne également en fonction de F la longueur du ressaut L.
  • 160.
    Figure 6.29 :Longueurdu ressaut iivdrnuiiaue daris un canai rectangulaire i fond horizontal selon I'USBR a O Q 9 A.- .
  • 161.
    150 Fig 6.30 :Courbescaractéristiqries du ressaut hydraulique dans iin carial rectanglularie (i forid plat NOTA : hj = y2 - y1
  • 162.
    151 Abaque de syntlz2se-Dkternzintrtiongklhnk de kti profontleur du hnssin et des tirnnts d'mu L'abaque de la figure synthétise ce qui a été dit sur les profondeurs. Elle permet, en fonction : - du débit par m de largeur d'ouvrage, q - de la différence du niveau h entre le niveau de la retenue et celui de l'écoulement aval, - de la perte de charge aH évaluée dans le coursier, de déterminer la profondeur conjuguée y2 c'est -à-dire la profondeur du bassin. Pour un bassin à l'aval direct du déversoir : cc = O Si la longueur de l'ensemble chenal + coursier est inférieure à 5 fois la hauteur de chute :a=O, 1 Si la longueur dépasse 5 fois cette hauteur cc =û,2 Pour un bassin de type 1, la profondeur sera y 2 = 1,1 y2 Pour un bassin de type III, la profondeur sera y'2 = 1,05 y2 .
  • 163.
    152 Bassins a ressaut: Abaque de synthèse Figure 6.31 : Abaque polir le c:ilctil de la profoiidetir du bassin de dissipation ' 10 9 8 7 6 Niveau de la' retenue Ii30 1 I Pour calculer y2 en fonction ; de q et de h , faire d'abord une 1 4 hypothèse sur la perte de I charge dans le coursier ' -si cette perte de charge est 3 2 FT( mètres 1 1 0.8 I négligeable lire y2 sur ia iigne il)' ! -si cette perte de charge peut ' etre approchée par 0,2 ( h+y) j b . I lire y2 sur la iigne iZ1 I hI 9 Y 2 ( mètres )
  • 164.
    153 . 3.5.4.1 Calcul dubassin d'amortissemerit ressaut Fig.6.3.2 :Eléments de calcul d'un bassin h ressaut H i P = pelle He = hauteur d'énergie = h + - h = hauteur de lame d'eau sur le seuil VO = Vitesse d'eau sur le seuil g = accélération de la pesanteur = 9,81 d s ' V, = vitesse d'eau avant le ressaut yl = profondeur d'eau en régime torrentiel a = chute fixe sur la construction q = rdéversoir = débit spécifique Ah0 = enfoncement du bassin V2= vitesse en régime iluvial y2 = profondeur d'eau en régime fluvial yi et y2 = profondeurs conjuguées H = cote déversion - cote seuil bassin de dissipation Hd= charge disponible = H + Ah,, + h + - v2 2g = a +He = dénivelée entre le niveau d'énergie amont et le plafond du bassin Q q = voh = vlyl = ~ 2 ~ 2 VI) 2 3
  • 165.
    154 On écrit Bernoullientre le seuil et le bas du seuil : A - (Zo+-+-) - (Z1+-+-)=AHpl vf (1) 2g 2g On considère AH = 10% de la charge disponible PO= P1 = pression atmosphérique 20-21 = H+Aho+h-Y1 AH = a(H+Aho+h+-)vO 2g 3 3 vô v î (1) : Zo-Z1+--- = rn 2g 2g 2 2 2 H+Aho+h-yl+---=vo v1 a(H+Aho+h+-)vO 2g 2g 2g 3 n “ - ( l - a)(H+Aho+h+-)6 2g YI+%- (3) : qv1=- Y1 (4) : Frl =- Résolution par Itérations successives : Jgyl VL 2g (1 - a)(H+Aho+h+-)-ylO 3 V A 2g 2 = H+ Aho +h+- O Remarque : a = O pour un bassin à l’avalimmédiat d’undéversoir. a = O. 1 si la longueur du chenal + coursier 5 5 fois la hauteur de chute a = 0.2 si la longueur du chenal + coursier > 5 fois la hauteur de chute.
  • 166.
    155 La profondeur conjuguéey2se calcule : Pour que le ressaut ne quitte pas le bassin on doit vérifier : Y2 -<Y,+& La revanche du bassin de dissipation est donnée par : R = O. 1 (Y2+V1) La détermination du type de bassin à ressaut se fait en calculant le nombre de Froude et vitesse à l'entrée du bassin (V,). R(m) ;V l ( W ;Y2(")
  • 167.
  • 168.
    157 Figure 6.33 -Détermination des caractéristiques du bassin de dissipation pour un nombre de FROUDE compris entre 2.5 et 4 3 (extrait de "design of smail dams") BASSiN DE TYPE I
  • 169.
    Figure 6.34 -Détermination des caractéristiclues du bassin de dissipation nour un nombre de FROUDE suiiérieiw ;i4 5 et une vitesse de l'eau B l'entrée du bassin inférieure ,? lSni/s (extrait de "design of smdl dams") F I
  • 170.
    Figure 6.35 -Détermiriatioii des caractéristiques du bassin de dissination pour un nombre de FROUDE suliérieur A 4 5 et une vitesse de l'eau A l'entrée du bassin supérieure ;j 15 ni/s (extrait de "design of small dams") BASSIN DE TYPE Blocs de chute F
  • 171.
    1GO 3.5.4.2 - Oiielqiieséléments sur la dissirmtiori par ressaut hvdraiiliqiie * Perte d'énergie dans le ressaut : AE La perte d'énergie dans le ressaut hydraulique est égale a la différence des énergies spécifiques avant et après le ressaut. * Eficience du ressaut : -E2 L'efficiencedu ressaut est le rapport des énergies spécifiques après et avant Ie ressaut E2 - (8F; +1)3/2 -4FS +1 * Hauteur du ressaut : hr -- 8F: (2+Ff ) Perte relative d'énergie est : E2 El - - Longueur de protection après le bassin de dissipation s'agira de dissiper 1'éner;ie résiduelle après le ressaut dans un voluine d'eau a raison de- La puissance résiduelle à dissiper peut être calculée par : p -9 -(aQ +->pHe r-K 75 21 Le volume nécessaire à la dissipation de Pr est Connaissant la largeur du bassin et la profondeur d'eau après longueur de protection. 3.5.4.3 - Calage du Radier du bassiri de dissiristiori le ressaut, on en déduit une On établit la courbe 2 = f(Q) du cours d'eau ii l'aval de l'évacuateurde crue. Pour un débit donné, la courbe 2 = f(Q) donne la cote du plan d'eau aval ZA. Pour le même débit on calcule le tirant d'eau y? après le ressaut. . 4 * d
  • 172.
    161 Pour que leressaut ne quitte pas le bassin il faut bien placer la cote 20 du radier de telle manière que : 20 +Y2 = z A Bien évidemment cette égalité ne pourra Stre réalisée que pour une valeur du débit. Pour adapter les profondeurs, on procède comme suit : - - - tracer la courbe (1) : 2 = f(Q) de l'écoulement aval tracer la courbe (2) des profondeurs conjuguées : y2 = f(Q) pour un bassin de largeur 1 tracer la courbe (3) des profondeurs conjuguées y2 = f(Q) pour un bassin de largeur 21 On superpose les 3 courbes sur un même graphe en choisissant comme point d'intersection D, dont l'abscisse est le débit maximal du déversoir (crue de projet après laminage). La différence d'ordonnée à l'origine des courbes donnera la difTérence de cote entre le radier du bassin et le fond du lit. .
  • 174.
    163 Figure 6.37 :Dimerisioriinaxirnuiii des eiirochemeiits de protectioii en aval des dissi1) ateurs Vb =2.57Jd Where vb = bottom velocity in Channel in feet per second d = diameter of particles in inches (specific gravity 2.65) SlZE OF RIPRAP TO BE USED DOWNSTREAM FROM STILLING BASINS The riprop should be cornposed of O rell groded mixture but most of the slones should bc of the SI= indtcoted by the curve.Rigrop should k ploced mer O filttr blonket or resist movement. Cwvc is îentotive ond B O T T O M VELOCITY IN FEET PER SECOND Fraonr - c u d LO ddcrmtnc manmum 8 h C n i e iiinprap mulutr. Pour des pierres de densité quelconque Mavis et Laushey proposent : V - !-Jd&Ï avec d en m m S densité du matériau b - 2 . .
  • 175.
    3.5.4 - Bassiiide tyiie imnact Dans ce type de bassin la dissipation est réalisée par le choc du jet incident sur un écran vertical qui est en générai une poutre traversant le bassin de part en part. Le jet réfléchi vers l'arrière, heurte lejet incident et crée des tourbillons qui absorbent l'énergie. Ce type d'ouvrage est extrêmement efficace. II peut être utilisé aussi bien au débouché d'une canalisation qu'en bas d'un coursier. Fig. 6.38 : Dimensions d'iiii btissiii de type iinpact (entrait de desieri of small dams) . - :- a 9 L? r9 +. Co? c O o a o o o
  • 176.
    165 3.5.5 - Calculde l'affouillerneiit 1'wi1l d'une chute Fig.6.39 - Abmue poiir le calcul de I'sffouillement ,? l'aval d'une chute Véronèse : c h Y . -50 - 4 0 -30 -20 -15 -10 - 5 . 2 - 1
  • 177.
    166 3.5.6 - Bassinde type pioncoée : Cas de petites chutes Dans le cas des petites hauteurs, les caractéristiques dimensionnelles de l'ouvrage peuvent être obtenues à partir de la figure ci-dessous et de l'abaque. Figure 6.40 - Caixtéristiques d'ririe petite chute :ti i I L 2 = H + h - B - O.06Lp - y B = 0 . 8 ~ ~
  • 178.
    167 Figure 6.41 -Abaque de calcul des cartictéristiques d'une petite chute /' -cprofondeur cri t i q u eYc - - /' q = Q / L 1
  • 179.
    168 4 -LES BARRAGES- POIDS EN BETON 4.1 - ACTION DE L'EAU 4.1.1 - Poussée de Peau et des sédiments L'action de l'eau se manifeste d'abord par la pression qu'elle exerce directement amont de l'ouvrage. sur le parement A une profondeur z, la pression hydrostatique est : Pe = ywz où yw = poids volumique de l'eau. La poussée résultante Pe s'exerce au tiers inférieur de la hauteur de la retenue H, et a pour valeur : Figure 6.42 - Poussée d'eau b : avec déversement Lorsque l'ouvrage déverse avec une charge h, le diaçramme des pressions prend la forme d'un trapèze et la poussée totale devient : s'exerçant au centre de gravité du trapèze. La composante de pression de l'eau s'écoulant au sommet n'intervient pas. Dans les déversoirs à profil normal, on ne tient pas compte non plus de l'eau s'écoulant sur le parement aval, ni de son effet stabilisateur.
  • 180.
    169 yw = 10O00 N/m3 pour une eau pure. yw peut atteindre 11000, 12000 voire 13000 N/m3 pour une eau chargée de particules en suspension. Lorsque un dépôt de vase se forme au droit de l'ouvrage ou lorsqu'il s'agit d'un barrage de restauration des terrains en montagne, le poids volumique global de la vase ou de la boue peut être considérable : 16000 à 19000N/m3. Si il y a une cumulation de sédiments en amont du déversoir d'épaisseur importante, il faut ajouter à la poussée hydrostatique une poussée des terres horizontales yi = poids volumique immergé des sédiments en Newtodm3 (en première approximation, la valeur de 10 O00 N / d peut être prise) h = épaisseur de la couche de sédiments en m 41 = angle de frottement interne des sédiments (coinpris entre 15 et 30°, 30" étant une première approximation) PT s'exprimeen Newton par mètre de largeur ;comme pour l'eau, le diagramme de répartition est triangulaire, la poussée s'exerçant au centre de gravité. Figure 6.43 - La poussée des sédiments saturés s'aioute ii 1a poussée hvdrostatiaue , .
  • 181.
    170 4.1.2 - SousPressions Quelle que soit la qualité du sol ou du rocher de fondation, il s'établit toujours une circulation d'eau. Cette eau est à l'origine des sous-pressions. Si le sol de fondation a globalement un comportement hydraulique homogène et isotrope, l'étude de l'écoulement homogène et des sous-pressions peut être faite par application de la loi de DARCY, par analogie électrique ou par calcul numérique sur ordinateur. La sous-pression décroît régulièrement de l'amont vers l'aval de l'ouvrage, avec comme valeurs limites les hauteurs d'eau à l'amont et à l'aval si iW= 1. On remarque qu'une approximation linéaire de la sous-pression est parfaitement justifiée. Figure 6.44 - Sous-uressions Lignes d'bcouiernent sous l'ouvrage rw'-J----/ Sous-pressions
  • 182.
    171 La prise encompte des sous -pressions se fera en choisissant l'un des diagrammes ci-dessous correspondant à l'une des hypothèses suivantes : - Diagramme a : les fondations hétérogènes et anisotropes ne sont pas traitées. II peut exister des fissures en communication avec l'amont du barrage qui ne débouchent pas à l'aval. La sous-pression s'établit alors sous tout l'ouvrage avec une valeur constante correspondant à la charge amont. - Diagramme b : les fondations homogènes et isotropes ne sont pas traités. On admet qu'il y a circulation d'eau d'amont en aval avec perte de charge linéaire. La sous-pression décroît linéairement de la valeur yw H, charge aval. - Diagramme c : les fondations homogènes sont étanchées par un rideau d'injection ou tout autre coupure étanche en amont, qui entraîne une perte de charge amont importante. Les sous-pressions décroissent linéairement d'une valeur amont yw[h +/i(H- h)] à une valeur aval yw h. On admet en général h = X . - Diagramme d : les fondations homogènes et étanches sont drainées à l'aval de l'organe d'étanchéité. On admet en général que le drainage est efficace à 50?6 et que, au niveau du drain, la sous-pression tombe à la valeur ;yw - h) =-yw(H + h) 1 : Les diagrammes correspondant aux cas a et b sont rarement observés en fait. Les cas c et d sont ceux qui correspondent le mieux aux mesures qui ont pu être faites. Il faut noter toutefois que ces mesures ont été réalisées sur des ouvrages bien conçus et bien réalisés.
  • 183.
    172 Figure 6.45 -Diagrammes des sous-pressioris c a A C b
  • 184.
    173 Remaraue Si du faitde la porosité du béton ou de fissures, l'eau pénètre à l'intérieur de l'ouvrage, il s'y établit des sous-pressions dont la répartition peut se faire suivant un diagramme de type a. Ce phénomène est particulièrement dangereux pour la pérennité de l'ouvrage et doit être évité. 41.3 - Autres Formes de l'action de l'eau - Affouillement en aval - - Actions chimiques - Actions thermiques. Erosion des parois du béton si eau chargée de particules dures 4.2 - ACTION DU POIDS PROPRE DU BARRAGE Elle participe à la stabilité de l'ouvrage. 11 convient par conséquent d'évaluer le poids volumique du béton que l'on est assuré d'atteindre à la mise en oeuvre. En général, on peut compter sur un poids volumique de 24000 N/m3. 4.3 - ACTION DES SEISMES Les secousses telluriques provoquent des vibrations dans les ouvrages d'art, c'est-à-dire des accélérations variables qui se combinent a celle de la pesanteur. Ainsi, le poids propre de l'ouvrage, l'action de l'eau et les caractéristiques des fondations s'en trouvent modifiés. A l'instar des calculs en la matière pour les bâtiments, on peut considérer que les séismes ont pour effet de réduire la pesanteur de O à 30% et d'y ajouter une composante horizontale kg, kg compris entre O et 0.2 g. WESTERGARD a calculé la suppression hydrostatique ( A R à une profondeur z sous l'effet d'un séisme provoquant une accélération horizontale kg. 1 ap=o.S75 kJHZ 1 aP(m> H(m) = hauteur maximale du barrage Pour un parement amont incliné de 0 par rapport à la verticale, AP doit être multiplié par cos 8 . [TI n'y a pas lieu de faire appel à des formules plus compliquées vu l'incertitude sur le choix de kl. . O !
  • 185.
    174 4.4 - VARIATIONTHERMIQUE -RETRAIT ET GONFLEMENT DU BETON Ces phénomènes se traduisent par des variations dimensionnelles (élongation ou contraction) qui, si elles sont gênées, provoquent l'apparition de contrainte supplémentairedans le béton. Il peut en résulter des fissures. La conception des ouvrages, les techniques d'exécution et certainesprécautions particulières en réduisent les effets. Coefficient de dilatation thermique du béton : 7 à 14 p/nd0c 5 - ETUDE DE STABILITE DES BARRAGES POIDS EN BETON L'étude de stabilité des barrages poids en béton concerne l'équilibred'ensemble de l'ouvrage. L'ouvrage doit résister au glissement sur la fondation et au renversement, de même que sa stabilité interne (résistance aux contraintes développées dans sa masse doit être assurée. 5.1 - Stabilité au glissement Les forces horizontales (D)telles que la poussée de l'eau et des terres qui s'exercent sur le barrage tendent à le déplacer vers l'aval. La résistance a ces forces horizontales est offerte par les fondations grâce à leur cohésion (c) et à leur coefficient de fiottement (tgcp). En général on néglige la cohésion car c'est une caractéristique variable et aléatoire dont la pérennité en milieu saturé n'est pas assurée. Figure 6.46 - Diagramme des forces apissantes m La stabilité au glissement assurée si : T P Le coefficient de sécurité au glissement F est alors : On admet habituellement F 2 1 Si on tient compte également de la cohésion des fondations, le coefficient de sécurité au glissement devient : cs+C(w-u)tgq cp F= S = surface de glissement
  • 186.
    175 Dans ce cas,compte tenu de l'incertitude sur la cohésion, on adopte en Sénéral une valeur de F de 4 en fonctionnement normal ;et son vérifie que la valeur de F n'est pas inférieure à 2,s dans les conditions exceptionnelles. W = poids du barrage P = poussé de l'eau (et des sédiments) U = sous-pressions sous l'ouvrage. + Valeurs de tgq pour fondations sur sols meubles : - sable : 0.5 à 0.6 - silt : 0.4 - argile : 0.2 à 0.35 cp = angle de frottement sol-béton 4 angle de frottement interne du sol. 2/3 4 5.2 - Stabilité au renversement La cause d'une rupture par renversement est l'existence de forces horizontales suffisamment grandes comparées aux forces verticales pour amener, la résultante de toutes Ies forces agissant sur le barrage y compris les forces de sous-pression, en dehors des limites de la surface de base l'ouvrage. Lorsque la résultante s'approche du pied aval du barrage, les contraintes de compression dans le béton ausinentent rapidement. Ainsi, la rupture par renversement serait précédée et accélérée par une rupture locale par compression du pied aval de l'ouvrage. Figure 6.47 - Répartition des contraintes En fait, lorsque la résultante passe de façon appréciable à l'extérieur du tiers central de la section de base, une fissure horizontale de traction peut apparaître en amont, ce qui réduit considérablement la résistance au cisaillement et augmente la sous-pression. Une première approche de l'étude de stabilitéau renversement pourrait consister à calculer, par rapport au point B, les moments de forces appliquées(forces motrices et forces résistantes).
  • 187.
    176 - C(w-u)(1; ?) In B - b A On calculerait alors un coefficient de sécurité F définit par moments stabilisants Cmoments Renversants F = Si F 2 1.5, la stabilité au renversement serait assurée. Mais cette méthode parait illusoire puisqu'elle ne correspond pas à un mécanisme réel de rupture, celle-ci intervenant avant que ce rapport atteigne la valeur unité. C'est pourquoi le calcul de stabilité au renversement doit être conduit de façon à évaluer la réaction des fondations et à vérifier qu'elle est compatible avec les caractéristiques du sol de fondation et du béton. Des méthodes de calculs numériques élaborées basées sur la théorie des éléments finis ou des différences finies existent, mais pour les barrages de moyennes et petites dimensions et même pour les grands ouvrages ne présentant pas de dificultés particulières, il est fait appel à des méthodes moins complexes : On suppose que la réaction des fondations est linéairement répartie sur la surface d'appui. Cette hypothèse tient compte du comporteinent ilastique du béton et des fondations. Si e est l'excentricité du point d'application de la résultante des forces appliquées à l'ouvrage par rapport au centre de gravité G de la surface de base S considérée, en un point situé à une distance y de G la valeur de la contrainte normale ny est donnée par la formule de résistance des matériaux. nv = contrainte normale 1= moment principal d'inertie Si on calcule par tranche d'ouvrage d'1 in on a : On en déduit : D'autre part si on impose que la contrainte normale reste positive (pas de traction) on retrouve la règle classique du tiers central.
  • 188.
    177 La règle dutiers central est satisfaite si : -- IeI- ;e = excentricité du point du point d'application de la résultante R.b b . 6 6 1REGLE DU TIERS CENTRAL 5.3 -Remarque sur les sous-pressions Lorsque le diagramme des sous-pressions est linéaire entre l'amont et l'aval, on peut calculer les contraintes en négligeant les sous pressions puis en les retranchant en tout point pour retrouver la contrainte effective. Toutefois, ce calcul simplifié n'est valable que si la contrainte normale due au poids de l'ouvrage et à la poussée de l'eau est en tout point supérieure à la sous-pression (n>u> Si la sous-pression en A est supérieure à la contrainte due au poids du barrage et à la poussée de l'eau (UA > nA), on calcule selon l'hypothèse qu'une fissure se forme en A et s'étend vers l'aval jusqu'au point où la contrainte normale due au poids du barrage et à la poussée de l'eau est égaie à la sous-pression qui s'exerce au pied amont du barrage. Dans cette fissure on a une sous-pression amont (UA). Le diagramme des contraintes se construit comme ci-dessous Diagramme théorique des contraintes sans tenir compte des sous-pressions : Fig.6.48 Réiwrtition des contraintes A O B Diagramme des sous-pressions sans fissure amont : UA> "A Diagramme des contraintes effectives avec fissure ouverte suivant AD : . . O '
  • 189.
    178 Diagramme des contrainteseffectives avec fissure ouverte suivant AD : En D : nD = UA - e Cw - Excentricité : e' = -Longueurcomprimée: b' = 3(: - et) CW - upyb + UA I 2(cw - u, . b) - Contrainte en B : nB = b' 5.4 - Conduite du calcul La stabilité au glissement et la stabilité au renversement sont assurées dès que la réaction des fondations ne fait pas avec la verticale un angle supérieur à une valeur correspondant au coefficient de frottement du béton sur le sol de fondation et lorsque cette réaction, compte- tenu des sous-pressions passe par le tiers central de la fondation. De plus il faut vérifier que les contraintes normales ne sont pas trop élevées pour le béton (ce qui est en général réalisé pour les ouvrages de hauteur faible ou moyenne) et pour un bon sol de fondation (rocher). Pour des ouvrages de plus de 10 mètres, il faut systématiquement prévoir des dispositifs d'étanchéité et de drainage, ce qui apporte une sécurité complémentaire dont on peut modérément tenir compte dans le calcul (établissement du diagramme de sous- pression). L'adoption d'un talus aval de 0.7WlV à 1 W1V permet en générai de satisfaire les conditions ci-dessus.
  • 190.
    179 5.5 - Stabilitéinterne des barrages -poids Il s'agit de retrouver les contraintes dans l'ouvrage compte tenu des actions extérieures qui lui sont appliquées et d'éventuelles actions internes telles que les pressions interstitielles dans les fissures. On peut utiliser une méthode dérivée de la résistance des matériaux. Chaque tranche du barrage est assimilée à une poutre console verticale, encastrée dans les fondations. On détermine les contraintes dans des sections horizontales à partir des formules de la flexion composée. Figure 6.49 - Calciil de stabilité interne Pour une tranche de largeur - W b3ny - -+EX; I=- b I 12 ny = contrainte normale 1 in La méthode est approximative puisque d'une part les sections varient rapidement et que d'autre part la ligne moyenne n'est pas en général verticale. Les contraintes normales admissibles dans le béton doivent : - rester positives car le béton étant non armé ne peut supporter de traction, I - ne pas dépasser une certaine fraction de la contrainte à la rupture du béton à 28 jours 028 .
  • 191.
    180 - conserver unecontrainte normale sufisante au niveau du parement amont pour qu'en cas d'infiltration ou de fissure le calcul ne soit pas remis en cause. Pour cela Maurice LEVY a proposé que la contrainte nA reste toujours supérieure ou égale à la pression de l'eau au même niveau. Pour qu'il en soit ainsi, on vérifie la relation : r"A 2. - - En général r = 75 où yw = poids volumique de l'eau. YWH 100 ' Figure 6.50 :Calcul de la stabilité iiiteriie : cas d'une fissure ouverte
  • 192.
    181 D, 5.6 - Stabilitéau Doinçonnemeiit +On calcule la charge admissible du SOI : qadm 1 -y.b.N y 2u effet de la pesanteur = poids spécifique du sol. C = cohésion du soi + C" + y.D.Nq -7-Y -coheslon Profondeur (D=profondeur d'encastrement) C O S ( 7 d 4 - @/2) 2cos (n14 + # / 2 )N y = K p 2 Nq = e d g h g 2 ( d 4 + 412) Nc = (Nq - l)cotg@ 4= angle de frottement Kp = coefficient de butée donné par les tables de Caquot et kérisel correspondant à : Ir p = 0 ; A = -(--#/2) ; 3' = - 4 4 +On calcule la charge imposée au sol de fondation amax : qadm+On vérifie que - 2 1.5 Dmax
  • 193.
    182 1CHAPITRE VI1 1 Lesbarrages en terre peuvent être constitués par des matériaux de caractéristiquestrès diverses. Le terme "terre" couvre donc une gamme de matériaux allant de l'argile pure très fine à des éléments très grossiers. Dans certains cas, on utilise des roches altérées facilement compactablestels que des latérites, des schistes et grès tendre, etc. Les volumes de terre à mettre en oeuvre pour la construction d'un barrage en terre sont importants : - 20 000 à 100 000 m3pour les petits ouvrages, - des millions voire des dizaines de millions de m3pour les grands ouvrages. Le transport et la mise en oeuvre des matériaux constituent donc les éléments essentiels du prix de revient. Il existe différents types de barrages en terre : - barrage homogène ; - barrage à noyau ou à zones ; - barrage à masque amont ; - barrage à paroi moulée. (on se référera au chapitre 2 pour leur description). 1 - PRINCIPES DE CONCEPTION DES DIGUES DE BARRAGES La conception des digues de barrage devra répondre aux 7 critères suivants : 1. 3I . 3. 4. 5. La digue devra être sécurisée contre les surverses vis à vis des crues par l'aménagement d'un évacuateur de capacité suffisante. A cet aspect devra s'ajouter celui de la possibilité de vidange. Les pentes des talus doivent être stables pendant la construction, pendant la mise en eau et la mise en exploitation de l'ouvrage, ainsi que dans les cas de vidange rapide. La digue devra être conçue de manière à ne pas imposer des pressions excessives sur la fondation. Les infiltrations à travers la digue et le sol de fondation doivent être limitées et contrôlées de façons à éviter des risques de renard. La digue doit être sécuriséevis à vis de l'effet des vagues.
  • 194.
    183 6. Le talusamont doit être protégé contre le batillage (pompage des matériaux par l'action des vagues), la Crète et le talus aval seront protégés contre l'érosion due au vent et au ruissellement des eaux de pluies. 7. Si le barrage est dans une région sujette a des séismes, sa conception sera telle que le séisme le plus sévère, raisonnablement prévisible, n'endommage pas la fonction de ia structure. Fig. 7.1 :SCHEMAS DE PRTNCIPE DES BARRAGES EN TERRE .
  • 195.
    1s4 2 - ASPECTSGEOTECHNIQUES 2.1 - Choix des mtitéri;iiix Une reconnaissance à la tarière cî main ou avec un appareil de sondage permet de faire des prélèvements pour analyser les sols et délimiter l'étendue des éventuelles ballastières. 11 existe peu de sols qui ne puissent vraiment pas convenir pour la construction d'un barrage en terre ;mise à part les terres très organiques (tourbes) qui peuvent présenter des tassements très importants, et les terres contenant des éléments solubles dans l'eau (gypses, sel), les autres pourront en général être utilisées sinon pour un barrage homogène, du moins associées à d'autres dans un barrage à zones. On éliminera donc les terres contenant plus de 6 50 de niatières organiques (6 % en poids, la mesure étant faite par brûlage à i'eau oxygénée des Sléinerits organiques d'un échantillon qu'on a porté à ébullition dans de l'eau distillée) et celles qui contiennent du Lypse reconnaissable par sa couleur très blanche ou du sel reconnaissable à sa stnicture cristalline et à son Soût. 2.1.1 - Identification des terres : Les caractéristiques d'identification les plus iiiiportantes pour le choix du matériau de la digue sont les caractéristiques granuloinétriques cornplitees par les limites d'Atterberg précisant la nature de la portion fine des terres. On a une idée plus ou moins pricise de ces caractéristiques selon qu'on les mesures au laboratoire ou qu'on les estime par des tests rapides sur place. - Au laboratoire : La courbe granulométrique est tracée apres un tainisage et éventuellement une sédimentométri. Les limites d'Atterberg sont déterminées apres des essais norinalisés sur des éléments plus petits que 0,5 mm. Sur la base des dimensions granulométriques on définit dans la classification internationale : Cailloux Graviers Sables Sables fins limons ou silts arsiles ultra argiles 20 mm 2 inm 0,2 min 0,02 min 0,002 mm 0,0002 rnrn 300 11 30 j.l - p 0 2 p Une granulométrie étant rarement situ& entièrement l'intérieur de I'une des tranches g-ranuiométriques ou nommera un sol ''limon argileux" ou bien sable argileux ou etc. selon l'importance relative des divers constituants. - Les limites d'Atterberg renseignent sur la plasticité du sol c'est à dire sur l'étendue de la plage des teneurs en eau à l'intérieur de laquelle le sol remanié a un comportement "plastique" c'est à dire pâteux. L'abaque de plasticité de Cassagande définit une classification des sols fins au seul vu des limites de liquidité et de plasticité.
  • 196.
    185 Fig 7.2 -DIAGRAMME DE PLASTTCTTE DE CASSAGRANDE Utilisé pour la classification des sols fins et la fraction d’élémentsfins des sols grenus O a O n I O tA O . .
  • 197.
    186 - Tests dechantier : classificationdu Bureau of réclamations La granulométrie est jugée à l'oeil en séparant les éléments visibles à l'oeil nu des autres et dans ceux qui sont visibles à l'oeil nu, ceux qui sont plus petits ou plus gros que 5 mm, enfin en estimant la continuité de la granulométrie. . Pour les éléments fins on remplace les limites d'Atterberg par les tests : Secousse : On prend dans la paume un échantillon de sol saturé et on lui imprime des secousses ; la surface devient brillante. On écrase la boule entre les doigts : - si la surface devient immédiatement terne : pas de plasticité ; c'est un sable très fin, un silt, un sol peu plastique. - si la surface devient terne lentement : faible plasticité, limon moyennement plastique, argile si1teuse. - la surface ne change pas d'aspect : grande plasticité, sol argileux. Pour ces sols il a été dificile de faire apparaître la luisance de la surf'ace. Résistance à sec On pétrit une petite quantité de sol (1O çr) saturé. on le laisse sécher au soleil et on l'écrase entre les doigts : - s'il est presque impossible d'écraser l'échantillon : argile très plastique - si la résistance est faible : il peut s'agir d'un sable très fin, dans ce cas la surface est rugueuse I ou d'un limon dans ce cas la surface est douce. Plasticité On exécute des rouleaux de 3 rnm de diamètre puis on les remodèle pour faire une boule : - si le fil est résistant et ia boule facile à refaire le sol est très plastique - si le fil est fragile et le remodelage impossible : faible plasticité.
  • 198.
    157 - Classification Un tableaupermet ensuite de classer les terres ; on peut même ainsi définir un ordre d'aptitude pour les barrages parmi ces terres (cf classification). - D'autres grandeurs doivent être mesurées pour "identifier"véritablement une terre ;ce sont : La teneur en eau ; rapport du poids de l'eau contenu dans un échantillon de sol à son poids lorsqu'il est sec. poids dkau poids de sol sec W = Cette grandeur est intéressante à connaître en particulier pour le compactage. La masse volumique des grains de sol. 0 L'indice des vides e (volume des vides divisé par le volume des grains) ou la porosité (volume des vides divisé par le volume total).
  • 199.
  • 200.
    189 A partir dutableau de classification, on peut tirer le résumé suivant. Toutes les autres conditions étant les mêmes, lapèrménbililk est plus grande : - pour les terres à gros grains que pour les terres igrains fins, - pour les terres à granulométrie étroite que pour les terres à granulométrie étendue, - pour les terres légères que pour les terres lourdes. La résistance air cisaillement est plus grande : - pour les terres à gros grains que pour les terres à grains fins, - pour les terres à granulométrie étendue que pour les terres à grandornétrie étroite Le tassement est plus grand : - pour les terres à grains fins que pour les terres a grains plus gros, - pour les terres à grains ronds que pour les terres à grains anguleux, - pour les terres à granulométrie étroite que pour les terres à granulométrie étendue, - pour les terres légères que pour les terres lourdes. La dèizsiti est plus grande : - pour les terres à gros grains que pour les terres à grains fins, - pour les terres à grains ronds que pour les terres à grains anguleux, - pour les terres à ganulométrie etendue que pour les terres à granulométrie étroite, Quelques commentaires nratiques pour le choix des matérimx Les matériaux aptes à la construction des digues doivent avoir les caractéristiques principales suivantes : - Proportion d'éléments fins < O, 1 mm (tamis O,OS, module 20) comprise entre 20 % et 70 %. - Proportion d'éléments inférieurs à 0,05 comprise entre 10 % et 40 %. - Equivalent de sable inférieur à 40. - Perméabilité inférieure ou égale à 10-7rn/s après compactage. Qualité des matériaux selon I'USBR 1. Sols bons à excellents S.M. (Sables limoneux, mélange mal calibré de sable et de limon). S.C. (Sables argileux). 2. Sols moyens à bons S.M. et S.C. ;C.L. (argile peu plastique) Remarque : ** Pour ces sols, prévoir des protections superficielles soignées. . 4 *
  • 201.
    3. Sois moyensà passables M.L. (limons inorganiques, sables très fins, farine de rocher, sables fins limoneux à faible plasticité) C.M. (argile inorganique à grande plasticité) O.L. (limons organiques, mélanges de limons et argile organique à faible plasticité). Remarque : ** Ces sols présentent l'inconvénient de grands risques de retrait et de tassement. 4. Sols mauvais 4.1. GW, GP, SW et SP (graviers, sables, milanges et graviers et de sables peu ou pas fins) Remarque : * Ces SOIS donnent des massifs perméables. 4.2. MH, CH, OH (limons inorzaniques, sables fins ou limons micacés, argiles organiques a plasticité moyenne et élevée). Remarque : * Ces sois présentent de très forts tassements après mise en oeuvre. 2.1.2 - Influence des caractéristiques d'identification des terres sur leurs propriétés mécti niqII es OLI livdrodvII a111iq II es : 2.1.2.1 - La rierniéabilité: On sait que le coefzcient de perméabilité I< mesure l'aptitude d'un sol a se laisser traverser par l'eau. L'expérience montre que la vitesse fictive d'écoulement de l'eau dans le soi est proportionnelle à ce Ie long de I'écouiement (Darcy). On montre que A H coefficient K et au gradient hydraulique - A l l'expression de cette perméabilité peut s'écrire sous la forme : C : un coefficient de forme g : accélération de la pesanteur u : viscosité cinématique de l'eau ps : masse spécifique des grains de sol (peu variable d'un sol à l'autre) S : surface spécifique des gains (surface extérieure de l'unité de poids des grains). e : indice des vides. La perméabilité d'un soi est donc avant tout fonction de la surface spécifique des grains qui elle- même varie considérablement avec la diinension de ceux-ci : S est =rand pour les sols fins (S est inversement proportionnel au diainètre). Les argiles sont donc les sols les plus imperméables d'où leur utilisation coinme masques d'étanchéité dans les barrages. - L'indice des vides intervient aussi dans i'expression de cette perméabilité : un sol compacté e petit) est moins perméable qu'un sol Icîche. 1
  • 202.
    l I On nepourra utiliser un matériau pour une digue homogène que s'il contient un minimum de 5 à 10 % d'éléments plus petits que 0,08 mm ; pour le noyau d'un barrage à zone il faut un minimum de 20 à 30 % d'inférieurs à 0,023 mm. 2.1.212. - Résistance au cis:~illement La résistance maximum au cisaillement d'un sol obéit en Sénéral à 7 = c 4- O" tg$ 7: = Contrainte de cisaillement sur le plan sur lequel s'exerce la contrainte normale qI la loi de Coulomb : 7 C et 41 des caractéristiques intrinsèques du soi C est la cohésion et $ l'angle de frottement du sol. Dès qu'il existe un plan a l'intérieur d'un sol soumis a un état de contrainte homogène sur lequel la contrainte de cisaillement atteint la valeur T = c + ontg $, il y a glissement le long de ce plan. - La cohésion qui est due il'attraction des particules les unes vers les autres dépend de la dimension des particules ; en effet cette attraction est provoquie soit par les tensions capillaires que produit l'eau en contact avec les gains, soit par les phénoinènes d'attraction électriques entre l'eau et les grains. L'une et l'autre force sont d'autant plus fortes que les intervalles entre grains et donc les grains eux-mêmes sont plus petits. Une argile pourra présenter une forte cohésion (ordre du kg/cm2);un sable fin une très légère cohésion s'il est tiuinide, (ordre du grainmekm') ; un gravier n'aura jamais aucune cohésion. - L'angle de frottement est dli i la ruyosité de la siirface d'un sol : pour cisaiiler selon un plan il faut désenchevêtrer les grains : ce désenchevêtreinent est plus faciie pour les grains fins que pour les gros ; plus facile pour les grains ronds et lisses (galets roulés - torrents) que pour les grains anguleux (concassés) les angles de frottements pourront varier entre 35" et 50" seion le type de sol. NIobiIis;itioii de C et 4 m .
  • 203.
    192 ~~ - Mais ladifférence de résistance mécanique entre les diférentes terres provient essen- tiellement du fait que sur un sol saturé les caractéi-istiques intrinsèques C et 4 peuvent être mobilisées instantanément si les grains sont gros, elles ne peuvent être mobilisées qu'après un temps très Ions si les grains sont petits. En effet, dans ce cas, l'eau est emprisonnée entre les grains. si l'on exerce un effort à la surface d'un sol fin saturé toute diminution ou augmentation de volume du sol étant empêchée par la présence des grains et de l'eau incompressibles, l'effort se traduira ilninediatement par une supression dans l'eau qui ne se dissipera que lorsque l'eau aura pu etre suffisamment chassée pour que la pression de l'eau reprenne sa valeur d'équilibre. Sur un plan quelconque ii l'intérieur du massif si : - 0' est la contrainte qui s'exerce de grain à grain (intergranulaire) - u est la pression de l'eau (contrainte interstitielle) On appelle G telle que ci = 0' + CI la contrainte totale s'sserçant sur le pian. La loi de Coulomb déiinissant C' et 4'caractéristiques dites "intergranulaires" ne considère que les contraintes interminulaires (de gains il grains). r = C' + 0:: tS 4 = ci+ - t3 4' L'effort appliqué sur le sol entraîne à l'instant initial une modification A u de la contrainte interstitielle et aucune modification de la contrainte intergranulaire. Ainsi la contrainte de cisaillement rnaximuin. ir = C' f on'tg 4' n'a pas changé , elle va s'ainéliorer au cours du temps jusqu'à ce que la contrainte interstitielle soit redescendue il sa valeur- d'squilibre et que l'efort soit encaissé par les grains uniquement (O,' aura alors auginentee sa valeur de Au et T admissible de Au tg 4). C'est la raison pour laquelle un sol fin est plus fragile qu'un sol gros grains et pour laquelle aussi on définit pour les premiers des caracteristiques C,, et $x dites "apparentes" ou l'non drainées" et des caractéristiques C' et $' dites "intei-3ran"cilair-es"ou drainées. - Les caractéristiques apparentes C,, et (tli sont inesurées en et'fectuant un essai rapide (ou non drainé) à l'appareil de cisaillement ou au triaxial. Pour utiliser Cu et $u apparents il faut écrire la loi de Coulomb :
  • 204.
    Les contraintes O,,étantdes contraintes totales. - Les caractéristiques "intergranulaires" C' et $' sont mesurées en efectuant un essai (ou drainé) avec les mêmes appareils. La loi de Coulomb utilisant les caractéristiques C' et 4' devra faire intervenir les contraintes intergrandaires : 7 = C' + O"' tg4' C' varie de O pour un sol à gros grains à 1 ou 2 kg / cm2 pour une argile saturée surconsolidée. 4' entre 25" pour une argile à 45 - 50" pour un gravier concassé. Ordres de grandeurs : C . varie entre O et quelques kg/ cm' pour une argile 9, varie entre O" ( q i l esaturée) et @ pour les sols plus gros. 2.1.2.3 - Compressibilité : Sous l'action d'une charge les grains d'un soi modifient légèrement leur arrangement, il s'ensuit un tassement dont l'importance dépend de la nature du sol. D'autre-part, comme pour la résistance au cisaillement le sol, s'il est fin, présente un tassement instantané (correspondant à un comportement non drainé) et le tassement diRéré qu'on appelle "consolidation''. Cette distinction ne se justifie pas pour les sables et graviers puisqu'elle est due a l'apparition des pressions interstitielles sous la charge et à leur dissipation dans le temps. On itudie les tasseiiients i l'aide de l'essai oedoinétrique qui permet de définir : A 0 Le module oedométrique E , = - - "h<, A c L'indice de compression c_= - dans la partie linéaire de la courbe e = f(log O) A Log 0
  • 205.
    193 . , ._. . . ... . . Fig 7.3 : Courbes oedornétriques - CEàomttre. -Essai ae compressibiiite. 1 l 0.1 1 l @ ! 10 100 1000 i o o o o seConoes contrainte v e r t i c a l e e n b a r s t e m p s U
  • 206.
    (N.B.) l'indice decompression et le module oedoinétrique sont liés : 1 f e Ec,= 2,3 O -- c; En dépit de la "souplesse" des barrages, les tasseinents doivent rester limités, des valeurs trop importantes pourraient provoquer des fissurations en particulier s'il s'agit d'un barrage à zones dont les terres ne tassent pas de la même façon. Les tassements peuvent être dus aux fondations de l'ouvrage, il y a donc lieu de reconnaître ces fondations, OU à la digue elle-même, on cherche à les réduire en effectuant un bon compactage. - Tassements des sols à gros crains : il ne s'agit là que d'un tassement instantané. L'importance de ces tassements et faible, la compressibilité des sables et graviers étant faible : les modules oedométriques sont rarement inférieurs à 500 bars dans ces sols. - Tassements des sols fins : L'essai oedométrique sur ces sols saturés permet d'étudier le tassement final à prevoir et la durée de ce tasseinent. On iitiiise ici plutôt l'indice de compressibilité C, ou pente de la courbe e = f(log G) pour prévoir. les tassements finaux. Skempton a trouvé une corréiation entre C, et la limite de liquidité WL: lCL = 0,009 ( 1 0 IV.- - IO) SKEWTON 1 Une argile est donc d'autant plus coinpr-essibleqiikliz est pliis plastique (WLgrand). Par ailleurs eile est d'autant plus compressible que sa teneur en eaii zn place est plus forte. L'étude du tassement en fonction du temps s'efYectiie aussi a I'oecioinètr-e. Le tasseinent instantané pour les argiles ne représente qu'une petite partie du tassernent tinal ct de toutes tàçons il n'est pas dangereux puisqu'on peut le "rattraper" en cours de construction. 11 est par contre intéressant de limiter au minimum le tassement qui se produira iiitSrieiirement. c'est la raison pour laquelle il arrive que l'on réalise des remblais plus hauts que prévus qii'on arase après un certain temps, a la côte définitive. . % 2.1.2.4 - Goriflenient - retrait : Dans les sols fins l'eau occupe les intervalles tres petiIs entre grains ; la tension capillaire dans ce cas est importante , au cours du séchage les filets liquides se séparent, les courbures des ménisques augmentent et la tension capillaire croit ; tout se passe comme si, à égalité de tensions capillaires la pression extérieure appliquée au sol avait augmenté de la grandeur Ap : 3 il y a diminution du volume ; c'est ce qu'on appelle le retrait. Celui-ci se manifeste donc particulièrement dans les zones exposées à l'air les zones plus proibndes n'étant pas soumises à la dessiccation. Ainsi if y a retrait en sudace et pas en masse : des fissures apparaissent qui peuvent cûinpromettre un ouvrage si elles sont importantes. Le gonflement est le phénomène inverse qui se manifeste a l'humidification des sols fhs. Le retrait et le gonilement peuvent se mesurer ci la. variation de l'indice des vides : . O étant la pression initiale avant ia variation de la pression capillaire. Ae est donc d'autant plus important que G est faible (proche de la surface) et que C est jrand. C est équivalent un indice de compression mais est mesuré au gonflement sur un échantillon que l'on porte à saturation. C'est le coeficient de gonflement. Il est prudent de se limiter a des valeurs de C inférieures à 0,07 pour 8 '
  • 207.
    l'utilisation dans lesbarrages en terre. La encore les terres les plus gonflantes et qui présentent le plus de retrait sont celles ayant le plus fort indice de plasticité. D'après Seed, une argile compactée à l'optimum (Proctor standard), sonflera de : 3 'Yh si soli IP = 30 9 II 1 4 II = j() = 4020 II 11 11 32 O/, 1) 1) II = j() 2.1.2.5 - Ailtitiide ;LI cornptictaee : Le compactage de la terre (équivalent à un écrouissase) a pour but d'améliorer toutes les propriétés mécaniques de celles-ci : augmentation de la col~ésionet de l'angle de frottement, diminution de la compressibilité, diminution de la perméabilité etc. Afin de tirer parti de cette possibilité d'amélioration on choisira entre deux terrains, comparables par ailleurs, celui qui prête le mieux au compactage. - Les sols dont la granulométrie est coinprise dans les hseaux granulométriques de TALBOT présentent cet avantage. P D,,,,, : dimensions des particules les plus grosses de I'ichantillon r : pourcentage en poids des grains dont le diamètre est infirieur à D. : coetkient compris entre 0,35 et 0,40, ces deus i*aleursdéfinissant deux granulométries qui sont les limites du fuseau. Cette condition n'est pas impérative, un sol qui s'écarte du &seau peut convenir s'il présente par ailleurs des caractéristiques suffisantes. Fig 7.4 : Frise:iri de Talbot Plus simplement, on peut définir un coeflicient d'uniformité ['A,")minimum pour qu'un sol puisse se compacter correctement. Cette valeur est voisine de 50. Les terres trop plastiques sont ii éviter car elles se compactent difficilement tout en exigeant souvent beaucoup d'eau. On a intérêt i.i se limiter à des valeurs de Tp < 15.
  • 208.
    197 2.2 - Lecompactme 2.2.1 - Raopel des essais Proctor : on sait qu'un compactage est particulièrement efficace pour une certaine teneur en eau de la terre. Préalablement a une opération de compactage une étude au laboratoire doit préciser la valeur de la teneur en eau et de la densité sèche que l'on doit obtenir. Cette étude est réalisée au moyen des essais Proctor. On réalise un compactage sur la portion fine (< 5 mm) des terres dans un moule cylindrique au moyen d'un pilon tombant d'une hauteur fixée. Ce compactage est réalisé sur la même terre pour différentes teneurs en eau. Par pesage et séchage en détermine après coup la densité sèche et la teneur en eau correspondant à chaque compactage. Aux faibles teneurs en eau, l'eau est en quantité insuffisantepour jouer convenablement son rôle de lubrifiant, aux fortes teneurs en eau, elle s'oppose à la diminution du volume de la terre car elle occupe une proportion trop importante du volume des vides. Fig 7.5 : Courbes Proctor 4, a I li ! O 5 10 1s 20 25 Teneur en eou W% On peut faire le même essai pour différentes valeurs de l'énergie de compactage, les courbes ont l'allure indiquée par la figure : plus l'énergie de compactage est forte, plus la teneur en eau ''optimum'' est faible et bien sûr plus le poids spécifique optimum est grand. Les courbes expérimentales sont limitées à droite par la courbe "de saturation" correspondant au sol dont tous les vides sont occupés par l'eau ; la zone limitée au dessus de cette courbe est inaccessible. L'expression de cette courbe est : Y s 1 + a w Y W Y Yd = avec ys ?d W poids spécifique des grains poids spécifique du sol sec teneur en eau du sol. Il existe deux normes de compactage au laboratoire : la norme "Proctor standard'' et la norme "Proctor modifiée" qui définissent deux énergies de référence. Les cahiers des charges exigent en général des entrepreneurs qu'ils obtiennent après compactage une densité sèche supérieure ou égale à 95 YOde celle qui correspond à l'optimum Proctor (l'un ou l'autre). . I .
  • 209.
    198 2.2.2 - Influencedes cailloux sur ia densité sèche : On réalise l'essai Proctor sur des échantillons de sols débarrassés de leurs gros éléments, pour la commodité de l'expérimentation ; on élimine en effet tous les éléments plus gros que 5 mm. De la sorte on étudie la portion la pius fine c'est à dire la plus importante puisque c'est elle qui détermine les caractéristiques essentielles du mélange. Toutefois la présence des cailloux a tendance à augmenter la densité sèche et il est intéressant de connaître comment. Soit yi la densité sèche de la terre fine (< 5 mm) obtenue à l'optimum Proctor. Soit y2 la densité sèche des cailloux seuls. Cette mesure peut être obtenue par exemple en remplissant un volume connu et en pesant ce volume. Il n'est pas nécessaire de compacter, le compactage a un effet assez réduit sur les blocs seuls. Si l'on suppose que dans les cailloux seuls on ajoute de la terre fine, celle-ci pourra se loger dans les vides laissés entre grains jusqu'à les avoir tous remplis. Ainsi la densité du mélange n'aura pu qu'augmenter depuis y2 jusqu'à une valeur maximum après laquelle rajouter de la terre revient à augmenter le volume du mélange. La densité du mélange -yrn est donc limitée à une valeur maximum qu'on peut calculer en supposant que tous les vides sont occupés par la terre fine coinpactée à sa densité ; J ~ l + e / 3 ' / l l + e Terre fine Caiiloux K
  • 210.
    199 Dans ce casla proportion maximum de cailloux est égale à avec e = - - 1Y S m = ys + e YI Y2 exemple : ys = 2,6 yi = 2 3 y, = 1,73 t r nY = 2,4 pourm = 72 % On admet en général une loi de proportionnalité du type : Yi . Ys Tant que m la proportion en poids des cailloux est faible, inférieure à la valeur calculée précédemment. En fait, tant Quecette proportion reste inférieure à 1/3 environ l'ensemble possède les Dropriétés mécaniques de la portion fine seule, au delà les propriétés changent et il est bon dans ce cas d'étudier le mélange et non la seule portion fine.
  • 211.
    216 Cette loi s'exprimedonc par la relation : V est la vitesse fictive ou vitesse de DARCY Elle est inférieure à la vitesse réelle car dans la loi de Darcy, on suppose que l'eau occupe la totalité du volume de l'échantillon, alors qu'elle n'occupe en réalité que le volume des vides, soit une fraction n < 1 (porosité) du volume total. La vitesse réelle est donc de l'ordre de -V > V. n K la perméabilité du sol. C'est une grandeur homogène à une vitesse. La loi de Darcy montre d'autre part que la vitesse de l'écoulement est proportionnelle à la perte de charge. L'écoulement de l'eau dans le sol est donc un écoulement laminaire. 5.1.2. Equations du mouvement de l'eau dans un sol isotrone. L'étude de l'évolution de la charge le long d'un échantillon homogène de sol montre qu'elle varie linéairement d'une extrémité à l'autre de l'échantillon. Si on appelle alors dH la variation de charge A Hest constant et égal à - d H pour une variation dl de la longueur de l'échantillon, le rapport - Ce rapport est appelé le %radienthydraulique i. d l A 1 ' . - 1=- H , le signe - rappelant que H diminue dans le sens de l'écoulement. dl - On peut exprimer ce gradient hydraulique sous forme vectorielle i= - grad H La loi de DARCY peut donc s'exprimer sous forme vectorielle : - - V=Ki = - KgradH Le milieu étant saturé, l'eau étant incompressible, l'équation de continuité dans l'eau s'écrit : div v=O div (- K grad H) = O Q div ç r d H = OSoit c'est à dire 1 A H = O 1 v2 P V2 2g P g 2 .q ou encore, puisque H = -+-+z et que dans un sol - est très faible et peut être négligée, P P g A ( - + z ) = O La charge de l'eau dans le sol est donc une fonction harmonique. Elle sera donc entièrement déterminée quand les conditions aux limites seront fixées.
  • 212.
    217 5.1.3. Equations dumouvement de l'eau dans un sol anisotroDe On se limitera ici à une anisotropie due à la structure stratifiée du sol. C'est une hypothèse qui s'accorde bien avec l'étude des remblais compactés, puisqu'il arrive que cette anisotropie apparaisse à la suite du compactage par couches horizontales successives. 5.1.3.1. Perméabilité horizontale d'un sol stratifié On considère un sol constitué de couches horizontales superposées, de perméabilité et d'épaisseurs différentes. On va chercher a définir une perméabilité horizontale moyenne Kh pour cette série de sols. Fig. 7.12 - Perméabilité horizontale dans un sol stratifié. H ?- I1 iI y -'/v, X lm -Y En admettant que le débit s'écoule horizontalement à travers une largeur de couches, on pourra écrire : Q = QI + 42 +......+ Qn soit Q = VIH,+ V2H2 + ... + VnHn (X 1 m) Comme l'écoulement a lieu parallèlement dans toutes les couches, le gradient même. On peut donc transformer l'expression ci-dessus comme suit : Q= K, i H, +K, i H2 +.....+K, i H, Q=i(K,Hl+K, H2+ .....+ KnH,) Or la perméabilité horizontale Kh est telle que : donc soit KI HI +K, H2 +........+Kn Hn i K h = H 1 m des différentes hydraulique i est le .
  • 213.
    203 3 - DTMENSTONNEMENTDESDTGUES DE BARRAGE 3.1 - Aspects tonoeraphiques et hydrauliques 3.1.1 - Hauteur de la digue (El Dans le langage courant la hauteur du barrage (E) est égale à la hauteur normale de retenue des eaux (P) majorée de la charge maximale au-dessus du déversoir de crues (h = 1.5 m, maximum pratique h = 1.20m) et de la revanche (R). La hauteur totale du barrage serait la hauteur E définie ci-dessus augmentée de la profondeur de traitement des fondations. Fig 7.6 :Hauteur d'une digue deversoi&ass in dissip 3.1.2 - Plan d'eau normal (PEN au niveau de retenue) Le plan d'eau normal (hauteur de retenue normale) est calculé selon la capacité utile à stocker pour satisfaire tes objectifs et les pertes. On prend en compte une tranche morte en fond de retenue pour emmagasiner les dépôts. Cette tranche devrait intégrer aussi la notion de volume sanitaire et de stock de sécurité (éviter d'assécher la retenue et assurer la continuité d'approvisionnement des hommes et du bétail). La tranche morte pourrait être prise de l'ordre de 1 à 2 mètres ou quelques fois moins sur les ouvrages de moins de 5 mètres de hauteur. 3.1.3 - Niveau des plus hautes eaux (PHE) Le niveau des plus hautes eaux (PHE) est égal au niveau de retenue normale augmenté de la lame d'eau au déversoir compte tenu de l'effet de laminage. 3.1.4 - Revanche (R) La revanche libre (R) est une tranche comprise entre le PHE et la Crète du barrage. Le calcul de la revanche tient compte de la hauteur des vagues qui se forment sur le plan d'eau et la projection de l'eau vers le haut du barrage due à la vitesse de propagation des vagues lorsque celles-ci rencontrent le barrage. .
  • 214.
    202 Densitomètre à membrane: même technique de prélèvement de la terre ; le volume du trou est mesuré en appliquant une membrane de caoutchouc le long des parois du trou par une pression d'eau que l'on injecte au moyen d'un piston. La tige du piston est graduée. Le densitomètre est appliqué avant que l'on ait pratiqué le après avoir creusé le trou : le piston note un volume Vl : ( i l rn,trou : la tige du piston note un volume V, ; il est appliquée 3 h m cl iY F84UaI Salen e cbitm n- ï deRnrknmrc.u-n - 4 H c r n b u rv n a ~ rsoupk - 5 Eiu v1- vo est le volume du trou .Certains contrôles indirects de la compacité sont possibles. Ainsi l'aiguille Proctor qui a été très employée par les Américains ; elle consiste en un petit pénétromètre auquel on transmet l'effort manuel exercé sur un piston par l'intermédiaire d'un ressort dont le raccourcissement mesure l'effort appliqué. On enfonce l'aiguille de 1 cm sans utiliser le piston puis on le fait pénétrer d'environ 8 cm en six secondes dans le nécessaire. Cet effort divisé par la section de l'aiguille .,1.1,. -fi_.I.... remblai en effectuant la mesure de l'effort maximum donne la résistance à la pénétration de la terre. Il est nécessaire d'associer à cette mesure, celle de la teneur en eau du remblai, la valeur de la résistance à la pénétration du sol étant beaucoup pius forte sur les terres sèches que sur les terres mouillées ; la teneur en eau doit être celle qui est prescrite pour le compactage, la résistance à la pénétration voisine de celle que l'on a mesuré au Laboratoire dans le moule Proctor après compactage à la teneur en eau optimale. 7- Cette méthode exige que l'on ait aiTaire à un sol fin, la présence de cailloux rendant impossible son utilisation. C'est là une sérieuse limitation à la méthode.
  • 215.
    20 1 2.2.4 -Exécution et contrôle du comptictnee 2.2.4.1 - Eneins de compnctaee et exécution du corngnctage Le compactage est réalisé sur le chantier au moyen d'engins qui sont capables de fournir une énergie voisine de celle du Proctor modifié. - Les rouleaux lisses conviennent pour le compactage des sols durs mais leur l'effet ne s'étend pas prof0ndément. - Les rouleaux à pieds de moutons dont la surface comprend des poinçons qui pénètrent dans le sol réalisent de très fortes pressions en contact. Ces appareils conviennent bien pour le compactage des barrages homogènes ou pour compacter un noyau d'argile car ils sont bien adaptés aux terres cohérentes c'est à dire légèrement plastiques comme il est nécessaire pour les barrages. 11s ne conviennent pas pour les sables. - Les rouleaux à pneus : ils sont très lourds et permettent d'atteindre des profondeurs plus importantes pour le compactage. Ils conviennent pour tous les matériaux sauf les sols pulvérulents. - Les plaques vibrantes : pour les sables et iniiieux pulvérulents. On associe parfois rouleaux et vibrations -+ rouleaux vibrants. - Le pilonnage : c'est un type de compactage qui se répand. On l'utilise principalement pour compacter les zones proches des inaçonneries (bajoyers de déversoir par exemple) là où les gros engins ne peuvent parvenir : l'appareil est la "grenouille sauteuse". On effectue en général un essai de compactage sur une aire d'environ 5 m x 20 m avant d'attaquer le chantier, afin de définir le nombre de passes d'engins et l'épaisseur des couches à répandre avant compactase. Cette épaisseur dépend du type de compacteur et de la terre. On cherche à obtenir des couches qui une fois compactée mesurent 15 cm. Le nombre de passes doit être tel que la densité sèche obtenue soit celle que l'on s'est fixé comme limite inférieure (optimum Proctor par exemple). Il s'agit ensuite de s'assurer que la digue est coinpactée partout selon les normes retenues, donc de contrôler le compactage. 2.2.4.2 - Contrôle iiri cornpacttiee - Le contrôle le plus important consiste a vérifier que le compactage est bien réalisé ainsi qu'il a été prescrit : nombre de passes des engins, ipaissecir des couches teneur en eau de mise en place (au chantier on la mesure directement en séchant la terre par brûlage à l'alcool ou par passage à la poêle). - Le contrôle direct de la compacité doit ètre erectué de temps en temps. Il convient à mesurer la densité sèche du matériau compacté. Méthode au sable : on réalise un trou dans la digue compactée (30 cm de profondeur p.e.). On pèse la terre retirée et on mesure sa teneur en eau et le poids sec. On remplit ensuite le trou d'un sable sec bien calibré avec une technique de mise en place normalisée (à l'entonnoir sans chute libre) qui dispose le sable à la densité d connue si m est la masse de sable nécessaire pour remplir le trou, son volume est v = m/d.
  • 216.
    200 2.2.3 - Choixde la teneur en eau de compactage L'essai Proctor définit une teneur en eau optimum qui permet le meilleur compactage ; on, choisit cette teneur en eau pour les ouvrages de petites dimensions ou pour les terres pas trop fines. Dans le cas des ouvrages importants, la surcharge provoquée par le remblai provoque un tassement des terres qui en diminuant l'importance des vides peut amener la terre à la saturation et provoquer des pressions interstitielles dangereuses pour la stabilité de l'ouvrage ; on devra alors choisir une teneur en eau inférieure à la teneur optimum de compactage. En effet, on peut calculer la pression interstitielle dans un sol qui subit une compression Av au moyen de la formule de Hamilton : v a + f v e Hamilton Pa : pression initiale de l'air (pression atmosphérique) Va : volume initial de l'air contenu V, : volume de l'eau f : coefficient de solubilité de l'air dans l'eau (0,02 à 7OOC) AV : variation du volume total. On réalise des essais oedométriques sur des échantillons à teneur en eau différentes, inférieures à celle de l'optimum, les charges appiiquées étant celles que provoquera le remblai. La variation AV de volume mesurée permet de calculer ainsi la surpression u qui sera provoquée. On choisit alors fa teneur en eau de compactage telle qu'elle ne provoque pas de pression interstitielle dangereuse. (La teneur en eau de compactage sera donc plus faible pour les couches inférieures que pour les couches supérieures). En fait pour les petits barrages on cherchera à utiliser des teneurs en eau inférieures de 1 % à ceIle de l'optimum.
  • 217.
    215 5. INFILTRATIONS ETHYDRAULIQUE INTERNE Les problèmes d'étanchéité d'un barrage se situent en général à trois niveaux qu'il convient de bien distinguer : - l'étanchéité de la cuvette, - l'étanchéité du corps de remblai, - l'étanchéité de la fondation et des rives qui assure la liaison entre les deux précédentes. Il s'agit ici d'analyser les conditions d'étanchéité des corps de remblai, en partant du constat que les infiltrations peuvent provoquer trois types de phénomènes préjudiciables à la bonne tenue de l'ouvrage : - des hites d'eau, souvent inévitables, mais qu'il convient de limiter afin qu'elles n'engen- drent pas de problèmes plus graves. - des sous-pressions qui sont en général défavorables à la stabilité des ouvrages (déversoirs en particulier) - si l'eau débouche sur le talus aval dans des zones peu ou pas aménagées, le gradient hydraulique peut avoir une valeur telle qu'une érosion régressive prenne naissance et creuse une sorte de tunnel : c'est le phénomène de renard qui menace gravement la survie même de l'ouvrage. 5.1. Rappel des équations du mouvement de l'eau dans un soi 5.1.1. La loi de DARCY La loi de DARCY montre que la vitesse d'un écoulement a travers un milieu poreux est proportionnelle à la perte de charge entre deux sections quelconques de cet écoulement et inversement proportionnelle à la distance A 1 qui sépare ces deux sections. Le schéma suivant représente l'expériencede DARCY. Fig 7.11 - L'expérience de Darcy .
  • 218.
    214 4.3 - LaCrête II est nécessaire de protéger la crête pour lutter contre la dessiccation mais aussi pour assurer la circulation éventuelle d'engins. On a l'habitude de mettre en oeuvre une couche de couronnement d'au moins 20 cm d'épaisseur en matériau graveleux (latérite par exemple). Pour se prémunir contre l'érosion de la crête par prolongement (recul) des griffes d'érosion sur les talus, mais aussi pour assurer une évacuation des eaux de ruissellement de la Crète du barrage vers l'amont (côté retenue), on met en place deux murets de crête. Les murets de crête sont construits soit en maçonnerie de moellons, soit en béton ordinaire coulé sur place ou exécuté des sections carrées de 40 ou 50 cm de côtés. Fig. 10 - Protection de la crête - Murettes de crêje 1 en maçonnerie i de moellons 1 :budiedecouronnement)1' 1 I -- 1 i - Murettes de crête i (budiedecouronnement) en béton , /---------.1 / 1 ' Remblai cqmpacte corps de digue
  • 219.
    213 4.1.4 - Autreprotection dii talus amont :technique du ciment compacté Fig 7.9 - Protection amont en sol-ciment Soi ciment, compact Une protection possible du talus amont peut consister en un traitement du remblai au ciment sur une épaisseur de 0,6 m à 1 in le long du parement amont. C'est une technique américaine. Quoique les dosages en ciment doivent etre assez importants (6 i 12 YOdu poids de terre traitée), cette solution peut se révéler intiressante dans les zones où l'enrochement est cher ou inexistant. On réalise une série de couches horizontales de sol-ciment compacté de 2 à 3 in de large. Le ciment est répandu sur la couche de terre a coinpacter et le mélange terre-ciment est réalise par malaxage au ROTAVATOR avant corripactage. Le compactage se fait de la m&ne façon que les couches du massif. Le talus est nivelé après coinpactage. Pour tenir compte des sous-pression en cas de vidange, ii est recoininandé de placer un drain (filtre) entre le massif du barrage et Ie sol-ciment. 1.2 - Le talus aval Longtemps, on a recommandé I'enherbement. Pour des barrages de grande hauteur, cette technique est associée à des risbernes (terrasses) . Dans les zones arides ou semi-arides, l'enherbement est détruit pendant la saison seche. ce qui fragilise la protection à l'arrivée de la prochaine saison de pluies. Par ailleurs I'enherbement attire le betail. ce qui peut constituer aussi des causes de dégradation de la digue. Actuellement pour les petits barrages de hauteur superficielle inférieure ;Z 10 m les revêtements en matériau graveleux latéritique légèrement tasse sont adoptés pour la protection du talus avai. Une épaisseur de 30 cm s'avère raisonnable. En ef'fèt, sous l'effet de la chaleur et de l'humidité, la latérite se transforme en une croûte résistante. Pour les ouvrages importants on envisage des protections du talus aval en rip-rap avec des enrochements de petite taille.
  • 220.
    2 13 4.1.2 -Perré rangé il la main Parfois un perré rangé à la main est plus économique, l'épaisseur pouvant être réduite de moitié si les pierres sont résistantes et durables (épaisseur 30 à 60 cm). Les pierres, généralement assez petites pour être maniées par un seul homme sont disposées, comme dans le cas de l'enrochement en vrac, sur une couche de pose constituée de gravier et de sable de granulométrie appropriée jouant le rôle de filtre. Une épaisseur de 20 cm à 30 cm peut être requise. Le perré doit être bloqué à la partie inférieure sur un épaulement (butée) ou sur une risberne de façon à écarter toute possibilité de glissement. Ce genre de revèteinent n'est que très rarement utilisé sur le talus aval des barrages. Pour les petits barrages en terre en Afrique Occidentale (hauteur superficielle du barrage < 10 m), on utilise des perrés de queue moyenne 30 an. Les pierres sont disposées sur une couche de pose filtrante en tout venant gavillonnaire 0/25 et d'épaisseur d'environ 20 cm. Les pierres sont soigneusement bloquées les unes aux autres par des éclats de pierres. Quelquefois après exécution du perré, on répand une terre graveleuse sur le talus qui vient combler les interstices et donner une meilleure résistance à la structure. 4.1.3 - Revêtement en Béton Un revêtement en béton est parfois employé sur le taliis trniorit lorsque aucun enrochement de qualité n'est économiquement disponible (très longues distances de transport). On ne cherche qu'a protéger le reinblai contre l'érosion des ngues, et il faut 6viter que ce revêtement soit étanche. Il peut ètre constitué soit par des dalles prifabriquees, soit par un revètement en béton armé monolithicpie, inuni ou non de joints de contraction (section d'aciers = O,? i 0,5 ?/'O de la section de béton). Dans tous les cas il est nécessaire de disposer sous le béton une couche de %ravieret sable formant filtre, d'une épaisseur au inoins égale a 30 cin. Le revètement est buté a l'extrémité inférieure par une risberme. Le dmiri~zgede la terre sous-jacente doit être largement assuré de telle sorte que le revêtement ne soit pas soufflé lors d'une vidange rapide pas I'eiTet de la pression hydrostatique interne. L'eau s'écoule soit par les interstices laisses entre les dalles. soit par de très nombreuses barbacanes aménagées dans le revêtement monolithique. Il arrive que ce revêtement constitue l'organe étanche du barrage, mais cette solution est à déconseiller en raison des fissures qui se produisent inévitablement, à moins d'aménager de nombreux joints avec laines d'étanchéité très couteuses. On utilise parfois des revêtements de protection en béton poreux disposés sur une couche de vgravier permettant ainsi un drainage rapide grice auquel les soiis-pressions n'apparaissent pas.
  • 221.
    Les Ingénieurs del'Armée utilisent de préférence le tableau suivant qui donne f'épaisseur minimum de la couche d'enrochements ainsi que les dimensions minima des blocs en fonction de la hauteur des vagues déterminée à partir de l'abaque de 1'U.SArmy corps of Engineers. HAUTEUR DES VAGUES (mètres) EPAISSEUR d'enrOc11einent (111 ètres) minima de la couche Di,,MINIMUM (mètres) L O à 0,30 0 , X 0,20 0,30 à 0,60 0.40 0,25 0,60 à 1,20 O,45 0,30 1 1,20 à 1,SO 1 1,80 a 2,40 O,70 2,40 à 3,oo o s 0 0,35 O,% Aucune spécification nkst souvent précisée quant i la granulométrie des enrochements. On se contente d'éliminer les fins par tirase sur une grille dont les barreaux sont écartés de 100 à 150 mm, la limite supérieure étant donnée par les possibilités pratiques de manutention et de mise en place des enrochements. Pour la qualité de i'enrochemenr. il faut disposer d'une roche dure (et bien résistant au gel). Les schistes et les grès sont en générai à proscrire. + Le dimensionnement du poids et de l'épaisseur ininimuin de l'enrochement peut se calculer aussi par les formules suivantes : - formule de HUDSON y Il3 k, Cotg a (ci - 1)' I avec : P = Poids unitaire de la rnoitie des en enrochements "/ d cotg a = fmit du talus h kp peut être pris égal à 5 = Masse volumique des enrochements = densité des enrochements par rapports it l'eau = coefficient de dégât = hauteur des vagues en m kP L'épaisseur minimale de l'enrochement est ivalutie a
  • 222.
    210 f y = 2,50 1/12O,024 0,022 +/ = 3,65 1/4 1 0,027 0,024 4 - PROTECTION DES TALUS y = 2,80 0,020 0,023 Les talus doivent être protégés contre les dangers d'érosion provoqués par les vagues de la retenue, par le ruissellement de la pluie ou par le vent. 11faut parfois prévoir une protection (enrochement, béton, grillage) contre les animaux fouisseurs qui peuvent creuser des terriers dans les digues. ! 1/2 0,03 1 1/1,5 0,036 1/1 1 0,047 4.1 - Le talus amont 0,028 0,026 0,032 0,03O 0,041 O,O38 1 La protection du talus amont doit être assurée contre le batillage ou action érosive des vagues. 4 1 . 1 - Enrochement en vrac ou rip-rail C'est le matériau le plus couramment utilisé pour la protection du talus amont. Quelquefois, il peut s'avérer économique dans les possibilités de protection du talus aval. Il y a nécessité de disposer entre l'enrochement et le remblai une couche de transition (couche de pose filtrante) d'épaisseur d'environ 30à 30 cm, constituée de gravier et de sable (tout venant gavillonnaire) de granulométrie appropriée. Pour être stable, ce filtre doit avoir Fsj > 25 mn. Si la hauteur des vagues est supérieure à 1.50 m, on fixera Fy5> 40à 50 inin. A noter qu'une seule couche de granulométrie convenable suffit en général. + L'épaisseur minimum de la couche d'enrochement est donnée par la relation suivante utilisée pare la "TENNESSEE VALLEY AUTHORITY" (T.V.A): e = C V ' V = vitesse des vagues en m / s seion la formule de GAILLARD C = coefficient dépendant de la pente du talus et du poids spécifique y de e = épaisseur minimum de la couche d'enrochement en m. l'enrochement utilisé. i P E N E DU TALUS 1 VALEURS DE c Pt 11,XDIFFERENTS POIDS SPECIFIQUES I 0,028 1 0,035 1 0,023 I1 1/3 Quant aux diniwsioiis des iZknier7t.r elles seront telles que 50 YOde l'enrochement soit constitué de blocs d'un poids égal ou supérieur au poids calculé par la formule P = 0.53 y e3 P est donné en tonnes quand e est en mètres.
  • 223.
    - . 1- ..... , Formule de G m L A R D pour le calcul de la vitesse des vagues et de la revanche libre La vitesse de propagation des vagues peut être évaluées approximativement par la formule de Gaillard: V = 1.5 + 2 h V = vitesse de propagation des vagues en m / s h = hauteur des vagues en m. L'effet de projection des vagues vers le haut du parement amont peut être évalué en calculant le terme -, g étant l'accélération de la pesanteur. V' 2,o Finalement, la revanche libre minimum pour tenir compte de l'action des vagues peut être prise approximativementégale à : R = 0.75 h 4- V'- 2s Autre Formule On peut aussi évaluer directement la revanche libre par la formule simplifiée : R = 1 + 0.3 y%;oÙ F = fetch en kim R(1n) La revanche doit en outre permettre de compenser le tassement du barrage après sa réalisation. 3.2.4 - Remarque Dans certains grands barrages en terre, la revanche totale dépasse 5 m et peut même atteindre 10 m. Cependant, en général, elle n'est pas aussi forte. Amsi le Bureau Of Reclamation admet une revanche totale de 2.50 m pour des barrages inférieurs à 60 m de haut, reposant sur des fondations rocheuses, et si, le réservoir ayant une capacité supérieure à 12 millions de m3, la longueur du fetch F est inférieure à 8 km. Lorsque l'une de ces conditions fait défaut, la revanche totale minimum est portée à 3 m. Ces valeurs s'appliquent au cas d'un déversoir muni de vannes. Dans le cas d'un déversoir libre, sans vanne, la revanche peut être réduitejusqu'à 3 m. En pratique on pourra adopter les valeurs de revanche libre minimale ci-après : - Barrages de moins de 10 m de haut 0.80 2 R 5 1.50 m - Barrages de 10 à 20 m de haut 1.50 2 R 5 2 m , .
  • 224.
    20% Il est préférabled'utiliser l'abaque suivant dressé à la suite de nombreuses observations océanographiques corrigées par les Ingénieurs de l'Armée pour tenir compte du fetch relativement court mesuré dans les retenues de barrage. Cet abaque fait intervenir la durée minimum pendant laquelle un vent de vitesse donnée doit souffler à la surface d'une retenue pour que la hauteur des vagues produites atteigne le maximum correspondant à la valeur indiquée par l'abaque. Exemple : il faut qu'un vent de 40 k d h soufile au moins pendant 2 H 30 Inn pour que, sur une retenue ayant un fetch de 16 km, les vagues atteignent leur hauteur maxima de 1.20m. Fig. 7.8 : DETERMTNATION DE LA HAUTEUR MAXTMA DES V.1GUES D'APRES U.S. ARMY CORPS OF ENGTNEERS LÉGENDE Hauteur mLxima des vagues en mètres. - - - - - - Durée du vent en heures.
  • 225.
    207 Remarque : Dansles cas où le barrage est situé dans une région très froide ou dans une région très chaude et sèche, et particulièrement si les matériaux de construction utilisés pour le corps de digue sont du type CL et CH, une augmentation de la revanche libre sera envisagée pour des fetchs de 2.5 miles ou inférieurs. Il est aussi recommandé d'augmenter les valeurs de revanches libres du tableau ci-dessus de 50 % en cas de revêtement lisse du talus amont. 3.2.3 - Autres formiiles ou abaques de calcul de la hauteur des vagues D'autres formules empiriques permettent d'évaluer la hauteur des vagues en fonction de la longueur du plan d'eau ou Fetch et de la vitesse du vent. Formule de STEVENSON PourF < 18 Jan, h = 0.75 + 0.34 -&- 0.36 'fi Pour F > 18 kin, 11 = 0.34 fi fetcli F en hn et 11 = hauteur des v q w s en 111. Ces formules ne sont valables que polir un vent ne dépassant pas 100 k r d h . Formule de MOLITOR - Pour F < 30 km,11 = 0.76 + 0.032 JUF - 0.26 'fi Pour F > 30 kin, 11 = 0.032 JÜF F = fetch en km U = vitesse du vent en km/h h = hauteur des vagues en mètres. Il faut noter que la première formule de MOLITOR donne une hauteur de vague non nulle pour U = O, ce qui est anormal ; ces forinules empiriques ne sont donc valables que pour des vents de vitesse appréciable. Les valeurs de la formule de MOLITOR sont données par les courbes de la figure ci-après. FIGURE 7.7 : DETERMINATION DE LA HAUTEUR DES VAGUES Fetch 40 __ 30 __ 20 -- IO .- (Km) tesse du vent (Krn/h) 1 ' 2 3 Hauteur des vagues (m .
  • 226.
    3.2.2 -Tableau deI'American Society of Civil Engineers Fetch, miles Wind velocity miles per hour 1 50 1 75 2.5 50 Wave heigt, feet 2.7 3.0 3.2 2.5 2.5 5 75 3.6 1O0 3.9 5O 3.7 5 5 r- 10 75 1.2 1O0 1.8 1O0 10 10 6.1 50 4.5 5.475 I 1 mile = 1.61 km 1 foot = 0.305 m Fetch, miles Revanche libre normale, pieds inférieur à 1 4 Toutes les conditions affectant l'exposition du barrage au vent doivent être considérées dans le choix de la vitesse maximum du vent. Revanche libre minimum, pieds 3 La revanche libre normale est calculée selon Lin vent de vitesse 100 miledhour et la revanche libre minimum selon un vent de 50 miles/h. 1 I 5 4 I Il 6 52.5 1 5 6 l 10 1 l 0 1 pied = 0.305 m - 1 mile = 1.61km.
  • 227.
    205 3.2 - Effetsde vagues et revanche libre La hauteur des vagues provoquées par les vents dans la retenue dépend de la vitesse du vent, de la durée du vent, du fetch (longueur du plan d'eau exposée au vent), de la profondeur de l'eau et de la largeur du plan d'eau. La hauteur des vagues à l'approche du talus amont de la digue du barrage est diminuée du fait de l'augmentation de la profondeur d'eau et/ou du fait du rétrécissement en largeur du plan d'eau. En ce qui concerne le contact des vagues avec le talus amont du barrage, l'effet des vagues est influencé par l'angle d'incidence, la pente du talus amont, la texture de la surface du talus amont. La hauteur des vagues peut être calculée selon des formules empiriques. 3.2.1 - Formiile de Mallet et Pscquant 1h = '+ f3 Jf 1h = hauteur des vagues en mètres 2 f = fetch en kilomètres La vitesse de propagation des vagues de hauteurs coinprises entre 0.5 et 2 m est donnée par : I n I Où V en ~n/s h en mètres La revanche libre R est donnée par : h en mètres v en m i s g en m/s2 A = Coefficient de sécurité entre 1 et 3 N.B. : la revanche libre est la dénivellation entre le PHE et la crête de la digue. le fetch est nui pour un vent soufflant de la digue vers la retenue et maximal pour un vent soufflant en sens inverse.
  • 228.
    - __ .-- 204 3.1.5 - Largeur en crête (Lc) La largeur en crête doit être suffisante pour autoriser la circulation d'engins pour la finition de l'ouvrage et ultérieurement pour son entretien. En pratique, la largeur en crête (lc) est supérieure à 3 mètres. Pour des digues de hauteur (E)supérieure a 9 m, on adopte souvent : lc = E/3. Quelques formules KNAPPEN : PREECE : Autre formule 1, = 1.1 JE + 1 1, (m),E(m) 1, = 3.6 - 3 1, (in). H(rn) N.B. : Dans le cas de matériaux sableux, la largeur en crête doit être supérieure à ces valeurs. 3.1.6 - Pente des taliis Voir tableau dans la partie "Stabilité de la digue" .
  • 229.
    21s 5.1.3.2. Perméabilité verticaled'un sol stratifié On considère à présent la même série de sol, mais traversée par un débit Q (vitesse v) perpendiculaireà l'ensemble des strates. Fig. 7.13. Perméabilité verticale dans un sol stratifié. Perte de charge totaie A h X Dans ce cas donc, le débit Q qui traverse chaque couche est le même, mais la perte de charge et le gradient hydraulique dans chaque couche sont différents. On définit donc une perméabilité verticale moyenne K,, telle que selon la loi de DARCY : Ah V HV=K,-oKv=- H Ah Ecrivons que la vitesse V reste la même dans chaque couche traversée : V =KI il =K2 i2 =........=Kn in La perte de charge Ah est la somme des pertes de charge dans les différentes couches traversées donc A h=Hl il +H2 i2 +.._....+H, in H H v v V donc Kv === H, il - + -
  • 230.
    En remplaçant Vpar T7 Soit en définitive 3n expression d H Hn Kl K2 Kn K,= H, - +-HZ +.....+- 219 ns chaque couche traversé H K, = H2 i2 Hn in Klil K2'2 Kn in il +-+.....+-- on obtient : En conclusion, dans un terrain stratifié on considérera une perméabilité moyenne K qui s'exprimera: Le coefficient de perméabilité K est une caractéristique intrinsèque du matériau. On peut l'estimer au laboratoire par un essai au perméamètre ou un essai oedométrique. On vérifiera qu'un soi compacté à vocation d'étanchéité présente un coefficient de perméabilité inférieur à 1 0 - ~- IO-* m/s. 5.1.3.3. Forme des équations du mouvement dans un sol stratifié. On considère à nouveau une série de sois d'épaisseurset de perméabilités différentes. Supposons que l'écoulement ait lieu dans le plan (x,y) (cf fig. 7.14) ;la vitesse s'écrit alors : - - Y=Vx+VY = V x i + V y j i
  • 231.
    220 Fig. 7.14. Ecoulementdans un milieu stratiflé. Dans un sol anisotrope l'équation de continuité s'écrit toujours divv =O soit Or selon la loi de DARCY et les résultats des paragraphes précédents : dH V =-K,- x dX dH Vy = - K, - dY L'équation de continuité devient donc : Appliquons le changement de variable : r soit
  • 232.
    22 1 donc en remplaçantdans l'équation : û2H d2H +-=O dxI2 ay2 C'est à dire A H =O Donc au changement de variable près, l'équation du mouvement aussi à une équation du type AH = O, comme en milieu isotrope. dans un soi stratifié se ramène La solution en milieu anisotrope peut donc se ramener à une solution dans un sol isotrope en posant le changement de variable x'=x Kv , c'est à dire en contractant les distances l/%- horizontales dans le rapport On trace le réseau d'écoulement dans le système d'axes x'y et on effectue le changement de variable inverse pour obtenir la forme de l'écoulement dans le repère initiai. La figure suivante illustre ceci dans le cas d'un barrage en terre. Fig. 7.15. Résolution dans un milieu anisotrope.
  • 233.
    222 1) Représentation dubarrage dans le système d'axe xy 2) Réduction des distances horizontales dans le rapport /get résolution du problème d'écoulement dans ce milieu considéré comme isotrope. 3) Déduction graphique de l'écoulement dans le milieu anisotrope par application de l'opération inverse. 5.2. Résolution des équations du mouvement dans le cas des barrapes en terre Les équations du mouvement se ramènent donc à AH =O, dont la solution est une fonction harmonique vérifiant les conditions aux limites du projet. Il existe des solutions analytiques plus OU moins complexes à cette équation. Mais on peut également étudier les infiltrations par modélisation informatique, par analogie électrique ou par une méthode simplifiée fondée sur des approximations et des propriétés graphiques du réseau d'écoulement. 5.2.1. Etude des conditions aux limites Considérons un barrage homogène posé sur une première couche de fondation de perméabilité voisine surmontant une autre couche beaucoup plus imperméable. Fig. 7.16. Ecouiements dans les barrages :conditions aux limites Plan d'eau - - Ligne phréatique ou ligne de courant supérieure -Surfaces de suintement /' Massidep-e Kr H = z (cote) Surfaces fiitrantes Cê sat des Sufaces epidiages.ti =üek. , I l '/[ Lignesde courant/--'-----' 1 I - - -- -h:-v-v- -v--v--v-- Zone de perméabilitévoisine a Kr - Au contact entre le milieu relativement perméable et la couche de fondation très imperméable, les vitesses de l'eau sont parallèles à la surface de contact. - Le contact entre un milieu poreux et un volume d'eau au repos constitue une surface filtrante. Il en est ainsi pour le parement amont et le fond de la cuvette. L'eau est au repos et a donc une charge identique dans toute sa masse. Cette surface de contact est donc une surface équicharge - La surface (la ligne en coupe transversale) le long de laquelle la pression hydrostatique de l'eau d'infiltration est nulle est appelée surface phréatique (ligne phréatique en coupe transversale). Elle est généralement distincte de la surface de saturation, la différence entre les deux étant la hauteur d'élévation capillaire.
  • 234.
    - - .. 223 En choisissant la pression atmosphérique comme origine des pressions, H = z, sur une surface phréatique, le niveau d'eau dans un piézomètre représentera alors le niveau de cette surface libre. Une autre propriété est que les vitesses de l'eau sont parallèles à cette surface. - Les surfaces de suintement Ce sont les surfaces séparant le sol saturé de l'atmosphère. Ainsi, lorsque l'eau débouche sur le talus aval (non drainé) la surface de celui-ci constitue une surface de suintement. A cet endroit la pression est égale à la pression atmosphérique (H = z) et les vitesses ne sont pas parallèles à la surface. La surface horizontale à l'aval du barrage est une surface de suintement particulière : elle horizontale donc H = cte ;c'est une ligne équicharge analogue aux surfaces filtrantes. 5.2.2. Hypothèse simr>lificatrice On peut simplifier ie problème de l'hydraulique interne d'un barrage en terre en considérant que les vitesses sont contenues dans des plans perpendiculaires à l'axe du barrage et qu'elles sont identiques quelque soit le plan considéré (écoulements plans). Cette supposition trouve sajustification dans le fait que la longueur du remblai est très supérieure aux autres dimensions. est Fig. 7.17. Ecoulements plans Surfcri Zone S .
  • 235.
    221 5.2.2.1. Première conséquence: définition de lit fonction de courant et des Iignes de co11 rant Rappels sur l'opérateur rotationnel Si A=A, :+A j + ~ ~k aiors: Y l kf A,div rot A = O l e rotationnel d'un vecteur P Comme l'eau est incompressiblediv V =O . Le rappel précédent montre que l'on peut considérer la vitesse comme @car V A. div rot A= O toujours nulle. Si le vecteur k est perpendiculaire aux plans d'écoulement alors le vecteur vitesse- et donc le vecteur W s'écrit : w IoO I - c'y/ eneEet V = rot@ t', ; V =- Y A i La fonction y/ que l'on vient ainsi de définir a une propriété remarquable ; elle est constante sur une ligne de courant, une ligne ainsi nommée étant une ligne tangente en chacun de ses points au vecteur vitesse. En et'fet en mettant la fonction sous forme différentielle : soit dry=- Vy d x + V x d y (1)
  • 236.
    225 Traduisons le faitqu'une ligne de courant est tangente en chacun de ses points au vecteur vitesse : Soit dïi Li;)le vecteur unitaire de la ligne de courant alors dü ??v.Ceci s'écrit encore : dx Vx Idy vyI= O a V Ydx -V, dy = O soit Vy dx = Vx dy l'expression (1) devient donc : d v = - VXdy + VXdy = O donc le long d'une ligne de courant dw = O c'est à dire v = constante. ~~~ ~ Une ligne de courant, trajectoire des particules d'eau, peut donc être définie par = constante. c/(x.v) est appelée fonction de courant. 5.2.2.2. Deuxième conséquence :débit écoulé entre deux nappes de courant. Considérons deux nappes de courant très proches et représentant i'écoulement à travers une tranche unitaire de lm d'épaisseur de remblai. Ceci est décrit sur le schéma suivant : Fig. 7.18. Débit écoulé entre deux nappes de courant. . X i
  • 237.
    . ... , 226 .Y est la vitesse d'écoulement tangente à la nappe y1en A,. Comme les deux nappes sont . La surface d s est égale a Al A2 x 1 m=Al A2 . fiest le vecteur unitaire perpendiculaire à la surface dS. Ïi .dS est donc le vecteur surface. infiniment proches, c'est aussi la vitesse tangente à y2 en A,. donc dS=A,A, fi a pour coordonnées : [i:ns:] . A x = x ~- x2 ; AY=Y,-Y2 ; (Xi.Y1) e t ( x 2 4 étant les coordonnées respectivement de A, et A, Ecrivons le débit qui s'écoule entre ces deux nappes de courant : dq = V.dS ou encore vectoriellement dq = V.fi dS - - Or iï = cos a i + sin aj (le signe - s'explique par le fait que Ax = x1 - x2 > O et que a -Ax -Axsina =-- -- A1A2 d S Ax< O ;donc sin a < O et comme Ax > O, sin a = - - Al A2 ) donc E-dS = cosa-dSi f sin m d S j or V = - 1 - -- "wl dY dX donc dq = v . fi dS = -w - Ay + - Ax dY dX Donc entre deux lignes de courant, il s'écoule par unité d'épaisseur un débit égal à la variation de la fonction de courant entre les deux lignes 5.2.2.3. Troisième conséquence : définition des éaui~otentielleset forme du réseau de lignes Considérons la fonction <p = - KH. Elle est telle que : Y = - K gradH = gr5d - KH = gitad p soit V=gradg>J (0 est la fonction de potentiel
  • 238.
    227 La vitesse v=@dp est toujours perpendiculaire à la ligne cp = constante (donc aussi à la ligne équicharge correspondante). Y étant tangente en tout point aux lignes de courant : Les lignes de courant (y = constante) et les équipotentielles(cp = constante)forment un réseau de lignes orthogonales Etudions les propriétés de ce réseau de nappes (réseau de lignes en coupe transversale). Considérons deux nappes de courant et deux nappes équipotentielles infiniment proches. Fig. 7.19 - Nappes de courant et équipotentielles. dSq est l'élément de surface de la nappe cp1 entre y1 et v/2 et sur une épaisseur unitaire de remblai. dS<p=ABxlm=AB dSW est l'élément de surface de la nappe y 2 entre 'pi et 'p2 et sur une épaisseur unitaire de remblai. dSty = BD x 1 m = BD. !
  • 239.
    228 De plus dq= V . dSq ;or on a vu en 5.2.2.1 que dq = dw ;donc d y = V dSq, Si l'on a un réseau orthogonal à mailles carrées, c'est à dire si AB = BD a dSq = dSy, alors v = d(P - dv = dq=dry. dSy dSp Si l'on prend soin de tracer le réseau de lignes de courant et d'équipotentiellestel que les mailles qui le constituent soient carrées, alors on aura dq = dw 5.2.3. Etude du réseau de lienes de courant et d'éauiDotentielles dans un barrage en terre l'étude et le tracé précis des lignes de courant et des équipotentielles ne s'imposent que dans le cas des grands barrages en remblai. Pour le suivi de ces ouvrages, il sera en effet nécessaire de connaitre de manière fine les débits de fuite et les pressions interstitielles de manière à conduire des calculs de stabilité les plus détaillés possibles et à vérifier que les fuites restent acceptables tant du point de vue économique que sécuritaire. Pour les petits ouvrages, dont traite essentiellement ce cours, un tracé sommaire par méthode graphique sera généralement suffisant pour en comprendre l'hydraulique interne. On s'attachera ainsi à déterminer les données nécessaires au calcul de stabilité (position et forme de la surface libre par exemple) et au choix d'un dispositif de drainage. Le tracé théorique de la ligne de saturation permettra aussi de vérifier que la ligne observée (dans des piézométres par exemple) en réalité n'est pas plus élevée que prévu. Ce serait en effet dangereux pour la stabilité du talus aval, cela pourrait créer des sous-pressions anormales sous les ouvrages en béton posés sur le remblai, et enfin provoquer des fùites très préjudiciables pouvant conduire à la naissance d'un renard; Lorsque l'on soupçonnera que l'ouvrage puisse présenter une anisotropie de perméabilité (Kh >> KJ, on appliquera les méthodes classiques à un massif déduit du massif réel par une affinité d'axe- horizontal et de rapport Kv d.h 5.2.3.1. Procédés anaIopiaues 11 s'agit essentiellement de l'analogie électrique. Elle est fondée sur le fait que "l'écoulement'' du courant électrique est régi par des lois similaires a celles qui concernent les mouvements de l'eau dans le sol :
  • 240.
    229 1 v = -K g r Z d H e j = - -grZdu P ( jest le vecteur densité de courant) lignes équipotentielleshydrauliques a lignes équipotentielles électriques lignes de courant hydraulique0 lignes de courant électrique On réalise donc un modèle réduit du barrage avec un papier conducteur. Au moyen de contacts électriques on impose le potentiel aux limites du modèle (conformément aux conditions aux limites). Puis avec une sonde reliée à un voltmètre, on trace par tâtonnements les équipotentielles point par point. Ce procédé permet, avec une certaine habitude, de tracer le réseau de lignes précisément, et en particulier dans Ie cas de barrages importants. Cependant, il s'adapte mal à des situations complexes où sejuxtaposent des terrains de perméabilitésdifférentes. ia figure suivantedonne l'exemple du réseau de lignes orthogonalestel que l'on peut l'obtenir avec cette méthode, dans le cas d'un remblai posé sur un terrain d'assise de perméabilité équivalente et muni d'un drain de pied. Fig. 7.20 -Réseau de lignes Lignes de courant Lignes equipotentiel Mentionnons également l'analogie- visqueuse. En remarquant que l'écoulement dans le sol est laminaire, on cherchera à reproduire cet écoulement laminaire a une échelle réduite, ce qui est relativement simple pour les écoulements plans. On réalise en effet, à conditions aux limites égales, un écoulement d'un fluide visqueux entre des plaques planes parallèles et rapprochées dont I'une est en verre pour visualiser la position du liquide. Cette méthode permet en particulier de matérialiser la surface libre et d'étudier des écoulements non permanents.
  • 241.
    230 5.2.3.2. Calcul numériquesur ordinateur Il existe un certain nombre de logiciels permettant de résoudre numériquement Ie problème des écoulements dans un massif. Ils permettent généralement de déterminer la position de la ligne de saturation, de calculer les valeurs du potentiel hydraulique au sein de l'ouvrage et de ses fondations, ainsi que d'évaluer les débits de fkite dus aux infiltrations. On peut ainsi citer NAPLIB, programme de calcul d'hydraulique souterraine mis au point conjointement par 1'Ecoledes Mines et le CEMAGREF (FRANCE). Il utilise la méthode des éléments finis et peut être appliqué à tous les problèmes bidimensionnels pour les sols hétérogènes ou anisotropes. Cette méthode consiste à discrétiser l'équation de Laplace afin de se ramener à des équations linéaires où les inconnues sont les potentiels aux noeuds d'un maillage en triangles qui correspond au découpage arbitraire du modèle en surfaces élémentaires. La résolution du problème consistera alors à rechercher un ensemble de valeurs du potentiel obéissant en tout point à la loi de Laplace et respectant les conditions aux limites (potentiel obligé de certains points : parement amont, existence d'une surface de suintement : parement aval, drain, etc.). 5.2.3.3. La méthode simplifiée de la riarabole de KOZENY : cas d'un remblai homogène drainé sur fondation imperméable Cette méthode simplifiée est la plus utilisée dans le domaine des petits barrages. Elle donne en effet des résultats approchés, mais généralement suffisants. Après avoir déterminé la forme générale des lignes de courant et des équipotentielles et avoir tracé les lignes remarquables (frontières imperméables, surfaces de pénétration de l'eau, etc.), de simples règles "de bon sens hydraulique" permettent ensuite de dessiner les lignes intermédiaires, pour peu que l'on prenne soin de respecter l'orthogonalité des lignes de courant et des équipotentielles. Si l'on trace un réseau à mailles carrées, on peut aussi avoir une idée du débit de hite (selon la propriété énoncée au 5.2.2.3.). a). Equation de ia parabole de KOZENY KOZENY a montré que, dans un barrage en terre non drainé, la liane de saturation peut être assimilée dans sa partie médiane à une parabole d'axe horizontal dont le foyer est situé au pied du parement aval du barrage. Lorsque le barrage est muni d'un drain, celui-ci rabat la ligne phréatique à l'intérieur du remblai. Dans ce cas la parabole de KOZENY a pour foyer l'extrémité amont du drain auquel se raccorde la lisne de saturation. Considéronstout d'abord un écoulement dans un massif semi-infini homogène vers un drain-tapis. Dans ce cas ;comme dans quelques autres, on peut trouver une fonction f(z) = cp + iy (z = x + iy = reie), appelée potentiel complexe de l'écoulement, qui vérifie les conditions aux limites. l'étude du réseau consistera donc dans l'étude et le tracé des fonctionsu/ = constante et cp = constante.
  • 242.
    231 Dans le casdu massif semi-infini drainé. on montre que le potentiel complexe ffz) = K dG satisfait les conditions aux limites. Fig 7.21 - lignes de courant dans un massif semi-infini drainé Massif h Yde perméabiiite K Zone irnpermécbie p + i 'y = K 4~ (cos + i sin $1 Soit 6- i-cosedonc c/2 = 2 y. K2 r sin2 ; or sin -- & 2 2 donc y? = y. K2 r (1 - cos 9) = y. K2 (r - r cos 0) 3 c'est à dire c/2 = y, K2 (r - x) a r -- -y" YoK2 + x or r =,/x2 + y' donc r2=x2+ y2 ; donc: 2 x2 + y2 = [<+x) Y0 K Soit L
  • 243.
    232 Or rappelons quele long d'une liane de courant L/= Constante. Donc pour y = Constante, l'équation ci-dessus est celle d'une ligne de courant, qui est donc une parabole. Les lignes de courant sont donc des paraboles homofocales dont le foyer est le début du drain. Les équipotentiellessont les paraboles orthogonales. Vérifions que ce potentiel complexe satisfait la condition aux limites qui définit la ligne phréatique. p+i y = K ,/=donc (p+iw>2= 2y,K2z=2yoK2 (x+iy) (p2 - v 2 + 2 i cpy1=2y0K2 x + 2 y. K2 iydonc 8 e(p2 =2 y, r K2 cos 2- et w2 =2y0 r K2 sin 2 - 2 2 (p2 - = 2 y, r KZ[cos2 i-sin2 !) = 2 Y , K ~ r cos û 2 (p2 - y2 = 2 y. K2x 2y, k2 x 2 i cp v = 2 y, K2 i ydonc soit cp = y, K2 y = y, K (Ky) Or cp = Ky est la définition du potentiel sur la ligne phréatique, laquelle est alors caractérisée par y/ = y,K = constante. De ce résultat, on déduit l'équation de la ligne phréatique (w = y&) y''= 2Y02K2 x + hJK4r-4 y2 =2y, x + y, 2 YoK2 Yo2 K4 ly2-2y0x- yo2 = O Considérons maintenant le fait que le massif n'est pas semi-infini à l'amont. Les travaux de CASAGRANDE ont montré que la ligne phréatique théorique passe par un point E situé à la surface de la retenue et éloigné de 0.3 b du parement amont, b étant la longueur de la projection horizontale de la longueur mouillée du parement (cf fig. 7.22). Les coordonnées de ce point E (d, H) vérifient donc l'équation de la parabole de KOZENY, ce qui permet de définir le paramètre y, :
  • 244.
    233 Fig. 7.22 -Tracé de la ligne phréatique d Y U d Y X O X 4 A' = d2 +H2 Y0' = - d - , , / m , t y i = - d + i d 2 + H2 : donc cette équation a deux solutions Or y. étant une distance et - d - Jd2 + H2 < O, on retiendra En outre, on doit tenir compte du fait que le parement amont est une équipotentielle (H = constante). On raccorde donc la parabole de KOZENY au point M du plan d'eau amont par une courbe normale au parement amont en M et tangente à la parabole. b). Utilisation de cette méthode pour résoudre quelques problèmes simples La ligne phréatique étant ainsi déterminée, on établit tout au long un certain nombre de points de potentiel, c'est à dire de cotes régulièrement décroissantes. A partir de ces points, on trace des éléments de courbe qui se raccordent orthogonalement à la ligne phréatique et à la ligne de contact avec les fondations imperméables.Ces courbes constituent le réseau d'équipotentielles.On obtient les lignes de courant en construisant le réseau de courbes orthogonales à ces équipotentielles. (fig. 7.23).
  • 245.
    234 Fige7.23 - Tracédes équipotentielles et des lignes de courant A partir de ce tracé, on peut estimer sommairement le débit de fiite. En effet la ligne de saturation est caractérisée par la constante y = yoK. De même, le fond imperméable est caractérisé par y = eO (0 = O, donc IV= K J2'2y,r sin - = O). 2 Or on a vu qu'entre deux nappes de courant infiniment voisines, il s'écoulait un débit dq = A y (cf 5.2.2.2.)donc Q = jdq = C A ry soit Q = yoK - O = yoK En fait on montre que ce résultat est valable pour a > 30" ;pour a < 30°, on adoptera : Lorsque l'on dispose du réseau de lignes, on peut facilement calculer la pression interstitielle théorique en tout point. Fige7.24 - Détermination de la pression interstitielle
  • 246.
    235 Calculons par exemplela pression en Mo situé à la cote zo. En s'appuyant sur la forme des courbes voisines, on trace l'équipotentielle qui passe par ce point et qui coupe la ligne phréatique en Ml. On lit la cote z1 de ce point et l'on écrit la constancedu potentielle le long de la donc z1=-+zoPO . La pression en vaut donc z1 - zo en mètre de colonne d'eau ou Pg po =pg (zl -zo) en pascal. 5.2.3.4. La méthode sirnDlifiée de la parabole de KOZENY :Cas d'un barrage à zones sur fondation imperméable Dans ce type d'ouvrage, le noyau étanche a une perméabilité beaucoup plus faible que les recharges amont et aval. On montre que l'on peut également modéliser les lignes de courant dans le noyau par des paraboles en considérant comme parfaitement perméable la recharge amont. La figure suivante schématise cette situation. Fig. 7.25 -Ligne de saturation dans un barrage à zones. Ligne de sofurolion 7Parabole ihiorioue La ligne de saturation dans le noyau de perméabilité Kz est construite à partir de la parabole de base, suivant les règles précédentes, en considérant cependant le fait que la ligne débouche plus bas que la ligne théorique, à la hauteur hs, déterminéeà l'aide de l'abaque suivant : .
  • 247.
    236 Fig. 7.26- -Détermination de hS Dans la recharge aval de perméabilité K3,l'écoulement peut-être assimilé à un écoulement à travers un massif rectangulaire de longueur L. Si ho est le niveau aval et h, la cote amont de la ligne de saturationdans la recharge aval, le débit est donné par : Ce débit doit être égal à celui qui traverse le noyau et qui peut s'écrire au moyen de la formule : q = K,e. En éliminant q entre les deux équations ci-dessus, on obtient : h, = 2 L e -+K2 hz d K3 La connaissance de hl permet de tracer la ligne de saturation dans la recharge aval avec une précision suffisanteen l'assimilant à une droite. 5.2.3.5. Le rwoblème de la vidange raDide On peut considérer comme rapide une vidange qui s'effectue en un délai inférieur à un ou plusieurs mois. La configuration du réseau de ligne est alors totalement différente des cas précédents. le parement amont n'est plus une équipotentielle, mais son potentiel varie avec la cote du point considéré. Ce cas, assez complexe, doit être étudié par calcul informatique ou analogie électrique.
  • 248.
    237 Fig. 7.27 -Equipotentieiies et lignes de courant dans le cas d'une vidange rapide. On voit qu'àla vidange, les lignes de courant ressortent sur le parement amont dénoyé. Ceci milite encore pour que soit disposé sous le perré amont une couche de pose filtrante afin d'éviter la fùite des fines lors de la vidange, cette couche de pose servant déjà à lutter contre les effets du batillage. . .
  • 249.
    5. bis - L'étude 238 INFILTRATIONSDANS LE BARRAGE ET DANS LES FONDATIONS des infiltrations permet de déterminer les éléments suivants : - la ligne de saturation ou plus exactement la ligne phréatique du massif du barrage, - le débit de fbite - la pression de l'eau interstitielle dans le massif (sous-pressions). Fig 7.28 - Trajectoire de l'eau à travers le barrage .
  • 250.
    239 5. bis.1 -Déterminationdes éauipotentielleset des lignes de courant 5 bis 1.1 - Tracé de la lime phréatique 5 bis. 1.1.1 - Cas d'un massif homoPéne non drainé Fig 7.29 - Détermination de la ligne phréatique Définitions h = charge d'eau = tirant d'eau d = largeur en base du barrage diminuée de 0.7b [et de la largeur du filtre s'il y a lieu] b = projection horizontale de la partie mouillée du parement amont. K, = coefficient de perméabilité du remblai de la digue (remblai compacté) E = hauteur de l'endiguement a = angle du talus aval. En partant du cas théorique simple d'un écoulement plan a travers un massif Dermeable reposant sur une fondation plane imperméable à l'amont jusqu'au point O et de même perméabilité que Ie massif vers l'aval à partir du point O, KOZENY a montré que, dans un barrage en terre homogène non drainé, la ligne phréatique peut être assimilée dans sa partie médiane à une parabole d'axe horizontal dont le foyer O est situé au pied du parement aval du barrage. Etant donné que la parabole admet le point O comme foyer, son équation serait : . # *
  • 251.
    240 D'autre part, laparabole coupe le plan d'eau amont en un point A situé à une distance telle que BA = 0.3 b. b est la projection horizontale de la partie mouillée du parement amont. Pour satisfaire cette condition on doit avoir (cf figure et équation de la parabole) : h' = yod + soit: y, = Jd2 + h2 - d En effet en A on y = h et x = d Aussi, en transformant l'équation : 11' + d2 = d2 + 2y0d + y: = (d + y,>' Pour obtenir la ligne phréatique à partir de la parabole de KOZENY, on raccorde celle-ci au point B du plan d'eau amont par une courbe normale au parement amont en B et tangente à la parabole. En aval on fait aboutir la ligne phréatique en un point D sensiblement situé au 2/3 de OC, théoriquement tel que : DC 3 a- - cos -- - oc 8 2 CASAGRANDE a démontré que DC (Al) dépend de la distance focale de la parabole de base et de l'angle a du talus aval. Il a dressé la table de : en fonction de a - ai- ao l + A l On peut déterminer ainsi le point D si a si 30" < a < 180°, 1 = y, 30", 1 = 4- - ,/d2 - h2cotg2 a 1 - a. 1 - COS^ 5 bis.l.l.2 - Cas d'un massif homogène drainé (avec drain aval) En général les barrages en terre sont munis d'un drain avai qui rabat la ligne phréatique à l'intérieur du barrage. Dans ce cas la parabole de KOZENY a pour foyer l'extrémité amont du drain auquel se raccorde la ligne phréatique. Le raccordement amont se fait comme précédemment.
  • 252.
    241 Fig 7.30 -Tracéde la ligne de saturation dans le cas d’un barrage drainé Cas d’un drain horizontal
  • 253.
    242 5 bis 1.1.3- Cas d'un massif anisotroi>e Ce qui vient d'être exposé ci-dessus n'est valable que si le coefficient de perméabilité est identique dans les directions horizontale et verticale. Dans le cas des barrages en terre ceci n'est généralement pas vérifié compte tenu des procédés de constmction. Dans un massif anisotrope de perméabilité verticale Kv et de perméabilité horizontal K,, SAMSIOE a démontré qu'il suffisait d'appliquer la méthode précédente (cas du massif homogène) à un barrage dont les dimensions horizontales sont réduites dans le rapport Les ordonnées de la ligne phréatique ainsi obtenues sont reportées sur la section réelle du barrage aux points d'abscisses correspondantes. 5 bis 1.1.4 - Cas d'une digue à zones (a noyau imperméable) Dans le cas d'un barrage à zones, les zones perméables n'ont généralement aucune influence sur la ligne phréatique de la zone imperméable en raison des très grandes différences de perméabilité (1 à 100 au minimum). On construit la ligne phréatique comme précédemment en considérant la zone imperméable seule. Fig 7.31 - Tracé de la ligne de saturation dans le cas d'un barrage à noyau
  • 254.
    243 5 bis 1.1.5- Remaraue : Barrage sur fondation perméable Si le barrage repose sur une fondation perméable, la méthode ci-dessus reste valable ; la ligne phréatique est inchangée, seules les autres lignes de courant sont modifiées. 5 bis 1.2 - Tracé des éauiootentielles et des lignes de courant 5 bis 1.2.1 - Cas d'une retenue pleine Après la détermination de la ligne phréatique on peut tracer les équipotentiellesgraphiquement. Le parement amont est une équipotentielle. La ligne phréatique ainsi que le contact avec la fondation imperméable sont des lignes de courant. La pression hydrostatique étant nulle le long de la ligne phréatique, le potentiel en un point de cette ligne est dû uniquement à la côte de ce point. On constmit un certain nombre de points de potentiel, c'est-à-dire le long de la ligne phréatique. Fig 7.32 - Tracé des équipotentiellesdes lignes de courant A partir de ces points on trace les éléments de courbes se raccordant orthogonalement à ligne phréatique en ces points et à la ligne de contact avec les fondations imperméables. Ces courbes constituent le réseau d'équipotentielles. Les lignes de courant sont obtenues en construisant le réseau de courbes orthogonales à ces équipotentielles. 5 bis 1.2.2 - Cas d'une vidange rapide , Toute vidange pratiqué en des délais inférieurs à un ou plusieurs mois est qualifiée de rapide. En cas de vidange rapide, le volume de digue imbibé d'eau reste pratiquement dans cet état, le niveau d'eau amont étant partieliement descendu ou ramené au pied du parement amont. Le parement amont n'est plus une équipotentielle et le réseau dans le massif est totalement différent du cas d'une retenue pleine.
  • 255.
    244 Dans le casde la vidange rapide, le potentiel du parement amont varie avec la côte du point considéré. La répartition des équipotentielles peut être obtenue par analogie électrique ou par calcul sur ordinateur, mais l'on peut aussi en avoir une approximation par dessin à la main. Fig 7.33 - Equipotentielles et lignes de courant dans le cas d'une vidange rapide A la vidange rapide, les lignes de courant ressortent sur le parement amont dénoyé. Il y a donc un risque d'entraînement de fines, et pour cela, on place un filtre entre l'enrochement de protection et le massif 5 bis 1.3 - Calcul du débit de fuites 5 bis 1.3.1 - CaIcul des débits de fuites iitravers le barrape q On applique la loi de DARCY : q = K , . i . A Or, dans le cas de l'écoulement parabolique = O a Al = 0 ~ - 4D = C la section Aestmesurée 1hl l + A l a = 180° a, = par l'ordonnée y de la ligne phréatique et le gradient hydraulique i par sa pente -dY dx dont 1'intégration Bi
  • 256.
    245 En se référantà l'équation de la parabole vue précédemment : y2 - 2 x y. - y: = O,on peut poser : q(m'/ml.s) Kr (m/s) h(m) d(m) Pour 30" < a < 180°, la relation ci-dessus donne toujours une approximation suffisante. Pour a < 30°, on applique la relation : Iq = Kr . y, . sin2a avec IV, = 4- - ,/d2 - h2cotg2a 1 Pour un massif anisotrope de perméabilités verticaleK, et horizontaleKH, on prendra K = JKV. K, pour les calculs. 5 bis 1.3.2 - Calcui du débit de fuites à travers la fondation On peut estimer grossièrement le débit par mètre linéaire passant sous le barrage à l'aide de la formule tirée de la loi de DARCY. Pour une fondation relativement perméable, comme représentée ci-après, on admet que la longueur moyenne (L) de la ligne de courant est celle de la ligne de contact du massif imperméable avec la fondation plus perméable. Fig 7.34 - Débit de fuite a travers une couche de fondations perméables Fondation perméable Substratum imperméable, .
  • 257.
    246 F/T C D'après la figure: 0.1 0.2 0.3 0.4 O.5 O.6 0.7 o.8 0.9 1O0 80 67 58 50 43 37 31 25 L = B + 2 F S . K, H L S = longueur mouillée de la couche de fondation S = (T - F) K, = valeur moyenne du coefficient de perméabilité horizontale de la fondation ( d s ) q (m3/ml.s) H(m) = charge d'eau T(m) = profondeur de la couche perméable B(m) = épaisseur de base de la zone imperméable y compris le tapis amont F(m) = profondeur de parafouille. Si B est négligeable devant F, on peut utiliser la formule de SCHOKLITSCH : q = C . K H . H C = f(;) Autre Formule de calcul du Débit de fuite dans les fondations. La formule analytique ci-après donne une estimation plus précise :
  • 258.
    247 5 bis 1.4- Calcul de la nression interstitielle A l'aide du réseau d'équipotentielles, on peut déduire la pression interstitielle en tout point. Soit la figure ci-après. Fig 7.35 - Détermination de la pression interstitielle Massif du barrage Liçne 7hréaiique Pour calculer la pression interstitielle en Mo, on part de Mo et on trace au jugé une courbe équipotentielle s'intégrant dans le réseau. Cette courbe coupe la ligne phréatique en un point M, de potentiel égal à la cote 2, de ce point. L'égalité de potentiel en Moet Ml s'écrit : 2, + Po = 2, d'où Po = 2, - 2, = pression interstitielleen M exprimée en mètre d 'eau A la vidange rapide, même si l'on ne dispose pas du réseau d'équipotentielles, on a une bonne approximation de la pression interstitielle en Mo,en prenant comme valeur : Pi = 2, - 2, où 2, = cote du point M,, point de contact de la ligne phréatique ou du parement amont avec la verticale issue de Mo. Cette méthode donne des valeurs de la pression par excès, (ce qui va dans le sens de la sécurité).
  • 259.
    248 6 - PROTECTIONCONTRELE RENARD Lutter contre la formation des renards consiste : - soit à supprimer les infiltrations si on le peut en formant des coupures imperméables par un écran étanche. - soit à réduire la force volumique visqueuse, c'est-à-dire à réduire la valeur du gradient hydraulique, donc à allonger les lignes d'écoulement. - soit à empêcher l'amorçage du phénomène, c'est-à-dire disposer dans la zone de résurgence des filtres chargés d'empêcher l'entraînement des particules solides. 6.1 - Ecrans étanches Il existe différentes techniques utilisables pour réaliser ces écrans (murs en béton, noyaux d'argile, murs de palplanches, parois moulées, voiles d'injection). 6.2 -Allowement des lipnes d'écoulement Afin de réduire les forces volumiques visqueuses on cherche à rallonger le parcours moyen des lignes d'écoulement. BLIGHT puis LANE ont proposé des règles expérimentales définissant un gradient moyen maximum qui est supposé tel qu'en aucun point dans le sol les conditions d'entraînement du sol ne soient requises. D'autre part ce gradient est défini sur la ligne de courant qui suit le contact ouvrage-sol de fondation ;en effet, ce contact est un lieu d'écoulement privilégié où les renards risquent davantage de se former. Il est possible d'obtenir un allongement de cette ligne de courant particulière en réalisant un ou plusieurs parafouilles imperméables. BLIGHT proposait la condition : 2 1 = c LANE a modifié cette condition en affectant un coefficient minorateur égal à 1/3 aux distances horizontales pour tenir compte des décollements possibles par suite de tassements sous la fondation. 1/3 L, + C 1, -1 Le coefficient C dépend de la nature des terrains.
  • 260.
    239 COEFFICIENTDE LANE NATURE DUTERRAIN Sablesfins et limons Sables fins Sables moyens Gros sables Petits graviers Gros graviers Mélange de graviers et de gros galets Argile plastique No C 875 7 6 5 4 5 2,s 3 1 - 2 3 4 5 6 7 8 9 10 Remarque L'application de la règle de LANE pour le dimensionnement de la fondation de la digue doit se faire avec discernement et prudence en se référant suriout au profil géotechnique du terrain de fondation. En effet, cette règle empirique a été conçue pour des ouvrages rigides fondés sur terrains meubles, les tassements différentiels pouvant alors être à l'origine des cheminements préférentiels au contact sol-béton. Un tel risque est bien moindre pour un massif de remblai au contact de sa fondation meuble. A contrario, la règle de LANE supposant des sols de fondation homogènes, elle ne permet pas de rendre compte des hétérogénéités parfois très localisées qui vont bien sûr constituer les lieux d'écoulement privilégiés (lentilles sableuses, argiles à canaux, cuirasses latéritiques).Enfin, la règle de Lane s'applique à la prévention du phénomène de renard et non à la mise en oeuvre de l'échantéité de la fondation (même si les deux choses sont liées, un défaut d'étanchéité pouvant sous certaines conditionsentraînerun renard). Il faut donc accorder plus d'importance à la reconnaissance visuelle des sols de fondation de la digue. 6.3 - Utilisation des filtres L'apparition du renard est due à l'existence de contraintes effectives trop faibles dans les zones de résurgence. Un moyen de lutte contre le renard consiste alors à charger ces zones avec des matériaux plus perméables les contraintes effectives sont ainsi augmentées ;les pertes de charges dans le matériau filtrant étant négligeables le risque de renard dans le filtre n'existe donc pas (au contraire une charge constituée par un matériau imperméable serait dangereuse : toute la perte de charge s'y concentrerait et le renard ne s'y formerait que mieux). .
  • 261.
    250 Pour la protectiondes massifs de barrage, on a souvent recourt à deux types de filtre : - la filtre (ou drain) de pied horizontal ou drain tapis - le filtre (ou drain) cheminée (ou drain vertical) Fig 7.36 - Utilisation des filtres Cas d'un drain horizontal .--- . _._ Cas d'un drain vertical
  • 262.
    25 1 6.3.1 -Draintaois Pour intercepter les infiltrations dans le massif d'un barrage en terre on dispose habituellement dans la partie aval du massif et au contact de celui-ci avec les fondations, un drain-tapis filtrant destiné à rabattre la ligne phréatique à l'intérieur du massif Ce drain s'étend sur b à - de l'emprise du barrage. Son épaisseur se calcule en fonction du débit de fùite. 1 1, 4 3 Fig 7.37 -Drain de tapis filtrant Lorsqi a) Cas d'une fondation b) Cas d'une fondation l.sabk fin relativement pcrmeaole 2Sable grussier impctméa b le ie la fondation n'est pas complètement imperméable, ce drain interceptera 2 2 1 3 1 également les infiltrations a travers la fondation. Il doit être alors protégé contre l'entraînement des éléments fins de la fondation par un filtre inversé. Le drain tapis filtrant est efficace dans la mesure où la perméabilité du massif est isotrope. Très souvent, du fait de la technique d'exécution des barrages en terre qui consiste à compacter la terre par couches horizontales, il existe une anisotropie assez forte du barrage, la perméabilité verticale étant inférieure à la perméabilité horizontale. De ce fait le drain-tapis est souvent inefficace et on observe des affleurements de nappes sur les talus aval de nombreux barrages munis de drain-tapis. - Débit Unitaire et éDaisseur du drain taDis Fig 7.38 - Débit unitaire a travers un filtre horizontal . -*-.. . . . . . . . ..! Si q est le débit d'infiltration à travers un mètre de largeur du barrage qu'il faut évacuer à travers le filtre de perméabilitéKf est, on peut écrire : .
  • 263.
    252 q = Kfi A où A = valeur moyenne de la section mouillée (moyenne) e + h et A = - 2 e2 - h2 4 = Kf 3 1 1 A On peut négliger h2 h étant petit II est prudent de prendre un débit q égal au double du débit de fùite escompté. Ainsi, l'épaisseur e du filtre à prévoir sera : La valeur de 1 n'est pas égale à la longueur totale du tapis filtrant, il faut retrancher la Iongueur de résurgence qui est égale à : avec K, (m/ s) = perméabilité du remblai du barrage a enm q en m3/s.d La longueur totale (If) du tapis filtrant sera : I f = l + a
  • 264.
    253 6.3.2 -Drain vertical Ledrain vertical placé au centre de la digue constitue une solution plus efficace pour intercepter les eaux d'infiltration. Un tel drain est constitué d'un rideau d'une largeur (épaisseur) minimale de 1 m en matériau grossier (graviers et sables) dont la granularité est choisie de manière à ce que les conditions de filtre soient réalisées. Ce rideau peut être mis en oeuvre par déversement du matériau convenable dans une tranchée d'une profondeur de 1,50 à 2x11, recreusée dans le massif compacté, au fur et à mesure de l'avancement du terrassement du barrage. II peut remonter pratiquementjusqu'à la cote moyenne du plan d'eau dans la retenue. Fig 7.39 -Drain vertical Drain vertical drainées L'eau de percolation interceptée par ce drain filtrant est évacuée soit par un réseau de tuyaux- drains soit par un drain-tapisfiltrant, s'il est également nécessaire de drainer les fondations. Le drain vertical peut être constitué uniquement de gravier, le rôle de filtre étant alors assuré par un tapis synthétiquenon tissé placé en fond de tranchée, le long de la paroi amont du drain et au- dessus du drain. Dans ce cas l'épaisseurdu drain pourra être diminuée. 6.3.3 - Loi des filtres ou règles de non contamination Un filtre ne doit ni se dégrader par entraînement de ses éléments, ni se colmater. Il est conseillé pour cela d'utiliser des sables dont le coefficient d'uniformité 160 est supérieur à Z1.Ceci étant, si on schématise par F, et sxles dimensions des grains du filtre et du matériau de base2 qui sur la courbe granulométnque correspondent au point d'ordonnée x %, les conditions a respecter sont, d'aprèsTERZAGHI. F*o Les indices indiquent le pourcentage des grains de diamètre inférieur a la valeur de l'indice (en mm). Dans le cas d'un filtre constitué de plusieurs couches, pour chaque couche le matériau de base est la couche précédente du tapis filtrant, dans le sensde la circulation de l'eau. .
  • 265.
    (1) (2) (3) Granulométrieétroite : Fi5 Granulométrie étendue: - < 4 0 u 5 s*, Fi5 - > 4 0 u 5 SI5 5 < --0 < 10 s,, La figure schématiseces conditions Fig 7.40 - Granulométrie d'un filtre f i l t r e La courbe granulométrique du matériau constituant chaque couche du filtre doit être à peu près parallèle à celle du matériau de la couche précédente. L'épaisseur de chaque couche doit être au moins de 20 à 30 cm et en tout cas supérieure ou égale à 50 fois le diamètre F15. Il existe des tapis de fibres synthétiques (non tissées) qui permettent de réaliser des fiItres faciles à mettre en place. Quand on est en présence de matériaux qui ne satisfont pas aux règles ci-dessus mentionnées il est conseillé de vérifier la stabilité du filtre et l'absence de colmatage par une essai sur modèle.
  • 266.
    255 Quand une couchefiltrante sert de drain, débit à drainer. Si elle contient des drains doivent être de diamètre inférieur à 0.5 fois elle doit permettre l'évacuation poreux ou percés de trous, les de diamètreFg5. d'un débit double du orifices de ces drains La valeur de la perméabilité d'un filtre est donnée avec une assez bonne approximation (50 %) par la formule de Hazen pour les matériaux sableux. K = 100 où FIoest en cm et K en c d s . 6.3.4 - Puits filtrants Des puits filtrants de décompression peuvent être nécessaires pour assurer le drainage des fondations et éliminer les sous-pressions dans la zone du talus aval du barrage, lorsque les fondations sont relativement perméables mais hétérogènes. Ce cas est fréquent, les dépôts alluvionnaires étant souvent formés de lentilles ou de couches alternées d'argile, de limons, de sables, de graviers. Les puits remblayés en matériau filtrant analogue à ceux d'un drain vertical débouchent dans un drain-tapissous le talus du barrage et à l'aval de celui-ci. Fig 7.41 - Puits filtrants i
  • 267.
    256 La profondeur despuits devra être sufisante pour drainer les couches perméables situées à une profondeur inférieure à environ 50 % de la hauteur du barrage et susceptibles d'être alimentées par la retenue, leur densité est fonction de l'hétérogénéitédu terrain. Lorsqu'il s'agit de drainer une couche de terrain perméable d'épaisseur limitée séparée du barrage par une couche imperméable, les puits devront traverser la couche imperméable et pénétrer la couche perméable sous-jacente sur au moins - de l'épaisseur de la couche imperméable. 1 4 Les puits drainants peuvent être équipés de piézomètres en vue de la surveillance du barrage. Le calcul approché d'un réseau de puits filtrants peut se faire à l'aide d'abaque, de modèle électriqueou de modèle numérique sur ordinateur. Un puits filtrant ne doit pas avoir un diamètre inférieur à 15 cm. L'espacement entre les puits est un facteur dont I'importance est moindre que leur enfoncement dans la couche perméable. Cela veut dire qu'il vaut mieux peu de puits filtrants mais profonds que beaucoup de puits peu profonds. L'étude théorique de la réduction de pression provoquée par un système de puits filtrants a été réalisée par Muskat et traduite sous forme d'abaques par Jervis.
  • 268.
    257 7 - STABJLITEDESDIGUES 7.1 - Définition du coefficient de sécurité La définitiondu coefficient de sécurité des talus à l'égard de la rupture demeure une des questions les plus controversées de la mécanique des sols. Plusieurs approches ont été proposées sans pour autant qu'il ne soit possible de trouver une synthèse pleinement satisfaisante. Le débat reste donc ouvert ! Soit la figure donnée ci-dessous : Fig 7.42- Principe du calcul de la stabilité d'un talus %se mant 4p5s:be, Pour étudier la stabilité du système, on cherche les conditions d'équilibre de la masse ABCMA. L'arc AMC est une ligne de glissement possible. Par souci de simplification, on retient comme forces sollicitant la masse ABCMA : - le poids W qui exerce un moment moteur tendant à faire pivoter la masse ABCMA le long de l'arc de cercle AMC dans le sens de A vers C ; - Les contraintes de cisaillement le long de la ligne de glissement qui exercent un moment résistant pour équilibrer le moment moteur. Onécrit : WI= r J A d s Puisque le talus est en équilibre stable, la distribution des contraintes de cisaillement z dans l'équation ci-dessus n'est pas une distribution de contraintes critiques. On dispose donc d'une certaine marge de sécurité que l'on apprécie à l'aide d'un coefficient de sécurité F. A l'arc de cercle AMC, correspond une valeur numérique précise du coefficient de sécurité F. On peut rechercher la ligne de glissement pour laquelle on obtient la valeur la plus faible de F.
  • 269.
    258 7.1.1 - Effortsmobilisables et efforts appliqués On compare les efforts de cisaillement réellement appliqués t et les efforts de cisaillement ((mobilisables))z ' t f = c + a tg4 ' -- contraintes normales réellement appliquées (3 t f = intensité maximale de la composante de cisaillement compatible Le coefficient de sécurité se définit par le moment des efforts mobilisables rapport : t avec G A - moment des efforts appliqués A A rlc z ds rJc z ds fF = rJfi(c+c&g+)ds F = W Cette définition de F renferme une contradiction car si la ligne de glissement potentielle reste à l'état d'équilibre élastique, on ne peut définir de façon précise les efforts de cisaillement mobilisable (tf),c'est à dire disponible au moment de la rupture puisque précisément on suppose que la rupture ne peut se produire. Si l'équilibre limite est réalisé sur la ligne de glissement on a t = t f e t F = 1 7.1.2 - Caractéristiques réelIes et caractéristiques réduites Une autre manière d'évaluer la marge de sécurité consiste à remplacer les caractéristiques réelles C et 4 du matériau par des caractéristiques Ct'et 4'' pour lesquelles le talus sera sur le point de se rompre. On définit deux coefficients de sécurité, l'un par rapport à la cohésion et l'autre par rapport au frottement interne. Pour des raisons de commodité, on définit un coefficient unique :
  • 270.
    259 L'équilibre du massifse traduit par : rIA' (c + d t g @ ds = WI C F r jcA(c + a'tg4) ds F = w1 Cette formule n'est identique qu'en apparence à la formule équivalente correspondant à la première définition. En effet, dans le premier cas les contraintes normales O' sont dits réellement appliquées dans un d'équilibre élastique, tandis que dans le deuxième cas, il s'agit d'une distribution d'efforts virtuels dans un état d'équilibre plastique. 7.2 - Calcul de la stabilité d'un barrape en terre par la méthode des tranches La stabilité d'un barrage en terre est ceile de la stabilité de son talus amont et de son talus aval sur sa fondation. Au niveau actuel des connaissances il n'existe pas de méthodes permettant de calculer la stabilité sans faire des hypothèses. On se donne une surface de rupture au contact de laquelle il peut avoir glissement. Pour cela, on prend en général une surface cylindrique circulaire à axe horizontal, qui apparaît comme un cercle de glissement dans une coupe verticale de la digue. Il s'avère que cette hypothèse est bien traduite en pratique. En plus de cette hypothèse, on découpe le terrain en tranches verticales de faible épaisseur juxtaposées et on étudie l'équilibre de l'ensemble. Fig 7.43 - Calcul de stabilité :méthode des tranches Ligne phréotique Tronche d'ordre n Talus amont
  • 271.
    260 7.2.1 -Définition di =portion de cercle de glissement interceptée par a tranche d'ordre n 1 = longueur de l'arc de cercle situé dans la partie saturée, c'est à dire sous la ligne phréatique (on admet que la partie non saturée est fissurée et a une cohésion nulle c = O) Nn = la composante normale et T, = composantetangentielle du poids P, de la tranche ramené au niveau du cercle de glissement Xn et 2, = composante de l'action de la tranche d'ordre n - 1 sur la tranche d'ordre n Pour tenir compte de l'action du séisme, on réduit la pesanteur de O à 20 % et on y ajoute une composante horizontal comprise entre O et 0,2 g. Xn + 1 et 2, + = composantes de l'action de la tranche d'ordre n + 1 sur la tranche n a = angle entre l'élément dl et l'horizontale. On sait que le barrage et sa fondation quand elle est alluvionnaire sont formés de terres dont la résistance au cisaillement T est fonction de la contrainte normale N, de la pression interstitielle u et des deux caractéristiques cohésion C est angle de frottement interne 4 dans le domaine inter- granulaire selon la relation : T = C + (N- U) tg$ (résistance au cisaillement). Selon la nature des hypothèses considérées sur les interactions entre tranches et sur la pression interstitielle, il existe plusieurs méthodes. Nous parlerons de la méthode de Fellenius perfectionnée par Bishop 7.2.2 - Méthodes de FelIenius et de Bishop Dans les deux cas on admet que la rupture suit une surface de glissement de forme cylindrique circulaire et qu'elle se produit instantanément et simultanément le long de toute la surface. On considère d'autre part qu'il n'y a aucune interaction dans la 3èmedimension du barrage transversale à la vallée. Pour que cette approximation soit valable, la longueur de barrage dans cette 3he dimension doit être 2 à 3 fois la longueur de l'arc de rupture. Cette hypothèse étant faite, on trace sur une coupe transversale du barrage plusieurs cercles de glissement et on recherche Ie cercle le plus critique, c'est à dire celui qui représente le coefficient de sécurité le plus faible.
  • 272.
    261 7.2.2.1 - Méthodede Felleniiis Hvpothèse : 1) xn+i- xn= O 1) zn+l- 2, = O (au niveau de chaque tranche) Cela veut dire qu'il n'y a pas d'interaction. 2) La force tangentielle T est motrice car elle a tendance à entraîner le glissement. T, = composantetangentielle du poids du (sol + l'eau) contenus dans la tranche n La densité utilisée pour calculer T,, est la densité saturée pour la portion située sous la ligne phréatique et la densité humide pour la partie située au-dessus. 3) La force N est stabilisatrice car elle mobilise le frottement interne. Elle crée une force résistante Ntg$ opposé à T. Mais en milieu saturé, seules les forces intra-gramilaires sont susceptibles de mobiliser le fiottement. N est donc la composante normale du poids immergé, c'est à dire le poids calculé à partir de la densité saturée diminuée de 1. On l'appelle généralement N'. Soit R = rayon du cercle de glissement. moment des forces résistantes = E (moments des forces de frottement et de celles de cohésion) C (N'tg$) R + C (c. dl) R = (XN't& f ci) R moment des forces motrices : C T.R = R C T On calcule le coefficient de sécurité F : CN'. tg4 + c.1 F = C T 7.2.2.2 -Variante Une variante de la méthode Fellinius consiste a omettre l'hypothèse simplificatrice no 3 et à tenir compte de la pression interstitielle. On prend alors pour N la composante normale du poids total calculé à partir de la densité saturée. N engendre sur dl une pression totale moyenne - de laquelle il faut déduire la pression interstitielle u régnant dans cette zone. La force de frottement mobilisée le long de dl est alors : N dl . (z- U) tg&dl = (N - udl) tg@
  • 273.
    262 Moment des forcesrésistantes : C(N - udl) tg$ R + C(c.dl)R = R [C(N - udl) t& + CI] Moment des forces motrices : CTR = U T Le coefficient de sécurité : C(N- udl)tg4 + clF =A CT 7.2.2.3 - Méthode de Bishon Elle est plus générale car si l'on conserve zn+, - zn= 0 . On admet que Xn+,# X, D'autre part on tient compte systématiquement de la pression interstitielle, comme dans la 2ème variante de la méthode de Fellenius. Le coefficient de sécurité a la même définition que ci-dessus, mais son expression est plus complexe : cdl + tg$ (N - üdl) mx = coefficient différent pour chaque tranche et lui- même fonction de F (a= angle entre l'élément dl et l'horizontale) Le calcul s'opère par itérations successives. On évalue par la méthode le Fellenius une première valeur de F qui est introduite dans le calcul, ce qui donne une deuxième évaluation plus fine etc. La méthode de Bishop est plus précise que celle de Fellenius mais elle nécessite 3 à 4 fois plus de calculs (obligation d'opérer 3 à 4 itérations). Les coefficients de sécurité obtenus sont en général un peu plus élevés. Le plus souvent, pour alléger les calculs, on détermine d'abord le cercle le plus critique par la méthode de Fellenius et on vérifie que la valeur du coefficient de sécurité calculé par la méthode de Bishop est supérieure à celle calculée par la méthode Fellenius. Si ce n'est pas le cas, il faut reprendre la recherche du cercle critique selon la méthode de Bishop.
  • 274.
    263 Fig 7.44 -Stabilité du talus amont calculée sur ordinateur . . SOC;REAiIIly."t.P" G l u i l . a----1-IAUTEUR DIGUE 5.00m < 1.1 ,< 6,OUm.TA 10 SURFACES ESSAYEES LES PLUS CRllIOUES COEF. OE SECURITE FlNlMUM = 1.03 US A 3 ?T2/1 .VIDANGE RAPIDE. WI'E P.VOL P.VOL COll~SiONANGLE DE PR SSION FACTEUR LIGNE SOC IlUMlOE SAlURET INTERNE FROTIEM. INfERÇII. PRESSION PIEZO. NO. (KN/M3) (KN/MS) (KPA) (DEC) PARAMETRE (KPA) NO. 21.0 10 JO 0.00 0.0 21.0 10 JO 0.00 0.0 1 20.0 2 20.0 1 1 3 20.0 21.0 O JO 0.00 0.0 1 DISIANCE t-+-4-+- 5 10 15 20 25 30 35 40 45 50 55 Programme SIAOL V J.12 - SOCRW! 12/02/9{
  • 275.
    264 Hauteur du Barrage (enm> Inférieure à 5 m 5 à 1 0 m 1 0 à 2 0 m 7.3 -Ouelaues valeurs forfaitaires de dimensionnement des pentes de talus de digues de barrages Type du Barrage - Homogène - A zones - Homogène, granularité étendue - Homogène, à fort pourcentage d'argile - A zones - Homogène, granularité étendue - Homogène, à fort pourcentage d'argile - A zones A titre indicatif, le tableau ci-après donne quelques valeurs de dimensionnement qui devront être confirmées par une étude de stabilité. Pentes des talus ÏAmont 2/25 1/ 2 112 113.5 1/2 U2.5 113 1/ 2 1/2 I V2.5 U2.5 1 112.5 U2.5 l1/3 .
  • 276.
    ,.--. . .. BIBLIOGRAPHIE 1. AUVRAY C. et RODER J. "Estimation des débits de crues décennales pour les bassins versants de superficie inférieure à 200 km2 en Mique Occidentale", ORSTOM, 30 p., 1965 2. BECOM 3. CARLIERM. 4. CEMAGREF 5. CORIPAORE M.L "HydrauliqueRoutière" ibfinistère fiançais de la coopération et du développement,342 p., 1981 "HydrauliqueGénérale et Appliquée, Ed. Eyrolles, Pans, 565 p. , 1986 "Introduction de techniques innovantes en matière de Barrages en terre en zone sahélienne", CEMAGREF, 56 p., 1989 "Etude comparative, technique et économique d'un déversoir central de barrage et d'un déversoir en béton armé type tête de mouton", Mémoire, 80 p. 1984 6. C0STET.J et SANGLERAT G. "Cours pratique de mécanique des sols" -Tomes 1 et 2, Edition Dunod, Paris 1983 7. CHUZEVlLLE B. 8. D'AT DE ST FOULC J., GILARD O., PIATON H. 9. GROUPE D'AUTEURS "Hydrologie tropicale et appliquée en Afhque subsaharienne" ;Ministère de la coopération et du développement (FRrtlTCE), 275 p., 1990 "Petitsbarrages en terre au Burkina Faso : bilan et analyse critique", CIEH, UNESCO, EIER, 180p. 1986 "Techniques des barrages en aménagement rural" - Ministère de l'Agriculture (FRANCE), 325 p . , 1977
  • 277.
    II_______-- ___ * 10. GRESILLONJ.M. 11. GRESILLON J.M, LAEMYE J.P., HERTER P., METRO T. 12. KREMENETSKI N., SCHTERENLIHT D. ALYCHEV V. YAKOVLEVA L. 13. POCHAT R. 14. POST G., LONDE P. 15. SCHNEEBELI G. "Petits barrages en terre en Afrique Occidentale" - Polycopié de cours EIER, 155p., 1976 "Quelques aspects de l'hydraulique des barrages" - EIER - CIEH, 74 p., 1978 "Hydraulique",Ed. MIR Moscou, 3 19 p, 1980 "Evacuateurs de crues", CTGREF - Bulletin Technique du Génie Rural N0125,43 p, 1980 "Les barrages en terre compactée - Pratiques américaines", Ed. Gauthier - Villars, 175 p., 1953 "Hydraulique souterraine", Ed. Eyroiles, Park, 362p., 1978 16. U.S. BUREAU OF RECLAMATION "Design of small dams'', Washington, 816 p. 1977 17. VARLET H. 18. VEN TE CHOW 19. VEN TE CHOW "Barrages Réservoirs" Tome 1, Ed. Eyrolles, Paris, 335 p., 1966 "Handbook of applied hydrology", Mc Graw-HillBook COMPANY,1964 "Open Channel hydraulics", Ed. Mc Graw-Hill, 680 p., 1986 .