ELECTROTECHNIQUE
INSTALLATION ELECTRIQUE
D'UN
PAVILLON DE TYPE T7
Juguet philippe - A.Kastler
http://www.electrotechnique-fr.com
www.4geniecivil.com
Exemple d'installation électrique d'un Pavillon (schémas, implantations, câblages,...)
1 Organisation générale d'une installation.
Toute installation électrique peut se décomposer de la façon suivante.
SOURCE
APPAREILLAGE
DE
PROTECTION
Accumulateurs
Alternateur
Fusibles
Disjoncteurs
Relais thermiques
Interrupteur
Bouton-poussoir
Commutateurs
Contacteurs, relais
Moteur
Radiateur
Lampe
Relais magnetiques
D'ENERGIE
APPAREILLAGE
DE
COMMANDE
APPAREILLAGE
D'UTILISATION
Piles
Génératrice C.C.
APPAREILLAGE
DE
CONNEXION
CANALISATIONS
Bornes de jonction
Barrettes
Connecteurs
Prises et fiches
Fils et câbles
Barres
Conduits
En électricité batiment, on considérera, la plupart du temps, le
compteur d'énergie comme source d'énergie.
Le compteur d'énergie est l'appareil qui mesure l'énergie
consommée par une installation. Etalonné precisémment,
c'est sur la base de son relevé que sont établies les factures
EDF. Toute modification de cet appareil est reprehensible par
la loi. C'est pourquoi EDF, dans le but de le rendre
infraudable, pose des plomb spéciaux sur les vis de fixation
de son capot.
L'installation électrique n'est accessible à l'électricien qu'en
aval du disjoncteur de branchement. La partie supérieure du
disjoncteur est également plombée pour rendre inaccessible
la zone de réglage du disjoncteur. La valeur de réglage
dépend en effet du type d'abonnement choisi par le client.
Tous les schémas utilisés dans les thèmes et exercices
suivants partiront toujours de le zone comprise entre le
compteur d'énergie et le disjoncteur.
Propriété EDF
Propriété utilisateur
kWh
I
0
Compteur
Disjoncteur
Merlin gérin
Zone de réglage
http://www.electrotechnique-fr.com
www.4geniecivil.com
Exemple d'installation électrique d'un Pavillon (schémas, implantations, câblages,...)
2 Représentations graphiques des installations électriques.
Le schéma électrique est un langage normalisé, commun à tous les électriciens. Les différents organes électriques y sont
représentés sous forme de symboles et les liaisons électriques entre ces organbes électriques par des traits.
Il existe quatre principaux types de schémas.
230V
Pour repérer la nature des conducteurs, on utilise soit des
couleurs soit des symboles.
2.1 Le schéma architectural.
Rédigé par l'architecte avec le client, son rôle est de préciser
l'emplacement du matériel et des arrivées de tension.
Utilisé par l'installateur électricien : c'est donc un schéma
d'éxécution.
2.2 Le schéma multifilaire.
Rédigé par l'électricien à partir du schéma architectural, c'est un
schéma d'éxécution qui précise le cheminement exact des
conducteurs et leur nombre à l'intérieur de chaque conduit.
Les symboles utilisés sont différents de ceux utilisés dans le
schéma architectural (voir feuille de symboles).
Phase
Neutre
P.E.
Bleu
Jaune/vert
Couleur Symbole
Rouge, brun, noir
http://www.electrotechnique-fr.com 3
www.4geniecivil.com
Exemple d'installation électrique d'un Pavillon (schémas, implantations, câblages,...)
Ph N PE
Ph N PE
10A
20A
F1
F2
S1
L1
P1
2.3 Le schéma devellopé.
Rédigé par l'électricien, il a pour but de faciliter la
compréhension du fonctionnement du circuit.
Schéma explicatif, il est surtout utilisé lors des opérations de
dépannage.
Les symboles utilisés sont différents de ceux utilisés dans le
schéma architectural. De plus, chaque appareil reçoit un
repère de type alphanumérique précisant le type d'appareil et
son rang dans l'installation
2.4 Le schéma unifilaire.
Rédigé par l'électricien à partir du schéma multifilaire , c'est un
schéma d'éxécution dont le rôle est de simplifier la
représentation multifilaire dans le cas d'installations denses.
Rédigé par un tableautier, son rôle est de représenter la
structure arborescente du principe de distribution d'une
installation. Dans ce cas, il est aussi utilisé pour des
opérations de dépannage.
10A 10A 20A 20A 20A
F11 F12 F21 F22 F23 F31 F32 F33
F2 F3
20A 20A 32A
F1
F0
http://www.electrotechnique-fr.com
www.4geniecivil.com
Exemple d'installation électrique d'un Pavillon (schémas, implantations, câblages,...)
3 Etude du montage "SIMPLE ALLUMAGE".
Fonction :. Commander, à partir d'un endroit, un ou plusieurs points lumineux
Schéma architectural :
Cahier des charges.
2 pt lumineux centraux en S.A.
230V
Schéma devellopé :
S1
Ph N
F1
L1
PE
L2
Matériel
Représentation matérielle Désignation appareil Symbole architectural Symbole schéma developpé
Interrupteur
S....
P
N
F2
Coupe circuit Pas de symbole
ouvert
fermé
F....
Douille E27 inclinée
+ lampe
L....
http://www.electrotechnique-fr.com 5
www.4geniecivil.com
Exemple d'installation électrique d'un Pavillon (schémas, implantations, câblages,...)
4 Etude du montage "PRISE DE COURANT".
Fonction : Disposer d'une source d'alimentation électrique en différents points du local
Schéma architectural :
Cahier des charges.
1 PC 10/16A 2P+T à eclips
230V
Schéma devellopé :
F1
P2
Ph N PE
Matériel
Représentation matérielle Désignation appareil Symbole archi. Symbole developpé
Prise de courant
P....
http://www.electrotechnique-fr.com
www.4geniecivil.com
Exemple d'installation électrique d'un Pavillon (schémas, implantations, câblages,...)
5 Etude du montage "DOUBLE ALLUMAGE".
Fonction : Etablir et interrompre, ensemble ou séparément et d'un seul endroit deux circuits séparés.
Schéma architectural :
Cahier des charges.
1 pt lumineux central en S.A.+ 1 pt lumineux en apllique en S.A
commandés du même endroit
equivalent à :
1 pt lumineux central et 1 pt lumineux en applique en D.A..
230V
circuit 2
circuit 1
Schéma devellopé :
S1
Ph N
F1
L1
PE
S2 L2
Matériel
Représentation matérielle Désignation appareil Symbole archi. Symbole developpé
S1 S2
S....
S....
Interrupteur
double allumage
Remarque : la liaison cimmune aux deux interrupteurs est souvent réalisée en usine.
http://www.electrotechnique-fr.com 7
www.4geniecivil.com
Exemple d'installation électrique d'un Pavillon (schémas, implantations, câblages,...)
6 Etude du montage "VA ET VIENT".
Fonction : Commander l'allumage et l'extinction d'un ou plusieurs points lumineux à partir de 2 endroits
Schéma architectural :
Cahier des charges.
1 pt lumineux central commandé en V&V
230V
Schéma devellopé :
Ph N
F1
L1
PE
S1 S2
navettes
Matériel
Représentation matérielle Désignation appareil Symbole archi. Symbole developpé
Interrupteur Va et vient
S....
http://www.electrotechnique-fr.com
www.4geniecivil.com
Exemple d'installation électrique d'un Pavillon (schémas, implantations, câblages,...)
7 Etude du montage "PRISE DE COURANT COMMANDEE".
Fonction : Commander, à partir d'un ou deux points, la présence ou l'absence de tension sur une prise
Schéma architectural :
Cahier des charges.
1 PC 10/16A 2P+T à eclips commandée en S.A.
1 PC 10/16A 2P+T à eclips commandée en V&V.
230V
Schéma devellopé :
P1
S1
Ph N
F1
PE
S2 S3
P2
Matériel
Voir montage "Simple allumage" , montage "Prise de courant" et montage "Va et vient".
http://www.electrotechnique-fr.com 9
www.4geniecivil.com
Exemple d'installation électrique d'un Pavillon (schémas, implantations, câblages,...)
8 Etude du montage "TELERUPTEUR".
Fonction : Commander, à partir de plus de deux points, l'allumage et l'extinction d'un ou plusieurs points lumineux.
Schéma architectural :
Cahier des charges.
2 pts lumineux commandés par télérupteur.
230V
Schéma devellopé :
Ph N
F1
PE
L2
S1
S2
S3
A1 A2
1 2
circuit de
commande
circuit de
puissance
K1
L1
Matériel
Représentation matérielle Désignation appareil Symbole archi. Symbole developpé
Bouton-poussoir
Lumineux
Non lumineux
S....
A1
A2
1
2
A1
A2
1
2 Télérupteur modulaire Voir schéma ci-dessus
http://www.electrotechnique-fr.com
www.4geniecivil.com
Exemple d'installation électrique d'un Pavillon (schémas, implantations, câblages,...)
Etude du montage "TELERUPTEUR" (suite).
Etude temporelle :
0
1
0
1
0
1
boutons-
poussoirs
Bobine
Télérupteur
Lampe
0 1 2 3 4 5 6 7 8 9 10 11 12
Conclusion : ... Le télérupteur garde en mémoire l'ordre d'allumage ou l'ordre d'extinction
Circuit de commande TBT :
Ph
F1
S1
220V
24V
T1
A1
S2
S3
N PE
L1
A2
2
1
K1
Conclusion : Ce type de montage permet une commande en TBT allant dans le sens de la sécurité
http://www.electrotechnique-fr.com 11
www.4geniecivil.com
Exemple d'installation électrique d'un Pavillon (schémas, implantations, câblages,...)
9 Etude du montage "MINUTERIE AVEC EFFET".
Fonction : Commander, à partir d'un ou plusieurs points de commande, l'allumage d'un ou plusieurs points lumineux,
l'extinction se faisant automatiquement au bout d'un temps réglable
Schéma architectural :
Cahier des charges.
1 pt lumineux central commandé d'un point
par minuterie avec effet.
230V
t
Schéma devellopé :
Ph N
F1
PE
L1
S1
circuit de
commande
circuit de
puissance
K1
t
Matériel
Représentation matérielle Désignation appareil Symbole archi. Symbole developpé
0
Minuterie modulaire t Voir schéma ci-dessus
http://www.electrotechnique-fr.com
www.4geniecivil.com
Exemple d'installation électrique d'un Pavillon (schémas, implantations, câblages,...)
Etude du montage "MINUTERIE AVEC EFFET" (suite)
Etude temporelle :
bouton-
poussoir
" Bobine
minuterie "
Lampe
0
1
0
1
0
1
0 1 2 3 4 5 6 7 8 9 10 11 12
Conclusion : Chaque nouvelle action sur le bouton poussoir relance la temporisation
Variante : forçage et inhibition.
Phase
Neutre
L1
circuit de
commande
circuit de
puissance
Minuterie
2
4
BP1
BP2
BP3 3
1
6
0
Nota : La minuterie électronique (037 02 de chez LEGRAND ) représentée dans le schéma équivalent ci-dessus autorise trois
mode de fonctionnement selon la position du commutateur :
Fonnctionnement normal ( position )
Forçage de l'allumage des lampes en permanence ( position )
Inhibition (interdiction de fonctionnement) ( position 0 ).
http://www.electrotechnique-fr.com 13
www.4geniecivil.com
Exemple d'installation électrique d'un Pavillon (schémas, implantations, câblages,...)
10 Etude du montage "MINUTERIE SANS EFFET".
Fonction : Commander, à partir d'un ou plusieurs points de commande, l'allumage d'un ou plusieurs points lumineux
l'extinction se faisant automatiquement au bout d'un temps réglable. Un nouvel appui sur le bouton poussoir ne doit
pas relancer la temporisation.
Schéma devellopé :
Ph N
F1
PE
L1
S1
circuit de
commande
circuit de
puissance
K1
t
Etude temporelle :
bouton-
poussoir
" Bobine
minuterie "
Lampe
0
1
0
1
0
1
0 1 2 3 4 5 6 7 8 9 10 11 12
Conclusion : Un nouvel appui sur le bouton-poussoir avant la fin de la temporisation est sans effet.
http://www.electrotechnique-fr.com
www.4geniecivil.com
Exemple d'installation électrique d'un Pavillon (schémas, implantations, câblages,...)
11 Symboles normalisés pour schémas architecturaux D'après NFC 03- 211
SYMBOLE SYMBOLE DESIGNATION
DESIGNATION
Interrupteur simple allumage
Interrupteur S.A. bipolaire
Double interrupteur S.A.
Interrupteur va et vient
Double interrupteur va et vient
Bouton poussoir
Point d'éclairage
LIaison de dépendance
Reglette lumineuse ( fluo )
Prise 2P + T à eclips
Prise symbole général *
Interrupteur gradateur
Interrupteur S.A. lumineux B.P. lumineux
BP protégé (vitre à briser)
t Minuterie
Télérupteur
Minuterie avec préavis d'ext.
t
Touche a effleurement
Prise sécurité (transfo.sép.)
* Les prises spéciales sont différenciées par les symboles suivants : TP = Téléphone M = microphone
HP = Hauts-parleurs TV = Télévision
TX = Telex FM = modulation de fréquence
Appareils electro-domestiques.
SYMBOLE SYMBOLE DESIGNATION
DESIGNATION
Appareil de chauffage
Réfrigérateur
Lave-linge
Hotte aspirante
Congélateur
Chauffage à accumulation
Seche-linge
Four micro-ondes
Réfrigérateur/congélateur
Climatiseur Cuisinière électrique
Lave-vaiselle
*
*
*
* *
*
* *
*
http://www.electrotechnique-fr.com 15
www.4geniecivil.com
Exemple d'installation électrique d'un Pavillon (schémas, implantations, câblages,...)
12 Symboles normalisés pour schémas devellopés..
Symboles courants.
SYMBOLE SYMBOLE DESIGNATION
DESIGNATION
Interrupteur simple allumage
Interrupteur S.A. bipolaire
Double interrupteur S.A.
Interrupteur va et vient
Double interrupteur va et vient
Bouton poussoir
Lampe
Prise 2P + T à eclips
Interrupteur S.A. lumineux B.P. lumineux
Minuterie
Télérupteur
t
N
Coupe circuit fermé
Coupe circuit ouvert
http://www.electrotechnique-fr.com
www.4geniecivil.com
Exemple d'installation électrique d'un Pavillon (schémas, implantations, câblages,...)
13 Utilisation d'un catalogue.
Pour établir un devis ou passer une commande, nous sommes obligés de consulter les catalogues des constructeurs de matériel
électrique. Ce travail est fastidieux si l'on ne possède pas un minimum de méthode. Trois cas peuvent se présenter :
a) On connait la référence du produit et on cherche son nom et ses caractéristiques.
Index des références N° page
REF Produit
Application (catalogue Legrand 1993):
Référence Désignation Caractéristiques Prix TTC *
052 26 Coffret modulaire IP 30-3 2 rangées de 13 / 350x250x91 42 E
370 64 Bloc de jonction simple 10mm² pas : 10mm 2,4 E
918 00 Interrupteur unipolaire 10A -250V 8 E
b) On connait le nom du produit et ses caractéristiques et on recherche sa référence.
http://www.electrotechnique-fr.com 17
Application (catalogue Legrand 1993):
Désignation Caractéristiques Référence Prix TTC *
Minuterie 10A - 220V~ - 3 modules 037 05 78,6 E
Embout starfix 1,5 mm² - noir 376 64 0,8 E
Interrupteur Neptune 10A - 250V~ 805 00 4,2 E
c) On connait la fonction de l'appareil mais on n'est pas fixé sur le choix
Application : Recherchez une boite pour cloisons sèches suceptible d'accueillir l'interrupteur Neptune précédent. La profondeur
nécessaire est de 40mm.. Plusieurs références de boîte sont possibles. Vous chosirez la moins chère.
Désignation Caractéristiques Référence Prix TTC
Nota : PTTC (prix toutes taxes comprises) = PHT (prix hors taxes) x 1,206
FCT Référence
Sommaires Désignation
NOM Index des designations N° page Référence
www.4geniecivil.com
Exemple d'installation électrique d'un Pavillon (schémas, implantations, câblages,...)
14 Schémas architecturaux du pavillon T7
14.1 Plans de facades et de pignon du pavillon.
FACADE SUD
TN
131,16
130,76
Juguet philippe - A.Kastler
FACADE NORD
TN
131,11 130,75
http://www.electrotechnique-fr.com
www.4geniecivil.com
Exemple d'installation électrique d'un Pavillon (schémas, implantations, câblages,...)
PIGNON OUEST
130,75 130,76
TN
PIGNON EST
130,16 130,11
http://www.electrotechnique-fr.com 19
www.4geniecivil.com
Exemple d'installation électrique d'un Pavillon (schémas, implantations, câblages,...)
http://www.electrotechnique-fr.com
14.2 Cahier des charges des différents niveaux d'habitation.
Niveau rez de chaussée
Chambre 1
1 Point lumineux central en S.A.
3 PC 10/16A 2P+T
1 PC 10/16A 2P+T télécommandée en S.A.
1 Prise télévision
1 Prise téléphone
Chambre 2
1 point lumineux central en S.A.
3 PC 10/16A 2P+T.
Séjour + Repas
2 points lumineux en applique en S.A. (repas)
1 PC 10/16A 2P+T télécommandée en S.A.(Séjour)
5 PC 10/16A 2P+T.
1 Prise télévision
1 Prise téléphone
Salle de bains
2 Points lumineux en applique S.A.
1 PC 10/16A 2P+T.
W.C.
1 Point lumineux central en S.A.
Entrée
1 Point lumineux commandé en V&V.
1 PC 10/16A 2P+T .
Couloir
1 Point lumineux commandé en V&V.
Cuisine
1 Point lumineux central en S.A.
1 Point lumineux en applique en S.A.
3 PC 10/16A 2P+T
2 PC 10/16A 2P+T . 20A
1 PC 10/16A 2P+T . 32A
Etage
Chambre 3
1 Point lumineux central en S.A.
3 PC 10/16A 2P+T
Chambre 4
1 point lumineux central en S.A.
3 PC 10/16A 2P+T.
1 PC 10/16A 2P+T télécommandée en S.A.
Chambre 5
1 point lumineux central en S.A.
3 PC 10/16A 2P+T.
1 PC 10/16A 2P+T télécommandée en S.A.
1 Prise télévision
W.C.
1 Point lumineux central en S.A.
Cabinet de toilettes
2 Points lumineux en applique S.A.
1 PC 10/16A 2P+T.
Palier et escalier
2 Points lumineux commandés en V&V.
1 PC 10/16A 2P+T .
1 Prise téléphone
Grenier
1 Point lumineux central en S.A.
1 PC 10/16A 2P+T
Penderie
1 Point lumineux central en S.A.
1 PC 10/16A 2P+T
Sous-sol
Garage
2 Reglettes fluorescentes en V&V.
1 PC 10/16A 2P+T à l'entrée du garage
Coin atelier
1 Reglette fluorescente en S.A.
4 PC 10/16A 2P+T contre mur bureau.
Bureau
2 points lumineux S.A.
3 PC 10/16A 2P+T
Cave à vin.
1 Point lumineux central temporisé
Buanderie.
2 Reglettes fluorescentes commandées par 3 boutons-
poussoirs
4 PC 10/16A 2P+T contre mur extérieur
1 PC 10/16A 2P+T pour chaudière
Escalier
1 Point lumineux en applique commandé en V&V.
www.4geniecivil.com
Exemple d'installation électrique d'un Pavillon (schémas, implantations, câblages,...)
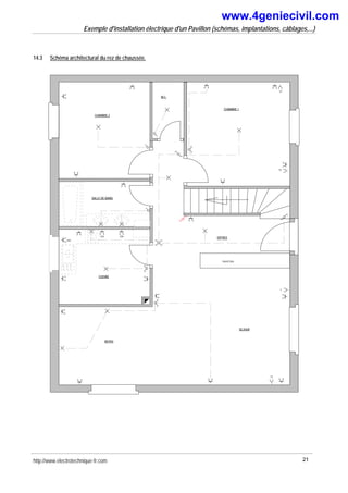
14.3 Schéma architectural du rez de chaussée.
CHAMBRE 1
CHAMBRE 2
SALLE DE BAINS
SEJOUR
REPAS
CUISINE
ENTREE
W.C.
muret bas
T
TV
32A 20A
20A
TP
TV
http://www.electrotechnique-fr.com 21
www.4geniecivil.com
Exemple d'installation électrique d'un Pavillon (schémas, implantations, câblages,...)
14.4 Schéma architectural de l'étage.
CHAMBRE 3
CHAMBRE 4
TOILETTES
W.C.
GRENIER
CHAMBRE 5
PENDERIE
PALIER
PL
PL
PL
Velux 55x98
PL
T
TV
CABINET DE
http://www.electrotechnique-fr.com
www.4geniecivil.com
Exemple d'installation électrique d'un Pavillon (schémas, implantations, câblages,...)
14.5 Schéma architectural du sous-sol.
BUREAU
GARAGE ( 2 VOITURES)
COIN ATELIER
CAVE A VIN
BUANDERIE
Chaudière
SECHOIR
t
http://www.electrotechnique-fr.com 23
www.4geniecivil.com
Exemple d'installation électrique d'un Pavillon (schémas, implantations, câblages,...)
15 Division des installations et Tableau Général Basse Tension (TGBT).
15.1 Interêt de la division
La division d'une installation permet de limiter les effets d'un
défaut à la portion de circuit ou il se produit.
Cette disposition permet de plus d'isoler un circuit pour une
opération de dépannage sans gêner les utilisateurs des autres
circuits.
Exemple : dans l'installation ci-contre, le circuit n°5 ayant
présenté un défaut, F5 a fondu. Les circuits 1,2,3,4,et 6
continuent cependant de fonctionner.
Philippe Juguet - A.Kastler
n°1 n°6
Circuits
F0
Défaut
F1 F2 F3 F4 F5 F6
n°2 n°3 n°4 n°5
15.2 Règles générales de division des installations (recommandations PROMOTELEC).
Règle 1 : l'arrivée générale est divisée en circuits ayant chacun une fonction.
a) Circuits éclairage + chauffe-eau.
b) Circuits PC 10/16A 2P+T et spécialisées ( chauffe-eau, machine à laver, cuisinière)
c) Circuit salle de bains.
d) Circuits chauffage.
Règle 2 : chaque circuit fonctionnel est subdivisé.
Afin de ne pas surcharger chaque circuit fonctionnel, PROMOTELEC, recommande de les diviser à nouveau (subdivision).
Ainsi, le circuit fonctionnel "prises de courant" peut se retrouver divisé en 3 sous-circuits.
15.3 Règle relative à la section des conducteurs.
La section d'un conducteur dépend de la nature du récepteur alimenté.
Type de récepteur Section des conducteurs
Foyer lumineux fixes
Prises 2P+T 10/16A
Chauffe-eau
Lave-linge
Lave-vaiselle
Appareil de cuisson en monophasé (220V)
Appareil de cuisson en triphasé (380V)
Four (si indépendant de l'appareil de cuisson)
Convecteurs électriques jusqu'à 2300W
jusqu'à 4600W
1,5 mm²
2,5 mm²
2,5 mm²
2,5 mm²
2,5 mm²
6 mm²
4 mm²
2,5 mm²
1,5 mm²
2,5 mm²
http://www.electrotechnique-fr.com
www.4geniecivil.com
Exemple d'installation électrique d'un Pavillon (schémas, implantations, câblages,...)
http://www.electrotechnique-fr.com 25
15.4 Règle de choix des calibres des protections.
Les calibres des fusibles ou des disjoncteurs dépendent directement de la section des conducteurs.
Section Calibre fusible Calibre disjoncteur
1,5 mm²
2,5 mm²
4 mm²
6 mm²
10A
20A
25A
32A
16A
25A
32A
40A
15.5 Nombre maximum de récepteurs par circuits.
Circuits prises 10/16A
Circuits éclairages
Circuits spécifiques (chauffe-eau, lave-linge, cuisson, etc.)
5 prises max par circuit
5 points lumineux max par circuit
1 appareil max par circuit.
15.6 Nombre minimum de circuits en fonction du nombre de pièces
Nombre de circuits
Nombre de
pièces
principales
Foyers
lumineux
fixes
Prises de
courant
10/16A
Lave linge Cuisson Chauffe-eau
Lave-
vaiselle
1
2
3
4
5
6
1
1
2
2
3
4
2
2
4
4
5
6
1
1
1
1
1
1
1
1
1
1
1
1
1
1
1
1
1
1
1
1
1
1
1
1
15.7 Nombre minimal de récepteurs suivant la hiérarchie de la pièce
Circuits spécialisés
Pièce de
l'habitation
Foyer
lumineux
fixes
Prises
10/16A Prises 16/20A Prises 32A
Séjour
Chambre
Cuisine
Salle d'eau
Entrée
W.C.
Buanderie
1
1
2
2
1
1
---
5
3
3
1
1
---
---
---
---
2
---
---
---
1
---
---
1
---
---
---
---
15.8 Protection des personnes : sensibilité des interrupteurs ou disjoncteurs différentiels.
Circuits sensibilité
Circuits prises + circuits spécialisés
Circuits éclairage + chauffe-eau
Circuits salles de bains
Circuits chauffage
30 mA
300mA
30mA
300mA
www.4geniecivil.com
Exemple d'installation électrique d'un Pavillon (schémas, implantations, câblages,...)
http://www.electrotechnique-fr.com
Nom : Prénom : Groupe :
15.9 Schéma de distribution du pavillon T7.
Travail demandé : établir le schéma de distribution partiel (uniquement le rez-de-chaussée) du pavillon T7 conformémet au
cahier des charges et aux recommandations PROMOTELEC.
Remarque: un (ou plusieurs) circuit est à prévoir pour le chauffage. Celui ci est réalisé à partir de convecteurs électriques
répartis de la façon suivante :
Chambre 1 1000W
Chambre 2 750W
Sejour 1000W
Repas 1000W
Salle de bains 750W
Couloir 750W
Entrée 750W
Tableau de synthèse des besoins en circuits.
Salle de bains
PC 10/16A PC 20A PC 32A Pt. Lum. PC 10/16A Pt. Lum. TV TP
Chambre 1 3 2 1 1
Chambre 2 3 1
Séjour + Repas 5 3 1 1
Cuisine 3 2 1 2
Salle de bains 1 2
W.C. 1
Couloir + Entrée 1 3
Nombre 15 2 1 12 1 2 1 1
Circuits 3 2 1 3 1 1
PROMOTELEC 4 2 1 3 1 1
Chauffage : La puissance totale installée est de 6000W, soit sous 230V un courant en ligne de 26A. Il est donc necéssaire
de réaliser au moins 2 circuits. Plusieurs combinaisons sont alors possibles, en voici une :
Circuit 1 : 1 x 1000W + 2 x 750W = 2500W protection 16A - conducteurs de section 1,5mm²
Circuit 2 : 2 x 1000W + 2 x 750W = 3500W protection 25A - conducteurs de section 2,5mm²
www.4geniecivil.com
Exemple d'installation électrique d'un Pavillon (schémas, implantations, câblages,...)
Nom : Prénom : Groupe :
http://www.electrotechnique-fr.com 27
(4) Convecteurs
2,5 mm²
(3) Convecteurs
1,5 mm²
(1) PC 2P+T 10/16A
2,5 mm²
(2) Eclairage
1,5 mm²
(1) Lave-vaisselle
2,5 mm²
(1) Lave-Linge
2,5 mm²
(4) PC 2P+T 10/16A
2,5 mm²
(5) PC 2P+T 10/16A
2,5 mm²
(1) Chauffe-Eau
2,5 mm²
(3) Eclairage
1,5 mm²
(4) Eclairage
1,5 mm²
25 A
25 A
25 A
16 A
16 A
16 A
25 A
25 A
16 A
25 A
30 mA
Nbre
de
récepteurs
par
circuit
Sensibilité
des
protections
Calibres
des
protections
Section
des
conducteurs
Symboles
(Ph,
N,
PE)
Récepteurs
30 mA
30 mA
30 mA
CHAUFFAGE
SALLE DE BAINS
15,30 ou 45 A
500 mA
sélectif retardé
40 A
Réseau EDF 4 mm²
(1) Plaque de cuisson
230V -50Hz
25 A
CIRCUIT PC
ECLAIRAGE
www.4geniecivil.com
Exemple d'installation électrique d'un Pavillon (schémas, implantations, câblages,...)
16 Etude et réalisation partielle du pavillon T7
16.1 Pièces retenues: ENTREE, CHAMBRE 4, BUANDERIE et CAVE A VIN.
16.2 Etude des dossiers de réalisation - critères d'évaluation EP1
Performances attendues : On vous demande de tracer les schémas multifilaires et developpés de chacune des
quatres pièces retenues en respectant le cahier des charges partiel mentionné sous
chaque plan d'implantation .
Conditions de réalisation : Fonds de plans, cours de schéma.
Critères d'évaluation. L'ensemble des 2 schémas est noté sur 10 pts répartis selon les critères d'évaluation
suivants :
Schémas exacts du point de vue fonctionnel 2 pts
Symboles corrects (graphisme et choix du symbole corrects) 4 pts
Propreté (épaisseur et linéarité des conducteurs, taches, ratures, etc..) 1 pt
Couleurs correctes (rouge = phase, bleu = neutre, vert = terre) 1 pt
Respect du parcours des canalisations (schémas multifilaires) 1 pt
Lisibilité (pas decroisements inutiles, repères lisibles sans ambiguïté) 1 pt
16.3 Réalisation de câblage partiels - critères d'évaluation EP2
Performances attendues : On vous demande de réaliser, du point de vue fonctionnel, le câblage partiel des
quatres pièces retenues.
On vous demande d'effectuer une mise en service des deux montages comportant
le télérupteur et la minuterie
Conditions de réalisation : Plans d'implantation, cours de schéma, matériel fourni, outillage.
Critères d'évaluation. Chaque montage est noté sur 40 pts répartis selon les critères d'évaluation suivants :
Temps imparti respecté (8h max par montage - moins 1 pts par 1/4 h sup) 2 pts
Bonne organisation des essais (lampes, fusibles, documents, etc...) 1 pt
Poste de travail organisé (port de la blouse, outils rangés) 1 pt
Fonctionnement correct du montage (-3pts par essai supplementaire) 9 pts
Cotes d'implantations respectées 3 pts
Fixation des appareils correctes 3 pts
Linéarité des canalisations 1 pt
Accessoires de câblage tous montés (colliers, embouts, etc..) 2 pts
Connexions conformes 3 pts
Couleurs de fils respectées 1 pt
Sections de fils respectées 1 pt
Consignes particulières respectées (position phase sur prises et douilles) 1 pt
Reserve P.E. suffisante 1 pt
Tubes IRO correctement coupés et correctement ajustés dans les boitiers 2 pts
Fils en bon état, non blessés ni coupés 1 pt
Mise en service : explications claires et cohérentes 8 pts
Rappel : Le niveau BEP recquiert un % d'objectifs atteints de 60 %
http://www.electrotechnique-fr.com
www.4geniecivil.com
Exemple d'installation électrique d'un Pavillon (schémas, implantations, câblages,...)
Nom : Prénom : Groupe :
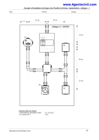
L1
P1
S1
P
N
F1
P
N
F2
10A 20A
S2
7 cm
http://www.electrotechnique-fr.com 29
16 cm 16 cm
25 cm
25 cm
Câblage n°1 : ENTREE
15 cm
4 cm
19 cm
16 cm
Juguet Philippe - A. Kastler
25 cm
28 cm
22 cm
Extrait du cahier des charges
1 Point lumineux commandé en V&V. ( L1, S1 & S2)
1 PC 10/16A 2P+T . ( P1)
www.4geniecivil.com
Exemple d'installation électrique d'un Pavillon (schémas, implantations, câblages,...)
Nom : Prénom : Groupe :
Schéma multifilaire de l'entrée
Ph
N Ph
N
10 A 20 A
P1
L1
PE
S1
S2
Schéma devellopé de l'entrée.
Ph N
S1
F2
P1
S2
Ph N
F1
L2
PE
http://www.electrotechnique-fr.com
www.4geniecivil.com
Exemple d'installation électrique d'un Pavillon (schémas, implantations, câblages,...)
Nom : Prénom : Groupe :
L1
P2
S1
P
N
F1
P
N
F2
10A 20A
S2
8 cm 15 cm 17 cm
15 cm
6 cm
17 cm
11 cm
P1
3 cm
6 cm
Câblage n°2 : CHAMBRE 4
25 cm
20 cm
21 cm
15 cm
Extrait du cahier des charges
1 point lumineux central en S.A. ( L1 & S1 )
1 PC 10/16A 2P+T. ( P1 )
1 PC 10/16A 2P+T télécommandée en S.A. ( P2 & S2 )
http://www.electrotechnique-fr.com 31
www.4geniecivil.com
Exemple d'installation électrique d'un Pavillon (schémas, implantations, câblages,...)
Nom : Prénom : Groupe :
Schéma multifilaire de la chambre 4
L1
S2
10 A 20 A
Ph
N Ph
N PE
S1
P1
P2
Schéma devellopé de la chambre 4.
S1
S2
Ph N
F2
P1
Ph N
F1
L1
PE
P2
http://www.electrotechnique-fr.com
www.4geniecivil.com
Exemple d'installation électrique d'un Pavillon (schémas, implantations, câblages,...)
Nom : Prénom : Groupe :
L1
P
N
F1
P
N
F2
20A 10A
9 cm 14 cm
http://www.electrotechnique-fr.com 33
15 cm
6 cm
17 cm
15 cm
12 cm
a b
1
2
230V
0
1
S2
S1
30 cm
Câblage n°3 : BUANDERIE
P1 K1
L1
20 cm
20 cm
12 cm 12 cm
20 cm
20 cm
Extrait du cahier des charges
1 pt lumineux commandé par 2 boutons-poussoirs et télérupteur ( L1, S1, S2 & K1 )
1 PC 10/16A 2P+T pour chaudière ( P1 )
www.4geniecivil.com
Exemple d'installation électrique d'un Pavillon (schémas, implantations, câblages,...)
Nom : Prénom : Groupe :
Schéma multifilaire de la buanderie
S1 S2
L1
P1
A1 1
2
A2
K1
20 A
Ph
N PE
10 A
Ph
N
Schéma dévellopé de la buanderie
Ph N
F1
P1
Ph N
F2
L1
PE
S1
a
1 2
b
K1
S2
http://www.electrotechnique-fr.com
www.4geniecivil.com
Exemple d'installation électrique d'un Pavillon (schémas, implantations, câblages,...)
Nom : Prénom : Groupe :
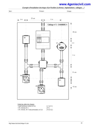
23 cm
15 cm
8 cm
12 cm
21 cm
6 cm
S2
10 cm
L1
P
N
F1
10A 1 4
2
Legrand
1
3
2
0
10 A
S1
29 cm
L2
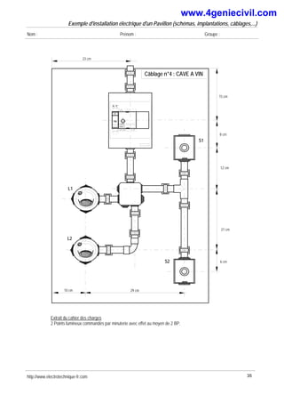
Câblage n°4 : CAVE A VIN
Extrait du cahier des charges
2 Points lumineux commandés par minuterie avec effet au moyen de 2 BP.
http://www.electrotechnique-fr.com 35
www.4geniecivil.com
Exemple d'installation électrique d'un Pavillon (schémas, implantations, câblages,...)
Nom : Prénom : Groupe :
Schéma multifilaire de la cave à vin ( d'après "cablez en sécurité - Legrand ).
L1
PE
10 A
Ph
N
1 4
2
Legrand
1
3
2
0
10 A
L2
S2
S1
Schéma dévellopé de la cave à vin
Ph N
F1
L2
PE
S2
S1
0
1
t
3
2
L1
http://www.electrotechnique-fr.com
www.4geniecivil.com
Exemple d'installation électrique d'un Pavillon (schémas, implantations, câblages,...)
17 Recommandations et consignes particulières de câblage
17.1 Dénudage des fils
L'isolant du fil, lors de l'opération de dénudage doit être coupé net et le cuivre ne doit pas être abimé. Pour cela, il est necessaire de
bien regler sa pince à dénuder.
BON MAUVAIS MAUVAIS
Isolant coupé net
Pince bien reglée
Isolant mal coupé
ouverture pince trop grande
Cuivre abimé
ouverture pince trop petite
17.2 Raccordement sur un appareil
Le fil doit arriver perpendiculairement aux bornes de raccordement. Le cuivre doit être visible mais pas trop. Il ne faut pas vriller deux
fils ensemble pour les rentrer dans une borne.
Fil correctement cambré
état isolant correct
Dénudage trop important
risque de court-circuit
5mm min.
BON
MAUVAIS
BON
Fil trop cambré
risque de déchirement de l'isolant
MAUVAIS
Dénudage correct
risque de cassure du fil
Dénudage non apparent
risque de serrage sur l'isolant
MAUVAIS
Fils vrillés
MAUVAIS
risque de cassure du fil
risque de mauvais contact
17.3 Reserves d'aisance.
Il arrive souvent que l'on ait à intervenir pour des opérations de maintenance sur un appareil déjà cablé. Pour faciliter le dépannage, il est important de prévoir lors du
câblage initial suffisammment de "mou" de fil dans les boitiers des appareils. Une réserve de 3 à 4 cm par exemple est un minimum.
Par ailleurs, le fil de terre PE prevu au niveau des douilles doit être
suffisamment long pour être raccordable sur tout autre applique lumineuse.
Prévoir en conséquence environ 8 cm de réserve.
Il est nécéssaire, dans le cas de douilles B22, d'isoler ce fil en le câblant sur
une barette volante de façon à eviter les court-circuit.
Barrette
http://www.electrotechnique-fr.com 37
www.4geniecivil.com
Exemple d'installation électrique d'un Pavillon (schémas, implantations, câblages,...)
17.4 Finition des coupes de tube IRO.
Les tubes IRO doivent être sufisamment introduits dans
les boitiers d'appareils sans toutefois déborder à
l'excès à l'intérieur de ces derniers.
La coupe doit être droite, propre et sans bavure. Pour
des raisons de sécurité évidentes, TOUS les embouts
(plats ou à gradins) doivent être montés sur les
appareils.
tube débordant
coupe négligée
MAUVAIS
embout absent
BON
tube affleurant
coupe droite
embout présent
17.5 Consignes particulières de câblage
La phase sur une douille de type E27 (à vis) doit
être câblée sur le plot central.
phase sur plot central
La phase, sur une prise de courant, doit être câblée
sur la borne de droite, prise de courant vue de face
Phase
17.6 Mode opératoire des essais des montages.
Au moment de procéder aux essais, l'élève aura préparé le montage en vue de le raccorder au réseau.
Le montage doit donc être muni de :
1) Cartouches fusibles de calibres et de dimensions adaptées
2) Cordon de raccordement secteur 2P+T
3) Lampes de tension de service adaptée
4) Obturateurs pour le coffret TGBT
Une fois le montage prêt, l'éleve appelle le professeur pour mettre le montage sous tension et procéder aux essais.
ATTENTION : SEUL LE PROFESSEUR EST HABILITE A METTRE LE MONTAGE SOUS ET HORS TENSION
http://www.electrotechnique-fr.com
www.4geniecivil.com

Exemple d'installation électrique.pdf

  • 1.
    ELECTROTECHNIQUE INSTALLATION ELECTRIQUE D'UN PAVILLON DETYPE T7 Juguet philippe - A.Kastler http://www.electrotechnique-fr.com www.4geniecivil.com
  • 2.
    Exemple d'installation électriqued'un Pavillon (schémas, implantations, câblages,...) 1 Organisation générale d'une installation. Toute installation électrique peut se décomposer de la façon suivante. SOURCE APPAREILLAGE DE PROTECTION Accumulateurs Alternateur Fusibles Disjoncteurs Relais thermiques Interrupteur Bouton-poussoir Commutateurs Contacteurs, relais Moteur Radiateur Lampe Relais magnetiques D'ENERGIE APPAREILLAGE DE COMMANDE APPAREILLAGE D'UTILISATION Piles Génératrice C.C. APPAREILLAGE DE CONNEXION CANALISATIONS Bornes de jonction Barrettes Connecteurs Prises et fiches Fils et câbles Barres Conduits En électricité batiment, on considérera, la plupart du temps, le compteur d'énergie comme source d'énergie. Le compteur d'énergie est l'appareil qui mesure l'énergie consommée par une installation. Etalonné precisémment, c'est sur la base de son relevé que sont établies les factures EDF. Toute modification de cet appareil est reprehensible par la loi. C'est pourquoi EDF, dans le but de le rendre infraudable, pose des plomb spéciaux sur les vis de fixation de son capot. L'installation électrique n'est accessible à l'électricien qu'en aval du disjoncteur de branchement. La partie supérieure du disjoncteur est également plombée pour rendre inaccessible la zone de réglage du disjoncteur. La valeur de réglage dépend en effet du type d'abonnement choisi par le client. Tous les schémas utilisés dans les thèmes et exercices suivants partiront toujours de le zone comprise entre le compteur d'énergie et le disjoncteur. Propriété EDF Propriété utilisateur kWh I 0 Compteur Disjoncteur Merlin gérin Zone de réglage http://www.electrotechnique-fr.com www.4geniecivil.com
  • 3.
    Exemple d'installation électriqued'un Pavillon (schémas, implantations, câblages,...) 2 Représentations graphiques des installations électriques. Le schéma électrique est un langage normalisé, commun à tous les électriciens. Les différents organes électriques y sont représentés sous forme de symboles et les liaisons électriques entre ces organbes électriques par des traits. Il existe quatre principaux types de schémas. 230V Pour repérer la nature des conducteurs, on utilise soit des couleurs soit des symboles. 2.1 Le schéma architectural. Rédigé par l'architecte avec le client, son rôle est de préciser l'emplacement du matériel et des arrivées de tension. Utilisé par l'installateur électricien : c'est donc un schéma d'éxécution. 2.2 Le schéma multifilaire. Rédigé par l'électricien à partir du schéma architectural, c'est un schéma d'éxécution qui précise le cheminement exact des conducteurs et leur nombre à l'intérieur de chaque conduit. Les symboles utilisés sont différents de ceux utilisés dans le schéma architectural (voir feuille de symboles). Phase Neutre P.E. Bleu Jaune/vert Couleur Symbole Rouge, brun, noir http://www.electrotechnique-fr.com 3 www.4geniecivil.com
  • 4.
    Exemple d'installation électriqued'un Pavillon (schémas, implantations, câblages,...) Ph N PE Ph N PE 10A 20A F1 F2 S1 L1 P1 2.3 Le schéma devellopé. Rédigé par l'électricien, il a pour but de faciliter la compréhension du fonctionnement du circuit. Schéma explicatif, il est surtout utilisé lors des opérations de dépannage. Les symboles utilisés sont différents de ceux utilisés dans le schéma architectural. De plus, chaque appareil reçoit un repère de type alphanumérique précisant le type d'appareil et son rang dans l'installation 2.4 Le schéma unifilaire. Rédigé par l'électricien à partir du schéma multifilaire , c'est un schéma d'éxécution dont le rôle est de simplifier la représentation multifilaire dans le cas d'installations denses. Rédigé par un tableautier, son rôle est de représenter la structure arborescente du principe de distribution d'une installation. Dans ce cas, il est aussi utilisé pour des opérations de dépannage. 10A 10A 20A 20A 20A F11 F12 F21 F22 F23 F31 F32 F33 F2 F3 20A 20A 32A F1 F0 http://www.electrotechnique-fr.com www.4geniecivil.com
  • 5.
    Exemple d'installation électriqued'un Pavillon (schémas, implantations, câblages,...) 3 Etude du montage "SIMPLE ALLUMAGE". Fonction :. Commander, à partir d'un endroit, un ou plusieurs points lumineux Schéma architectural : Cahier des charges. 2 pt lumineux centraux en S.A. 230V Schéma devellopé : S1 Ph N F1 L1 PE L2 Matériel Représentation matérielle Désignation appareil Symbole architectural Symbole schéma developpé Interrupteur S.... P N F2 Coupe circuit Pas de symbole ouvert fermé F.... Douille E27 inclinée + lampe L.... http://www.electrotechnique-fr.com 5 www.4geniecivil.com
  • 6.
    Exemple d'installation électriqued'un Pavillon (schémas, implantations, câblages,...) 4 Etude du montage "PRISE DE COURANT". Fonction : Disposer d'une source d'alimentation électrique en différents points du local Schéma architectural : Cahier des charges. 1 PC 10/16A 2P+T à eclips 230V Schéma devellopé : F1 P2 Ph N PE Matériel Représentation matérielle Désignation appareil Symbole archi. Symbole developpé Prise de courant P.... http://www.electrotechnique-fr.com www.4geniecivil.com
  • 7.
    Exemple d'installation électriqued'un Pavillon (schémas, implantations, câblages,...) 5 Etude du montage "DOUBLE ALLUMAGE". Fonction : Etablir et interrompre, ensemble ou séparément et d'un seul endroit deux circuits séparés. Schéma architectural : Cahier des charges. 1 pt lumineux central en S.A.+ 1 pt lumineux en apllique en S.A commandés du même endroit equivalent à : 1 pt lumineux central et 1 pt lumineux en applique en D.A.. 230V circuit 2 circuit 1 Schéma devellopé : S1 Ph N F1 L1 PE S2 L2 Matériel Représentation matérielle Désignation appareil Symbole archi. Symbole developpé S1 S2 S.... S.... Interrupteur double allumage Remarque : la liaison cimmune aux deux interrupteurs est souvent réalisée en usine. http://www.electrotechnique-fr.com 7 www.4geniecivil.com
  • 8.
    Exemple d'installation électriqued'un Pavillon (schémas, implantations, câblages,...) 6 Etude du montage "VA ET VIENT". Fonction : Commander l'allumage et l'extinction d'un ou plusieurs points lumineux à partir de 2 endroits Schéma architectural : Cahier des charges. 1 pt lumineux central commandé en V&V 230V Schéma devellopé : Ph N F1 L1 PE S1 S2 navettes Matériel Représentation matérielle Désignation appareil Symbole archi. Symbole developpé Interrupteur Va et vient S.... http://www.electrotechnique-fr.com www.4geniecivil.com
  • 9.
    Exemple d'installation électriqued'un Pavillon (schémas, implantations, câblages,...) 7 Etude du montage "PRISE DE COURANT COMMANDEE". Fonction : Commander, à partir d'un ou deux points, la présence ou l'absence de tension sur une prise Schéma architectural : Cahier des charges. 1 PC 10/16A 2P+T à eclips commandée en S.A. 1 PC 10/16A 2P+T à eclips commandée en V&V. 230V Schéma devellopé : P1 S1 Ph N F1 PE S2 S3 P2 Matériel Voir montage "Simple allumage" , montage "Prise de courant" et montage "Va et vient". http://www.electrotechnique-fr.com 9 www.4geniecivil.com
  • 10.
    Exemple d'installation électriqued'un Pavillon (schémas, implantations, câblages,...) 8 Etude du montage "TELERUPTEUR". Fonction : Commander, à partir de plus de deux points, l'allumage et l'extinction d'un ou plusieurs points lumineux. Schéma architectural : Cahier des charges. 2 pts lumineux commandés par télérupteur. 230V Schéma devellopé : Ph N F1 PE L2 S1 S2 S3 A1 A2 1 2 circuit de commande circuit de puissance K1 L1 Matériel Représentation matérielle Désignation appareil Symbole archi. Symbole developpé Bouton-poussoir Lumineux Non lumineux S.... A1 A2 1 2 A1 A2 1 2 Télérupteur modulaire Voir schéma ci-dessus http://www.electrotechnique-fr.com www.4geniecivil.com
  • 11.
    Exemple d'installation électriqued'un Pavillon (schémas, implantations, câblages,...) Etude du montage "TELERUPTEUR" (suite). Etude temporelle : 0 1 0 1 0 1 boutons- poussoirs Bobine Télérupteur Lampe 0 1 2 3 4 5 6 7 8 9 10 11 12 Conclusion : ... Le télérupteur garde en mémoire l'ordre d'allumage ou l'ordre d'extinction Circuit de commande TBT : Ph F1 S1 220V 24V T1 A1 S2 S3 N PE L1 A2 2 1 K1 Conclusion : Ce type de montage permet une commande en TBT allant dans le sens de la sécurité http://www.electrotechnique-fr.com 11 www.4geniecivil.com
  • 12.
    Exemple d'installation électriqued'un Pavillon (schémas, implantations, câblages,...) 9 Etude du montage "MINUTERIE AVEC EFFET". Fonction : Commander, à partir d'un ou plusieurs points de commande, l'allumage d'un ou plusieurs points lumineux, l'extinction se faisant automatiquement au bout d'un temps réglable Schéma architectural : Cahier des charges. 1 pt lumineux central commandé d'un point par minuterie avec effet. 230V t Schéma devellopé : Ph N F1 PE L1 S1 circuit de commande circuit de puissance K1 t Matériel Représentation matérielle Désignation appareil Symbole archi. Symbole developpé 0 Minuterie modulaire t Voir schéma ci-dessus http://www.electrotechnique-fr.com www.4geniecivil.com
  • 13.
    Exemple d'installation électriqued'un Pavillon (schémas, implantations, câblages,...) Etude du montage "MINUTERIE AVEC EFFET" (suite) Etude temporelle : bouton- poussoir " Bobine minuterie " Lampe 0 1 0 1 0 1 0 1 2 3 4 5 6 7 8 9 10 11 12 Conclusion : Chaque nouvelle action sur le bouton poussoir relance la temporisation Variante : forçage et inhibition. Phase Neutre L1 circuit de commande circuit de puissance Minuterie 2 4 BP1 BP2 BP3 3 1 6 0 Nota : La minuterie électronique (037 02 de chez LEGRAND ) représentée dans le schéma équivalent ci-dessus autorise trois mode de fonctionnement selon la position du commutateur : Fonnctionnement normal ( position ) Forçage de l'allumage des lampes en permanence ( position ) Inhibition (interdiction de fonctionnement) ( position 0 ). http://www.electrotechnique-fr.com 13 www.4geniecivil.com
  • 14.
    Exemple d'installation électriqued'un Pavillon (schémas, implantations, câblages,...) 10 Etude du montage "MINUTERIE SANS EFFET". Fonction : Commander, à partir d'un ou plusieurs points de commande, l'allumage d'un ou plusieurs points lumineux l'extinction se faisant automatiquement au bout d'un temps réglable. Un nouvel appui sur le bouton poussoir ne doit pas relancer la temporisation. Schéma devellopé : Ph N F1 PE L1 S1 circuit de commande circuit de puissance K1 t Etude temporelle : bouton- poussoir " Bobine minuterie " Lampe 0 1 0 1 0 1 0 1 2 3 4 5 6 7 8 9 10 11 12 Conclusion : Un nouvel appui sur le bouton-poussoir avant la fin de la temporisation est sans effet. http://www.electrotechnique-fr.com www.4geniecivil.com
  • 15.
    Exemple d'installation électriqued'un Pavillon (schémas, implantations, câblages,...) 11 Symboles normalisés pour schémas architecturaux D'après NFC 03- 211 SYMBOLE SYMBOLE DESIGNATION DESIGNATION Interrupteur simple allumage Interrupteur S.A. bipolaire Double interrupteur S.A. Interrupteur va et vient Double interrupteur va et vient Bouton poussoir Point d'éclairage LIaison de dépendance Reglette lumineuse ( fluo ) Prise 2P + T à eclips Prise symbole général * Interrupteur gradateur Interrupteur S.A. lumineux B.P. lumineux BP protégé (vitre à briser) t Minuterie Télérupteur Minuterie avec préavis d'ext. t Touche a effleurement Prise sécurité (transfo.sép.) * Les prises spéciales sont différenciées par les symboles suivants : TP = Téléphone M = microphone HP = Hauts-parleurs TV = Télévision TX = Telex FM = modulation de fréquence Appareils electro-domestiques. SYMBOLE SYMBOLE DESIGNATION DESIGNATION Appareil de chauffage Réfrigérateur Lave-linge Hotte aspirante Congélateur Chauffage à accumulation Seche-linge Four micro-ondes Réfrigérateur/congélateur Climatiseur Cuisinière électrique Lave-vaiselle * * * * * * * * * http://www.electrotechnique-fr.com 15 www.4geniecivil.com
  • 16.
    Exemple d'installation électriqued'un Pavillon (schémas, implantations, câblages,...) 12 Symboles normalisés pour schémas devellopés.. Symboles courants. SYMBOLE SYMBOLE DESIGNATION DESIGNATION Interrupteur simple allumage Interrupteur S.A. bipolaire Double interrupteur S.A. Interrupteur va et vient Double interrupteur va et vient Bouton poussoir Lampe Prise 2P + T à eclips Interrupteur S.A. lumineux B.P. lumineux Minuterie Télérupteur t N Coupe circuit fermé Coupe circuit ouvert http://www.electrotechnique-fr.com www.4geniecivil.com
  • 17.
    Exemple d'installation électriqued'un Pavillon (schémas, implantations, câblages,...) 13 Utilisation d'un catalogue. Pour établir un devis ou passer une commande, nous sommes obligés de consulter les catalogues des constructeurs de matériel électrique. Ce travail est fastidieux si l'on ne possède pas un minimum de méthode. Trois cas peuvent se présenter : a) On connait la référence du produit et on cherche son nom et ses caractéristiques. Index des références N° page REF Produit Application (catalogue Legrand 1993): Référence Désignation Caractéristiques Prix TTC * 052 26 Coffret modulaire IP 30-3 2 rangées de 13 / 350x250x91 42 E 370 64 Bloc de jonction simple 10mm² pas : 10mm 2,4 E 918 00 Interrupteur unipolaire 10A -250V 8 E b) On connait le nom du produit et ses caractéristiques et on recherche sa référence. http://www.electrotechnique-fr.com 17 Application (catalogue Legrand 1993): Désignation Caractéristiques Référence Prix TTC * Minuterie 10A - 220V~ - 3 modules 037 05 78,6 E Embout starfix 1,5 mm² - noir 376 64 0,8 E Interrupteur Neptune 10A - 250V~ 805 00 4,2 E c) On connait la fonction de l'appareil mais on n'est pas fixé sur le choix Application : Recherchez une boite pour cloisons sèches suceptible d'accueillir l'interrupteur Neptune précédent. La profondeur nécessaire est de 40mm.. Plusieurs références de boîte sont possibles. Vous chosirez la moins chère. Désignation Caractéristiques Référence Prix TTC Nota : PTTC (prix toutes taxes comprises) = PHT (prix hors taxes) x 1,206 FCT Référence Sommaires Désignation NOM Index des designations N° page Référence www.4geniecivil.com
  • 18.
    Exemple d'installation électriqued'un Pavillon (schémas, implantations, câblages,...) 14 Schémas architecturaux du pavillon T7 14.1 Plans de facades et de pignon du pavillon. FACADE SUD TN 131,16 130,76 Juguet philippe - A.Kastler FACADE NORD TN 131,11 130,75 http://www.electrotechnique-fr.com www.4geniecivil.com
  • 19.
    Exemple d'installation électriqued'un Pavillon (schémas, implantations, câblages,...) PIGNON OUEST 130,75 130,76 TN PIGNON EST 130,16 130,11 http://www.electrotechnique-fr.com 19 www.4geniecivil.com
  • 20.
    Exemple d'installation électriqued'un Pavillon (schémas, implantations, câblages,...) http://www.electrotechnique-fr.com 14.2 Cahier des charges des différents niveaux d'habitation. Niveau rez de chaussée Chambre 1 1 Point lumineux central en S.A. 3 PC 10/16A 2P+T 1 PC 10/16A 2P+T télécommandée en S.A. 1 Prise télévision 1 Prise téléphone Chambre 2 1 point lumineux central en S.A. 3 PC 10/16A 2P+T. Séjour + Repas 2 points lumineux en applique en S.A. (repas) 1 PC 10/16A 2P+T télécommandée en S.A.(Séjour) 5 PC 10/16A 2P+T. 1 Prise télévision 1 Prise téléphone Salle de bains 2 Points lumineux en applique S.A. 1 PC 10/16A 2P+T. W.C. 1 Point lumineux central en S.A. Entrée 1 Point lumineux commandé en V&V. 1 PC 10/16A 2P+T . Couloir 1 Point lumineux commandé en V&V. Cuisine 1 Point lumineux central en S.A. 1 Point lumineux en applique en S.A. 3 PC 10/16A 2P+T 2 PC 10/16A 2P+T . 20A 1 PC 10/16A 2P+T . 32A Etage Chambre 3 1 Point lumineux central en S.A. 3 PC 10/16A 2P+T Chambre 4 1 point lumineux central en S.A. 3 PC 10/16A 2P+T. 1 PC 10/16A 2P+T télécommandée en S.A. Chambre 5 1 point lumineux central en S.A. 3 PC 10/16A 2P+T. 1 PC 10/16A 2P+T télécommandée en S.A. 1 Prise télévision W.C. 1 Point lumineux central en S.A. Cabinet de toilettes 2 Points lumineux en applique S.A. 1 PC 10/16A 2P+T. Palier et escalier 2 Points lumineux commandés en V&V. 1 PC 10/16A 2P+T . 1 Prise téléphone Grenier 1 Point lumineux central en S.A. 1 PC 10/16A 2P+T Penderie 1 Point lumineux central en S.A. 1 PC 10/16A 2P+T Sous-sol Garage 2 Reglettes fluorescentes en V&V. 1 PC 10/16A 2P+T à l'entrée du garage Coin atelier 1 Reglette fluorescente en S.A. 4 PC 10/16A 2P+T contre mur bureau. Bureau 2 points lumineux S.A. 3 PC 10/16A 2P+T Cave à vin. 1 Point lumineux central temporisé Buanderie. 2 Reglettes fluorescentes commandées par 3 boutons- poussoirs 4 PC 10/16A 2P+T contre mur extérieur 1 PC 10/16A 2P+T pour chaudière Escalier 1 Point lumineux en applique commandé en V&V. www.4geniecivil.com
  • 21.
    Exemple d'installation électriqued'un Pavillon (schémas, implantations, câblages,...) 14.3 Schéma architectural du rez de chaussée. CHAMBRE 1 CHAMBRE 2 SALLE DE BAINS SEJOUR REPAS CUISINE ENTREE W.C. muret bas T TV 32A 20A 20A TP TV http://www.electrotechnique-fr.com 21 www.4geniecivil.com
  • 22.
    Exemple d'installation électriqued'un Pavillon (schémas, implantations, câblages,...) 14.4 Schéma architectural de l'étage. CHAMBRE 3 CHAMBRE 4 TOILETTES W.C. GRENIER CHAMBRE 5 PENDERIE PALIER PL PL PL Velux 55x98 PL T TV CABINET DE http://www.electrotechnique-fr.com www.4geniecivil.com
  • 23.
    Exemple d'installation électriqued'un Pavillon (schémas, implantations, câblages,...) 14.5 Schéma architectural du sous-sol. BUREAU GARAGE ( 2 VOITURES) COIN ATELIER CAVE A VIN BUANDERIE Chaudière SECHOIR t http://www.electrotechnique-fr.com 23 www.4geniecivil.com
  • 24.
    Exemple d'installation électriqued'un Pavillon (schémas, implantations, câblages,...) 15 Division des installations et Tableau Général Basse Tension (TGBT). 15.1 Interêt de la division La division d'une installation permet de limiter les effets d'un défaut à la portion de circuit ou il se produit. Cette disposition permet de plus d'isoler un circuit pour une opération de dépannage sans gêner les utilisateurs des autres circuits. Exemple : dans l'installation ci-contre, le circuit n°5 ayant présenté un défaut, F5 a fondu. Les circuits 1,2,3,4,et 6 continuent cependant de fonctionner. Philippe Juguet - A.Kastler n°1 n°6 Circuits F0 Défaut F1 F2 F3 F4 F5 F6 n°2 n°3 n°4 n°5 15.2 Règles générales de division des installations (recommandations PROMOTELEC). Règle 1 : l'arrivée générale est divisée en circuits ayant chacun une fonction. a) Circuits éclairage + chauffe-eau. b) Circuits PC 10/16A 2P+T et spécialisées ( chauffe-eau, machine à laver, cuisinière) c) Circuit salle de bains. d) Circuits chauffage. Règle 2 : chaque circuit fonctionnel est subdivisé. Afin de ne pas surcharger chaque circuit fonctionnel, PROMOTELEC, recommande de les diviser à nouveau (subdivision). Ainsi, le circuit fonctionnel "prises de courant" peut se retrouver divisé en 3 sous-circuits. 15.3 Règle relative à la section des conducteurs. La section d'un conducteur dépend de la nature du récepteur alimenté. Type de récepteur Section des conducteurs Foyer lumineux fixes Prises 2P+T 10/16A Chauffe-eau Lave-linge Lave-vaiselle Appareil de cuisson en monophasé (220V) Appareil de cuisson en triphasé (380V) Four (si indépendant de l'appareil de cuisson) Convecteurs électriques jusqu'à 2300W jusqu'à 4600W 1,5 mm² 2,5 mm² 2,5 mm² 2,5 mm² 2,5 mm² 6 mm² 4 mm² 2,5 mm² 1,5 mm² 2,5 mm² http://www.electrotechnique-fr.com www.4geniecivil.com
  • 25.
    Exemple d'installation électriqued'un Pavillon (schémas, implantations, câblages,...) http://www.electrotechnique-fr.com 25 15.4 Règle de choix des calibres des protections. Les calibres des fusibles ou des disjoncteurs dépendent directement de la section des conducteurs. Section Calibre fusible Calibre disjoncteur 1,5 mm² 2,5 mm² 4 mm² 6 mm² 10A 20A 25A 32A 16A 25A 32A 40A 15.5 Nombre maximum de récepteurs par circuits. Circuits prises 10/16A Circuits éclairages Circuits spécifiques (chauffe-eau, lave-linge, cuisson, etc.) 5 prises max par circuit 5 points lumineux max par circuit 1 appareil max par circuit. 15.6 Nombre minimum de circuits en fonction du nombre de pièces Nombre de circuits Nombre de pièces principales Foyers lumineux fixes Prises de courant 10/16A Lave linge Cuisson Chauffe-eau Lave- vaiselle 1 2 3 4 5 6 1 1 2 2 3 4 2 2 4 4 5 6 1 1 1 1 1 1 1 1 1 1 1 1 1 1 1 1 1 1 1 1 1 1 1 1 15.7 Nombre minimal de récepteurs suivant la hiérarchie de la pièce Circuits spécialisés Pièce de l'habitation Foyer lumineux fixes Prises 10/16A Prises 16/20A Prises 32A Séjour Chambre Cuisine Salle d'eau Entrée W.C. Buanderie 1 1 2 2 1 1 --- 5 3 3 1 1 --- --- --- --- 2 --- --- --- 1 --- --- 1 --- --- --- --- 15.8 Protection des personnes : sensibilité des interrupteurs ou disjoncteurs différentiels. Circuits sensibilité Circuits prises + circuits spécialisés Circuits éclairage + chauffe-eau Circuits salles de bains Circuits chauffage 30 mA 300mA 30mA 300mA www.4geniecivil.com
  • 26.
    Exemple d'installation électriqued'un Pavillon (schémas, implantations, câblages,...) http://www.electrotechnique-fr.com Nom : Prénom : Groupe : 15.9 Schéma de distribution du pavillon T7. Travail demandé : établir le schéma de distribution partiel (uniquement le rez-de-chaussée) du pavillon T7 conformémet au cahier des charges et aux recommandations PROMOTELEC. Remarque: un (ou plusieurs) circuit est à prévoir pour le chauffage. Celui ci est réalisé à partir de convecteurs électriques répartis de la façon suivante : Chambre 1 1000W Chambre 2 750W Sejour 1000W Repas 1000W Salle de bains 750W Couloir 750W Entrée 750W Tableau de synthèse des besoins en circuits. Salle de bains PC 10/16A PC 20A PC 32A Pt. Lum. PC 10/16A Pt. Lum. TV TP Chambre 1 3 2 1 1 Chambre 2 3 1 Séjour + Repas 5 3 1 1 Cuisine 3 2 1 2 Salle de bains 1 2 W.C. 1 Couloir + Entrée 1 3 Nombre 15 2 1 12 1 2 1 1 Circuits 3 2 1 3 1 1 PROMOTELEC 4 2 1 3 1 1 Chauffage : La puissance totale installée est de 6000W, soit sous 230V un courant en ligne de 26A. Il est donc necéssaire de réaliser au moins 2 circuits. Plusieurs combinaisons sont alors possibles, en voici une : Circuit 1 : 1 x 1000W + 2 x 750W = 2500W protection 16A - conducteurs de section 1,5mm² Circuit 2 : 2 x 1000W + 2 x 750W = 3500W protection 25A - conducteurs de section 2,5mm² www.4geniecivil.com
  • 27.
    Exemple d'installation électriqued'un Pavillon (schémas, implantations, câblages,...) Nom : Prénom : Groupe : http://www.electrotechnique-fr.com 27 (4) Convecteurs 2,5 mm² (3) Convecteurs 1,5 mm² (1) PC 2P+T 10/16A 2,5 mm² (2) Eclairage 1,5 mm² (1) Lave-vaisselle 2,5 mm² (1) Lave-Linge 2,5 mm² (4) PC 2P+T 10/16A 2,5 mm² (5) PC 2P+T 10/16A 2,5 mm² (1) Chauffe-Eau 2,5 mm² (3) Eclairage 1,5 mm² (4) Eclairage 1,5 mm² 25 A 25 A 25 A 16 A 16 A 16 A 25 A 25 A 16 A 25 A 30 mA Nbre de récepteurs par circuit Sensibilité des protections Calibres des protections Section des conducteurs Symboles (Ph, N, PE) Récepteurs 30 mA 30 mA 30 mA CHAUFFAGE SALLE DE BAINS 15,30 ou 45 A 500 mA sélectif retardé 40 A Réseau EDF 4 mm² (1) Plaque de cuisson 230V -50Hz 25 A CIRCUIT PC ECLAIRAGE www.4geniecivil.com
  • 28.
    Exemple d'installation électriqued'un Pavillon (schémas, implantations, câblages,...) 16 Etude et réalisation partielle du pavillon T7 16.1 Pièces retenues: ENTREE, CHAMBRE 4, BUANDERIE et CAVE A VIN. 16.2 Etude des dossiers de réalisation - critères d'évaluation EP1 Performances attendues : On vous demande de tracer les schémas multifilaires et developpés de chacune des quatres pièces retenues en respectant le cahier des charges partiel mentionné sous chaque plan d'implantation . Conditions de réalisation : Fonds de plans, cours de schéma. Critères d'évaluation. L'ensemble des 2 schémas est noté sur 10 pts répartis selon les critères d'évaluation suivants : Schémas exacts du point de vue fonctionnel 2 pts Symboles corrects (graphisme et choix du symbole corrects) 4 pts Propreté (épaisseur et linéarité des conducteurs, taches, ratures, etc..) 1 pt Couleurs correctes (rouge = phase, bleu = neutre, vert = terre) 1 pt Respect du parcours des canalisations (schémas multifilaires) 1 pt Lisibilité (pas decroisements inutiles, repères lisibles sans ambiguïté) 1 pt 16.3 Réalisation de câblage partiels - critères d'évaluation EP2 Performances attendues : On vous demande de réaliser, du point de vue fonctionnel, le câblage partiel des quatres pièces retenues. On vous demande d'effectuer une mise en service des deux montages comportant le télérupteur et la minuterie Conditions de réalisation : Plans d'implantation, cours de schéma, matériel fourni, outillage. Critères d'évaluation. Chaque montage est noté sur 40 pts répartis selon les critères d'évaluation suivants : Temps imparti respecté (8h max par montage - moins 1 pts par 1/4 h sup) 2 pts Bonne organisation des essais (lampes, fusibles, documents, etc...) 1 pt Poste de travail organisé (port de la blouse, outils rangés) 1 pt Fonctionnement correct du montage (-3pts par essai supplementaire) 9 pts Cotes d'implantations respectées 3 pts Fixation des appareils correctes 3 pts Linéarité des canalisations 1 pt Accessoires de câblage tous montés (colliers, embouts, etc..) 2 pts Connexions conformes 3 pts Couleurs de fils respectées 1 pt Sections de fils respectées 1 pt Consignes particulières respectées (position phase sur prises et douilles) 1 pt Reserve P.E. suffisante 1 pt Tubes IRO correctement coupés et correctement ajustés dans les boitiers 2 pts Fils en bon état, non blessés ni coupés 1 pt Mise en service : explications claires et cohérentes 8 pts Rappel : Le niveau BEP recquiert un % d'objectifs atteints de 60 % http://www.electrotechnique-fr.com www.4geniecivil.com
  • 29.
    Exemple d'installation électriqued'un Pavillon (schémas, implantations, câblages,...) Nom : Prénom : Groupe : L1 P1 S1 P N F1 P N F2 10A 20A S2 7 cm http://www.electrotechnique-fr.com 29 16 cm 16 cm 25 cm 25 cm Câblage n°1 : ENTREE 15 cm 4 cm 19 cm 16 cm Juguet Philippe - A. Kastler 25 cm 28 cm 22 cm Extrait du cahier des charges 1 Point lumineux commandé en V&V. ( L1, S1 & S2) 1 PC 10/16A 2P+T . ( P1) www.4geniecivil.com
  • 30.
    Exemple d'installation électriqued'un Pavillon (schémas, implantations, câblages,...) Nom : Prénom : Groupe : Schéma multifilaire de l'entrée Ph N Ph N 10 A 20 A P1 L1 PE S1 S2 Schéma devellopé de l'entrée. Ph N S1 F2 P1 S2 Ph N F1 L2 PE http://www.electrotechnique-fr.com www.4geniecivil.com
  • 31.
    Exemple d'installation électriqued'un Pavillon (schémas, implantations, câblages,...) Nom : Prénom : Groupe : L1 P2 S1 P N F1 P N F2 10A 20A S2 8 cm 15 cm 17 cm 15 cm 6 cm 17 cm 11 cm P1 3 cm 6 cm Câblage n°2 : CHAMBRE 4 25 cm 20 cm 21 cm 15 cm Extrait du cahier des charges 1 point lumineux central en S.A. ( L1 & S1 ) 1 PC 10/16A 2P+T. ( P1 ) 1 PC 10/16A 2P+T télécommandée en S.A. ( P2 & S2 ) http://www.electrotechnique-fr.com 31 www.4geniecivil.com
  • 32.
    Exemple d'installation électriqued'un Pavillon (schémas, implantations, câblages,...) Nom : Prénom : Groupe : Schéma multifilaire de la chambre 4 L1 S2 10 A 20 A Ph N Ph N PE S1 P1 P2 Schéma devellopé de la chambre 4. S1 S2 Ph N F2 P1 Ph N F1 L1 PE P2 http://www.electrotechnique-fr.com www.4geniecivil.com
  • 33.
    Exemple d'installation électriqued'un Pavillon (schémas, implantations, câblages,...) Nom : Prénom : Groupe : L1 P N F1 P N F2 20A 10A 9 cm 14 cm http://www.electrotechnique-fr.com 33 15 cm 6 cm 17 cm 15 cm 12 cm a b 1 2 230V 0 1 S2 S1 30 cm Câblage n°3 : BUANDERIE P1 K1 L1 20 cm 20 cm 12 cm 12 cm 20 cm 20 cm Extrait du cahier des charges 1 pt lumineux commandé par 2 boutons-poussoirs et télérupteur ( L1, S1, S2 & K1 ) 1 PC 10/16A 2P+T pour chaudière ( P1 ) www.4geniecivil.com
  • 34.
    Exemple d'installation électriqued'un Pavillon (schémas, implantations, câblages,...) Nom : Prénom : Groupe : Schéma multifilaire de la buanderie S1 S2 L1 P1 A1 1 2 A2 K1 20 A Ph N PE 10 A Ph N Schéma dévellopé de la buanderie Ph N F1 P1 Ph N F2 L1 PE S1 a 1 2 b K1 S2 http://www.electrotechnique-fr.com www.4geniecivil.com
  • 35.
    Exemple d'installation électriqued'un Pavillon (schémas, implantations, câblages,...) Nom : Prénom : Groupe : 23 cm 15 cm 8 cm 12 cm 21 cm 6 cm S2 10 cm L1 P N F1 10A 1 4 2 Legrand 1 3 2 0 10 A S1 29 cm L2 Câblage n°4 : CAVE A VIN Extrait du cahier des charges 2 Points lumineux commandés par minuterie avec effet au moyen de 2 BP. http://www.electrotechnique-fr.com 35 www.4geniecivil.com
  • 36.
    Exemple d'installation électriqued'un Pavillon (schémas, implantations, câblages,...) Nom : Prénom : Groupe : Schéma multifilaire de la cave à vin ( d'après "cablez en sécurité - Legrand ). L1 PE 10 A Ph N 1 4 2 Legrand 1 3 2 0 10 A L2 S2 S1 Schéma dévellopé de la cave à vin Ph N F1 L2 PE S2 S1 0 1 t 3 2 L1 http://www.electrotechnique-fr.com www.4geniecivil.com
  • 37.
    Exemple d'installation électriqued'un Pavillon (schémas, implantations, câblages,...) 17 Recommandations et consignes particulières de câblage 17.1 Dénudage des fils L'isolant du fil, lors de l'opération de dénudage doit être coupé net et le cuivre ne doit pas être abimé. Pour cela, il est necessaire de bien regler sa pince à dénuder. BON MAUVAIS MAUVAIS Isolant coupé net Pince bien reglée Isolant mal coupé ouverture pince trop grande Cuivre abimé ouverture pince trop petite 17.2 Raccordement sur un appareil Le fil doit arriver perpendiculairement aux bornes de raccordement. Le cuivre doit être visible mais pas trop. Il ne faut pas vriller deux fils ensemble pour les rentrer dans une borne. Fil correctement cambré état isolant correct Dénudage trop important risque de court-circuit 5mm min. BON MAUVAIS BON Fil trop cambré risque de déchirement de l'isolant MAUVAIS Dénudage correct risque de cassure du fil Dénudage non apparent risque de serrage sur l'isolant MAUVAIS Fils vrillés MAUVAIS risque de cassure du fil risque de mauvais contact 17.3 Reserves d'aisance. Il arrive souvent que l'on ait à intervenir pour des opérations de maintenance sur un appareil déjà cablé. Pour faciliter le dépannage, il est important de prévoir lors du câblage initial suffisammment de "mou" de fil dans les boitiers des appareils. Une réserve de 3 à 4 cm par exemple est un minimum. Par ailleurs, le fil de terre PE prevu au niveau des douilles doit être suffisamment long pour être raccordable sur tout autre applique lumineuse. Prévoir en conséquence environ 8 cm de réserve. Il est nécéssaire, dans le cas de douilles B22, d'isoler ce fil en le câblant sur une barette volante de façon à eviter les court-circuit. Barrette http://www.electrotechnique-fr.com 37 www.4geniecivil.com
  • 38.
    Exemple d'installation électriqued'un Pavillon (schémas, implantations, câblages,...) 17.4 Finition des coupes de tube IRO. Les tubes IRO doivent être sufisamment introduits dans les boitiers d'appareils sans toutefois déborder à l'excès à l'intérieur de ces derniers. La coupe doit être droite, propre et sans bavure. Pour des raisons de sécurité évidentes, TOUS les embouts (plats ou à gradins) doivent être montés sur les appareils. tube débordant coupe négligée MAUVAIS embout absent BON tube affleurant coupe droite embout présent 17.5 Consignes particulières de câblage La phase sur une douille de type E27 (à vis) doit être câblée sur le plot central. phase sur plot central La phase, sur une prise de courant, doit être câblée sur la borne de droite, prise de courant vue de face Phase 17.6 Mode opératoire des essais des montages. Au moment de procéder aux essais, l'élève aura préparé le montage en vue de le raccorder au réseau. Le montage doit donc être muni de : 1) Cartouches fusibles de calibres et de dimensions adaptées 2) Cordon de raccordement secteur 2P+T 3) Lampes de tension de service adaptée 4) Obturateurs pour le coffret TGBT Une fois le montage prêt, l'éleve appelle le professeur pour mettre le montage sous tension et procéder aux essais. ATTENTION : SEUL LE PROFESSEUR EST HABILITE A METTRE LE MONTAGE SOUS ET HORS TENSION http://www.electrotechnique-fr.com www.4geniecivil.com