C. F. P.
Concevoir un
produit injecté
Conception moules
Référence stage : 2029
(C)entre de (F)ormation de la (P)lasturgie
39, rue de la Cité – 69441 LYON CEDEX 03
Tél : 04.72.68.28.28 – Fax : 04.72.36.00.80
E-Mail : plast@cfp-lyon.com
C. F. P. CONCEVOIR UN PRODUIT INJECTE
Page 2 Module N° 2029
© Centre de Formation de la Plasturgie
C. F. P. CONCEVOIR UN PRODUIT INJECTE
Page 3 Module N° 2029
© Centre de Formation de la Plasturgie
SOMMAIRE
I. METHODOLOGIE DE CONCEPTION D'UN MOULE ............................................. 4
II. FACTEURS INFLUENÇANT LA CONCEPTION DU MOULE .............................. 7
III. CALCUL DU NOMBRE D'EMPREINTES OPTIMUM DANS UN MOULE
D'INJECTION .............................................................................................................. 13
IV. LA CONCEPTION DES MOULES........................................................................ 18
V. ARCHITECTURE D’UN MOULE .......................................................................... 20
VI. LES ACIERS.......................................................................................................... 24
VII. LE CENTRAGE .................................................................................................... 32
VIII. LES TECHNIQUES D'ALIMENTATION........................................................... 35
IX. LE MOULAGE SANS DECHET............................................................................ 49
X. EVENTATION DU MOULE................................................................................... 63
XI. FONCTION MISE EN FORME ............................................................................. 64
XII. FONCTION REFROIDISSEMENT ...................................................................... 68
XIII. DEMOULAGE..................................................................................................... 80
XIV. EJECTION........................................................................................................... 87
XV. RESUME (PRIX DE REVIENT PREVISIONNEL)............................................ 100
C. F. P. CONCEVOIR UN PRODUIT INJECTE
Page 4 Module N° 2029
© Centre de Formation de la Plasturgie
I. METHODOLOGIE DE CONCEPTION D'UN MOULE
A. CONTEXTE DE L'ETUDE D'UN MOULE
Deux situations sont possibles :
® L'entreprise sous-traite le moule chez un mouliste après consultation
à partir du dessin de définition.
C'est le bureau d' étude mouliste qui exécute l'étude du moule et il doit
intégrer toutes les fonctions dans sa réalisation : définition de
l'alimentation, du bloc empreinte , de l'éjection, du refroidissement, de la
cinématique, de l'adaptation à la machine et des fonctions sécurité et
maintenance.
Cette étude donne le plan d'ensemble, la nomenclature des éléments
constitutifs avec les aciers et les traitements.
Une validation par les spécialistes processus et production du donneur
d'ordre donnent le visa bon pour exécution après avoir demandés les
modifications ou améliorations dans la définition de l'étude.
® L'entreprise garde la maîtrise du processus de moulage et la définition
des fonctions principales du moule : alimentation, bloc empreinte,
refroidissement, éjection et cinématique des mouvements.
Un dessin de définition et un cahier des charges concernant la définition
des aciers, des traitements et des éléments standards est transmis soit à
l'atelier moule intégré ou au mouliste extérieur qui exécutera les plans
d'ensemble en complétant les fonctions non définies.
C. F. P. CONCEVOIR UN PRODUIT INJECTE
Page 5 Module N° 2029
© Centre de Formation de la Plasturgie
B. LE GROUPE D'ETUDE MOULE
L'équipe d' étude est modifiée pour faire appel à trois fonctions :
- Concepteur moule : spécialiste des dessins d'étude moule (DAO ou
autres), de l'organisation du moule, de sa cinématique et avoir une bonne
connaissance des éléments standards et de leur utilisation. Il doit aussi
maîtriser le choix des aciers et de leur traitement.
- Le spécialiste processus qui va conseiller le concepteur dans le
domaine des écoulements, de la thermique et des améliorations de
l'aspect et des performances de la pièce injectée (tensions internes, ligne
de soudure, brûlures, ....).
- Le spécialiste de l' usinage adapté au moule : parcours d'outil en CN,
faisabilité en électro érosion, .....
La définition par le dessin du moule se résume souvent à un plan
d'ensemble et aux dessins de détails des blocs empreintes. Cette approche
est rendu possible par le fait qu' un moule est un prototype et que les
professionnels qui le réalisent sont capable d'extraire les dessins de
détails du plan d'ensemble.
Le plan d'ensemble du moule définit par 3 vues principales et des coupes
complexes la structure de la carcasse, la disposition des empreintes de
l'alimentation, des mouvements, de l'éjection et du refroidissement.
C. F. P. CONCEVOIR UN PRODUIT INJECTE
Page 6 Module N° 2029
© Centre de Formation de la Plasturgie
C. METHODOLOGIE DE L'ETUDE D'UN MOULE
La méthodologie d'étude du moule permet de définir par une succession
d'étapes le déroulement et la validation :
® Des données économiques :
- productivité du moule, c'est à dire le produit de la cadence
prévisionnelle annuelle et la durée de vie du produit (nombre d'années de
vie du produit).
- optimisation du nombre d'empreintes : prix de revient de la pièce
moulée (valeur ajoutée en fonction de la production horaire, du taux
horaire de la presse à utiliser) avec part matière y compris alimentation
(suivant possibilité de recyclage ou non). Ce prix de revient est à mettre
en rapport avec l'amortissement moule dont le prix évolue lui aussi avec
le nombre d'empreinte. Le nombre d'empreinte optimum sera ramené à
un nombre pair, de préférence multiple de 2 pour des questions
d'équilibrage de longueur de canaux d'alimentation.
® De l'optimisation des performances du moule par rapport au
processus de moulage :
- élimination des défauts liés à l'écoulement et à la thermique
- optimisation des pertes de charges et des cisaillement matière
- fiabilité par une cinématique adaptée et par un dimensionnement
tenant compte de la fatigue du moule.
-adaptation à plusieurs modèles de presse pour augmenter la
flexibilité.
Les phases de l'étude du moule sont décrites dans le diagramme ci-
dessous
C. F. P. CONCEVOIR UN PRODUIT INJECTE
Page 7 Module N° 2029
© Centre de Formation de la Plasturgie
II. FACTEURS INFLUENÇANT LA CONCEPTION DU MOULE
Pièce :
- Forme
- Poids
- Epaisseur
- Nombre
- Cadence
Le facteur humain :
- Les idées de génie
du concepteur
- L'abominable
homme des non
Matière :
- Caractéristiques rhéologiques
- Caractéristiques thermiques
- Le retrait
- Coloration
- Nature
- Prix
- Tolérances
- Versions
- Aspect
Le mouliste :
- Le parc machine
- La capacité des machines
- Le savoir-faire
Délai Conception du moule Les facteurs économiques :
- Investissement
- Amortissement
Presse :
- Parc disponible
- IAG
- Multi matières
- Montage
- Buse
- Raccords
- Caractéristiques
Accessoires :
- Robot
- Régulation
- Eau
- Huile
- Puissance électrique
- Courses
- Puissance
- Vitesses
- Entre colonnes
- Plastification
Main d'œuvre :
- Disponibilité
- Qualification
- Coût
- Habitudes
C. F. P. CONCEVOIR UN PRODUIT INJECTE
Page 8 Module N° 2029
© Centre de Formation de la Plasturgie
A. PIECE :
1. Formes :
Moule à gauffre, à tiroirs, à dévissage…
Injection déportée, injections multiples, séquencées…
Mouvements à l’ouverture du moule, film charnière, pré fermeture ou pré
enfonçage d’éléments…
2. Poids :
Grosses pièces, très petites pièces (< à 1 gr) utilisation de ceintures anti
statique…
3. Epaisseur :
Parois très épaisses ou très minces (0,2 à 0,3 mm)
Longueur d’écoulement, le nombre de points d’injection…
4. Nombre :
Quantité de pièces à produire
Petite quantité moule en PT, certaines fonctions en reprise (perçage,
taraudage…).
Moule prototype…
Grande quantité (plusieurs millions, corps de stylo, rasoirs…) acier de
grandes performances, études rhéologique et thermique très poussées.
5. Cadence :
Nombre d’empreintes, moule à étage…
C. F. P. CONCEVOIR UN PRODUIT INJECTE
Page 9 Module N° 2029
© Centre de Formation de la Plasturgie
6. Tolérances :
Décompression, dévêtissage, ouvertures multiples, assistance par air
comprimé
Thermique du moule pilotée
Equilibrage des injections, éléments rapportés…
7. Versions :
Changement rapide des éléments
8. Aspect :
Acier, états de surface (polissage, grainage…)
B. FACTEURS HUMAINS
Les idées nouvelles :
Il ne sera jamais garanti que la conception d’un moule est la meilleure.
Il y a toujours moyen de trouver de nouvelles techniques, de nouveaux
éléments standards plus performants, plus simples, plus fiables donc
moins chères.
On entend trop souvent dire : « On ne change pas quelque chose qui
marche ».
C. F. P. CONCEVOIR UN PRODUIT INJECTE
Page 10 Module N° 2029
© Centre de Formation de la Plasturgie
C. MATIERE
1. Caractéristiques rhéologiques :
Section des canaux adaptés à la viscosité «pas » de canaux chauds pour
les matières thermosensibles.
2. Caractéristiques thermiques :
Moule isolé.
3. Coloration :
Dégagement de gaz +- agressifs.
4. Nature :
Matières corrosives (PVC) utilisation d’aciers inox.
Matières allégées, moule en alliages légers avec une bonne éventation.
5. Prix :
Matières chargées (Isxef 50 % FV moins cher qu’un Ixef).
D. LE MOULISTE
1. Le parc machine :
Erosion à fil, rectifieuses de profil, presse d’enfonçage…
2. La capacité des machines :
Faces d’appui fraisées ou bouchonnées mais pas rectifiées.
Empreintes rapportée, dans la masse elle ne passerait pas dans le bac de
l’érosion…
C. F. P. CONCEVOIR UN PRODUIT INJECTE
Page 11 Module N° 2029
© Centre de Formation de la Plasturgie
E. LE DELAI
Pour hier, utilisation de carcasse standard avec l’empreinte rapportée en
prétraité.
F. LES FACTEURS ECONOMIQUES
1. L’investissement :
Calcul du nombre d’empreintes économiques.
2. L’amortissement :
Nombre de cycles pour amortir un bloc chaud, pour amortir un moule…
G. LA PRESSE
1. Le parc disponible :
Force de fermeture, volume injectable, capacité plastification horaire,
nombre d’asservissements,…
2. Montage :
Fixation par brides, boutonnières, automatique,…
Le centrage, l’appui de la buse, l’attelage d’éjection, les raccords,…
C. F. P. CONCEVOIR UN PRODUIT INJECTE
Page 12 Module N° 2029
© Centre de Formation de la Plasturgie
H. LA MAIN D’ŒUVRE
1. Qualification :
2. Disponibilité :
3. Habitudes :
4. Coût :
Moule exploité dans les pays où la main d’œuvre est bon marché (reprise
d’usinage, ébavurage des pièces, pose d’inserts…)
I. LES ACCESSOIRES
1. Robots :
2. Tapis :
3. Convoyeur :
4. Régulateur :
5. Frigo :
C. F. P. CONCEVOIR UN PRODUIT INJECTE
Page 13 Module N° 2029
© Centre de Formation de la Plasturgie
III. CALCUL DU NOMBRE D'EMPREINTES OPTIMUM DANS UN
MOULE D'INJECTION
Le calcul est nécessaire chaque fois que l'on aura le choix du nombre
d'empreintes à disposer dans un moule d'injection sans que celui-ci
modifie notablement l'architecture générale du moule ou le choix de la
presse.
X – le prix du moule à 1 empreinte en Francs
Y – le coût de l'empreinte additionnelle en Francs
Q – le coût horaire de la presse en Francs
S – le coût horaire des salaires en Francs
N – le nombre total de pièces à fabriquer
t – la durée du cycle en minute
Soit n le nombre d'empreintes recherché
Coût du moule pour n empreintes :
Cn = X + Y (n-1) = (X - Y)+ Yn
Coût du fonctionnement de la presse :
Qu =
n60
Qt
Coût du salaire par pièce :
Su =
n60
St
Coût du moule par pièce :
Cu =
N
Cn
C. F. P. CONCEVOIR UN PRODUIT INJECTE
Page 14 Module N° 2029
© Centre de Formation de la Plasturgie
En remplaçant Cn par sa valeur :
Cu =
N
Yn)YX( +−
Coût de moulage d'une pièce :
Cum = Qu + Su + Cu
En remplaçant Qu, Su et Cu par leurs valeurs
N
Yn
N
YX
n60
St
n60
Qt
Cum +
−
++=
N
Yn
N
YX
)SQ(
n60
t
Cum +
−
++=
Si l'on trace la courbe des points représentant le coût de moulage
fonction du nombre d'empreintes, on s'aperçoit que cette courbe passe
par un minimum.
Pour trouver la valeur de ce nombre d'empreintes nous donnant le coût
minimum, nous procédons à la dérivée de la fonction, puis nous égalons
à zéro pour trouver son minimum.
Rappel : dérivée de 23
x3x =
x2x2
=
1x =
d'une constante = 0
de
x
1
x
1
2=
Ici la fonction est sous la forme de cbx
x
a
y ++=
d'ou 0b
x
a
y 2
'
++=
C. F. P. CONCEVOIR UN PRODUIT INJECTE
Page 15 Module N° 2029
© Centre de Formation de la Plasturgie
Dérivons donc par rapport à n
( )
N
Y
SQ
n60
t
dn
dCum
2
++
−
=
Egalons à zéro
( ) 0
N
Y
SQ
n60
t
2
=++
−
d'ou
( )
Y
N
t
60
SQ
n2 +
=
( )
Y60
NtSQ
n
+
=
Nota : Nous remarquons que x a disparu dans la dérivée. Ceci paraît
normal puisque le calcul n'a d'intérêt qu'à partir de la deuxième
empreinte.
C. F. P. CONCEVOIR UN PRODUIT INJECTE
Page 16 Module N° 2029
© Centre de Formation de la Plasturgie
C. F. P. CONCEVOIR UN PRODUIT INJECTE
Page 17 Module N° 2029
© Centre de Formation de la Plasturgie
NOMBRE OPTIMAL D'EMPREINTE
1 Série : 400 000 pièces
2 Coût horaire machine+salaire : 250F/h
3 Pivot I à relier avec point 4
4 Coût pour une empreinte : 12 500 F
5 Pivot II à relier avec point 6
6 Temps de cycle 15s
7 Nombre d'empreintes optimal : 6
C. F. P. CONCEVOIR UN PRODUIT INJECTE
Page 18 Module N° 2029
© Centre de Formation de la Plasturgie
IV. LA CONCEPTION DES MOULES
Le moule a plusieurs fonctions à remplir.
1. Fonction alimentation
Le moule doit conduire la matière en fusion depuis la buse de presse
jusqu'à l'empreinte.
2. Fonction mise en forme
C'est la forme et les dimensions des parties moulantes qui déterminent la
forme et les dimensions de la pièce plastique.
3. Fonction refroidissement
La matière entre en fusion dans les parties moulantes. Il faut donc la
refroidir pour qu'elle se solidifie. C'est souvent le refroidissement qui est
le temps le plus important dans un cycle de moulage.
4. Fonction démoulage
Pour démouler les pièces plastiques, il faut souvent faire des
mouvements plus ou moins complexes avant de les éjecter.
5. Fonction sécurité
Les pressions nécessaires pour le remplissage et le compactage sont
considérables. Elles créent des forces pouvant atteindre plusieurs milliers
de KdaN.
C. F. P. CONCEVOIR UN PRODUIT INJECTE
Page 19 Module N° 2029
© Centre de Formation de la Plasturgie
Architecture générale d'un moule
Dans un moule nous trouverons donc :
® un système d'alimentation
® des parties moulantes
® un système de refroidissement
® un système d'éjection
En plus il devra être assez fort pour supporter les hautes pressions.
Il doit aussi permettre une adaptation facile sur la machine, pour cela il
correspond au cahier des charges du transformateur :
® identification du moule
® levage et manutention
® centrage sur la presse
® bridage du moule
®accouplements (attelage d'éjection, raccords des circuits de
refroidissement, des circuits hydrauliques, pneumatiques, électriques
thermocouples et puissances, les détecteurs de position, le contrôle de
rentrée d'éjection,...)
C. F. P. CONCEVOIR UN PRODUIT INJECTE
Page 20 Module N° 2029
© Centre de Formation de la Plasturgie
V. ARCHITECTURE D’UN MOULE
La plupart des moules sont conçus selon ce schéma.
Moule fermé pendant la phase d’injection et de refroidissement.
Ouverture du moule au plan de joint, 1ère
phase du démoulage.
C. F. P. CONCEVOIR UN PRODUIT INJECTE
Page 21 Module N° 2029
© Centre de Formation de la Plasturgie
Ejection de la pièce, 2ème
phase du démoulage.
C. F. P. CONCEVOIR UN PRODUIT INJECTE
Page 22 Module N° 2029
© Centre de Formation de la Plasturgie
C. F. P. CONCEVOIR UN PRODUIT INJECTE
Page 23 Module N° 2029
© Centre de Formation de la Plasturgie
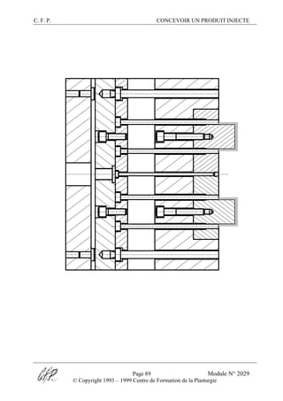
V6 Vis Chc 2 M6x20
V5 Vis Chc 2 M6x12
V4 Vis Chc 6 M8x18
V3 Vis Chc 2 M12x25
V2 Vis Chc 4 M10x25
V1 Vis Chc 4 M10x100
Q Joint torique 16 J-Français φ 25x2,5
P Anneau de levage 1 Rabourdin 1022 M 16
O Ressort de compression 4 " 355 φ 16x75
N About de raccordement 4 " 901 φ 1/4"
M Bouchon 2 " 1203 φ 1/8"
L Reçu de buse 1 " 619 φ 20x63
K Repos de batterie 6 " 608 φ 16x4
J Poussoir de remise à zéro 4 " 628 φ 8x100 (94,00)
I Ejecteur 4 " 628 φ 6x160 (112,59)
H Arrache carotte 1 " 628 φ 4x100 (88)
G Goupille 8 " 501 φ 4x12
F Bague de centrage 1 " 617 φ 100
E Bague de guidage épaulée 2 " 1061 φ 12x10x25
D Colonne de guidage 2 " 651 φ 12x50x20
C Douille de centrage 4 " 551 φ 16x90
B Bague de guidage 4 " 1071 φ 16x32
A colonne de guidage 4 Rabourdin 651 φ 16x40x32
14 Barrette de sécurité 1 30x5x110
13 Attelage d'éjection 1 φ 25x100
12 Rondelle 1 φ 22x3
11 Plot de soutien 1 φ 20x50,00
10 Poinçon 4 φ 38x50,59
9 Empreinte 4 φ 38x32,00
8 Semelle 1 160x20x200
7 Plaque d'éjection 1 92x16x160
6 Contre plaque d'éjection 1 92x12x160
5 Tasseau 2 52x32x160
4 Contre plaque 1 160x32x160
3 Plaque porte poinçon 1 160x32x160
2 Plaque porte empreinte 1 160x32x160
1 Semelle 1 160x20x200
Rep. Désignation Nb Matière Traitements Cotes finies
Indice Modification Date Dessinateur
BOUCHON
CIRFAP
10 Bd Edmond Michelet
69008 LYON
Tél: 04-78-77-05-35
Poids du moule : 37Kg Echelle : 1 Date : 1er
Avril 2000 Dessinateur : JPL
Presse : Billion Matière : ABS Retrait : 0,5% Réf. N°3615
C. F. P. CONCEVOIR UN PRODUIT INJECTE
Page 24 Module N° 2029
© Centre de Formation de la Plasturgie
VI. LES ACIERS
Définition : C'est un alliage Fer Carbone
0% 1,7% 6,67% de Carbone
Fer ß______ aciers _________àß________ fontes _________à
A. LA NORME AFNOR (AVANT 1995)
1. Les aciers fins non alliés d'une grande pureté chimique :
(soufre+phosphore <0,065%)
123
XC 48 impuretés
ì ë
Acier fin 0,48% de Carbone
2. Les aciers faiblement alliés :
Aucun élément d'addition ne dépasse la teneur de 5%
0,35% de Carbone è 35 N C D 16 ç valeur du 1er élément
ì é ë
Nickel Chrome Molybdène
La valeur des éléments est à diviser par 4 pour C K M N S pour obtenir le %
réel
par 10 pour les autres éléments.
C. F. P. CONCEVOIR UN PRODUIT INJECTE
Page 25 Module N° 2029
© Centre de Formation de la Plasturgie
3. Les aciers fortement alliés :
1 élément d'addition au moins a une teneur de 5%
Acier fortement allié è Z 38 C D V 5ç % réel du 1er élément d'addition
ì é ë ë Vanadium
0,38%de Carbone Chrome Molybdène
On n'indique pas les valeurs dont la teneur est < à 1%.
B. LA NORME AFNOR DEPUIS 1995
1. Les aciers fins non alliés :
C 48
é
Acier fin à 0,48% de Carbone
2. Les aciers faiblement alliés :
Teneur en manganèse ≤ 1%
Teneur de chaque élément d'alliage 〈 5%
La désignation comprend dans l'ordre :
- un nombre entier, égal à cent fois le pourcentage de la teneur moyenne en
carbone.
- un ou plusieurs groupes de lettres, qui sont les symboles chimiques des
éléments d'addition rangés dans l'ordre des teneurs décroissantes.
- une suite de nombre, rangés dans le même ordre que les éléments d'alliage, et
indiquant le pourcentage de la teneur moyenne de chaque élément.
C. F. P. CONCEVOIR UN PRODUIT INJECTE
Page 26 Module N° 2029
© Centre de Formation de la Plasturgie
Ces teneurs sont multipliées, par un facteur variable, en fonction des éléments
d'alliage.
0,35% de Carbone è 35 Ni Cr Mo 16 ç valeur du 1er élément
ì é ë
Nickel Chrome Molybdène
Elément d'alliage Facteur
Cr, Co, Mn, Ni, Si, W 4
Al, Be, Cu, Mo, Nb,
Pb, Ta, Ti, V, Zr
10
Ce, N, P, S 100
B 1000
3. Les aciers fortement alliés :
Teneur d'au moins un élément d'alliage ≥ 5%.
La désignation commence par la lettre X suivie de la même désignation que celle
des aciers faiblement alliés, à l'exception des valeurs des teneurs qui sont en
pourcentage réel.
Acier fortement allié è X 38 Cr Mo V 5 ç % réel du 1er élément d'addition
ì é ë ë
0,38% de Carbone Chrome Molybdène Vanadium
On n'indique pas les valeurs dont la teneur est 〈 à 1%.
C. F. P. CONCEVOIR UN PRODUIT INJECTE
Page 27 Module N° 2029
© Centre de Formation de la Plasturgie
Elément d'alliage Symbole
métallurgique
Symbole chimique
Aluminium A Al
Antimoine R Sb
Argent Ag
Béryllium Be Be
Bismuth Bi Bi
Bore B
Cadmium Cd
Cérium Ce
Chrome C Cr
Cobalt K Co
Cuivre U Cu
Etain E Sn
Fer Fe Fe
Gallium Ga
Lithium Li
Magnésium G Mg
Manganèse M Mn
Molybdène D Mo
Nickel N Ni
Niobium Nb
Plomb Pb Pb
Silicium S Si
Strontium Sr
Titane T Ti
Tungstène W W
Vanadium V V
Zinc Z Zn
Zirconium Zr
C. F. P. CONCEVOIR UN PRODUIT INJECTE
Page 28 Module N° 2029
© Centre de Formation de la Plasturgie
C. ACIERS LES PLUS UTILISES POUR LA FABRICATION DES
MOULES D’INJECTION
THYSSEN AFNOR DIN daN/mm
2
Trempe +
revenu
Traitement
de surface
Grainage Ténacité Corrosion Usure Polissage λ W/m K°
HM75 XC48 1730 65/70
GLHAX 40CMD8+S 2312 105/120 Oui Non «« «
40CMD8 2311 105/115 Oui «« « «« 34
Z35CD17+S 2394 95/110 Non « ««« « 17
55NCDV7+S 2792 125/140 « ««
CNL 45NCD16 2767 52/54 Hrc (Non) Oui ««« « ««« 28
35NCD16 2766
LBV
50/52 Hrc (Non) Oui «««« « ««««
W66EFS Z38CDV5 2343
EFS
50/54 Hrc Oui Oui «« « «« ««« 27
ThyrinoxLBV Z40CNDV14 50/52 Hrc Oui « ««« «« ««« 22
SS116 Z155CDV12-1 2379 60/62 Hrc Oui « « ««« « 16
ALUMEC89 55/60 ««« 165
Cu U E-Cu 58 22 395
ELMEDURX CuCrZr 44/47 320
ELMEDURHA CUCoNiBe 70/90 210
ELMEDUR
B2
CuBe 38/43 Hrc 120
C. F. P. CONCEVOIR UN PRODUIT INJECTE
Page 29 Module N° 2029
© Centre de Formation de la Plasturgie
AUBERT
&
DUVAL
AFNOR DIN daN/mm2 Trempe +
revenu
Traitement
de surface
Grainage Ténacité Corrosion Usure Polissage λ W/m K°
SM2G 55CND4 100/110 Oui Oui «« « ««« 46
PLASTAL 55CNDV4 135/145 Oui « «« «« 46
819B 35NCD16 50/52Hrc (Non) Oui «««« « «««« 33
SMV3 (W) Z40CDV5 50/54Hrc Oui Oui «« « «« «««(«) 25
X13T6 Z40CD15 50/52Hrc Oui « ««« «« ««« 23
SANCY 2 Z165CDWV12 60/62 Hrc Oui « « ««« «« 23
APX Z16CN17-2 32/43 Hrc Oui « ««« «« ««« 19
XDBD Z100CD17 54/58 Hrc Oui «« ««« « 25
ST25 CuBe 42/44 Hrc ««« ««« « ««« 105
UDDEHOLM AFNOR DIN daN/mm2 Trempe +
revenu
Traitement
de surface
Grainage Ténacité Corrosion Usure Polissa
ge
λ W/m K°
HOLDAX 40CMD8+S 2312 105/120 Oui Non 29
IMPAX 35CND7 100/110 Oui Oui 29
RAMAXS Z33CMD17+S 100/110 Non ««« 23
ORVAR Z40CDV5 50/52 Hrc Oui «« 25
STAVAX-ESR Z38CSMV14 52/54 Hrc «« ««« «« ««« 23
OPTIMAX Z38CSMV14 52/54 Hrc «« ««« «« «««
«
23
MOLDMAX CuBe 12O
130
««« ««« 130
105
PROTHERM CuCoBe 80 245
AMPCO AFNOR DIN daN/mm2 Trempe +
revenu
Traitement
de surface
Grainage Ténacité Corrosion Usure Polissage λ W/m K°
AMPCO 18 CU Al Fe 70 63
AMPCOLOY97
AMPCOLOY972
Cu Cr
Cu Cr Zr
36
53
333
320
C. F. P. CONCEVOIR UN PRODUIT INJECTE
Page 30 Module N° 2029
© Centre de Formation de la Plasturgie
14 Barrette de sécurité 1
13 Attelage d’éjection 1
12 Rondelle 1
11 Plot de soutien 1
10 Poinçon 4
9 Empreinte 4
8 Semelle 1
7 Plaque d’éjection 1
6 Contre plaque d’éjection 1
5 Tasseau 2
4 Contre plaque 1
3 Plaque porte poinçon 1
2 Plaque porte empreinte 1
1 Semelle 1
Petite série Grande série
Petits moules
Grand
moules
Rep. Désignation Nb Traitements
C. F. P. CONCEVOIR UN PRODUIT INJECTE
Page 31 Module N° 2029
© Centre de Formation de la Plasturgie
C. F. P. CONCEVOIR UN PRODUIT INJECTE
Page 32 Module N° 2029
© Centre de Formation de la Plasturgie
VII. LE CENTRAGE
Fixation du moule : Bilan des centrages et des guidages.
Bague de
centrage sans
épaulement
Bague de centrage
épaulée.
C. F. P. CONCEVOIR UN PRODUIT INJECTE
Page 33 Module N° 2029
© Copyright Centre de Formation de la Plasturgie
La pression dans l'empreinte peut entraîner un
glissement entre la partie fixe et la partie
mobile.
Le centrage évite le glissement entre les deux
parties du moule.
Les parties du moule peuvent s'excentrées sous l'effet de la pression
matière. Le remplissage peut être favorisé dans une partie du moule ce
qui amplifie le défaut.
Pour éviter une excentration des deux parties du moule, on procède à un
recentrage soit par un "cône" soit par des faces inclinées. Ce recentrage
peut être dans le 1er
cas en protection du plan de joint et dans le second
C. F. P. CONCEVOIR UN PRODUIT INJECTE
Page 34 Module N° 2029
© Copyright Centre de Formation de la Plasturgie
cas en maintien de l'empreinte.
C. F. P. CONCEVOIR UN PRODUIT INJECTE
Page 35 Module N° 2029
© Copyright Centre de Formation de la Plasturgie
VIII. LES TECHNIQUES D'ALIMENTATION
A. CAROTTE DIRECTE
Conicité 4° Maxi
R=1
(Attentionunrayontrop
fort peut créer une masse)
E Maxi
D=E Maxi+1
C. F. P. CONCEVOIR UN PRODUIT INJECTE
Page 36 Module N° 2029
© Copyright Centre de Formation de la Plasturgie
Injection par carotte inclinée
B. CAROTTE INCLINEE
La carotte inclinée est une solution simple pour résoudre le problème
d'excentration d'une empreinte.
Son utilisation évite l'emploi d'un bloc chaud, ou de faire travailler les
mécanismes de fermeture de presse en porte à faux.
L'inclinaison est ≤ à 30°, le rayon de démoulage,au pied de la carotte, est
très important :plus il est grand, plus il facilite le démoulage, mais plus il
augmente la masse vers l'arrache carotte et plus il augmente le temps de
cycle. Attention l'inclinaison est limitée avec des matières rigides,
notamment celles chargées fibres de verre.
C. F. P. CONCEVOIR UN PRODUIT INJECTE
Page 37 Module N° 2029
© Copyright Centre de Formation de la Plasturgie
C. LES CANAUX D'ALIMENTATION
Equilibrage des empreintes
C. F. P. CONCEVOIR UN PRODUIT INJECTE
Page 38 Module N° 2029
© Copyright Centre de Formation de la Plasturgie
C. F. P. CONCEVOIR UN PRODUIT INJECTE
Page 39 Module N° 2029
© Copyright Centre de Formation de la Plasturgie
Avantages & inconvénients des différents profils des canaux
d'alimentation.
D D D
D
d
D
D
Avantages Inconvénients
Canal cylindrique C'est le canal le plus
perfomant, car il offre une
section d'écoulement
maximale pour un périmètre
minimal.
Usinage sur 2 plaques du
moule. Cependant avec les
machines à commande
numérique cet inconvénient
disparaît.
Utilisation difficile avec les
moules 3 plaques.
Canal cylindrique plus
dépouille pour déporter le
plan de joint
Usinage sur une seule plaque
Utilisation avec les moules 3
plaques.
-Difficulté pour la réalisation
de l'outil spécial : affutage
délicat.
-Perte de matière par rapport
au canal rond
Canal trapézoïdal Usinage sur une seule plaque
Utilisation avec les moules 3
plaques.
Outil spécial plus facile à
affuter
-Perte de matière par rapport
au canal rond
Canal ½ cylindrique Mauvais écoulement
Canal rectangulaire Facilité d'exécution Mauvais démoulage
Mauvais écoulement
L'efficacité d'un canal se détermine par son Dh (diamètre hydraulique).
P
S4
Dh =
S=section
P=périmètre
C. F. P. CONCEVOIR UN PRODUIT INJECTE
Page 40 Module N° 2029
© Copyright Centre de Formation de la Plasturgie
D. LES POINTS D'INJECTION SOUS-MARIN
Ce type d'injection permet une séparation entre la pièce et le système
d'alimentation. On parle alors de dégrappage automatique.
C. F. P. CONCEVOIR UN PRODUIT INJECTE
Page 41 Module N° 2029
© Copyright Centre de Formation de la Plasturgie
Fonctionnement du décarottage automatique.
Dégrappage pendant l'ouverture Dégrappage pendant l'éjection
Forme des sous- marin pour matières non chargées.
Sous-marin conique Sous-marin tronc-conique Sous-marin sphérique
Forme des sous- marin pour matières chargées.
Position du canal par rapport au point d'injection.
Correct Correct A éviter
C. F. P. CONCEVOIR UN PRODUIT INJECTE
Page 42 Module N° 2029
© Copyright Centre de Formation de la Plasturgie
C. F. P. CONCEVOIR UN PRODUIT INJECTE
Page 43 Module N° 2029
© Copyright Centre de Formation de la Plasturgie
E. LES TUNNELS INCURVES
Cette technique permet de positionner le point d'injection en dehors d'une
zone visible, sans toutefois être obligé de retourner tout le moule.
Attention, cette technique se limite au matières non chargées fibres de
verre.
D
d3
d2
d1
X
Y
C. F. P. CONCEVOIR UN PRODUIT INJECTE
Page 44 Module N° 2029
© Copyright Centre de Formation de la Plasturgie
F. MOULE 3 PLAQUES
1. Injection capillaire ou "pin-point" :
C. F. P. CONCEVOIR UN PRODUIT INJECTE
Page 45 Module N° 2029
© Copyright Centre de Formation de la Plasturgie
2. Moules 3 plaques :
Le moule à 2
plans de joint :
1 plan de joint
pour la carotte
1 plan de joint
pour la pièce.
1ère
ouverture
plan de joint
carotte
(impératif
pour une
bonne casse
du point
d'injection)
2ème
ouverture
plan de joint
pièce
C. F. P. CONCEVOIR UN PRODUIT INJECTE
Page 46 Module N° 2029
© Copyright Centre de Formation de la Plasturgie
Moule 3 plaques
C. F. P. CONCEVOIR UN PRODUIT INJECTE
Page 47 Module N° 2029
© Copyright Centre de Formation de la Plasturgie
G. LES SYSTEMES D'INJECTION
a b dc
Alimentation pièces fermées
Alimentation pièces tubulaires
e f g h
i j k
Alimentation pièces plates
C. F. P. CONCEVOIR UN PRODUIT INJECTE
Page 48 Module N° 2029
© Copyright Centre de Formation de la Plasturgie
Les systèmes d'injection
a – Carotte directe centrale
Remplissage facile de
l'empreinte
Phase de maintien efficace
Décarottage mécanique
b – Capillaire ou "pin-point"
Remplissage correct
Phase de maintien peu efficace
Décarottage automatique
Moule 3 plaques
c – Latérale seuil direct
Ligne de soudure
Phase de maintien peu
efficace
Ovalisation des pièces
Décarottage en reprise
d – Latérale sous-marine
Ligne de soudure
Phase de maintien peu efficace
Ovalisation des pièces
Décarottage automatique
e – Canal annulaire + nappe
Pas de lignede soudure
Phase de maintien médiocre
Moule multi-empreintes
Décarottage mécanique
f – Canal annulaire + nappe
ou "diaphragme"
Pas de lignede soudure
Phase de maintien médiocre
Moule mono-empreinte
Décarottage mécanique
g – 4 seuils directs ou sous-
marins
Lignes de soudure
Phase de maintien efficace
Déformations à crainde
Décarottage plus facile ou
automatique
h – Entrée en entonnoir
Remplissage facile
Phase de maintien efficace
Cylindricité parfaite
Décarottage mécanique
i – Entrée en nappe
Remplissage correct
Phase de maintien correct
Décarottage mécanique
j – Entrée en nappe
Remplissage correct
Phase de maintien correct
Décarottage manuel ou
mécanique
k – Entrée en nappe
Sous-marin possible
Remplissage correct
Phase de maintien correct
Décarottage mécanique ou
automatique
C. F. P. CONCEVOIR UN PRODUIT INJECTE
Page 49 Module N° 2029
© Copyright Centre de Formation de la Plasturgie
IX. LE MOULAGE SANS DECHET
A. GENERALITES
L'industrie de la transformation des matières plastiques est en continuelle
évolution.
Face au pays à main d'œuvre bon marché, il faut que notre industrie
s'automatise et s'optimise.
La suppression des carottes et des canaux d'alimentation permet
d'automatiser la production.
L'utilisation de système à canaux chauds permet une diminution des
coûts matières (plus de déchet d'alimentation) et une diminution des
cycles de moulage (bien souvent la carotte et les canaux d'alimentation
par leur section importante donnent un refroidissement long).
Pour mémoire :
tR = t1mm x e 2
tR : temps de refroidissement
t1mm : temps de refroidissement pour 1mm
e : épaisseur
Le moulage en canaux chauds permet de résoudre ces problèmes.
Cette technique oblige une adaptation des savoirs faire et des
investissement plus important à court terme.
C. F. P. CONCEVOIR UN PRODUIT INJECTE
Page 50 Module N° 2029
© Copyright Centre de Formation de la Plasturgie
Dans l'injection des thermoplastiques où chaque pièce, chaque matière
sont un cas particulier, le concepteur de moule a le choix entre plusieurs
techniques matériels en fonction des critères imposés.
B. INTERET ECONOMIQUE D'UN SYSTEME A CANAUX
CHAUDS
L'analyse qui suit met en évidence les conséquences économiques de
l'utilisation d'un système à canaux chauds.
Pour cette analyse nous avons tenu compte des facteurs suivants :
® coût suplémentaire du moule
® prix de la matière injectée
® économie de matière
® taux horaire machine
® temps de cycle
C. F. P. CONCEVOIR UN PRODUIT INJECTE
Page 51 Module N° 2029
© Copyright Centre de Formation de la Plasturgie
Nous n'avons pas tenu compte des autres avantages du système qui sont
beaucoup plus difficiles à chiffrer mais qui apportent un plus par rapport
à un canal froid.
Absence de coût de stockage des carottes.
Absence de système de tri pièces/carottes.
Absence de découpe des carottes.
Absence de matière rebroyée (souvent cause de panne).
Travail en automatique sans personnel.
Nous pouvons calculer le nombre de cycles pour amortir le système par
la formule :
)th0t(
3600
Cm
Ec.mp
Ca
Ac
−+
=
Ac : Nombre de cycle de production à partir duquel l'utilisation du
système est amortie.
Ca : Coût additionnel consécutif à l'emploi du système, y compris
l'amortissement du matériel de régulation.
mp (F/Kg) : Prix de la matière plastique utilisée.
Ec (Kg) : Economie de poids des carottes réalisée par l'emploi du
système.
Cm (F/h) : Coût le l'heure machine + opérateur.
th (s) : Cadence de production avec utilisation du système à canaux
chauds.
t0 (s) : Cadence de production sans système à canaux chauds.
C. F. P. CONCEVOIR UN PRODUIT INJECTE
Page 52 Module N° 2029
© Copyright Centre de Formation de la Plasturgie
C. LE MOULAGE PAR INJECTION
Le moulage par injection de pièces plastiques consiste à transférer de la
matière à l'état plastifié dans une ou plusieurs empreintes par
l'intermédiaire d'un système d'alimentation.
3 techniques sont possibles :
1. 1ère
technique :
Les canaux permettant le transfert sont comme une pièce, il faut pouvoir
les démouler, les laisser se solidifier dans le moule ; d'où une perte de
temps et de matière même si ces canaux sont rebroyés et réutilisés en
faible pourcentage pour être de nouveau introduit dans le moule
(uniquement pour les thermoplastiques avec en général une perte des
caractéristiques mécaniques de la nouvelle pièce et une perte de retrait
même si le premier moulage a été fait dans de bonnes conditions de
transformation).
C. F. P. CONCEVOIR UN PRODUIT INJECTE
Page 53 Module N° 2029
© Copyright Centre de Formation de la Plasturgie
1ère ouverture2ème ouverture
Moule 3 plaques
La carotte se solidifie en même temps que
les pièces, d'où un déchet important de
matière.
Alimentation 16 empreintes en canal froid,
injection latérale au plan de joint du moule.
C. F. P. CONCEVOIR UN PRODUIT INJECTE
Page 54 Module N° 2029
© Copyright Centre de Formation de la Plasturgie
2. 2ème
technique :
La matière dans les canaux de transfert reste à la température de moulage
jusqu'à l'entrée de l'empreinte, ce qui se traduit par une diminution des
pertes de matière et un gain de productivité;en effet le temps de
solidification de la matière n'est plus que celui propre de la pièce, de
même que l'on gagne le temps de remplissage du système d'alimentation.
Blocchaud
Isolateur
Alliage conducteur thermique
Empreinte "froide"
Canal chaud, matière à la
températured'injection
Moule multi-empreintes
Canal chaud – bloc chaud
C anal chaud à la
tem pérature d'injection
P ièce
Alimentation de 16 empreintes sans
déchet au sommet de la pièce.
C. F. P. CONCEVOIR UN PRODUIT INJECTE
Page 55 Module N° 2029
© Copyright Centre de Formation de la Plasturgie
3. 3ème
technique :
C'est un compromis entre les deux premières techniques; une partie des
éléments de transfert garde la matière chaude tandis qu'une autre solidifie
des petits canaux (cas des petites pièces ou d'injections latérales décalées
de l'axe de la machine).
Ce compromis permet de limiter les investissements, notamment sur les
busettes. Les petits canaux ne produisants que peu de déchet, ne
perturbent pas le temps de refroidissement.
Canal chaudMini carotte
Moule multi-empreintes
Alimentation mixte : canaux chauds + canaux
froids
Canal chaud à la
température d'injection
Pièce
Canal
froid
Alimentation mixte de 16 empreintes :
- canaux chauds pour alimenter un groupe
de 4
- canux froids pour alimenter les 4 pièces
du groupe.
C. F. P. CONCEVOIR UN PRODUIT INJECTE
Page 56 Module N° 2029
© Copyright Centre de Formation de la Plasturgie
D. LES DIFFERENTS SYSTEMES DE CANAUX CHAUDS.
1. Dimensions des seuils d'injection :
Les mêmes règles sont à appliquer pour les moules à canaux chauds que
pour les moules à canaux froids.
2. La régulation thermique des éléments chauffants :
Les polymères thermoplastiques sont des produits dont la viscosité varie
selon la température. Il est impératif de prévoir un investissement en
systèmes de régulation et de contrôle des températures. L'utilisation de
moules à canaux chauds sans système de pilotage mène à l'échec.
3. Moule mono empreinte à antichambre sans obturation :
Buse machine
Matière froide
isolante
Matière chaude
Antichambre
Contredépouillepour accrochagedutampon
encasderefroidissement
Buse à anti chambre Buse à anti chambre avec accrochage
tampon.
De tels systèmes permettent de mouler le polyéthylène et le
polypropylène à grande cadence. Pour le polystyrène il est nécessaire
d'adjoindre un embout de buse en alliage à haute conductibilité
thermique.
(On utilise des alliages à base de cuivre fortement déconseillés pour la
transformation du polyéthylène et du polypropylène).
C. F. P. CONCEVOIR UN PRODUIT INJECTE
Page 57 Module N° 2029
© Copyright Centre de Formation de la Plasturgie
Buse machineEmbout de buse en
alliage de cuivre
Buse machine à pointe en alliage à haute
conductibilité thermique.
(Bronze au béryllium
Cuivre au chrome-zirconium…)
4. Moule mono empreinte à antichambre à obturation :
Dans le cas où le temps de plastification est supérieur au temps de
refroidissement, il est nécessaire d'obturer le seuil d'injection, d'où
l'utilisation de buse à obturateur (buse à aiguille).
Levier de commande
du pointeau
Buse de moule
refroidie
Pointeau
Sonde
Collier
C. F. P. CONCEVOIR UN PRODUIT INJECTE
Page 58 Module N° 2029
© Copyright Centre de Formation de la Plasturgie
5. Moule multi- empreintes à canaux chauds bloc froid :
Après avoir utilisé avec succès les buse à antichambre, les concepteurs
de moules ont eu l'idée d'utiliser cette technique pour les moules multi-
empreintes. Le principe est très simple : plus le canal d'alimentation a
une grosse section, plus il faut de temps pour qu'il se solidifie. D'où la
conception de moule selon le schéma suivant.
Moule à canaux chauds bloc froid appelé aussi canaux canadiens.
De tels systèmes marche très bien avec des seuils d'injection supérieur à
1,5mm et si les cadences sont rapides pour des polyéthylènes et des
polystyrènes (sinon solidification des seuils).Cette technique est très bien
adaptée pour une alimentation mixte sur mini carotte.
Cette technique porte aussi le nom de canal canadien.
Il est évident q'un tel système est très économique à réaliser.
Pour un changement de couleur on retire tout le système d'alimentation,
ce qui permet un nettoyage très pousser du moule.
La section de la veine fluide va se calibrer automatiquement selon le
besoin et son parcour va trouver le chemin le plus efficace.
C. F. P. CONCEVOIR UN PRODUIT INJECTE
Page 59 Module N° 2029
© Copyright Centre de Formation de la Plasturgie
C. F. P. CONCEVOIR UN PRODUIT INJECTE
Page 60 Module N° 2029
© Copyright Centre de Formation de la Plasturgie
6. Moule multi- empreintes à canaux chauds bloc froid avec
assistance thermique :
Dans le cas de moules à canaux canadiens, il est fréquent que le seuil
d'injection se solidifie au moindre arrêt de production. Il faut alors
déplaquer pour retirer tout le système d'alimentation et procéder à un
démarrage.
Pour éviter ces opérations, les concepteurs ont eu l'idée d'apporter des
calories au niveau du seuil d'injection en utilisant des busettes avec un
élément chauffant.
Ces busettes ont pour rôle de maintenir ouvert le seuil d'alimentation en
cas d'arrêt en cours de production. Les gros canaux d'alimentation ont un
temps de figeage très long.
Moule froid
Cartouche chauffante Busette
Canaux chauds isolés
Moule à canaux canadiens avec assistance thermique au point d'injection.
Ce système a permis d'injecter la plupart des matières thermoplastiques,
quelque soit la température du moule. L'énergie électrique consommée
pour maintenir la température des seuils étant très réduite.
Du fait de la réalisation des canaux dans les plaques, il est facile de voir,
en changeant de couleur, le parcour de la matière lors de l'injection.
C. F. P. CONCEVOIR UN PRODUIT INJECTE
Page 61 Module N° 2029
© Copyright Centre de Formation de la Plasturgie
7. Moule multi- empreintes à canaux chauds bloc froid avec
assistance thermique sur tout le parcour de la matière :
Dans les techniques précédentes, il reste un inconvénient : pour procédés
au démarrage du moule, il faut déplaquer pour retirer le système
d'alimentation puis suivre une procédure pour remplir le canal avant de
démarrer l'injection.
L'évolution fut d'apporter une assistance thermique tout au long du canal
d'alimentation. Cette technique consiste à apporter, par l'intermédiaire
d'éléments chauffants, les calories nécessaires pour remonter le polymère
à sa température de tranformation.
Tube à élément chauffant + sonde
Matière chaude
Blocs froids
Busette à élém ent chauffant + sonde
Moule à canaux chauds bloc froid avec assistance thermique à l'intérieur
du canal.
Il en résulte une bonne régulation thermique et une perte très faible en
énergie (les masses à mettre enchauffe étant réduites au minimum). De
plus, cette technique, permet d'arrêter et de redémarrer sans être obligé
d'enlever le canal d'alimentation.
C. F. P. CONCEVOIR UN PRODUIT INJECTE
Page 62 Module N° 2029
© Copyright Centre de Formation de la Plasturgie
8. Moule à canaux chauds bloc chaud :
Cette technique consiste à garder la matière chaude par une
assistancethermique jusqu'à l'empreinte.
Cela permet d'arrêter et de redémarrer sans que la matière se solidifie
dans le canal d'alimentation.
Bloc chaud
Isolateur
Alliage conducteur thermique
Empreinte "froide"
Canal chaud, matière à la
température d'injection
Moule à canaux chauds bloc chaud
Toutefois, du fait que le bloc chaud se trouve à la température de
transformation de la matière, il en résulte une dilatation importante des
éléments les uns par rapport aux autres et une importante perte d'énergie
thermique (certaine parties du moule étant chaudes et d'autres étant
froides).
C. F. P. CONCEVOIR UN PRODUIT INJECTE
Page 63 Module N° 2029
© Copyright Centre de Formation de la Plasturgie
X. EVENTATION DU MOULE
Pour que la matière pénettre facilement dans les empreintes, il faut que
l'air contenu dans celles-ci puisse s'échapé.
D'où la nécessité de faire des évents pour éviter la compression de l'air,
sa montée en température et des brûlures sur la pièce.
Zone où les gaz
emprisonnés vont
provoquer des
brûlures
Event
Fuite d'air
Cas des formes borgnes
(nervures…).
Utilisation des éjecteurs pour faire des
évents "dynamiques"
On réalise les évents dans les zones de fin de remplissage. La profondeur
d'un évent dépend de la viscosité du polymère, de la distance qui le
sépare du point d'injection, du savoir faire du transformateur…
Cependant des évents, placés tout le long du parcour de la matière,
faciliterons l'évacuation de l'air et le remplissage des empreintes.
C. F. P. CONCEVOIR UN PRODUIT INJECTE
Page 64 Module N° 2029
© Copyright Centre de Formation de la Plasturgie
XI. FONCTION MISE EN FORME
A. LES DEPOUILLES
Pour facilité le démoulage de la pièce, le moule doit avoir des dépouilles
qui doivent être intégrée dans la forme de la pièce.
La dépouille dépend essentiellement de l'état de surface de la pièce et de
la précision de la géométrie des surfaces (grainage, poli glace, planéité,
rectitude…).
Angle de dépouille
Plan de joint du moule
Pièce à mouler
Direction du démoulage
Dans une moindre mesure la dépouille dépend aussi de l'élasticité du
thermoplastique.
C. F. P. CONCEVOIR UN PRODUIT INJECTE
Page 65 Module N° 2029
© Copyright Centre de Formation de la Plasturgie
B. LE PLAN DE JOINT
C. LE RETRAIT
On entend par retrait les processus qui conduisent à la réduction des
dimensions de la pièce par rapport à celles du moule froid.
Le retrait exerce une influence directe sur les dimensions d'une pièce
moulée par injection.
Un retrait différentiel provoque des déformations (gauchissement ou
voilage).
Le blocage du retrait (maintien prolongé de la pièce dans le moule ou
utilisation de conformateur) engendre des tensions internes qui d'une part
altèrent la résistance globale de la pièce et d'autre part se libéreront dans
le temps entraînant des déformations.
Le retrait commence à se produire pendant la transformation, lorsque la
matière passe de l'état plastique à l'état solide (refroidissement) et que la
masse fondue amorphe se transforme en une matière partiellement
cristalline en se contractant.
Ainsi, une pièce moulée par injection est plus petite que la cote du moule
froid correspondant.
Le retrait de moulage des matières partiellement cristallines est plus
important que pour les matières amorphes.
On appelle retrait de moulage Rm la différence entre la cote du moule
froid Mf et la cote L de la pièce moulée refroidie (24h après sa
fabrication, DIN 16 901).
Le retrait de moulage est indiqué en %
100
Mf
LMf
Rm
−
=
C. F. P. CONCEVOIR UN PRODUIT INJECTE
Page 66 Module N° 2029
© Copyright Centre de Formation de la Plasturgie
La diminution de volume de la pièce moulée n'est pas encore terminée. le
retrait se poursuit dans le temps et tend vers une valeur "définitive"
d'autant plus vite atteinte que la température de stockage est élevée.
Ce phénomène, essentiellement dû à une post-cristallisation est appelé
Post-retrait Pr. Selon la norme DIN 53464, on entend par post-retrait la
différence calculée entre la cote L de la pièce moulée et la cote L1 de
cette même pièce après un traitement ultérieur à une température donnée.
Le post-retrait est indiqué en %
100
L
1LL
Pr
−
=
Le post-retrait des matières plastiques partiellement cristallines est
toujours inférieur au retrait de moulage.
La somme du retrait de moulage et du post-retrait est appelé retrait total
Rt
PrRmRt +=
Représentation schématique du retrait de moulage Rm, du post-retrait Pr
et du retrait total Rt
Moule froid
Moule chaud
Pièce à la sortie
du moule
Pièce après stockage de 24h
dans les conditions normalisées
Pièce après stockage
prolongé
Retrait de moulage
Post-retrait
Retrait total
C. F. P. CONCEVOIR UN PRODUIT INJECTE
Page 67 Module N° 2029
© Copyright Centre de Formation de la Plasturgie
Tous les phénomènes de retrait dépendent non seulement de la matière
plastique elle-même, mais aussi d'un grand nombre de paramètres de
transformation ou inhérents à l'utilisation de la pièce ou à la pièce elle-
même. C'est pourquoi nous ne pouvons donner que des valeurs
indicatives.
C. F. P. CONCEVOIR UN PRODUIT INJECTE
Page 68 Module N° 2029
© Copyright Centre de Formation de la Plasturgie
XII. FONCTION REFROIDISSEMENT
A. GENERALITES
C'est souvent le parent pauvre du moule.
En effet, une fois que le système d'alimentation est mis en place, que les
éléments de démoulage occupent le terrain et que l'on fasse quelques
réserves pour la mise au point ou pour des modifications éventuelles, il
ne reste plus beaucoup de possibilité pour implanter un système de
refroidissement.
C'est pourtant une fonction très importante, car elle influence la qualité
de la pièce ainsi que son cycle de moulage.
Au moment où le polymère entre dans l'empreinte, se constitue une gaine
solide au contact du moule et une veine fluide au milieu de l'épaisseur de
paroi. Il est très important que la thermique soit équilibrée pour que la
veine fluide soit bien centrée sur l'épaisseur.
Si ce n'est pas le cas au moment du refroidissement de la veine fluide, il
va y avoir un couple qui déformera la pièce.
Pour éviter une déformation, on maintient la pièce plus longtemps dans
le moule jusqu'à ce que la pièce soit suffisamment solide. Cela se traduit
par un allongement du cycle et une perte de qualité (contraintes internes).
C. F. P. CONCEVOIR UN PRODUIT INJECTE
Page 69 Module N° 2029
© Copyright Centre de Formation de la Plasturgie
F ront m atièreV e ine fluideG a ine froide P aroi du m oule
Lorsque la thermique est déséquilibrée,
la veine fluide est décentrée par rapport
à l'épaisseur de la paroi.
Le retrait de la veine fluide générera un
couple qui déformera la pièce.
C. F. P. CONCEVOIR UN PRODUIT INJECTE
Page 70 Module N° 2029
© Copyright Centre de Formation de la Plasturgie
B. LES TECHNIQUES DE REFROIDISSEMENT
On refroidit les moules par rapport à la température d'injection du
polymère. Bien souvent la température des moules est comprise entre
40°C et 100°C.
La plupart du temps on perce des trous pour faire circuler un liquide de
refroidissement.
4
d
4
4
D 22
π
≥
π
C. F. P. CONCEVOIR UN PRODUIT INJECTE
Page 71 Module N° 2029
© Copyright Centre de Formation de la Plasturgie
C. F. P. CONCEVOIR UN PRODUIT INJECTE
Page 72 Module N° 2029
© Copyright Centre de Formation de la Plasturgie
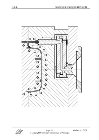
Une autre technique consiste à faire des rainures soit sur un fond, soit sur
le périmètre d'une pièce circulaire.
Spirale simple
Cercles complets avec
tôles de séparation Cercles décalés fraisés
Spirale simple
C. F. P. CONCEVOIR UN PRODUIT INJECTE
Page 73 Module N° 2029
© Copyright Centre de Formation de la Plasturgie
C. F. P. CONCEVOIR UN PRODUIT INJECTE
Page 74 Module N° 2029
© Copyright Centre de Formation de la Plasturgie
Le refroidissement des broches
Refroidissement à l’air
pour broches de petit
diamètre < à 2 pendant
l’ouverture du moule
après éjection.
air
Refroidissement à l’air
pour broches de petit
diamètre > à 3 pendant
l’ouverture. air
Refroidissement par
échange thermique avec
insert en cuivre pour
broche de diamètre > à 4. CU
C. F. P. CONCEVOIR UN PRODUIT INJECTE
Page 75 Module N° 2029
© Copyright Centre de Formation de la Plasturgie
Pour broche >φ 8
Refroidissement en
fontaine dans un puits
alimenté par un tube.
Pour broche >φ 20
Refroidissement par
spirale simple filet avec
arrivée par le centre par
élément rapporté.
Refroidissement par
spirale double filet +
puits central sur broche
rapportée.
C. F. P. CONCEVOIR UN PRODUIT INJECTE
Page 76 Module N° 2029
© Copyright Centre de Formation de la Plasturgie
Les caloducs
E n v e lo p p e
R é s e a u c a p illa ire
C o n d u it a d ia b a tiq u e
P o in t c h a u d
E v a p o ra te u r
R e fro id is s e m e n t
C o n d e n s e u r
L iq u id eV a p e u r
1
10
100
1000
Puissance
transportée
-50 0 60 100 200
BT
300 400330
MT
500 600 700630
HT
Température
d'utilisation
C. F. P. CONCEVOIR UN PRODUIT INJECTE
Page 77 Module N° 2029
© Copyright Centre de Formation de la Plasturgie
Logic-seal
Electro-vanne1
Electro-vanne2
Electro-vanne3
fermée
fermée
ouverte
Logic-seal
Electro-vanne 3
fermée
fermée
ouverte
Electro-
vanne 1
Electro-
vanne 2
C. F. P. CONCEVOIR UN PRODUIT INJECTE
Page 78 Module N° 2029
© Copyright Centre de Formation de la Plasturgie
Logic-seal
Electro-vanne 3
fermée
fermée
ouverte
Electro-
vanne 1
Electro-
vanne 2
Logic-seal
Electro-vanne 3
fermée
fermée
ouverte
Electro-
vanne 1
Electro-
vanne 2
C. F. P. CONCEVOIR UN PRODUIT INJECTE
Page 79 Module N° 2029
© Copyright Centre de Formation de la Plasturgie
Logic-seal
Electro-vanne 3
fermée
fermée
ouverte
Electro-
vanne 1
Electro-
vanne 2
C. F. P. CONCEVOIR UN PRODUIT INJECTE
Page 80 Module N° 2029
© Copyright Centre de Formation de la Plasturgie
XIII. DEMOULAGE
A. ORIFICES
Pour des raisons économiques, le projeteur concevra une pièce
nécessitant qu'un moule en deux parties.
Les contre dépouilles exigent des moules à tiroir, à coquilles, commande
de noyaux, à noyaux mobiles ou rétractables.
Ces moules coûtent chers, d'un fonctionnement délicat, sensibles à
l'usure avec des frais d'entretiens plus élevés.
Les machines doivent être équipées de dispositifs de commande et de
contrôle, le cycle sera plus long.
Il convient d'éviter les orifices
latéraux et les contre dépouilles,
comme les nervures périphériques
et l'orifice latéral de la pièce ci-
contre.
Orifice latéral obtenu par tiroir
L'orifice vertical, réalisé par une
rainure sur la paroi latérale,
évite tiroir, coquille ou autres
éléments mobiles.
C. F. P. CONCEVOIR UN PRODUIT INJECTE
Page 81 Module N° 2029
© Copyright Centre de Formation de la Plasturgie
Orifice latéral d'un pièce possédant une grande dépouille de démoulage.
de l'empreinte de la pièce
Vue extérieure
du poinçon
Vue intérieure Vue extérieure
Cas d'un aérateur le plan de joint interne en oblique ne nécessite ni tiroirs
ni parties mobiles.
A xe de dé m oula ge
L'intégration de fonctions rend les pièces plastiques de plus en plus
compliquées. Celles ci exigent des moules complexes à tiroirs, coquilles,
noyaux, dévissage, que l'on aura soin de limiter au juste nécessaire.
C. F. P. CONCEVOIR UN PRODUIT INJECTE
Page 82 Module N° 2029
© Copyright Centre de Formation de la Plasturgie
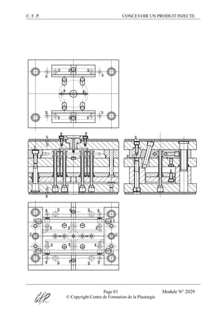
B. LES TIROIRS
C. F. P. CONCEVOIR UN PRODUIT INJECTE
Page 83 Module N° 2029
© Copyright Centre de Formation de la Plasturgie
V1
V1
V1V1
V1
V2V2
V2
V2
V2
V2
V2
V3
V3
V3
V3V3
V3
V3
V4
V4
V4
V4V4
V4
V4
V5V5
V5
V6
V6
V6
V6
V7V7V7
V7V7
V8V8
V8
V8
V8
C. F. P. CONCEVOIR UN PRODUIT INJECTE
Page 84 Module N° 2029
© Copyright Centre de Formation de la Plasturgie
1. Butées et retenue de tiroir :
L'emploi d'un bonhomme à bille permet d'immobiliser le tiroir en
position ouverte afin que le doigt de démoulage retrouve son orifice au
moment de la fermeture.
Une butée démontable assure une sécurité en cas de fausse manœuvre.
Course
Course + 1
Lorsque la gravité peut permettre au
tiroir de se refermer par son poids, il
faut utiliser un dispositif plus efficace.
Le ressort de compression est possible
pour des courses faibles.
C. F. P. CONCEVOIR UN PRODUIT INJECTE
Page 85 Module N° 2029
© Copyright Centre de Formation de la Plasturgie
2. Tiroir avec une course longue :
Les systèmes mécaniques atteignent rapidement leurs limites quand la
course de démoulage de la contre dépouille est importante.
L'utilisation de vérins hydrauliques est très répandue dans ce cas.
Course de recul
Pression
Moule fermé
Pression
Moule ouvert
Piston
Tige de vérinCorps du vérin
Les supports de vérins peuvent être rapportés ou intégrés dans le maître
moule ce qui permet de supprimer la plupart des flexibles. Les circuits
sont réaliser directement dans les plaques.
L'utilisation de vérin implique des contrôles de position.
C. F. P. CONCEVOIR UN PRODUIT INJECTE
Page 86 Module N° 2029
© Copyright Centre de Formation de la Plasturgie
C. COQUILLES
Plaque
porte poinçon
Plaque
porte empreinte
Fond
d'empreinte
Pièce
Poinçon
Corps de moule
ou frette
Vérin hydraulique
Coquille
Guidage par Té ou colonnes obliques
Plaque
porte poinçon
Plaque
porte empreinte
F ond
d'empreinte
Pièce
Poinçon
C orps de moule
ou frette
V érin hydraulique
C oquille
G uidage par Té ou colonnes obliques
Recul
Coursed'ouverture
C. F. P. CONCEVOIR UN PRODUIT INJECTE
Page 87 Module N° 2029
© Copyright 1993 – 1999 Centre de Formation de la Plasturgie
XIV. EJECTION
A. ARRACHE CAROTTE
C'est un élément stratégique du moule, car c'est souvent de l'efficacité de
l'arrache carotte que dépend le temps de cycle.
C. F. P. CONCEVOIR UN PRODUIT INJECTE
Page 88 Module N° 2029
© Copyright 1993 – 1999 Centre de Formation de la Plasturgie
B. EJECTEURS CYLINDRIQUES
2
S=11,10mm
S=3,54mm
2
S=18mm
2
C. F. P. CONCEVOIR UN PRODUIT INJECTE
Page 89 Module N° 2029
© Copyright 1993 – 1999 Centre de Formation de la Plasturgie
C. F. P. CONCEVOIR UN PRODUIT INJECTE
Page 90 Module N° 2029
© Copyright 1993 – 1999 Centre de Formation de la Plasturgie
C. F. P. CONCEVOIR UN PRODUIT INJECTE
Page 91 Module N° 2029
© Copyright 1993 – 1999 Centre de Formation de la Plasturgie
C. F. P. CONCEVOIR UN PRODUIT INJECTE
Page 92 Module N° 2029
© Copyright 1993 – 1999 Centre de Formation de la Plasturgie
C. EJECTEURS LAMES
C. F. P. CONCEVOIR UN PRODUIT INJECTE
Page 93 Module N° 2029
© Copyright 1993 – 1999 Centre de Formation de la Plasturgie
D. EJECTEURS TUBULAIRES
C. F. P. CONCEVOIR UN PRODUIT INJECTE
Page 94 Module N° 2029
© Copyright 1993 – 1999 Centre de Formation de la Plasturgie
E. EJECTION PAR SOUPAPES
C. F. P. CONCEVOIR UN PRODUIT INJECTE
Page 95 Module N° 2029
© Copyright 1993 – 1999 Centre de Formation de la Plasturgie
F. EJECTION PAR DEVETISSEUSE
C. F. P. CONCEVOIR UN PRODUIT INJECTE
Page 96 Module N° 2029
© Copyright 1993 – 1999 Centre de Formation de la Plasturgie
G. COMMANDE DE LA DEVETISSEUSE
Dans le cas d'un moule multi
empreintes, nous pouvons conserver le
système d'éjection central.
Pour un moule mono empreinte, la
commande de la plaque
dévêtisseuse peut se faire par
l'intermédiaire d'une batterie
d'éjection.
C. F. P. CONCEVOIR UN PRODUIT INJECTE
Page 97 Module N° 2029
© Copyright 1993 – 1999 Centre de Formation de la Plasturgie
L'utilisation de butées latérales fixées
sur le plateau d'éjection, permet de
compacter le moule.
La dévêtisseuse peu être commandée
par vérins incorporés dans le moule;
c'est le cas lorsque le moule est
inversé (éjection coté fixe).
C. F. P. CONCEVOIR UN PRODUIT INJECTE
Page 98 Module N° 2029
© Copyright 1993 – 1999 Centre de Formation de la Plasturgie
H. LES CALES MONTANTES OBLIQUES
C. F. P. CONCEVOIR UN PRODUIT INJECTE
Page 99 Module N° 2029
© Copyright Centre de Formation de la Plasturgie
C. F. P. CONCEVOIR UN PRODUIT INJECTE
Page 100 Module N° 2029
© Copyright Centre de Formation de la Plasturgie
XV. RESUME (PRIX DE REVIENT PREVISIONNEL)
Afin d’établir un prix de revient prévisionnel il faut suivre le synoptique
ci-dessous :
OPERATION DOCUMENT DE REFERENCE
CHOIX DU PLAN DE JOINT Cahier des charges pièce, aspect,
décoration, dimensionnel cotes
dépendantes du moule.
SURFACE PIECE Surface de projection.
VOLUME PIECE Cours, les principaux volumes.
POIDS PIECE Densité matière choix de la matière en
fonction du cahier des charges pièces.
NOMBRE EMPREINTES Calcul nombre empreintes (série, prix
moule).
ENCOMBREMENT MOULE Implantation des empreintes, choix des
emplacements des seuils
d’alimentation, cinématique moule.
CHOIX PRESSE Calcul force de fermeture.
CHOIX PRESSE Calcul volume injecté.
CALCUL CYCLE Décomposition en
TEMPS DYNAMIQUE
REFROIDISSEMENT
ENTRE CYCLE
TAUX HORAIRE Travail en automatique, avec
opérateur, part de l’opérateur.
CADENCE MOULAGE Cycle x nombre empreintes
PART MATIERE Poids brut (la moulée), poids net
(pièce), part de carotte broyée à
réincorporer.
COUT MATIERE TARIFICATION MATIERE
OPERATIONS FINITION Calcul des coûts par rapport à une
cadence et taux horaire.
CONDITIONNEMENT Calcul des coûts d’emballage, unitaire,
carton, palette.
TRANSPORT Calcul des coûts indexés au poids et
volume.
C. F. P. CONCEVOIR UN PRODUIT INJECTE
Page 101 Module N° 2029
© Copyright Centre de Formation de la Plasturgie
A. PLATINE ELECTRIQUE
CAHIER DES CHARGES
Série totale 300000.
Cadence mensuelle 10.000
Tolérances générales +/- 0.2 mm.
Aspect :
® Pas de retassures.
® Face visible coté opposé au bossage.
Dépouille autorisée 2%.
PRIX pour 1 et 2 empreintes.
Autres définitions :
® Matière Polycarbonate noir prix au kg 5.00 €
® Prendre pression dans l’empreinte 450 bars.
® Densité 1.18.
® Si 1 empreinte carotte dans le trou de rayon 15 mm.
Calculer :
® Volume pièce, carotte.
® Poids pièce, carotte.
®Surface de projection.
® Force de fermeture.
Prix de l’outillage :
® 1 empreinte 10700 €
® 2 empreintes 13000 €
Amortir le prix du moule sur la série prévue.
Se servir des documents du cours pour trouver les autres éléments
C. F. P. CONCEVOIR UN PRODUIT INJECTE
Page 102 Module N° 2029
© Copyright Centre de Formation de la Plasturgie
PLATINEELECTRIQUE
C. F. P. CONCEVOIR UN PRODUIT INJECTE
Page 103 Module N° 2029
© Copyright Centre de Formation de la Plasturgie
Carotte :
Longueur 40 mm
Diam 5 mm
diam 3 mm
C. F. P. CONCEVOIR UN PRODUIT INJECTE
Page 104 Module N° 2029
© Copyright Centre de Formation de la Plasturgie
C. F. P. CONCEVOIR UN PRODUIT INJECTE
Page 105 Module N° 2029
© Copyright Centre de Formation de la Plasturgie
B. PLATINE 1 EMPREINTE
DEVIS PIECE NUMERO : DATE 28/01/02
CLIENT : DEVIS PIECE
PIECE REFERENCE : PLATINE ELECTRIQUE POIDS NET 54.3 gr
PIECE REFERENCE : POIDS NET gr
PIECE REFERENCE : POIDS NET gr
SERIE moulage 10000 Nbre EMPREINTES 1
MATIERE REFERENCE DENSITE 1.18
VIERGE PRIX AU KG 5.00 € euros
BROYE PRIX AU KG 0.70 € euros
FRAIS MAGASINAGE PRIX AU KG 0.093 € euros
CAROTTE POIDS 2.5 gr
POIDS BRUT 56.8 gr
% CAROTTE / POIDS BRUT 4%
MOULAGE
PRESSE identification TAUX HORAIRE PRESSE 20.38 € euros
% M.O. OPERATEUR 20% TAUX HORAIRE MOULEUR 14.50 € euros
CYCLE secondes calculé 26.57 Nbre PIECES HEURE 135 pièces
CYCLE RETENU 26 PIECES/H RETENUES 138 pièces
FORCE VERROUI.(tonnes) 90 Surface PROJECTION 145.94 cm2
PRESSION dans EMPR(bars) 450 VERROUI NECESSAIRE 78.8076 tonnes
LA PRESSE CHOISIE EST CONFORME AU VERROUILLAGE
CAPACITE INJECTION 164 cm3 Diametre VIS 38 mm
1/3 capacite 55 cm3
volume injecté 60 cm3 OK
3/4 capacité 123 cm3
C. F. P. CONCEVOIR UN PRODUIT INJECTE
Page 106 Module N° 2029
© Copyright Centre de Formation de la Plasturgie
COUT PRESSE 0.168 €
COUT MATIERE
VIERGE + MAGASINAGE 0.289 €
RECUPERATION BROYE % 4% ( % CAROTTE) 4%
MOINS VALUE RECUP BROYE 0.012 €
COUT FINAL MATIERE 0.278 €
TAUX DECHET 2.00%
PLUS VALUE DECHETS 0.009 €
COUT MOULAGE 0.455 €
FORFAIT FRAIS DEMARRAGE 61 € HEURES PRODUCTION 74
COUT FRAIS DEM. 0.000 € FORFAIT H.SANS FRAIS 24
AUTRES FRAIS DEMARRAGE 0.000 €
AUTRES FRAIS
FINITION
TAUX HORAIRE 0.00 €
QTE HEURE 0
DECORATION
TAUX HORAIRE 0.00 €
QTE HEURE 0
ASSEMBLAGE
TAUX HORAIRE 0.00 €
QTE HEURE 0
EMBALLAGE 0.018 €
COUT EMBALLAGE 0.910 €
NOMBRE PIECES 50
TRANSPORT 0.10 € 0.100 €
TOTAL AUTRES FRAIS 0.118 €
BENEFICE 5.00% VALEUR BENEFICE 0.029 €
Coef FRAIS GENE SOCIETE 22.00% Valeur F.G.SOCIETE 0.100 €
Coef FRAIS USINE 0.00% Valeur F.Usine 0.000 €
Coef COMM. COMMERCIAL 0.00% Valeur COMMISSION 0.000 €
PRIX DE VENTE MINI 0.702 €
C. F. P. CONCEVOIR UN PRODUIT INJECTE
Page 107 Module N° 2029
© Copyright Centre de Formation de la Plasturgie
C. PLATINE 2 EMPREINTES
DEVIS PIECE NUMERO : DATE 28/01/02
CLIENT : DEVIS PIECE
PIECE REFERENCE : PLATINE ELECTRIQUE POIDS NET 54.3 gr
PIECE REFERENCE : POIDS NET gr
PIECE REFERENCE : POIDS NET gr
SERIE moulage 10000 Nbre EMPREINTES 2
MATIERE REFERENCE DENSITE 1.18
VIERGE PRIX AU KG 5.00 € euros
BROYE PRIX AU KG 0.70 € euros
FRAIS MAGASINAGE PRIX AU KG 0.093 € euros
CAROTTE POIDS 10 gr
POIDS BRUT 118.6 gr
% CAROTTE / POIDS BRUT 8%
MOULAGE
PRESSE identification 200T TAUX HORAIRE PRESSE 31.87 € euros
% M.O. OPERATEUR 20% TAUX HORAIRE MOULEUR 14.50 € euros
CYCLE secondes calculé 28.60 Nbre PIECES HEURE 252 pièces
CYCLE RETENU 29 PIECES/H RETENUES 248 pièces
FORCE VERROUI.(tonnes) 200 Surface PROJECTION 292 cm2
PRESSION dans EMPR(bars) 450 VERROUI NECESSAIRE 157.68 tonnes
LA PRESSE CHOISIE EST CONFORME AU VERROUILLAGE
CAPACITE INJECTION 499 cm3 Diametre VIS 55 mm
1/3 capacite 166 cm3
volume injecté 126 cm3 ATTENTION
3/4 capacité 374 cm3
C. F. P. CONCEVOIR UN PRODUIT INJECTE
Page 108 Module N° 2029
© Copyright Centre de Formation de la Plasturgie
COUT PRESSE 0.140 €
COUT MATIERE
VIERGE + MAGASINAGE 0.302 €
RECUPERATION BROYE % 8% ( % CAROTTE) 8%
MOINS VALUE RECUP BROYE 0.024 €
COUT FINAL MATIERE 0.278 €
TAUX DECHET 2.00%
PLUS VALUE DECHETS 0.008 €
COUT MOULAGE 0.427 €
FORFAIT FRAIS DEMARRAGE 103 € HEURES PRODUCTION 40
COUT FRAIS DEM. 0.000 € FORFAIT H.SANS FRAIS 24
AUTRES FRAIS DEMARRAGE 0.000 €
AUTRES FRAIS
FINITION
TAUX HORAIRE 0.00 €
QTE HEURE 0
DECORATION
TAUX HORAIRE 0.00 €
QTE HEURE 0
ASSEMBLAGE
TAUX HORAIRE 0.00 €
QTE HEURE 0
EMBALLAGE 0.018 €
COUT EMBALLAGE 0.910 €
NOMBRE PIECES 50
TRANSPORT 0.10 € 0.100 €
TOTAL AUTRES FRAIS 0.118 €
BENEFICE 5.00% VALEUR BENEFICE 0.027 €
Coef FRAIS GENE SOCIETE 22.00% Valeur F.G.SOCIETE 0.094 €
Coef FRAIS USINE 0.00% Valeur F.Usine 0.000 €
Coef COMM. COMMERCIAL 0.00% Valeur COMMISSION 0.000 €
PRIX DE VENTE MINI 0.666 €

2029 mod 4

  • 1.
    C. F. P. Concevoirun produit injecté Conception moules Référence stage : 2029 (C)entre de (F)ormation de la (P)lasturgie 39, rue de la Cité – 69441 LYON CEDEX 03 Tél : 04.72.68.28.28 – Fax : 04.72.36.00.80 E-Mail : plast@cfp-lyon.com
  • 2.
    C. F. P.CONCEVOIR UN PRODUIT INJECTE Page 2 Module N° 2029 © Centre de Formation de la Plasturgie
  • 3.
    C. F. P.CONCEVOIR UN PRODUIT INJECTE Page 3 Module N° 2029 © Centre de Formation de la Plasturgie SOMMAIRE I. METHODOLOGIE DE CONCEPTION D'UN MOULE ............................................. 4 II. FACTEURS INFLUENÇANT LA CONCEPTION DU MOULE .............................. 7 III. CALCUL DU NOMBRE D'EMPREINTES OPTIMUM DANS UN MOULE D'INJECTION .............................................................................................................. 13 IV. LA CONCEPTION DES MOULES........................................................................ 18 V. ARCHITECTURE D’UN MOULE .......................................................................... 20 VI. LES ACIERS.......................................................................................................... 24 VII. LE CENTRAGE .................................................................................................... 32 VIII. LES TECHNIQUES D'ALIMENTATION........................................................... 35 IX. LE MOULAGE SANS DECHET............................................................................ 49 X. EVENTATION DU MOULE................................................................................... 63 XI. FONCTION MISE EN FORME ............................................................................. 64 XII. FONCTION REFROIDISSEMENT ...................................................................... 68 XIII. DEMOULAGE..................................................................................................... 80 XIV. EJECTION........................................................................................................... 87 XV. RESUME (PRIX DE REVIENT PREVISIONNEL)............................................ 100
  • 4.
    C. F. P.CONCEVOIR UN PRODUIT INJECTE Page 4 Module N° 2029 © Centre de Formation de la Plasturgie I. METHODOLOGIE DE CONCEPTION D'UN MOULE A. CONTEXTE DE L'ETUDE D'UN MOULE Deux situations sont possibles : ® L'entreprise sous-traite le moule chez un mouliste après consultation à partir du dessin de définition. C'est le bureau d' étude mouliste qui exécute l'étude du moule et il doit intégrer toutes les fonctions dans sa réalisation : définition de l'alimentation, du bloc empreinte , de l'éjection, du refroidissement, de la cinématique, de l'adaptation à la machine et des fonctions sécurité et maintenance. Cette étude donne le plan d'ensemble, la nomenclature des éléments constitutifs avec les aciers et les traitements. Une validation par les spécialistes processus et production du donneur d'ordre donnent le visa bon pour exécution après avoir demandés les modifications ou améliorations dans la définition de l'étude. ® L'entreprise garde la maîtrise du processus de moulage et la définition des fonctions principales du moule : alimentation, bloc empreinte, refroidissement, éjection et cinématique des mouvements. Un dessin de définition et un cahier des charges concernant la définition des aciers, des traitements et des éléments standards est transmis soit à l'atelier moule intégré ou au mouliste extérieur qui exécutera les plans d'ensemble en complétant les fonctions non définies.
  • 5.
    C. F. P.CONCEVOIR UN PRODUIT INJECTE Page 5 Module N° 2029 © Centre de Formation de la Plasturgie B. LE GROUPE D'ETUDE MOULE L'équipe d' étude est modifiée pour faire appel à trois fonctions : - Concepteur moule : spécialiste des dessins d'étude moule (DAO ou autres), de l'organisation du moule, de sa cinématique et avoir une bonne connaissance des éléments standards et de leur utilisation. Il doit aussi maîtriser le choix des aciers et de leur traitement. - Le spécialiste processus qui va conseiller le concepteur dans le domaine des écoulements, de la thermique et des améliorations de l'aspect et des performances de la pièce injectée (tensions internes, ligne de soudure, brûlures, ....). - Le spécialiste de l' usinage adapté au moule : parcours d'outil en CN, faisabilité en électro érosion, ..... La définition par le dessin du moule se résume souvent à un plan d'ensemble et aux dessins de détails des blocs empreintes. Cette approche est rendu possible par le fait qu' un moule est un prototype et que les professionnels qui le réalisent sont capable d'extraire les dessins de détails du plan d'ensemble. Le plan d'ensemble du moule définit par 3 vues principales et des coupes complexes la structure de la carcasse, la disposition des empreintes de l'alimentation, des mouvements, de l'éjection et du refroidissement.
  • 6.
    C. F. P.CONCEVOIR UN PRODUIT INJECTE Page 6 Module N° 2029 © Centre de Formation de la Plasturgie C. METHODOLOGIE DE L'ETUDE D'UN MOULE La méthodologie d'étude du moule permet de définir par une succession d'étapes le déroulement et la validation : ® Des données économiques : - productivité du moule, c'est à dire le produit de la cadence prévisionnelle annuelle et la durée de vie du produit (nombre d'années de vie du produit). - optimisation du nombre d'empreintes : prix de revient de la pièce moulée (valeur ajoutée en fonction de la production horaire, du taux horaire de la presse à utiliser) avec part matière y compris alimentation (suivant possibilité de recyclage ou non). Ce prix de revient est à mettre en rapport avec l'amortissement moule dont le prix évolue lui aussi avec le nombre d'empreinte. Le nombre d'empreinte optimum sera ramené à un nombre pair, de préférence multiple de 2 pour des questions d'équilibrage de longueur de canaux d'alimentation. ® De l'optimisation des performances du moule par rapport au processus de moulage : - élimination des défauts liés à l'écoulement et à la thermique - optimisation des pertes de charges et des cisaillement matière - fiabilité par une cinématique adaptée et par un dimensionnement tenant compte de la fatigue du moule. -adaptation à plusieurs modèles de presse pour augmenter la flexibilité. Les phases de l'étude du moule sont décrites dans le diagramme ci- dessous
  • 7.
    C. F. P.CONCEVOIR UN PRODUIT INJECTE Page 7 Module N° 2029 © Centre de Formation de la Plasturgie II. FACTEURS INFLUENÇANT LA CONCEPTION DU MOULE Pièce : - Forme - Poids - Epaisseur - Nombre - Cadence Le facteur humain : - Les idées de génie du concepteur - L'abominable homme des non Matière : - Caractéristiques rhéologiques - Caractéristiques thermiques - Le retrait - Coloration - Nature - Prix - Tolérances - Versions - Aspect Le mouliste : - Le parc machine - La capacité des machines - Le savoir-faire Délai Conception du moule Les facteurs économiques : - Investissement - Amortissement Presse : - Parc disponible - IAG - Multi matières - Montage - Buse - Raccords - Caractéristiques Accessoires : - Robot - Régulation - Eau - Huile - Puissance électrique - Courses - Puissance - Vitesses - Entre colonnes - Plastification Main d'œuvre : - Disponibilité - Qualification - Coût - Habitudes
  • 8.
    C. F. P.CONCEVOIR UN PRODUIT INJECTE Page 8 Module N° 2029 © Centre de Formation de la Plasturgie A. PIECE : 1. Formes : Moule à gauffre, à tiroirs, à dévissage… Injection déportée, injections multiples, séquencées… Mouvements à l’ouverture du moule, film charnière, pré fermeture ou pré enfonçage d’éléments… 2. Poids : Grosses pièces, très petites pièces (< à 1 gr) utilisation de ceintures anti statique… 3. Epaisseur : Parois très épaisses ou très minces (0,2 à 0,3 mm) Longueur d’écoulement, le nombre de points d’injection… 4. Nombre : Quantité de pièces à produire Petite quantité moule en PT, certaines fonctions en reprise (perçage, taraudage…). Moule prototype… Grande quantité (plusieurs millions, corps de stylo, rasoirs…) acier de grandes performances, études rhéologique et thermique très poussées. 5. Cadence : Nombre d’empreintes, moule à étage…
  • 9.
    C. F. P.CONCEVOIR UN PRODUIT INJECTE Page 9 Module N° 2029 © Centre de Formation de la Plasturgie 6. Tolérances : Décompression, dévêtissage, ouvertures multiples, assistance par air comprimé Thermique du moule pilotée Equilibrage des injections, éléments rapportés… 7. Versions : Changement rapide des éléments 8. Aspect : Acier, états de surface (polissage, grainage…) B. FACTEURS HUMAINS Les idées nouvelles : Il ne sera jamais garanti que la conception d’un moule est la meilleure. Il y a toujours moyen de trouver de nouvelles techniques, de nouveaux éléments standards plus performants, plus simples, plus fiables donc moins chères. On entend trop souvent dire : « On ne change pas quelque chose qui marche ».
  • 10.
    C. F. P.CONCEVOIR UN PRODUIT INJECTE Page 10 Module N° 2029 © Centre de Formation de la Plasturgie C. MATIERE 1. Caractéristiques rhéologiques : Section des canaux adaptés à la viscosité «pas » de canaux chauds pour les matières thermosensibles. 2. Caractéristiques thermiques : Moule isolé. 3. Coloration : Dégagement de gaz +- agressifs. 4. Nature : Matières corrosives (PVC) utilisation d’aciers inox. Matières allégées, moule en alliages légers avec une bonne éventation. 5. Prix : Matières chargées (Isxef 50 % FV moins cher qu’un Ixef). D. LE MOULISTE 1. Le parc machine : Erosion à fil, rectifieuses de profil, presse d’enfonçage… 2. La capacité des machines : Faces d’appui fraisées ou bouchonnées mais pas rectifiées. Empreintes rapportée, dans la masse elle ne passerait pas dans le bac de l’érosion…
  • 11.
    C. F. P.CONCEVOIR UN PRODUIT INJECTE Page 11 Module N° 2029 © Centre de Formation de la Plasturgie E. LE DELAI Pour hier, utilisation de carcasse standard avec l’empreinte rapportée en prétraité. F. LES FACTEURS ECONOMIQUES 1. L’investissement : Calcul du nombre d’empreintes économiques. 2. L’amortissement : Nombre de cycles pour amortir un bloc chaud, pour amortir un moule… G. LA PRESSE 1. Le parc disponible : Force de fermeture, volume injectable, capacité plastification horaire, nombre d’asservissements,… 2. Montage : Fixation par brides, boutonnières, automatique,… Le centrage, l’appui de la buse, l’attelage d’éjection, les raccords,…
  • 12.
    C. F. P.CONCEVOIR UN PRODUIT INJECTE Page 12 Module N° 2029 © Centre de Formation de la Plasturgie H. LA MAIN D’ŒUVRE 1. Qualification : 2. Disponibilité : 3. Habitudes : 4. Coût : Moule exploité dans les pays où la main d’œuvre est bon marché (reprise d’usinage, ébavurage des pièces, pose d’inserts…) I. LES ACCESSOIRES 1. Robots : 2. Tapis : 3. Convoyeur : 4. Régulateur : 5. Frigo :
  • 13.
    C. F. P.CONCEVOIR UN PRODUIT INJECTE Page 13 Module N° 2029 © Centre de Formation de la Plasturgie III. CALCUL DU NOMBRE D'EMPREINTES OPTIMUM DANS UN MOULE D'INJECTION Le calcul est nécessaire chaque fois que l'on aura le choix du nombre d'empreintes à disposer dans un moule d'injection sans que celui-ci modifie notablement l'architecture générale du moule ou le choix de la presse. X – le prix du moule à 1 empreinte en Francs Y – le coût de l'empreinte additionnelle en Francs Q – le coût horaire de la presse en Francs S – le coût horaire des salaires en Francs N – le nombre total de pièces à fabriquer t – la durée du cycle en minute Soit n le nombre d'empreintes recherché Coût du moule pour n empreintes : Cn = X + Y (n-1) = (X - Y)+ Yn Coût du fonctionnement de la presse : Qu = n60 Qt Coût du salaire par pièce : Su = n60 St Coût du moule par pièce : Cu = N Cn
  • 14.
    C. F. P.CONCEVOIR UN PRODUIT INJECTE Page 14 Module N° 2029 © Centre de Formation de la Plasturgie En remplaçant Cn par sa valeur : Cu = N Yn)YX( +− Coût de moulage d'une pièce : Cum = Qu + Su + Cu En remplaçant Qu, Su et Cu par leurs valeurs N Yn N YX n60 St n60 Qt Cum + − ++= N Yn N YX )SQ( n60 t Cum + − ++= Si l'on trace la courbe des points représentant le coût de moulage fonction du nombre d'empreintes, on s'aperçoit que cette courbe passe par un minimum. Pour trouver la valeur de ce nombre d'empreintes nous donnant le coût minimum, nous procédons à la dérivée de la fonction, puis nous égalons à zéro pour trouver son minimum. Rappel : dérivée de 23 x3x = x2x2 = 1x = d'une constante = 0 de x 1 x 1 2= Ici la fonction est sous la forme de cbx x a y ++= d'ou 0b x a y 2 ' ++=
  • 15.
    C. F. P.CONCEVOIR UN PRODUIT INJECTE Page 15 Module N° 2029 © Centre de Formation de la Plasturgie Dérivons donc par rapport à n ( ) N Y SQ n60 t dn dCum 2 ++ − = Egalons à zéro ( ) 0 N Y SQ n60 t 2 =++ − d'ou ( ) Y N t 60 SQ n2 + = ( ) Y60 NtSQ n + = Nota : Nous remarquons que x a disparu dans la dérivée. Ceci paraît normal puisque le calcul n'a d'intérêt qu'à partir de la deuxième empreinte.
  • 16.
    C. F. P.CONCEVOIR UN PRODUIT INJECTE Page 16 Module N° 2029 © Centre de Formation de la Plasturgie
  • 17.
    C. F. P.CONCEVOIR UN PRODUIT INJECTE Page 17 Module N° 2029 © Centre de Formation de la Plasturgie NOMBRE OPTIMAL D'EMPREINTE 1 Série : 400 000 pièces 2 Coût horaire machine+salaire : 250F/h 3 Pivot I à relier avec point 4 4 Coût pour une empreinte : 12 500 F 5 Pivot II à relier avec point 6 6 Temps de cycle 15s 7 Nombre d'empreintes optimal : 6
  • 18.
    C. F. P.CONCEVOIR UN PRODUIT INJECTE Page 18 Module N° 2029 © Centre de Formation de la Plasturgie IV. LA CONCEPTION DES MOULES Le moule a plusieurs fonctions à remplir. 1. Fonction alimentation Le moule doit conduire la matière en fusion depuis la buse de presse jusqu'à l'empreinte. 2. Fonction mise en forme C'est la forme et les dimensions des parties moulantes qui déterminent la forme et les dimensions de la pièce plastique. 3. Fonction refroidissement La matière entre en fusion dans les parties moulantes. Il faut donc la refroidir pour qu'elle se solidifie. C'est souvent le refroidissement qui est le temps le plus important dans un cycle de moulage. 4. Fonction démoulage Pour démouler les pièces plastiques, il faut souvent faire des mouvements plus ou moins complexes avant de les éjecter. 5. Fonction sécurité Les pressions nécessaires pour le remplissage et le compactage sont considérables. Elles créent des forces pouvant atteindre plusieurs milliers de KdaN.
  • 19.
    C. F. P.CONCEVOIR UN PRODUIT INJECTE Page 19 Module N° 2029 © Centre de Formation de la Plasturgie Architecture générale d'un moule Dans un moule nous trouverons donc : ® un système d'alimentation ® des parties moulantes ® un système de refroidissement ® un système d'éjection En plus il devra être assez fort pour supporter les hautes pressions. Il doit aussi permettre une adaptation facile sur la machine, pour cela il correspond au cahier des charges du transformateur : ® identification du moule ® levage et manutention ® centrage sur la presse ® bridage du moule ®accouplements (attelage d'éjection, raccords des circuits de refroidissement, des circuits hydrauliques, pneumatiques, électriques thermocouples et puissances, les détecteurs de position, le contrôle de rentrée d'éjection,...)
  • 20.
    C. F. P.CONCEVOIR UN PRODUIT INJECTE Page 20 Module N° 2029 © Centre de Formation de la Plasturgie V. ARCHITECTURE D’UN MOULE La plupart des moules sont conçus selon ce schéma. Moule fermé pendant la phase d’injection et de refroidissement. Ouverture du moule au plan de joint, 1ère phase du démoulage.
  • 21.
    C. F. P.CONCEVOIR UN PRODUIT INJECTE Page 21 Module N° 2029 © Centre de Formation de la Plasturgie Ejection de la pièce, 2ème phase du démoulage.
  • 22.
    C. F. P.CONCEVOIR UN PRODUIT INJECTE Page 22 Module N° 2029 © Centre de Formation de la Plasturgie
  • 23.
    C. F. P.CONCEVOIR UN PRODUIT INJECTE Page 23 Module N° 2029 © Centre de Formation de la Plasturgie V6 Vis Chc 2 M6x20 V5 Vis Chc 2 M6x12 V4 Vis Chc 6 M8x18 V3 Vis Chc 2 M12x25 V2 Vis Chc 4 M10x25 V1 Vis Chc 4 M10x100 Q Joint torique 16 J-Français φ 25x2,5 P Anneau de levage 1 Rabourdin 1022 M 16 O Ressort de compression 4 " 355 φ 16x75 N About de raccordement 4 " 901 φ 1/4" M Bouchon 2 " 1203 φ 1/8" L Reçu de buse 1 " 619 φ 20x63 K Repos de batterie 6 " 608 φ 16x4 J Poussoir de remise à zéro 4 " 628 φ 8x100 (94,00) I Ejecteur 4 " 628 φ 6x160 (112,59) H Arrache carotte 1 " 628 φ 4x100 (88) G Goupille 8 " 501 φ 4x12 F Bague de centrage 1 " 617 φ 100 E Bague de guidage épaulée 2 " 1061 φ 12x10x25 D Colonne de guidage 2 " 651 φ 12x50x20 C Douille de centrage 4 " 551 φ 16x90 B Bague de guidage 4 " 1071 φ 16x32 A colonne de guidage 4 Rabourdin 651 φ 16x40x32 14 Barrette de sécurité 1 30x5x110 13 Attelage d'éjection 1 φ 25x100 12 Rondelle 1 φ 22x3 11 Plot de soutien 1 φ 20x50,00 10 Poinçon 4 φ 38x50,59 9 Empreinte 4 φ 38x32,00 8 Semelle 1 160x20x200 7 Plaque d'éjection 1 92x16x160 6 Contre plaque d'éjection 1 92x12x160 5 Tasseau 2 52x32x160 4 Contre plaque 1 160x32x160 3 Plaque porte poinçon 1 160x32x160 2 Plaque porte empreinte 1 160x32x160 1 Semelle 1 160x20x200 Rep. Désignation Nb Matière Traitements Cotes finies Indice Modification Date Dessinateur BOUCHON CIRFAP 10 Bd Edmond Michelet 69008 LYON Tél: 04-78-77-05-35 Poids du moule : 37Kg Echelle : 1 Date : 1er Avril 2000 Dessinateur : JPL Presse : Billion Matière : ABS Retrait : 0,5% Réf. N°3615
  • 24.
    C. F. P.CONCEVOIR UN PRODUIT INJECTE Page 24 Module N° 2029 © Centre de Formation de la Plasturgie VI. LES ACIERS Définition : C'est un alliage Fer Carbone 0% 1,7% 6,67% de Carbone Fer ß______ aciers _________àß________ fontes _________à A. LA NORME AFNOR (AVANT 1995) 1. Les aciers fins non alliés d'une grande pureté chimique : (soufre+phosphore <0,065%) 123 XC 48 impuretés ì ë Acier fin 0,48% de Carbone 2. Les aciers faiblement alliés : Aucun élément d'addition ne dépasse la teneur de 5% 0,35% de Carbone è 35 N C D 16 ç valeur du 1er élément ì é ë Nickel Chrome Molybdène La valeur des éléments est à diviser par 4 pour C K M N S pour obtenir le % réel par 10 pour les autres éléments.
  • 25.
    C. F. P.CONCEVOIR UN PRODUIT INJECTE Page 25 Module N° 2029 © Centre de Formation de la Plasturgie 3. Les aciers fortement alliés : 1 élément d'addition au moins a une teneur de 5% Acier fortement allié è Z 38 C D V 5ç % réel du 1er élément d'addition ì é ë ë Vanadium 0,38%de Carbone Chrome Molybdène On n'indique pas les valeurs dont la teneur est < à 1%. B. LA NORME AFNOR DEPUIS 1995 1. Les aciers fins non alliés : C 48 é Acier fin à 0,48% de Carbone 2. Les aciers faiblement alliés : Teneur en manganèse ≤ 1% Teneur de chaque élément d'alliage 〈 5% La désignation comprend dans l'ordre : - un nombre entier, égal à cent fois le pourcentage de la teneur moyenne en carbone. - un ou plusieurs groupes de lettres, qui sont les symboles chimiques des éléments d'addition rangés dans l'ordre des teneurs décroissantes. - une suite de nombre, rangés dans le même ordre que les éléments d'alliage, et indiquant le pourcentage de la teneur moyenne de chaque élément.
  • 26.
    C. F. P.CONCEVOIR UN PRODUIT INJECTE Page 26 Module N° 2029 © Centre de Formation de la Plasturgie Ces teneurs sont multipliées, par un facteur variable, en fonction des éléments d'alliage. 0,35% de Carbone è 35 Ni Cr Mo 16 ç valeur du 1er élément ì é ë Nickel Chrome Molybdène Elément d'alliage Facteur Cr, Co, Mn, Ni, Si, W 4 Al, Be, Cu, Mo, Nb, Pb, Ta, Ti, V, Zr 10 Ce, N, P, S 100 B 1000 3. Les aciers fortement alliés : Teneur d'au moins un élément d'alliage ≥ 5%. La désignation commence par la lettre X suivie de la même désignation que celle des aciers faiblement alliés, à l'exception des valeurs des teneurs qui sont en pourcentage réel. Acier fortement allié è X 38 Cr Mo V 5 ç % réel du 1er élément d'addition ì é ë ë 0,38% de Carbone Chrome Molybdène Vanadium On n'indique pas les valeurs dont la teneur est 〈 à 1%.
  • 27.
    C. F. P.CONCEVOIR UN PRODUIT INJECTE Page 27 Module N° 2029 © Centre de Formation de la Plasturgie Elément d'alliage Symbole métallurgique Symbole chimique Aluminium A Al Antimoine R Sb Argent Ag Béryllium Be Be Bismuth Bi Bi Bore B Cadmium Cd Cérium Ce Chrome C Cr Cobalt K Co Cuivre U Cu Etain E Sn Fer Fe Fe Gallium Ga Lithium Li Magnésium G Mg Manganèse M Mn Molybdène D Mo Nickel N Ni Niobium Nb Plomb Pb Pb Silicium S Si Strontium Sr Titane T Ti Tungstène W W Vanadium V V Zinc Z Zn Zirconium Zr
  • 28.
    C. F. P.CONCEVOIR UN PRODUIT INJECTE Page 28 Module N° 2029 © Centre de Formation de la Plasturgie C. ACIERS LES PLUS UTILISES POUR LA FABRICATION DES MOULES D’INJECTION THYSSEN AFNOR DIN daN/mm 2 Trempe + revenu Traitement de surface Grainage Ténacité Corrosion Usure Polissage λ W/m K° HM75 XC48 1730 65/70 GLHAX 40CMD8+S 2312 105/120 Oui Non «« « 40CMD8 2311 105/115 Oui «« « «« 34 Z35CD17+S 2394 95/110 Non « ««« « 17 55NCDV7+S 2792 125/140 « «« CNL 45NCD16 2767 52/54 Hrc (Non) Oui ««« « ««« 28 35NCD16 2766 LBV 50/52 Hrc (Non) Oui «««« « «««« W66EFS Z38CDV5 2343 EFS 50/54 Hrc Oui Oui «« « «« ««« 27 ThyrinoxLBV Z40CNDV14 50/52 Hrc Oui « ««« «« ««« 22 SS116 Z155CDV12-1 2379 60/62 Hrc Oui « « ««« « 16 ALUMEC89 55/60 ««« 165 Cu U E-Cu 58 22 395 ELMEDURX CuCrZr 44/47 320 ELMEDURHA CUCoNiBe 70/90 210 ELMEDUR B2 CuBe 38/43 Hrc 120
  • 29.
    C. F. P.CONCEVOIR UN PRODUIT INJECTE Page 29 Module N° 2029 © Centre de Formation de la Plasturgie AUBERT & DUVAL AFNOR DIN daN/mm2 Trempe + revenu Traitement de surface Grainage Ténacité Corrosion Usure Polissage λ W/m K° SM2G 55CND4 100/110 Oui Oui «« « ««« 46 PLASTAL 55CNDV4 135/145 Oui « «« «« 46 819B 35NCD16 50/52Hrc (Non) Oui «««« « «««« 33 SMV3 (W) Z40CDV5 50/54Hrc Oui Oui «« « «« «««(«) 25 X13T6 Z40CD15 50/52Hrc Oui « ««« «« ««« 23 SANCY 2 Z165CDWV12 60/62 Hrc Oui « « ««« «« 23 APX Z16CN17-2 32/43 Hrc Oui « ««« «« ««« 19 XDBD Z100CD17 54/58 Hrc Oui «« ««« « 25 ST25 CuBe 42/44 Hrc ««« ««« « ««« 105 UDDEHOLM AFNOR DIN daN/mm2 Trempe + revenu Traitement de surface Grainage Ténacité Corrosion Usure Polissa ge λ W/m K° HOLDAX 40CMD8+S 2312 105/120 Oui Non 29 IMPAX 35CND7 100/110 Oui Oui 29 RAMAXS Z33CMD17+S 100/110 Non ««« 23 ORVAR Z40CDV5 50/52 Hrc Oui «« 25 STAVAX-ESR Z38CSMV14 52/54 Hrc «« ««« «« ««« 23 OPTIMAX Z38CSMV14 52/54 Hrc «« ««« «« ««« « 23 MOLDMAX CuBe 12O 130 ««« ««« 130 105 PROTHERM CuCoBe 80 245 AMPCO AFNOR DIN daN/mm2 Trempe + revenu Traitement de surface Grainage Ténacité Corrosion Usure Polissage λ W/m K° AMPCO 18 CU Al Fe 70 63 AMPCOLOY97 AMPCOLOY972 Cu Cr Cu Cr Zr 36 53 333 320
  • 30.
    C. F. P.CONCEVOIR UN PRODUIT INJECTE Page 30 Module N° 2029 © Centre de Formation de la Plasturgie 14 Barrette de sécurité 1 13 Attelage d’éjection 1 12 Rondelle 1 11 Plot de soutien 1 10 Poinçon 4 9 Empreinte 4 8 Semelle 1 7 Plaque d’éjection 1 6 Contre plaque d’éjection 1 5 Tasseau 2 4 Contre plaque 1 3 Plaque porte poinçon 1 2 Plaque porte empreinte 1 1 Semelle 1 Petite série Grande série Petits moules Grand moules Rep. Désignation Nb Traitements
  • 31.
    C. F. P.CONCEVOIR UN PRODUIT INJECTE Page 31 Module N° 2029 © Centre de Formation de la Plasturgie
  • 32.
    C. F. P.CONCEVOIR UN PRODUIT INJECTE Page 32 Module N° 2029 © Centre de Formation de la Plasturgie VII. LE CENTRAGE Fixation du moule : Bilan des centrages et des guidages. Bague de centrage sans épaulement Bague de centrage épaulée.
  • 33.
    C. F. P.CONCEVOIR UN PRODUIT INJECTE Page 33 Module N° 2029 © Copyright Centre de Formation de la Plasturgie La pression dans l'empreinte peut entraîner un glissement entre la partie fixe et la partie mobile. Le centrage évite le glissement entre les deux parties du moule. Les parties du moule peuvent s'excentrées sous l'effet de la pression matière. Le remplissage peut être favorisé dans une partie du moule ce qui amplifie le défaut. Pour éviter une excentration des deux parties du moule, on procède à un recentrage soit par un "cône" soit par des faces inclinées. Ce recentrage peut être dans le 1er cas en protection du plan de joint et dans le second
  • 34.
    C. F. P.CONCEVOIR UN PRODUIT INJECTE Page 34 Module N° 2029 © Copyright Centre de Formation de la Plasturgie cas en maintien de l'empreinte.
  • 35.
    C. F. P.CONCEVOIR UN PRODUIT INJECTE Page 35 Module N° 2029 © Copyright Centre de Formation de la Plasturgie VIII. LES TECHNIQUES D'ALIMENTATION A. CAROTTE DIRECTE Conicité 4° Maxi R=1 (Attentionunrayontrop fort peut créer une masse) E Maxi D=E Maxi+1
  • 36.
    C. F. P.CONCEVOIR UN PRODUIT INJECTE Page 36 Module N° 2029 © Copyright Centre de Formation de la Plasturgie Injection par carotte inclinée B. CAROTTE INCLINEE La carotte inclinée est une solution simple pour résoudre le problème d'excentration d'une empreinte. Son utilisation évite l'emploi d'un bloc chaud, ou de faire travailler les mécanismes de fermeture de presse en porte à faux. L'inclinaison est ≤ à 30°, le rayon de démoulage,au pied de la carotte, est très important :plus il est grand, plus il facilite le démoulage, mais plus il augmente la masse vers l'arrache carotte et plus il augmente le temps de cycle. Attention l'inclinaison est limitée avec des matières rigides, notamment celles chargées fibres de verre.
  • 37.
    C. F. P.CONCEVOIR UN PRODUIT INJECTE Page 37 Module N° 2029 © Copyright Centre de Formation de la Plasturgie C. LES CANAUX D'ALIMENTATION Equilibrage des empreintes
  • 38.
    C. F. P.CONCEVOIR UN PRODUIT INJECTE Page 38 Module N° 2029 © Copyright Centre de Formation de la Plasturgie
  • 39.
    C. F. P.CONCEVOIR UN PRODUIT INJECTE Page 39 Module N° 2029 © Copyright Centre de Formation de la Plasturgie Avantages & inconvénients des différents profils des canaux d'alimentation. D D D D d D D Avantages Inconvénients Canal cylindrique C'est le canal le plus perfomant, car il offre une section d'écoulement maximale pour un périmètre minimal. Usinage sur 2 plaques du moule. Cependant avec les machines à commande numérique cet inconvénient disparaît. Utilisation difficile avec les moules 3 plaques. Canal cylindrique plus dépouille pour déporter le plan de joint Usinage sur une seule plaque Utilisation avec les moules 3 plaques. -Difficulté pour la réalisation de l'outil spécial : affutage délicat. -Perte de matière par rapport au canal rond Canal trapézoïdal Usinage sur une seule plaque Utilisation avec les moules 3 plaques. Outil spécial plus facile à affuter -Perte de matière par rapport au canal rond Canal ½ cylindrique Mauvais écoulement Canal rectangulaire Facilité d'exécution Mauvais démoulage Mauvais écoulement L'efficacité d'un canal se détermine par son Dh (diamètre hydraulique). P S4 Dh = S=section P=périmètre
  • 40.
    C. F. P.CONCEVOIR UN PRODUIT INJECTE Page 40 Module N° 2029 © Copyright Centre de Formation de la Plasturgie D. LES POINTS D'INJECTION SOUS-MARIN Ce type d'injection permet une séparation entre la pièce et le système d'alimentation. On parle alors de dégrappage automatique.
  • 41.
    C. F. P.CONCEVOIR UN PRODUIT INJECTE Page 41 Module N° 2029 © Copyright Centre de Formation de la Plasturgie Fonctionnement du décarottage automatique. Dégrappage pendant l'ouverture Dégrappage pendant l'éjection Forme des sous- marin pour matières non chargées. Sous-marin conique Sous-marin tronc-conique Sous-marin sphérique Forme des sous- marin pour matières chargées. Position du canal par rapport au point d'injection. Correct Correct A éviter
  • 42.
    C. F. P.CONCEVOIR UN PRODUIT INJECTE Page 42 Module N° 2029 © Copyright Centre de Formation de la Plasturgie
  • 43.
    C. F. P.CONCEVOIR UN PRODUIT INJECTE Page 43 Module N° 2029 © Copyright Centre de Formation de la Plasturgie E. LES TUNNELS INCURVES Cette technique permet de positionner le point d'injection en dehors d'une zone visible, sans toutefois être obligé de retourner tout le moule. Attention, cette technique se limite au matières non chargées fibres de verre. D d3 d2 d1 X Y
  • 44.
    C. F. P.CONCEVOIR UN PRODUIT INJECTE Page 44 Module N° 2029 © Copyright Centre de Formation de la Plasturgie F. MOULE 3 PLAQUES 1. Injection capillaire ou "pin-point" :
  • 45.
    C. F. P.CONCEVOIR UN PRODUIT INJECTE Page 45 Module N° 2029 © Copyright Centre de Formation de la Plasturgie 2. Moules 3 plaques : Le moule à 2 plans de joint : 1 plan de joint pour la carotte 1 plan de joint pour la pièce. 1ère ouverture plan de joint carotte (impératif pour une bonne casse du point d'injection) 2ème ouverture plan de joint pièce
  • 46.
    C. F. P.CONCEVOIR UN PRODUIT INJECTE Page 46 Module N° 2029 © Copyright Centre de Formation de la Plasturgie Moule 3 plaques
  • 47.
    C. F. P.CONCEVOIR UN PRODUIT INJECTE Page 47 Module N° 2029 © Copyright Centre de Formation de la Plasturgie G. LES SYSTEMES D'INJECTION a b dc Alimentation pièces fermées Alimentation pièces tubulaires e f g h i j k Alimentation pièces plates
  • 48.
    C. F. P.CONCEVOIR UN PRODUIT INJECTE Page 48 Module N° 2029 © Copyright Centre de Formation de la Plasturgie Les systèmes d'injection a – Carotte directe centrale Remplissage facile de l'empreinte Phase de maintien efficace Décarottage mécanique b – Capillaire ou "pin-point" Remplissage correct Phase de maintien peu efficace Décarottage automatique Moule 3 plaques c – Latérale seuil direct Ligne de soudure Phase de maintien peu efficace Ovalisation des pièces Décarottage en reprise d – Latérale sous-marine Ligne de soudure Phase de maintien peu efficace Ovalisation des pièces Décarottage automatique e – Canal annulaire + nappe Pas de lignede soudure Phase de maintien médiocre Moule multi-empreintes Décarottage mécanique f – Canal annulaire + nappe ou "diaphragme" Pas de lignede soudure Phase de maintien médiocre Moule mono-empreinte Décarottage mécanique g – 4 seuils directs ou sous- marins Lignes de soudure Phase de maintien efficace Déformations à crainde Décarottage plus facile ou automatique h – Entrée en entonnoir Remplissage facile Phase de maintien efficace Cylindricité parfaite Décarottage mécanique i – Entrée en nappe Remplissage correct Phase de maintien correct Décarottage mécanique j – Entrée en nappe Remplissage correct Phase de maintien correct Décarottage manuel ou mécanique k – Entrée en nappe Sous-marin possible Remplissage correct Phase de maintien correct Décarottage mécanique ou automatique
  • 49.
    C. F. P.CONCEVOIR UN PRODUIT INJECTE Page 49 Module N° 2029 © Copyright Centre de Formation de la Plasturgie IX. LE MOULAGE SANS DECHET A. GENERALITES L'industrie de la transformation des matières plastiques est en continuelle évolution. Face au pays à main d'œuvre bon marché, il faut que notre industrie s'automatise et s'optimise. La suppression des carottes et des canaux d'alimentation permet d'automatiser la production. L'utilisation de système à canaux chauds permet une diminution des coûts matières (plus de déchet d'alimentation) et une diminution des cycles de moulage (bien souvent la carotte et les canaux d'alimentation par leur section importante donnent un refroidissement long). Pour mémoire : tR = t1mm x e 2 tR : temps de refroidissement t1mm : temps de refroidissement pour 1mm e : épaisseur Le moulage en canaux chauds permet de résoudre ces problèmes. Cette technique oblige une adaptation des savoirs faire et des investissement plus important à court terme.
  • 50.
    C. F. P.CONCEVOIR UN PRODUIT INJECTE Page 50 Module N° 2029 © Copyright Centre de Formation de la Plasturgie Dans l'injection des thermoplastiques où chaque pièce, chaque matière sont un cas particulier, le concepteur de moule a le choix entre plusieurs techniques matériels en fonction des critères imposés. B. INTERET ECONOMIQUE D'UN SYSTEME A CANAUX CHAUDS L'analyse qui suit met en évidence les conséquences économiques de l'utilisation d'un système à canaux chauds. Pour cette analyse nous avons tenu compte des facteurs suivants : ® coût suplémentaire du moule ® prix de la matière injectée ® économie de matière ® taux horaire machine ® temps de cycle
  • 51.
    C. F. P.CONCEVOIR UN PRODUIT INJECTE Page 51 Module N° 2029 © Copyright Centre de Formation de la Plasturgie Nous n'avons pas tenu compte des autres avantages du système qui sont beaucoup plus difficiles à chiffrer mais qui apportent un plus par rapport à un canal froid. Absence de coût de stockage des carottes. Absence de système de tri pièces/carottes. Absence de découpe des carottes. Absence de matière rebroyée (souvent cause de panne). Travail en automatique sans personnel. Nous pouvons calculer le nombre de cycles pour amortir le système par la formule : )th0t( 3600 Cm Ec.mp Ca Ac −+ = Ac : Nombre de cycle de production à partir duquel l'utilisation du système est amortie. Ca : Coût additionnel consécutif à l'emploi du système, y compris l'amortissement du matériel de régulation. mp (F/Kg) : Prix de la matière plastique utilisée. Ec (Kg) : Economie de poids des carottes réalisée par l'emploi du système. Cm (F/h) : Coût le l'heure machine + opérateur. th (s) : Cadence de production avec utilisation du système à canaux chauds. t0 (s) : Cadence de production sans système à canaux chauds.
  • 52.
    C. F. P.CONCEVOIR UN PRODUIT INJECTE Page 52 Module N° 2029 © Copyright Centre de Formation de la Plasturgie C. LE MOULAGE PAR INJECTION Le moulage par injection de pièces plastiques consiste à transférer de la matière à l'état plastifié dans une ou plusieurs empreintes par l'intermédiaire d'un système d'alimentation. 3 techniques sont possibles : 1. 1ère technique : Les canaux permettant le transfert sont comme une pièce, il faut pouvoir les démouler, les laisser se solidifier dans le moule ; d'où une perte de temps et de matière même si ces canaux sont rebroyés et réutilisés en faible pourcentage pour être de nouveau introduit dans le moule (uniquement pour les thermoplastiques avec en général une perte des caractéristiques mécaniques de la nouvelle pièce et une perte de retrait même si le premier moulage a été fait dans de bonnes conditions de transformation).
  • 53.
    C. F. P.CONCEVOIR UN PRODUIT INJECTE Page 53 Module N° 2029 © Copyright Centre de Formation de la Plasturgie 1ère ouverture2ème ouverture Moule 3 plaques La carotte se solidifie en même temps que les pièces, d'où un déchet important de matière. Alimentation 16 empreintes en canal froid, injection latérale au plan de joint du moule.
  • 54.
    C. F. P.CONCEVOIR UN PRODUIT INJECTE Page 54 Module N° 2029 © Copyright Centre de Formation de la Plasturgie 2. 2ème technique : La matière dans les canaux de transfert reste à la température de moulage jusqu'à l'entrée de l'empreinte, ce qui se traduit par une diminution des pertes de matière et un gain de productivité;en effet le temps de solidification de la matière n'est plus que celui propre de la pièce, de même que l'on gagne le temps de remplissage du système d'alimentation. Blocchaud Isolateur Alliage conducteur thermique Empreinte "froide" Canal chaud, matière à la températured'injection Moule multi-empreintes Canal chaud – bloc chaud C anal chaud à la tem pérature d'injection P ièce Alimentation de 16 empreintes sans déchet au sommet de la pièce.
  • 55.
    C. F. P.CONCEVOIR UN PRODUIT INJECTE Page 55 Module N° 2029 © Copyright Centre de Formation de la Plasturgie 3. 3ème technique : C'est un compromis entre les deux premières techniques; une partie des éléments de transfert garde la matière chaude tandis qu'une autre solidifie des petits canaux (cas des petites pièces ou d'injections latérales décalées de l'axe de la machine). Ce compromis permet de limiter les investissements, notamment sur les busettes. Les petits canaux ne produisants que peu de déchet, ne perturbent pas le temps de refroidissement. Canal chaudMini carotte Moule multi-empreintes Alimentation mixte : canaux chauds + canaux froids Canal chaud à la température d'injection Pièce Canal froid Alimentation mixte de 16 empreintes : - canaux chauds pour alimenter un groupe de 4 - canux froids pour alimenter les 4 pièces du groupe.
  • 56.
    C. F. P.CONCEVOIR UN PRODUIT INJECTE Page 56 Module N° 2029 © Copyright Centre de Formation de la Plasturgie D. LES DIFFERENTS SYSTEMES DE CANAUX CHAUDS. 1. Dimensions des seuils d'injection : Les mêmes règles sont à appliquer pour les moules à canaux chauds que pour les moules à canaux froids. 2. La régulation thermique des éléments chauffants : Les polymères thermoplastiques sont des produits dont la viscosité varie selon la température. Il est impératif de prévoir un investissement en systèmes de régulation et de contrôle des températures. L'utilisation de moules à canaux chauds sans système de pilotage mène à l'échec. 3. Moule mono empreinte à antichambre sans obturation : Buse machine Matière froide isolante Matière chaude Antichambre Contredépouillepour accrochagedutampon encasderefroidissement Buse à anti chambre Buse à anti chambre avec accrochage tampon. De tels systèmes permettent de mouler le polyéthylène et le polypropylène à grande cadence. Pour le polystyrène il est nécessaire d'adjoindre un embout de buse en alliage à haute conductibilité thermique. (On utilise des alliages à base de cuivre fortement déconseillés pour la transformation du polyéthylène et du polypropylène).
  • 57.
    C. F. P.CONCEVOIR UN PRODUIT INJECTE Page 57 Module N° 2029 © Copyright Centre de Formation de la Plasturgie Buse machineEmbout de buse en alliage de cuivre Buse machine à pointe en alliage à haute conductibilité thermique. (Bronze au béryllium Cuivre au chrome-zirconium…) 4. Moule mono empreinte à antichambre à obturation : Dans le cas où le temps de plastification est supérieur au temps de refroidissement, il est nécessaire d'obturer le seuil d'injection, d'où l'utilisation de buse à obturateur (buse à aiguille). Levier de commande du pointeau Buse de moule refroidie Pointeau Sonde Collier
  • 58.
    C. F. P.CONCEVOIR UN PRODUIT INJECTE Page 58 Module N° 2029 © Copyright Centre de Formation de la Plasturgie 5. Moule multi- empreintes à canaux chauds bloc froid : Après avoir utilisé avec succès les buse à antichambre, les concepteurs de moules ont eu l'idée d'utiliser cette technique pour les moules multi- empreintes. Le principe est très simple : plus le canal d'alimentation a une grosse section, plus il faut de temps pour qu'il se solidifie. D'où la conception de moule selon le schéma suivant. Moule à canaux chauds bloc froid appelé aussi canaux canadiens. De tels systèmes marche très bien avec des seuils d'injection supérieur à 1,5mm et si les cadences sont rapides pour des polyéthylènes et des polystyrènes (sinon solidification des seuils).Cette technique est très bien adaptée pour une alimentation mixte sur mini carotte. Cette technique porte aussi le nom de canal canadien. Il est évident q'un tel système est très économique à réaliser. Pour un changement de couleur on retire tout le système d'alimentation, ce qui permet un nettoyage très pousser du moule. La section de la veine fluide va se calibrer automatiquement selon le besoin et son parcour va trouver le chemin le plus efficace.
  • 59.
    C. F. P.CONCEVOIR UN PRODUIT INJECTE Page 59 Module N° 2029 © Copyright Centre de Formation de la Plasturgie
  • 60.
    C. F. P.CONCEVOIR UN PRODUIT INJECTE Page 60 Module N° 2029 © Copyright Centre de Formation de la Plasturgie 6. Moule multi- empreintes à canaux chauds bloc froid avec assistance thermique : Dans le cas de moules à canaux canadiens, il est fréquent que le seuil d'injection se solidifie au moindre arrêt de production. Il faut alors déplaquer pour retirer tout le système d'alimentation et procéder à un démarrage. Pour éviter ces opérations, les concepteurs ont eu l'idée d'apporter des calories au niveau du seuil d'injection en utilisant des busettes avec un élément chauffant. Ces busettes ont pour rôle de maintenir ouvert le seuil d'alimentation en cas d'arrêt en cours de production. Les gros canaux d'alimentation ont un temps de figeage très long. Moule froid Cartouche chauffante Busette Canaux chauds isolés Moule à canaux canadiens avec assistance thermique au point d'injection. Ce système a permis d'injecter la plupart des matières thermoplastiques, quelque soit la température du moule. L'énergie électrique consommée pour maintenir la température des seuils étant très réduite. Du fait de la réalisation des canaux dans les plaques, il est facile de voir, en changeant de couleur, le parcour de la matière lors de l'injection.
  • 61.
    C. F. P.CONCEVOIR UN PRODUIT INJECTE Page 61 Module N° 2029 © Copyright Centre de Formation de la Plasturgie 7. Moule multi- empreintes à canaux chauds bloc froid avec assistance thermique sur tout le parcour de la matière : Dans les techniques précédentes, il reste un inconvénient : pour procédés au démarrage du moule, il faut déplaquer pour retirer le système d'alimentation puis suivre une procédure pour remplir le canal avant de démarrer l'injection. L'évolution fut d'apporter une assistance thermique tout au long du canal d'alimentation. Cette technique consiste à apporter, par l'intermédiaire d'éléments chauffants, les calories nécessaires pour remonter le polymère à sa température de tranformation. Tube à élément chauffant + sonde Matière chaude Blocs froids Busette à élém ent chauffant + sonde Moule à canaux chauds bloc froid avec assistance thermique à l'intérieur du canal. Il en résulte une bonne régulation thermique et une perte très faible en énergie (les masses à mettre enchauffe étant réduites au minimum). De plus, cette technique, permet d'arrêter et de redémarrer sans être obligé d'enlever le canal d'alimentation.
  • 62.
    C. F. P.CONCEVOIR UN PRODUIT INJECTE Page 62 Module N° 2029 © Copyright Centre de Formation de la Plasturgie 8. Moule à canaux chauds bloc chaud : Cette technique consiste à garder la matière chaude par une assistancethermique jusqu'à l'empreinte. Cela permet d'arrêter et de redémarrer sans que la matière se solidifie dans le canal d'alimentation. Bloc chaud Isolateur Alliage conducteur thermique Empreinte "froide" Canal chaud, matière à la température d'injection Moule à canaux chauds bloc chaud Toutefois, du fait que le bloc chaud se trouve à la température de transformation de la matière, il en résulte une dilatation importante des éléments les uns par rapport aux autres et une importante perte d'énergie thermique (certaine parties du moule étant chaudes et d'autres étant froides).
  • 63.
    C. F. P.CONCEVOIR UN PRODUIT INJECTE Page 63 Module N° 2029 © Copyright Centre de Formation de la Plasturgie X. EVENTATION DU MOULE Pour que la matière pénettre facilement dans les empreintes, il faut que l'air contenu dans celles-ci puisse s'échapé. D'où la nécessité de faire des évents pour éviter la compression de l'air, sa montée en température et des brûlures sur la pièce. Zone où les gaz emprisonnés vont provoquer des brûlures Event Fuite d'air Cas des formes borgnes (nervures…). Utilisation des éjecteurs pour faire des évents "dynamiques" On réalise les évents dans les zones de fin de remplissage. La profondeur d'un évent dépend de la viscosité du polymère, de la distance qui le sépare du point d'injection, du savoir faire du transformateur… Cependant des évents, placés tout le long du parcour de la matière, faciliterons l'évacuation de l'air et le remplissage des empreintes.
  • 64.
    C. F. P.CONCEVOIR UN PRODUIT INJECTE Page 64 Module N° 2029 © Copyright Centre de Formation de la Plasturgie XI. FONCTION MISE EN FORME A. LES DEPOUILLES Pour facilité le démoulage de la pièce, le moule doit avoir des dépouilles qui doivent être intégrée dans la forme de la pièce. La dépouille dépend essentiellement de l'état de surface de la pièce et de la précision de la géométrie des surfaces (grainage, poli glace, planéité, rectitude…). Angle de dépouille Plan de joint du moule Pièce à mouler Direction du démoulage Dans une moindre mesure la dépouille dépend aussi de l'élasticité du thermoplastique.
  • 65.
    C. F. P.CONCEVOIR UN PRODUIT INJECTE Page 65 Module N° 2029 © Copyright Centre de Formation de la Plasturgie B. LE PLAN DE JOINT C. LE RETRAIT On entend par retrait les processus qui conduisent à la réduction des dimensions de la pièce par rapport à celles du moule froid. Le retrait exerce une influence directe sur les dimensions d'une pièce moulée par injection. Un retrait différentiel provoque des déformations (gauchissement ou voilage). Le blocage du retrait (maintien prolongé de la pièce dans le moule ou utilisation de conformateur) engendre des tensions internes qui d'une part altèrent la résistance globale de la pièce et d'autre part se libéreront dans le temps entraînant des déformations. Le retrait commence à se produire pendant la transformation, lorsque la matière passe de l'état plastique à l'état solide (refroidissement) et que la masse fondue amorphe se transforme en une matière partiellement cristalline en se contractant. Ainsi, une pièce moulée par injection est plus petite que la cote du moule froid correspondant. Le retrait de moulage des matières partiellement cristallines est plus important que pour les matières amorphes. On appelle retrait de moulage Rm la différence entre la cote du moule froid Mf et la cote L de la pièce moulée refroidie (24h après sa fabrication, DIN 16 901). Le retrait de moulage est indiqué en % 100 Mf LMf Rm − =
  • 66.
    C. F. P.CONCEVOIR UN PRODUIT INJECTE Page 66 Module N° 2029 © Copyright Centre de Formation de la Plasturgie La diminution de volume de la pièce moulée n'est pas encore terminée. le retrait se poursuit dans le temps et tend vers une valeur "définitive" d'autant plus vite atteinte que la température de stockage est élevée. Ce phénomène, essentiellement dû à une post-cristallisation est appelé Post-retrait Pr. Selon la norme DIN 53464, on entend par post-retrait la différence calculée entre la cote L de la pièce moulée et la cote L1 de cette même pièce après un traitement ultérieur à une température donnée. Le post-retrait est indiqué en % 100 L 1LL Pr − = Le post-retrait des matières plastiques partiellement cristallines est toujours inférieur au retrait de moulage. La somme du retrait de moulage et du post-retrait est appelé retrait total Rt PrRmRt += Représentation schématique du retrait de moulage Rm, du post-retrait Pr et du retrait total Rt Moule froid Moule chaud Pièce à la sortie du moule Pièce après stockage de 24h dans les conditions normalisées Pièce après stockage prolongé Retrait de moulage Post-retrait Retrait total
  • 67.
    C. F. P.CONCEVOIR UN PRODUIT INJECTE Page 67 Module N° 2029 © Copyright Centre de Formation de la Plasturgie Tous les phénomènes de retrait dépendent non seulement de la matière plastique elle-même, mais aussi d'un grand nombre de paramètres de transformation ou inhérents à l'utilisation de la pièce ou à la pièce elle- même. C'est pourquoi nous ne pouvons donner que des valeurs indicatives.
  • 68.
    C. F. P.CONCEVOIR UN PRODUIT INJECTE Page 68 Module N° 2029 © Copyright Centre de Formation de la Plasturgie XII. FONCTION REFROIDISSEMENT A. GENERALITES C'est souvent le parent pauvre du moule. En effet, une fois que le système d'alimentation est mis en place, que les éléments de démoulage occupent le terrain et que l'on fasse quelques réserves pour la mise au point ou pour des modifications éventuelles, il ne reste plus beaucoup de possibilité pour implanter un système de refroidissement. C'est pourtant une fonction très importante, car elle influence la qualité de la pièce ainsi que son cycle de moulage. Au moment où le polymère entre dans l'empreinte, se constitue une gaine solide au contact du moule et une veine fluide au milieu de l'épaisseur de paroi. Il est très important que la thermique soit équilibrée pour que la veine fluide soit bien centrée sur l'épaisseur. Si ce n'est pas le cas au moment du refroidissement de la veine fluide, il va y avoir un couple qui déformera la pièce. Pour éviter une déformation, on maintient la pièce plus longtemps dans le moule jusqu'à ce que la pièce soit suffisamment solide. Cela se traduit par un allongement du cycle et une perte de qualité (contraintes internes).
  • 69.
    C. F. P.CONCEVOIR UN PRODUIT INJECTE Page 69 Module N° 2029 © Copyright Centre de Formation de la Plasturgie F ront m atièreV e ine fluideG a ine froide P aroi du m oule Lorsque la thermique est déséquilibrée, la veine fluide est décentrée par rapport à l'épaisseur de la paroi. Le retrait de la veine fluide générera un couple qui déformera la pièce.
  • 70.
    C. F. P.CONCEVOIR UN PRODUIT INJECTE Page 70 Module N° 2029 © Copyright Centre de Formation de la Plasturgie B. LES TECHNIQUES DE REFROIDISSEMENT On refroidit les moules par rapport à la température d'injection du polymère. Bien souvent la température des moules est comprise entre 40°C et 100°C. La plupart du temps on perce des trous pour faire circuler un liquide de refroidissement. 4 d 4 4 D 22 π ≥ π
  • 71.
    C. F. P.CONCEVOIR UN PRODUIT INJECTE Page 71 Module N° 2029 © Copyright Centre de Formation de la Plasturgie
  • 72.
    C. F. P.CONCEVOIR UN PRODUIT INJECTE Page 72 Module N° 2029 © Copyright Centre de Formation de la Plasturgie Une autre technique consiste à faire des rainures soit sur un fond, soit sur le périmètre d'une pièce circulaire. Spirale simple Cercles complets avec tôles de séparation Cercles décalés fraisés Spirale simple
  • 73.
    C. F. P.CONCEVOIR UN PRODUIT INJECTE Page 73 Module N° 2029 © Copyright Centre de Formation de la Plasturgie
  • 74.
    C. F. P.CONCEVOIR UN PRODUIT INJECTE Page 74 Module N° 2029 © Copyright Centre de Formation de la Plasturgie Le refroidissement des broches Refroidissement à l’air pour broches de petit diamètre < à 2 pendant l’ouverture du moule après éjection. air Refroidissement à l’air pour broches de petit diamètre > à 3 pendant l’ouverture. air Refroidissement par échange thermique avec insert en cuivre pour broche de diamètre > à 4. CU
  • 75.
    C. F. P.CONCEVOIR UN PRODUIT INJECTE Page 75 Module N° 2029 © Copyright Centre de Formation de la Plasturgie Pour broche >φ 8 Refroidissement en fontaine dans un puits alimenté par un tube. Pour broche >φ 20 Refroidissement par spirale simple filet avec arrivée par le centre par élément rapporté. Refroidissement par spirale double filet + puits central sur broche rapportée.
  • 76.
    C. F. P.CONCEVOIR UN PRODUIT INJECTE Page 76 Module N° 2029 © Copyright Centre de Formation de la Plasturgie Les caloducs E n v e lo p p e R é s e a u c a p illa ire C o n d u it a d ia b a tiq u e P o in t c h a u d E v a p o ra te u r R e fro id is s e m e n t C o n d e n s e u r L iq u id eV a p e u r 1 10 100 1000 Puissance transportée -50 0 60 100 200 BT 300 400330 MT 500 600 700630 HT Température d'utilisation
  • 77.
    C. F. P.CONCEVOIR UN PRODUIT INJECTE Page 77 Module N° 2029 © Copyright Centre de Formation de la Plasturgie Logic-seal Electro-vanne1 Electro-vanne2 Electro-vanne3 fermée fermée ouverte Logic-seal Electro-vanne 3 fermée fermée ouverte Electro- vanne 1 Electro- vanne 2
  • 78.
    C. F. P.CONCEVOIR UN PRODUIT INJECTE Page 78 Module N° 2029 © Copyright Centre de Formation de la Plasturgie Logic-seal Electro-vanne 3 fermée fermée ouverte Electro- vanne 1 Electro- vanne 2 Logic-seal Electro-vanne 3 fermée fermée ouverte Electro- vanne 1 Electro- vanne 2
  • 79.
    C. F. P.CONCEVOIR UN PRODUIT INJECTE Page 79 Module N° 2029 © Copyright Centre de Formation de la Plasturgie Logic-seal Electro-vanne 3 fermée fermée ouverte Electro- vanne 1 Electro- vanne 2
  • 80.
    C. F. P.CONCEVOIR UN PRODUIT INJECTE Page 80 Module N° 2029 © Copyright Centre de Formation de la Plasturgie XIII. DEMOULAGE A. ORIFICES Pour des raisons économiques, le projeteur concevra une pièce nécessitant qu'un moule en deux parties. Les contre dépouilles exigent des moules à tiroir, à coquilles, commande de noyaux, à noyaux mobiles ou rétractables. Ces moules coûtent chers, d'un fonctionnement délicat, sensibles à l'usure avec des frais d'entretiens plus élevés. Les machines doivent être équipées de dispositifs de commande et de contrôle, le cycle sera plus long. Il convient d'éviter les orifices latéraux et les contre dépouilles, comme les nervures périphériques et l'orifice latéral de la pièce ci- contre. Orifice latéral obtenu par tiroir L'orifice vertical, réalisé par une rainure sur la paroi latérale, évite tiroir, coquille ou autres éléments mobiles.
  • 81.
    C. F. P.CONCEVOIR UN PRODUIT INJECTE Page 81 Module N° 2029 © Copyright Centre de Formation de la Plasturgie Orifice latéral d'un pièce possédant une grande dépouille de démoulage. de l'empreinte de la pièce Vue extérieure du poinçon Vue intérieure Vue extérieure Cas d'un aérateur le plan de joint interne en oblique ne nécessite ni tiroirs ni parties mobiles. A xe de dé m oula ge L'intégration de fonctions rend les pièces plastiques de plus en plus compliquées. Celles ci exigent des moules complexes à tiroirs, coquilles, noyaux, dévissage, que l'on aura soin de limiter au juste nécessaire.
  • 82.
    C. F. P.CONCEVOIR UN PRODUIT INJECTE Page 82 Module N° 2029 © Copyright Centre de Formation de la Plasturgie B. LES TIROIRS
  • 83.
    C. F. P.CONCEVOIR UN PRODUIT INJECTE Page 83 Module N° 2029 © Copyright Centre de Formation de la Plasturgie V1 V1 V1V1 V1 V2V2 V2 V2 V2 V2 V2 V3 V3 V3 V3V3 V3 V3 V4 V4 V4 V4V4 V4 V4 V5V5 V5 V6 V6 V6 V6 V7V7V7 V7V7 V8V8 V8 V8 V8
  • 84.
    C. F. P.CONCEVOIR UN PRODUIT INJECTE Page 84 Module N° 2029 © Copyright Centre de Formation de la Plasturgie 1. Butées et retenue de tiroir : L'emploi d'un bonhomme à bille permet d'immobiliser le tiroir en position ouverte afin que le doigt de démoulage retrouve son orifice au moment de la fermeture. Une butée démontable assure une sécurité en cas de fausse manœuvre. Course Course + 1 Lorsque la gravité peut permettre au tiroir de se refermer par son poids, il faut utiliser un dispositif plus efficace. Le ressort de compression est possible pour des courses faibles.
  • 85.
    C. F. P.CONCEVOIR UN PRODUIT INJECTE Page 85 Module N° 2029 © Copyright Centre de Formation de la Plasturgie 2. Tiroir avec une course longue : Les systèmes mécaniques atteignent rapidement leurs limites quand la course de démoulage de la contre dépouille est importante. L'utilisation de vérins hydrauliques est très répandue dans ce cas. Course de recul Pression Moule fermé Pression Moule ouvert Piston Tige de vérinCorps du vérin Les supports de vérins peuvent être rapportés ou intégrés dans le maître moule ce qui permet de supprimer la plupart des flexibles. Les circuits sont réaliser directement dans les plaques. L'utilisation de vérin implique des contrôles de position.
  • 86.
    C. F. P.CONCEVOIR UN PRODUIT INJECTE Page 86 Module N° 2029 © Copyright Centre de Formation de la Plasturgie C. COQUILLES Plaque porte poinçon Plaque porte empreinte Fond d'empreinte Pièce Poinçon Corps de moule ou frette Vérin hydraulique Coquille Guidage par Té ou colonnes obliques Plaque porte poinçon Plaque porte empreinte F ond d'empreinte Pièce Poinçon C orps de moule ou frette V érin hydraulique C oquille G uidage par Té ou colonnes obliques Recul Coursed'ouverture
  • 87.
    C. F. P.CONCEVOIR UN PRODUIT INJECTE Page 87 Module N° 2029 © Copyright 1993 – 1999 Centre de Formation de la Plasturgie XIV. EJECTION A. ARRACHE CAROTTE C'est un élément stratégique du moule, car c'est souvent de l'efficacité de l'arrache carotte que dépend le temps de cycle.
  • 88.
    C. F. P.CONCEVOIR UN PRODUIT INJECTE Page 88 Module N° 2029 © Copyright 1993 – 1999 Centre de Formation de la Plasturgie B. EJECTEURS CYLINDRIQUES 2 S=11,10mm S=3,54mm 2 S=18mm 2
  • 89.
    C. F. P.CONCEVOIR UN PRODUIT INJECTE Page 89 Module N° 2029 © Copyright 1993 – 1999 Centre de Formation de la Plasturgie
  • 90.
    C. F. P.CONCEVOIR UN PRODUIT INJECTE Page 90 Module N° 2029 © Copyright 1993 – 1999 Centre de Formation de la Plasturgie
  • 91.
    C. F. P.CONCEVOIR UN PRODUIT INJECTE Page 91 Module N° 2029 © Copyright 1993 – 1999 Centre de Formation de la Plasturgie
  • 92.
    C. F. P.CONCEVOIR UN PRODUIT INJECTE Page 92 Module N° 2029 © Copyright 1993 – 1999 Centre de Formation de la Plasturgie C. EJECTEURS LAMES
  • 93.
    C. F. P.CONCEVOIR UN PRODUIT INJECTE Page 93 Module N° 2029 © Copyright 1993 – 1999 Centre de Formation de la Plasturgie D. EJECTEURS TUBULAIRES
  • 94.
    C. F. P.CONCEVOIR UN PRODUIT INJECTE Page 94 Module N° 2029 © Copyright 1993 – 1999 Centre de Formation de la Plasturgie E. EJECTION PAR SOUPAPES
  • 95.
    C. F. P.CONCEVOIR UN PRODUIT INJECTE Page 95 Module N° 2029 © Copyright 1993 – 1999 Centre de Formation de la Plasturgie F. EJECTION PAR DEVETISSEUSE
  • 96.
    C. F. P.CONCEVOIR UN PRODUIT INJECTE Page 96 Module N° 2029 © Copyright 1993 – 1999 Centre de Formation de la Plasturgie G. COMMANDE DE LA DEVETISSEUSE Dans le cas d'un moule multi empreintes, nous pouvons conserver le système d'éjection central. Pour un moule mono empreinte, la commande de la plaque dévêtisseuse peut se faire par l'intermédiaire d'une batterie d'éjection.
  • 97.
    C. F. P.CONCEVOIR UN PRODUIT INJECTE Page 97 Module N° 2029 © Copyright 1993 – 1999 Centre de Formation de la Plasturgie L'utilisation de butées latérales fixées sur le plateau d'éjection, permet de compacter le moule. La dévêtisseuse peu être commandée par vérins incorporés dans le moule; c'est le cas lorsque le moule est inversé (éjection coté fixe).
  • 98.
    C. F. P.CONCEVOIR UN PRODUIT INJECTE Page 98 Module N° 2029 © Copyright 1993 – 1999 Centre de Formation de la Plasturgie H. LES CALES MONTANTES OBLIQUES
  • 99.
    C. F. P.CONCEVOIR UN PRODUIT INJECTE Page 99 Module N° 2029 © Copyright Centre de Formation de la Plasturgie
  • 100.
    C. F. P.CONCEVOIR UN PRODUIT INJECTE Page 100 Module N° 2029 © Copyright Centre de Formation de la Plasturgie XV. RESUME (PRIX DE REVIENT PREVISIONNEL) Afin d’établir un prix de revient prévisionnel il faut suivre le synoptique ci-dessous : OPERATION DOCUMENT DE REFERENCE CHOIX DU PLAN DE JOINT Cahier des charges pièce, aspect, décoration, dimensionnel cotes dépendantes du moule. SURFACE PIECE Surface de projection. VOLUME PIECE Cours, les principaux volumes. POIDS PIECE Densité matière choix de la matière en fonction du cahier des charges pièces. NOMBRE EMPREINTES Calcul nombre empreintes (série, prix moule). ENCOMBREMENT MOULE Implantation des empreintes, choix des emplacements des seuils d’alimentation, cinématique moule. CHOIX PRESSE Calcul force de fermeture. CHOIX PRESSE Calcul volume injecté. CALCUL CYCLE Décomposition en TEMPS DYNAMIQUE REFROIDISSEMENT ENTRE CYCLE TAUX HORAIRE Travail en automatique, avec opérateur, part de l’opérateur. CADENCE MOULAGE Cycle x nombre empreintes PART MATIERE Poids brut (la moulée), poids net (pièce), part de carotte broyée à réincorporer. COUT MATIERE TARIFICATION MATIERE OPERATIONS FINITION Calcul des coûts par rapport à une cadence et taux horaire. CONDITIONNEMENT Calcul des coûts d’emballage, unitaire, carton, palette. TRANSPORT Calcul des coûts indexés au poids et volume.
  • 101.
    C. F. P.CONCEVOIR UN PRODUIT INJECTE Page 101 Module N° 2029 © Copyright Centre de Formation de la Plasturgie A. PLATINE ELECTRIQUE CAHIER DES CHARGES Série totale 300000. Cadence mensuelle 10.000 Tolérances générales +/- 0.2 mm. Aspect : ® Pas de retassures. ® Face visible coté opposé au bossage. Dépouille autorisée 2%. PRIX pour 1 et 2 empreintes. Autres définitions : ® Matière Polycarbonate noir prix au kg 5.00 € ® Prendre pression dans l’empreinte 450 bars. ® Densité 1.18. ® Si 1 empreinte carotte dans le trou de rayon 15 mm. Calculer : ® Volume pièce, carotte. ® Poids pièce, carotte. ®Surface de projection. ® Force de fermeture. Prix de l’outillage : ® 1 empreinte 10700 € ® 2 empreintes 13000 € Amortir le prix du moule sur la série prévue. Se servir des documents du cours pour trouver les autres éléments
  • 102.
    C. F. P.CONCEVOIR UN PRODUIT INJECTE Page 102 Module N° 2029 © Copyright Centre de Formation de la Plasturgie PLATINEELECTRIQUE
  • 103.
    C. F. P.CONCEVOIR UN PRODUIT INJECTE Page 103 Module N° 2029 © Copyright Centre de Formation de la Plasturgie Carotte : Longueur 40 mm Diam 5 mm diam 3 mm
  • 104.
    C. F. P.CONCEVOIR UN PRODUIT INJECTE Page 104 Module N° 2029 © Copyright Centre de Formation de la Plasturgie
  • 105.
    C. F. P.CONCEVOIR UN PRODUIT INJECTE Page 105 Module N° 2029 © Copyright Centre de Formation de la Plasturgie B. PLATINE 1 EMPREINTE DEVIS PIECE NUMERO : DATE 28/01/02 CLIENT : DEVIS PIECE PIECE REFERENCE : PLATINE ELECTRIQUE POIDS NET 54.3 gr PIECE REFERENCE : POIDS NET gr PIECE REFERENCE : POIDS NET gr SERIE moulage 10000 Nbre EMPREINTES 1 MATIERE REFERENCE DENSITE 1.18 VIERGE PRIX AU KG 5.00 € euros BROYE PRIX AU KG 0.70 € euros FRAIS MAGASINAGE PRIX AU KG 0.093 € euros CAROTTE POIDS 2.5 gr POIDS BRUT 56.8 gr % CAROTTE / POIDS BRUT 4% MOULAGE PRESSE identification TAUX HORAIRE PRESSE 20.38 € euros % M.O. OPERATEUR 20% TAUX HORAIRE MOULEUR 14.50 € euros CYCLE secondes calculé 26.57 Nbre PIECES HEURE 135 pièces CYCLE RETENU 26 PIECES/H RETENUES 138 pièces FORCE VERROUI.(tonnes) 90 Surface PROJECTION 145.94 cm2 PRESSION dans EMPR(bars) 450 VERROUI NECESSAIRE 78.8076 tonnes LA PRESSE CHOISIE EST CONFORME AU VERROUILLAGE CAPACITE INJECTION 164 cm3 Diametre VIS 38 mm 1/3 capacite 55 cm3 volume injecté 60 cm3 OK 3/4 capacité 123 cm3
  • 106.
    C. F. P.CONCEVOIR UN PRODUIT INJECTE Page 106 Module N° 2029 © Copyright Centre de Formation de la Plasturgie COUT PRESSE 0.168 € COUT MATIERE VIERGE + MAGASINAGE 0.289 € RECUPERATION BROYE % 4% ( % CAROTTE) 4% MOINS VALUE RECUP BROYE 0.012 € COUT FINAL MATIERE 0.278 € TAUX DECHET 2.00% PLUS VALUE DECHETS 0.009 € COUT MOULAGE 0.455 € FORFAIT FRAIS DEMARRAGE 61 € HEURES PRODUCTION 74 COUT FRAIS DEM. 0.000 € FORFAIT H.SANS FRAIS 24 AUTRES FRAIS DEMARRAGE 0.000 € AUTRES FRAIS FINITION TAUX HORAIRE 0.00 € QTE HEURE 0 DECORATION TAUX HORAIRE 0.00 € QTE HEURE 0 ASSEMBLAGE TAUX HORAIRE 0.00 € QTE HEURE 0 EMBALLAGE 0.018 € COUT EMBALLAGE 0.910 € NOMBRE PIECES 50 TRANSPORT 0.10 € 0.100 € TOTAL AUTRES FRAIS 0.118 € BENEFICE 5.00% VALEUR BENEFICE 0.029 € Coef FRAIS GENE SOCIETE 22.00% Valeur F.G.SOCIETE 0.100 € Coef FRAIS USINE 0.00% Valeur F.Usine 0.000 € Coef COMM. COMMERCIAL 0.00% Valeur COMMISSION 0.000 € PRIX DE VENTE MINI 0.702 €
  • 107.
    C. F. P.CONCEVOIR UN PRODUIT INJECTE Page 107 Module N° 2029 © Copyright Centre de Formation de la Plasturgie C. PLATINE 2 EMPREINTES DEVIS PIECE NUMERO : DATE 28/01/02 CLIENT : DEVIS PIECE PIECE REFERENCE : PLATINE ELECTRIQUE POIDS NET 54.3 gr PIECE REFERENCE : POIDS NET gr PIECE REFERENCE : POIDS NET gr SERIE moulage 10000 Nbre EMPREINTES 2 MATIERE REFERENCE DENSITE 1.18 VIERGE PRIX AU KG 5.00 € euros BROYE PRIX AU KG 0.70 € euros FRAIS MAGASINAGE PRIX AU KG 0.093 € euros CAROTTE POIDS 10 gr POIDS BRUT 118.6 gr % CAROTTE / POIDS BRUT 8% MOULAGE PRESSE identification 200T TAUX HORAIRE PRESSE 31.87 € euros % M.O. OPERATEUR 20% TAUX HORAIRE MOULEUR 14.50 € euros CYCLE secondes calculé 28.60 Nbre PIECES HEURE 252 pièces CYCLE RETENU 29 PIECES/H RETENUES 248 pièces FORCE VERROUI.(tonnes) 200 Surface PROJECTION 292 cm2 PRESSION dans EMPR(bars) 450 VERROUI NECESSAIRE 157.68 tonnes LA PRESSE CHOISIE EST CONFORME AU VERROUILLAGE CAPACITE INJECTION 499 cm3 Diametre VIS 55 mm 1/3 capacite 166 cm3 volume injecté 126 cm3 ATTENTION 3/4 capacité 374 cm3
  • 108.
    C. F. P.CONCEVOIR UN PRODUIT INJECTE Page 108 Module N° 2029 © Copyright Centre de Formation de la Plasturgie COUT PRESSE 0.140 € COUT MATIERE VIERGE + MAGASINAGE 0.302 € RECUPERATION BROYE % 8% ( % CAROTTE) 8% MOINS VALUE RECUP BROYE 0.024 € COUT FINAL MATIERE 0.278 € TAUX DECHET 2.00% PLUS VALUE DECHETS 0.008 € COUT MOULAGE 0.427 € FORFAIT FRAIS DEMARRAGE 103 € HEURES PRODUCTION 40 COUT FRAIS DEM. 0.000 € FORFAIT H.SANS FRAIS 24 AUTRES FRAIS DEMARRAGE 0.000 € AUTRES FRAIS FINITION TAUX HORAIRE 0.00 € QTE HEURE 0 DECORATION TAUX HORAIRE 0.00 € QTE HEURE 0 ASSEMBLAGE TAUX HORAIRE 0.00 € QTE HEURE 0 EMBALLAGE 0.018 € COUT EMBALLAGE 0.910 € NOMBRE PIECES 50 TRANSPORT 0.10 € 0.100 € TOTAL AUTRES FRAIS 0.118 € BENEFICE 5.00% VALEUR BENEFICE 0.027 € Coef FRAIS GENE SOCIETE 22.00% Valeur F.G.SOCIETE 0.094 € Coef FRAIS USINE 0.00% Valeur F.Usine 0.000 € Coef COMM. COMMERCIAL 0.00% Valeur COMMISSION 0.000 € PRIX DE VENTE MINI 0.666 €