ECOTIME :UN NOUVEAU SAVOIR VIVRE !
       DOMAINE DE RIMBAUT– 09500 MIREPOIX – 06 13 95 81 86
                       RCS FOIX 510 699 529
Qu’est ce que la Maison                                   Luttez contre le changement climatique
ossature bois ?                                           utilisez le bois !

                                                          Le bois est un matériau qui traverse les
On l’appelle la « MOB ».                                  siècles..
En construction, l’ossature bois est la technique la
plus répandue. Elle séduit autant par son esthétique
plurielle et contemporaine, que par sa légèreté et sa     Le bois est naturellement isolant et
rapidité de mise en œuvre.                                respirant…

Qu'est-ce que l'ossature bois ?                           La maison ossature bois c’est une maison
Le système constructif de l'ossature bois consiste à      moins chère et plus confortable. Sa haute
ériger une trame régulière et faiblement espacée, de      performance en matière d’isolation permet
pièces verticales en bois de petites sections, les        de faire des économies importantes de
montants, et de pièces horizontales hautes, basses et
médianes, les traverses et entretoises.                   chauffage !

Sur cette ossature, supportant planchers et toiture,
est fixé un voile travaillant en panneau dérivé du bois
(panneau de particules, de contreplaqué ou d'OSB)
qui assure le contreventement.
 L'isolant thermique est inséré entre les panneaux
que recouvrent les parements intérieurs et extérieurs.
Le bois est un matériau naturel et vivant. Il assure un
confort de vie et une grande qualité de l'air ambiant.
En limitant les risques d'allergie, de rhinite, de
problèmes respiratoires et de déshydratation, le bois
rend l'habitat plus sain..
De plus, les parois multicouches offrent de bonnes
performances en matière d’isolation phonique.




                                                                                                      2
Les Avantages de la maison ossature bois …
                          Le bois est un matériau léger ....qui dit poids léger dit également coûts allégés :
                          la construction se fait en quelques semaines ;
                          elle s’adapte à tout type de terrains, y compris à fort dénivelé ou à faible portance ;
Accessible à tous         sa légèreté réduit les coûts de transport ;
                          l’équipe de montage se limite 3-4 personnes
                          Naturellement isolant et adapté à tous les climats, il génère des économies
                          d'énergie très importantes


                          Le bois est un matériau naturel noble extrêmement résistant. Les plus anciennes
                          constructions de ce monde sont en bois et sont parfaitement intactes : les maisons à
   Durabilité
                          colombages du moyen âge …



                          Le bois résiste particulièrement bien au feu. Sa combustion est lente et régulière.
                          Alors qu’une structure classique se déforme et cède rapidement, le bois résiste
                          toujours et conserve plus longtemps ses capacités de portance.
     Sécurité             Le bois dans un incendie transmet 10 fois moins vite la chaleur que le béton et
                          produit des gaz largement moins nocifs que ceux dégagés par de nombreuses
                          matières synthétiques.


                          De plus le bois stocke le CO² et lutte efficacement contre l'effet de serre. Construire
                          en bois participe donc à la lutte contre le réchauffement climatique.
   Une matière            Cette technique de construction permet une préfabrication de murs complets en
première propre et        usine et offre différents atouts notamment : un chantier propre, peu de découpes et
   renouvelable           des déchets recyclables.
                          Tous nos bois proviennent de forêts gérées ce qui signifie que pour chaque arbre
                          abattu, un nouvel arbre est planté.
                                                                                                                    3
Le bois
 un matériau bon pour votre santé !!!
 Il limite considérablement les problèmes respiratoires et allergiques
 et est excellent contre le stress…




Le bois … est un matériau naturel et vivant. Il régule l’humidité de l’air et assure une
hygrométrie constante qui apporte une grande qualité de l’air ambiant, limitant ainsi les
risques d’allergies, les rhinites et autre problèmes respiratoires.
Il créé un climat sain et de bien être, on a constaté par exemple que l’agressivité des
enfants diminuait fortement dans un bâtiment scolaire en bois. D’où un véritable intérêt
à construire en bois y compris, école, crèches et même hôpitaux.


                                                                                            4
EDITO
 Nous avons créé EcoTime il y a 2 ans avec l’idée de
proposer à nos clients des maisons ossature bois
écologiques, de qualité au meilleur prix.
Face à la crise dont nous subissons tous les
conséquences et au dérèglement climatique, la maison
ossature bois est la solution. Les canadiens, les
américains, les nordiques construisent leurs maisons
en bois depuis plusieurs générations et en tirent les
meilleurs avantages. En France, il est temps de nous y
mettre !!
 Nous devons prendre conscience des avantages
qu’apporte le bois à tous les niveaux, sécurité,
performance énergétique, temps de mise en œuvre,
prix. Notre objectif : permettre à tous de se loger dans
les meilleures conditions.
 Important : nous ne sommes pas constructeur (CCMI).
Avec EcoTime, vous êtes maître d’œuvre de votre
projet : vous choisissez les matériaux et
l’aménagement intérieur de votre maison.
 EcoTime et ses partenaires ariégeois vous fournissent
les matériaux entrant dans la construction de votre
maison. Vous bénéficiez des garanties décennales de à
chaque étape (Garanties sur la fabrication et sur la
pose des murs).

                                                           5
Matériaux utilisés
Bardage
Bardage extérieur pin du nord traité classe 4                          Menuiseries Extérieures bois fenêtre double vitrage, basse
Bavette basse périphérique.                                            émissivité (Option menuiseries Mélèze)
Angle de finition rentrant et sortant.                                 Porte-entrée 90x215 en bois massif
                                                                       Fenêtre bois 40 x45 oscillo-battante.
Murs extérieurs triple isolation anti ponts thermiques                 Fenêtre bois 80x115, ouvrant à la française, 2 vantaux
Pare-pluie tissu et contreventement panneaux OSB 9-12 mm.              Fenêtre bois 140x125, 2 vantaux
Ossature en bois pin cl2 ( 45X145) à 15% d’humidité, raboté.           Porte fenêtre 90x215, 1 vantail
Isolation Isover GR32, 140 mm panneaux rigides (option laine de        Porte fenêtre 180 x 215, 2 vantaux
bois possible).                                                        Volets battants bois.
Film pare vapeur
                                                                       OUVRAGES PARTICULIERS
Plancher dalle béton ou Plancher coffre bois (en option) :
 Plancher porteur en caissons chevronnés en bois massif                Linteaux en bois massif 45 x 220, C24, à 15% d'humidité et raboté.
Solives bois massif ou lamellé-collé selon études d'exécutions, C24,   Pré-cadre habillage menuiserie en pin du nord C24, à 15%
à 15% d'humidité.                                                      d'humidité et raboté.
Isolation plancher 220 mm entre caissons du plancher.                  Seuil menuiserie liaison bois, C24, à 15% d'humidité et raboté.
                                                                       Tôle galvanisée habillage des seuils et des tableaux de menuiseries.
 La Charpente fermette ou traditionnelle (en option)                   Larmier zinc
 charpente en fermette industrialisée en sapin du nord traitée         Pare insecte et rongeurs de 22 x45 mm acier galvanisé laqué en
Classe 2 à 15% d'humidité.                                             partie haute des ouvertures et en partie basse des murs (pour
En option charpente séjour en bois massif constituée de chevrons       ventilation de bardage).
porteurs apparents
trémie réalisée pour laisser place aux conduits divers




•                                                                                                                                             6
Matériaux utilisés
Bardage                                                                 OUVRAGES PARTICULIERS
Bardage extérieur pin du nord traité classe 4
Bavette basse périphérique.                                            Linteaux en bois massif 45 x 220, C24, à 15% d'humidité et raboté.
Angle de finition rentrant et sortant.                                 Pré-cadre habillage menuiserie en pin du nord C24, à 15%
                                                                       d'humidité et raboté.
Murs extérieurs triple isolation anti ponts thermiques                 Seuil menuiserie liaison bois, C24, à 15% d'humidité et raboté.
Pare-pluie tissu et contreventement panneaux OSB 9-12 mm.              Tôle galvanisée habillage des seuils et des tableaux de menuiseries.
Ossature en bois pin cl2 ( 45X145) à 15% d’humidité, raboté.           Larmier zinc
Isolation Isover GR32, 140 mm panneaux rigides (option laine de        Pare insecte et rongeurs de 22 x45 mm acier galvanisé laqué en
bois possible).                                                        partie haute des ouvertures et en partie basse des murs (pour
Film pare vapeur                                                       ventilation de bardage).


Plancher dalle béton ou Plancher coffre bois (en option) :
 Plancher porteur en caissons chevronnés en bois massif
Solives bois massif ou lamellé-collé selon études d'exécutions, C24,
à 15% d'humidité.
Isolation plancher 220 mm entre caissons du plancher.

 La Charpente fermette ou traditionnelle (en option)
 charpente en fermette industrialisée en sapin du nord traitée
Classe 2 à 15% d'humidité.
En option charpente séjour en bois massif constituée de chevrons
porteurs apparents
trémie réalisée pour laisser place aux conduits divers

Menuiseries Extérieures bois fenêtre double vitrage, basse
émissivité (Option menuiseries Mélèze)
                                                                                                                                          7
Photos de montage modèle Eco100
Modèle Eco 100 : 100 m² habitables à Mirepoix (09500)



                                                        8
Eco83
        83 m² habitables,
             2 chambres,
    2 terrasses couvertes




9
Plans Eco 83
Plans et aménagement intérieur fournis à titre d’exemple
                                                           10
Eco89
     89 m² habitables,
          2 chambres,
     terrasse couverte




11
Eco 89
Plans et aménagement intérieur fournis à titre d’exemple   12
Eco100
     100 m² habitables,
           3 chambres




13
Plans Eco89
Plans Eco100
Plans et aménagement intérieur fournis à titre d’exemple
                                                           14
Eco104
         104 m² habitables,
       3 grandes chambres
     (13.80 m² et 14.30 m²)
            Entrée couverte
          Terrasse couverte




15
Plans Eco89

Plans Eco104
Plans et aménagement intérieur fournis à titre d’exemple   16
Eco122
     122 m² habitables,
                1 étage
            4 chambres
      Terrasse couverte




17
R
                                                           E
                                                           Z
                                                           -
                                                           D
                                                           E
                                                           -
                                                           C
                                                           H
                                                           A
                                                           U
                                                           S
                                                           S
                                                           E
                                                           E
 Plans Eco89
Plans Eco122
Plans et aménagement intérieur fournis à titre d’exemple
                                                           18
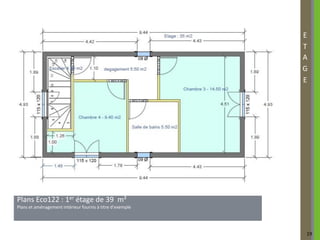
Etage de 39 m² habitable :
                                                                                        E
                                                                                        T
                                                                                        A
                                                                                        G
                                                                                        E




Plans Eco122 : 1er étage de 39 m²
 Plans Eco89
Plans et aménagement intérieur fournis à titre d’exemple




                                                                                        19
Eco135
     135m² habitables,
          4 chambres
              Garage




20
Plans Eco89
Plans Eco135
Plans et aménagement intérieur fournis à titre d’exemple

                                                           21
Eco151
151m² habitables,
     4 chambres




               22
R
                                                           E
                                                           Z
                                                           -
                                                           D
                                                           E
                                                           -
                                                           C
                                                           H
                                                           A
                                                           U
                                                           S
                                                           S
                                                           E
                                                           E
  Plans Eco89
Plans Eco151 : rez-de-chaussée 124 m² habitables
Plans et aménagement intérieur fournis à titre d’exemple
                                                           23
S
                                                             U
                                                           1 I
                                                           E T
                                                           R E

                                                                P
                                                           E    A
                                                           T    R
                                                           A    E
                                                           G    N
                                                           E    T
                                                                A
                                                                L
                                                                E
 Plans Eco89
Plans Eco151 : 1er étage 29 m² habitable
Plans et aménagement intérieur fournis à titre d’exemple


                                                           24
EcoTime : un nouveau savoir vivre !




                 EcoTime
             Domaine de Rimbaut
               09500 Mirepoix
        www.ecotime.pro - Ecotime@sfr.fr


                                           25

Exemples de réalisations possibles

  • 1.
    ECOTIME :UN NOUVEAUSAVOIR VIVRE ! DOMAINE DE RIMBAUT– 09500 MIREPOIX – 06 13 95 81 86 RCS FOIX 510 699 529
  • 2.
    Qu’est ce quela Maison Luttez contre le changement climatique ossature bois ? utilisez le bois ! Le bois est un matériau qui traverse les On l’appelle la « MOB ». siècles.. En construction, l’ossature bois est la technique la plus répandue. Elle séduit autant par son esthétique plurielle et contemporaine, que par sa légèreté et sa Le bois est naturellement isolant et rapidité de mise en œuvre. respirant… Qu'est-ce que l'ossature bois ? La maison ossature bois c’est une maison Le système constructif de l'ossature bois consiste à moins chère et plus confortable. Sa haute ériger une trame régulière et faiblement espacée, de performance en matière d’isolation permet pièces verticales en bois de petites sections, les de faire des économies importantes de montants, et de pièces horizontales hautes, basses et médianes, les traverses et entretoises. chauffage ! Sur cette ossature, supportant planchers et toiture, est fixé un voile travaillant en panneau dérivé du bois (panneau de particules, de contreplaqué ou d'OSB) qui assure le contreventement. L'isolant thermique est inséré entre les panneaux que recouvrent les parements intérieurs et extérieurs. Le bois est un matériau naturel et vivant. Il assure un confort de vie et une grande qualité de l'air ambiant. En limitant les risques d'allergie, de rhinite, de problèmes respiratoires et de déshydratation, le bois rend l'habitat plus sain.. De plus, les parois multicouches offrent de bonnes performances en matière d’isolation phonique. 2
  • 3.
    Les Avantages dela maison ossature bois … Le bois est un matériau léger ....qui dit poids léger dit également coûts allégés : la construction se fait en quelques semaines ; elle s’adapte à tout type de terrains, y compris à fort dénivelé ou à faible portance ; Accessible à tous sa légèreté réduit les coûts de transport ; l’équipe de montage se limite 3-4 personnes Naturellement isolant et adapté à tous les climats, il génère des économies d'énergie très importantes Le bois est un matériau naturel noble extrêmement résistant. Les plus anciennes constructions de ce monde sont en bois et sont parfaitement intactes : les maisons à Durabilité colombages du moyen âge … Le bois résiste particulièrement bien au feu. Sa combustion est lente et régulière. Alors qu’une structure classique se déforme et cède rapidement, le bois résiste toujours et conserve plus longtemps ses capacités de portance. Sécurité Le bois dans un incendie transmet 10 fois moins vite la chaleur que le béton et produit des gaz largement moins nocifs que ceux dégagés par de nombreuses matières synthétiques. De plus le bois stocke le CO² et lutte efficacement contre l'effet de serre. Construire en bois participe donc à la lutte contre le réchauffement climatique. Une matière Cette technique de construction permet une préfabrication de murs complets en première propre et usine et offre différents atouts notamment : un chantier propre, peu de découpes et renouvelable des déchets recyclables. Tous nos bois proviennent de forêts gérées ce qui signifie que pour chaque arbre abattu, un nouvel arbre est planté. 3
  • 4.
    Le bois unmatériau bon pour votre santé !!! Il limite considérablement les problèmes respiratoires et allergiques et est excellent contre le stress… Le bois … est un matériau naturel et vivant. Il régule l’humidité de l’air et assure une hygrométrie constante qui apporte une grande qualité de l’air ambiant, limitant ainsi les risques d’allergies, les rhinites et autre problèmes respiratoires. Il créé un climat sain et de bien être, on a constaté par exemple que l’agressivité des enfants diminuait fortement dans un bâtiment scolaire en bois. D’où un véritable intérêt à construire en bois y compris, école, crèches et même hôpitaux. 4
  • 5.
    EDITO Nous avonscréé EcoTime il y a 2 ans avec l’idée de proposer à nos clients des maisons ossature bois écologiques, de qualité au meilleur prix. Face à la crise dont nous subissons tous les conséquences et au dérèglement climatique, la maison ossature bois est la solution. Les canadiens, les américains, les nordiques construisent leurs maisons en bois depuis plusieurs générations et en tirent les meilleurs avantages. En France, il est temps de nous y mettre !! Nous devons prendre conscience des avantages qu’apporte le bois à tous les niveaux, sécurité, performance énergétique, temps de mise en œuvre, prix. Notre objectif : permettre à tous de se loger dans les meilleures conditions. Important : nous ne sommes pas constructeur (CCMI). Avec EcoTime, vous êtes maître d’œuvre de votre projet : vous choisissez les matériaux et l’aménagement intérieur de votre maison. EcoTime et ses partenaires ariégeois vous fournissent les matériaux entrant dans la construction de votre maison. Vous bénéficiez des garanties décennales de à chaque étape (Garanties sur la fabrication et sur la pose des murs). 5
  • 6.
    Matériaux utilisés Bardage Bardage extérieurpin du nord traité classe 4 Menuiseries Extérieures bois fenêtre double vitrage, basse Bavette basse périphérique. émissivité (Option menuiseries Mélèze) Angle de finition rentrant et sortant. Porte-entrée 90x215 en bois massif Fenêtre bois 40 x45 oscillo-battante. Murs extérieurs triple isolation anti ponts thermiques Fenêtre bois 80x115, ouvrant à la française, 2 vantaux Pare-pluie tissu et contreventement panneaux OSB 9-12 mm. Fenêtre bois 140x125, 2 vantaux Ossature en bois pin cl2 ( 45X145) à 15% d’humidité, raboté. Porte fenêtre 90x215, 1 vantail Isolation Isover GR32, 140 mm panneaux rigides (option laine de Porte fenêtre 180 x 215, 2 vantaux bois possible). Volets battants bois. Film pare vapeur OUVRAGES PARTICULIERS Plancher dalle béton ou Plancher coffre bois (en option) : Plancher porteur en caissons chevronnés en bois massif Linteaux en bois massif 45 x 220, C24, à 15% d'humidité et raboté. Solives bois massif ou lamellé-collé selon études d'exécutions, C24, Pré-cadre habillage menuiserie en pin du nord C24, à 15% à 15% d'humidité. d'humidité et raboté. Isolation plancher 220 mm entre caissons du plancher. Seuil menuiserie liaison bois, C24, à 15% d'humidité et raboté. Tôle galvanisée habillage des seuils et des tableaux de menuiseries. La Charpente fermette ou traditionnelle (en option) Larmier zinc charpente en fermette industrialisée en sapin du nord traitée Pare insecte et rongeurs de 22 x45 mm acier galvanisé laqué en Classe 2 à 15% d'humidité. partie haute des ouvertures et en partie basse des murs (pour En option charpente séjour en bois massif constituée de chevrons ventilation de bardage). porteurs apparents trémie réalisée pour laisser place aux conduits divers • 6
  • 7.
    Matériaux utilisés Bardage OUVRAGES PARTICULIERS Bardage extérieur pin du nord traité classe 4 Bavette basse périphérique. Linteaux en bois massif 45 x 220, C24, à 15% d'humidité et raboté. Angle de finition rentrant et sortant. Pré-cadre habillage menuiserie en pin du nord C24, à 15% d'humidité et raboté. Murs extérieurs triple isolation anti ponts thermiques Seuil menuiserie liaison bois, C24, à 15% d'humidité et raboté. Pare-pluie tissu et contreventement panneaux OSB 9-12 mm. Tôle galvanisée habillage des seuils et des tableaux de menuiseries. Ossature en bois pin cl2 ( 45X145) à 15% d’humidité, raboté. Larmier zinc Isolation Isover GR32, 140 mm panneaux rigides (option laine de Pare insecte et rongeurs de 22 x45 mm acier galvanisé laqué en bois possible). partie haute des ouvertures et en partie basse des murs (pour Film pare vapeur ventilation de bardage). Plancher dalle béton ou Plancher coffre bois (en option) : Plancher porteur en caissons chevronnés en bois massif Solives bois massif ou lamellé-collé selon études d'exécutions, C24, à 15% d'humidité. Isolation plancher 220 mm entre caissons du plancher. La Charpente fermette ou traditionnelle (en option) charpente en fermette industrialisée en sapin du nord traitée Classe 2 à 15% d'humidité. En option charpente séjour en bois massif constituée de chevrons porteurs apparents trémie réalisée pour laisser place aux conduits divers Menuiseries Extérieures bois fenêtre double vitrage, basse émissivité (Option menuiseries Mélèze) 7
  • 8.
    Photos de montagemodèle Eco100 Modèle Eco 100 : 100 m² habitables à Mirepoix (09500) 8
  • 9.
    Eco83 83 m² habitables, 2 chambres, 2 terrasses couvertes 9
  • 10.
    Plans Eco 83 Planset aménagement intérieur fournis à titre d’exemple 10
  • 11.
    Eco89 89 m² habitables, 2 chambres, terrasse couverte 11
  • 12.
    Eco 89 Plans etaménagement intérieur fournis à titre d’exemple 12
  • 13.
    Eco100 100 m² habitables, 3 chambres 13
  • 14.
    Plans Eco89 Plans Eco100 Planset aménagement intérieur fournis à titre d’exemple 14
  • 15.
    Eco104 104 m² habitables, 3 grandes chambres (13.80 m² et 14.30 m²) Entrée couverte Terrasse couverte 15
  • 16.
    Plans Eco89 Plans Eco104 Planset aménagement intérieur fournis à titre d’exemple 16
  • 17.
    Eco122 122 m² habitables, 1 étage 4 chambres Terrasse couverte 17
  • 18.
    R E Z - D E - C H A U S S E E Plans Eco89 Plans Eco122 Plans et aménagement intérieur fournis à titre d’exemple 18
  • 19.
    Etage de 39m² habitable : E T A G E Plans Eco122 : 1er étage de 39 m² Plans Eco89 Plans et aménagement intérieur fournis à titre d’exemple 19
  • 20.
    Eco135 135m² habitables, 4 chambres Garage 20
  • 21.
    Plans Eco89 Plans Eco135 Planset aménagement intérieur fournis à titre d’exemple 21
  • 22.
  • 23.
    R E Z - D E - C H A U S S E E Plans Eco89 Plans Eco151 : rez-de-chaussée 124 m² habitables Plans et aménagement intérieur fournis à titre d’exemple 23
  • 24.
    S U 1 I E T R E P E A T R A E G N E T A L E Plans Eco89 Plans Eco151 : 1er étage 29 m² habitable Plans et aménagement intérieur fournis à titre d’exemple 24
  • 25.
    EcoTime : unnouveau savoir vivre ! EcoTime Domaine de Rimbaut 09500 Mirepoix www.ecotime.pro - Ecotime@sfr.fr 25