Intégrer la présentation
Téléchargé 123 fois

















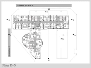
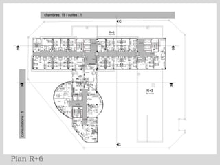
Le document présente la conception architecturale de la polyclinique Les Jasmins, située dans le centre urbain nord. Il inclut divers plans tels que la situation, l'implantation et les façades, ainsi que les plans des différents niveaux du bâtiment. Ce projet illustre les détails structurels et esthétiques de la polyclinique.















