ក្រសួងអប់រំ យុវជននិង រីឡា
វិទ្យាស្ថានបច្ចេរវិទ្យារម្ពុជា
ច្ដប៉ាតឺម្៉ង់ ច្ទ្ពច្ោសលយយសុីវិល
គច្ក្ោងសញ្ញាបក្តវិសវររ
ក្បធានបទ្ : ោរសិរយារំរាលខ័ណ្ឌអំពីច្បតុងច្ក្បរុងក្រំង
និសិយសត : អ៊ឹម្ ដាវិដ
ឯរច្ទ្ស : ច្ទ្ពច្ោសលយយសុីវិល
ស្ថស្រ្ស្ថាចារយយទ្ទ្ួលបនទុរ : បណ្ឌិត ោស សុខុម្
ឆ្នំសិរយា : ២០១២ - ២០១៣
MINISTERE DE L’EDUCATION,
DE LA JEUNESSE ET DES SPORTS
INSTITUT DE TECHNOLOGIE DU CAMBODGE
DEPARTEMENT DE GENIE CIVIL
MEMOIRE DE FIN D’ETUDES INGENIEUR
Titre : Étude de la dalle en Béton Précontrainte
Étudiant : IM David
Spécialité : Génie civil
Maître de stage : Dr. MEAS Sokhom
Année scolaire : 2012-2013
ក្រសួងអប់រំ យុវជននិង រីឡា
វិទ្យាស្ថានបច្ចេរវិទ្យារម្ពុជា
ច្ដប៉ាតឺម្៉ង់ ច្ទ្ពច្ោសលយយសុីវិល
គច្ក្ោងសញ្ញាបក្តវិសវររ
របស់និសិយសត អ៊ឹម្ ដាវិដ
ោលបរិច្ចេទ្ោរពារស្ថរណា : ១៥ ររកដា ២០១៣
អនុញ្ញាតឲយយោរពារគច្ក្ោង
នាយរវិទ្យាស្ថាន
ភ្នំច្ពញថ្ងៃទ្ី____ខខ________ ឆ្នំ២០១៣
ក្បធានបទ្ : ោរសិរយារំរាលខ័ណ្ឌអំពីច្បតុងច្ក្បរុងក្រំង
សហក្ាស : ច្ម្ហ្គា អាសិត ច្ម្ច្នចច្ម្ន
ក្បធានច្ដប៉ាតឺម្៉ង់ : ច្ោរ ឈូរ ថ្ឆហង
ស្ថស្រ្ស្ថាចារយយដឹរនាំគច្ក្ោង : បណ្ឌិត ោស សុខុម្
អនរទ្ទ្ួលខុសក្តូវរនុងសហក្ាស : ច្ោរ ច្ម្៉ង ចំច្រើន
រាជធានីភ្នំច្ពញ, ឆ្នំ២០១៣
MINISTERE DE L’EDUCATION,
DE LA JEUNESSE ET DES SPORTS
INSTITUT DE TECHNOLOGIE DU CAMBODGE
DEPARTEMENT DE GENIE CIVIL
MEMOIRE DE FIN D’ETUDES INGENIEUR
DE M. IM David
Date de soutenance : le 15 juillet 2013
« Autorise la soutenance du mémoire »
Directeur de l’Institut : Dr. OM Romny
Phnom Penh, _____________2013
Titre : Étude de la dalle en Béton Précontrainte
Établissement du stage : MEGA ASSET MENAGEMENT Co., Ltd.
Chef du département : M. CHHOUK Chhay Horng
Professeur d’encadrement du projet : Dr. MEAS Sokhom
Responsable de l’entreprise : M. MENG Chamroeun
Phnom Penh, 2013
i 
 
REMERCIEMENTS
Etant étudiant en cinquième année du département de Génie Civil de l’institut de
Technologie du Cambodge, je voudrais avant tout exprimer ma profonde gratitude à mes
parents qui sont toujours m’encouragé et soutient financièrement.
Un grand remercie à Dr. OM Romny, Directeur de l’Institut de Technologie du
Cambodge et Son Excellence Madame PHOEURNG Sackona, Secrétaire d’Etat du
Ministère de l’Education de la Jeunesses et des Sport et Présidente du Conseil
d’Administration pour ses efforts et ses gestions efficaces de gêner la formation d’Ingénieur
à l’ITC effectivement.
Je suis reconnaissant de l’entreprise MEGA ASSET MANAGEMENT Co, LTD.,
qui m’a permis de faire mon stage de fin d’études pendant trois mois dans son projet
d’OLYMPIA CITY à Phnom Penh.
Je tiens à remercier grandement à M. CHHOUK Chhay Horng, le chef du
département de Génie Civil, pour ses précieux conseils, ses efforts d’organiser et aider
spécialement aux étudiants d’avoir des bonnes connaissances. 
Mes remerciements très sincères vont aussi à Dr. MEAS Sokhom, professeur du
Département de Génie Civil et aussi mon tuteur de stage, pour m’avoir donné beaucoup de
connaissances et ses recommandations essentielles concernant la rédaction de ce mémoire.
Je souhaiterai ensuite remercier Dr. Chea Savuth, professeur du Département de
Génie Civil, pour son temps de m’expliquer précieusement et ma donnée beaucoup des
concepts concernant la partie du calcul.
Un grande merci spécialement à tous les professeurs de l’ITC, surtout les professeurs
du Département de Génie Civil qui m’ont fourni non seulement des connaissances théorique
mais aussi leurs expériences et conseils précieux dans les divers domaines pour que je puisse
devenir d’ingénieur professionnelle.
J’exprime également mes remerciements chaleureux aux employés de l’entreprise
pour m’avoir bien accueilli durant tout mon stage :
- M. MENG Chamroeun : Le chef d’ingénieur du projet d’OLYMPIA
CITY.
- M. ITH Vutha : le chef de construction du chantier S1 dans le
projet d’OLYMPIA CITY.
- M. MEAS Chhun : le consultant du projet d’OLYMPIA CITY.
- M. KAING Sokunrith : ingénieur technique.
Sans ses coopérations, ce document ne peut pas terminer un tel fructueusement.
ii 
 
RESUME
Ce projet de fin d’étude à pour le but de présenter les démarches du calcul de la dalle
en béton précontrainte par post-tension de système flat Slabs d’un bâtiment résidence dans le
projet d’OLYMPIA CITY à Phnom Penh. En réalité, cette dalle étudiée, de longueur 112
mètre et de largeur 42 mètre, sert à zone de garage. Ce document sera analyser
théoriquement selon la norme Eurocode 2 dans les partie de :
 La perte de précontraint instantanée et déférée
 La vérification des contraintes admissible du béton
 La vérification de moment à l’État Limite Ultime
 La vérification de poinçonnement
En fait, l’origine de cette dalle en béton précontrainte par post-tension est calcul de système
Slab with Drop panel. Donc, à fin de ce mémoire, on va comparer le résultat de ce mémoire
en termes d’économie et la facilité de la construction à celle au chantier.
SUMMARY
This thesis aims to present the process of designing a pre-stress concrete slab de system flat
Slab of the Residence Building in the project of OLYMPIA CITY in Phnom Penh. In reality,
this designed slab, with 112 meter long and 42 meter weight, is serving paking zone in this
building. This document is going to be analyzed theoretically based on the Eurocode 2 in the
part of:
 The loss of pre-stress both short time and long time
 Verification of allowable stress of concrete member
 Verification of bending moment at Ultimate Limit State
 Verification of punching
Actually, this pre-stress slab is originally designed as the system of Slab with Drop panel.
Therefore, at the end of this thesis, we are going to compare the result of this document to the
reality at the construction site in term of economic and the facility of construction.
iii 
 
Table des matières
REMERCIEMENTS .......................................................................................i
RÉSUMÉ...........................................................................................................ii
TABLE DES MATIÈRES..............................................................................iii
LISTE DES ILLUSTRATIONS....................................................................iv
LISTE DES TABLEAUX................................................................................v
LISTE DES SYMBOLES...............................................................................vi
I. INTRODUCTION ................................................................................1
1. Présentation du stage .....................................................................................1
2. Présentation de l’entreprise ..........................................................................1
2.1 Information Générale ...........................................................................................1
3. Présentation le projet de construction ..............................................................2
3.1 Description du projet ............................................................................................2
3.2 Opération du projet ..............................................................................................2
3.3 Logo de l’entreprise .............................................................................................2
3.4 Location du chantier .............................................................................................3
3.4 L’organigramme de l’entreprise du projet Zone 1 ...............................................4
II. Étude BIBLIOGRAPHIQUES............................................................. 5
1. Généralité .......................................................................................................5
2. L’avantage de précontrainte .........................................................................5
3. Les domaines d’emploi de la précontrainte ................................................6
4. Type de précontrainte par post-tension ......................................................6
5. Type de la dalle en béton précontrainte ......................................................7
5.1 Domaine d’emploi ................................................................................................8
5.2 Pré dimensionnement des dalles précontraintes ...................................................9
6. Le moment secondaire..................................................................................10
III. CALCUL DE LA DALLE EN BÉTON PRÉCONTRAINTE PAR
POST-TENSION
1. Généralité et donnée .................................................................................... 11
2. Matériaux Utilisés......................................................................................... 11
2.1 Béton ..................................................................................................................11
2.2 Acier de précontrainte ........................................................................................11
2.3 Acier ordinaires ..................................................................................................12
3. Charge appliqués ........................................................................................... 12
3.1 Charge permanent ..............................................................................................12
3.2 Charge exploitation ............................................................................................12
3.3 La combinaison des charges ..............................................................................12
iv 
 
4. Dimensionnement et Vérification ............................................................... 15
4.1 Dimensionnement de la dalle .............................................................................15
4.2 Pré-dimensionnement .........................................................................................16
4.3 Caractéristique mécanique de la section de poutre équivalente .........................16
4.4 Balancement de charges .....................................................................................17
4.5 Déterminer la section des câbles .......................................................................19
5. La perte de précontrainte ........................................................................... 19
5.1 Perte par frottement ............................................................................................19
5.2 Perte par glissement ...........................................................................................21
5.3 Perte par raccourcissement élastique .................................................................23
5.4 Perte différée ......................................................................................................24
6. Vérification des contraintes admissibles du béton .......................................28
6.1 Vérification les contraintes du béton à la mise en tension .................................28
6.2 Vérification les contraintes en services ..............................................................30
7. Vérification la flèches à l’ELS ..........................................................................34
7.1 Vérifier la flèche à courte terme .........................................................................34
7.2 Vérifier la flèche à long terme ...........................................................................36
8. Vérification de moment à l’ELU .........................................................................37
9. Etude de la dalle en direction Y .................................................................... 42
9.1 La géométrie .......................................................................................................42
9.2 Vérification de la contrainte admissible du béton ..............................................45
9.3 Vérification le flèches ........................................................................................47
9.4 Vérification le moment à l’Etat Limite Ultime...................................................49
9.5 Calcul des armatures minimum...........................................................................51
10. La vérification du poinçonnement.....................................................................52
IV. TECHNOLOGIE DU CHANTIER ................................................... 56
V. RESUTATS ET CONCLUSION ....................................................... 55
RESFERENCES............................................................................................. 57
ANNEXE A .................................................................................................... 58
ANNEXE B .................................................................................................... 58
ANNEXE C .................................................................................................... 58
vii 
 
LISTE DES LISLLUSTRATIONS
Figure 1 : Logo de l’entreprise................................................................................................... 1
Figure 2 : Nom de Projet ............................................................................................................ 2
Figure 3 : L'entrepreneur ............................................................................................................ 2
Figure 4 : Consultant .................................................................................................................. 2
Figure 5 : Le plan vu au-dessus d'OYLMPIA CITY.................................................................. 3
Figure 6 : Type des précontraintes par Post-tension ................................................................. 6
Figure 7 : Plancher-dalle sans chapiteau .................................................................................... 7
Figure 8 : Plancher-dalle avec chapiteau.................................................................................... 7
Figure 9 : Dalle portant dans une seule direction....................................................................... 7
Figure 10 : Dalle portant dans deux directions............................................................................. 7
Figure 11 : Le profilé théorie des câbles de précontrainte ......................................................... 18
Figure 12 : Le profilé de câble avec l'excentricité choisi........................................................... 19
Figure 13 : Le profilé pratiqué du câble..................................................................................... 20
Figure 13 : Le graphique de la perte par frottement .................................................................. 21
Figure 14 : le diagramme de la perte de précontrainte après la perte glissement....................... 23
Figure 15 : le graphique de relaxation de l’armature à 200
c à 1000h......................................... 28
Figure 17 : le diagramme de contraint du béton à la mise en tension ........................................ 29
Figure 16 : le diagramme des contraintes admissibles et les contraintes dues aux actions à la
mise en tension
Figure 19 : le diagramme de contraint du béton en service........................................................ 31
Figure20 : le diagramme des contraintes admissible et les contraintes dues à la charge rare... 33
Figure 21 : le diagramme de contraint du béton en service........................................................ 34
Figure22 : le diagramme des contraintes admissibles et les contraintes dues à la
combinaison quasi-permanente, ............................................................................. 34
Figure23 : le diagramme des flèches sous la combinaison quasi-permanente. ......................... 35
Figure24 : le diagramme des flèches sous la charge de précontrainte. ..................................... 35
Figure25 : le diagramme des flèches sous la combinaison quasi-permanente. ........................ 36
Figure26 : le diagramme des flèches sous l’effet de précontrainte ........................................... 37
Figure27 : la précontrainte vue totalement du côté de la résistance.......................................... 38
Figure28 : Le diagramme des moments de sollicitation à l’État Limite Ultime ....................... 40
Figure29 : Le diagramme des moments sous l’effet de charge équivalent de précontrainte .... 41
viii 
 
Etude de la dalle en direction Y :
Figure30: le profilé de câble selon la direction Y......................................................................... 44
Figure 31 : le diagramme des contraintes admissible du béton à la mise en tension.................... 45
Figure 32 : le diagramme des contraintes admissible du béton sous la combinaison rare........... 46
Figure 33: le diagramme des contraintes admissible du béton sous la combinaison quasi-
permanente.................................................................................................................. 47
Figure 34: le diagramme de la flèche sous la combinaison quasi-permanente............................. 47
Figure 35: le diagramme de la flèche sous l’effort de précontrainte ............................................ 47
Figure 36: le diagramme de la flèche sous la combinaison quasi-permanente............................. 48
Figure 37: le diagramme de la flèche sous l’effort de précontrainte ............................................ 48
Figure38: Le diagramme des moments de sollicitation à l’État Limite Ultime............................ 49
Figure39 : Le diagramme des moments sous l’effet de charge équivalent de précontrainte........ 50
Figure 40: Le périmètre critique de la dalle ................................................................................. 52
Figure 41: Le diagramme de moment flexion à l’ELU................................................................. 53
Figure 42: Le diagramme de l’effort tranchant à l’ELU............................................................... 53
Figure 43: Le diagramme de moment flexion selon l’axe Y à l’ELU. ........................................ 54
Figure 43: Le diagramme de l’effort tranchant selon l’axe Y à l’ELU. ....................................... 54
Figure 44: Le diagramme de moment flexion totale selon l’axe X à l’ELU. .............................. 54
Figure 45: Le diagramme de l’effort tranchant totale selon l’axe X à l’ELU............................... 55
Figure 46: Le diagramme de moment flexion selon l’axe Y à l’ELU. ......................................... 55
Figure 47: Le diagramme de l’effort tranchant totale selon l’axe Y à l’ELU............................... 55
v 
 
LISTE DES TABLEAUX
Tableau 1 : Coefficient pour les combinaisons des charges quasi-permanent et fréquent 14
Tableau 2 : l’expression symbolique de la norme européenne pour les combinaisons ELU .. 15
Tableau 3 : les valeurs de calcul d’actions ............................................................................... 15
Tableau 4 : les valeurs des contraintes en chaque point après la perte frottement, en tirant
une seule côté de A à K. ....................................................................................... 21
Tableau 5 : les valeurs des contraintes en chaque point après la perte frottement, en tirant
une seule côté de K à A......................................................................................... 21
Tableau 6 : Les valeurs de la variation de contrainte de chaque parabole ................................ 23
Tableau 7 : les valeurs de σ en chaque point........................................................................... 25
Table 8 : la déformation due au phénomène de retrait du béton............................................. 25
Tableau 9 : le coefficient de fluage............................................................................................. 26
Tableau 10 : les valeurs de k1 et k2 ............................................................................................. 26
Tableau 11 : les valeurs de la contrainte du béton à endroit du câble sous la charge quasi-
permanente............................................................................................................. 27
Tableau 12 : les valeurs de la contrainte du béton à endroit du câble après le transfert............... 27
Tableau 13 : Les valeurs contraintes admissibles du béton avec les contraintes dues aux
effets des actions à la mise en tension du câble. .................................................... 30
Tableau 14 : les valeurs contraintes admissibles du béton avec les contraintes dues aux effets
des actions à la mise en tension du câble............................................................... 32
Tableau 15 : les valeurs contraintes admissibles du béton et les contraintes dues à la
combinaison quasi- permanente.............................................................................. 34
Tableau 16 : les valeurs des flèches instantanées sous la combinaison quasi-permanente et
l’effort de précontrainte .......................................................................................... 36
Tableau 17 : les valeurs des flèches instantanées sous la combinaison quasi-permanente et
l’effort de précontrainte à long terme. ................................................................... 37
Tableau 18 : Les valeurs des variations de flèches après la construction ................................... 37
Tableau 19 : les valeurs du moment résistance............................................................................ 40
Tableau 20 : Les valeurs des moments de sollicitation à l’État Limite Ultime. .......................... 40
Tableau 21: Les valeurs des moments primaires.......................................................................... 41
Tableau 22 : les valeurs des moments crée par la charge équivalente de précontrainte............... 41
Tableau 23 : les valeurs des moments secondaires. .................................................................... 42
Tableau 24 : les valeurs des moments de sollicitation totale en tous points. ............................... 42
vi 
 
Etude de la dalle en direction Y :
Tableau25 : les valeurs des contraintes admissibles du béton à la mise en tension...................... 45
Tableau 26 : les valeurs des contraintes admissible du béton sous la combinaison rare............. 46
Tableau 27 : les valeurs des contraintes admissible du béton sous la combinaison quasi-
permanente............................................................................................................... 46
Tableau 28 : les valeurs des flèches instantanées totales sous la combinaison quasi-
permanente et l’effort de précontrainte..................................................................... 48
Tableau 29 : les valeurs des flèches différées totales sous la combinaison quasi-
permanente et l’effort de précontrainte................................................................... 49
Tableau 30 : Les valeurs des variations de flèches après la construction .................................... 49
Tableau 31 : les valeurs du moment résistance ........................................................................... 49
Tableau 32 : Les valeurs des moments de sollicitation à l’État Limite Ultime. .......................... 50
Tableau 33: Les valeurs des moments primaires.......................................................................... 50
Tableau 34 : les valeurs des moments crée par la charge équivalente de précontrainte............... 50
Tableau 35 : les valeurs des moments secondaires. .................................................................... 51
 
 
	
I. IN
 
 
 
 
 
 
 
 
 
NTRODDUCTIOON	GÉNNÉRALEE
1.
Cambo
suivi d
année
stage a
MEGA
2.
rôle im
comm
domai
Penh m
de cet
spécia
ans.
-
-
-
-
Présentati
Dans le c
odge, les étu
d’une souten
académique
aux déférent
A ASSET M
Projet de la
Date de sta
Tuteur de s
Maitre de s
Présentati
2.1 Inform
MEGA AS
mportant la
me le domain
ine d’Agence
En plus, ce
mais aussi à
tte l’entrepr
alement le pr
Figure	1:	Log
Adresse de
Tel/Fax
E-mail
Site d’intern
I. IN
ion du stage
cadre de la
udiants sont
nance avant
e 2012-2013
ts l’entrepris
MANAGEM
a constructio
age
stage
stage
ion de l’entr
mation génér
SSET MAN
société Cam
ne de la co
e immobilier
ette l’entrepr
autre provin
rise comme
rojet d’OLY
ogo	de	l’entrep
l’entreprise
net
TRODU
e :
a formation
autorisés à f
l’obtention d
, tous le étu
ses. Pour mo
MENT sur le
on
reprise :
rale
NAGEMEN
mbodgienne.
onstruction (
r etc.
rise a contrô
nces. Il y a d
le projet de
YMPIA CIT
prise		
: No. 315, r
: 023 430 6
: mega-asse
: www.meg
UCTION
n d’ingénieu
faire le stage
du diplôme
udiants du Dé
oi, j’ai fait m
e projet d’OL
: Le bâtim
: 04 mars
: Dr. ME
: M. MEN
NT est d’une
. Cette l’ent
(le construct
ôlé beaucoup
déjà plusieur
e Koh Pich,
TY dont la
rue Ang Duo
86
et@mam.com
gassetmanag
GENERA
ur de l’Inst
e de fin d’étu
d’ingénieur.
épartement d
mon stage de
LYMPIA C
ment de Rés
s à 30 mai 20
EAS Sokhom
NG Chamre
grande priv
treprise serv
teur, le con
p des projet
rs grands pro
, Canadia T
première ph
ong, Canadia
m.kh
gement.com
AL
titut de Te
udes pendan
. Comme l’h
de Génie Ci
fin d’études
ITY.
idence de 22
012
m
un
vée l’entrepri
ve à une div
nsultant & l
s non seulem
ojets sous la
Tower, Reata
hase a la dur
a Tower à 11
chnologie d
nt trois mois
habitude, cet
vil ont fait
s à l’entrepri
2 étages
ise qui joue
vette domain
a gestion),
ment à Phno
a constructio
ana Plazza
ration de tro
 
1th étages
1
du
et
tte
le
se
le
ne
le
om
on
et
ois
3.
Le
grande
-
-
-
-
-
-
-
-
 
 
 
 
 
 
 
Figure	3:	L'
Présentati
3.1 Descri
e projet de la
es zones :
La première
La deuxièm
La troisièm
La quatrièm
La cinquièm
3.2 Opérat
Le maître d
Le maître d
Le construc
3.3 Logo d
 
'entrepreneu
ion le projet
iption du pr
a constructio
e zone
me zone
me zone
me zone
me
tion du proj
d’ouvrage
d’œuvre
cteur
e l’entrepri
r	
t de constru
rojet
n d’OLYMP
: la construc
: La constru
: La constru
: La constru
: La constru
et
: Canadia B
: MEGA AS
: Overseas C
se
Figure	2
 
uction :
PIA CITY
ction de Bâti
uction de Bâ
uction d’Off
uction d’Offi
uction d’Offi
ank
SSET MANA
Camboida In
2:	Nom	de	Pro
à Phnom Pe
iment Réside
âtiment Résid
fice et Olymp
ice
ice
AGEMET
nvestment Co
 
ojet	
Figur
enh se comp
ence S1
dence S2, S
pia Plazza
orporation (O
re	4:		Consult
ose de cinq
S3 et S4
OCIC)
tant	
2
Figure
3.3 Lo
e 5: La plan v
ocation du c
ue au-dessus
hantier
d'OYLMPIA CITY
3
 
 
3.4 L’orrganigramme dde l’entreprise ddu projet Zonee 1 (S1) :
4 
  	
II. ÉTTUDE	BBIBLIOGRAPHHIQUESS
5
II. Etude Bibliographie
1. Généralité :
Comme le béton armé, le béton précontraint associe béton et armatures, mais il s’en
différencie de façon fondamentale dans son principe. Le terme « précontrainte » indique que le
béton est mis en compression avant que la structure entre en fonction.
En 1935, son inventeur, Eugène Freyssinet, définissait la précontrainte : « Précontrainte
une construction, c’est la soumettre avant application des charges à des forces additionnelles
déterminant des contraintes telles que leur composition avec celles qui proviennent des charges
donne en tout point des résultantes inférieures aux contraintes limites que la matière peut
supporter indéfiniment sans altération ».
La précontrainte peut être appliquée au béton soit par pré-tension, soit par post-tension
des armatures, selon que celles-ci-sont mises en tension avant le coulage du béton ou après son
durcissement. Dans ces termes, les préfixes « post », « pré » décrivent le moment d’application
de la force dans l’acier par rapport à la mise en place du béton.
2. L’avantage de précontrainte
1) Le rythme de construction
Les cadences de réalisation (nombre de jours par niveau) obtenues en cas de réalisation de
planchers précontraints sont plus rapides que celles constatées sur les bâtiments classiques en
béton armé grâce à la réduction des quantités mises en œuvre.
2) Grande portée et optimisation des surfaces disponibles
L’augmentation des trames dans les deux directions rend possible la diminution du nombre
d’éléments porteurs (poutres, poteaux, voiles).
3) Limitation, voire annulation des flèches en service courant
Les flèches en fonction de l’effort de précontrainte par post-tension mis en place peuvent être
réduites, voire annulées quelle que soit la portée sous les charges courantes de service (pour
améliorer l’esthétique des solutions courantes).
4) Facilité d’approvisionnement et de manutention
L’approvisionnement du chantier est largement simplifié, pas de transport lourd. La manutention
ne nécessite pas d’engins de levage importants en particulier dans des zones inaccessibles aux
grues.
6
5) Economie de matériaux
La meilleure utilisation des hautes performances des matériaux permet de diminuer les quantités
de matériaux (béton, aciers…) mis en œuvre et ainsi de réduire les coûts.
6) Respect de l’environnement
La diminution des quantités de matériaux mis en œuvre est le paramètre le plus efficace pour
réduire l’impact énergétique et l’émission de gaz à effet de serre (bilan carbone) dans la
construction des ouvrages.
La précontrainte par post-tension des planchers, par post-tension dans les deux directions,
contribue ainsi activement au respect de l’environnement.
3. Les domaines d’emploi de la précontrainte
La post-tension
Les premières applications, qui se sont multipliées par la suite, sont les ponts et bâtiments
à moyenne et grande portée. La précontrainte permet aussi la réalisation de réservoirs. Certains
réservoirs d’eau et des sols de volume plus modeste.
Dans le domaine du bâtiment, la précontrainte par post-tension, bien que moins courante,
est utilisée pour des poutres de grande portée ou pour des dalle de planchers de section
relativement mince par rapport à leur portée : parking, bâtiment industriels ou commerciaux.
4. Type de précontrainte par post-tension
Une autre différence concerne la position de la précontrainte par post-tension par rapport à la
section en béton, de sort qu’on distingue :
- La précontrainte intérieure e
- La précontrainte extérieure.
En outre, la précontrainte intérieure par post-tension peur être :
- Avec adhérence
- Sans adhérence
Figure 6: Type des précontraintes par Post-tension
7
5. Type de la dalle en béton précontrainte
On distingue trois types de dalles précontraintes :
1) Les plancher-dalles (flat-slab) reposant directement sur les poteaux sans aucune poutre,
avec ou sans chapiteau.
2) Les dalles reposant sur des files de poutres parallèles dans une seule direction.
3) Les dalles reposant sur des files de poutres parallèles dans deux directions
perpendiculaires.
Figure 7: Plancher-dalle sans chapiteau Figure 8: plancher-dalle avec chapiteau
Figure 9: Dalle portant dans une seule direction Figure 10:dalle portant dans deux directions
8
5.1 Domaine d’emploi :
1) Plancher-dalle sans chapiteau
Schéma Utilisation
- Dalle portant dans deux directions et
sensiblement égales dans les deux
directions de 5 à 12 mètre.
2) Plancher-dalle avec chapiteau
Schéma Utilisation
- Même application de plancher-
dalle sans chapiteau mais pour des
portées plus grandes et charges
d’exploitation moyennes
- Portées peut être jusqu’à 16 mètre.
3) Dalle portant dans une seule direction
Schéma Utilisation
- Il est recommandé pour les
plancher ayant une portée
précontrainte dans une direction.
- Portées peut être jusqu’à 16 mètre.
9
4) Dalle portant dans deux directions
Schéma Utilisation
- Il est recommandé pour les
plancher ayant portée précontrainte
sensiblement égales dans deux
directions.
- Portées peut être de 10 à 20 mètre.
5.2 pré dimensionnement des dalles précontraintes :
L’épaisseur d’un plancher-dalle précontraint par post-tension est déterminée
principalement par des conditions de non-poinçonnement.
L’épaisseur des autres dalles précontraintes par post-tension est déterminée par un critère
de vérification des contraintes de compression, rarement de flèche. Comme l’action de la
précontrainte s’oppose aux charges permanentes, voire également, si on le souhaite, à une
fraction des charges d’exploitation, grâce à un tracé judicieux des câbles, seules sont à prendre
en compte les charges d’exploitation
En fonction de la précision recherchée et du temps disponible, il existe des tableaux :
o tableaux donnant le rapport portée/épaisseur des plancher-dalles et des dalles
o tableaux pour les plancher-dalles avec ou sans chapiteau
Tableaux des épaisseurs en fonction de la portée (L/h):
Type de la dalle Rapport L/h
a) plancher-dalle sans chapiteau De 30 à 45
b) Plancher-dalle avec chapiteau De 35 à 50
c) Dalle portant dans une seule direction De 45 à 55
d) Dalle portant dans deux directions De 60 à 70
10
o Les chapiteaux de petites dimensions :
Épaisseur (retombée sous dalle =0.75fois l’épaisseur h de la dalle et débord du poteau = 2 fois
cette retombée, soit A = a+3h
o Les chapiteaux de grandes dimensions :
Épaisseur (retombée sous la dalle) = 1.5 fois l’épaisseur h de la dalle et débord du poteau = 2
fois cette retombée, soit A = a +6h
6. Le moment secondaire :
En considérant une poutre hyperstatique en béton précontrainte avec deux portés, et ne tient
compte pas le poids propre de la poutre.
Figure 11: la poutre avant la mise en tension
Avant la mise en tension, la poutre est contactée avec les trois appuis. À l’instance de la mise en
tension avec les mêmes valeurs d’excentricités, il existe le moment uniformément au long de la
portée. Si la poutre n’était pas connectée aux appuis, il va avoir une déflexion vers le haut, et
créer un déplacement .
Figure 12: la mise en tension, sans le moment secondaire
11
Le moment primaire est le moment de flexion due à la tension excentré, au quelque
point Pour que la poutre reste en contact avec l’appui au milieu, il existe un autre moment de
flexion pour évider le déplacement , et ce moment-là correspondre au moment secondaire, qui
égal Où est le moment due au l’effort de précontrainte au point x.
Figure 3: Le moment primaire Figure 4: le moment secondaire
Pour les éléments fléchis due au moment primaire vont créer la force secondaire comme la
description au-dessus, et cette force secondaire est corresponde au moment secondaire qui
modifie la réaction d’appui.
Les nombre des moments secondaires sont égaux aux nombre de dégrée d’hyperstatique.
 
 
III.
PRÉCO
	
CALCU
ONTRA
UL	DE	L
AINTE	P
LA	DAL
PAR	PO
LLE	EN	
OST‐TE
BÉTON
ENSION
N	
N
12
III. CALCUL DE LA DALLE EN BÉTON
PRÉCONTRAINTE PAR POST-TENSION
1. Généralité et donnée:
Premièrement, pour le calcul de la plancher en béton précontrainte, on a besoin les
donnée ci-dessous :
o Type du Bâtiment : Appartement d’habitation
o Type de la dalle étudié : Dalle d’une zone de garage
o Type de la dalle : dalle portant dans deux directions sans
chapiteau
2. Matériaux utilisés :
2.1 Béton :
` La résistance caractéristique
fck= 32 MPa
La résistance de compression à l’âge de la mise en tension
fcj = 24 MPa
La résistance moyenne du béton
La résistance à la traction moyenne du béton
La résistance caractéristique de traction à fractile 5%
Le module élasticité du béton sécante
Ecm = =32489 MPa
Poids volumique du béton
2.2 Aciers de précontrainte
La résistance caractéristique à la traction
fptk = 1860 MPa
La contrainte initiale du câble
Le module élasticité d’armature précontrainte
13
La caractéristique d’armature utilisée :
7 wire drawn de diamètre nominal
La section nominale
2.3 Acier ordinaire :
Limite d’élasticité moniale des armatures longitudinale
Module d’élasticité
3. Charges appliquées :
3.1 Charge permanant :
Normalement, l’action convient de considérer le poids propre total des éléments
structuraux et celle de non structuraux.
Poids propre de la dalle étudiée
Autre charges
3.2 Charge exploitation :
Les charges d’exploitation des bâtiments sont celles provoquées par l’occupation
des locaux. Les valeurs indiquées dans la présente section sont déterminé par le classement
ou catégories en fonction de leur utilisation.
Pour le calcul d’un plancher à intérieur d’un bâtiment, la charge d’exploitation doit
être considérée comme une action libre appliquée sur la plus défavorable de la surface
d’influence des effets de l’action considérée.
Charge variable
3.3 La combinaison des charges :
Selon Eurocode 2, il existe trois cases différentes de la combinaison qui à prendre
en compte ci-dessous :
- Combinaison Rares
d max min 1
1
S P k oi ik
i
G G Q Q

 
    


14
- Combinaison Fréquents
d max min 11 1 2
1
S P k i ik
i
G G Q Q 

 
    


- Combinaison Quasi-permanentes
d max min 2S P i ikG G Q
 
   


Avec les notations définies ci-dessous :
Gmax représente l’ensemble des actions permanentes défavorables
Gmin représente l’ensemble des actions permanentes favorables ;
Q1k représente la valeur caractéristique de l’action de base ;
ΨoiQik représente la valeur de combinaison d’une action d’accompagnement ;
Action 0 1 2
A : habitation, zone résidentielles
B : bureaux
C : lieux de réunion
D : commerces
E : stockage
F : zone de trafic, véhicules de poids kN30
G : zone de trafic, véhicules de poids compris entre 30 et 160kN
H : toits
0.7
0.7
0.7
0.7
1
0.7
0.7
0
0.5
0.5
0.7
0.7
0.9
0.7
0.5
0
0.3
0.3
0.6
0.6
0.8
0.6
0.3
0
Charges dues à la neige sur les bâtiments
Lieux situés une altitude H> 1000m a.n.m
Lieux situés une altitude H≤ 1000m a.n.m
0.7
0.5
0.5
0.2
0.2
0
Charges dues au vent sur les bâtiments 0.6 0.2 0
Température (hors incendie) dans les bâtiments
Tableau 1 : Coefficient pour les combinaisons des charges quasi-permanent et fréquent.
15
Donc les valeurs de la combinaison de l’état limite service sont :
o Combinaison rare :
( )
o Combinaison quasi-permanente :
´ ( )
o Combinaison fréquent
( )
La combinaison de l’État limite Ultime
Combinaison
Référence
EN1990
Expression générale
FONDAMENTALE
(pour situations durables
et transitoires)
6.10
6.10 a/b ∑ ∑
Accidentelle (pour
situations accidentelle)
6.11
Sismique (pour situations
sismiques)
6.12
Tableau 2 : de l’expression symbolique de la norme européenne pour les combinaisons ELU.
Pour les l’état limites ultimes de résistance :
Situations de
projet
durable et
transitoires
Actons permanentes
Action variables
dominante
Actions variables
d’accompagnement
défavorable favorables principales autres
6.10
(ou 0 si
favorable
Sans objet
(ou 0 si
favorables)
Tableau 3: les valeurs de calcul d’actions
Donc la combinaison à l’état limite ultimes
( )
16
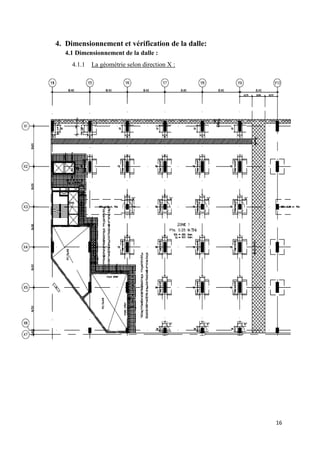
4. Dimensionnement et vérification de la dalle:
4.1 Dimensionnement de la dalle :
4.1.1 La géométrie selon direction X :
17
4.2 Pré dimensionnement
Premièrement, l’estimation de la hauteur de la dalle est entre de 36 à 45 du rapport
de Longueur/hauteur.
La structure étude est comporte de 5 équivalentes portés de longueur 8.4 mètre et un
console de longueur 2.75 mètre.
Alors, l’estimation de la hauteur de la dalle va :
On obtient
Donc, on va choisir la hauteur de la dalle
4.2.1 Excentricité maximales
L’enrobage choisi est de 25 mm avec le diamètre de gaine est de 20mm.
Supposons qu’il y a aussi des armatures ordinaires additionnelles de diamètre 10 mm
Les excentricités maximales de tendons aux appuis et à travée vont être différentes
respectivement :
o Appuis :
o Travée :
4.3 Caractéristique mécanique de la section de poutre équivalente
La géométrie de la section dalle étudié est compose de largeur 1m et d’épaisseur 0.23m
Avec la section du béton
Le poids propre du béton
Le moment d’inertie
Le rayon d’inertie
1m
0.23m
18
4.4 Balancement des charges :
La charge équivalente provoquée par l’effort de précontrainte sera être balancé 100%
de la charge permanente.
Alors, dans le cas de calcul de la dalle, il existe deux types des charges permanentes :
o Le poids propre de la section dalle étudié
o Autre charges permanente
Donc, la charge équivalente de précontrainte sera qui va
exercer inversement contre les charges permanentes vers le haut.
4.4.1 Déterminer la force tendue des câbles
Figure 11: la profilé théorie des câbles de précontrainte
Avant obtention de la fore précontrainte, les valeurs des flèches de chaque portés sont
respectivement ci-dessous :
- La portée 1 m
- La portée 2 m
- La portée 3 m
- La portée 4 m
- La portée 5 m
- La portée 6 m
Et la force précontrainte corresponde au charge équivalente obtenu est donnée par :
Où la longueur de la portée pour chaque portée, sauf le console de longueur
- La portée 1
- La portée 2
- La portée 3
- La portée 4
- La portée 5
- La portée 6
𝑤
𝑃𝑓
𝐿
→ 𝑃
𝑤𝐿
𝑓
19
Comme le force de précontrainte requise pour balancer le charge permanentent est varié
dans chaque portée, et il a besoin seulement une seul force de précontrainte en changeant la
valeur de la flèches dans chaque portée pour la raison de balancer le même charge
permanente.
Parmi les six portées, le câble de précontrainte sera tendu sous le même force
(on considère qu’elle est la force de précontrainte après la perte de
précontrainte instantanée).
Et alors, les valeurs d’excentricités à mi- travée seront changées en bloquant celles aux
appuis.
o La charge équivalente balancée est
o la force de précontrainte choisi est
Pour la console
Les valeurs d’excentricités à mi travée changées de chaque portée sont respectivement ci-
dessous :
- la portée 2
- la portée 3
- la portée 4
- la portée 5
- la portée 6
Figure 12: le profilé de câble avec l'excentricité choisi
𝑤
𝑃𝑓
𝐿
→ 𝑓
𝑤𝐿
𝑝
𝑤
𝑃𝑓
𝐿
→ 𝑓
𝑤𝐿
𝑝
20
4.5 Déterminer la section des câbles :
4.5.1 la contrainte initiale d’acier de précontrainte
o La tension maximale d’acier précontrainte
( )
L’armature de précontrainte sera tendue 75% de la résistance caractéristique.
o La contrainte après transfert de la précontrainte
En prenant priori, La contrainte d’armature de précontrainte après la transfert
Avec la largeur de la dalle étudié ;
et la force de précontrainte pour la largeur étudié
Alors, la section totale d’armature de précontraint requise pour 1m de largeur est
Comme l’armature de précontrainte utilisée est un type de torons 7 wire Drawn
Donc : les nombres de torons totale par un mètre est torons
5. La perte de précontrainte :
5.1 Perte instantanées
5.1.1 Perte par frottement
A cause de frottement entre la section du béton et celle du câble, la force de précontrainte
appliquée au vérin est différent à celle en un autre point.
P(x, 0) = P0 - ∆P(x,0)
Comme dans cette dalle a d’une grand longueur, c’est pourquoi elle est meilleur de tirer le
câble à deux côté dans la raison pour laquelle la perte par frottement est petite.
Figure 13: Le profilé pratiqué du câble
𝑃(𝑥 ) 𝑃𝑜 𝑒−𝜇(𝛼+𝜃′ 𝑥)
21
Pour les torons :
- : La somme des déviations angulaires du câble, en radians, entre l’ancrage
et le plus proche où agissent le vérin et la section considérée.
- Le coefficient de frottement du câble sur sa gaine
- Le coefficient tenant compte des irrégularités du tracé réel des gaines par
rapport au tracé théorique
o Au point B : ( )
( ) − ( + ′ )
( ) − ( + )
o Au point C : : ( )
( ) − ( + ′ )
( ) − ( + )
En suivant le même pour toutes les points, les valeurs des contraintes après la perte
frottement, en tirant une seule côté de point A à K, en chacun point sont mise en sembles
dans un tableau ci-dessous :
Point A B C D E F G H I J K
X(m) 0 7.56 9.24 15.96 17.64 24.36 26.04 32.76 34.44 41.16 44.75
0 0.107 0.221 0.033 0.44 0.55 0.658 0.768 0.877 0.987 1.08
(MPa) 1395 1357.1 1325.9 1290.4 1261.8 1227.9 1200.8 1168.61 1142.74 1112.1 1089
Tableau 4 : les valeurs des contraintes en chaque point après la perte frottement, en tirant une
seule côté de A à K.
En revente, si on va inversement de point K à A, alors le résultat obtenu est inversement et
symétriquement du résultat au-dessus :
Point K J I H G F E D C B A
X(m) 0 3.59 10.31 11.99 18.71 20.39 27.11 28.79 35.51 37.19 44.75
0 0.147 0.2567 0.366 0.4755 0.585 0.694 0.803 0.913 1.032 1.079
(MPa) 1395 1351.9 1315.6 1286.5 1252 1224.3 1191.5 1165.1 1133.9 1106.8 1089
Tableau 5 : les valeurs des contraintes en chaque point après la perte frottement, en tirant une
seule côté de K à A.
22
Figure 14: Le graphique de la perte par frottement
Donc : la perte frottement totale est
5.2 La perte par glissement :
Lors du transfert de l’effort de tension du vérin à l’ancrage, il se produit un léger
mouvement du câble vers le béton ; ce mouvement dépend du type d’ancrage utilisé.
En générale la rentrée d’une clavette est de l’ordre de
Selon EC2, à une distance , la somme des efforts de frottement équilibré la perte de
tension due au glissement du câble et il n’y a plus de déplacement de l’armature par
rapport à sa gaine.
- La longueur de glissement, √
Avec est la variation de contrainte moyenne par m.
La rentrée de la clavette
Le module élasticité de l’armature de précontrainte
La variation de contrainte par mètre ( )
o Pour la parabole AB :
0
200
400
600
800
1000
1200
1400
1600
0.00m 5.00m 10.00m 15.00m 20.00m 25.00m 30.00m 35.00m 40.00m 45.00m 50.00m
De A à K
De K à A
23
En suivant le même, les valeurs de la variation de contrainte de chaque parabole sont mise
dans le tableau ci-dessous :
Parabole AB BC CD DE EF
3.350 18.600 5.289 17.000 5.033
9.855
10.075
Tableau 6: Les valeurs de la variation de contrainte de chaque parabole
La longueur de glissement obtenue est , qui se trouve dans la deuxième
portée en parabole CD.
Alors, la perte par glissement est :
Parabole AB BC CD
p 3.350 18.600 5.289
ls 7.560 1.680 0.834
50.646 62.496 8.818
Donc : la perte par glissement totale est
Lorsqu’on connaît la longueur de glissement on peut tracer le diagramme de tension
dans le câble (après la perte par glissement) en basant sur le fait que le diagramme avant et
après la perte est symétrique par rapport à l’axe horizontal.
Figure 15: le diagramme de la perte de précontrainte après la perte glissement
1200.00
1220.00
1240.00
1260.00
1280.00
1300.00
1320.00
1340.00
1360.00
1380.00
1400.00
0 5 10 15 20 25 30 35 40 45 50
𝑃 𝑝𝑙 𝑠 =
𝑙 𝑠
24
5.3 La perte par raccourcissement élastique :
Très souvent, une poutre ou dalle, en béton précontrainte, comporte plusieurs
câbles. Les tracés individuels des armatures sont généralement différents même si les
calculs sont faits uniquement avec le câble « moyen » et ils ne sont pas aussi mis en
tension en même temps.
Dans le cas où les câbles sont identique avec le même .
Avec est le nombre totale d’armature de précontrainte.
est le rapport de
est la contrainte du béton à l’endroit du câble
Et le nombre des torons
La section du câble
La section du béton
Le moment d’inertie
Le rayon d’inertie
Le module élastique du câble
Le module élastique du béton
On obtient tout d’abord
La valeur de doit tenir compte la réalité que pendant la mise en tension, il existe effet
du poids propre de la poutre ou la dalle. La contrainte du béton au point du centre de
gravité des câbles produits pas le poids propre est .
o À l’appui A : ( )
( )
−
o À mi- travée B: ( )
− ( )
25
En suivant le même, la valeur de obtenu par chaque point sont dans le tableau ci-
dessous :
Point A B C D E F G H I J K L
X(m) 0.0 4.2 8.4 12.6 16.8 21.0 25.2 29.4 33.6 37.8 42.0 44.75
0.00 31.57 42.95 13.57 31.57 18.11 33.58 15.47 36.86 21.68 21.74 0.00
0.0 0.08 0.07 0.045 0.07 0.045 0.07 0.045 0.07 0.045 0.07 0
3.35 5.55 3.99 4.25 4.78 4.05 4.64 4.17 4.41 3.89 5.46 3.35
4.323
Tableau 7 : les valeurs de en chaque point.
La perte par raccourcissement élastique
−
Alors, la perte instantanée totale est
Donc : la contrainte totale après la perte instantanée
5.4 La perte différée :
Les pertes différées sont dues aux phénomènes de fluage, retrait du béton et relaxation
d’acier peut être analysée séparément and déterminée ensemble.
En 1ère approximation ( ) ( ) ( )
- est la perte par fluage, retrait et relaxation des câbles.
- ( ) est la variation de déformation du béton due au fluage et retrait.
( ̅ ( ))
( ) ( )
 La déformation due au phénomène de retrait du béton est obtenue en fonction de
l’humidité et la section du béton par tableau ci-dessous :
Table 8 : la déformation due au phénomène de retrait du béton
Comme la section du béton
Le périmètre ( )
Alors,
26
Dans le cas intérieur, l’humidité 50% :
( )
Donc la déformation due au retrait du béton est −
 Le coefficient de fluage est obtenu par le tableau ci-dessous :
Tableau 9 : le coefficient de fluage.
À l’âge 7 jours : le coefficient de fluage sera
( )
Donc : le coefficient de fluages est
 La relaxation des câbles ̅ ( )
Où ( )
( − )
−
La contrainte après la perte instantanée
Alors
Et l’armature de précontrainte est dans la classe 2 avec les paramètres k1 et k2
Armature
Classe 1 Fils ou torons ordinaires 5.39 6.7
Classe 2 Fils ou torons à base (faible) relaxation 0.66 9.1
Classe 3 barres 1.98 8
Tableau 10 : les valeurs de k1 et k2
27
 La contrainte du béton à endroit du câble sous la charge quasi-permanent
o À mi- travée B: ( )
−
En suivant le même, les valeurs de la contrainte du béton à endroit du câble sous la charge
quasi-permanente sont mis dans le tableau ci-dessous :
Point A B C D E F G H I J K L
X(m) 0 4.2 8.4 12.6 16.8 21.0 25.2 29.4 33.6 37.8 42.0 44.75
0 51.88 70.59 22.3 51.88 29.77 55.19 25.42 60.57 35.63 35.72 0
0 0.08 0.07 0.045 0.07 0.045 0.07 0.045 0.07 0.045 0.07 0
0.00 4.11 4.89 0.99 3.6 1.33 3.83 1.13 4.2 1.59 2.48 0.00
Tableau 11 : les valeurs de la contrainte du béton à endroit du câble sous la charge quasi-
permanente.
 La contrainte du béton à l’endroit du câble après transfert
o À mi- travée B ( )
− −
En suivant le même, le résultat de chaque point sont mise dans le tableau ci-dessous :
Point A B C D E F G H I J K L
X(m) 0 4.2 8.4 12.6 16.8 21.0 25.2 29.4 33.6 37.8 42.0 44.75
0 45.29 61.63 19.47 45.29 25.99 48.18 22.19 52.88 31.1 31.19 0
0 0.08 0.07 0.045 0.07 0.045 0.07 0.045 0.07 0.045 0.07 0
Pi/Ac 2.76 2.76 2.76 2.76 2.76 2.76 2.76 2.76 2.76 2.76 2.76 2.76
0.00 3.59 4.27 0.87 3.14 1.16 3.34 0.99 3.66 1.39 2.16 0.00
2.76 6.35 7.03 3.63 5.90 3.92 6.10 3.75 6.43 4.15 4.92 2.76
Tableau 12 : Les valeurs de la contrainte du béton à endroit du câble après le transfert.
28
Donc le taux de relaxation est obtenu par le graphique ci-dessous :
Figure 16: le graphique de relaxation de l’armature à 200
c à 1000h
- À la durée 500000 heurs
( )
( − )
−
̅
La perte différée totale au point A :
̅
+ + ( + )
+ ( + )( + )
En suivant le même, les valeurs de la perte de chaque point sont mise dans le tableau ci-
dessous :
Point A B C D E F G H I J K L
X(m) 0 4.2 8.4 12.6 16.8 21.0 25.2 29.4 33.6 37.8 42.0 44.75
̅ 119.6 240.3 269 149.57 227.8 160.5 235 154.1 246.9 169 192.1 119.6
̅ 190.3 MPa
Donc : la perte différé totale est ̅
La contrainte après la perte différée est
29
6. Vérification des contraintes admissibles du béton :
Selon l'EC 2 -1-1, les calculs des contraintes sont conduits avec les caractéristiques
géométriques de la section.
Figure 17: la section de la dalle étudiée
Avec la section du béton
Le moment d’inertie
Le rayon d’inertie
6.1 Vérifier les contraintes du béton à la mise en tension :
Selon l’EC2, les contraintes admissibles du béton à la mise en tension sont :
o Compression : σo
c = 0.5×fcj,cyl. =
o Traction : σo
t = fctk,0.005 =
Conditions à vérifier :
Figure 17 : le diagramme de contraint du béton à la mise en tension
Où : le moment de flexion due au poids propre du béton
o À mi travée de la portée 1, L=4.2 m
𝜎𝑡
𝜎𝑐
𝜎𝑠𝑢𝑝
𝑃𝑖
𝐴 𝑐
𝑀 𝑝 𝑖 𝑣
𝐼𝑐
𝑀𝑜
𝐼𝑐
𝑣 𝜎̅𝑡
𝜎𝑖𝑛𝑓
𝑃𝑖
𝐴 𝑐
𝑀 𝑝 𝑖 𝑣
𝐼𝑐
𝑀𝑜
𝐼𝑐
𝜈 ≥ 𝜎̅𝑐
30
o À l’appui de la portée 1, L=8.4m
En suivant les mêmes applications aux toutes pointes, les résultats obtenus sont mise ensemble dans le tableau ci-dessous.
Point A B C D E F G K I J K L
x(m) 0.0m 4.2m 8.4m 12.6m 16.8m 21.0m 25.2m 29.4m 33.6m 37.8m 42.0m 44.8m
σ_ad(sup.) 2.1m 2.1m 2.1m 2.1m 2.1m 2.1m 2.1m 2.1m 2.1m 2.1m 2.1m 2.1m
σ (sup.) -2.75 -1.19 -0.63 -2.08 -1.19 -1.86 -1.10 -1.99 -0.93 -1.68 -1.68 -2.75
σ_ad(inf.) -12.00 -12.00 -12.00 -12.00 -12.00 -12.00 -12.00 -12.00 -12.00 -12.00 -12.00 -12.00
σ (inf.) -2.75 -3.84 -4.23 -3.22 -3.84 -3.38 -3.91 -3.28 -4.02 -3.50 -3.50 -2.75
Tableau13 : des valeurs contraintes admissibles du béton avec les contraintes dues aux effets des actions à la mise en tension du câble.
Figure 18: le diagramme des contraintes admissibles et les contraintes dues aux actions à la mise en tension
-15
-10
-5
0
5
0.0m 5.0m 10.0m 15.0m 20.0m 25.0m 30.0m 35.0m 40.0m 45.0m 50.0m
Sig_ad
sig_ad
point
sig_sup
31
𝜎𝑡
𝑡
𝜎𝑐
𝑡
6.2 Vérifier les contraintes du béton en service
6.2.1 Sous la combinaison rare
Les contraintes admissibles en service sous la combinaison rare
o Compression : ̅
o Traction : ̅
Condition à vérifier :
Figure 19 : le diagramme de contraint du béton en service
est le moment obtenu par la combinaison rare.
est la force de précontrainte après la perte différer.
o À mi travée de la portée 1, L=4.2m
o À l’appui de la portée 1, L=8.4m
𝜎𝑠𝑢𝑝
𝑃 𝑚𝑡
𝐴 𝑐
𝑀 𝑝𝑚𝑡 𝑣
𝐼𝑐
𝑀𝑔 𝑀 𝑞
𝐼𝑐
𝑣 ≥ 𝜎̅𝑐
𝑡
𝜎𝑖𝑛𝑓
𝑃 𝑚𝑡
𝐴 𝑐
𝑀 𝑝𝑚𝑡 𝑣
𝐼𝑐
𝑀𝑔 𝑀 𝑞
𝐼𝑐
𝑣 𝜎̅𝑡
𝑡
32
En suivant les mêmes applications aux toutes pointes, les résultats obtenus sont mise ensemble dans le tableau ci-dessous.
Point A B C D E F G K I J K L
x(m) 0.0m 4.2m 8.4m 12.6m 16.8m 21.0m 25.2m 29.4m 33.6m 37.8m 42.0m 44.8m
σ_ad(sup.) 2.12 2.12 2.12 2.12 2.12 2.12 2.12 2.12 2.12 2.12 2.12 2.12
σ (sup.) -2.275 -6.00 -6.43 -5.096 -6.123 -5.198 -6.541 -5.142 -6.074 -5.933 -4.466 -2.275
σ_ad(inf.) -16.00 -16.00 -16.00 -16.00 -16.00 -16.00 -16.00 -16.00 -16.00 -16.00 -16.00 -16.00
σ (inf.) -2.275 1.450 1.880 0.545 1.573 0.648 1.991 0.592 1.760 1.383 -0.084 -2.275
Tableau 14 : les valeurs contraintes admissibles du béton avec les contraintes dues aux effets des actions à la mise en tension du câble.
Figure20 9: Le diagramme des contraintes admissible et les contraintes dues à la charge rare
-20.00
-15.00
-10.00
-5.00
0.00
5.00
0.0m 5.0m 10.0m 15.0m 20.0m 25.0m 30.0m 35.0m 40.0m 45.0m 50.0m
σ_ad sous la combinasion rarc
sig_ad
sig_ad
point
Sig_up
sig_inf
33
𝜎𝑡
𝑡
𝜎𝑐
𝑡
6.2.2 Sous la combinaison quasi-permanente
Les contraintes admissibles en service sous la combinaison quasi-permanente
o Compression : ̅
o Traction : ̅
Condition à vérifier :
Figure 21 : le diagramme de contraint du béton en service
est le moment obtenu par la combinaison quasi-permanente.
est la force de précontrainte après la perte différer.
o À mi travée de la portée 1, L=4.2m
o À l’appui de la portée 1, L=8.4m
𝜎𝑠𝑢𝑝
𝑃 𝑚𝑡
𝐴 𝑐
𝑀 𝑝𝑚𝑡 𝑣
𝐼𝑐
𝑀𝑔 𝑀 𝑞
𝐼𝑐
𝑣 ≥ 𝜎̅𝑐
𝑡
𝜎𝑖𝑛𝑓
𝑃 𝑚𝑡
𝐴 𝑐
𝑀 𝑝𝑚𝑡 𝑣
𝐼𝑐
𝑀𝑔 𝑀𝑞
𝐼𝑐
𝑣 𝜎̅𝑡
𝑡
34
En suivant les mêmes applications aux toutes pointes, les résultats obtenus sont mise ensemble dans le tableau ci-dessous.
Point A B C D E F G K I J K L
x(m) 0.0m 4.2m 8.4m 12.6m 16.8m 21.0m 25.2m 29.4m 33.6m 37.8m 42.0m 44.8m
σ_ad(sup.) 0.00 0.00 0.00 0.00 0.00 0.00 0.00 0.00 0.00 0.00 0.00 0.00
σ (sup.) -2.275 -3.911 -4.501 -3.334 -3.909 -3.428 -4.069 -3.373 -4.232 -3.704 -3.265 -2.275
σ_ad(inf.) -14.40 -14.40 -14.40 -14.40 -14.40 -14.40 -14.40 -14.40 -14.40 -14.40 -14.40 -14.40
σ (inf.) -2.275 -0.639 -0.049 -1.216 -0.641 -1.122 -0.481 -1.178 -0.318 -0.846 -1.285 -2.275
Tableau 15 : les valeurs contraintes admissibles du béton et les contraintes dues à la combinaison quasi- permanente.
Figure22: le diagramme des contraintes admissibles et les contraintes dues à la combinaison quasi-permanente,
-20.000
-15.000
-10.000
-5.000
0.000
0.0m 5.0m 10.0m 15.0m 20.0m 25.0m 30.0m 35.0m 40.0m 45.0m 50.0m
σ_ad sous la combinasion quasi-permanente
Sig_up
sig_inf
sig_ad
sig_ad
point
35
7. Vérification la flèche à l’ELS :
Un parmi les autres avantages de la structure en béton précontrainte c’est que la
déflexion sous une charge donnée peut être éliminée totalement.
Selon EC2, il est recommandé que la déflexion sous la charge quasi-permanente soit
limitée de L/250 et la déflexion après la construction n’est pas excédé L/500.
Où est la longueur de la portée ou la longueur de la console.
7.1 la déflexion instantanée
La flèche admissible à mise travée : L=8.4m
Et
La flèche admissible pour la console : L=2.75m
Et
À l’aide de logiciel élément fini, les valeurs des flèches sont obtenues comme ci-dessous :
- la flèche sous la combinaison quasi-permanente :
Figure23: le diagramme des flèches sous la combinaison quasi-permanente.
- La flèche sous la charge de précontrainte :
Figure24: le diagramme des flèches sous la charge de précontrainte.
36
Les valeurs des flèches instantanées sont :
Travée 1 2 3 4 5 6
f (sous qp) [cm] 1.3 0.4 0.7 0.5 0.9 0.0
f (sous charge précontrainte) [cm] -1.1 -0.3 -0.5 -0.4 -0.7 0.2
f (totale) [cm] 0.2 0.1 0.2 0.1 0.2 0.2
[cm[ 3.36 3.36 3.36 3.36 3.36 1.1
Vérifié Vérifié Vérifié Vérifié Vérifié Vérifié
Tableau 16 : les valeurs des flèches instantanées sous la combinaison quasi-permanente et l’effort
de précontrainte.
7.2 La flèche différée :
À cause de phénomène du retrait et le fluage du béton conduit à une augmentation de la déflexion
en fonction du temps. Par la recommandation d’EC, le module élasticité effective est utilisé.
La flèche admissible à mise travée : L=8.4m
Et
La flèche admissible pour la console : L=2.75m
Et
À l’aide de logiciel élément fini, les valeurs des flèches sont obtenues comme ci-dessous :
- la flèche sous la combinaison quasi-permanente :
Figure25: le diagramme des flèches sous la combinaison quasi-permanente.
37
- La flèche sous la charge de précontrainte :
Figure26 : le diagramme des flèches sous l’effet de précontrainte
Les valeurs des flèches déférées sont :
Travée 1 2 3 4 5 6
f (sous qp) [cm] 1.3 0.4 0.7 0.5 0.9 0.0
f (sous charge précontrainte) [cm] -0.9 -0.2 -0.4 -0.3 -0.6 0.2
f (totale) [cm] 0.4 0.2 0.3 0.2 0.3 0.2
[cm[ 3.36 3.36 3.36 3.36 3.36 1.1
Vérifié Vérifié Vérifié Vérifié Vérifié Vérifié
Tableau 17 : les valeurs des flèches instantanées sous la combinaison quasi-permanente et l’effort
de précontrainte à long terme.
Les valeurs des variations de flèches après la construction :
Travée 1 2 3 4 5 6
f (instantanée) [cm] 0.2 0.1 0.2 0.1 0.2 0.2
f (déférée) [cm] 0.4 0.2 0.3 0.2 0.3 0.2
[cm] 0.2 0.1 0.1 0.1 0.1 0
[cm[ 1.68 1.68 1.68 1.68 1.68 0.55
Vérifié Vérifié Vérifié Vérifié Vérifié Vérifié
Tableau 18 : Les valeurs des variations de flèches après la construction
38
8. Vérification de moment à l’État Limite Ultime :
8.1 Calcul le moment de résistance
Les états limites ultimes qui correspondent à la limite :
o De l’équilibre statique
o De la résistance
o De la stabilité de forme
L’État Limite de résistance :
Le calcul de structure en béton précontrainte à l’État Limite Ultime sous flexion peut se
fait par trois méthodes.
o La précontrainte vue totalement du côté de la résistance
o La précontrainte vue totalement du côté des actions
o La précontrainte vue partiellement comme une action et partiellement comme une
résistance
Pour comparer la valeur du moment de résistance et celle de sollicitation , parmi
les trois méthodes, la première méthode est utilisé ( la précontrainte vue totalement du
côté de la résistance).
Figure27 : la précontrainte vue totalement du côté de la résistance
 Equation d’équilibre :
( ) ( )
( ) ( )
39
 Equation de compatibilité :
( − )
( − )
Premièrement, trouver l’axe neutre de la section étudiée :
o Au point B, ( ) :
Et la longueur critique
Dans ce cas-là, l’effort normal crée par l’effet des actions extérieur
Section des armatures ordinaire
Donc, par l’équation d’équilibre,
Où la force du béton
La force de précontrainte −
Alors,
Donc : le moment résistance au point B est ( )
( )
Pour la résistance d’armature de précontrainte adhérente travaille à l’État Limite Ultime
Il faut vérifier que :
( − ) −
La déformation du béton à l’état limite ultime
( − ) −
−
Donc : − −
Vérifié !
40
En suivant le même, les valeurs du moment résistance en chaque point sont mis dans le
tableau ci-dessous :
Point A B C D E F G H I J K L
x(m) 0.0 4.2 8.4 12.6 16.8 21.0 25.2 29.4 33.6 37.8 42.0 44.75
0.115 0.195 0.185 0.160 0.185 0.160 0.185 0.160 0.185 0.160 0.185 0.115
75.42 140.63 132.48 112.10 132.48 112.10 132.48 112.10 132.48 112.10 132.48 75.42
Tableau 19 : les valeurs du moment résistance
8.2 Calcul le moment de sollicitation
La charge obtenue par la combinaison à l’État Limite Ultime est
A l’aide du logiciel élément fini, les valeurs de moment crée par l’action en chaque point
sont mis dans le tableau ci-dessous.
Figure28: Le diagramme des moments de sollicitation à l’État Limite Ultime
Point A B C D E F G H I J K L
x(m) 0.0 4.2 8.4 12.6 16.8 21.0 25.2 29.4 33.6 37.8 42.0 44.75
0.00 91.70 -124.38 39.38 -91.53 52.62 -97.59 44.97 -107.15 63.00 -63.17 0.00
Tableau 20 : Les valeurs des moments de sollicitation à l’État Limite Ultime.
o Le moment secondaire :
Le moment secondaire est créé au lieu de chaque appui.
Sous l’effet de précontrainte la structure soumise le moment primaire
Au point B, ( )
( )
41
En suivant le même, les moments primaires obtenus en chaque points sont mis dans le
tableau ci-dessous :
Point A B C D E F G H I J K L
x(m) 0.0 4.2 8.4 12.6 16.8 21.0 25.2 29.4 33.6 37.8 42.0 44.75
0.0 -0.08 0.070 -0.045 0.070 -0.045 0.070 -0.045 0.070 -0.045 0.070 0.0
0.00 -41.86 36.63 -23.55 36.63 -23.55 36.63 -23.55 36.63 -23.55 36.63 0.00
Tableau 21: Les valeurs des moments primaires.
Le moment due à la charge équivalente de précontraintes est obtenu à l’aide de logiciel
élément fini :
Figure29 : Le diagramme des moments sous l’effet de charge équivalent de précontrainte
Point A B C D E F G H I J K L
x(m) 0.0 4.2 8.4 12.6 16.8 21.0 25.2 29.4 33.6 37.8 42.0 44.75
0.00 -37.46 50.97 -16.10 37.46 -21.49 39.84 -18.35 43.73 -25.72 25.79 0.00
Tableau 22 : les valeurs des moments crée par la charge équivalente de précontrainte.
Alors, le moment secondaire est obtenu par la différence entre .
Pour la structure hyperstatique, le nombre des moments secondaires sont égaux aux
nombre des inconnues.
Alors, le moment secondaire est ( )
o Au point C, (L=8.4m)
Le moment crée par la charge équivalente de précontrainte
Le moment primaire
Alors, le moment secondaire est
En suivant le même, les valeurs des moments secondaires obtenues sont mis dans le
tableau ci-dessous :
42
Point A B C D E F G H I J K L
x(m) 0.0 4.2 8.4 12.6 16.8 21.0 25.2 29.4 33.6 37.8 42.0 44.75
0.00 - 50.97 - 37.46 - 39.84 - 43.73 - 25.79 -
0.00 - 36.63 - 36.63 - 36.63 - 36.63 - 36.63 -
0.00 - 14.34 - 0.83 - 3.22 - 7.10 -
-
10.84
-
Tableau 23 : les valeurs des moments secondaires.
Alors, les moments de sollicitation totale exerce sur le structure seront ajouter les moments
secondaires en tous les appuis.
o À l’appui C (L=8.4m) :
Le moment de sollicitation
Le moment secondaire
Les valeurs des moments de sollicitation totale en tous points sont :
Point A B C D E F G H I J K L
x(m) 0.0 4.2 8.4 12.6 16.8 21.0 25.2 29.4 33.6 37.8 42.0 44.75
0.00 91.70 -110.04 39.38 -90.70 52.62 -94.37 44.97 -100.05 63.00 -74.01 0.00
Tableau 24 : les valeurs des moments de sollicitation totale en tous points.
Donc, la vérification de moment à l’État Limite Ultime est mise dans le tableau ci-dessous :
Point A B C D E F G H I J K L
x(m) 0.0 4.2 8.4 12.6 16.8 21.0 25.2 29.4 33.6 37.8 42.0 44.75
75.42 140.63 132.48 112.10 132.48 112.10 132.48 112.10 132.48 112.10 132.48 75.42
0.00 91.70 110.04 39.38 90.70 52.62 94.37 44.97 100.05 63.00 74.01 0.00
Vérifié Vérifié Vérifié Vérifié Vérifié Vérifié Vérifié Vérifié Vérifié Vérifié Vérifié Vérifié
43
8.3 Calcul des armatures minimum :
Pour les dalles précontraintes à armatures adhérentes
{ [ ]}
Où
[
( )
]
[ ]
Alors, [
( ( ))
]
Donc
Et
Donc { [ ]}
Les armatures minimum à prendre est
44
9. Etude de la dalle en direction Y :
9.1 La géométrie :
Figure: la section de la dalle étudié selon la direction Y.
Figure30: le profilé de câble selon la direction Y.
45
Les charges à balancer dans chaque portée sont :
Potée 1 2 3 4 5
Charge équivalente [kN/m] 8.25 8.25 8.25 8.25 8.25
Section de câble [mm2] 514 514 514 514 514
Fore de précontrainte [kN] 574 574 574 574 574
Alors, la section d’armature de précontrainte choisi est de 5 torons
Et la contrainte totale après la perte instantanée est de
La contrainte totale après la perte différée est de
9.2 Vérification de la contrainte admissible du béton :
o À la mise en tension :
Point A B C D E F G H I J K
X(m) 0.0m 4.0m 8.0m 12.0m 16.0m 20.0m 24.0m 28.0m 32.0m 36.0m 40.0m
2.12 2.12 2.12 2.12 2.12 2.12 2.12 2.12 2.12 2.12 2.12
-2.50 -1.08 -0.58 -1.89 -1.06 -1.66 -1.08 -1.89 -0.58 -1.08 -2.50
-12.17 -12.17 -12.17 -12.17 -12.17 -12.17 -12.17 -12.17 -12.17 -12.17 -12.17
-2.50 -3.49 -3.83 -2.92 -3.50 -3.08 -3.49 -2.92 -3.83 -3.49 -2.50
Figure 31 : le diagramme des contraintes admissible du béton à la mise en tension.
-14
-12
-10
-8
-6
-4
-2
0
2
4
0.0m 5.0m 10.0m 15.0m 20.0m 25.0m 30.0m 35.0m 40.0m 45.0m
Sig_ad
sig_ad
point
46
o En service, sous la combinaison rare :
Point A B C D E F G H I J K
X(m) 0.0m 4.0m 8.0m 12.0m 16.0m 20.0m 24.0m 28.0m 32.0m 36.0m 40.0m
2.12 2.12 2.12 2.12 2.12 2.12 2.12 2.12 2.12 2.12 2.12
-2.064 -5.135 -6.213 -3.375 -5.172 -3.880 -5.135 -3.369 -6.213 -5.135 -2.064
-16.00 -16.00 -16.00 -16.00 -16.00 -16.00 -16.00 -16.00 -16.00 -16.00 -16.00
-2.064 1.008 2.085 -0.752 1.045 -0.248 1.008 -0.759 2.085 1.008 -2.064
Tableau 26 : les valeurs des contraintes admissible du béton sous la combinaison rare
Figure 32 : le diagramme des contraintes admissible du béton sous la combinaison rare
o Sous la combinaison quasi-permanente :
Point A B C D E F G H I J K
X(m) 0.0m 4.0m 8.0m 12.0m 16.0m 20.0m 24.0m 28.0m 32.0m 36.0m 40.0m
0.00 0.00 0.00 0.00 0.00 0.00 0.00 0.00 0.00 0.00 0.00
-2.064 -3.551 -4.072 -2.698 -3.568 -2.943 -3.551 -2.695 -4.072 -3.551 -2.064
-14.40 -14.40 -14.40 -14.40 -14.40 -14.40 -14.40 -14.40 -14.40 -14.40 -14.40
-2.064 -0.577 -0.055 -1.429 -0.559 -1.185 -0.577 -1.432 -0.055 -0.577 -2.064
Tableau 27 : les valeurs des contraintes admissible du béton sous la combinaison quasi-
permanente.
-18.00
-16.00
-14.00
-12.00
-10.00
-8.00
-6.00
-4.00
-2.00
0.00
2.00
4.00
0.0m 5.0m 10.0m 15.0m 20.0m 25.0m 30.0m 35.0m 40.0m 45.0m
σ_ad sous la combinasion rarc
sig_ad
sig_ad
point
Sig_up
sig_inf
47
Figure 33: le diagramme des contraintes admissible du béton sous la combinaison quasi-
permanente.
9.3 Vérification les flèches :
9.3.1 La flèche instantanée
Les flèches admissible à mise travée : L=8000mm
- La flèche sous la combinaison quasi-permanente :
Figure 34: le diagramme de la flèche sous la combinaison quasi-permanente.
- La flèche sous l’effort de précontrainte :
Figure 35: le diagramme de la flèche sous l’effort de précontrainte
-16.000
-14.000
-12.000
-10.000
-8.000
-6.000
-4.000
-2.000
0.000
0.0m 5.0m 10.0m 15.0m 20.0m 25.0m 30.0m 35.0m 40.0m 45.0m
σ_ad sous la combinasion quasi-permanente
Sig_up
sig_inf
sig_ad
sig_ad
point
48
Les valeurs des flèches instantanées sont :
Travée 1 2 3 4 5
f (sous qp) [cm] 1.0 0.2 0.5 0.2 1.0
f (sous charge précontrainte) [cm] -0.9 -0.2 -0.5 -0.2 -0.9
f (totale) [cm] 0.1 0.0 0.0 0.0 0.1
[cm[ 3.2 3.2 3.2 3.2 3.2
Vérifié Vérifié Vérifié Vérifié Vérifié
Tableau 28 : les valeurs des flèches instantanées totales sous la combinaison quasi-permanente et
l’effort de précontrainte.
9.3.2 La flèche différée
Les flèches admissible à mise travée : L=8000mm
- La flèche sous la combinaison quasi-permanente :
Figure 36: le diagramme de la flèche sous la combinaison quasi-permanente.
- La flèche sous l’effort de précontrainte :
Figure 37: le diagramme de la flèche sous l’effort de précontrainte
49
Travée 1 2 3 4 5
f (sous qp) [cm] 1.0 0.2 0.5 0.2 1.0
f (sous charge précontrainte) [cm] -0.8 -0.2 -0.4 -0.2 -0.8
f (totale) [cm] 0.2 0.0 0.1 0.0 0.2
[cm[ 3.2 3.2 3.2 3.2 3.2
Vérifié Vérifié Vérifié Vérifié Vérifié
Tableau 29 : les valeurs des flèches différées totales sous la combinaison quasi-permanente et
l’effort de précontrainte.
Les valeurs des variations de flèche après la construction :
Travée 1 2 3 4 5
f (instantanée) [cm] 0.1 0.0 0.0 0.0 0.1
f (déférée) [cm] 0.2 0.0 0.1 0.0 0.2
[cm] 0.1 0.0 0.1 0.0 0.1
[cm[ 1.6 1.6 1.6 1.6 1.6
Vérifié Vérifié Vérifié Vérifié Vérifié
Tableau 30 : Les valeurs des variations de flèches après la construction
9.4 Vérification le moment à l’Etat Limite Ultime :
9.4.1 Le moment de résistance :
En utilisant la même méthode, la précontrainte vue totalement à côté de résistance, les
valeurs de moments de résistances sont obtenu comme ci-dessous :
Point A B C D E F G H I J K
x(m) 0.0 4.0 8.0 12.0 16.0 20.0 24.0 28.0 32.0 36.0 40.0
0.115 0.195 0.185 0.160 0.185 0.160 0.185 0.160 0.185 0.160 0.185
75.42 140.63 132.48 112.10 132.48 112.10 132.48 112.10 132.48 140.63 75.42
Tableau 31 : les valeurs du moment résistance
50
9.4.2 Le moment de sollicitation :
Figure38: Le diagramme des moments de sollicitation à l’État Limite Ultime
Point A B C D E F G H I J K
x(m) 0.0 4.0 8.0 12.0 16.0 20.0 24.0 28.0 32.0 36.0 40.0
0.00 83.28 -112.54 35.46 -84.41 49.24 -83.28 35.46 -112.54 83.28 0.00
Tableau 32 : Les valeurs des moments de sollicitation à l’État Limite Ultime.
9.4.3 Le moment secondaire :
Point A B C D E F G H I J K
x(m) 0.0 4.0 8.0 12.0 16.0 20.0 24.0 28.0 32.0 36.0 40.0
0.000 -0.080 0.070 -0.045 0.070 -0.045 0.070 -0.045 0.070 -0.080 0.000
0.00 -37.97 33.22 -21.36 33.22 -21.36 33.22 -21.36 33.22 -37.97 0.00
Tableau 33: Les valeurs des moments primaires.
Figure39 : Le diagramme des moments sous l’effet de charge équivalent de précontrainte
Point A B C D E F G H I J K
x(m) 0.0 4.0 8.0 12.0 16.0 20.0 24.0 28.0 32.0 36.0 40.0
0.00 -34.05 45.99 -14.53 34.45 -20.13 34.05 -14.46 45.99 -34.05 0.00
Tableau 34 : les valeurs des moments crée par la charge équivalente de précontrainte.
51
Point A B C D E F G H I J K
x(m) 0.0 4.0 8.0 12.0 16.0 20.0 24.0 28.0 32.0 36.0 40.0
0.00 - 45.99 - 34.45 - 34.05 - 45.99 - 0.00
0.00 - 33.22 - 33.22 - 33.22 - 33.22 - 0.00
0.00 - 12.76 - `1.23 - 0.82 - 12.76 - 0.0
Tableau 35 : les valeurs des moments secondaires.
Point A B C D E F G H I J K
x(m) 0.0 4.0 8.0 12.0 16.0 20.0 24.0 28.0 32.0 36.0 40.0
75.42 140.63 132.48 112.10 132.48 112.10 132.48 112.10 132.48 140.63 75.42
0.00 83.28 -99.78 35.46 -83.18 49.24 -82.46 35.46 -99.78 83.28 0.00
Vérifié Vérifié Vérifié Vérifié Vérifié Vérifié Vérifié Vérifié Vérifié Vérifié Vérifié
9.5 Calcul des armatures minimum :
Pour les dalles précontraintes à armatures adhérentes
{ [ ]}
Donc { [ ]}
Les armatures minimum à prendre est
52
10. La vérification du poinçonnement :
Figure 40: Le périmètre critique de la dalle
Les épaisseurs des dalles précontraintes par post-tension sont plus conditionnées par des
raisons de résistances au poinçonnement que de flexion ou de flèche.
La résistance au poinçonnement de la dalle doit être vérifiée au droit du poteau et à
l’endroit où la charge concentrée est importante.
La résistance au cisaillement, , le long d’une côté de la périmètre critique peut être
donnée par TR43 :
Avec la section du poteau
la longueur de la côté considérée du périmètre critique
[ ] ( ) (
( )
)
Où est la section des armatures précontrainte adhérente et celle des
armatures passif passante à travers .
53
alors, * + ( ) (
( )
)
le module de la section pour le largeur égale à la côté considérée du périmètre critique
Et
La force de précontrainte moyenne
La force de précontrainte passante la côté considérée de périmètre critique
Alors, le moment de flexion provoqué la contrainte nulle à la fibre extrêmement tendue
( )
À l’aide de logiciel élément fini, les valeurs de l’effort tranchant et le moment flexion à
l’ELU sont :
Figure 41: Le diagramme de moment flexion à l’ELU.
Figure 42: Le diagramme de l’effort tranchant à l’ELU.
Donc : la résistance au cisaillement de périmètre critique est
54
Pour autre côté du poteau :
Figure 43: Le diagramme de moment flexion selon l’axe Y à l’ELU.
Figure 43: Le diagramme de l’effort tranchant selon l’axe Y à l’ELU.
M V
1155mm 0.54 10.18m3 156.94 kN/m 458.18kN/m 344.32kN
Alors,
Donc : la somme de tous valeurs de la résistance au cisaillement de tous côté
o l’effort de cisaillement effectif :
[ ]
Où sont respectivement l’effort de cisaillement et moment de flexions totales
transférées à la colonne par la dalle.
Figure 44: Le diagramme de moment flexion totale selon l’axe X à l’ELU.
55
Figure 45: Le diagramme de l’effort tranchant totale selon l’axe X à l’ELU.
Alors, * +
Donc : Vérifié !!
o l’effort de cisaillement effectif au long de l’axe Y:
[ ]
Figure 46: Le diagramme de moment flexion selon l’axe Y à l’ELU.
Figure 47: Le diagramme de l’effort tranchant totale selon l’axe Y à l’ELU.
Alors, * +
Donc : Vérifié !!
IV
	
V. TECCHNOLLOGIE	DDU	CHAANTIER
	
R
56
IV. TECHNOLOGIE DE CHANTIER
1. La mise en œuvre :
Comme dans le cas d’un plancher courant en béton armé coulé en place, les planchers de
tous type (la plancher-dalle, la plancher-dalle avec chapiteaux, la plancher type poutre dalle dans
une seule direction ou deux direction) des précontraintes par post-tensions sont pratiqués
nécessairement les même étapes qui sont :
 Installation des coffrages
 Placer les ferraillages (passive et active)
 Le bétonnage
Par contre, il existe une autre seule important phase additionnelle qui est la phase de la
mise en tension des aciers de précontrainte avant le décoffrage. Puisque la phase de la mise
œuvre est extrêmement critique dans laquelle la force de précontrainte peut être favorable, contre
la charge permanente ainsi que la charge exploitation, et défavorable dans le cas la contrainte est
grande que celle du béton admissible. Donc, il est aussi nécessaire qu’on a besoin d’avoir la
personne qualifiée pour réaliser cette opération spécial de la mise en tension des aciers de
précontrainte.
2. Opération de la mise en œuvre :
Normalement, les phases d’exécutions de la construction de dalle précontrainte sont
simplement suivantes par un cycle de mise en œuvre répétitif. Ainsi, la réalisation d’un étage
nécessite les différentes étapes successives :
 Créer les éléments supporteur verticaux/ installer les échafaudages
 Installer les coffrages du dalle
 Placer les ferraillages passifs
 Poser des câbles de précontrainte
 Bétonnage puis cure du béton
 Mise en tension dans le cas le béton atteindre la résistance requise
57
3. Opération réelle sur le chantier :
3.1 Le coffrage
Le coffrage de la dalle en béton précontrainte est considéré un pointe d’avantage pour le
système de précontrainte en comparant avec le système du béton armé. Il est simple, il nous
donne beaucoup de la facilité d’installer et spécialement le temps de travail est plus court.
Figure 1: Le coffrage de la dalle
Figure 2: les échafaudages de la dalle
58
3.2 Le ferraillage
Il existe deux types d’armatures pour la dalle en précontrainte par post-tension,
l’armature de précontrainte et l’armature ordinaire (l’armature passive pour résister le
phénomène de retrait et fluage et augmenter la capacité du moment résistance à l’Etat limite
Ultime). En plus, il existe aussi les gaines qui sont mises en œuvre en même temps que le
ferraillage passif éventuellement nécessaire.
Figure 3: les armatures de la dalle
En principe, les câbles de précontraintes peuvent être préfabriqués, sur chantier ou en
usine, avant leur pose sur des chaises supports permettant le réglage altimétrique dans l’épaisseur
de la dalle ou des poutres.
Nominal Dia. 12.7 mm Standard ASTM A416-06
Grade 1860 MPa Coil No. B130489-4
Lenght
3480 m
Net Weight
2694 kg
11414 ft 5940 lb
Lot No. A130489 Heat No. 2235
Produce Date 2013-4-9 Po. NO
59
Figure 4: le catalogue d'armature de précontraint
Figure 5: les armatures de précontrainte fabriquée sur le chantier
60
Il existe de différent type des chaises de support pout des différents niveaux des câbles
Figure 6: les chaises support de gaine
3.3 Gaines plate PE/PP
Normalement, comme le béton armé, les câbles de précontraints sont mis dedans du béton. En
plus, la post contrainte mise en œuvre dans le bâtiment est de manière courante réalisée par la
mise en place de gaines ou conduits contenant un ou plusieurs torons en acier équipés d’organes
d’ancrages à leur extrémités.
Figure 7: la gaine plate
61
Figure 8: la mise d’armature dans la gaines Figure 9: la gaine utilisée au chantier
V. RRESUTAATS	ET	CONCLLUSIONN
62
V. Conclusion
1. Les résultats :
Après avoir calculé et vérifié la structure en béton précontrainte au-dessus, on obtient les
résultats à comparer avec celles d’utilisée au chantier.
Mon calcul :
- L’épaisseur de la dalle
- Nombre de torons utilisé pour une portée 8 câbles de 5 torons dans chaque câble.
- L’espacement entre des câbles est de 1m.
- Les armatures ordinaires minimum est de .
Les résultats au chantier :
- L’épaisseur de la dalle
- Nombre de torons utilisé pour une portée 6 câbles de 5 torons est 1 câble de 3 torons dans
chaque câble.
- L’espacement entre des câbles est de 1.25m.
- Les armatures ordinaires minimum est de .
2. La conclusion :
D’après avoir obtenu les résultats de calcul, en utilisant le même donné, on peut conclure une
petite partie de la construction que, l’épaisseur de la dalle j’ai utilisé par la propose de l’EC2 est
plus mines que l’épaisseur de la dalle au chantier. Mais les armatures de précontrainte que j’ai
utilisée est beaucoup plus grand que celles au chantier. Si on voire dans l’économique
perspective, seulement pour une partie de la dalle en précontrainte par post-tension, on gaine
une épaisseur de la dalle 2cm, par contre, on perte peut être 25% pourcentage des armatures de
précontraintes.
Après avoir terminé complètement le stage pratique, j’ai eu beaucoup de connaissances
concernant les bétons de précontraints par post-tension qui m’a permet d’adapter bien au marché
du travail et aussi des expériences techniques concernant la construction. Il est encore d’élargir
mes connaissances théoriques et le travail pratique.
 
VVI. RES
	
SFERENNCES	BBIBLIOGRAPHHIQUESS
63
RESFERENCES BIBLIOGRAPHIQUES
[1]: CHEA Savuth, (2010). NOTE DE CALCUL EN BÉTON PRÉCONTRAINTE.
[2] : M.K.Hurst, (1998). Prestressed Concrete Design. (2nd
Edition). London :
New Fetter Lane
[3] : Lucien Boutonnet, Patrick Chassagnette, Claude Néant, Jacky Seantier et Henry Thonier
La Précontrainte dans le bâtiment, modifiée . SEDIP sous la présidence de Pierre Bron
[4] : R.I.GIBERT & N.C MICKLEBOROUGH. (2005). Design of Prestressed Concrete.
Londdon : Spon Press.
[5] : EUROCODE 2 EN (1992). Calcul des structures en béton. Presses Universitaires de
Lyon.
[6] : EUROCODE 1 EN (1991-1-1). ACTIONS SUR LES STURCTURES.
[7] : T.Y. Lin & NED H.BURN. (1981). Design of Prestressed Structures, (3rd
Edition).
[8] : SAMI KHAN, MARTIN WILLIAMS, (1995). POST-TENSIONED CONCRETE
FLOORS. London:Great Britain.
 
	
	 	
VVII. ANNEXE	AA
VIIII. ANNEXE	BB
ANNEXE A : L’EFFET DES ACTIONS
I. Effet de linge d’influence :
Pour le calcul d’une dalle à l’intérieur d’un bâtiment, la charge d’exploitation doit être
considérée comme une action libre appliquée sur la partie la plus défavorable de la surface
d’influence des effets de l’action considérés.
À l’aide de logiciel l’élément fini, les résultats de l’effet de linge d’influence est obtenu comme
ci-dessous :
Figure 1: la structure de la dalle modélisée.
Figure 2: le diagramme de linge d’influence pour la portée 1
Figure 3: le diagramme de linge d’influence pour la portée 2
Figure 4: le diagramme de linge d’influence pour la portée 3
Figure 5: le diagramme de linge influence pour la portée 4
Figure 6: le diagramme de linge influence pour la portée 5
Figure 7:le diagramme de linge d’influence pour la console.
Les variations des cas applications de charges selon l’effet de linge d’influence.
Figure 8: l’application de charge exploitation dans le cas 1.
Figure 9: l’application de charge exploitation dans le cas 2.
Figure 10: l’application de charge exploitation dans le cas 3.
Figure 11: l’application de charge exploitation dans le cas 4.
Figure 12: l’application de charge exploitation dans le cas 5.
Figure 13: l’application de charge exploitation dans le cas 6.
Figure 14: l’application de charge exploitation dans le cas 7.
Figure 15: l’application de charge exploitation dans le cas 8.
Figure 16: l’application de charge exploitation dans le cas 9.
Figure 17: l’application de charge exploitation dans le cas 10.
Figure 18: l’application de charge exploitation dans le cas 11.
Après avoir appliquée la variation des cas de charge exploitation, les valeurs moments maximum
de chaque portée est obtenu comme ci-dessous :
o Sous la combinaison rare :
Figure 19: le diagramme de courbe enveloppe des moments sous la combinaison rare.
Point A B C D E F G H I J K L
X(m) 0.0 4.2 8.4 12.6 16.8 21.0 25.2 29.4 33.6 37.8 42.0 44.75
0.00 71.38 92.80 40.97 71.38 47.26 77.46 43.63 84.62 57.97 45.11 0.00
Tableau : les valeurs des moments sous la combinaison rare.
o Sous la combinaison quasi-permanente :
Figure 20: le diagramme de courbe enveloppe des moments sous la combinaison quasi-permanente.
Point A B C D E F G H I J K L
X(m) 0.0 4.2 8.4 12.6 16.8 21.0 25.2 29.4 33.6 37.8 42.0 44.75
0.00 71.38 92.80 40.97 71.38 47.26 77.46 43.63 84.62 57.97 45.11 0.00
Tableau : les valeurs des moments sous la combinaison quasi-permanente.
ANNEXES B : Tracé des câbles
PERTE PAR FROTTEMENT :
Tracé simplifié :
L’équation de la parabole est de la forme avec
La courbure vaut . Comme la force radiale vaut
Alors
Figure 21: Le trace du câble réelle et celui de théorique
o Travée de rive
Amplitude du tracé du câble :
Avec et
Pente de la droite joignant les extrema :
D’où :
.L (1--).L
.L
c1
c2
1.h
2.h
3.h
h/2
h/2
L
h 
O
Figure 22: La Travée de rive
Amplitude du tracé du câble :
Avec , et
Pente de la droite joignant les extrema :
D’où :
Dans le cas :
L’équation de la parabole gauche de la forme avec
Pour l’abscisse :
( )
Alors,
D’où
Alors, l’équation du 2ème
degré en est :
Donc :
On trouve :
Donc : la hauteur
Parabole de gauche
x < (1 – ).L
Parabole de droite
x ≥ (1 – ).L
Distance du point bas à
l’appui gauche
x0 x – .L L - x
 2
1
)L.(
ch5,0


2
L.).1( 

Cote au-dessus du
coffrage
y c1 + . 2
0x h – c2 - . 2
0x
Pente y’ 2.x0 2. x0
Courbure
r
1
= y’’ 2. -2
Rotation cumulée depuis
l'appui gauche
 0 + 22
01
L.
x).ch5,0(2


0 + 









L.
x
2
)1(L
2 0
Tableau : caractéristique de la parabole
Alors, la pente de parabole de gauche à l’abscisse
La pente de parabole de gauche à l’abscisse
o Tracée d’intermédiaire :
Pente de la droite pointillée joignant extrema :
(0,5- ).L
.L
c1
c2
1.h
2.h
L
h
.L (0,5- ).L

Figure 23: Tracée intermédiaire
Amplitude du tracé du câble :
Avec , et
Alors, la hauteur
Parabole de gauche
x ≤ .L
Parabole du milieu
.L < x ≤ (1 – ).L
Parabole de droite
x ≥ (1 – ).L
x0 x x – 0,5L L - x
 2
L.
2


2
L).5,0(
2


2
L.
2


y h – c2 - . 2
0x c1 + . 2
0x h – c2 - . 2
0x
y’ -2.x0 2. x0 2.x0
r
1
= y’’ -2. 2 -2.
 2
0
L.
x.4


20 + 2
L).5,0(
)L5,0x.(4


0 + 2
L.
)Lx.(4


Tableau : Caractéristique des paraboles
La pente de parabole de gauche à l’abscisse
La pente de parabole du milieu à l’abscisse
La structure de la dalle étudiée a les profilés des câbles comme figure ci-dessous.
Figure 24: Les profilés des câbles de chaque portée.
Donc, la pente obtenu de chaque pointe sont mise dans le tableau ci-dessous :
Point A B C D E F G H I J K
0.0475 0.0595 0.0547 0.0547 0.0547 0.0547 0.0547 0.0547 0.0547 0.0547 0.0379
IIX. ANNNEXE	CC
Mon mémoire de fin d'étude(2012-2013)
Mon mémoire de fin d'étude(2012-2013)
Mon mémoire de fin d'étude(2012-2013)
Mon mémoire de fin d'étude(2012-2013)
Mon mémoire de fin d'étude(2012-2013)
Mon mémoire de fin d'étude(2012-2013)
Mon mémoire de fin d'étude(2012-2013)
Mon mémoire de fin d'étude(2012-2013)
Mon mémoire de fin d'étude(2012-2013)
Mon mémoire de fin d'étude(2012-2013)

Mon mémoire de fin d'étude(2012-2013)

  • 1.
    ក្រសួងអប់រំ យុវជននិង រីឡា វិទ្យាស្ថានបច្ចេរវិទ្យារម្ពុជា ច្ដប៉ាតឺម្៉ង់ច្ទ្ពច្ោសលយយសុីវិល គច្ក្ោងសញ្ញាបក្តវិសវររ ក្បធានបទ្ : ោរសិរយារំរាលខ័ណ្ឌអំពីច្បតុងច្ក្បរុងក្រំង និសិយសត : អ៊ឹម្ ដាវិដ ឯរច្ទ្ស : ច្ទ្ពច្ោសលយយសុីវិល ស្ថស្រ្ស្ថាចារយយទ្ទ្ួលបនទុរ : បណ្ឌិត ោស សុខុម្ ឆ្នំសិរយា : ២០១២ - ២០១៣ MINISTERE DE L’EDUCATION, DE LA JEUNESSE ET DES SPORTS INSTITUT DE TECHNOLOGIE DU CAMBODGE DEPARTEMENT DE GENIE CIVIL MEMOIRE DE FIN D’ETUDES INGENIEUR Titre : Étude de la dalle en Béton Précontrainte Étudiant : IM David Spécialité : Génie civil Maître de stage : Dr. MEAS Sokhom Année scolaire : 2012-2013
  • 2.
    ក្រសួងអប់រំ យុវជននិង រីឡា វិទ្យាស្ថានបច្ចេរវិទ្យារម្ពុជា ច្ដប៉ាតឺម្៉ង់ច្ទ្ពច្ោសលយយសុីវិល គច្ក្ោងសញ្ញាបក្តវិសវររ របស់និសិយសត អ៊ឹម្ ដាវិដ ោលបរិច្ចេទ្ោរពារស្ថរណា : ១៥ ររកដា ២០១៣ អនុញ្ញាតឲយយោរពារគច្ក្ោង នាយរវិទ្យាស្ថាន ភ្នំច្ពញថ្ងៃទ្ី____ខខ________ ឆ្នំ២០១៣ ក្បធានបទ្ : ោរសិរយារំរាលខ័ណ្ឌអំពីច្បតុងច្ក្បរុងក្រំង សហក្ាស : ច្ម្ហ្គា អាសិត ច្ម្ច្នចច្ម្ន ក្បធានច្ដប៉ាតឺម្៉ង់ : ច្ោរ ឈូរ ថ្ឆហង ស្ថស្រ្ស្ថាចារយយដឹរនាំគច្ក្ោង : បណ្ឌិត ោស សុខុម្ អនរទ្ទ្ួលខុសក្តូវរនុងសហក្ាស : ច្ោរ ច្ម្៉ង ចំច្រើន រាជធានីភ្នំច្ពញ, ឆ្នំ២០១៣
  • 3.
    MINISTERE DE L’EDUCATION, DELA JEUNESSE ET DES SPORTS INSTITUT DE TECHNOLOGIE DU CAMBODGE DEPARTEMENT DE GENIE CIVIL MEMOIRE DE FIN D’ETUDES INGENIEUR DE M. IM David Date de soutenance : le 15 juillet 2013 « Autorise la soutenance du mémoire » Directeur de l’Institut : Dr. OM Romny Phnom Penh, _____________2013 Titre : Étude de la dalle en Béton Précontrainte Établissement du stage : MEGA ASSET MENAGEMENT Co., Ltd. Chef du département : M. CHHOUK Chhay Horng Professeur d’encadrement du projet : Dr. MEAS Sokhom Responsable de l’entreprise : M. MENG Chamroeun Phnom Penh, 2013
  • 4.
    i    REMERCIEMENTS Etant étudiant encinquième année du département de Génie Civil de l’institut de Technologie du Cambodge, je voudrais avant tout exprimer ma profonde gratitude à mes parents qui sont toujours m’encouragé et soutient financièrement. Un grand remercie à Dr. OM Romny, Directeur de l’Institut de Technologie du Cambodge et Son Excellence Madame PHOEURNG Sackona, Secrétaire d’Etat du Ministère de l’Education de la Jeunesses et des Sport et Présidente du Conseil d’Administration pour ses efforts et ses gestions efficaces de gêner la formation d’Ingénieur à l’ITC effectivement. Je suis reconnaissant de l’entreprise MEGA ASSET MANAGEMENT Co, LTD., qui m’a permis de faire mon stage de fin d’études pendant trois mois dans son projet d’OLYMPIA CITY à Phnom Penh. Je tiens à remercier grandement à M. CHHOUK Chhay Horng, le chef du département de Génie Civil, pour ses précieux conseils, ses efforts d’organiser et aider spécialement aux étudiants d’avoir des bonnes connaissances. Mes remerciements très sincères vont aussi à Dr. MEAS Sokhom, professeur du Département de Génie Civil et aussi mon tuteur de stage, pour m’avoir donné beaucoup de connaissances et ses recommandations essentielles concernant la rédaction de ce mémoire. Je souhaiterai ensuite remercier Dr. Chea Savuth, professeur du Département de Génie Civil, pour son temps de m’expliquer précieusement et ma donnée beaucoup des concepts concernant la partie du calcul. Un grande merci spécialement à tous les professeurs de l’ITC, surtout les professeurs du Département de Génie Civil qui m’ont fourni non seulement des connaissances théorique mais aussi leurs expériences et conseils précieux dans les divers domaines pour que je puisse devenir d’ingénieur professionnelle. J’exprime également mes remerciements chaleureux aux employés de l’entreprise pour m’avoir bien accueilli durant tout mon stage : - M. MENG Chamroeun : Le chef d’ingénieur du projet d’OLYMPIA CITY. - M. ITH Vutha : le chef de construction du chantier S1 dans le projet d’OLYMPIA CITY. - M. MEAS Chhun : le consultant du projet d’OLYMPIA CITY. - M. KAING Sokunrith : ingénieur technique. Sans ses coopérations, ce document ne peut pas terminer un tel fructueusement.
  • 5.
    ii    RESUME Ce projet defin d’étude à pour le but de présenter les démarches du calcul de la dalle en béton précontrainte par post-tension de système flat Slabs d’un bâtiment résidence dans le projet d’OLYMPIA CITY à Phnom Penh. En réalité, cette dalle étudiée, de longueur 112 mètre et de largeur 42 mètre, sert à zone de garage. Ce document sera analyser théoriquement selon la norme Eurocode 2 dans les partie de :  La perte de précontraint instantanée et déférée  La vérification des contraintes admissible du béton  La vérification de moment à l’État Limite Ultime  La vérification de poinçonnement En fait, l’origine de cette dalle en béton précontrainte par post-tension est calcul de système Slab with Drop panel. Donc, à fin de ce mémoire, on va comparer le résultat de ce mémoire en termes d’économie et la facilité de la construction à celle au chantier. SUMMARY This thesis aims to present the process of designing a pre-stress concrete slab de system flat Slab of the Residence Building in the project of OLYMPIA CITY in Phnom Penh. In reality, this designed slab, with 112 meter long and 42 meter weight, is serving paking zone in this building. This document is going to be analyzed theoretically based on the Eurocode 2 in the part of:  The loss of pre-stress both short time and long time  Verification of allowable stress of concrete member  Verification of bending moment at Ultimate Limit State  Verification of punching Actually, this pre-stress slab is originally designed as the system of Slab with Drop panel. Therefore, at the end of this thesis, we are going to compare the result of this document to the reality at the construction site in term of economic and the facility of construction.
  • 6.
    iii    Table des matières REMERCIEMENTS.......................................................................................i RÉSUMÉ...........................................................................................................ii TABLE DES MATIÈRES..............................................................................iii LISTE DES ILLUSTRATIONS....................................................................iv LISTE DES TABLEAUX................................................................................v LISTE DES SYMBOLES...............................................................................vi I. INTRODUCTION ................................................................................1 1. Présentation du stage .....................................................................................1 2. Présentation de l’entreprise ..........................................................................1 2.1 Information Générale ...........................................................................................1 3. Présentation le projet de construction ..............................................................2 3.1 Description du projet ............................................................................................2 3.2 Opération du projet ..............................................................................................2 3.3 Logo de l’entreprise .............................................................................................2 3.4 Location du chantier .............................................................................................3 3.4 L’organigramme de l’entreprise du projet Zone 1 ...............................................4 II. Étude BIBLIOGRAPHIQUES............................................................. 5 1. Généralité .......................................................................................................5 2. L’avantage de précontrainte .........................................................................5 3. Les domaines d’emploi de la précontrainte ................................................6 4. Type de précontrainte par post-tension ......................................................6 5. Type de la dalle en béton précontrainte ......................................................7 5.1 Domaine d’emploi ................................................................................................8 5.2 Pré dimensionnement des dalles précontraintes ...................................................9 6. Le moment secondaire..................................................................................10 III. CALCUL DE LA DALLE EN BÉTON PRÉCONTRAINTE PAR POST-TENSION 1. Généralité et donnée .................................................................................... 11 2. Matériaux Utilisés......................................................................................... 11 2.1 Béton ..................................................................................................................11 2.2 Acier de précontrainte ........................................................................................11 2.3 Acier ordinaires ..................................................................................................12 3. Charge appliqués ........................................................................................... 12 3.1 Charge permanent ..............................................................................................12 3.2 Charge exploitation ............................................................................................12 3.3 La combinaison des charges ..............................................................................12
  • 7.
    iv    4. Dimensionnement etVérification ............................................................... 15 4.1 Dimensionnement de la dalle .............................................................................15 4.2 Pré-dimensionnement .........................................................................................16 4.3 Caractéristique mécanique de la section de poutre équivalente .........................16 4.4 Balancement de charges .....................................................................................17 4.5 Déterminer la section des câbles .......................................................................19 5. La perte de précontrainte ........................................................................... 19 5.1 Perte par frottement ............................................................................................19 5.2 Perte par glissement ...........................................................................................21 5.3 Perte par raccourcissement élastique .................................................................23 5.4 Perte différée ......................................................................................................24 6. Vérification des contraintes admissibles du béton .......................................28 6.1 Vérification les contraintes du béton à la mise en tension .................................28 6.2 Vérification les contraintes en services ..............................................................30 7. Vérification la flèches à l’ELS ..........................................................................34 7.1 Vérifier la flèche à courte terme .........................................................................34 7.2 Vérifier la flèche à long terme ...........................................................................36 8. Vérification de moment à l’ELU .........................................................................37 9. Etude de la dalle en direction Y .................................................................... 42 9.1 La géométrie .......................................................................................................42 9.2 Vérification de la contrainte admissible du béton ..............................................45 9.3 Vérification le flèches ........................................................................................47 9.4 Vérification le moment à l’Etat Limite Ultime...................................................49 9.5 Calcul des armatures minimum...........................................................................51 10. La vérification du poinçonnement.....................................................................52 IV. TECHNOLOGIE DU CHANTIER ................................................... 56 V. RESUTATS ET CONCLUSION ....................................................... 55 RESFERENCES............................................................................................. 57 ANNEXE A .................................................................................................... 58 ANNEXE B .................................................................................................... 58 ANNEXE C .................................................................................................... 58
  • 8.
    vii    LISTE DES LISLLUSTRATIONS Figure1 : Logo de l’entreprise................................................................................................... 1 Figure 2 : Nom de Projet ............................................................................................................ 2 Figure 3 : L'entrepreneur ............................................................................................................ 2 Figure 4 : Consultant .................................................................................................................. 2 Figure 5 : Le plan vu au-dessus d'OYLMPIA CITY.................................................................. 3 Figure 6 : Type des précontraintes par Post-tension ................................................................. 6 Figure 7 : Plancher-dalle sans chapiteau .................................................................................... 7 Figure 8 : Plancher-dalle avec chapiteau.................................................................................... 7 Figure 9 : Dalle portant dans une seule direction....................................................................... 7 Figure 10 : Dalle portant dans deux directions............................................................................. 7 Figure 11 : Le profilé théorie des câbles de précontrainte ......................................................... 18 Figure 12 : Le profilé de câble avec l'excentricité choisi........................................................... 19 Figure 13 : Le profilé pratiqué du câble..................................................................................... 20 Figure 13 : Le graphique de la perte par frottement .................................................................. 21 Figure 14 : le diagramme de la perte de précontrainte après la perte glissement....................... 23 Figure 15 : le graphique de relaxation de l’armature à 200 c à 1000h......................................... 28 Figure 17 : le diagramme de contraint du béton à la mise en tension ........................................ 29 Figure 16 : le diagramme des contraintes admissibles et les contraintes dues aux actions à la mise en tension Figure 19 : le diagramme de contraint du béton en service........................................................ 31 Figure20 : le diagramme des contraintes admissible et les contraintes dues à la charge rare... 33 Figure 21 : le diagramme de contraint du béton en service........................................................ 34 Figure22 : le diagramme des contraintes admissibles et les contraintes dues à la combinaison quasi-permanente, ............................................................................. 34 Figure23 : le diagramme des flèches sous la combinaison quasi-permanente. ......................... 35 Figure24 : le diagramme des flèches sous la charge de précontrainte. ..................................... 35 Figure25 : le diagramme des flèches sous la combinaison quasi-permanente. ........................ 36 Figure26 : le diagramme des flèches sous l’effet de précontrainte ........................................... 37 Figure27 : la précontrainte vue totalement du côté de la résistance.......................................... 38 Figure28 : Le diagramme des moments de sollicitation à l’État Limite Ultime ....................... 40 Figure29 : Le diagramme des moments sous l’effet de charge équivalent de précontrainte .... 41
  • 9.
    viii    Etude de ladalle en direction Y : Figure30: le profilé de câble selon la direction Y......................................................................... 44 Figure 31 : le diagramme des contraintes admissible du béton à la mise en tension.................... 45 Figure 32 : le diagramme des contraintes admissible du béton sous la combinaison rare........... 46 Figure 33: le diagramme des contraintes admissible du béton sous la combinaison quasi- permanente.................................................................................................................. 47 Figure 34: le diagramme de la flèche sous la combinaison quasi-permanente............................. 47 Figure 35: le diagramme de la flèche sous l’effort de précontrainte ............................................ 47 Figure 36: le diagramme de la flèche sous la combinaison quasi-permanente............................. 48 Figure 37: le diagramme de la flèche sous l’effort de précontrainte ............................................ 48 Figure38: Le diagramme des moments de sollicitation à l’État Limite Ultime............................ 49 Figure39 : Le diagramme des moments sous l’effet de charge équivalent de précontrainte........ 50 Figure 40: Le périmètre critique de la dalle ................................................................................. 52 Figure 41: Le diagramme de moment flexion à l’ELU................................................................. 53 Figure 42: Le diagramme de l’effort tranchant à l’ELU............................................................... 53 Figure 43: Le diagramme de moment flexion selon l’axe Y à l’ELU. ........................................ 54 Figure 43: Le diagramme de l’effort tranchant selon l’axe Y à l’ELU. ....................................... 54 Figure 44: Le diagramme de moment flexion totale selon l’axe X à l’ELU. .............................. 54 Figure 45: Le diagramme de l’effort tranchant totale selon l’axe X à l’ELU............................... 55 Figure 46: Le diagramme de moment flexion selon l’axe Y à l’ELU. ......................................... 55 Figure 47: Le diagramme de l’effort tranchant totale selon l’axe Y à l’ELU............................... 55
  • 10.
    v    LISTE DES TABLEAUX Tableau1 : Coefficient pour les combinaisons des charges quasi-permanent et fréquent 14 Tableau 2 : l’expression symbolique de la norme européenne pour les combinaisons ELU .. 15 Tableau 3 : les valeurs de calcul d’actions ............................................................................... 15 Tableau 4 : les valeurs des contraintes en chaque point après la perte frottement, en tirant une seule côté de A à K. ....................................................................................... 21 Tableau 5 : les valeurs des contraintes en chaque point après la perte frottement, en tirant une seule côté de K à A......................................................................................... 21 Tableau 6 : Les valeurs de la variation de contrainte de chaque parabole ................................ 23 Tableau 7 : les valeurs de σ en chaque point........................................................................... 25 Table 8 : la déformation due au phénomène de retrait du béton............................................. 25 Tableau 9 : le coefficient de fluage............................................................................................. 26 Tableau 10 : les valeurs de k1 et k2 ............................................................................................. 26 Tableau 11 : les valeurs de la contrainte du béton à endroit du câble sous la charge quasi- permanente............................................................................................................. 27 Tableau 12 : les valeurs de la contrainte du béton à endroit du câble après le transfert............... 27 Tableau 13 : Les valeurs contraintes admissibles du béton avec les contraintes dues aux effets des actions à la mise en tension du câble. .................................................... 30 Tableau 14 : les valeurs contraintes admissibles du béton avec les contraintes dues aux effets des actions à la mise en tension du câble............................................................... 32 Tableau 15 : les valeurs contraintes admissibles du béton et les contraintes dues à la combinaison quasi- permanente.............................................................................. 34 Tableau 16 : les valeurs des flèches instantanées sous la combinaison quasi-permanente et l’effort de précontrainte .......................................................................................... 36 Tableau 17 : les valeurs des flèches instantanées sous la combinaison quasi-permanente et l’effort de précontrainte à long terme. ................................................................... 37 Tableau 18 : Les valeurs des variations de flèches après la construction ................................... 37 Tableau 19 : les valeurs du moment résistance............................................................................ 40 Tableau 20 : Les valeurs des moments de sollicitation à l’État Limite Ultime. .......................... 40 Tableau 21: Les valeurs des moments primaires.......................................................................... 41 Tableau 22 : les valeurs des moments crée par la charge équivalente de précontrainte............... 41 Tableau 23 : les valeurs des moments secondaires. .................................................................... 42 Tableau 24 : les valeurs des moments de sollicitation totale en tous points. ............................... 42
  • 11.
    vi    Etude de ladalle en direction Y : Tableau25 : les valeurs des contraintes admissibles du béton à la mise en tension...................... 45 Tableau 26 : les valeurs des contraintes admissible du béton sous la combinaison rare............. 46 Tableau 27 : les valeurs des contraintes admissible du béton sous la combinaison quasi- permanente............................................................................................................... 46 Tableau 28 : les valeurs des flèches instantanées totales sous la combinaison quasi- permanente et l’effort de précontrainte..................................................................... 48 Tableau 29 : les valeurs des flèches différées totales sous la combinaison quasi- permanente et l’effort de précontrainte................................................................... 49 Tableau 30 : Les valeurs des variations de flèches après la construction .................................... 49 Tableau 31 : les valeurs du moment résistance ........................................................................... 49 Tableau 32 : Les valeurs des moments de sollicitation à l’État Limite Ultime. .......................... 50 Tableau 33: Les valeurs des moments primaires.......................................................................... 50 Tableau 34 : les valeurs des moments crée par la charge équivalente de précontrainte............... 50 Tableau 35 : les valeurs des moments secondaires. .................................................................... 51
  • 12.
  • 13.
    1. Cambo suivi d année stage a MEGA 2. rôleim comm domai Penh m de cet spécia ans. - - - - Présentati Dans le c odge, les étu d’une souten académique aux déférent A ASSET M Projet de la Date de sta Tuteur de s Maitre de s Présentati 2.1 Inform MEGA AS mportant la me le domain ine d’Agence En plus, ce mais aussi à tte l’entrepr alement le pr Figure 1: Log Adresse de Tel/Fax E-mail Site d’intern I. IN ion du stage cadre de la udiants sont nance avant e 2012-2013 ts l’entrepris MANAGEM a constructio age stage stage ion de l’entr mation génér SSET MAN société Cam ne de la co e immobilier ette l’entrepr autre provin rise comme rojet d’OLY ogo de l’entrep l’entreprise net TRODU e : a formation autorisés à f l’obtention d , tous le étu ses. Pour mo MENT sur le on reprise : rale NAGEMEN mbodgienne. onstruction ( r etc. rise a contrô nces. Il y a d le projet de YMPIA CIT prise : No. 315, r : 023 430 6 : mega-asse : www.meg UCTION n d’ingénieu faire le stage du diplôme udiants du Dé oi, j’ai fait m e projet d’OL : Le bâtim : 04 mars : Dr. ME : M. MEN NT est d’une . Cette l’ent (le construct ôlé beaucoup déjà plusieur e Koh Pich, TY dont la rue Ang Duo 86 et@mam.com gassetmanag GENERA ur de l’Inst e de fin d’étu d’ingénieur. épartement d mon stage de LYMPIA C ment de Rés s à 30 mai 20 EAS Sokhom NG Chamre grande priv treprise serv teur, le con p des projet rs grands pro , Canadia T première ph ong, Canadia m.kh gement.com AL titut de Te udes pendan . Comme l’h de Génie Ci fin d’études ITY. idence de 22 012 m un vée l’entrepri ve à une div nsultant & l s non seulem ojets sous la Tower, Reata hase a la dur a Tower à 11 chnologie d nt trois mois habitude, cet vil ont fait s à l’entrepri 2 étages ise qui joue vette domain a gestion), ment à Phno a constructio ana Plazza ration de tro   1th étages 1 du et tte le se le ne le om on et ois
  • 14.
    3. Le grande - - - - - - - -               Figure 3: L' Présentati 3.1 Descri e projetde la es zones : La première La deuxièm La troisièm La quatrièm La cinquièm 3.2 Opérat Le maître d Le maître d Le construc 3.3 Logo d   'entrepreneu ion le projet iption du pr a constructio e zone me zone me zone me zone me tion du proj d’ouvrage d’œuvre cteur e l’entrepri r t de constru rojet n d’OLYMP : la construc : La constru : La constru : La constru : La constru et : Canadia B : MEGA AS : Overseas C se Figure 2   uction : PIA CITY ction de Bâti uction de Bâ uction d’Off uction d’Offi uction d’Offi ank SSET MANA Camboida In 2: Nom de Pro à Phnom Pe iment Réside âtiment Résid fice et Olymp ice ice AGEMET nvestment Co   ojet Figur enh se comp ence S1 dence S2, S pia Plazza orporation (O re 4: Consult ose de cinq S3 et S4 OCIC) tant 2
  • 15.
    Figure 3.3 Lo e 5:La plan v ocation du c ue au-dessus hantier d'OYLMPIA CITY 3  
  • 16.
      3.4 L’orrganigramme ddel’entreprise ddu projet Zonee 1 (S1) : 4 
  • 17.
  • 18.
    5 II. Etude Bibliographie 1.Généralité : Comme le béton armé, le béton précontraint associe béton et armatures, mais il s’en différencie de façon fondamentale dans son principe. Le terme « précontrainte » indique que le béton est mis en compression avant que la structure entre en fonction. En 1935, son inventeur, Eugène Freyssinet, définissait la précontrainte : « Précontrainte une construction, c’est la soumettre avant application des charges à des forces additionnelles déterminant des contraintes telles que leur composition avec celles qui proviennent des charges donne en tout point des résultantes inférieures aux contraintes limites que la matière peut supporter indéfiniment sans altération ». La précontrainte peut être appliquée au béton soit par pré-tension, soit par post-tension des armatures, selon que celles-ci-sont mises en tension avant le coulage du béton ou après son durcissement. Dans ces termes, les préfixes « post », « pré » décrivent le moment d’application de la force dans l’acier par rapport à la mise en place du béton. 2. L’avantage de précontrainte 1) Le rythme de construction Les cadences de réalisation (nombre de jours par niveau) obtenues en cas de réalisation de planchers précontraints sont plus rapides que celles constatées sur les bâtiments classiques en béton armé grâce à la réduction des quantités mises en œuvre. 2) Grande portée et optimisation des surfaces disponibles L’augmentation des trames dans les deux directions rend possible la diminution du nombre d’éléments porteurs (poutres, poteaux, voiles). 3) Limitation, voire annulation des flèches en service courant Les flèches en fonction de l’effort de précontrainte par post-tension mis en place peuvent être réduites, voire annulées quelle que soit la portée sous les charges courantes de service (pour améliorer l’esthétique des solutions courantes). 4) Facilité d’approvisionnement et de manutention L’approvisionnement du chantier est largement simplifié, pas de transport lourd. La manutention ne nécessite pas d’engins de levage importants en particulier dans des zones inaccessibles aux grues.
  • 19.
    6 5) Economie dematériaux La meilleure utilisation des hautes performances des matériaux permet de diminuer les quantités de matériaux (béton, aciers…) mis en œuvre et ainsi de réduire les coûts. 6) Respect de l’environnement La diminution des quantités de matériaux mis en œuvre est le paramètre le plus efficace pour réduire l’impact énergétique et l’émission de gaz à effet de serre (bilan carbone) dans la construction des ouvrages. La précontrainte par post-tension des planchers, par post-tension dans les deux directions, contribue ainsi activement au respect de l’environnement. 3. Les domaines d’emploi de la précontrainte La post-tension Les premières applications, qui se sont multipliées par la suite, sont les ponts et bâtiments à moyenne et grande portée. La précontrainte permet aussi la réalisation de réservoirs. Certains réservoirs d’eau et des sols de volume plus modeste. Dans le domaine du bâtiment, la précontrainte par post-tension, bien que moins courante, est utilisée pour des poutres de grande portée ou pour des dalle de planchers de section relativement mince par rapport à leur portée : parking, bâtiment industriels ou commerciaux. 4. Type de précontrainte par post-tension Une autre différence concerne la position de la précontrainte par post-tension par rapport à la section en béton, de sort qu’on distingue : - La précontrainte intérieure e - La précontrainte extérieure. En outre, la précontrainte intérieure par post-tension peur être : - Avec adhérence - Sans adhérence Figure 6: Type des précontraintes par Post-tension
  • 20.
    7 5. Type dela dalle en béton précontrainte On distingue trois types de dalles précontraintes : 1) Les plancher-dalles (flat-slab) reposant directement sur les poteaux sans aucune poutre, avec ou sans chapiteau. 2) Les dalles reposant sur des files de poutres parallèles dans une seule direction. 3) Les dalles reposant sur des files de poutres parallèles dans deux directions perpendiculaires. Figure 7: Plancher-dalle sans chapiteau Figure 8: plancher-dalle avec chapiteau Figure 9: Dalle portant dans une seule direction Figure 10:dalle portant dans deux directions
  • 21.
    8 5.1 Domaine d’emploi: 1) Plancher-dalle sans chapiteau Schéma Utilisation - Dalle portant dans deux directions et sensiblement égales dans les deux directions de 5 à 12 mètre. 2) Plancher-dalle avec chapiteau Schéma Utilisation - Même application de plancher- dalle sans chapiteau mais pour des portées plus grandes et charges d’exploitation moyennes - Portées peut être jusqu’à 16 mètre. 3) Dalle portant dans une seule direction Schéma Utilisation - Il est recommandé pour les plancher ayant une portée précontrainte dans une direction. - Portées peut être jusqu’à 16 mètre.
  • 22.
    9 4) Dalle portantdans deux directions Schéma Utilisation - Il est recommandé pour les plancher ayant portée précontrainte sensiblement égales dans deux directions. - Portées peut être de 10 à 20 mètre. 5.2 pré dimensionnement des dalles précontraintes : L’épaisseur d’un plancher-dalle précontraint par post-tension est déterminée principalement par des conditions de non-poinçonnement. L’épaisseur des autres dalles précontraintes par post-tension est déterminée par un critère de vérification des contraintes de compression, rarement de flèche. Comme l’action de la précontrainte s’oppose aux charges permanentes, voire également, si on le souhaite, à une fraction des charges d’exploitation, grâce à un tracé judicieux des câbles, seules sont à prendre en compte les charges d’exploitation En fonction de la précision recherchée et du temps disponible, il existe des tableaux : o tableaux donnant le rapport portée/épaisseur des plancher-dalles et des dalles o tableaux pour les plancher-dalles avec ou sans chapiteau Tableaux des épaisseurs en fonction de la portée (L/h): Type de la dalle Rapport L/h a) plancher-dalle sans chapiteau De 30 à 45 b) Plancher-dalle avec chapiteau De 35 à 50 c) Dalle portant dans une seule direction De 45 à 55 d) Dalle portant dans deux directions De 60 à 70
  • 23.
    10 o Les chapiteauxde petites dimensions : Épaisseur (retombée sous dalle =0.75fois l’épaisseur h de la dalle et débord du poteau = 2 fois cette retombée, soit A = a+3h o Les chapiteaux de grandes dimensions : Épaisseur (retombée sous la dalle) = 1.5 fois l’épaisseur h de la dalle et débord du poteau = 2 fois cette retombée, soit A = a +6h 6. Le moment secondaire : En considérant une poutre hyperstatique en béton précontrainte avec deux portés, et ne tient compte pas le poids propre de la poutre. Figure 11: la poutre avant la mise en tension Avant la mise en tension, la poutre est contactée avec les trois appuis. À l’instance de la mise en tension avec les mêmes valeurs d’excentricités, il existe le moment uniformément au long de la portée. Si la poutre n’était pas connectée aux appuis, il va avoir une déflexion vers le haut, et créer un déplacement . Figure 12: la mise en tension, sans le moment secondaire
  • 24.
    11 Le moment primaireest le moment de flexion due à la tension excentré, au quelque point Pour que la poutre reste en contact avec l’appui au milieu, il existe un autre moment de flexion pour évider le déplacement , et ce moment-là correspondre au moment secondaire, qui égal Où est le moment due au l’effort de précontrainte au point x. Figure 3: Le moment primaire Figure 4: le moment secondaire Pour les éléments fléchis due au moment primaire vont créer la force secondaire comme la description au-dessus, et cette force secondaire est corresponde au moment secondaire qui modifie la réaction d’appui. Les nombre des moments secondaires sont égaux aux nombre de dégrée d’hyperstatique.
  • 25.
  • 26.
    12 III. CALCUL DELA DALLE EN BÉTON PRÉCONTRAINTE PAR POST-TENSION 1. Généralité et donnée: Premièrement, pour le calcul de la plancher en béton précontrainte, on a besoin les donnée ci-dessous : o Type du Bâtiment : Appartement d’habitation o Type de la dalle étudié : Dalle d’une zone de garage o Type de la dalle : dalle portant dans deux directions sans chapiteau 2. Matériaux utilisés : 2.1 Béton : ` La résistance caractéristique fck= 32 MPa La résistance de compression à l’âge de la mise en tension fcj = 24 MPa La résistance moyenne du béton La résistance à la traction moyenne du béton La résistance caractéristique de traction à fractile 5% Le module élasticité du béton sécante Ecm = =32489 MPa Poids volumique du béton 2.2 Aciers de précontrainte La résistance caractéristique à la traction fptk = 1860 MPa La contrainte initiale du câble Le module élasticité d’armature précontrainte
  • 27.
    13 La caractéristique d’armatureutilisée : 7 wire drawn de diamètre nominal La section nominale 2.3 Acier ordinaire : Limite d’élasticité moniale des armatures longitudinale Module d’élasticité 3. Charges appliquées : 3.1 Charge permanant : Normalement, l’action convient de considérer le poids propre total des éléments structuraux et celle de non structuraux. Poids propre de la dalle étudiée Autre charges 3.2 Charge exploitation : Les charges d’exploitation des bâtiments sont celles provoquées par l’occupation des locaux. Les valeurs indiquées dans la présente section sont déterminé par le classement ou catégories en fonction de leur utilisation. Pour le calcul d’un plancher à intérieur d’un bâtiment, la charge d’exploitation doit être considérée comme une action libre appliquée sur la plus défavorable de la surface d’influence des effets de l’action considérée. Charge variable 3.3 La combinaison des charges : Selon Eurocode 2, il existe trois cases différentes de la combinaison qui à prendre en compte ci-dessous : - Combinaison Rares d max min 1 1 S P k oi ik i G G Q Q          
  • 28.
    14 - Combinaison Fréquents dmax min 11 1 2 1 S P k i ik i G G Q Q            - Combinaison Quasi-permanentes d max min 2S P i ikG G Q         Avec les notations définies ci-dessous : Gmax représente l’ensemble des actions permanentes défavorables Gmin représente l’ensemble des actions permanentes favorables ; Q1k représente la valeur caractéristique de l’action de base ; ΨoiQik représente la valeur de combinaison d’une action d’accompagnement ; Action 0 1 2 A : habitation, zone résidentielles B : bureaux C : lieux de réunion D : commerces E : stockage F : zone de trafic, véhicules de poids kN30 G : zone de trafic, véhicules de poids compris entre 30 et 160kN H : toits 0.7 0.7 0.7 0.7 1 0.7 0.7 0 0.5 0.5 0.7 0.7 0.9 0.7 0.5 0 0.3 0.3 0.6 0.6 0.8 0.6 0.3 0 Charges dues à la neige sur les bâtiments Lieux situés une altitude H> 1000m a.n.m Lieux situés une altitude H≤ 1000m a.n.m 0.7 0.5 0.5 0.2 0.2 0 Charges dues au vent sur les bâtiments 0.6 0.2 0 Température (hors incendie) dans les bâtiments Tableau 1 : Coefficient pour les combinaisons des charges quasi-permanent et fréquent.
  • 29.
    15 Donc les valeursde la combinaison de l’état limite service sont : o Combinaison rare : ( ) o Combinaison quasi-permanente : ´ ( ) o Combinaison fréquent ( ) La combinaison de l’État limite Ultime Combinaison Référence EN1990 Expression générale FONDAMENTALE (pour situations durables et transitoires) 6.10 6.10 a/b ∑ ∑ Accidentelle (pour situations accidentelle) 6.11 Sismique (pour situations sismiques) 6.12 Tableau 2 : de l’expression symbolique de la norme européenne pour les combinaisons ELU. Pour les l’état limites ultimes de résistance : Situations de projet durable et transitoires Actons permanentes Action variables dominante Actions variables d’accompagnement défavorable favorables principales autres 6.10 (ou 0 si favorable Sans objet (ou 0 si favorables) Tableau 3: les valeurs de calcul d’actions Donc la combinaison à l’état limite ultimes ( )
  • 30.
    16 4. Dimensionnement etvérification de la dalle: 4.1 Dimensionnement de la dalle : 4.1.1 La géométrie selon direction X :
  • 31.
    17 4.2 Pré dimensionnement Premièrement,l’estimation de la hauteur de la dalle est entre de 36 à 45 du rapport de Longueur/hauteur. La structure étude est comporte de 5 équivalentes portés de longueur 8.4 mètre et un console de longueur 2.75 mètre. Alors, l’estimation de la hauteur de la dalle va : On obtient Donc, on va choisir la hauteur de la dalle 4.2.1 Excentricité maximales L’enrobage choisi est de 25 mm avec le diamètre de gaine est de 20mm. Supposons qu’il y a aussi des armatures ordinaires additionnelles de diamètre 10 mm Les excentricités maximales de tendons aux appuis et à travée vont être différentes respectivement : o Appuis : o Travée : 4.3 Caractéristique mécanique de la section de poutre équivalente La géométrie de la section dalle étudié est compose de largeur 1m et d’épaisseur 0.23m Avec la section du béton Le poids propre du béton Le moment d’inertie Le rayon d’inertie 1m 0.23m
  • 32.
    18 4.4 Balancement descharges : La charge équivalente provoquée par l’effort de précontrainte sera être balancé 100% de la charge permanente. Alors, dans le cas de calcul de la dalle, il existe deux types des charges permanentes : o Le poids propre de la section dalle étudié o Autre charges permanente Donc, la charge équivalente de précontrainte sera qui va exercer inversement contre les charges permanentes vers le haut. 4.4.1 Déterminer la force tendue des câbles Figure 11: la profilé théorie des câbles de précontrainte Avant obtention de la fore précontrainte, les valeurs des flèches de chaque portés sont respectivement ci-dessous : - La portée 1 m - La portée 2 m - La portée 3 m - La portée 4 m - La portée 5 m - La portée 6 m Et la force précontrainte corresponde au charge équivalente obtenu est donnée par : Où la longueur de la portée pour chaque portée, sauf le console de longueur - La portée 1 - La portée 2 - La portée 3 - La portée 4 - La portée 5 - La portée 6 𝑤 𝑃𝑓 𝐿 → 𝑃 𝑤𝐿 𝑓
  • 33.
    19 Comme le forcede précontrainte requise pour balancer le charge permanentent est varié dans chaque portée, et il a besoin seulement une seul force de précontrainte en changeant la valeur de la flèches dans chaque portée pour la raison de balancer le même charge permanente. Parmi les six portées, le câble de précontrainte sera tendu sous le même force (on considère qu’elle est la force de précontrainte après la perte de précontrainte instantanée). Et alors, les valeurs d’excentricités à mi- travée seront changées en bloquant celles aux appuis. o La charge équivalente balancée est o la force de précontrainte choisi est Pour la console Les valeurs d’excentricités à mi travée changées de chaque portée sont respectivement ci- dessous : - la portée 2 - la portée 3 - la portée 4 - la portée 5 - la portée 6 Figure 12: le profilé de câble avec l'excentricité choisi 𝑤 𝑃𝑓 𝐿 → 𝑓 𝑤𝐿 𝑝 𝑤 𝑃𝑓 𝐿 → 𝑓 𝑤𝐿 𝑝
  • 34.
    20 4.5 Déterminer lasection des câbles : 4.5.1 la contrainte initiale d’acier de précontrainte o La tension maximale d’acier précontrainte ( ) L’armature de précontrainte sera tendue 75% de la résistance caractéristique. o La contrainte après transfert de la précontrainte En prenant priori, La contrainte d’armature de précontrainte après la transfert Avec la largeur de la dalle étudié ; et la force de précontrainte pour la largeur étudié Alors, la section totale d’armature de précontraint requise pour 1m de largeur est Comme l’armature de précontrainte utilisée est un type de torons 7 wire Drawn Donc : les nombres de torons totale par un mètre est torons 5. La perte de précontrainte : 5.1 Perte instantanées 5.1.1 Perte par frottement A cause de frottement entre la section du béton et celle du câble, la force de précontrainte appliquée au vérin est différent à celle en un autre point. P(x, 0) = P0 - ∆P(x,0) Comme dans cette dalle a d’une grand longueur, c’est pourquoi elle est meilleur de tirer le câble à deux côté dans la raison pour laquelle la perte par frottement est petite. Figure 13: Le profilé pratiqué du câble 𝑃(𝑥 ) 𝑃𝑜 𝑒−𝜇(𝛼+𝜃′ 𝑥)
  • 35.
    21 Pour les torons: - : La somme des déviations angulaires du câble, en radians, entre l’ancrage et le plus proche où agissent le vérin et la section considérée. - Le coefficient de frottement du câble sur sa gaine - Le coefficient tenant compte des irrégularités du tracé réel des gaines par rapport au tracé théorique o Au point B : ( ) ( ) − ( + ′ ) ( ) − ( + ) o Au point C : : ( ) ( ) − ( + ′ ) ( ) − ( + ) En suivant le même pour toutes les points, les valeurs des contraintes après la perte frottement, en tirant une seule côté de point A à K, en chacun point sont mise en sembles dans un tableau ci-dessous : Point A B C D E F G H I J K X(m) 0 7.56 9.24 15.96 17.64 24.36 26.04 32.76 34.44 41.16 44.75 0 0.107 0.221 0.033 0.44 0.55 0.658 0.768 0.877 0.987 1.08 (MPa) 1395 1357.1 1325.9 1290.4 1261.8 1227.9 1200.8 1168.61 1142.74 1112.1 1089 Tableau 4 : les valeurs des contraintes en chaque point après la perte frottement, en tirant une seule côté de A à K. En revente, si on va inversement de point K à A, alors le résultat obtenu est inversement et symétriquement du résultat au-dessus : Point K J I H G F E D C B A X(m) 0 3.59 10.31 11.99 18.71 20.39 27.11 28.79 35.51 37.19 44.75 0 0.147 0.2567 0.366 0.4755 0.585 0.694 0.803 0.913 1.032 1.079 (MPa) 1395 1351.9 1315.6 1286.5 1252 1224.3 1191.5 1165.1 1133.9 1106.8 1089 Tableau 5 : les valeurs des contraintes en chaque point après la perte frottement, en tirant une seule côté de K à A.
  • 36.
    22 Figure 14: Legraphique de la perte par frottement Donc : la perte frottement totale est 5.2 La perte par glissement : Lors du transfert de l’effort de tension du vérin à l’ancrage, il se produit un léger mouvement du câble vers le béton ; ce mouvement dépend du type d’ancrage utilisé. En générale la rentrée d’une clavette est de l’ordre de Selon EC2, à une distance , la somme des efforts de frottement équilibré la perte de tension due au glissement du câble et il n’y a plus de déplacement de l’armature par rapport à sa gaine. - La longueur de glissement, √ Avec est la variation de contrainte moyenne par m. La rentrée de la clavette Le module élasticité de l’armature de précontrainte La variation de contrainte par mètre ( ) o Pour la parabole AB : 0 200 400 600 800 1000 1200 1400 1600 0.00m 5.00m 10.00m 15.00m 20.00m 25.00m 30.00m 35.00m 40.00m 45.00m 50.00m De A à K De K à A
  • 37.
    23 En suivant lemême, les valeurs de la variation de contrainte de chaque parabole sont mise dans le tableau ci-dessous : Parabole AB BC CD DE EF 3.350 18.600 5.289 17.000 5.033 9.855 10.075 Tableau 6: Les valeurs de la variation de contrainte de chaque parabole La longueur de glissement obtenue est , qui se trouve dans la deuxième portée en parabole CD. Alors, la perte par glissement est : Parabole AB BC CD p 3.350 18.600 5.289 ls 7.560 1.680 0.834 50.646 62.496 8.818 Donc : la perte par glissement totale est Lorsqu’on connaît la longueur de glissement on peut tracer le diagramme de tension dans le câble (après la perte par glissement) en basant sur le fait que le diagramme avant et après la perte est symétrique par rapport à l’axe horizontal. Figure 15: le diagramme de la perte de précontrainte après la perte glissement 1200.00 1220.00 1240.00 1260.00 1280.00 1300.00 1320.00 1340.00 1360.00 1380.00 1400.00 0 5 10 15 20 25 30 35 40 45 50 𝑃 𝑝𝑙 𝑠 = 𝑙 𝑠
  • 38.
    24 5.3 La pertepar raccourcissement élastique : Très souvent, une poutre ou dalle, en béton précontrainte, comporte plusieurs câbles. Les tracés individuels des armatures sont généralement différents même si les calculs sont faits uniquement avec le câble « moyen » et ils ne sont pas aussi mis en tension en même temps. Dans le cas où les câbles sont identique avec le même . Avec est le nombre totale d’armature de précontrainte. est le rapport de est la contrainte du béton à l’endroit du câble Et le nombre des torons La section du câble La section du béton Le moment d’inertie Le rayon d’inertie Le module élastique du câble Le module élastique du béton On obtient tout d’abord La valeur de doit tenir compte la réalité que pendant la mise en tension, il existe effet du poids propre de la poutre ou la dalle. La contrainte du béton au point du centre de gravité des câbles produits pas le poids propre est . o À l’appui A : ( ) ( ) − o À mi- travée B: ( ) − ( )
  • 39.
    25 En suivant lemême, la valeur de obtenu par chaque point sont dans le tableau ci- dessous : Point A B C D E F G H I J K L X(m) 0.0 4.2 8.4 12.6 16.8 21.0 25.2 29.4 33.6 37.8 42.0 44.75 0.00 31.57 42.95 13.57 31.57 18.11 33.58 15.47 36.86 21.68 21.74 0.00 0.0 0.08 0.07 0.045 0.07 0.045 0.07 0.045 0.07 0.045 0.07 0 3.35 5.55 3.99 4.25 4.78 4.05 4.64 4.17 4.41 3.89 5.46 3.35 4.323 Tableau 7 : les valeurs de en chaque point. La perte par raccourcissement élastique − Alors, la perte instantanée totale est Donc : la contrainte totale après la perte instantanée 5.4 La perte différée : Les pertes différées sont dues aux phénomènes de fluage, retrait du béton et relaxation d’acier peut être analysée séparément and déterminée ensemble. En 1ère approximation ( ) ( ) ( ) - est la perte par fluage, retrait et relaxation des câbles. - ( ) est la variation de déformation du béton due au fluage et retrait. ( ̅ ( )) ( ) ( )  La déformation due au phénomène de retrait du béton est obtenue en fonction de l’humidité et la section du béton par tableau ci-dessous : Table 8 : la déformation due au phénomène de retrait du béton Comme la section du béton Le périmètre ( ) Alors,
  • 40.
    26 Dans le casintérieur, l’humidité 50% : ( ) Donc la déformation due au retrait du béton est −  Le coefficient de fluage est obtenu par le tableau ci-dessous : Tableau 9 : le coefficient de fluage. À l’âge 7 jours : le coefficient de fluage sera ( ) Donc : le coefficient de fluages est  La relaxation des câbles ̅ ( ) Où ( ) ( − ) − La contrainte après la perte instantanée Alors Et l’armature de précontrainte est dans la classe 2 avec les paramètres k1 et k2 Armature Classe 1 Fils ou torons ordinaires 5.39 6.7 Classe 2 Fils ou torons à base (faible) relaxation 0.66 9.1 Classe 3 barres 1.98 8 Tableau 10 : les valeurs de k1 et k2
  • 41.
    27  La contraintedu béton à endroit du câble sous la charge quasi-permanent o À mi- travée B: ( ) − En suivant le même, les valeurs de la contrainte du béton à endroit du câble sous la charge quasi-permanente sont mis dans le tableau ci-dessous : Point A B C D E F G H I J K L X(m) 0 4.2 8.4 12.6 16.8 21.0 25.2 29.4 33.6 37.8 42.0 44.75 0 51.88 70.59 22.3 51.88 29.77 55.19 25.42 60.57 35.63 35.72 0 0 0.08 0.07 0.045 0.07 0.045 0.07 0.045 0.07 0.045 0.07 0 0.00 4.11 4.89 0.99 3.6 1.33 3.83 1.13 4.2 1.59 2.48 0.00 Tableau 11 : les valeurs de la contrainte du béton à endroit du câble sous la charge quasi- permanente.  La contrainte du béton à l’endroit du câble après transfert o À mi- travée B ( ) − − En suivant le même, le résultat de chaque point sont mise dans le tableau ci-dessous : Point A B C D E F G H I J K L X(m) 0 4.2 8.4 12.6 16.8 21.0 25.2 29.4 33.6 37.8 42.0 44.75 0 45.29 61.63 19.47 45.29 25.99 48.18 22.19 52.88 31.1 31.19 0 0 0.08 0.07 0.045 0.07 0.045 0.07 0.045 0.07 0.045 0.07 0 Pi/Ac 2.76 2.76 2.76 2.76 2.76 2.76 2.76 2.76 2.76 2.76 2.76 2.76 0.00 3.59 4.27 0.87 3.14 1.16 3.34 0.99 3.66 1.39 2.16 0.00 2.76 6.35 7.03 3.63 5.90 3.92 6.10 3.75 6.43 4.15 4.92 2.76 Tableau 12 : Les valeurs de la contrainte du béton à endroit du câble après le transfert.
  • 42.
    28 Donc le tauxde relaxation est obtenu par le graphique ci-dessous : Figure 16: le graphique de relaxation de l’armature à 200 c à 1000h - À la durée 500000 heurs ( ) ( − ) − ̅ La perte différée totale au point A : ̅ + + ( + ) + ( + )( + ) En suivant le même, les valeurs de la perte de chaque point sont mise dans le tableau ci- dessous : Point A B C D E F G H I J K L X(m) 0 4.2 8.4 12.6 16.8 21.0 25.2 29.4 33.6 37.8 42.0 44.75 ̅ 119.6 240.3 269 149.57 227.8 160.5 235 154.1 246.9 169 192.1 119.6 ̅ 190.3 MPa Donc : la perte différé totale est ̅ La contrainte après la perte différée est
  • 43.
    29 6. Vérification descontraintes admissibles du béton : Selon l'EC 2 -1-1, les calculs des contraintes sont conduits avec les caractéristiques géométriques de la section. Figure 17: la section de la dalle étudiée Avec la section du béton Le moment d’inertie Le rayon d’inertie 6.1 Vérifier les contraintes du béton à la mise en tension : Selon l’EC2, les contraintes admissibles du béton à la mise en tension sont : o Compression : σo c = 0.5×fcj,cyl. = o Traction : σo t = fctk,0.005 = Conditions à vérifier : Figure 17 : le diagramme de contraint du béton à la mise en tension Où : le moment de flexion due au poids propre du béton o À mi travée de la portée 1, L=4.2 m 𝜎𝑡 𝜎𝑐 𝜎𝑠𝑢𝑝 𝑃𝑖 𝐴 𝑐 𝑀 𝑝 𝑖 𝑣 𝐼𝑐 𝑀𝑜 𝐼𝑐 𝑣 𝜎̅𝑡 𝜎𝑖𝑛𝑓 𝑃𝑖 𝐴 𝑐 𝑀 𝑝 𝑖 𝑣 𝐼𝑐 𝑀𝑜 𝐼𝑐 𝜈 ≥ 𝜎̅𝑐
  • 44.
    30 o À l’appuide la portée 1, L=8.4m En suivant les mêmes applications aux toutes pointes, les résultats obtenus sont mise ensemble dans le tableau ci-dessous. Point A B C D E F G K I J K L x(m) 0.0m 4.2m 8.4m 12.6m 16.8m 21.0m 25.2m 29.4m 33.6m 37.8m 42.0m 44.8m σ_ad(sup.) 2.1m 2.1m 2.1m 2.1m 2.1m 2.1m 2.1m 2.1m 2.1m 2.1m 2.1m 2.1m σ (sup.) -2.75 -1.19 -0.63 -2.08 -1.19 -1.86 -1.10 -1.99 -0.93 -1.68 -1.68 -2.75 σ_ad(inf.) -12.00 -12.00 -12.00 -12.00 -12.00 -12.00 -12.00 -12.00 -12.00 -12.00 -12.00 -12.00 σ (inf.) -2.75 -3.84 -4.23 -3.22 -3.84 -3.38 -3.91 -3.28 -4.02 -3.50 -3.50 -2.75 Tableau13 : des valeurs contraintes admissibles du béton avec les contraintes dues aux effets des actions à la mise en tension du câble. Figure 18: le diagramme des contraintes admissibles et les contraintes dues aux actions à la mise en tension -15 -10 -5 0 5 0.0m 5.0m 10.0m 15.0m 20.0m 25.0m 30.0m 35.0m 40.0m 45.0m 50.0m Sig_ad sig_ad point sig_sup
  • 45.
    31 𝜎𝑡 𝑡 𝜎𝑐 𝑡 6.2 Vérifier lescontraintes du béton en service 6.2.1 Sous la combinaison rare Les contraintes admissibles en service sous la combinaison rare o Compression : ̅ o Traction : ̅ Condition à vérifier : Figure 19 : le diagramme de contraint du béton en service est le moment obtenu par la combinaison rare. est la force de précontrainte après la perte différer. o À mi travée de la portée 1, L=4.2m o À l’appui de la portée 1, L=8.4m 𝜎𝑠𝑢𝑝 𝑃 𝑚𝑡 𝐴 𝑐 𝑀 𝑝𝑚𝑡 𝑣 𝐼𝑐 𝑀𝑔 𝑀 𝑞 𝐼𝑐 𝑣 ≥ 𝜎̅𝑐 𝑡 𝜎𝑖𝑛𝑓 𝑃 𝑚𝑡 𝐴 𝑐 𝑀 𝑝𝑚𝑡 𝑣 𝐼𝑐 𝑀𝑔 𝑀 𝑞 𝐼𝑐 𝑣 𝜎̅𝑡 𝑡
  • 46.
    32 En suivant lesmêmes applications aux toutes pointes, les résultats obtenus sont mise ensemble dans le tableau ci-dessous. Point A B C D E F G K I J K L x(m) 0.0m 4.2m 8.4m 12.6m 16.8m 21.0m 25.2m 29.4m 33.6m 37.8m 42.0m 44.8m σ_ad(sup.) 2.12 2.12 2.12 2.12 2.12 2.12 2.12 2.12 2.12 2.12 2.12 2.12 σ (sup.) -2.275 -6.00 -6.43 -5.096 -6.123 -5.198 -6.541 -5.142 -6.074 -5.933 -4.466 -2.275 σ_ad(inf.) -16.00 -16.00 -16.00 -16.00 -16.00 -16.00 -16.00 -16.00 -16.00 -16.00 -16.00 -16.00 σ (inf.) -2.275 1.450 1.880 0.545 1.573 0.648 1.991 0.592 1.760 1.383 -0.084 -2.275 Tableau 14 : les valeurs contraintes admissibles du béton avec les contraintes dues aux effets des actions à la mise en tension du câble. Figure20 9: Le diagramme des contraintes admissible et les contraintes dues à la charge rare -20.00 -15.00 -10.00 -5.00 0.00 5.00 0.0m 5.0m 10.0m 15.0m 20.0m 25.0m 30.0m 35.0m 40.0m 45.0m 50.0m σ_ad sous la combinasion rarc sig_ad sig_ad point Sig_up sig_inf
  • 47.
    33 𝜎𝑡 𝑡 𝜎𝑐 𝑡 6.2.2 Sous lacombinaison quasi-permanente Les contraintes admissibles en service sous la combinaison quasi-permanente o Compression : ̅ o Traction : ̅ Condition à vérifier : Figure 21 : le diagramme de contraint du béton en service est le moment obtenu par la combinaison quasi-permanente. est la force de précontrainte après la perte différer. o À mi travée de la portée 1, L=4.2m o À l’appui de la portée 1, L=8.4m 𝜎𝑠𝑢𝑝 𝑃 𝑚𝑡 𝐴 𝑐 𝑀 𝑝𝑚𝑡 𝑣 𝐼𝑐 𝑀𝑔 𝑀 𝑞 𝐼𝑐 𝑣 ≥ 𝜎̅𝑐 𝑡 𝜎𝑖𝑛𝑓 𝑃 𝑚𝑡 𝐴 𝑐 𝑀 𝑝𝑚𝑡 𝑣 𝐼𝑐 𝑀𝑔 𝑀𝑞 𝐼𝑐 𝑣 𝜎̅𝑡 𝑡
  • 48.
    34 En suivant lesmêmes applications aux toutes pointes, les résultats obtenus sont mise ensemble dans le tableau ci-dessous. Point A B C D E F G K I J K L x(m) 0.0m 4.2m 8.4m 12.6m 16.8m 21.0m 25.2m 29.4m 33.6m 37.8m 42.0m 44.8m σ_ad(sup.) 0.00 0.00 0.00 0.00 0.00 0.00 0.00 0.00 0.00 0.00 0.00 0.00 σ (sup.) -2.275 -3.911 -4.501 -3.334 -3.909 -3.428 -4.069 -3.373 -4.232 -3.704 -3.265 -2.275 σ_ad(inf.) -14.40 -14.40 -14.40 -14.40 -14.40 -14.40 -14.40 -14.40 -14.40 -14.40 -14.40 -14.40 σ (inf.) -2.275 -0.639 -0.049 -1.216 -0.641 -1.122 -0.481 -1.178 -0.318 -0.846 -1.285 -2.275 Tableau 15 : les valeurs contraintes admissibles du béton et les contraintes dues à la combinaison quasi- permanente. Figure22: le diagramme des contraintes admissibles et les contraintes dues à la combinaison quasi-permanente, -20.000 -15.000 -10.000 -5.000 0.000 0.0m 5.0m 10.0m 15.0m 20.0m 25.0m 30.0m 35.0m 40.0m 45.0m 50.0m σ_ad sous la combinasion quasi-permanente Sig_up sig_inf sig_ad sig_ad point
  • 49.
    35 7. Vérification laflèche à l’ELS : Un parmi les autres avantages de la structure en béton précontrainte c’est que la déflexion sous une charge donnée peut être éliminée totalement. Selon EC2, il est recommandé que la déflexion sous la charge quasi-permanente soit limitée de L/250 et la déflexion après la construction n’est pas excédé L/500. Où est la longueur de la portée ou la longueur de la console. 7.1 la déflexion instantanée La flèche admissible à mise travée : L=8.4m Et La flèche admissible pour la console : L=2.75m Et À l’aide de logiciel élément fini, les valeurs des flèches sont obtenues comme ci-dessous : - la flèche sous la combinaison quasi-permanente : Figure23: le diagramme des flèches sous la combinaison quasi-permanente. - La flèche sous la charge de précontrainte : Figure24: le diagramme des flèches sous la charge de précontrainte.
  • 50.
    36 Les valeurs desflèches instantanées sont : Travée 1 2 3 4 5 6 f (sous qp) [cm] 1.3 0.4 0.7 0.5 0.9 0.0 f (sous charge précontrainte) [cm] -1.1 -0.3 -0.5 -0.4 -0.7 0.2 f (totale) [cm] 0.2 0.1 0.2 0.1 0.2 0.2 [cm[ 3.36 3.36 3.36 3.36 3.36 1.1 Vérifié Vérifié Vérifié Vérifié Vérifié Vérifié Tableau 16 : les valeurs des flèches instantanées sous la combinaison quasi-permanente et l’effort de précontrainte. 7.2 La flèche différée : À cause de phénomène du retrait et le fluage du béton conduit à une augmentation de la déflexion en fonction du temps. Par la recommandation d’EC, le module élasticité effective est utilisé. La flèche admissible à mise travée : L=8.4m Et La flèche admissible pour la console : L=2.75m Et À l’aide de logiciel élément fini, les valeurs des flèches sont obtenues comme ci-dessous : - la flèche sous la combinaison quasi-permanente : Figure25: le diagramme des flèches sous la combinaison quasi-permanente.
  • 51.
    37 - La flèchesous la charge de précontrainte : Figure26 : le diagramme des flèches sous l’effet de précontrainte Les valeurs des flèches déférées sont : Travée 1 2 3 4 5 6 f (sous qp) [cm] 1.3 0.4 0.7 0.5 0.9 0.0 f (sous charge précontrainte) [cm] -0.9 -0.2 -0.4 -0.3 -0.6 0.2 f (totale) [cm] 0.4 0.2 0.3 0.2 0.3 0.2 [cm[ 3.36 3.36 3.36 3.36 3.36 1.1 Vérifié Vérifié Vérifié Vérifié Vérifié Vérifié Tableau 17 : les valeurs des flèches instantanées sous la combinaison quasi-permanente et l’effort de précontrainte à long terme. Les valeurs des variations de flèches après la construction : Travée 1 2 3 4 5 6 f (instantanée) [cm] 0.2 0.1 0.2 0.1 0.2 0.2 f (déférée) [cm] 0.4 0.2 0.3 0.2 0.3 0.2 [cm] 0.2 0.1 0.1 0.1 0.1 0 [cm[ 1.68 1.68 1.68 1.68 1.68 0.55 Vérifié Vérifié Vérifié Vérifié Vérifié Vérifié Tableau 18 : Les valeurs des variations de flèches après la construction
  • 52.
    38 8. Vérification demoment à l’État Limite Ultime : 8.1 Calcul le moment de résistance Les états limites ultimes qui correspondent à la limite : o De l’équilibre statique o De la résistance o De la stabilité de forme L’État Limite de résistance : Le calcul de structure en béton précontrainte à l’État Limite Ultime sous flexion peut se fait par trois méthodes. o La précontrainte vue totalement du côté de la résistance o La précontrainte vue totalement du côté des actions o La précontrainte vue partiellement comme une action et partiellement comme une résistance Pour comparer la valeur du moment de résistance et celle de sollicitation , parmi les trois méthodes, la première méthode est utilisé ( la précontrainte vue totalement du côté de la résistance). Figure27 : la précontrainte vue totalement du côté de la résistance  Equation d’équilibre : ( ) ( ) ( ) ( )
  • 53.
    39  Equation decompatibilité : ( − ) ( − ) Premièrement, trouver l’axe neutre de la section étudiée : o Au point B, ( ) : Et la longueur critique Dans ce cas-là, l’effort normal crée par l’effet des actions extérieur Section des armatures ordinaire Donc, par l’équation d’équilibre, Où la force du béton La force de précontrainte − Alors, Donc : le moment résistance au point B est ( ) ( ) Pour la résistance d’armature de précontrainte adhérente travaille à l’État Limite Ultime Il faut vérifier que : ( − ) − La déformation du béton à l’état limite ultime ( − ) − − Donc : − − Vérifié !
  • 54.
    40 En suivant lemême, les valeurs du moment résistance en chaque point sont mis dans le tableau ci-dessous : Point A B C D E F G H I J K L x(m) 0.0 4.2 8.4 12.6 16.8 21.0 25.2 29.4 33.6 37.8 42.0 44.75 0.115 0.195 0.185 0.160 0.185 0.160 0.185 0.160 0.185 0.160 0.185 0.115 75.42 140.63 132.48 112.10 132.48 112.10 132.48 112.10 132.48 112.10 132.48 75.42 Tableau 19 : les valeurs du moment résistance 8.2 Calcul le moment de sollicitation La charge obtenue par la combinaison à l’État Limite Ultime est A l’aide du logiciel élément fini, les valeurs de moment crée par l’action en chaque point sont mis dans le tableau ci-dessous. Figure28: Le diagramme des moments de sollicitation à l’État Limite Ultime Point A B C D E F G H I J K L x(m) 0.0 4.2 8.4 12.6 16.8 21.0 25.2 29.4 33.6 37.8 42.0 44.75 0.00 91.70 -124.38 39.38 -91.53 52.62 -97.59 44.97 -107.15 63.00 -63.17 0.00 Tableau 20 : Les valeurs des moments de sollicitation à l’État Limite Ultime. o Le moment secondaire : Le moment secondaire est créé au lieu de chaque appui. Sous l’effet de précontrainte la structure soumise le moment primaire Au point B, ( ) ( )
  • 55.
    41 En suivant lemême, les moments primaires obtenus en chaque points sont mis dans le tableau ci-dessous : Point A B C D E F G H I J K L x(m) 0.0 4.2 8.4 12.6 16.8 21.0 25.2 29.4 33.6 37.8 42.0 44.75 0.0 -0.08 0.070 -0.045 0.070 -0.045 0.070 -0.045 0.070 -0.045 0.070 0.0 0.00 -41.86 36.63 -23.55 36.63 -23.55 36.63 -23.55 36.63 -23.55 36.63 0.00 Tableau 21: Les valeurs des moments primaires. Le moment due à la charge équivalente de précontraintes est obtenu à l’aide de logiciel élément fini : Figure29 : Le diagramme des moments sous l’effet de charge équivalent de précontrainte Point A B C D E F G H I J K L x(m) 0.0 4.2 8.4 12.6 16.8 21.0 25.2 29.4 33.6 37.8 42.0 44.75 0.00 -37.46 50.97 -16.10 37.46 -21.49 39.84 -18.35 43.73 -25.72 25.79 0.00 Tableau 22 : les valeurs des moments crée par la charge équivalente de précontrainte. Alors, le moment secondaire est obtenu par la différence entre . Pour la structure hyperstatique, le nombre des moments secondaires sont égaux aux nombre des inconnues. Alors, le moment secondaire est ( ) o Au point C, (L=8.4m) Le moment crée par la charge équivalente de précontrainte Le moment primaire Alors, le moment secondaire est En suivant le même, les valeurs des moments secondaires obtenues sont mis dans le tableau ci-dessous :
  • 56.
    42 Point A BC D E F G H I J K L x(m) 0.0 4.2 8.4 12.6 16.8 21.0 25.2 29.4 33.6 37.8 42.0 44.75 0.00 - 50.97 - 37.46 - 39.84 - 43.73 - 25.79 - 0.00 - 36.63 - 36.63 - 36.63 - 36.63 - 36.63 - 0.00 - 14.34 - 0.83 - 3.22 - 7.10 - - 10.84 - Tableau 23 : les valeurs des moments secondaires. Alors, les moments de sollicitation totale exerce sur le structure seront ajouter les moments secondaires en tous les appuis. o À l’appui C (L=8.4m) : Le moment de sollicitation Le moment secondaire Les valeurs des moments de sollicitation totale en tous points sont : Point A B C D E F G H I J K L x(m) 0.0 4.2 8.4 12.6 16.8 21.0 25.2 29.4 33.6 37.8 42.0 44.75 0.00 91.70 -110.04 39.38 -90.70 52.62 -94.37 44.97 -100.05 63.00 -74.01 0.00 Tableau 24 : les valeurs des moments de sollicitation totale en tous points. Donc, la vérification de moment à l’État Limite Ultime est mise dans le tableau ci-dessous : Point A B C D E F G H I J K L x(m) 0.0 4.2 8.4 12.6 16.8 21.0 25.2 29.4 33.6 37.8 42.0 44.75 75.42 140.63 132.48 112.10 132.48 112.10 132.48 112.10 132.48 112.10 132.48 75.42 0.00 91.70 110.04 39.38 90.70 52.62 94.37 44.97 100.05 63.00 74.01 0.00 Vérifié Vérifié Vérifié Vérifié Vérifié Vérifié Vérifié Vérifié Vérifié Vérifié Vérifié Vérifié
  • 57.
    43 8.3 Calcul desarmatures minimum : Pour les dalles précontraintes à armatures adhérentes { [ ]} Où [ ( ) ] [ ] Alors, [ ( ( )) ] Donc Et Donc { [ ]} Les armatures minimum à prendre est
  • 58.
    44 9. Etude dela dalle en direction Y : 9.1 La géométrie : Figure: la section de la dalle étudié selon la direction Y. Figure30: le profilé de câble selon la direction Y.
  • 59.
    45 Les charges àbalancer dans chaque portée sont : Potée 1 2 3 4 5 Charge équivalente [kN/m] 8.25 8.25 8.25 8.25 8.25 Section de câble [mm2] 514 514 514 514 514 Fore de précontrainte [kN] 574 574 574 574 574 Alors, la section d’armature de précontrainte choisi est de 5 torons Et la contrainte totale après la perte instantanée est de La contrainte totale après la perte différée est de 9.2 Vérification de la contrainte admissible du béton : o À la mise en tension : Point A B C D E F G H I J K X(m) 0.0m 4.0m 8.0m 12.0m 16.0m 20.0m 24.0m 28.0m 32.0m 36.0m 40.0m 2.12 2.12 2.12 2.12 2.12 2.12 2.12 2.12 2.12 2.12 2.12 -2.50 -1.08 -0.58 -1.89 -1.06 -1.66 -1.08 -1.89 -0.58 -1.08 -2.50 -12.17 -12.17 -12.17 -12.17 -12.17 -12.17 -12.17 -12.17 -12.17 -12.17 -12.17 -2.50 -3.49 -3.83 -2.92 -3.50 -3.08 -3.49 -2.92 -3.83 -3.49 -2.50 Figure 31 : le diagramme des contraintes admissible du béton à la mise en tension. -14 -12 -10 -8 -6 -4 -2 0 2 4 0.0m 5.0m 10.0m 15.0m 20.0m 25.0m 30.0m 35.0m 40.0m 45.0m Sig_ad sig_ad point
  • 60.
    46 o En service,sous la combinaison rare : Point A B C D E F G H I J K X(m) 0.0m 4.0m 8.0m 12.0m 16.0m 20.0m 24.0m 28.0m 32.0m 36.0m 40.0m 2.12 2.12 2.12 2.12 2.12 2.12 2.12 2.12 2.12 2.12 2.12 -2.064 -5.135 -6.213 -3.375 -5.172 -3.880 -5.135 -3.369 -6.213 -5.135 -2.064 -16.00 -16.00 -16.00 -16.00 -16.00 -16.00 -16.00 -16.00 -16.00 -16.00 -16.00 -2.064 1.008 2.085 -0.752 1.045 -0.248 1.008 -0.759 2.085 1.008 -2.064 Tableau 26 : les valeurs des contraintes admissible du béton sous la combinaison rare Figure 32 : le diagramme des contraintes admissible du béton sous la combinaison rare o Sous la combinaison quasi-permanente : Point A B C D E F G H I J K X(m) 0.0m 4.0m 8.0m 12.0m 16.0m 20.0m 24.0m 28.0m 32.0m 36.0m 40.0m 0.00 0.00 0.00 0.00 0.00 0.00 0.00 0.00 0.00 0.00 0.00 -2.064 -3.551 -4.072 -2.698 -3.568 -2.943 -3.551 -2.695 -4.072 -3.551 -2.064 -14.40 -14.40 -14.40 -14.40 -14.40 -14.40 -14.40 -14.40 -14.40 -14.40 -14.40 -2.064 -0.577 -0.055 -1.429 -0.559 -1.185 -0.577 -1.432 -0.055 -0.577 -2.064 Tableau 27 : les valeurs des contraintes admissible du béton sous la combinaison quasi- permanente. -18.00 -16.00 -14.00 -12.00 -10.00 -8.00 -6.00 -4.00 -2.00 0.00 2.00 4.00 0.0m 5.0m 10.0m 15.0m 20.0m 25.0m 30.0m 35.0m 40.0m 45.0m σ_ad sous la combinasion rarc sig_ad sig_ad point Sig_up sig_inf
  • 61.
    47 Figure 33: lediagramme des contraintes admissible du béton sous la combinaison quasi- permanente. 9.3 Vérification les flèches : 9.3.1 La flèche instantanée Les flèches admissible à mise travée : L=8000mm - La flèche sous la combinaison quasi-permanente : Figure 34: le diagramme de la flèche sous la combinaison quasi-permanente. - La flèche sous l’effort de précontrainte : Figure 35: le diagramme de la flèche sous l’effort de précontrainte -16.000 -14.000 -12.000 -10.000 -8.000 -6.000 -4.000 -2.000 0.000 0.0m 5.0m 10.0m 15.0m 20.0m 25.0m 30.0m 35.0m 40.0m 45.0m σ_ad sous la combinasion quasi-permanente Sig_up sig_inf sig_ad sig_ad point
  • 62.
    48 Les valeurs desflèches instantanées sont : Travée 1 2 3 4 5 f (sous qp) [cm] 1.0 0.2 0.5 0.2 1.0 f (sous charge précontrainte) [cm] -0.9 -0.2 -0.5 -0.2 -0.9 f (totale) [cm] 0.1 0.0 0.0 0.0 0.1 [cm[ 3.2 3.2 3.2 3.2 3.2 Vérifié Vérifié Vérifié Vérifié Vérifié Tableau 28 : les valeurs des flèches instantanées totales sous la combinaison quasi-permanente et l’effort de précontrainte. 9.3.2 La flèche différée Les flèches admissible à mise travée : L=8000mm - La flèche sous la combinaison quasi-permanente : Figure 36: le diagramme de la flèche sous la combinaison quasi-permanente. - La flèche sous l’effort de précontrainte : Figure 37: le diagramme de la flèche sous l’effort de précontrainte
  • 63.
    49 Travée 1 23 4 5 f (sous qp) [cm] 1.0 0.2 0.5 0.2 1.0 f (sous charge précontrainte) [cm] -0.8 -0.2 -0.4 -0.2 -0.8 f (totale) [cm] 0.2 0.0 0.1 0.0 0.2 [cm[ 3.2 3.2 3.2 3.2 3.2 Vérifié Vérifié Vérifié Vérifié Vérifié Tableau 29 : les valeurs des flèches différées totales sous la combinaison quasi-permanente et l’effort de précontrainte. Les valeurs des variations de flèche après la construction : Travée 1 2 3 4 5 f (instantanée) [cm] 0.1 0.0 0.0 0.0 0.1 f (déférée) [cm] 0.2 0.0 0.1 0.0 0.2 [cm] 0.1 0.0 0.1 0.0 0.1 [cm[ 1.6 1.6 1.6 1.6 1.6 Vérifié Vérifié Vérifié Vérifié Vérifié Tableau 30 : Les valeurs des variations de flèches après la construction 9.4 Vérification le moment à l’Etat Limite Ultime : 9.4.1 Le moment de résistance : En utilisant la même méthode, la précontrainte vue totalement à côté de résistance, les valeurs de moments de résistances sont obtenu comme ci-dessous : Point A B C D E F G H I J K x(m) 0.0 4.0 8.0 12.0 16.0 20.0 24.0 28.0 32.0 36.0 40.0 0.115 0.195 0.185 0.160 0.185 0.160 0.185 0.160 0.185 0.160 0.185 75.42 140.63 132.48 112.10 132.48 112.10 132.48 112.10 132.48 140.63 75.42 Tableau 31 : les valeurs du moment résistance
  • 64.
    50 9.4.2 Le momentde sollicitation : Figure38: Le diagramme des moments de sollicitation à l’État Limite Ultime Point A B C D E F G H I J K x(m) 0.0 4.0 8.0 12.0 16.0 20.0 24.0 28.0 32.0 36.0 40.0 0.00 83.28 -112.54 35.46 -84.41 49.24 -83.28 35.46 -112.54 83.28 0.00 Tableau 32 : Les valeurs des moments de sollicitation à l’État Limite Ultime. 9.4.3 Le moment secondaire : Point A B C D E F G H I J K x(m) 0.0 4.0 8.0 12.0 16.0 20.0 24.0 28.0 32.0 36.0 40.0 0.000 -0.080 0.070 -0.045 0.070 -0.045 0.070 -0.045 0.070 -0.080 0.000 0.00 -37.97 33.22 -21.36 33.22 -21.36 33.22 -21.36 33.22 -37.97 0.00 Tableau 33: Les valeurs des moments primaires. Figure39 : Le diagramme des moments sous l’effet de charge équivalent de précontrainte Point A B C D E F G H I J K x(m) 0.0 4.0 8.0 12.0 16.0 20.0 24.0 28.0 32.0 36.0 40.0 0.00 -34.05 45.99 -14.53 34.45 -20.13 34.05 -14.46 45.99 -34.05 0.00 Tableau 34 : les valeurs des moments crée par la charge équivalente de précontrainte.
  • 65.
    51 Point A BC D E F G H I J K x(m) 0.0 4.0 8.0 12.0 16.0 20.0 24.0 28.0 32.0 36.0 40.0 0.00 - 45.99 - 34.45 - 34.05 - 45.99 - 0.00 0.00 - 33.22 - 33.22 - 33.22 - 33.22 - 0.00 0.00 - 12.76 - `1.23 - 0.82 - 12.76 - 0.0 Tableau 35 : les valeurs des moments secondaires. Point A B C D E F G H I J K x(m) 0.0 4.0 8.0 12.0 16.0 20.0 24.0 28.0 32.0 36.0 40.0 75.42 140.63 132.48 112.10 132.48 112.10 132.48 112.10 132.48 140.63 75.42 0.00 83.28 -99.78 35.46 -83.18 49.24 -82.46 35.46 -99.78 83.28 0.00 Vérifié Vérifié Vérifié Vérifié Vérifié Vérifié Vérifié Vérifié Vérifié Vérifié Vérifié 9.5 Calcul des armatures minimum : Pour les dalles précontraintes à armatures adhérentes { [ ]} Donc { [ ]} Les armatures minimum à prendre est
  • 66.
    52 10. La vérificationdu poinçonnement : Figure 40: Le périmètre critique de la dalle Les épaisseurs des dalles précontraintes par post-tension sont plus conditionnées par des raisons de résistances au poinçonnement que de flexion ou de flèche. La résistance au poinçonnement de la dalle doit être vérifiée au droit du poteau et à l’endroit où la charge concentrée est importante. La résistance au cisaillement, , le long d’une côté de la périmètre critique peut être donnée par TR43 : Avec la section du poteau la longueur de la côté considérée du périmètre critique [ ] ( ) ( ( ) ) Où est la section des armatures précontrainte adhérente et celle des armatures passif passante à travers .
  • 67.
    53 alors, * +( ) ( ( ) ) le module de la section pour le largeur égale à la côté considérée du périmètre critique Et La force de précontrainte moyenne La force de précontrainte passante la côté considérée de périmètre critique Alors, le moment de flexion provoqué la contrainte nulle à la fibre extrêmement tendue ( ) À l’aide de logiciel élément fini, les valeurs de l’effort tranchant et le moment flexion à l’ELU sont : Figure 41: Le diagramme de moment flexion à l’ELU. Figure 42: Le diagramme de l’effort tranchant à l’ELU. Donc : la résistance au cisaillement de périmètre critique est
  • 68.
    54 Pour autre côtédu poteau : Figure 43: Le diagramme de moment flexion selon l’axe Y à l’ELU. Figure 43: Le diagramme de l’effort tranchant selon l’axe Y à l’ELU. M V 1155mm 0.54 10.18m3 156.94 kN/m 458.18kN/m 344.32kN Alors, Donc : la somme de tous valeurs de la résistance au cisaillement de tous côté o l’effort de cisaillement effectif : [ ] Où sont respectivement l’effort de cisaillement et moment de flexions totales transférées à la colonne par la dalle. Figure 44: Le diagramme de moment flexion totale selon l’axe X à l’ELU.
  • 69.
    55 Figure 45: Lediagramme de l’effort tranchant totale selon l’axe X à l’ELU. Alors, * + Donc : Vérifié !! o l’effort de cisaillement effectif au long de l’axe Y: [ ] Figure 46: Le diagramme de moment flexion selon l’axe Y à l’ELU. Figure 47: Le diagramme de l’effort tranchant totale selon l’axe Y à l’ELU. Alors, * + Donc : Vérifié !!
  • 70.
  • 71.
    56 IV. TECHNOLOGIE DECHANTIER 1. La mise en œuvre : Comme dans le cas d’un plancher courant en béton armé coulé en place, les planchers de tous type (la plancher-dalle, la plancher-dalle avec chapiteaux, la plancher type poutre dalle dans une seule direction ou deux direction) des précontraintes par post-tensions sont pratiqués nécessairement les même étapes qui sont :  Installation des coffrages  Placer les ferraillages (passive et active)  Le bétonnage Par contre, il existe une autre seule important phase additionnelle qui est la phase de la mise en tension des aciers de précontrainte avant le décoffrage. Puisque la phase de la mise œuvre est extrêmement critique dans laquelle la force de précontrainte peut être favorable, contre la charge permanente ainsi que la charge exploitation, et défavorable dans le cas la contrainte est grande que celle du béton admissible. Donc, il est aussi nécessaire qu’on a besoin d’avoir la personne qualifiée pour réaliser cette opération spécial de la mise en tension des aciers de précontrainte. 2. Opération de la mise en œuvre : Normalement, les phases d’exécutions de la construction de dalle précontrainte sont simplement suivantes par un cycle de mise en œuvre répétitif. Ainsi, la réalisation d’un étage nécessite les différentes étapes successives :  Créer les éléments supporteur verticaux/ installer les échafaudages  Installer les coffrages du dalle  Placer les ferraillages passifs  Poser des câbles de précontrainte  Bétonnage puis cure du béton  Mise en tension dans le cas le béton atteindre la résistance requise
  • 72.
    57 3. Opération réellesur le chantier : 3.1 Le coffrage Le coffrage de la dalle en béton précontrainte est considéré un pointe d’avantage pour le système de précontrainte en comparant avec le système du béton armé. Il est simple, il nous donne beaucoup de la facilité d’installer et spécialement le temps de travail est plus court. Figure 1: Le coffrage de la dalle Figure 2: les échafaudages de la dalle
  • 73.
    58 3.2 Le ferraillage Ilexiste deux types d’armatures pour la dalle en précontrainte par post-tension, l’armature de précontrainte et l’armature ordinaire (l’armature passive pour résister le phénomène de retrait et fluage et augmenter la capacité du moment résistance à l’Etat limite Ultime). En plus, il existe aussi les gaines qui sont mises en œuvre en même temps que le ferraillage passif éventuellement nécessaire. Figure 3: les armatures de la dalle En principe, les câbles de précontraintes peuvent être préfabriqués, sur chantier ou en usine, avant leur pose sur des chaises supports permettant le réglage altimétrique dans l’épaisseur de la dalle ou des poutres. Nominal Dia. 12.7 mm Standard ASTM A416-06 Grade 1860 MPa Coil No. B130489-4 Lenght 3480 m Net Weight 2694 kg 11414 ft 5940 lb Lot No. A130489 Heat No. 2235 Produce Date 2013-4-9 Po. NO
  • 74.
    59 Figure 4: lecatalogue d'armature de précontraint Figure 5: les armatures de précontrainte fabriquée sur le chantier
  • 75.
    60 Il existe dedifférent type des chaises de support pout des différents niveaux des câbles Figure 6: les chaises support de gaine 3.3 Gaines plate PE/PP Normalement, comme le béton armé, les câbles de précontraints sont mis dedans du béton. En plus, la post contrainte mise en œuvre dans le bâtiment est de manière courante réalisée par la mise en place de gaines ou conduits contenant un ou plusieurs torons en acier équipés d’organes d’ancrages à leur extrémités. Figure 7: la gaine plate
  • 76.
    61 Figure 8: lamise d’armature dans la gaines Figure 9: la gaine utilisée au chantier
  • 77.
  • 78.
    62 V. Conclusion 1. Lesrésultats : Après avoir calculé et vérifié la structure en béton précontrainte au-dessus, on obtient les résultats à comparer avec celles d’utilisée au chantier. Mon calcul : - L’épaisseur de la dalle - Nombre de torons utilisé pour une portée 8 câbles de 5 torons dans chaque câble. - L’espacement entre des câbles est de 1m. - Les armatures ordinaires minimum est de . Les résultats au chantier : - L’épaisseur de la dalle - Nombre de torons utilisé pour une portée 6 câbles de 5 torons est 1 câble de 3 torons dans chaque câble. - L’espacement entre des câbles est de 1.25m. - Les armatures ordinaires minimum est de . 2. La conclusion : D’après avoir obtenu les résultats de calcul, en utilisant le même donné, on peut conclure une petite partie de la construction que, l’épaisseur de la dalle j’ai utilisé par la propose de l’EC2 est plus mines que l’épaisseur de la dalle au chantier. Mais les armatures de précontrainte que j’ai utilisée est beaucoup plus grand que celles au chantier. Si on voire dans l’économique perspective, seulement pour une partie de la dalle en précontrainte par post-tension, on gaine une épaisseur de la dalle 2cm, par contre, on perte peut être 25% pourcentage des armatures de précontraintes. Après avoir terminé complètement le stage pratique, j’ai eu beaucoup de connaissances concernant les bétons de précontraints par post-tension qui m’a permet d’adapter bien au marché du travail et aussi des expériences techniques concernant la construction. Il est encore d’élargir mes connaissances théoriques et le travail pratique.
  • 79.
  • 80.
    63 RESFERENCES BIBLIOGRAPHIQUES [1]: CHEASavuth, (2010). NOTE DE CALCUL EN BÉTON PRÉCONTRAINTE. [2] : M.K.Hurst, (1998). Prestressed Concrete Design. (2nd Edition). London : New Fetter Lane [3] : Lucien Boutonnet, Patrick Chassagnette, Claude Néant, Jacky Seantier et Henry Thonier La Précontrainte dans le bâtiment, modifiée . SEDIP sous la présidence de Pierre Bron [4] : R.I.GIBERT & N.C MICKLEBOROUGH. (2005). Design of Prestressed Concrete. Londdon : Spon Press. [5] : EUROCODE 2 EN (1992). Calcul des structures en béton. Presses Universitaires de Lyon. [6] : EUROCODE 1 EN (1991-1-1). ACTIONS SUR LES STURCTURES. [7] : T.Y. Lin & NED H.BURN. (1981). Design of Prestressed Structures, (3rd Edition). [8] : SAMI KHAN, MARTIN WILLIAMS, (1995). POST-TENSIONED CONCRETE FLOORS. London:Great Britain.
  • 81.
  • 82.
  • 83.
    ANNEXE A :L’EFFET DES ACTIONS I. Effet de linge d’influence : Pour le calcul d’une dalle à l’intérieur d’un bâtiment, la charge d’exploitation doit être considérée comme une action libre appliquée sur la partie la plus défavorable de la surface d’influence des effets de l’action considérés. À l’aide de logiciel l’élément fini, les résultats de l’effet de linge d’influence est obtenu comme ci-dessous : Figure 1: la structure de la dalle modélisée. Figure 2: le diagramme de linge d’influence pour la portée 1 Figure 3: le diagramme de linge d’influence pour la portée 2
  • 84.
    Figure 4: lediagramme de linge d’influence pour la portée 3 Figure 5: le diagramme de linge influence pour la portée 4 Figure 6: le diagramme de linge influence pour la portée 5 Figure 7:le diagramme de linge d’influence pour la console.
  • 85.
    Les variations descas applications de charges selon l’effet de linge d’influence. Figure 8: l’application de charge exploitation dans le cas 1. Figure 9: l’application de charge exploitation dans le cas 2. Figure 10: l’application de charge exploitation dans le cas 3. Figure 11: l’application de charge exploitation dans le cas 4. Figure 12: l’application de charge exploitation dans le cas 5.
  • 86.
    Figure 13: l’applicationde charge exploitation dans le cas 6. Figure 14: l’application de charge exploitation dans le cas 7. Figure 15: l’application de charge exploitation dans le cas 8. Figure 16: l’application de charge exploitation dans le cas 9. Figure 17: l’application de charge exploitation dans le cas 10. Figure 18: l’application de charge exploitation dans le cas 11.
  • 87.
    Après avoir appliquéela variation des cas de charge exploitation, les valeurs moments maximum de chaque portée est obtenu comme ci-dessous : o Sous la combinaison rare : Figure 19: le diagramme de courbe enveloppe des moments sous la combinaison rare. Point A B C D E F G H I J K L X(m) 0.0 4.2 8.4 12.6 16.8 21.0 25.2 29.4 33.6 37.8 42.0 44.75 0.00 71.38 92.80 40.97 71.38 47.26 77.46 43.63 84.62 57.97 45.11 0.00 Tableau : les valeurs des moments sous la combinaison rare. o Sous la combinaison quasi-permanente : Figure 20: le diagramme de courbe enveloppe des moments sous la combinaison quasi-permanente. Point A B C D E F G H I J K L X(m) 0.0 4.2 8.4 12.6 16.8 21.0 25.2 29.4 33.6 37.8 42.0 44.75 0.00 71.38 92.80 40.97 71.38 47.26 77.46 43.63 84.62 57.97 45.11 0.00 Tableau : les valeurs des moments sous la combinaison quasi-permanente.
  • 88.
    ANNEXES B :Tracé des câbles PERTE PAR FROTTEMENT : Tracé simplifié : L’équation de la parabole est de la forme avec La courbure vaut . Comme la force radiale vaut Alors Figure 21: Le trace du câble réelle et celui de théorique o Travée de rive Amplitude du tracé du câble : Avec et Pente de la droite joignant les extrema : D’où :
  • 89.
    .L (1--).L .L c1 c2 1.h 2.h 3.h h/2 h/2 L h  O Figure22: La Travée de rive Amplitude du tracé du câble : Avec , et Pente de la droite joignant les extrema : D’où : Dans le cas : L’équation de la parabole gauche de la forme avec Pour l’abscisse : ( ) Alors, D’où
  • 90.
    Alors, l’équation du2ème degré en est : Donc : On trouve : Donc : la hauteur Parabole de gauche x < (1 – ).L Parabole de droite x ≥ (1 – ).L Distance du point bas à l’appui gauche x0 x – .L L - x  2 1 )L.( ch5,0   2 L.).1(   Cote au-dessus du coffrage y c1 + . 2 0x h – c2 - . 2 0x Pente y’ 2.x0 2. x0 Courbure r 1 = y’’ 2. -2 Rotation cumulée depuis l'appui gauche  0 + 22 01 L. x).ch5,0(2   0 +           L. x 2 )1(L 2 0 Tableau : caractéristique de la parabole Alors, la pente de parabole de gauche à l’abscisse
  • 91.
    La pente deparabole de gauche à l’abscisse o Tracée d’intermédiaire : Pente de la droite pointillée joignant extrema : (0,5- ).L .L c1 c2 1.h 2.h L h .L (0,5- ).L  Figure 23: Tracée intermédiaire Amplitude du tracé du câble : Avec , et Alors, la hauteur
  • 92.
    Parabole de gauche x≤ .L Parabole du milieu .L < x ≤ (1 – ).L Parabole de droite x ≥ (1 – ).L x0 x x – 0,5L L - x  2 L. 2   2 L).5,0( 2   2 L. 2   y h – c2 - . 2 0x c1 + . 2 0x h – c2 - . 2 0x y’ -2.x0 2. x0 2.x0 r 1 = y’’ -2. 2 -2.  2 0 L. x.4   20 + 2 L).5,0( )L5,0x.(4   0 + 2 L. )Lx.(4   Tableau : Caractéristique des paraboles La pente de parabole de gauche à l’abscisse La pente de parabole du milieu à l’abscisse La structure de la dalle étudiée a les profilés des câbles comme figure ci-dessous. Figure 24: Les profilés des câbles de chaque portée. Donc, la pente obtenu de chaque pointe sont mise dans le tableau ci-dessous : Point A B C D E F G H I J K 0.0475 0.0595 0.0547 0.0547 0.0547 0.0547 0.0547 0.0547 0.0547 0.0547 0.0379
  • 93.