ARCHITECTE TECHNIQUE
BOOK D’ARCHITECTURE 2015
« L’art de l’architecture c’est la combinaison entre la technique et l’imagination »
Réflexion
Inspiration
Compréhension
Création
Originalité
SatisfactionRéalisation
Technique Calcul
Idée
Etude
Adaptation
Conception
Réhabilitation Rénovation
SOMMAIRE
5 MAISONS HLM Phases PRO, EXE, DET/ Constructeur Econex P.3
PUB IRLANDAIS Phases ESQ, AVP, PRO/ Constructeur Econex P.5
TRANSFORMATION D’UN LOCAL EN BAR Projet fin d’Etudes / Diplôme d’Architecte Technique P.7
LOCAL CAFETERIA Projet Master Efficacité Energétique des Bâtiments P.14
CONSTRUCTION DE 16 LOGEMENTS Phase APD / Agence Brunet Architectes et Associés P.16
DESSINS DES MEUBLES Agence Brunet Architectes et Associés P.22
CNFPT PARIS Phase APS / Agence Brunet Architectes et Associés P.26
CONSTRUCTION D’UN IMMEUBLE Agence Brunet Architectes et Associés P.31
RESTAURANT SYMPHORIEN Phase ESQ, APV / Agence Brunet Architectes et Associés P.33
HOTEL LE RICHEMONT Phase PRO / Agence Brunet Architectes et Associés P.35
EXTENSIONS DES MAISONS Phase PDC, EXE / REV Habitat P.39
PROJETS PERSONNELS Rendus des images P.48
EXTENSION ET RENOVATION D’UN HABITATION Phase APS / EIRL Pierre BARRANGER P.42
PROJET DE MISE A L’IMAGE Phase NCI, EXE/ EIRL Pierre BARRANGER P.44
EXTENSION D’UN CHAI VITICOLE Phase DPC / EIRL Pierre BARRANGER P.46
5 MAISONS HLM
STAGE A ECONEX (CONSTRUCTEUR) Mérida / Juin-Septembre 2008
Directeur du projet / Angel Gonzalez Garcia / Architecte
Tuteur du stage / Jose Antonio Cordero Avila / Architecte
Technique
Construction de cinq maisons HLM à San Pedro de Mérida
(Espagne).
Phases PRO, EXE, DET
Missions:
Planification, organisation et suivi quotidien du chantier
pendant deux mois / Réalisation du devis du chantier /
Implantation des limites séparatives de façade, implantation
des escaliers, des poteaux et des réseaux d’assainissement
des eaux usées / Vérification des poteaux contre le
flambement / Vérification des armatures en acier pour les
fondations / Vérification du bon fonctionnement des
réseaux d’assainissement des eaux usées.
Caractéristiques constructives:
Réseaux d’assainissement des eaux usées
Regard en brique, mortier de ciment, installations sanitaires
individuelles, tuyaux en pvc (image1)
1 2
3 4
5 6
7 8
3
Fondations
Fondation projetée avec des semelles et un mur de soutènement
en béton (images 2,3)
Structure
Coffrages par planches en bois (Images 4,7)
Planchers réalisés avec des poutrains portant préfabriqués, placés
parallèlement les uns des autres tous les 0,6 m. Et des entrevous
préfabriqués placés entre les poutrains (Images 5,6)
Coffrage du premier plancher (Image 8)
Déversement du béton sur le plancher (Image 9)
Déversement du béton sur les poteaux (Image 10)
9
10
4
PUB IRLANDAIS
STAGE A ECONEX (CONSTRUCTEUR) Mérida / Juin-Septembre 2008
Directeur du projet / Angel Gonzalez Garcia / Architecte
Tuteur du stage / Jose Antonio Cordero Avila / Architecte
Technique
Phases ESQ, AVP, PRO.
Description:
Il s’agit de la démolition d’un vieux bâtiment situé à Mérida
(Espagne) pour permettre la construction d’un pub Irlandais situé
en plein centre ville. Le bar sera constitué par trois étages.
Missions:
Planification, organisation et suivi quotidien du chantier pendant
quatre mois / Réalisation des fondations en suivant le règlement du
béton structurel (EHE) / Calculs structurels et calcul de la quantité
d’acier et du béton nécessaire pour la dalle de fondation en béton
armé / réalisation de devis du chantier / Vérification des poteaux
contre le flambement / Vérification des armatures en acier pour les
fondations / Vérification du bon fonctionnement des réseaux
d’assainissement des eaux usées / Vérification de la bonne
installation de l’armature.
5
1
2
Caractéristiques constructives:
Fondation projeté avec une dalle de fondation en béton armé
(Images 1 et 2).
Le réseaux d’assainissement des eaux usées a été réalisé avec
des regards en brique, mortier de ciment, installations
sanitaires individuelles et tuyaux en pvc.
Réalisation de la mise à terre (Images 3 et 4) avec un boucle a
fond du fouille en câble de cuivre nu de 25 mm² de section sur
une couverture acoustique.
3
4
6
Directeur du projet / Luis Gonzalez Jiménez / Architecte.
Objet du projet:
Adéquation et transformation d’un local existant pour la création
d’un bar, dans le but d’obtenir le permis de construire et la licence
municipale d’activité.
Réalisation d’un Mémoire Descriptif (objet, antécédents, normes…) /
Mémoire Constructif (démolitions, réseaux d’assainissement,
maçonnerie, charpenterie, plomberie, installation électrique,
système de téléphonie, climatisation, peintures et recouvrement,
mobilier) / Mémoire Justificatif (normes et justification de
règlements) / Etude basique de la sécurité et de la santé / Devis /
Plans.
Description du projet:
Il s’agit d’un local brut en béton situé à Mérida (Espagne), ville
déclarée patrimoine de l'humanité grâce à son intérêt historique et
monumental, ce qui fait qu’il est vraiment difficile de réaliser
n'importe quelle excavation.
TRANSFORMATION D’UN LOCAL EN BAR
PROJET FIN D’ETUDES / Diplôme d’Architecture Technique / 2009
7
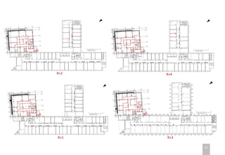
RDC état actuel
R+2 état reformé
R+1 état reformé
RDC état reformé
R+2 état actuel
R+1 état actuel
8
Coupe longitudinale
Façade latérale
Façade principaleCoupe transversale
9
Caractéristiques du local existant:
L’édifice dispose de trois étages, il existe une mezzanine entre le rez-de-
chaussée et le premier étage, et une terrasse praticable au troisième étage.
Le bâtiment est construit avec une structure en poteaux et poutres de béton
armé, et un plancher unidirectionnel.
Le mur extérieur est réalisé en brique massive perforée, lame d’air ventilé,
isolement de polyuréthane et brique.
Actions à réaliser:
Démolition d’une partie du plancher du R+1 pour réaliser le creux pour
l’ascenseur qui sera mis en place pour être en phase avec la loi d’accessibilité
à des locaux publiques.
Mise en adéquation de l’organisation des réseaux d’assainissement des eaux
usées, réalisation de nouvelles cloisons, installation du système de
plomberie, ventilation, électricité, système de téléphonie digitale, mobilier,
décoration, finition intérieur et finition de la façade.
PLANS D’ELECTRICITE
Différents types de circuit d'éclairage:
N°1: Entrée et coté gauche RDC
N°2: Milieu RDC
N°3: Bar
N°4: Façade principale
N°5: Façade latérale
N°6: Escalier et coté droite R+1
N°7: Milieu R+1
N°8: Système d’automatisation
RDC
R+1
DETAILS TECHNIQUES
R+2
10
SCHÉMA UNIFILAIRE
11
12
PLANS DE PLOMBERIEDETAILS CONSTRUCTIVES
R+2
RDC
R+1
FACADE VENTILE
COMPOSITION DU MUR:
1) Finition du plâtre (1,5 cm)
2) Brique (7cm)
3) Lame d’air ventile
4) Panneau phénolique
5) Brique (24 cm)
6) Vis de fixation
7) isolation thermique de polystyrène
MUR EXTERIEUR
Le mur extérieur est réalisé avec une façade
ventilée type modèle Tespa Meteon avec des
panneaux phénoliques de 2500 mm x 1500
mm, couleur marron foncée.
13
Objet du projet:
L’objet de ce projet était de réaliser le dessin, les calculs des installations énergétiques et les devis suivants:
⁻ Climatisation
⁻ Illumination
⁻ Limitation de la demande énergétique et qualification énergétique
⁻ Solaire thermique
⁻ Biomasse
Le but étant d’obtenir la bonne qualification énergétique, en respectant rigoureusement les normes (Code Technique de la Construction)
Description du projet:
Il s’agit d’un bâtiment avec une superficie constructible total de 714 m², destiné à un usage en tant que cafeteria. Il sera situé dans la ville de Mérida.
Pour l’étude de la climatisation, j’ai utilise le logiciel CYPE, en obtenant le numéro de PAC de climatisation nécessaires, la qualification énergétique de chacun, et le
niveau de bruit.
L’étude d’illumination a été réalisée avec le logiciel Dialux, qui permet de réaliser une simulation en 3D pour obtenir l’intensité et la quantité de points de lumière
nécessaires.
L’étude de la Limitation de la demande énergétique et de la classification énergétique a été réalisé avec le logiciel Calener, qui permet d’analyser en 3D le bâtiment et la
composition des matériaux utilisés pour les façades et les planchers.
L’objet de l’étude Solaire thermique était la réalisation du dessin thermique et le calcul des prestations énergétiques pour l’installation de l’eau chaude sanitaire.
Ainsi j’ai réalisée le calcul des ombres provoquées par d'autres édifices et types, situation, et quantités des panneaux solaires nécessaires.
Comme biomasse, j’ai utilisé les « pellets » pour leurs multiples avantages, comme la manœuvrabilité de la biomasse grâce à sa petite taille (3-4cm long) ils sont
inoffensifs pour la santé, et donnent une deuxième vie à ce déchet, en évitant la coupe superflue d'arbres.
LOCAL CAFETERIA
PROJET MASTER EFFICACITE ENERGETIQUE DES BATIMENTS Mérida / Décembre 2010
14
15
Qualification Energétique
Caractéristiques du Pellets
Zone climatique
Plan des ombres
CONSTRUCTION DE 16 LOGEMENTS
16 LOGEMENT AGENCE BRUNET A&A Châtellerault / Avril 2012
Phase APD
Mission:
Réalisation des rendus et retouches des images.
Maître d’Ouvrage: Habitat 86
Maître d’Ouvre: Brunet Architectes et Associés
Description du projet:
La parcelle se situe à Châtellerault, dans le quartier de la plaine
d’Ozon. Il s’inscrit dans le cadre d’un renouvellement urbain de
quartier.
Actuellement le terrain n’est pas construit. Il est constitué d’une butte
engazonnée recouverte d’arbres.
Il est prévu de supprimer la butte et d’abattre les arbres situés sur la
parcelle.
Le projet se décompose en trois volumes principaux: Le premier situé
au Nord, est constitué de deux logements de type 5 en R+1.
Les deux autres volumes sont en R+3. L’un est positionné face aux
bâtiments situés à l’Ouest, l’autre volume situé plus au Sud. Les
façades seront en enduit blanc. L’entrée sera marquée par un mur en
béton matricé lasure teinte argile..
16
RDC
R+1
R+2
R+3
17
Façade Nord
Façade Ouest
Façade Sud
Façade Est
18
19
20
21
DESSINS DE MOBILIER
Description du projet:
Création de divers meubles pour une cliente avec laquelle ont été réalisés divers projets. Il s’agit d’un meuble tv pour le salon et d’un meuble lit.
J’ai proposé à la cliente divers types de meubles en plusieurs couleurs.
Mission:
Réalisation des rendus des images.
DIVERS MEUBLES AGENCE BRUNET A&A Nantes / Novembre 2011
Meuble lit Meuble tv
22
23
24
CNFPT PARIS (CENRE NATIONAL DE LA FONCTION PUBLIQUE TERRITORIALE)
AGENCE BRUNET A & A Paris / Septembre 2011
Façade Sud-ouest
RDC
Phases APS
Maître d’Ouvrage: CNFPT
Maître d’Oeuvre: Brunet Architecte et Associés
Description du projet:
Projet de restructuration de l’aile B (modification des cloisons et réhabilitation
intérieure, création des escaliers, etc) et divers travaux sur l’aile A du Centre
National de la Fonction Publique Territoriale à Paris.
Mission:
Modélisation de plans / réhabilitation d’infrastructures pour les handicapés /
dessin de banque d’accueil / modélisation d’images en 3D et réalisation des
rendus / Participation au permis de construire.
25
R+2
R+1 R+3
R+4
26
Réaménagement intérieur pour la salle
d’attente située au niveau R+2.
Actuellement, il existe une salle d’attente
vide avec des poteaux de recouvrement rond
et un sol en résine de différentes couleurs.
On a éliminé les recouvrements des poteaux
pour gagner de l’espace et réaménagé
l’intérieur pour créer une salle d’attente. On
a proposé différents types de matériaux et
de couleurs.
Images état actuel
Réaménagementdelasalled’attente
27
Adaptation et modification de la banque
d’accueil pour les personnes handicapés
Réaménagement entrée du niveau RDC
28
Création d’un ascenseur pour l’accès des handicapés / Elimination d’une partie des
escaliers intérieurs à cause de la création d’un escalier extérieur, sur la façade du
bâtiment / Restitution du sol en pvc / Remplacement du mobilier, de la banque
d’accueil, des armoires et des portes.
Réaménagement de la banque d’accueil niveau R-1
29
CONSTRUCTION D’UN IMMEUBLE
AGENCE BRUNET A & A Orvault / Février 2011
Description du projet:
Il s’agit de la construction d’un immeuble résidentiel à Orvault,
situé à côte d’une maison individuelle.
Sur le coté de la maison existante, il y a une fenêtre. Laquelle
aurait, suite à l’implantation du nouvelle immeuble, un important
niveau d’ombre. Ma mission était donc dans ce projet de faire une
simulation du niveau d’ombre produit par le nouvel immeuble, à
différents heures de la journée.
MAISON IDIVIDUELLE
EXISTANTE
MAISON IDIVIDUELLE
EXISTANTE
30
MATIN APRES-MIDI SOIR 31
RESTAURANT SYMPHORIEN
AGENCE BRUNET A & A Tours / Septembre 2011
Phases: ESQ et AVP
Maîtrise d ’ouvrage: Crous Orléans-Tours
Maître d’œuvre: Brunet Architecte et Associés
Description du projet:
Réaménagement de l’étage du bâtiment du restaurant universitaire
du Plat d’étain.
Actuellement c’est une salle avec des fermettes métalliques, que l’on
va conserver pour garder l’aspect industriel. Le sol sera remplacé par
du parquet pour lui donner un aspect plus chaleureux
32
33
HOTEL LE RICHEMONT
AGENCE BRUNET A & A Vannes / Février 2012
Phases: PRO
Maîtrise d ’ouvrage: Mr Savourel
Maître d’œuvre: Brunet Architecte et Associés
Description du projet:
Le projet, situé sur la commune de Vannes, prévoit la réhabilitation d’un hôtel et d’un
restaurant (attenant) à l’hôtel.
Le projet réutilise le langage architectural du bâtiment existant.
Missions:
Modélisation des plans, création de l’espace intérieur, des rendus et des retouches d’images.
Façade Nord
R+3
R+2
R+1
RDC34
Façade Ouest
Façade Sud
Chambre Type
Chambre TypeChambre Type
RestaurantEntrée
35
36
ECOLE DE CAVALERIE
AGENCE BRUNET A & A Saumur / Janvier 2012
Phases: ESQ
Maîtrise d’ouvrage: Service Infrastructure de la
Défense (EID d’Angers)
Maître d’œuvre: Brunet Architecte et Associés
Description du projet:
Transformation du bâtiment infirmier en bâtiment
d’hébergement des stagiaires de l’école de
cavalerie de Saumur.
Missions:
Création de l’espace intérieur et rendus. Couloir Avant Couloir Après
Salle de BainChambre Type 3Chambre Type 2Chambre Type 1
37
EXTENSIONS DES MAISONS
REV Habitat Avril / Aout 2012
Phases: DPC, EXE
J’ai travaillé pour la société de construction REV Habitat
pendant 5 mois durant lesquels j’ai réalisé plus de quarante
cinq plans de maçonnerie et permis de construire pour la
réalisation d’extension de maisons.
Voici quelques exemples de mes réalisations.
1. Construction d’une véranda pour Mr. Roulier Patrick à Bressuire.
Plan de situation Plan de masse
Façade Est
Façade Sud Façade Nord
Plan de masse
38
39
2. Construction d’une véranda pour M. Le Louet à Orvault
Plan de situation Plan de masse
40
41
EXTENSION ET RENOVATION D’UN
HABITATION EXISTANTE
EIRL Pierre BARRANGER Architecte / Longué-Jumelles / Octobre 2013
Phases: APS
Maîtrise d’ouvrage: SCI Truffaut
Maître d’œuvre: EIRL Pierre BARRANGER Architecte
Description du projet:
Le projet consiste en créer une extension d’un bâtiment de stockage de
matériel agricole.
Missions:
Réalisation des plans, réalisation de APS, rendus et retouches des images.
RDC
42
R+1
AVANT
APRES
AVANT
APRES
Insertion dans le site: Images 3D
43
PROJET DE MISE A L’IMAGE SELON
NOUVELLE CHARTE GRAPHIQUE
EIRL Pierre BARRANGER Architecte / Longué-Jumelles / Septembre 2013
Phases: NCI
Maîtrise d’ouvrage: Garage MIRVILLE
Maître d’œuvre: EIRL Pierre BARRANGER Architecte
Description du projet:
Extension d’un garage existante et nouvelle mise en charte graphique
Missions:
Réalisation des plans, rendus et retouches des images.
PLAN RDC PROJET
44
AVANT
45
APRES
EXTENSION D’UN CHAI VITICOLE
EIRL Pierre BARRANGER Architecte / Martigné- Briand / Mai 2013
Phases: DPC
Maîtrise d’ouvrage: Domaine de la Maison
Rouge
Maître d’œuvre: EIRL Pierre BARRANGER
Architecte
Description du projet:
Le projet consiste en créer l’extension d’un
bâtiment à usage de chai viticole au lieu dit
« La Maison Rouge »
Missions:
Réalisation des plans, réalisation du DPC, des
rendus et retouches des images.
PLAN DE MASSE PROJET
46
ETAT ACTUEL
47PROJET
PROJETS PERSONNELS
Rendus des images
Projet de réhabilitation d’une cuisine
48
49
50
51
Projet de maison individuelle
52
53
lorena.cubocasillas@gmail.com

Book d'Architecture Lorena Cubo Casillas

  • 1.
  • 2.
    « L’art del’architecture c’est la combinaison entre la technique et l’imagination » Réflexion Inspiration Compréhension Création Originalité SatisfactionRéalisation Technique Calcul Idée Etude Adaptation Conception Réhabilitation Rénovation
  • 3.
    SOMMAIRE 5 MAISONS HLMPhases PRO, EXE, DET/ Constructeur Econex P.3 PUB IRLANDAIS Phases ESQ, AVP, PRO/ Constructeur Econex P.5 TRANSFORMATION D’UN LOCAL EN BAR Projet fin d’Etudes / Diplôme d’Architecte Technique P.7 LOCAL CAFETERIA Projet Master Efficacité Energétique des Bâtiments P.14 CONSTRUCTION DE 16 LOGEMENTS Phase APD / Agence Brunet Architectes et Associés P.16 DESSINS DES MEUBLES Agence Brunet Architectes et Associés P.22 CNFPT PARIS Phase APS / Agence Brunet Architectes et Associés P.26 CONSTRUCTION D’UN IMMEUBLE Agence Brunet Architectes et Associés P.31 RESTAURANT SYMPHORIEN Phase ESQ, APV / Agence Brunet Architectes et Associés P.33 HOTEL LE RICHEMONT Phase PRO / Agence Brunet Architectes et Associés P.35 EXTENSIONS DES MAISONS Phase PDC, EXE / REV Habitat P.39 PROJETS PERSONNELS Rendus des images P.48 EXTENSION ET RENOVATION D’UN HABITATION Phase APS / EIRL Pierre BARRANGER P.42 PROJET DE MISE A L’IMAGE Phase NCI, EXE/ EIRL Pierre BARRANGER P.44 EXTENSION D’UN CHAI VITICOLE Phase DPC / EIRL Pierre BARRANGER P.46
  • 4.
    5 MAISONS HLM STAGEA ECONEX (CONSTRUCTEUR) Mérida / Juin-Septembre 2008 Directeur du projet / Angel Gonzalez Garcia / Architecte Tuteur du stage / Jose Antonio Cordero Avila / Architecte Technique Construction de cinq maisons HLM à San Pedro de Mérida (Espagne). Phases PRO, EXE, DET Missions: Planification, organisation et suivi quotidien du chantier pendant deux mois / Réalisation du devis du chantier / Implantation des limites séparatives de façade, implantation des escaliers, des poteaux et des réseaux d’assainissement des eaux usées / Vérification des poteaux contre le flambement / Vérification des armatures en acier pour les fondations / Vérification du bon fonctionnement des réseaux d’assainissement des eaux usées. Caractéristiques constructives: Réseaux d’assainissement des eaux usées Regard en brique, mortier de ciment, installations sanitaires individuelles, tuyaux en pvc (image1) 1 2 3 4 5 6 7 8 3
  • 5.
    Fondations Fondation projetée avecdes semelles et un mur de soutènement en béton (images 2,3) Structure Coffrages par planches en bois (Images 4,7) Planchers réalisés avec des poutrains portant préfabriqués, placés parallèlement les uns des autres tous les 0,6 m. Et des entrevous préfabriqués placés entre les poutrains (Images 5,6) Coffrage du premier plancher (Image 8) Déversement du béton sur le plancher (Image 9) Déversement du béton sur les poteaux (Image 10) 9 10 4
  • 6.
    PUB IRLANDAIS STAGE AECONEX (CONSTRUCTEUR) Mérida / Juin-Septembre 2008 Directeur du projet / Angel Gonzalez Garcia / Architecte Tuteur du stage / Jose Antonio Cordero Avila / Architecte Technique Phases ESQ, AVP, PRO. Description: Il s’agit de la démolition d’un vieux bâtiment situé à Mérida (Espagne) pour permettre la construction d’un pub Irlandais situé en plein centre ville. Le bar sera constitué par trois étages. Missions: Planification, organisation et suivi quotidien du chantier pendant quatre mois / Réalisation des fondations en suivant le règlement du béton structurel (EHE) / Calculs structurels et calcul de la quantité d’acier et du béton nécessaire pour la dalle de fondation en béton armé / réalisation de devis du chantier / Vérification des poteaux contre le flambement / Vérification des armatures en acier pour les fondations / Vérification du bon fonctionnement des réseaux d’assainissement des eaux usées / Vérification de la bonne installation de l’armature. 5 1 2
  • 7.
    Caractéristiques constructives: Fondation projetéavec une dalle de fondation en béton armé (Images 1 et 2). Le réseaux d’assainissement des eaux usées a été réalisé avec des regards en brique, mortier de ciment, installations sanitaires individuelles et tuyaux en pvc. Réalisation de la mise à terre (Images 3 et 4) avec un boucle a fond du fouille en câble de cuivre nu de 25 mm² de section sur une couverture acoustique. 3 4 6
  • 8.
    Directeur du projet/ Luis Gonzalez Jiménez / Architecte. Objet du projet: Adéquation et transformation d’un local existant pour la création d’un bar, dans le but d’obtenir le permis de construire et la licence municipale d’activité. Réalisation d’un Mémoire Descriptif (objet, antécédents, normes…) / Mémoire Constructif (démolitions, réseaux d’assainissement, maçonnerie, charpenterie, plomberie, installation électrique, système de téléphonie, climatisation, peintures et recouvrement, mobilier) / Mémoire Justificatif (normes et justification de règlements) / Etude basique de la sécurité et de la santé / Devis / Plans. Description du projet: Il s’agit d’un local brut en béton situé à Mérida (Espagne), ville déclarée patrimoine de l'humanité grâce à son intérêt historique et monumental, ce qui fait qu’il est vraiment difficile de réaliser n'importe quelle excavation. TRANSFORMATION D’UN LOCAL EN BAR PROJET FIN D’ETUDES / Diplôme d’Architecture Technique / 2009 7
  • 9.
    RDC état actuel R+2état reformé R+1 état reformé RDC état reformé R+2 état actuel R+1 état actuel 8
  • 10.
    Coupe longitudinale Façade latérale FaçadeprincipaleCoupe transversale 9 Caractéristiques du local existant: L’édifice dispose de trois étages, il existe une mezzanine entre le rez-de- chaussée et le premier étage, et une terrasse praticable au troisième étage. Le bâtiment est construit avec une structure en poteaux et poutres de béton armé, et un plancher unidirectionnel. Le mur extérieur est réalisé en brique massive perforée, lame d’air ventilé, isolement de polyuréthane et brique. Actions à réaliser: Démolition d’une partie du plancher du R+1 pour réaliser le creux pour l’ascenseur qui sera mis en place pour être en phase avec la loi d’accessibilité à des locaux publiques. Mise en adéquation de l’organisation des réseaux d’assainissement des eaux usées, réalisation de nouvelles cloisons, installation du système de plomberie, ventilation, électricité, système de téléphonie digitale, mobilier, décoration, finition intérieur et finition de la façade.
  • 11.
    PLANS D’ELECTRICITE Différents typesde circuit d'éclairage: N°1: Entrée et coté gauche RDC N°2: Milieu RDC N°3: Bar N°4: Façade principale N°5: Façade latérale N°6: Escalier et coté droite R+1 N°7: Milieu R+1 N°8: Système d’automatisation RDC R+1 DETAILS TECHNIQUES R+2 10
  • 12.
  • 13.
    12 PLANS DE PLOMBERIEDETAILSCONSTRUCTIVES R+2 RDC R+1
  • 14.
    FACADE VENTILE COMPOSITION DUMUR: 1) Finition du plâtre (1,5 cm) 2) Brique (7cm) 3) Lame d’air ventile 4) Panneau phénolique 5) Brique (24 cm) 6) Vis de fixation 7) isolation thermique de polystyrène MUR EXTERIEUR Le mur extérieur est réalisé avec une façade ventilée type modèle Tespa Meteon avec des panneaux phénoliques de 2500 mm x 1500 mm, couleur marron foncée. 13
  • 15.
    Objet du projet: L’objetde ce projet était de réaliser le dessin, les calculs des installations énergétiques et les devis suivants: ⁻ Climatisation ⁻ Illumination ⁻ Limitation de la demande énergétique et qualification énergétique ⁻ Solaire thermique ⁻ Biomasse Le but étant d’obtenir la bonne qualification énergétique, en respectant rigoureusement les normes (Code Technique de la Construction) Description du projet: Il s’agit d’un bâtiment avec une superficie constructible total de 714 m², destiné à un usage en tant que cafeteria. Il sera situé dans la ville de Mérida. Pour l’étude de la climatisation, j’ai utilise le logiciel CYPE, en obtenant le numéro de PAC de climatisation nécessaires, la qualification énergétique de chacun, et le niveau de bruit. L’étude d’illumination a été réalisée avec le logiciel Dialux, qui permet de réaliser une simulation en 3D pour obtenir l’intensité et la quantité de points de lumière nécessaires. L’étude de la Limitation de la demande énergétique et de la classification énergétique a été réalisé avec le logiciel Calener, qui permet d’analyser en 3D le bâtiment et la composition des matériaux utilisés pour les façades et les planchers. L’objet de l’étude Solaire thermique était la réalisation du dessin thermique et le calcul des prestations énergétiques pour l’installation de l’eau chaude sanitaire. Ainsi j’ai réalisée le calcul des ombres provoquées par d'autres édifices et types, situation, et quantités des panneaux solaires nécessaires. Comme biomasse, j’ai utilisé les « pellets » pour leurs multiples avantages, comme la manœuvrabilité de la biomasse grâce à sa petite taille (3-4cm long) ils sont inoffensifs pour la santé, et donnent une deuxième vie à ce déchet, en évitant la coupe superflue d'arbres. LOCAL CAFETERIA PROJET MASTER EFFICACITE ENERGETIQUE DES BATIMENTS Mérida / Décembre 2010 14
  • 16.
    15 Qualification Energétique Caractéristiques duPellets Zone climatique Plan des ombres
  • 17.
    CONSTRUCTION DE 16LOGEMENTS 16 LOGEMENT AGENCE BRUNET A&A Châtellerault / Avril 2012 Phase APD Mission: Réalisation des rendus et retouches des images. Maître d’Ouvrage: Habitat 86 Maître d’Ouvre: Brunet Architectes et Associés Description du projet: La parcelle se situe à Châtellerault, dans le quartier de la plaine d’Ozon. Il s’inscrit dans le cadre d’un renouvellement urbain de quartier. Actuellement le terrain n’est pas construit. Il est constitué d’une butte engazonnée recouverte d’arbres. Il est prévu de supprimer la butte et d’abattre les arbres situés sur la parcelle. Le projet se décompose en trois volumes principaux: Le premier situé au Nord, est constitué de deux logements de type 5 en R+1. Les deux autres volumes sont en R+3. L’un est positionné face aux bâtiments situés à l’Ouest, l’autre volume situé plus au Sud. Les façades seront en enduit blanc. L’entrée sera marquée par un mur en béton matricé lasure teinte argile.. 16
  • 18.
  • 19.
  • 20.
  • 21.
  • 22.
  • 23.
    DESSINS DE MOBILIER Descriptiondu projet: Création de divers meubles pour une cliente avec laquelle ont été réalisés divers projets. Il s’agit d’un meuble tv pour le salon et d’un meuble lit. J’ai proposé à la cliente divers types de meubles en plusieurs couleurs. Mission: Réalisation des rendus des images. DIVERS MEUBLES AGENCE BRUNET A&A Nantes / Novembre 2011 Meuble lit Meuble tv 22
  • 24.
  • 25.
  • 26.
    CNFPT PARIS (CENRENATIONAL DE LA FONCTION PUBLIQUE TERRITORIALE) AGENCE BRUNET A & A Paris / Septembre 2011 Façade Sud-ouest RDC Phases APS Maître d’Ouvrage: CNFPT Maître d’Oeuvre: Brunet Architecte et Associés Description du projet: Projet de restructuration de l’aile B (modification des cloisons et réhabilitation intérieure, création des escaliers, etc) et divers travaux sur l’aile A du Centre National de la Fonction Publique Territoriale à Paris. Mission: Modélisation de plans / réhabilitation d’infrastructures pour les handicapés / dessin de banque d’accueil / modélisation d’images en 3D et réalisation des rendus / Participation au permis de construire. 25
  • 27.
  • 28.
    Réaménagement intérieur pourla salle d’attente située au niveau R+2. Actuellement, il existe une salle d’attente vide avec des poteaux de recouvrement rond et un sol en résine de différentes couleurs. On a éliminé les recouvrements des poteaux pour gagner de l’espace et réaménagé l’intérieur pour créer une salle d’attente. On a proposé différents types de matériaux et de couleurs. Images état actuel Réaménagementdelasalled’attente 27
  • 29.
    Adaptation et modificationde la banque d’accueil pour les personnes handicapés Réaménagement entrée du niveau RDC 28
  • 30.
    Création d’un ascenseurpour l’accès des handicapés / Elimination d’une partie des escaliers intérieurs à cause de la création d’un escalier extérieur, sur la façade du bâtiment / Restitution du sol en pvc / Remplacement du mobilier, de la banque d’accueil, des armoires et des portes. Réaménagement de la banque d’accueil niveau R-1 29
  • 31.
    CONSTRUCTION D’UN IMMEUBLE AGENCEBRUNET A & A Orvault / Février 2011 Description du projet: Il s’agit de la construction d’un immeuble résidentiel à Orvault, situé à côte d’une maison individuelle. Sur le coté de la maison existante, il y a une fenêtre. Laquelle aurait, suite à l’implantation du nouvelle immeuble, un important niveau d’ombre. Ma mission était donc dans ce projet de faire une simulation du niveau d’ombre produit par le nouvel immeuble, à différents heures de la journée. MAISON IDIVIDUELLE EXISTANTE MAISON IDIVIDUELLE EXISTANTE 30
  • 32.
  • 33.
    RESTAURANT SYMPHORIEN AGENCE BRUNETA & A Tours / Septembre 2011 Phases: ESQ et AVP Maîtrise d ’ouvrage: Crous Orléans-Tours Maître d’œuvre: Brunet Architecte et Associés Description du projet: Réaménagement de l’étage du bâtiment du restaurant universitaire du Plat d’étain. Actuellement c’est une salle avec des fermettes métalliques, que l’on va conserver pour garder l’aspect industriel. Le sol sera remplacé par du parquet pour lui donner un aspect plus chaleureux 32
  • 34.
  • 35.
    HOTEL LE RICHEMONT AGENCEBRUNET A & A Vannes / Février 2012 Phases: PRO Maîtrise d ’ouvrage: Mr Savourel Maître d’œuvre: Brunet Architecte et Associés Description du projet: Le projet, situé sur la commune de Vannes, prévoit la réhabilitation d’un hôtel et d’un restaurant (attenant) à l’hôtel. Le projet réutilise le langage architectural du bâtiment existant. Missions: Modélisation des plans, création de l’espace intérieur, des rendus et des retouches d’images. Façade Nord R+3 R+2 R+1 RDC34
  • 36.
    Façade Ouest Façade Sud ChambreType Chambre TypeChambre Type RestaurantEntrée 35
  • 37.
  • 38.
    ECOLE DE CAVALERIE AGENCEBRUNET A & A Saumur / Janvier 2012 Phases: ESQ Maîtrise d’ouvrage: Service Infrastructure de la Défense (EID d’Angers) Maître d’œuvre: Brunet Architecte et Associés Description du projet: Transformation du bâtiment infirmier en bâtiment d’hébergement des stagiaires de l’école de cavalerie de Saumur. Missions: Création de l’espace intérieur et rendus. Couloir Avant Couloir Après Salle de BainChambre Type 3Chambre Type 2Chambre Type 1 37
  • 39.
    EXTENSIONS DES MAISONS REVHabitat Avril / Aout 2012 Phases: DPC, EXE J’ai travaillé pour la société de construction REV Habitat pendant 5 mois durant lesquels j’ai réalisé plus de quarante cinq plans de maçonnerie et permis de construire pour la réalisation d’extension de maisons. Voici quelques exemples de mes réalisations. 1. Construction d’une véranda pour Mr. Roulier Patrick à Bressuire. Plan de situation Plan de masse Façade Est Façade Sud Façade Nord Plan de masse 38
  • 40.
  • 41.
    2. Construction d’unevéranda pour M. Le Louet à Orvault Plan de situation Plan de masse 40
  • 42.
  • 43.
    EXTENSION ET RENOVATIOND’UN HABITATION EXISTANTE EIRL Pierre BARRANGER Architecte / Longué-Jumelles / Octobre 2013 Phases: APS Maîtrise d’ouvrage: SCI Truffaut Maître d’œuvre: EIRL Pierre BARRANGER Architecte Description du projet: Le projet consiste en créer une extension d’un bâtiment de stockage de matériel agricole. Missions: Réalisation des plans, réalisation de APS, rendus et retouches des images. RDC 42 R+1
  • 44.
  • 45.
    PROJET DE MISEA L’IMAGE SELON NOUVELLE CHARTE GRAPHIQUE EIRL Pierre BARRANGER Architecte / Longué-Jumelles / Septembre 2013 Phases: NCI Maîtrise d’ouvrage: Garage MIRVILLE Maître d’œuvre: EIRL Pierre BARRANGER Architecte Description du projet: Extension d’un garage existante et nouvelle mise en charte graphique Missions: Réalisation des plans, rendus et retouches des images. PLAN RDC PROJET 44
  • 46.
  • 47.
    EXTENSION D’UN CHAIVITICOLE EIRL Pierre BARRANGER Architecte / Martigné- Briand / Mai 2013 Phases: DPC Maîtrise d’ouvrage: Domaine de la Maison Rouge Maître d’œuvre: EIRL Pierre BARRANGER Architecte Description du projet: Le projet consiste en créer l’extension d’un bâtiment à usage de chai viticole au lieu dit « La Maison Rouge » Missions: Réalisation des plans, réalisation du DPC, des rendus et retouches des images. PLAN DE MASSE PROJET 46
  • 48.
  • 49.
    PROJETS PERSONNELS Rendus desimages Projet de réhabilitation d’une cuisine 48
  • 50.
  • 51.
  • 52.
  • 53.
    Projet de maisonindividuelle 52
  • 54.
  • 55.