L/O/G/O
Réalisé par :
Halima FERGANI
Encadré par :
Mr. SAAD
ECOLE NATIONALE SUPERIEURE D’ELECTRICITE ET DE MECANIQUE
Département Génie Electrique
www.themegallery.com
Plan
Introduction
Principe de l’interphonie
Normes & réglementations
Architecture de déploiement4
1
2
3
5 Exemple de mise en œuvre
www.themegallery.com
Introduction
Application
du courant
faible
Interphone &
Vidéophone
Automatisme
de portail
Détecteur
d'incendie
Vidéo
surveillance
Réseau
informatique
Téléphonie
Réseau VDI
www.themegallery.com
Introduction
Permet de dialoguer avec le visiteur
avant de commander l’ouverture de
la porte ou du portail.
Interphone:
www.themegallery.com
Introduction
Offre la possibilité de dialoguer avec
le visiteur et de le voir grâce à une
caméra à l’extérieur et à un moniteur
à l’intérieur.
Vidéophone:
www.themegallery.com
Plan
Introduction
Principe de l’interphonie
Normes & réglementations
Architecture de déploiement4
1
2
3
5 Exemple de mise en œuvre
www.themegallery.com
Principe de l’interphonie
Contrôler d’accès
Par l’intermédiaire de microphones et de haut-parleurs,
les interlocuteurs situés à l’extérieur et à l’intérieur du
bâtiment peuvent s’entendre et se parler.
www.themegallery.com
Principe de l’interphonie
Réseau:
Interphone
Une platine de rue
Un poste intérieur
Alimentation
www.themegallery.com
Principe de l’interphonie
Réseau:
La platine de rue (boîtier) et le combiné intérieur peuvent
communiquer via deux systèmes de transmission :
le système sans fil (par le biais d’ondes radio).
le système filaire (par l’intermédiaire de fils).
www.themegallery.com
Principe de l’interphonie
Réseau:
• Permettent de transformer facilement une sonnette, ou une
installation audio en installation vidéo sans changer de câble
• Sur le même modèle, on utilise un câblage 1 + n fils pour
disposer de n platines intérieures
Systèmes
à deux
fils
• Quoique plus lourd à mettre en œuvre, il offre davantage de
souplesse et de possibilités d’évolution
• On utilise 4 + n fils selon le nombre de postes intérieurs (n).
Câblage
à quatre
ou cinq
fils
www.themegallery.com
Principe de l’interphonie
Réseau:
• Il permet de faire passer l’audio et la vidéo en numérique et de
réduire le nombre de câbles nécessaires dans les installations à
plusieurs combinés intérieurs
Câblage
en bus
• son principal intérêt est de faciliter le raccordement sur
l’installation TV
• permet également de séparer les câblages audio et vidéo.
• Il est facile de remplacer la mini-caméra du portier par une
véritable caméra et d’injecter le signal dans le système de
vidéosurveillance de la propriété
Câble
coaxial
www.themegallery.com
il permet une conversation en simultané et
automatique entre deux interlocuteurs, sans
commutation manuelle parole / écoute.
Interphone full-duplex
Principe de l’interphonie
Réseau:
www.themegallery.com
Principe de l’interphonie
Réseau:
Interphone half-duplex
www.themegallery.com
Plan
Introduction
Principe de l’interphonie
Normes & réglementations
Architecture de déploiement4
1
2
3
5 Exemple de mise en œuvre
www.themegallery.com
Normes & réglementations
Norme Française :
En France, l’interphone fait partie des systèmes
électroniques définis par la norme
AFNOR NF X50-785.
Elle définit les règles d’accessibilité des appareils
d’interphonie dans un bâtiment d’habitation
collectif.
www.themegallery.com
Normes & réglementations
Norme Française :
 Tout dispositif visant à permettre ou restreindre
l’accès au bâtiment ou à se signaler à un occupant
doit pouvoir être repéré, atteint et utilisé par une
personne handicapée ;
Règles d’accessibilité des appareils d’interphonie
dans un bâtiment d’habitation collectif.
 Le dispositif de communication devra permettre
à un occupant de visualiser ses visiteurs.
 Lorsqu’un dispositif permet une communication
entre visiteur et occupant, il doit permettre à une
personne handicapée occupante d’entrer en
communication avec le visiteur ;
 Le fonctionnement des dispositifs d’accès doit
être accompagné d’informations sonores et
visuelles ;
www.themegallery.com
Plan
Introduction
Principe de l’interphonie
Normes & réglementations
Architecture de déploiement4
1
2
3
5 Exemple de mise en œuvre
www.themegallery.com
Architecture de déploiement
Système à 2 fils:
Le système d’interphones 1+1 fils
permet d’obtenir les services de
conversation, d’appel et ouvre-porte
d’une installation normale de portier
électrique, avec deux fils seulement
dans la colonne montante
www.themegallery.com
Architecture de déploiement
Câblage à 4 fils :
Cas d’immeuble à 2 départements :
www.themegallery.com
Architecture de déploiement
Câblage à 4 fils :
Cas d’immeuble à plusieurs départements :
www.themegallery.com
Architecture de déploiement
Le cas des portiers supplémentaires :
www.themegallery.com
Plan
Introduction
Principe de l’interphonie
Normes & réglementations
Architecture de déploiement4
1
2
3
5 Exemple de mise en œuvre
www.themegallery.com
Exemple de mise en œuvre
Préparer le chantier
• En remplacement d'une sonnette,
démontez le carillon en prenant soin de
repérer ses 2 fils d'alimentation
• Selon le modèle, ils sont branchés sur
un transfo intégré ou proviennent d'un
transfo séparé.
• Repérez de même les 2 fils de liaison
du bouton de sonnette.
• Prolongez les 4 fils jusqu'à
l'emplacement du combiné
www.themegallery.com
Exemple de mise en œuvre
Préparer le chantier
• 60 cm sous une zone
piétonnière,
• 85 à 100 cm, sous une voie
carrossable.
www.themegallery.com
Exemple de mise en œuvre
Préparer le chantier
www.themegallery.com
Exemple de mise en œuvre
Poser la platine de rue
www.themegallery.com
Exemple de mise en œuvre
Poser le combiné intérieur :
www.themegallery.com
Exemple de mise en œuvre
Coût d’installation:
Main-d’œuvre, garantie et matériel compris, il faut
compter entre 500 € et 600 € pour une installation en
province, et le double en région parisienne, soit de
1200 € à 2000 €.
www.themegallery.com
Exemple de mise en œuvre
Coût d’installation:
Au Maroc pour une installation collective, comme
exemple « Interphone conventionnel Stadio Plus
"GOLMAR" pour 10 logements » :
Code interne Désignation Quantité Unité Prix
unitaire
Prix total
mt35aia010b Tube courbable en PVC, annelé, de couleur noir, de 20 mm de diamètre nominal,
pour canalisation encastrée dans un ouvrage de maçonnerie (parois et plafonds).
Résistance à la compression 320 N, résistance à l'impact 1 joule, température de
travail -5°C jusqu'à 60°C, avec degré de protection IP 545 selon NF EN 60529,
non propagateur de la flamme. Selon NF EN 61386-1 et NF EN 61386-22.
17,000 m 4,07 69,19
mt40pga010 Câble, modèle M-8C "GOLMAR", constitué de conducteurs de cuivre flexible de
8x0,22 mm², avec isolation en PVC et gaine extérieure en PVC blanc.
16,000 m 6,95 111,20
mt40pea030c Câble parallèle constitué de conducteurs de cuivre de 2x1,0 mm². 7,000 m 12,39 86,73
mt40pge030f Kit d'interphone, série Stadio Plus, modèle 4210/AL "GOLMAR", composé de
module compact pour audio avec 10 boutons-poussoirs d'appel sur deux
colonnes, module de son, fermeture supérieure et inférieure, boîte à encastrer
source d'alimentation et 10 téléphones Platea T-700 avec appel électronique.
1,000 U 5.460,88 5.460,88
mt40pga062b Visière, modèle 705/AL "GOLMAR", pour module compact série Stadio Plus. 1,000 U 491,95 491,95
mt40pga050a Ouvre-portes électrique de courant alternatif, modèle CV-14 "GOLMAR". 1,000 U 277,03 277,03
mt40www040 Produits complémentaires pour installations audiovisuelles. 3,000 U 18,14 54,42
mo002 Compagnon professionnel III/CP2 électricien. 16,614 h 44,51 739,49
mo100 Ouvrier professionnel II/OP électricien. 16,614 h 38,15 633,82
Moyens auxiliaires 2,000 % 7.924,71 158,49
Coûts indirects 3,000 % 8.083,20 242,50
Coût d'entretien décennal: 4.412,62Dhs les 10 premières années. Montant
total HT:
8.325,70
www.themegallery.com
L/O/G/O

Interphonie & vidéophonie, Halima Fergani

  • 1.
    L/O/G/O Réalisé par : HalimaFERGANI Encadré par : Mr. SAAD ECOLE NATIONALE SUPERIEURE D’ELECTRICITE ET DE MECANIQUE Département Génie Electrique
  • 2.
    www.themegallery.com Plan Introduction Principe de l’interphonie Normes& réglementations Architecture de déploiement4 1 2 3 5 Exemple de mise en œuvre
  • 3.
    www.themegallery.com Introduction Application du courant faible Interphone & Vidéophone Automatisme deportail Détecteur d'incendie Vidéo surveillance Réseau informatique Téléphonie Réseau VDI
  • 4.
    www.themegallery.com Introduction Permet de dialogueravec le visiteur avant de commander l’ouverture de la porte ou du portail. Interphone:
  • 5.
    www.themegallery.com Introduction Offre la possibilitéde dialoguer avec le visiteur et de le voir grâce à une caméra à l’extérieur et à un moniteur à l’intérieur. Vidéophone:
  • 6.
    www.themegallery.com Plan Introduction Principe de l’interphonie Normes& réglementations Architecture de déploiement4 1 2 3 5 Exemple de mise en œuvre
  • 7.
    www.themegallery.com Principe de l’interphonie Contrôlerd’accès Par l’intermédiaire de microphones et de haut-parleurs, les interlocuteurs situés à l’extérieur et à l’intérieur du bâtiment peuvent s’entendre et se parler.
  • 8.
    www.themegallery.com Principe de l’interphonie Réseau: Interphone Uneplatine de rue Un poste intérieur Alimentation
  • 9.
    www.themegallery.com Principe de l’interphonie Réseau: Laplatine de rue (boîtier) et le combiné intérieur peuvent communiquer via deux systèmes de transmission : le système sans fil (par le biais d’ondes radio). le système filaire (par l’intermédiaire de fils).
  • 10.
    www.themegallery.com Principe de l’interphonie Réseau: •Permettent de transformer facilement une sonnette, ou une installation audio en installation vidéo sans changer de câble • Sur le même modèle, on utilise un câblage 1 + n fils pour disposer de n platines intérieures Systèmes à deux fils • Quoique plus lourd à mettre en œuvre, il offre davantage de souplesse et de possibilités d’évolution • On utilise 4 + n fils selon le nombre de postes intérieurs (n). Câblage à quatre ou cinq fils
  • 11.
    www.themegallery.com Principe de l’interphonie Réseau: •Il permet de faire passer l’audio et la vidéo en numérique et de réduire le nombre de câbles nécessaires dans les installations à plusieurs combinés intérieurs Câblage en bus • son principal intérêt est de faciliter le raccordement sur l’installation TV • permet également de séparer les câblages audio et vidéo. • Il est facile de remplacer la mini-caméra du portier par une véritable caméra et d’injecter le signal dans le système de vidéosurveillance de la propriété Câble coaxial
  • 12.
    www.themegallery.com il permet uneconversation en simultané et automatique entre deux interlocuteurs, sans commutation manuelle parole / écoute. Interphone full-duplex Principe de l’interphonie Réseau:
  • 13.
  • 14.
    www.themegallery.com Plan Introduction Principe de l’interphonie Normes& réglementations Architecture de déploiement4 1 2 3 5 Exemple de mise en œuvre
  • 15.
    www.themegallery.com Normes & réglementations NormeFrançaise : En France, l’interphone fait partie des systèmes électroniques définis par la norme AFNOR NF X50-785. Elle définit les règles d’accessibilité des appareils d’interphonie dans un bâtiment d’habitation collectif.
  • 16.
    www.themegallery.com Normes & réglementations NormeFrançaise :  Tout dispositif visant à permettre ou restreindre l’accès au bâtiment ou à se signaler à un occupant doit pouvoir être repéré, atteint et utilisé par une personne handicapée ; Règles d’accessibilité des appareils d’interphonie dans un bâtiment d’habitation collectif.  Le dispositif de communication devra permettre à un occupant de visualiser ses visiteurs.  Lorsqu’un dispositif permet une communication entre visiteur et occupant, il doit permettre à une personne handicapée occupante d’entrer en communication avec le visiteur ;  Le fonctionnement des dispositifs d’accès doit être accompagné d’informations sonores et visuelles ;
  • 17.
    www.themegallery.com Plan Introduction Principe de l’interphonie Normes& réglementations Architecture de déploiement4 1 2 3 5 Exemple de mise en œuvre
  • 18.
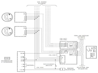
    www.themegallery.com Architecture de déploiement Systèmeà 2 fils: Le système d’interphones 1+1 fils permet d’obtenir les services de conversation, d’appel et ouvre-porte d’une installation normale de portier électrique, avec deux fils seulement dans la colonne montante
  • 19.
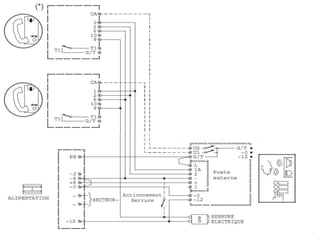
    www.themegallery.com Architecture de déploiement Câblageà 4 fils : Cas d’immeuble à 2 départements :
  • 20.
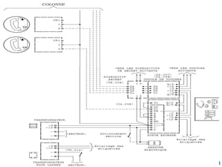
    www.themegallery.com Architecture de déploiement Câblageà 4 fils : Cas d’immeuble à plusieurs départements :
  • 21.
    www.themegallery.com Architecture de déploiement Lecas des portiers supplémentaires :
  • 22.
    www.themegallery.com Plan Introduction Principe de l’interphonie Normes& réglementations Architecture de déploiement4 1 2 3 5 Exemple de mise en œuvre
  • 23.
    www.themegallery.com Exemple de miseen œuvre Préparer le chantier • En remplacement d'une sonnette, démontez le carillon en prenant soin de repérer ses 2 fils d'alimentation • Selon le modèle, ils sont branchés sur un transfo intégré ou proviennent d'un transfo séparé. • Repérez de même les 2 fils de liaison du bouton de sonnette. • Prolongez les 4 fils jusqu'à l'emplacement du combiné
  • 24.
    www.themegallery.com Exemple de miseen œuvre Préparer le chantier • 60 cm sous une zone piétonnière, • 85 à 100 cm, sous une voie carrossable.
  • 25.
    www.themegallery.com Exemple de miseen œuvre Préparer le chantier
  • 26.
    www.themegallery.com Exemple de miseen œuvre Poser la platine de rue
  • 27.
    www.themegallery.com Exemple de miseen œuvre Poser le combiné intérieur :
  • 28.
    www.themegallery.com Exemple de miseen œuvre Coût d’installation: Main-d’œuvre, garantie et matériel compris, il faut compter entre 500 € et 600 € pour une installation en province, et le double en région parisienne, soit de 1200 € à 2000 €.
  • 29.
    www.themegallery.com Exemple de miseen œuvre Coût d’installation: Au Maroc pour une installation collective, comme exemple « Interphone conventionnel Stadio Plus "GOLMAR" pour 10 logements » : Code interne Désignation Quantité Unité Prix unitaire Prix total mt35aia010b Tube courbable en PVC, annelé, de couleur noir, de 20 mm de diamètre nominal, pour canalisation encastrée dans un ouvrage de maçonnerie (parois et plafonds). Résistance à la compression 320 N, résistance à l'impact 1 joule, température de travail -5°C jusqu'à 60°C, avec degré de protection IP 545 selon NF EN 60529, non propagateur de la flamme. Selon NF EN 61386-1 et NF EN 61386-22. 17,000 m 4,07 69,19 mt40pga010 Câble, modèle M-8C "GOLMAR", constitué de conducteurs de cuivre flexible de 8x0,22 mm², avec isolation en PVC et gaine extérieure en PVC blanc. 16,000 m 6,95 111,20 mt40pea030c Câble parallèle constitué de conducteurs de cuivre de 2x1,0 mm². 7,000 m 12,39 86,73 mt40pge030f Kit d'interphone, série Stadio Plus, modèle 4210/AL "GOLMAR", composé de module compact pour audio avec 10 boutons-poussoirs d'appel sur deux colonnes, module de son, fermeture supérieure et inférieure, boîte à encastrer source d'alimentation et 10 téléphones Platea T-700 avec appel électronique. 1,000 U 5.460,88 5.460,88 mt40pga062b Visière, modèle 705/AL "GOLMAR", pour module compact série Stadio Plus. 1,000 U 491,95 491,95 mt40pga050a Ouvre-portes électrique de courant alternatif, modèle CV-14 "GOLMAR". 1,000 U 277,03 277,03 mt40www040 Produits complémentaires pour installations audiovisuelles. 3,000 U 18,14 54,42 mo002 Compagnon professionnel III/CP2 électricien. 16,614 h 44,51 739,49 mo100 Ouvrier professionnel II/OP électricien. 16,614 h 38,15 633,82 Moyens auxiliaires 2,000 % 7.924,71 158,49 Coûts indirects 3,000 % 8.083,20 242,50 Coût d'entretien décennal: 4.412,62Dhs les 10 premières années. Montant total HT: 8.325,70
  • 30.
  • 31.

Notes de l'éditeur

  • #4 L'expression "courant faible" désigne l'ensemble des installations électriques utilisant des courants de très faible intensité pour véhiculer de l'information au travers d'un réseau électrique ou informatique. Ce terme désigne un ensemble des activités parmi les : * Interphone * Vidéophone
  • #5 ou portier audio.
  • #6 ou portier vidéo.
  • #8 Le principe de l’interphone est de signaler la présence d’un visiteur à la porte d’une maison ou d’un immeuble. * Chez soi, il est donc possible de savoir qui sonne à la porte et décider ou pas de laisser entrer le visiteur.
  • #9 Un interphone est, en quelque sorte, un téléphone fonctionnant sur une courte distance. Il est en général composé de : •une platine de rue : Encastrée ou intégrée en saillie dans le mur d’enceinte, dans le pilier du portail, directement en façade de la maison ou dans le hall d’un immeuble. Elle est au minimum constituée d’un bouton-poussoir, d’un micro, d’un haut-parleur et éventuellement d’une caméra •un poste intérieur : Placé généralement dans le hall d’entrée ou dans la cuisine, Il se compose d’un combiné fixe ou mobile, d’une sonnerie, d’un ou plusieurs boutons de commande et éventuellement d’un moniteur vidéo.
  • #10 La platine de rue (boîtier) et le combiné intérieur peuvent communiquer via deux systèmes de transmission : le système sans fil (par le biais d’ondes radio). L’interphone sans fil est apprécié pour sa facilité d’installation, mais ce système reste moins performant. le système filaire (par l’intermédiaire de fils) ; En parallèle, l’interphone filaire offre des performances plus élevées, cependant, il implique aussi des travaux plus conséquents, et donc un coût d’installation plus élevé.
  • #11 Les différentes solutions disponibles sont les suivantes : Systèmes à deux fils. Permettent de transformer facilement une sonnette, un carillon ou une installation audio en installation vidéo sans changer de câble. Sur le même modèle, on utilise un câblage 1 + n fils pour disposer de n platines intérieures. Câblage à quatre ou cinq fils. Quoique plus lourd à mettre en œuvre, il offre davantage de souplesse et de possibilités d’évolution. On utilise 4 + n fils selon le nombre de postes intérieurs (n). Câblage en bus. Avec ou sans polarité, ce câblage est de plus en plus utilisé par les constructeurs. Il permet de faire passer l’audio et la vidéo en numérique et de réduire le nombre de câbles nécessaires dans les installations à plusieurs combinés intérieurs. Il présente le désavantage de compliquer, voire d’empêcher le renvoi vers les téléphones ou les téléviseurs, car la plupart des constructeurs utilisent un codage propriétaire. Câble coaxial. Utilisé par certains fabricants pour faire transiter le signal vidéo, son principal intérêt est de faciliter le raccordement sur l’installation TV. Cela permet également de séparer les câblages audio et vidéo. Il est de la sorte facile de remplacer la mini-caméra du portier par une véritable caméra et d’injecter le signal dans le système de vidéosurveillance de la propriété. Câblage VDI. Une nouvelle génération d’équipements apparaît sur le marché. Il s’agit de solutions exploitant les technologies IP, que ce soit pour l’image ou pour le son. Une caméra IP intégrée dans la platine de rue et un module de voix sur IP suffisent pour mettre en œuvre un système évolutif, facile à intégrer dans un projet de maison communicante.
  • #12 Les différentes solutions disponibles sont les suivantes : Systèmes à deux fils. Permettent de transformer facilement une sonnette, un carillon ou une installation audio en installation vidéo sans changer de câble. Sur le même modèle, on utilise un câblage 1 + n fils pour disposer de n platines intérieures. Câblage à quatre ou cinq fils. Quoique plus lourd à mettre en œuvre, il offre davantage de souplesse et de possibilités d’évolution. On utilise 4 + n fils selon le nombre de postes intérieurs (n). Câblage en bus. Avec ou sans polarité, ce câblage est de plus en plus utilisé par les constructeurs. Il permet de faire passer l’audio et la vidéo en numérique et de réduire le nombre de câbles nécessaires dans les installations à plusieurs combinés intérieurs. Il présente le désavantage de compliquer, voire d’empêcher le renvoi vers les téléphones ou les téléviseurs, car la plupart des constructeurs utilisent un codage propriétaire. Câble coaxial. Utilisé par certains fabricants pour faire transiter le signal vidéo, son principal intérêt est de faciliter le raccordement sur l’installation TV. Cela permet également de séparer les câblages audio et vidéo. Il est de la sorte facile de remplacer la mini-caméra du portier par une véritable caméra et d’injecter le signal dans le système de vidéosurveillance de la propriété. Câblage VDI. Une nouvelle génération d’équipements apparaît sur le marché. Il s’agit de solutions exploitant les technologies IP, que ce soit pour l’image ou pour le son. Une caméra IP intégrée dans la platine de rue et un module de voix sur IP suffisent pour mettre en œuvre un système évolutif, facile à intégrer dans un projet de maison communicante.
  • #13 C’est la modélisation de la carte électronique des deus composant de l’interphone réalisée de la manière traditionnelle : la plaque de rue et le poste d’intérieur, chaque une comporte un micro et un haut parleur et ils sont liés par un câble de liaison. * Cet interphone est de type bidirectionnel, ou full-duplex : il permet une conversation en simultané et automatique entre deux interlocuteurs, sans commutation manuelle parole / écoute.
  • #14 Il faut appuier sur une touche pour avoir droit à parler et la personne de l’autre coté doit écouter seulement. * Interphone half-duplex (un cause pendant que l'autre attend patiemment).
  • #17 dernièrement de nouvelles exigences sont apportées par cette norme en tenant compte des personnes handicapées * Les systèmes de contrôle d’accès ou de communication entre visiteurs et occupants ainsi que les dispositifs de commande manuelle doivent répondre à de nouvelles exigences : Règles d’accessibilité des appareils d’interphonie dans un bâtiment d’habitation collectif. En tenant compte des personnes handicapes.
  • #19 Le système d’interphones 1+1 fils permet d’obtenir les services de conversation, d’appel et ouvre-porte d’une installation normale de portier électrique, avec deux fils seulement dans la colonne montante : 1 commun + 1 individuel pour chaque appareil. Le poste externe est alimenté à l’aide de deux fils seulement, par un transformateur 12V~. Pour garantir le secret de conversation de tous les interphones de l’installation, des circuits de secret (un par touche) sont incorporés dans la plaque de rue. Tous les interphones seront ainsi normalement exclus de la conversation (en décrochant le combiné, aucune conversation se pourra être entendue) ; seul l’interphone appelé par le poste externe pourra établir la communication avec l’appelant, sachant qu’aucun autre utilisateur ne pourra intervenir et intercepter la communication. L’interphone appelé demeure habilité à la conversation jusqu’à ce qu’un autre appel ne soit envoyé depuis le plaque de rue vers un autre appareil. L’ouverture de la serrure électrique étant également habilitée par le circuit de secret, elle ne pourra pas avoir lieu tant qu’on n’est pas appelé.
  • #20 Où on observe bien les 4 câbles en communs et un individuelle pour chaque appareil intérieur En appuyant sur l’une des touches de la plaque de rue située à l’extérieur de l’immeuble, l’appel électronique bitonal est envoyé vers le haut-parleur de l’interphone correspondant. En décrochant le combiné de l’interphone appelé, le contact entre l’extérieur et l’intérieur est établi et la conversation peut alors avoir lieu. Pour commander la serrure électrique, il suffit d’appuyer sur la touche correspondante.
  • #21  En appuyant sur l’une des touches de la plaque de rue située à l’extérieur de l’immeuble, l’appel électronique bitonal est envoyé vers le haut-parleur de l’interphone correspondant. En décrochant le combiné de l’interphone appelé, le contact entre l’extérieur et l’intérieur est établi et la conversation peut alors avoir lieu. Pour commander la serrure électrique, il suffit d’appuyer sur la touche correspondante.
  • #22 C’est un interphone connecté à un système VDI lié en même temps au téléphone privé pour éviter de se précipiter à l’entrée pour voir la personne qui sonne. * Un portier peut être installé par exemple dans le séjour pour éviter de se précipiter à l’entrée pour voir la personne qui sonne. Il y a de nombreux fournisseurs de portier. Certains fonctionnent sur 1 ou 2 paires, voire plus.
  • #24 On choisit l’exemple d’installation d’un interphone à 2 fils dans une villa avec pose en saillie : Pour la platine comme pour le support du combiné, seront fixés par vissage. * En remplacement d'une sonnette, démontez le carillon en prenant soin de repérer ses 2 fils d'alimentation : phase (rouge, marron, noir), neutre (bleu). Selon le modèle, ils sont branchés sur un transfo intégré ou proviennent d'un transfo séparé. * Deux parcours à définir : De la source d'alimentation à l'emplacement du combiné, Du combiné à la platine de rue.
  • #25 Dans le Côté jardin ,en prolongeant le câbles du combiné vers le plancher de rue La profondeur de la tranchée doit respecter les exigences de la norme NF C 15-100 : 60 cm sous une zone piétonnière, 85 à 100 cm, sous une voie carrossable. , tracez-les saignées à la règle et au niveau. Délimitez la tranchée, sur 25 cm de largeur environ, avec du plâtre en poudre ou des cordeaux tendus sur des piquets. Une tranchée de quelques mètres se creuse sans difficulté particulière à la bêche et à la pioche. Sur une grande longueur (10 m ou plus), mieux vaut louer une trancheuse de sol. * La profondeur de la tranchée doit respecter les exigences de la norme NF C 15-100 : 60 cm sous une zone piétonnière, 85 à 100 cm, sous une voie carrossable.
  • #26 Puis on creuse pour lier les câbles à la platine de rue * Creusez l'encastrement de la platine de rue à la massette et au burin.
  • #27 Vissez le cadre au mur, avec la visière, en contrôlant le niveau. Selon le modèle, la visière est moulée avec le cadre ou à visser dessus.
  • #28 Vissez le support mural en vérifiant le niveau. Puis on raccorde les différents fils conformément à ce schéma de câblage.
  • #29 Les coûts d’interphone se varient selon ses différents types. En France . Ce tab montre les coûts de quelque type d’interphone.
  • #31 A travers cet exposé, nous avons pu découvrir la notion d’interphonie et de vidéophonie. Cette dernière obéit bien évidemment aux normes du courant faible dans les bâtiments j’ai présenté le principe d’interphonie et son Architecture de déploiement que je l’a bien détaillée dans le rapport. Tout ceci a pu non seulement éclaircir la matière Réseaux de courants faibles mais était aussi d’une utilité pour notre formation d’ingénieurs électriciens.