,
-
Cl :~
~
N 2. •
098<l~
2"0
@2.Q4Q
l'!
"N
L6
~.
~ L6
-s ,.. e~
e~ Cl '"~
C3
LI
1 .
$ 0.2• :0
5.460 ~.
'"
s '"
'"
1';
'"
~
,.,.
H. RENAUD
Bâtiment - Béton armé
H: RENAUD
•
• • • •• •
!01" c"fI!~
Bâtiment - Béton arméü ... ... ... ~I • . . ~, ~ _ ~
SOMMAIRE
•
._~......
•
- -
Plan de fondation .
Les baies: dessins de détail • • •• • •• • • . • • • • . . . . • • • • . • • . • • • • • . • •
~
5
9
12
13
19
21
25
29
331
39
43
45
53
59
63
69
rr
85
Dessins d'escaliers - ' ". . . . . . . . . . . . . . . . 91
Première partie : escaliers droits •• " , .... . . • . , , . , .• : • . . . .. . .' 91
Deuxième partie: escaliers bâlancé é .,.,.941
Murs de façade : dessins de détail , .
Principaux tenmes utilisés en bâtiment , , .
Éléments d'ouvrages-,Terminologie ' ' ~ ... . ..•••• ....•••. .
Lecture d'un avant-projet sommaire •••••••••• . .•.•••••.•• .••••.
. ,
Façades et plans . . .. ... • .... • . . . .. • . •...... ... . • ..... .. . . .
Représentation des appareils et des meubles .
Les plans : cotation, conventions : .. . . . . .. . . . . .. • .. . .. .
Les coupes : cotation, conventions .
Lecture des coupes et cotation des nus . , ..... ... . . .. •.. ..... . . ., .
Disposition des vues: cotes et écritures . . . . . . .... . . .. . .• . . . . . • . •
•Plan de situation et plan de masse , .. ,•
Avant-projet sommaire .
Projet de construction , .
Plan de soubassement .
Pavillon à simple rez-de-chaussée .
Les baies .
1
2
•
THÈME 4
THÈME 5
THÈME 6
THÈME 7
THÈME 8
iTHÈME 9
ÈME 10
THÈME 11
:rHÈME 12
THÈME 13
ÈME 14
THÈME 15
JHÈME 16
JHÈME 17
THÈME 3
•
- - .., .
mON ARMI!:
È
. ,
ME 18 Dessins de coffrage l , , , , ', , , •.. , . , , , • . . .• , . , . . . , . . . . . . . . . 101 ,
ÈME 19 Dessins d'armalures - , . , ~ , .. , , , , , , .. . • 109 1
, """'"ÈME 20 Dessins des semelles et poteaux en B, A, 117
• Lecture de pla",: semelles et poteaux ••••••• , , • , . • • • • • • • • • • • • .• 120
Dessins d'armatures de poutres .• " :" , ". .. .. .. ... .. 123
Lecture de plans : poutres B. A , , : " 127
Dessins des planchers. Unteaux et chalnages • , . • • • • • • •.. .• • , • •• 131
• Première partie: p1anchers avec poutrelles préfabriquées ••• .• .• .•• . 131
• Deuxième partie: Plan de coffrage et d'armature des dalles B. A.
Unteaux et chalnaqes' , ,', ........ .. . . 138
• Lecture de plan: élément préfabriqué , . . . . . . . . .. . . . . . . 142
Armatures de dalles. Escalier à volées préfabriquées • .'. . . . . . . . • . . . 143
-Planchers avec prédalles . . . .... . . . .. . . . . . . . . .• . • ••. . . . . . . . . . 151
",ilès en'béton ar;;;é •• 157 '
,
INDEX- ~ .
• ' . . . ' J
o DÉSIGNATION DES OUVRAGES ET RENSEIGNEMENTS TECHNIQUES SOMMAIRES
@ MURS DE FAÇADE
,. .
® SOUBASSEMENT
® DALlAGE ,..
,
Semen.. filantel en Béton Armé (B.A.) coulées sur un b'ton de
proprelé.
Blocs pleins en béton hourdés au mortier de ciment.
•
• Sur terre-plein stabilisé avec tout-venant (pierres cassées, gra-
viers et sable de cemëre1.
• Film pol,..... et Isolant polystyrène de 4 cm d'épaisseur.
• Dene de • cm d'épalsseur, armée d'un lrelllie _ .
NOTA : pr....... (bkles minces en béton, 5 cm d'épaisseur) scenées en rive de
.......
Ils sont réalisés en blocs creux de béton de 20 cm d'épaisseur.
• Les Un'"ux e' chalnag•• verticaux sont en B.A. moulé dans les
blocs spéciaux. .
- " ~
® MURS PIGNONS Ils sont r ëeueee avec bk>cs creux de béton de 20 cm d'épaisseur.
@ MURS De REFEND Ils sont réalisés avec blocs creux de béton de 15 cm d'épaisseur.
o PlANCHERS • t Mo;>, Il. sont constltués psi: _. . f :) • - :
- des poutrelle. préfabriquées précontraintes ;
~1f1~ - desentnvoulenbéton; .~.., ~~ ~ l ' .
...... - une dane de compre..ion de ëern d'épaisseur'armée d'un treil-
lis soudé et de chapeaux (aciers en barres) sur les murs ; 1
- un CMlnage périphérique.
G) FONDATIONS'
@ CONDUIT DE FUM~E
ET SOUCHE J
® CHARPENTE
0'
@ COlNERTURE
® PLAFONDS
@ DOUBLAGE DES MURS
EXTÉRIEURS
-@ ISOLATION THERMIOUE
DES COMBLES
® CLOISONS DE
OISTRIBUTION
@ MENUISERIES
@ ENDUITS
@ CARRELAGES·
REV~ENTSMURAUX
EN FAIENCE
Boisseaux de pouzzolane, section 20 cm x 40 cm hourdés BU mor-
tler de chaux.
,
• Ferme è entrait retroussé. sapin du Nord. avec pannM .t che-
vron. pour les combles.
• P.nn•• prenant appui sur les pignons pour le garage.
• Arêtiere _et noues avec chevrons 4 cm x 6 cm pour lucarne •
croupes. , · ....
$
• Ardoises fibres ciment. 40 cm x 24 cm. sur liteaux en sapin du
Nord, fixation par crochets galvanisés.
• Dalle demi-ronde en about de toit.
Sollvettes en sapin du Nord, section 3 cm x 15 cm. Plaques de
plêtre de 13 mm d'épaisseur fixées en plafond de l'étage et suivant
les rampants.
•Partie habitable. doublage par complexe Isolant: plaques de plAtre
+ Isolant polystyrène 80 mm d'épaisseur, collés par plot., COté In-
térieur.
•
ulne de .,.rre. épaisseur 200 mm, disposée en deux,couches crot-
• sées, entre et sur les $Olivettes, en plafond et rampants de toit.
Par panneaux préfabriqués de la hauteur d'étage, constitués de
deux plaques de ptëtre solidarisées par un réseau alvéolaire.
_ - Ext'rieu.... : portes et fenêtres en bols exotique avec vitrage
Isolant: volets en sapin avec traverses et écharpes en nlangon.
... - Int'ri.u.... : huisseries sapin du Nord et portes fscptanes.
- PortaU garage coulissant.
- Int'ri.ur : plâtre en sous-face du prancher haut du rez-de-
chaussée. -
- Extérieur: enduit monocouche, teinte claire.
Carrelage 10 cm x 20 cm, monocuisson, dans entrée, cuisine,
W.-C.
Carrelage. dalles 20 x 40. scellées sur chape fraiche en mortier de
ciment dans le séjour.
@ ?
6
•••
r
•
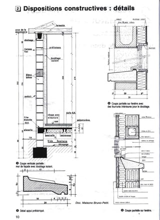
....,0 TERMINOLOGIE RELATIVE AUX MURS DE FAÇADE ET PIGNONS '
t> ObMfYonl l'emplacement des éléments de construction.
•
t> 8achona diff....ncl.r un tableau d'un Jambage ou d'un trumeau.
l.i1teou BA
Tatlln 1
•
,
, ,,,
'. .,
•,
':>
Voir détail A.
figure e PIIfJfI 10
5
3
1
Appi de
Ieolèb.
Tnrneau
6 7 9
Jambage
d'WIgIe
TenninologiB
•
Soubassement
Vue perspective n' 2
• Lecture de plan : questionnaire
1 Indiquer 1.. woIUrnH suivants désignés sur la vue perspective. par :
Lettre Désignatkm du volume considéré
A Rez-de-chaussée habi1able
B
C
2 Ure et di"'I9ftCI.' les ouvrages dtts « porteurs -.
Ex6tnpl6 : fondations, ...
3 DMlgner trois éléments protecteurs d'un bâtiment de la pluie, du chaud ou du froid.
•
7
4 Indiquer au moins cinq typesdetravaux non cités pour terminer,I'habltation.
Exemple : électricité• ...
5 lire et interpréter au niveau des fondaUons :
(!) - béton de propreté
@
@
@
• Répdnses au quest~onnaire
1
1 A ;+ Rez..c:te-Chaussée. B - Combles aménagés, C - Garage.
. 1l' ) "
2 OU-...".ag........ porteun : fondations, murs (de façade. pJgnons, de refend). planchers. charpente.
,- -. ., ', ~ ~ . '.
3 ÉI.rnent. proteeleun : couverture. enduit extérieur. isolation thermique (laine,de verre. vttrage Isolant).
11 / ,' , . ' ,
• Autree Ir.vaux, ou ,ouvr. g•• : électricité, sanitaire, chaunega. venttletlone, métallerle. clOtures.
drainage canalls8l1ons, travaux de peinture et finitions, travaux ;de zinguerle, vltrerié, agencemenl el
ameublemenl de cuisine, etc. J "':. •
1
5 Fondaflona.-eoubaa••m.nl :
@ béton"de propreté
.1 ,, ~.
@ - semene filante en B.A
@ _ soubassement en blocs pleins
@ -+ planetle en rive do d,"age
8
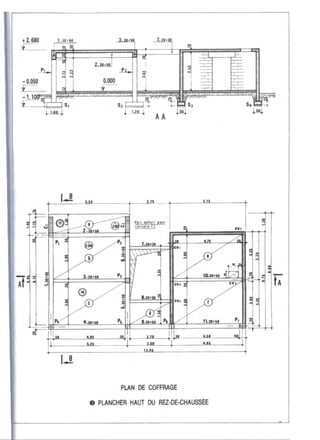
LECTURE DES COUPES
FAÇADE PRlNClPAlE PIGNON DAOfT
•
PIGNON GAUCHE
•
GARAGE
•,,
.,
L/
•
SEJOUR
t -
! "9" 1
w
....
MI
Iii'
141"'.. 1
::. j ~ j :: Ë'J : t")''" l ,.'" !..~" !: J" t
PLAN DU REZ-œ.cHAUSSÉE 1J:
•
H- _
• 29
.,.
COUPE A
')DJ
." .
...
, -"••";,,. I r .u. . 'KiO"'"'
//-....
o
-•
,
r.l... r I,....
"'tln on
'54
'"
o
•
-
1 0.00 -0.1 0
COUPE B
• Lecture des coupes
•
1 Ure et Indiquer la trace du plan de coupe pour la coupe A. Tracer sur le plan la flèche qui
donne le sens d'observation.
2 Même recherche pour la coupe B.
3 Ure la hauteur de passage de la porte vitrée à 2 vantaux du salon.
4 Donner le niveau du sommet de la charpente.
S Dessiner a main levée la coupe C sachant que :
le niveau du sommet de la charpente est à + 3,76 m ;
- la pente du toit est de 30 cm pour 100 cm (30 %) :
l'axe du passage du faîtage est à 4.50 m du mur de façade.
p
•
Ch 2,
té
h
...Ièch
•
f r).
or c .
5
~
. 30 /
 lecture de plan ( bâtiment - béton armé )
 lecture de plan ( bâtiment - béton armé )
 lecture de plan ( bâtiment - béton armé )
 lecture de plan ( bâtiment - béton armé )
 lecture de plan ( bâtiment - béton armé )
 lecture de plan ( bâtiment - béton armé )
 lecture de plan ( bâtiment - béton armé )
 lecture de plan ( bâtiment - béton armé )
 lecture de plan ( bâtiment - béton armé )
 lecture de plan ( bâtiment - béton armé )
 lecture de plan ( bâtiment - béton armé )
 lecture de plan ( bâtiment - béton armé )
 lecture de plan ( bâtiment - béton armé )
 lecture de plan ( bâtiment - béton armé )
 lecture de plan ( bâtiment - béton armé )
 lecture de plan ( bâtiment - béton armé )
 lecture de plan ( bâtiment - béton armé )
 lecture de plan ( bâtiment - béton armé )
 lecture de plan ( bâtiment - béton armé )
 lecture de plan ( bâtiment - béton armé )
 lecture de plan ( bâtiment - béton armé )
 lecture de plan ( bâtiment - béton armé )
 lecture de plan ( bâtiment - béton armé )
 lecture de plan ( bâtiment - béton armé )
 lecture de plan ( bâtiment - béton armé )
 lecture de plan ( bâtiment - béton armé )
 lecture de plan ( bâtiment - béton armé )
 lecture de plan ( bâtiment - béton armé )
 lecture de plan ( bâtiment - béton armé )
 lecture de plan ( bâtiment - béton armé )
 lecture de plan ( bâtiment - béton armé )
 lecture de plan ( bâtiment - béton armé )
 lecture de plan ( bâtiment - béton armé )
 lecture de plan ( bâtiment - béton armé )
 lecture de plan ( bâtiment - béton armé )
 lecture de plan ( bâtiment - béton armé )
 lecture de plan ( bâtiment - béton armé )
 lecture de plan ( bâtiment - béton armé )
 lecture de plan ( bâtiment - béton armé )
 lecture de plan ( bâtiment - béton armé )
 lecture de plan ( bâtiment - béton armé )
 lecture de plan ( bâtiment - béton armé )
 lecture de plan ( bâtiment - béton armé )
 lecture de plan ( bâtiment - béton armé )
 lecture de plan ( bâtiment - béton armé )
 lecture de plan ( bâtiment - béton armé )
 lecture de plan ( bâtiment - béton armé )
 lecture de plan ( bâtiment - béton armé )
 lecture de plan ( bâtiment - béton armé )
 lecture de plan ( bâtiment - béton armé )
 lecture de plan ( bâtiment - béton armé )
 lecture de plan ( bâtiment - béton armé )
 lecture de plan ( bâtiment - béton armé )
 lecture de plan ( bâtiment - béton armé )
 lecture de plan ( bâtiment - béton armé )
 lecture de plan ( bâtiment - béton armé )
 lecture de plan ( bâtiment - béton armé )
 lecture de plan ( bâtiment - béton armé )
 lecture de plan ( bâtiment - béton armé )
 lecture de plan ( bâtiment - béton armé )
 lecture de plan ( bâtiment - béton armé )
 lecture de plan ( bâtiment - béton armé )
 lecture de plan ( bâtiment - béton armé )
 lecture de plan ( bâtiment - béton armé )
 lecture de plan ( bâtiment - béton armé )
 lecture de plan ( bâtiment - béton armé )
 lecture de plan ( bâtiment - béton armé )
 lecture de plan ( bâtiment - béton armé )
 lecture de plan ( bâtiment - béton armé )
 lecture de plan ( bâtiment - béton armé )
 lecture de plan ( bâtiment - béton armé )
 lecture de plan ( bâtiment - béton armé )
 lecture de plan ( bâtiment - béton armé )
 lecture de plan ( bâtiment - béton armé )
 lecture de plan ( bâtiment - béton armé )
 lecture de plan ( bâtiment - béton armé )
 lecture de plan ( bâtiment - béton armé )
 lecture de plan ( bâtiment - béton armé )
 lecture de plan ( bâtiment - béton armé )
 lecture de plan ( bâtiment - béton armé )
 lecture de plan ( bâtiment - béton armé )
 lecture de plan ( bâtiment - béton armé )
 lecture de plan ( bâtiment - béton armé )
 lecture de plan ( bâtiment - béton armé )
 lecture de plan ( bâtiment - béton armé )
 lecture de plan ( bâtiment - béton armé )
 lecture de plan ( bâtiment - béton armé )
 lecture de plan ( bâtiment - béton armé )
 lecture de plan ( bâtiment - béton armé )
 lecture de plan ( bâtiment - béton armé )
 lecture de plan ( bâtiment - béton armé )
 lecture de plan ( bâtiment - béton armé )
 lecture de plan ( bâtiment - béton armé )
 lecture de plan ( bâtiment - béton armé )
 lecture de plan ( bâtiment - béton armé )
 lecture de plan ( bâtiment - béton armé )
 lecture de plan ( bâtiment - béton armé )
 lecture de plan ( bâtiment - béton armé )
 lecture de plan ( bâtiment - béton armé )
 lecture de plan ( bâtiment - béton armé )
 lecture de plan ( bâtiment - béton armé )
 lecture de plan ( bâtiment - béton armé )
 lecture de plan ( bâtiment - béton armé )
 lecture de plan ( bâtiment - béton armé )
 lecture de plan ( bâtiment - béton armé )
 lecture de plan ( bâtiment - béton armé )
 lecture de plan ( bâtiment - béton armé )
 lecture de plan ( bâtiment - béton armé )
 lecture de plan ( bâtiment - béton armé )
 lecture de plan ( bâtiment - béton armé )
 lecture de plan ( bâtiment - béton armé )
 lecture de plan ( bâtiment - béton armé )
 lecture de plan ( bâtiment - béton armé )
 lecture de plan ( bâtiment - béton armé )
 lecture de plan ( bâtiment - béton armé )
 lecture de plan ( bâtiment - béton armé )
 lecture de plan ( bâtiment - béton armé )
 lecture de plan ( bâtiment - béton armé )
 lecture de plan ( bâtiment - béton armé )
 lecture de plan ( bâtiment - béton armé )
 lecture de plan ( bâtiment - béton armé )
 lecture de plan ( bâtiment - béton armé )
 lecture de plan ( bâtiment - béton armé )
 lecture de plan ( bâtiment - béton armé )
 lecture de plan ( bâtiment - béton armé )
 lecture de plan ( bâtiment - béton armé )
 lecture de plan ( bâtiment - béton armé )
 lecture de plan ( bâtiment - béton armé )
 lecture de plan ( bâtiment - béton armé )
 lecture de plan ( bâtiment - béton armé )

lecture de plan ( bâtiment - béton armé )

  • 1.
    , - Cl :~ ~ N 2.• 098<l~ 2"0 @2.Q4Q l'! "N L6 ~. ~ L6 -s ,.. e~ e~ Cl '"~ C3 LI 1 . $ 0.2• :0 5.460 ~. '" s '" '" 1'; '" ~ ,.,. H. RENAUD Bâtiment - Béton armé
  • 2.
    H: RENAUD • • •• •• • !01" c"fI!~ Bâtiment - Béton arméü ... ... ... ~I • . . ~, ~ _ ~
  • 3.
    SOMMAIRE • ._~...... • - - Plan defondation . Les baies: dessins de détail • • •• • •• • • . • • • • . . . . • • • • . • • . • • • • • . • • ~ 5 9 12 13 19 21 25 29 331 39 43 45 53 59 63 69 rr 85 Dessins d'escaliers - ' ". . . . . . . . . . . . . . . . 91 Première partie : escaliers droits •• " , .... . . • . , , . , .• : • . . . .. . .' 91 Deuxième partie: escaliers bâlancé é .,.,.941 Murs de façade : dessins de détail , . Principaux tenmes utilisés en bâtiment , , . Éléments d'ouvrages-,Terminologie ' ' ~ ... . ..•••• ....•••. . Lecture d'un avant-projet sommaire •••••••••• . .•.•••••.•• .••••. . , Façades et plans . . .. ... • .... • . . . .. • . •...... ... . • ..... .. . . . Représentation des appareils et des meubles . Les plans : cotation, conventions : .. . . . . .. . . . . .. • .. . .. . Les coupes : cotation, conventions . Lecture des coupes et cotation des nus . , ..... ... . . .. •.. ..... . . ., . Disposition des vues: cotes et écritures . . . . . . .... . . .. . .• . . . . . • . • •Plan de situation et plan de masse , .. ,• Avant-projet sommaire . Projet de construction , . Plan de soubassement . Pavillon à simple rez-de-chaussée . Les baies . 1 2 • THÈME 4 THÈME 5 THÈME 6 THÈME 7 THÈME 8 iTHÈME 9 ÈME 10 THÈME 11 :rHÈME 12 THÈME 13 ÈME 14 THÈME 15 JHÈME 16 JHÈME 17 THÈME 3 • - - .., . mON ARMI!: È . , ME 18 Dessins de coffrage l , , , , ', , , •.. , . , , , • . . .• , . , . . . , . . . . . . . . . 101 , ÈME 19 Dessins d'armalures - , . , ~ , .. , , , , , , .. . • 109 1 , """'"ÈME 20 Dessins des semelles et poteaux en B, A, 117 • Lecture de pla",: semelles et poteaux ••••••• , , • , . • • • • • • • • • • • • .• 120 Dessins d'armatures de poutres .• " :" , ". .. .. .. ... .. 123 Lecture de plans : poutres B. A , , : " 127 Dessins des planchers. Unteaux et chalnages • , . • • • • • • •.. .• • , • •• 131 • Première partie: p1anchers avec poutrelles préfabriquées ••• .• .• .•• . 131 • Deuxième partie: Plan de coffrage et d'armature des dalles B. A. Unteaux et chalnaqes' , ,', ........ .. . . 138 • Lecture de plan: élément préfabriqué , . . . . . . . . .. . . . . . . 142 Armatures de dalles. Escalier à volées préfabriquées • .'. . . . . . . . • . . . 143 -Planchers avec prédalles . . . .... . . . .. . . . . . . . . .• . • ••. . . . . . . . . . 151 ",ilès en'béton ar;;;é •• 157 ' , INDEX- ~ . • ' . . . ' J
  • 4.
    o DÉSIGNATION DESOUVRAGES ET RENSEIGNEMENTS TECHNIQUES SOMMAIRES @ MURS DE FAÇADE ,. . ® SOUBASSEMENT ® DALlAGE ,.. , Semen.. filantel en Béton Armé (B.A.) coulées sur un b'ton de proprelé. Blocs pleins en béton hourdés au mortier de ciment. • • Sur terre-plein stabilisé avec tout-venant (pierres cassées, gra- viers et sable de cemëre1. • Film pol,..... et Isolant polystyrène de 4 cm d'épaisseur. • Dene de • cm d'épalsseur, armée d'un lrelllie _ . NOTA : pr....... (bkles minces en béton, 5 cm d'épaisseur) scenées en rive de ....... Ils sont réalisés en blocs creux de béton de 20 cm d'épaisseur. • Les Un'"ux e' chalnag•• verticaux sont en B.A. moulé dans les blocs spéciaux. . - " ~ ® MURS PIGNONS Ils sont r ëeueee avec bk>cs creux de béton de 20 cm d'épaisseur. @ MURS De REFEND Ils sont réalisés avec blocs creux de béton de 15 cm d'épaisseur. o PlANCHERS • t Mo;>, Il. sont constltués psi: _. . f :) • - : - des poutrelle. préfabriquées précontraintes ; ~1f1~ - desentnvoulenbéton; .~.., ~~ ~ l ' . ...... - une dane de compre..ion de ëern d'épaisseur'armée d'un treil- lis soudé et de chapeaux (aciers en barres) sur les murs ; 1 - un CMlnage périphérique. G) FONDATIONS' @ CONDUIT DE FUM~E ET SOUCHE J ® CHARPENTE 0' @ COlNERTURE ® PLAFONDS @ DOUBLAGE DES MURS EXTÉRIEURS -@ ISOLATION THERMIOUE DES COMBLES ® CLOISONS DE OISTRIBUTION @ MENUISERIES @ ENDUITS @ CARRELAGES· REV~ENTSMURAUX EN FAIENCE Boisseaux de pouzzolane, section 20 cm x 40 cm hourdés BU mor- tler de chaux. , • Ferme è entrait retroussé. sapin du Nord. avec pannM .t che- vron. pour les combles. • P.nn•• prenant appui sur les pignons pour le garage. • Arêtiere _et noues avec chevrons 4 cm x 6 cm pour lucarne • croupes. , · .... $ • Ardoises fibres ciment. 40 cm x 24 cm. sur liteaux en sapin du Nord, fixation par crochets galvanisés. • Dalle demi-ronde en about de toit. Sollvettes en sapin du Nord, section 3 cm x 15 cm. Plaques de plêtre de 13 mm d'épaisseur fixées en plafond de l'étage et suivant les rampants. •Partie habitable. doublage par complexe Isolant: plaques de plAtre + Isolant polystyrène 80 mm d'épaisseur, collés par plot., COté In- térieur. • ulne de .,.rre. épaisseur 200 mm, disposée en deux,couches crot- • sées, entre et sur les $Olivettes, en plafond et rampants de toit. Par panneaux préfabriqués de la hauteur d'étage, constitués de deux plaques de ptëtre solidarisées par un réseau alvéolaire. _ - Ext'rieu.... : portes et fenêtres en bols exotique avec vitrage Isolant: volets en sapin avec traverses et écharpes en nlangon. ... - Int'ri.u.... : huisseries sapin du Nord et portes fscptanes. - PortaU garage coulissant. - Int'ri.ur : plâtre en sous-face du prancher haut du rez-de- chaussée. - - Extérieur: enduit monocouche, teinte claire. Carrelage 10 cm x 20 cm, monocuisson, dans entrée, cuisine, W.-C. Carrelage. dalles 20 x 40. scellées sur chape fraiche en mortier de ciment dans le séjour. @ ? 6 ••• r •
  • 5.
    ....,0 TERMINOLOGIE RELATIVEAUX MURS DE FAÇADE ET PIGNONS ' t> ObMfYonl l'emplacement des éléments de construction. • t> 8achona diff....ncl.r un tableau d'un Jambage ou d'un trumeau. l.i1teou BA Tatlln 1 • , , ,,, '. ., •, ':> Voir détail A. figure e PIIfJfI 10 5 3 1 Appi de Ieolèb. Tnrneau 6 7 9 Jambage d'WIgIe TenninologiB • Soubassement Vue perspective n' 2 • Lecture de plan : questionnaire 1 Indiquer 1.. woIUrnH suivants désignés sur la vue perspective. par : Lettre Désignatkm du volume considéré A Rez-de-chaussée habi1able B C 2 Ure et di"'I9ftCI.' les ouvrages dtts « porteurs -. Ex6tnpl6 : fondations, ... 3 DMlgner trois éléments protecteurs d'un bâtiment de la pluie, du chaud ou du froid. • 7
  • 6.
    4 Indiquer aumoins cinq typesdetravaux non cités pour terminer,I'habltation. Exemple : électricité• ... 5 lire et interpréter au niveau des fondaUons : (!) - béton de propreté @ @ @ • Répdnses au quest~onnaire 1 1 A ;+ Rez..c:te-Chaussée. B - Combles aménagés, C - Garage. . 1l' ) " 2 OU-...".ag........ porteun : fondations, murs (de façade. pJgnons, de refend). planchers. charpente. ,- -. ., ', ~ ~ . '. 3 ÉI.rnent. proteeleun : couverture. enduit extérieur. isolation thermique (laine,de verre. vttrage Isolant). 11 / ,' , . ' , • Autree Ir.vaux, ou ,ouvr. g•• : électricité, sanitaire, chaunega. venttletlone, métallerle. clOtures. drainage canalls8l1ons, travaux de peinture et finitions, travaux ;de zinguerle, vltrerié, agencemenl el ameublemenl de cuisine, etc. J "':. • 1 5 Fondaflona.-eoubaa••m.nl : @ béton"de propreté .1 ,, ~. @ - semene filante en B.A @ _ soubassement en blocs pleins @ -+ planetle en rive do d,"age 8
  • 26.
    LECTURE DES COUPES FAÇADEPRlNClPAlE PIGNON DAOfT • PIGNON GAUCHE • GARAGE •,, ., L/ • SEJOUR t - ! "9" 1 w .... MI Iii' 141"'.. 1 ::. j ~ j :: Ë'J : t")''" l ,.'" !..~" !: J" t PLAN DU REZ-œ.cHAUSSÉE 1J: • H- _ • 29
  • 27.
    .,. COUPE A ')DJ ." . ... ,-"••";,,. I r .u. . 'KiO"'"' //-.... o -• , r.l... r I,.... "'tln on '54 '" o • - 1 0.00 -0.1 0 COUPE B • Lecture des coupes • 1 Ure et Indiquer la trace du plan de coupe pour la coupe A. Tracer sur le plan la flèche qui donne le sens d'observation. 2 Même recherche pour la coupe B. 3 Ure la hauteur de passage de la porte vitrée à 2 vantaux du salon. 4 Donner le niveau du sommet de la charpente. S Dessiner a main levée la coupe C sachant que : le niveau du sommet de la charpente est à + 3,76 m ; - la pente du toit est de 30 cm pour 100 cm (30 %) : l'axe du passage du faîtage est à 4.50 m du mur de façade.
  • 28.