1
COURS DE CONSTRUCTION METALLIQUE
Tome II
Les assemblages
C. FERRAND 1993
M.A.J. M. CALLAUD mars 2003
ECOLE INTER-ETATS DES TECHNICIENS SUPERIEURS
DE L’HYDRAULIQUE ET DE L’EQUIPEMENT RURAL
01 BP 594 Ouagadougou 01 Burkina Faso
Tél : (226) 31 92 03 / 31 92 04 / 31 92 18
Email : etsher@etsher.org Fax : (226) 31 92 34
2
Sommaire
3
G E N E R A L I T E S
1. DOMAINES D’UTILISATION :
1.1. Bâtiment
Les habitations :
- habitat individuel,
- petit immeuble,
- tour et gratte-ciel.
Dans ce domaine, la C.M. intervient sous forme d’ossature métalliques ou en partie métallique
(combles et couverture par exemple).
Les halles :
Il s’agit de grandes surfaces couvertes plus ou moins fermées latéralement. La construction
peut être partiellement ou entièrement métallique lorsque par exemple les parois latérales sont
constituées par des « pans de fer » (système de traverses horizontales ou lisses et de poteaux
intermédiaires) supportant des bardages en tôles.
Les halles métalliques sont à usage d’entrepôts, de magasins de stockage, de bâtiment
agricole ou industriel. Leur aspect fonctionnel est primordial.
1.2. Ponts
Dans ce domaine, la C.M. est également en concurrence permanente avec le béton armé,
actuellement elle s’impose dans les cas suivants :
- grandes portées (L > 200 m),
- élancement réduit (hauteur/portée),
- ouvrage provisoire,
- ponts mobiles.
Selon le système porteur, on distingue :
- les ponts à poutres
- les ponts en arc,
- les ponts à câbles porteurs.
En équipement rural, les petits ouvrages de franchissement se construisent en B.A.
1.3. Structures porteuses
La C.M. est souvent une solution économique pour réaliser des structures telles que :
- pylône, mât (porteur de câble, d’antenne, d’éolienne…). Selon la liaison au sol, on
distingue les dispositifs encastrés (pylône électrique) ou à haubans (antennes) ;
- château d’eau ;
- installations agricoles (silo, rampe d’arrosage …)
- engins de levage (derrick, chèvre, grue, portique…)
- installations industrielles.
4
2. AVANTAGES DES C.M. SUR LES CONSTRUCTIONS B.A.
Légèreté :
- diminution des charges sur le sol,
- encombrement réduit,
- grandes portées.
Transformations faciles :
- modification, renforcement, allègement de structure
Démontabilité :
Même si elle n’a pas été prévue, il est toujours possible de récupérer la plus grande partie
d’une structure.
Souplesse :
- adaptabilité,
- sécurité.
Préparation et montage :
- Majeure partie du travail en atelier (indépendamment des aléas de chantier) avec montage à
blanc pour éviter les mauvaises surprises.
- Temps de montage court, faible encombrement sur chantier et moyens de levages réduits.
Facilités de contrôle :
- à la réception des matériaux,
- pendant l’exécution,
- après montage.
Inconvénients :
- résistance en compression moindre que le béton,
- susceptibilité aux phénomènes d’installation élastique,
- mauvaise tenue au feu,
- entretien régulier à prévoir.
3. ACIERS UTILISES EN C.M.
(Voir cours de structure – Tome 2 – cours de construction générale).
3.1. Critères de caractérisation d’un acier
Deux catégories de critères principaux permettent de caractériser un acier :
Caractéristiques chimiques :
Elles précisent les teneurs des éléments (ou de certains d’entre eux) associés au fer pour
constituer l’acier.
Exemple : l’acier E24 contient environ 0,2 % de C.
Caractéristiques mécaniques :
Limite d’élasticité : apparente Re
(Conventionnelle RPO, 2).
La limite d’élasticité est notée σe dans les calculs, elle intervient dans les conditions de
résistance des éléments de structure travaillant en traction, compression, cisaillement flexion,
flambement…
5
Pour un même acier, sa valeur est fonction de l’épaisseur des pièces.
Exemple : pour du E24, les industries métallurgiques garantissent :
Re ≃ 235 MPa pour e ≃ 30 mm
Re ≃ 215 MPa pour 30 < e < 100 m
Résistance à la traction : (contrainte maxi avant rupture)
Notée R ou σe, cette caractéristique n’intervient pas dans les calculs de charpente métallique.
Elle est utilisée dans les calculs de chaudronnerie et de fatigue.
Pour un même acier, la valeur dépend du mode d’élaboration et de la forme du produit.
Exemple : E24
R ≃ 360 MPa produits massifs
R ≃ 440 MPa poutrelles et laminés marchands
R ≃ 460 MPa produits plats
Allongement pour cent après rupture (sans dimension) :
Noté A, ce critère n’intervient pas dans les calculs habituels de C.M., mais une valeur
minimale de 20 % est imposée par les règlements. Pour E24, A ≃ 25 %.
L’allongement caractérise la capacité de déformation de l’acier donc ses possibilités
d’adaptation plastique.
Module d’élasticité (Young) :
Noté E, exprimé en MPa, il caractérise la rigidité de l’acier. C’est le coefficient de
proportionnalité entre contrainte et déformation dans le domaine élastique : σ = E.ε
Il est constant pour tous les aciers courants et sa valeur réglementaire est de 2,1 x 105
MPa.
Il intervient dans les calculs de déformation (flèches).
Module de cisaillement (Coulomb) :
Il exprime le rapport entre contrainte de cisaillement et déformation correspondante. Il inter-
vient dans les calculs des déformations en torsion notamment pour les aciers G ≃ 0,4E.
Résilience :
Il s’agit d’une caractéristique sous sollicitation dynamique. Notée K, la résilience mesure en
J/cm2
l’énergie absorbée par la rupture par choc d’une éprouvette d’acier entaillée dans des
conditions d’essai normalisées. Cette énergie est rapportée à l’unité de section au droit de
l’entaille. Ce critère caractérise la fragilité de l’acier. L’acier devient fragile en-dessous d’une
zone de température dite zone de transition et lorsqu’il est soumis à des contraintes de type
multidirectionnelles qui peuvent apparaître notamment dans les constructions soudées.
6
Une même nuance d’acier, E24 par exemple, existe en plusieurs qualités, fonction de la
température de transition TK correspondant à un seuil conventionnel de fragilité.
Il existe des méthodes permettant de relier TK à la température de service de la construction
en fonction des concentrations de contraintes, de la vitesse d’application des sollicitations, de
l’épaisseur du métal…, et donc de choisir l’acier de qualité appropriée.
Toutefois, le risque de rupture fragile sera quasiment nul dans le cas de constructions
métalliques courantes réalisées sous climat africain et pour lesquelles les dispositions
constructives et les règles élémentaires de soudage auront été respectées.
Dureté (Brinelle, Rockel, Vickers…) :
Elle est déterminée à l’aide de différents essais non destructifs. Comme la dureté d’un métal
est liée à sa résistance à la traction, il existe des tables de corrélation entre ces deux critères.
On peut utiliser ces tables pour identifier rapidement des lots d’acier de résistances très
différentes, mais elles ne sont pas assez rigoureuses pour permettre de départager deux
nuances voisines.
Contrainte limite d’endurance (limite à la fatigue) :
Le phénomène de rupture par fatigue peut s’observer lorsqu’une pièce est soumise à des
contraintes variables inférieures à σe mais exercées pendant un grand nombre de cycles.
Des essais de fatigue permettent de déterminer σD, contrainte pour laquelle il n’y aura
jamais rupture quelque soit le nombre de cycles (dans la pratique, si au-delà de 107 cycles
il n’y a pas rupture on admet qu’il n’y aura jamais rupture) pour E24 σD ≃ 190 MPa.
3.2. Facteurs influençant les caractéristiques mécaniques :
Forme et dimension des produits (ép ↗ → σe ↘ )
Température : ( θ ↗ → σe ↘ )
Exemple E24 : 200°C190 MPa
350°C 130 MPa
Si la température dépasse une certaine valeur, à proximité d’un cordon de soudure par
exemple, il y a risque local de trempe en fonction de la vitesse de refroidissement et de la
composition chimique du métal dont la teneur en carbone notamment. Dans cette zone
affectée thermiquement (ZAT) les caractéristiques mécaniques sont modifiées (la dureté
augmente, la zone de ductilité devient moins grande) mais surtout il y a risque d’accumulation
de contraintes et de développement de fissures. Tous les aciers ne se soudent pas facilement
et la soudabilité est une caractéristique importante des aciers.
Les aciers E24 ont une bonne soudabilité et si l’on respecte les règles de soudage, les
modifications de caractéristiques sont minimes et les risques de fissures négligeables.
Ecrouissage et vieillissement :
Tout travail de mise en forme à froid entraîne l’apparition du phénomène d’écrouissage, dont
l’effet est d’augmenter la résistance et la limite d’élasticité, dans la direction de la déformation
surtout, et de diminuer l’allongement et la résistance à la rupture fragile.
7
Le phénomène de vieillissement, qui consiste essentiellement en une modification, dans le
temps et jusqu’une certaine limite des propriétés de l'acier, se produit en particulier après
écrouissage pour les aciers de C.M. les plus usuels, et ajoute ses effets à ceux de
l’écrouissage.
Effet de la rouille :
En tant que matériau, l’acier présente une régularité de composition et une absence de
porosité qui fait que son oxydation se développe assez régulièrement de la surface vers le
cœur sans s’arrêter malheureusement puisque la rouille n’est pas étanche. Les caracté-
ristiques du matériau sain ne sont pas affectées, mais la section utile de l’élément se trouve
réduite donc l’état de contrainte augmente sous charges constantes (les caractéristiques
mécaniques de la rouille sont négligeables). Pour pallier cet inconvénient, il faudra, soit
prévoir des surépaisseurs ou un renforcement des éléments essentiels pour compenser la
perte future de métal, soit prévoir au moyen de protection (peinture, traitement de surface…).
Les industries sidérurgiques produisent des aciers de construction à résistance améliorée à la
corrosion atmosphérique.
Exemple : : E24 W (Il s’agit souvent d’acier au cuivre).
8
3.3. Catégories d’acier rencontrées en C.M. :
Catégories Normes principales Forme des produits
Aciers de construction d’usage général NF A 35-501 Poutrelles, laminés marchands, produits
plats.
Aciers à haute limite d’élasticité
soudables
NF A 35-504 Poutrelles et profils
NF A 36-201/36-204 Tôles et plaques
Aciers à résistance améliorée à la
corrosion atmosphérique. NF A 35-502
Poutrelles, laminés marchands, produits
plats.
Aciers spéciaux NF A 35-556 Aciers pour boulons à hautes
performances
(boulons hr)
Aciers à surface préparée ou revêtue NF A 36-321/322 Tôles galvanisées
NF P 34-301 Tôles galvanisées prélaquées
NF A 35-511 Produits longs et plats grenaillés prépeints.
Aciers inoxydables NF A 35-573 Produits plats
NF A 35-574 Barres
3.4. Les aciers d’usage général :
Désignation conventionnelle :
Elle est basée sur les caractéristiques mécaniques.
Exemple : E24 2 A33
nuance qualité nuance
Nuances Qualités
Limite d’élasticité
min. N/mm2
épais, ≤ 30 mm
Résistance à la traction
N/mm2
(3) Observations
A33 175 300-540 (2)
E24 2, 2E
, 2 NE
3
4
235 340-440 R ≤ 460 N/mm2
en produits plats
E28 2
3
4
275 400-540
E36 2
3
4
235 490-630 La qualité 2 n’existe
pas en tôles.
(2) La nuance A33 n’est pas autorisée pour les poutrelles et les barèmes des sociétés sidérurgiques ne la
prévoient pas non plus pour les cornières de largeur d’aile supérieure à 50 mm.
(3) Valeur pour laminés marchands et poutrelles.
9
Dans la construction des bâtiments, les conditions de faibles déformations (flèches limitées
pour l’exploitation) et celles liées aux instabilités (flambement, voilement) conduisent
généralement à rendre sans intérêt l’emploi d’aciers à haute résistance ; les exceptions
concernent des éléments de fortes épaisseurs et ceux qui sont toujours simplement tendus
(câbles, tirants, haubans…). Cela explique que l’acier doux courant de la nuance E24 soit de
loin le plus utilisé. C’est donc aussi celui que l’on trouvera le plus facilement et dans des délais
les plus courts, dans les produits de formes et dimensions courantes.
4. PRODUITS MARCHANDS UTILISES EN C.M.
Un résumé des produits les plus courants est donné par les tableaux suivants : A, B.
Leurs caractéristiques dimensionnelles normalisées sont données dans les tableaux du tome 2
du polycopié de structure de la page 16 à la page 53.
Les longueurs produites couramment vont de 6 à 18 m mais avant d’envisager l’emploi de
grandes longueurs (> 8 m) se renseigner sur leur disponibilité auprès des revendeurs locaux
ou des importateurs.
5. CHOIX DU TYPE DE SECTION
Du point de vue de la résistance des matériaux, la répartition de la matière par rapport à l’axe
neutre d’une poutre à une très grande influence sur ses caractéristiques géométriques (Ix, Iy, I/v,
Ms ….) donc sur les sollicitations auxquelles elle peut être économiquement soumise et en
définitive sur l’usage qui en sera fait.
Les différentes sections des profilés du commerce couvrent l’ensemble des besoins rencontrés
en C.M. avec des domaines d’utilisation qui peuvent se chevaucher. Il en découle que le choix
autres que ceux de résistance ou de déformation (prix, encombrement, facilité
d’assemblage…).
5.1. Sections en I :
IPN : cette forme est de moins en moins utilisée.
IPE : ces profilés remplacent les IPN. Ils sont très économiques en flexion dans un sens.
Ix >> Iy.
5.2. Section en H :
Ils ont même allure que les I mais leurs ailes sont plus larges.
HEA : Ix > Iy. (profil H allégé)
On l’utilise pour les poteaux comprimés et fléchis (bonne tenue au flambement) ou
exceptionnellement pour les poutres lorsque les IPE qui reprendraient la même charge ont
une hauteur trop grande.
HEB : Ix > Iy. (profil H normal)
Plus lourd que le HEA, il est moins encombrant. Il est utilisé également comme poteau.
Par exemple, dans les mêmes conditions d’usage, un poteau en HEB 260 pèse 325 kg et
supporte une charge de 166.560 daN et en HEA 300 pèse 310 kg et supporte une charge de
163.9OO daN.
10
Enveloppes dimensionnelles – Produits « sidérurgiques » - A - :
Désignation Forme de la
Section
Dimensions
extrêmes (mm) hauteur x
largeur
ou épaisseur
Poids/mètre
extrêmes
(kg/m)
Normes de référence pour
les tolérances
Poutrelles
IPE ; IPE-A
IPE-R
80 x 46
610 x 220
6,0
153,0
NF A 45-206
Poutrelles
IPN
80 x 42
160 x 74
5,95
17,9
NF A 45-210
Poutrelles
HE-A ; HE-B
HE-M
96 x 100
620 x 305
16,7
285
NF A 45-211
Poutrelles
UPN
Et
UAP
80 x 45
300 x 100
8,38
46,2
NF A 45-210 (UPN)
NF A 45-255 (UAP)
Cornières égales 20 x 3
200 x 20
0,88
60,0
NF A 45-001
Cornières inégales 30 x 20 x 3
150 x 90 x 11
1,12
20
NF A 45-001
Petits U 30 x 15 x 4
65 x 42 x 5,5
1,74
7
NF A 45-001
T égaux 30 x 4
100 x 11
1,77
16,4
NF A 45-001
Plats 20 x 4
150 x 20
0,63
23,6
NF A 45-001
Ronds 10
200
0,617
247
NF A 45-001
NF A 45-075 (rivets)
Profilés spéciaux
T inégaux
Équerres
T à angles vifs
Profilés de menui-
Serie métal.
Etc.
20 à 120 mm 0,8 à 20 kg NF A 45-001
(T à congés)
Tôles Il existe égale-
ment des tôles
à relief
largeurs ≤ 2 000
épaisseurs ≤ 15
NF A 46-501
NF A 46-402 (tôles à
froid).
Plaques largeurs générale-
ment > 2000 mm
NF A 46-503
NF A 46-504
Larges-plats largeurs : 150 à 850 mm
épaisseurs : 5 à 60 mm
NF A 46-012
Feuillards largeurs : 9,5 à < 600 mm
épaisseurs : 1 à 12 mm
NF A 46-100
Tôles galvanisées
Et/ou
Prélaquées
largeurs : 600 à 1 500 mm
épaisseurs : 0,25 à 5 mm
NF A 46-320
NF A 46-321
NF A 46-322
NF A 46-323
Produits pour béton,
Fils et barres 4 à 50 0,15 à 15 NF A 35-015 à 023
11
Produits transformés en acier – Profils creux pour construction (tubes) :
Désignation Forme de la
Section
Dimensions extrêmes
(mm)
Poids/mètre
extrêmes
(kg/m)
Normes dimensions
et tolérances
Profils creux
Ronds
extér : 21,3 à 1 620
épaisseur : 2,3 à 40
1 à 1 164
Profils creux
Carrés
côté : 22 à 350
épaisseur : 2,3 à 12 1,5 à 124
Profils creux
rectangulaires
35 x 20 à 400 x 300
épaisseur : 2,3 à 12 1,8 à 124
NF A 49-501 (finis à
chaud).
et
NF A 49-541 (finis à froid)
Profilés formés à froid (courants) :
Désignation Forme de la
Section
Dimensions extrêmes
(mm)
Poids/mètre
extrêmes
(kg/m)
Normes dimensions
et tolérances
Cornières égales
Ou inégales
15 x 1,5 ou 20 x 15 x 2
à
100 x 5 ou 100 x 50 x 5
0,3
à
7,5
Coulisses
11 x 30 à 200 x 80
épaisseur : 2 à 6 0,6 à 15,8
C
30 x 11,5 x 2
à
140 x 50 x 3
1,3 à 6
Omegas
17 x 25 x 12 x 1,5
70 x 38 x 30 x 4 0,8 à 6,5
Profilés en Z
120 à 250
épaisseur : 1,5 à 5 3 à 16,5
NFA 37-101
HEM : Ix > Iy (profil H renforcé) :
Ses membrures sont très épaisses et il est essentiellement utilisé comme pieux pour les
fondations (réserve de métal en cas de corrosion).
5.3. Section en U : Ix > > Iy
Ces profilés sont souvent choisis à cause des trois surfaces planes extérieures (de liaison)
qu’ils comportent. Associés entre eux ou à d’autres profilés ils peuvent constituer des poteaux
ou des poutres composés.
On les utilise seuls en flexion mais leur dissymétrie est généralement la cause d’une flexion
non plane. On dispose d’UPN et de UAP (faces des ailes parallèles).
5.4. Sections en L :
Les axes principaux d’inertie ne sont pas parallèles aux faces.
12
Les cornières sont surtout utilisées seules ou par paires comme éléments de poutres
réticulées travaillant en traction ou en compression (à vérifier au flambement) ou dans les
assemblages.
13
5.5. Profils creux ronds : Ix = Iy
Seuls ils sont utilisés comme poteaux.
On les utilise pour la fabrication de poutres à treillis planes en concurrence avec les poutres à
treillis à profilés ouverts. Par contre, ils sont pratiquement les seuls à être utilisés pour la
confection des éléments porteurs tridimensionnels (poutres, dalles).
5.6. Profils creux carrés (Ix = Iy ) ou rectangulaires (Ix > Iy ) :
On les trouve sous forme de poteaux ou sous forme de poutres pour les profils rectan-
gulaires. Ils peuvent constituer également les éléments de poutres à treillis.
REMARQUE :
Bien que les constructions en treillis creux présentent des caractéristiques intéressantes, elles
ne sont pas très épandues car leur mise en œuvre nécessite plus d’équipements et surtout
plus de savoir-faire que les constructions classiques.
Elles ne seront pas abordées dans la suite du cours.
5.7. Exemple de comparaison :
Il s’agit d’une poutre sur appuis simples devant supporter une charge répartie de 7 800 kg.
Les profilés sont calculés dans les mêmes conditions de sécurité.
Pour une portée 6 m, on trouve : Poids d’acier utilisé
• sans condition de flèche : (pour 6 m)
HEB 180 charge admissible 8 774 kg 307 kg
HEA 200 charge admissible 8 038 kg 253 kg
IPE 270 charge admissible 8 933 kg 217 kg
Profil creux carré 200 x 8 : 9 291 kg 268 kg
Profil creux rectangulaire 250 x 150 x 6 : 8 013 kg 214 kg
• condition de flèche = 300 (plancher courant
HEB 200 charge admissible 8 139 kg 368 kg
HEA 240 charge admissible 11 231 kg 362 kg
IPE 270 charge admissible 8 430 kg 217 kg
Profil creux carré 300 x 6 : 14 300 kg 327 kg
Profil creux rectangulaire 300 x 100 x 10 : 10 380 kg 343 kg
• condition de flèche = 500 (cloisons en maçonnerie)
HEB 240 charge admissible 9 589 kg 499 kg
HEA 260 charge admissible 8 959 kg 409 kg
IPE 330 charge admissible 10 248 kg 295 kg
Profil creux carré 300 x 6 : 8 447 kg 327 kg
Profil creux rectangulaire 300 x 200 x 8 : 8 102 kg 355 kg
Pour chaque cas, on peut contrôler que le profil immédiatement inférieur n’est pas suffisant (la
charge admissible est inférieure à 7 800 kg).
14
6. PRODUITS DERIVES DES PRODUITS SIDERURGIQUES :
Poutrelles reconstituées soudées « PRS » :
Les profils reconstitués soudés sont obtenus à partir de produits plats, assemblés sur un
équipement de sondage entièrement automatique. Les fabrications de type artisanal sont à
proscrire à priori.
Pour les poutres de grande portée et faiblement chargées, l’emploi de poutrelles du
commerce est peu économique (hauteur/poids : faible). On peut alors reconstituer un profil en
I de grande hauteur en PRS à partir de deux semelles et d’une âme en tôle. En utilisant
différente largeurs, épaisseurs et mêmes nuances, on peut créer des poutres très bien
adaptées aux charges qu’elles supportent.
Poutrelles ajourées :
Les poutrelles alvéolaires, que l’on appelle aussi poutrelles ajourées, expansées ou nids
d’abeille, sont obtenues à partir de poutrelles laminées à chaud, par découpage de l’âme
selon une ligne polygonale, et reconstitution par soudage des deux éléments dent à dent
(évidemment hexagonaux), ou après ajout de plats (« plaquettes ») intercalaires (évidemment
octogonaux).
pas M
h
h1
h’/2
h1
y
y
y
y
x xI
x x
y
y
a
e
b
V1
V2
h1
r
A
H
B
M/4
A B
M
M/4
3M/4 h1
h1
h'
h3
B A
B
A
M 2M/3
M/
3
M/3
h1
h1
h2 H
POUTRELLE D'ORIGINE COUPE AA COUPE BB MEMBRURE
EVIDEMENTS OCTOGONAUXEVIDEMENTS HEXAGONAUX
15
Ces poutrelles sont intéressantes pour obtenir des poutres en travées simples sur appuis
simples, supportant des charges réparties (pas de poteaux intermédiaires, pas de charges
roulantes) lorsque la portée est assez grande et la charge relativement faible (c’est-à-dire
lorsque la condition de flèche amène à surdimensionner beaucoup une poutrelle à âme
pleine).
Systèmes réticulés (réseau de barres) :
Par exemple, poutres et poteaux à treillis, mâts, pylônes, etc… c’est la façon la plus
« légère » d’éloigner la matière de l’axe neutre d’un élément porteur (on peut d’ailleurs
calculer le moment d’inertie équivalent).
7. MODES D’ASSEMBLAGES :
Les différents procédés d’assemblage couramment utilisés sont :
- le rivetage,
- le boulonnage par boulons ordinaires,
- le boulonnage par boulons à haute résistance (hr)
- le soudage.
L’utilisation des boulons hr est de plus en plus fréquente. On obtient un assemblage différent
par son calcul de celui obtenu par l’emploi des boulons ordinaires. Avec les boulons hr la
transmission des efforts s’effectue par l’adhérence des pièces en contact et non par
cisaillement du corps du boulon comme dans le cas des boulons ordinaires. Cette adhérence
résulte d’un serrage énergique du boulon hr qui peut travailler fortement en traction car il est en
acier à haute limite élastique. Le serrage nécessite une clé dynamométrique ou tout autre
moyen garantissant sa valeur.
Dans ce procédé, on peut se permettre un grand jeu (1 à 1,5 mm) dans les trous par rapport
au diamètre des boulons car il n’est pas prévu de contact entre le corps du boulon et les bords
des trous.
Les boulons hr sont coûteux, leur emploi n’est économiquement envisageable que sur chantier
pour assembler des éléments de charpente préfabriqués. De plus, pour que l’assemblage soit
conforme aux calculs, il faut beaucoup de sérieux et de savoir-faire dans la préparation des
pièces (sablage des surfaces de contact pour garantir l’adhérence), serrage des boulons hr
(nécessité de respecter la gamme de serrage) et étanchéification de l’assemblage.
Toutes ces raisons limitent la diffusion de cette technique dont les calculs ne seront pas
abordées dans la suite du cours.
8. LA CONSTRUCTION METALLIQUE EST REGLEMENTEE :
Les règles de calcul et les prescriptions réglementaires qui apparaîtront par la suite sont
extraites des règles CM 66, des normes NF et de certains DTU.
Certains phénomènes intervenant en construction métallique ne seront même pas abordés
bien qu’ils puissent dans certains cas conduire une structure à la ruine. Tous ces phénomènes
sont pris en compte par les règlements d’où le volume très important des recueils de norme et
l’existence de bureaux d’études spécialisés en charpente métallique.
Néanmoins, les quelques éléments de règlement qui seront abordés (une partie a déjà été vue
en structure), permettent de construire en toute sécurité si on les respecte et si on reste dans
les limites de validité des hypothèses sensées traduire la réalité concernant le matériau
(caractéristiques, formes,…), l’application des charges, le fonctionnement de la structure et
celui des assemblages.
16
L’application des règles exige un prédimensionnement des ouvrages (recherche des propor-
tions économiques) car toutes les méthodes de calcul sont en fait des méthodes de vérification.
RAPPELS :
Les règles CM 66 sont fondées sur l’hypothèse d’un comportement élast oplastique de l’acier
employé. C’est pourquoi, elles exigent d’une part, une limite d’élasticité garantie (est prise
comme base de toutes les vérifications) et d’autre part, un allongement A au moins égal à
20 % (adaptation).
Les charges et surcharges sont pondérées pour les vérifications de sécurité mais pas pour les
calculs des déformations.
Les valeurs limites des flèches couramment admises sont les suivantes :
- 1/500 de la portée, pour linteaux, poutres et éléments de planchers sous murs en
maçonnerie ou cloisons, et pour les poutres recevant des poteaux supportant eux-mêmes
planchers et toitures, ainsi que les éléments recevant des vitrages. (ex. 3 m de long ⇒ 6 mm)
- 1/300 de la portée dans les cas ci-dessus, avec les charges et surcharges pour les éléments
fléchis des planchers. (ex. 3 m de long ⇒ 10 mm)
- 1/200 de la portée pour les éléments fléchis de couverture, avec les charges et surcharges.
(ex. 3 m de long ⇒ 15 mm)
0.1 %
E=2.1*10
5
Mpa
20%
σe
σ
17
BATIMENTS A OSSATURE METALLIQUE
1. TERMINOLOGIE :
(Voir cours de Technologie de construction)
2. TYPES D’OSSATURES :
2.1. Seuls les combles sont métalliques :
L’infrastructure est généralement en maçonnerie porteuse ou en B.A. Les attaches de la
charpente sur les murs ou poteaux doivent faire l’objet de la plus grande attention car elles
doivent être capables de transmettre l’intégralité des efforts que subit la charpente, en
particulier les efforts de soulèvement dûs au vent.
Pour les petites constructions et les faibles portées (< 6 m) on utilise des pannes en profilé
directement fixées sur les murs pignons et les murs de refend.
toiture 3 ou comble
Long pan
Pignon
1
2
1 Poteau
2 Semelle
Sablière3
Poutre4
Traverse5
Linteau6
Poitrail7
8 Remplissage
Soubassement9
3
2
1
5
6
7
9
2
1
3
4
8
18
Au fur et à mesure que les portées et les surfaces couvertes augmentent, la structure
économique se compose :
- de poutres maîtresses (profilés, à âme pleine ou alvéolaire, fermes à treillis) supportant les
pannes en profilé.
- quand elles deviennent imposantes, on limite le nombre de fermes en les écartant
d’avantage et on a alors recours à des pannes alvéolaires ou en treillis.
Puis on a souvent intérêt à limiter le nombre de pannes composées que l’on appellera pannes
principales sur lesquelles viendront se reprendre, parallèlement aux fermes, des empanons ou
faux arbalétriers qui serviront eux-mêmes de support aux pannes secondaires en profilé.
Ce dernier type d’organisation de la structure est généralement associé à une infrastructure
métallique.
2.2. Ossature entièrement métallique :
Il existe deux grandes catégories d’ossatures que l’on pourrait appeler « planes » par
opposition aux structures tridimensionnelles qui ne seront pas abordées ici :
- les portiques à âme pleine ou alvéolaire et quelquefois à treillis (systèmes plans à contour
polygonal dont la rigidité est obtenue par un certain nombre d’encastrement des barres
entre elles).
PORTIQUES SIMPLES
a poutre et poteaux à âmes pleines e à piedroits à treillis
b d° à 2 versants f
c par encastrement ferme sur poteaux g semi-portique
d h portique à 3 articulations
i poutres et poteaux à treillis
- les fermes en treillis associés à des poteaux (profilés, composés ou treillis).
a d g
b e h
c f i
19
REMARQUE :
Une ferme à treillis encastrée sur deux poteaux peut constituer un portique.
La conduite des calculs sera différente pour chaque catégorie . On sera dans le cas d’un
portique lorsque la rigidité de l’attache entre montant et traverse pourra être considérée comme
un encastrement parfait qui imposera une dépendance mutuelle du montant et de la traverse
d’inerties respectives Im et Tt. L’autre catégorie concerne les fermes dont la raideur est telle
que l’on pourra les considérer comme indéformables.
3. STABILITE ET CONTREVENTEMENT :
3.1. Définitions :
On entend par contreventement, tout dispositif assurant la stabilité d’une ossature vis-à-vis des
efforts horizontaux (vent, ponts roulants, poussée des terres, …) et par extension ceux
assurant la stabilité transversale (flambement, déversement) de certaines parties de l’ouvrage.
Notion de stabilité : un ouvrage sera stable si, quelques soient les efforts qu’il sera amené à
subir, directs ou dérivés, provisoires normaux ou exceptionnels, ni il ne pourra s’effondre ni se
renverser mais également si le déplacement sera suffisamment faible pour ne pas
compromettre sa conversation ou la poursuite de son exploitation.
Les efforts subis devront donc pouvoir « cheminer » depuis leur zone d’application jusqu’aux
matériaux des autres corps d’état (murs, poteaux, fondations,…) par tous les éléments
constitutifs de l’ossature et de l’un à l’autre par leurs attaches sans provoquer la ruine de
l’ouvrage ou des désordres locaux.
La stabilité apparaîtra sous différents aspects :
 de l’ensemble  d’un élément
 statique  élastique
stabilité  définitive  provisoire
 horizontale  verticale
 longitudinale  transversale
Stabilité statique :
C’est l’étude de l’équilibre de tout ou partie de l’ossature constituée d’éléments supposés
indispensables. On rencontrera rarement de structures réellement isostatiques mais souvent
des structures hyperstatiques de degrés divers.
Stabilité élastique :
La stabilité élastique d’un élément d’ossature est réalisée lorsque son état de contrainte
demeure dans le domaine élastique de l’acier. C’est-à-dire, qu’il faut vérifier que les
contraintes de traction, de compression, de flexion, de cisaillement,
de torsion, etc… restent admissibles et ne risquent pas de provoquer un des phénomènes
d’instabilité élastique suivant :
- flambement (poteau, extrait de ferme…)
- déversement (membrures comprimées de poutre fléchie)
- voilement (déformation locale des âmes des poutres)
- cloquage (paroi cylindrique,…).
20
Des contreventements et entretoisements seront nécessaires pour se prémunir contre de tels
phénomènes.
Stabilité provisoire :
La stabilité de l’ossature doit être assurée à tout moment pendant la phase de montage. Il
faudra donc toujours faire une analyse minutieuse des efforts spécifiques pouvant solliciter
chaque élément pendant le montage (transport, manutention, mise en place,…). Des renforts
temporaires peuvent être nécessaires. Si le contreventement définitif doit être assuré par
remplissage, il faudra prévoir des contreventements provisoires en attendant l’intervention
des maçons et pendant la phrase de prise du béton.
Stabilité « horizontale » ou « verticale » :
Cette terminologie a rapport avec les plans dans lesquels est réalisée la stabilité.
Stabilité « longitudinale » ou « transversale » :
Cette notion concerne la direction de stabilité.
3.2. Contreventement d’ensemble :
Il faut d’abord faire le bilan complet des efforts horizontaux agissants sur l’ossature dans les
différentes directions, les différents sens et pendant les différentes phases.
Ces efforts ont pour origine :
- le vent (normal, extrême, longitudinal, transversal)
- les ponts roulants (freinage, tamponnement)
- les dilatations
- la poussée des terres
- les tassements différentiels des fondations
- les composantes horizontales des charges.
Contreventer consiste à résister à ces efforts horizontaux, les « recueillir » et les transmettre
au sol, tout en limitant les déformations.
La stabilité statique d’une ossature est généralement obtenue à l’aide de plans de contre-
ventement (plans rigides) disposés suivant les 3 directions de l’espace et organisés de telle
sorte que :
- les efforts horizontaux sont recueillis par des plans de contreventements horizontaux
- ces plans prennent appui sur les plans de contreventement verticaux parallèles aux efforts
à descendre au sol.
21
Exemple : soit l’ossature classique ci-dessous constituée de fermes sur poteaux
supportant une couverture et un bardage sur les longs-pans et ses pignons.
Tout effort F, d’inclinaison quelconque, peut se décomposer en un effort horizontal
longitudinal FL. un effort horizontal transversal FT et un effort vertical FV .
Il faut que ces trois composantes soient transférées aux fondations.
L’effort FV est transmis par les poutres au vent suivant versants aux sablières des longs-pans
puis aux fondations par les palées de stabilité triangulées des longs-pans.
L’effort FT est transmis par les fermes aux poutres au vent suivant longs-pans puis aux
fondations par les palées de terminologie :
FTFL
FV
F
Sablière
Contrevt suivant
versant Panne
Ferme
Faîtière
arbalétrier de pignon
montant de pignon
lisse de pignon
Ossature de pignon
Lisse de long pan
poteau
Palée de stabilité
longitudinale
Palée de stabilité
transversale
1
3
2
2
5
4
Contreventements
1 . longitudinaux
2 . transversaux
3 . de rampant
4 . d'entrait
5 . de poinçon
22
Constitution des plans de contreventement :
- par triangulation (croix de St-André, contre-flèche, système reticulé).
- par portique (les fermes et les sablières encastrées sur les poteaux peuvent constituer des
portiques).
- par remplissage (maçonnerie, dalle B.A., …).
REMARQUE :
Même s’ils participent partiellement au contreventement, les bardages et couvertures ne sont
pas pris en compte dans les calculs, sauf lorsqu’ils ont été étudiés pour cette fonction.
Soit à contreventer la structure ci-contre
(système instable – mécanisme) :
Solutions :
triangulation Portique Remplissage
encastrement
diagonale bielle
23
LES A S S E M B L A G E S
1. ROLE ET TYPES D’ASSEMBLAGES :
Les assemblages réalisent les liaisons entre les différentes pièces d’une structure métallique.
Ils assurent la transmission des efforts des pièces entre elles mais leur conception ne doit pas
générer des efforts secondaires. L’analyse des assemblages se fera dans des plans perpendi-
culaires entre eux, contenant les efforts et dans lesquels on rencontrera l’un des types de
liaisons planes suivantes :
Encastrement :
Liaison complète pouvant transmettre tous les types de sollicitations.
Articulation :
Elle ne peut pas transmettre de moment dan le plan qui la contient.
Appui simple :
Ne peut transmettre des efforts autres que ceux inclus dans le cône d’adhérence. L’axe du
cône est perpendiculaire aux surfaces de contact.
Les pièces assemblées pourront être soit en prolongement l’une de l’autre, il s’agira alors
d’un assemblage « bout à bout », de « couture », de « raboutage », appelé joint (éclissage
par exemple), soit concourantes et l’on parlera alors d’une attache ou d’un nœud (attache
poutre sur poteau, nœud de treillis, …).
Les assemblages sont classés en deux catégories selon les efforts transmissibles :
- assemblages rigides : efforts et moments sont intégralement transmis
- assemblages articulés : Ils transmettent uniquement les efforts normaux et tranchants.
Les assemblages réels ne sont ni parfaitement rigides, ni parfaitement articulés. Ils ont un
comportement intermédiaire et il ne sera pas toujours aisé de les classer.
24
Dans la pratique, un assemblage théoriquement rigide pourra être considéré comme une
articulation dans les cas suivants :
- il relie entre eux des éléments suffisamment flexibles. Par exemple : un nœud de ferme à
treillis ;
- son mode d’assemblage lui confère une certaine souplesse : selon le procédé d’assem-
blage utilisé, on distingue :
Les assemblages souples :
Ce sont ceux réalisés par boulons ordinaires (surtout s’ils ne sont pas ajustés), par rivets, par
boulons hr sur calamine.
Les assemblages rigides :
Ce sont ceux réalisés par soudage ou par boulons hr sur surface préparée.
- La conception de l’assemblage n’autorise pas la transmission d’un moment important.
C’est en particulier le cas des attaches entre profilés (ou poutres à âme pleine) lorsqu’elles
sont réalisées uniquement par les âmes.
Une analyse fine des microdéplacements, des déformations et des adaptations plas-tiques
possibles sera donc nécessaire pour classer un assemblage, c’est-à-dire évaluer son aptitude
à transmettre un moment. En cas de doute, il faudra envisager plusieurs hypothèses, étudier
le comportement dans chaque cas et choisir le cas qui offre le plus de sécurité. Mais
attention, lorsque l’assemblage est assimilé à un type, il doit garder ce type pour tous les
calculs de la structure.
REMARQUE :
Un même assemblage peut réaliser une articulation dans un plan et un encastrement dans un
plan perpendiculaire au précédent.
1. EXEMPLES D’ASSEMBLAGES :
2.1. Réalisant un encastrement :
A B C
Appui encastré encastrement boulonné hr encastrement soudé
25
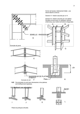
Ferme de hauteur relativement faible : une
Seule attache continue :
Solution A : fixation assurée par un H.
Solution B : fixation assurée par une platine
Soudée en bout avec un raidisseur vertical
(interrompu pour éviter de fendre la diagonale).
Exemple de jarret
N.B. : Ces goussets ne sont pas nécessaires si les platines
sont suffisamment épaisses.
2.2. Réalisant une articulation :
Pieds de portiques articulés.
SEMELLE - RAIDISSEUR
D
A B
G
RAIDISSEUR DE PLATINE
D'ABOUT
Exemples de clef
≥2h
h
Plats
E
F H
KJI
Sol fini
L
26
Sol fini
120
δ δ
boulons D20
18
9
8032
65
32
65
55
Noeud
PARTIE DE GOUSSET A NE PAS COUPER
COUPER (angle rentrant)
M
N
O
P Q
Articulation cylindrique
27
2.3. Réalisant un appui simple :
R
b
g θ
S
V W
T
IPE 500
U
12
12
15
néoprène
28
3. PRECAUTIONS CONSTRUCTIVES :
Les assemblages constituent des zones particulières plus fragiles que les zones courantes des
pièces, car les sections sont réduites du fait des perçages ou la nature de l’acier affaiblie par
chauffage du soudage. C’est pourquoi, il faut être particulièrement vigilant dans la conception
et le calcul des assemblages, afin de se prémunir contre tout risque de rupture brutale.
Il faudra calculer les éléments d’assemblage (boulons, cordons de soudure) mais aussi les
pièces assemblées. Mais un bon dimensionnement n’est pas suffisant, si la conception n’est
pas correcte. Il faut assurer à travers l’assemblage la transmission des forces sans créer
d’efforts ou de moments parasites. Pour cela, il faut respecter les dispositions constructives
générales suivantes :
- éviter les assemblages par recouvrement simple et utiliser si possible un assemblage
symétrique par double couvre-joint. A résistance égale, il est toujours plus économique.
- faire concourir les axes neutres des barres dans le système réticulés. Ce n’est souvent pas
le cas pour les treillis réalisés en cornières du fait de la non superposition des axes neutres
et des axes de trusquinage . Il faudra en tenir compte dans les calculs. Tous les axes
neutres des barres (simples ou composées) doivent se trouver dans un même plan qui est
le plan de symétrie de l’armature résistante et du système des forces appliquées.
Les assemblages des barres doivent être les plus courts possible (répartition des
contraintes, rigidité, économie) .
4. ASSEMBLAGES PAR BOULONS ORDINAIRES :
4.1. Fonctionnement d’un assemblage par boulons :
Sous faibles sollicitations, la résistance de l’assemblage est due à l’adhérence des faces des
pièces sous f’effort de serrage des boulons. Le coefficient d’adhérence acier/acier n’excédant
pas 0,35, dès que les sollicitations dépassent le seuil d’adhérence il y a glissement brusque
des pièces jusqu’à ce que les boulons bloquent le déplacement par appui dans les trous. Ceux
qui sont en contact travaillent alors au cisaillement. Les déplacements dépendent des jeux
(entre trous et boulons) dont la répartition est aléatoire si les pièces n’ont pas été usinées
simultanément. Comme on n’est jamais sûr de la valeur du serrage, on considérera toujours
que les boulons travaillent uniquement au cisaillement.
29
Dans la pratique, tous les boulons d’un même plan de joint ne seront pas soumis aux mêmes
efforts (ceux des extrémités seront plus chargées que ceux du centre) mais lorsque les
assemblages sont courts, on considérera que l’adaptation plastique des matériaux répartit
également les charges sur tous les boulons.
Simples cisaillement (à proscrire) Double cisaillement
Boulons employés : On utilise uniquement des boulons à Vis et Ecrou hexagonaux de
différentes qualités repérées par deux chiffres généralement forgés sur la tête de la vis (voir
normes).
Il existe deux sortes de vis :
- les vis des boulons ordinaires à corps brut
- les vis ajustée au corps usiné à un diamètre précis.
Compte-tenu de l’imprécision des assemblages réalisés à l’aide de boulons ordinaires, leur
emploi est limité aux constructions sommaires ou provisoires ou à la liaison de sous ensembles
en construction soudée ou rivée.
En raison des déplacement possibles, les assemblages par boulons ordinaires ne doivent pas
être soumis à des charges alternées.
4.2. Dispositions constructives et calculs :
Les assemblages par boulons ordinaires, non précontraints, leurs dispositions constructives et
leurs modes de calculs sont réglementés par la norme NF P 22-430.
En plus du calcul des boulons, il faudra vérifier la résistance de toutes les pièces de
l’assemblage (barres, goussets, …) dans leur zone de faiblesse. Pour les goussets par
exemple, il faudra rechercher la ou les lignes de déchirure possible.
Même lorsqu’un seul boulon suffirait à transmettre les efforts, les barres sont liées aux
assemblages par ou moins 2 boulons.
As
30
N O R M E S
1. SYMBOLES ET UNITES
1.1. Symboles
A : section nominale du boulon (de la tige lisse) ;
AS : section résistante de la partie filetée (voir norme NF E 03-014) ;
V1 : effort relatif à l’état limite ultime (effort pondéré), exercé sur un boulon
perpendiculairement à son axe, par une pièce d’épaisseur t ;
V2 : effort par un boulon relatif à l’état limite ultime (pondéré) exercé sur
l’assemblage ;
N : effort normal de traction relatif à l’état limite ultime (effort pondéré)
exercé sur chaque boulon ;
d : diamètre nominal des boulons ;
dtr : diamètre définitif des trous ;
s : distance entre axes des trous de boulons ;
a/ / : distance de l’axe d’un boulon au bord le plus voisin de la pièce
assemblée dans le sens de l’effort sollicitant l’assemblage (pince
longitudinale) ;
a⊥ : distance de l’axe d’un boulon au bord le plus voisin de la pièce
assemblée dans la direction normale à l’effort sollicitant l’assemblage
(pince transversale) ;
t : épaisseur d’une quelconque des pièces assemblées ;
tmin : épaisseur de la plus mince des pièces assemblées ;
Σt : épaisseur totale des pièces assemblées ;
m : nombre de plans de cisaillement ;
σe : limite d’élasticité du métal constituant les pièces assemblées ;
σred : contrainte caractéristique servant de contrainte de vérification des
boulons ;
ô : facteur de réduction de la résistance des boulons en fonction de la
longueur des assemblages.
Sx a//
Sy
a⊥
V
31
1.2. Unités :
- Efforts en newtons
- Limite d’élasticité en MPa (1)
- Contrainte caractéristique en MPa (1)
- Dimensions linéaires en millimètres
- Surfaces en millimètres carrés.
QUALITES DES VIS ET DES ECROUS
Les qualités des vis et des écrous sont celles définies par la norme NF E27-006 « Articles de
boulonnerie d’usage général – Spécifications techniques » pour les classes de qualité 4.6 –
4.8 – 5.6 – 5.8 – 6.6 – 6.8 – 6.9 – 8.8 et 10.9.
DISPOSITIONS CONSTRUCTIVES
1. CONDITIONS DE DISTANCE DES BOULONS :
1.1. Le diamètre des trous dtr
est égal au diamètre nominal des boulons augmenté de :
- 1 mm pour d ≤ 10 mm
- 2 mm pour 12 ≤ d≤ 22 mm
- 3 mm pour d ≤ 24 mm
1.2. Distances entre axes des boulons :
Files extérieures (sur le contour de l’assemblage)
- pour les pièces soumises aux intempéries ou situées dans des conditions favorisant la
corrosion :
3 dtr ≤ s ≤ 7 dtr
- pour les pièces non soumises aux influences précédentes :
3 dtr ≤ s ≤ 10 dtr
Files intérieures :
s ≤ s 30 tmin
32
1.3. Longueur maximale de l’assemblage :
Lorsque la distance entre le premier et le dernier boulon dans un assemblage n’est pas
supérieure à 15 dtr, la résistance de l’assemblage doit être considérée égale à la somme des
résistances des boulons concernés.
Mais lorsqu’elle dépasse 15 dtr la résistance n’est qu’une fraction ô de la somme des
résistances des boulons concernés.
Bien évidemment, cette limitation ne s’applique pas lorsque les efforts sont uniformément
répartis sur tous les boulons sur toute la longueur de l’assemblage : c’est-à-dire afin de
transmettre les efforts de cisaillement de l’âme à la semelle, ou de l’âme aux raidisseurs aux
appuis des poutres à âme pleine.
1.4. Pince longitudinale a/ / :
La pince a/ / doit être supérieure à la plus grande des valeurs :
Elle doit, cependant, pour éviter la corrosion, rester inférieure à 4 dtr pour les goussets pincés
entre deux pièces assemblées et à 2,5 dtr dans les autres cas. (Voir figure).
B1// 4 dtr pour les pièces pincées (1)
B2// 2,5 dtr pour les pièces extérieures (2)
0.7
0.8
0.9
1
15d 30d 45d 60d 65dtr
0.05/10dtr
δ
d
d
a2 a2
(2)
(2) V
V
V/2
V/2
V
(2)
(2)
(1)
a2a1
33
1.5. Pince transversale a⊥ : 1,5 dtr ≤ a⊥ ≤ 2 dtr
1.6. Conditions d’épaisseur des pièces assemblées :
Fourrure :
Si une cale destinée à rattraper une tolérance de laminage ou de fabrication d’épaisseur
supérieure à 0,2 d est interposée entre les pièces transmettant des efforts, elle doit être fixée
par soudage.
Epaisseur des pièces élémentaires :
Les pièces assemblées étant classées par ordre d’épaisseurs décroissantes, en appelant t2
l’épaisseur de la deuxième, les relations suivantes doivent être respectées :
d ≥ t2 + 2 mm avec t2 ≤ 20 mm
d ≥ 22 mm avec t2 ≤ 20 mm
Epaisseur totale Σt :
Si une fourrure n’est pas fixée par soudage (épaisseur de la fourrure inférieure à 0,2 d), la
relation suivante doit être respectée :
Σt ≤ 4d
Sans limitation dans le cas contraire.
1.7. Pression diamétrale :
Dans le cas où des déformations appréciables apporteraient une gêne à l’exploitation :
dt
V1
≤ 2 eσ
Dans le cas des assemblages boulonnés courants :
dt
V1
≤ 3 eσ
34
CALCUL DES BOULONS
1. CONTRAINTE CARACTERISTIQUE :
La contrainte caractéristique servant à la vérification des boulons est la plus petite des deux
valeurs suivantes :
- valeur de la limite d’élasticité garantie ;
- valeur égale au 7/10 de la contrainte de rupture minimale garantie.
Contrainte caractéristique pour les classes de qualité
de la norme NF E 27-005
CLASSE DE QUALITE 4.6 4.8 5.6 5.8 6.6 6.8 6.9. 8.8. 10.9
σred (MPa) 240 280 300 340 350 410 410 550 670
2. SECTION DE CALCUL :
Suivant la nature des efforts auxquels est soumis l’assemblage, les vérifications de la résistance
du boulon font intervenir :
- soit la section A de la tige lisse ;
- soit la section résistante As de la partie filetée, donnée par la norme NF E 03-014.
3. RESISTANCE DES BOULONS :
3.1. A la traction :
On vérifie :
1,25
sA
N
≤ redσ
3.2. Au cisaillement :
- Si aucune précaution spéciale n’est exigée pour l’exécution, on vérifie :
1,54
smA
V 2
≤ redσ
- Si des dispositions spéciales sont prises pour que la partie lisse du boulon règne au droit
de TOUTES les sections cisaillées, on vérifie :
1,54
mA
V2
≤ redσ
35
3.3. A un effort incliné sur le plan du joint :
Admettant par boulon, une composante normale N suivant l’axe du boulon et une composante
V2 dans le plan du joint :
- dans le cas où la section cisaillée se trouve dans la partie lisse, on vérifie simultanément :
1,25
SA
N
≤ redσ et
A
m
V
N
2
22
36,2 





+
≤ redσ
- dans le cas où la section cisaillée se trouve dans la partie filetée, on vérifie simultanément :
1,25
SA
N
≤ redσ et
SA
m
V
N
2
22
36,2 





+
≤ redσ
DIAMETRE DES TROUS :
Le diamètre des trous dtr est égal au diamètre nominal des boulons d augmenté de :
1 mm jusqu’à d ≤ 10 mm
2 mm pour 12 ≤ d ≤ 22 mm
3 mm pour d ≥ 24 mm
Diamètre Tôles et Cornières Ailes de U Ailes de pou-
CLASSE Charges en tonnes Charges en tonnes
du ames de De de trelles H de
4.6 non pondérées Pondérées
boulon Profilés Largeur hauteur profils de
d d’épaisseur d’aile (mm) dimensions
(mm) (mm) (mm) nominales de
Ø mm
Section
Résistante
AS (mm2)
Traction
Cisaille-
Ment Traction
Cisaille-
Ment
8 36.6 0.47 0.38 0.70 0.57 8 2 30
10 58.0 0.74 0.60 1.11 0.90 10 3 35
12 84.3 1.07 0.87 1.61 1.31 12 4 40-45 80
14 115 1.47 1.19 2.20 1.79 14 5 50 100 à 130 100 et 120
16 157 2.01 1.63 3.01 2.44 16 6 60 140 à 160 140
18 192 2.45 1.99 3.68 2.99 18 7 70 175 et 180 150 et 160
20 245 3.13 2.54 4.70 3.81 20 8 80-90 200 et 220 180
22 303 3.87 3.15 5.81 4.72 22 10 à 14 100-120 240 à 300 200 à 240
24 353 4.51 3.67 6.77 5.50 24 > 14 >120 >240
Les boulons sont sauf stipulations contraires du marché, montés sans rondelles.
Les têtes des vis et les écrous doivent porter convenablement sur toute la surface de contact avec
les pièces assemblées.
Dans le cas d’assemblages à faces obliques, le boulon doit être muni de rondelles biaises.
36
ASSEMBLAGE DES PANNES
Les pannes, qui ont pour fonction de supporter la couverture, sont disposées parallèlement à la
ligne de faîtage, dans le plan des versants.
Disposées à extraxes constants, elles sont jumelées au faîtage (pannes faîtières) et peuvent être
renforcées en rive pour reprendre des efforts horizontaux dûs au vent (pannes sablières). Leur
portée correspond à l’entraxe des fermes (travée) et leur extraxe est déterminé par la portée
possible des bacs de couverture.
Dans la majorité des cas, les pannes sont constituées de poutrelles laminées IPE, leur poids
moyen ramené au m2 de toiture oscillant aux alentours de 5 à 7 daN/m2. Elles peuvent être
également réalisées en profilés minces (tôles pliées à froid), en section de Z, U ou Σ .
Les pannes sont calculées pour satisfaire aux conditions de résistance (flexion déviée), et aux
conditions de déformation (flèche maxi < 1/200 portée).
Liaison panne / panne :
Le raccordement de deux pannes entre appuis est rarement réalisé par boulonnage. Si c’est le
cas, la continuité n’est assurée qu’à la condition d’utiliser des éclisses de module d’inertie
voisin de celui des pannes et d’assembler le joint au moins trois boulons sur chaque panne (2
boulons ajustés ou HR).
Liaisons s’opposant au déversement des pannes :
La faible inertie transversale des profils des pannes conduit, dès que la pente des toits atteint 8
à 10 %, à leur flexion transversale. Pour limiter ce phénomène, on préfère créer des appuis
intermédiaires plutôt que d’augmenter la section des profils.
37
TYPES DE LIERNES :
1. Liernes en ronds :
Une solution consiste à relier les pannes
entre elles par des liernes situées à mi-
portée ou au tiers de la portée. Ces liernes
sont des tirants, qui fonctionnent en traction
et qui sont soumis à des efforts croissants,
au fur et à mesure qu’ils se rapprochent du
faîtage. Les efforts de traction sollicitant les
liernes ne peuvent pas être repris par les
pannes faîtières qui périraient
transversalement. Ils sont donc transmis
aux fermes ou aux portiques par des tirants
en diagonale.
sablière
Lierne
Pannes faîtières
lierne
tirant
Lierne
Panne
Panne
Lierne
Lierne
Panne
A crochets (pas de réglage)
A crapauds (pas de réglage) Usinage précis nécessaire
2. Liernes en plats
3. Liernes en
cornières ou en U
entretoise
faîtière
Panne
Lierne
A filetages (réglage facile)
38
Les couvertures légères (tôles ondulées, bac alu, etc…) peuvent sous certaines conditions (voir
catalogues constructeurs) jouer le rôle de liernes. Dans ce cas :
- les pannes faîtières sont reliées entre elles par des entretoises
- les portées des pannes sont limitées (4 à 5 m).
Liaison panne/ferme ou portique :
Les pannes sont posées sur les arbalétriers et assemblées par boulonnage. Les appuis sont
considérés comme libres et articulés.
Boulonnage direct : il est rarement possible étant donnée la faible largeur des ailes des
poutrelles.
Liaison par échantignole :
Les boulons et les dimensions de l’échantignole doivent être calculés.
REMARQUE :
Pour limiter la flèche des pannes on a intérêt à utiliser des pannes continues sur trois appuis.
Au signe près les contraintes sont identiques au cas isostatique des pannes reposant sur deux
appuis mais les flèches sont réduites de plus de 60 %. Il faut dans ce cas, disposer les joints
de pannes en quinconce sur l’arbalétrier du fait des valeurs différentes des réactions d’appui.
Liaison panne/mur :
Appui mobile :
Ce type d’appui est nécessaire lorsqu’aucun effort ne doit être transmis du mur à la charpente
et réciproquement (dilatations différentielles possibles).
- en sommet de mur, cet appui peut être réalisé sur une platine liée à la maçonnerie et une
liaison par crapaud de la panne sur la platine.
- contre un mur on peut réaliser les dispositions suivantes :
(de preference) (à éviter)
39
Appuis fixes :
Ils doivent assurer une liaison efficace de la panne et du mur et la transmission des efforts
longitudinaux apportés par les pannes au mur, ou par le mur aux pannes. La solution avec
boulon d’ancrage est préférable.
coupe A-A
A A
40
ASSEMBLAGE DES FERMES
Liaisons « internes » :
Dans les fermes réticulées, les liaisons entre barres sont réalisées par soudure, quelquefois
par rivets ou boulons HR, mais pratiquement jamais par boulonnage ordinaire. Par contre, par
commodité de transport ou de montage, on est souvent amené à réaliser des fermes en
plusieurs parties qui seront assemblées par boulonnage sur le chantier.
Avant de calculer les assemblages, il est nécessaire de dimensionner correctement toutes les
barres.
Les longueurs de flambements des barres qui conditionnent le dimensionnement de la plus
grande part d’entre elles se déterminent d’après la distance sur épure des points fixes dans
le plan de flambement.
Dans le plan des versants, les points fixes des arbalétriers sont ceux qui sont reliés par les
pannes aux nœuds des poutres de contreventement (fig. a) et dans le plan des entraits on
prend pour points fixes ceux qui sont reliés à ces mêmes nœuds par l’intermédiaire des
contreventements verticaux :
- pannes en treillis
- croix de Saint-André
- bracons sous pannes.
Toutefois, pour les fermes de faibles portées en nombre réduit, on peut considérer les
pannes intermédiaires comme points fixes si elles sont attachées dans les pignons à des
éléments suffisamment rigides (fig. b).
Longueur de flambement des arbalétriers dans le plan des versants
RAPPEL :
Longueurs de flambement dans le cas des treillis symétriques soumises à compression
constante :
If = 0,810 dans le plan de la ferme pour les treillis
If = 0,910 dans le plan de la ferme pour les membrures
If = 10 dans le plan perpendiculaire à la ferme pour toutes les barres.
U Feuillure
de pignon
ba
Croisement des
diagonales non
fixées à la panne l l
Panne fixées au
croisement des
diagonales
Ferme
Ferme
l
Ferme
41
ATTENTION :
Contrôler impérativement le risque de flambement de l’entrait :
- sous l’effet de soulèvement dû au vent
- sous l’effet du vent sur le long-pan en cas d’absence de poutre au vent.
On pourra renforcer le faîtage par :
- des couvre-joints des ailes des cornières, placés sous les ailes pour les arbalétriers
comprimés si au contraire l’effet de traction est prépondérant (soulèvement dû au vent),
on renforcera par un couvre-joint placé au-dessus des ailes.
Compression prépondérante Traction prépondérante
Dispositions
Disposition correcte Flambement du gousset de
42
- des cornières de doublage : elles sont
meulées et soudées en angle. Leur
usage est recommandé dans le cas de
couvertures légères en région de fort
vent. On obtient ainsi une résistance
sensiblement équivalente en traction et
en compression.
Le gousset d’entrait doit être renforcé suivant les mêmes principes, avec la précaution
supplémentaire de ne pas dessiner un gousset à angle rentrant dans le cas d’un entrait
retroussé (voir fig. Q page 26).
Les renforts précédents ont pour autre avantage d’éviter les déformations pendant la
manutention.
Solidarisation des barres comprimées :
Pour deux cornières placées dos à dos, on
prévoira des boulons de solidarisation avec
rondelles maintenant l’écartement.
Pour deux cornières placées en croix, on
Prévoira des barrettes en plats soudées ou
fixées par deux boulons au moins sur chaque
cornière.
Cornières 30 35 40 45 50 60
Espacement 285 340 375 435 475 575
Cornières 70 80 90 100 120 150
L’espacement des liaisons sera au
maximum de 50 fois le rayon de giration
minimal de chaque cornière, c’est-à-dire
un peu moins de 100 fois l’épaisseur.
La non observation de ces règles peut
entraîner un flambage de chaque cornière
indépendamment de l’autre.
Espacement 675 775 875 970 1175 1460
Nombre minimal des liaisons : 2 par barre au moins.
Solidarisation des barres tendues :
La solidarisation des barres tendue est souhaitable pour éviter, dans chacune des barres
élémentaires, la création de moments secondaires et les déformations correspondantes.
Rectitude des barres comprimées :
Elle doit être rigoureuse sous peine d’amorçage du flambement. Elle peut être obtenue par
une légère pré-tension au montage.
Continuité des membrures :
La continuité des membrures principales doit être assurée dans une large mesure par des
couvre-joints ; pour limiter l’épaisseur des goussets, il est en effet souhaitable de limiter leur
rôle à la transmission des efforts entre barres secondaires (diagonales, montants, contre-
ventements, …) et membrures.
de doublage
Alternés
43
Calcul des couvre-joints :
Pour les cornières doubles, ils sont obligatoirement combinés avec une fourrure.
Les couvres-joints d’angle sont soit en
cornières meulée, soit en tôle pliée.
A résistance égale, la liaison (2) exige plus de boulons que la liaison (1) et ne doit être
employée qu’avec des boulons ajustés ou des boulons HR lorsque l’assemblage est comprimé.
Pour que la fourrure, souvent très sollicitée, travaille en traction simple ou en compression
simple, il faut que ces perçages soient centrés sur son axe de symétrie. Cette disposition a
pour autres avantage de donner une fourrure sans sens de pose donc sans risque d’erreur au
montage.
Si malgré tout la fourrure n’est pas symétrique (par exemple si elle a la même largeur que les
cornières), pour rester proche de l’hypothèse de calcul précédente, on ne tiendra compte dans
les calculs que de la section symétrique par rapport aux trous.
Le dispositif est hyperstatique lorsqu’un élément (fourrure ou couvre-joint) arrive à la limite
élastique, tout supplément de charge est intégralement transféré aux autres (comportement
élasto-plastique de l’acier).
Lorsque le joint transmet un effort tranchant important, les boulons seront situés le plus près
possible des extrémités des membrures (pince du premier boulon minimale) pour diminuer
l’importance du moment dans les éléments d’assemblage.
Les goussets :
Les goussets sont assez fréquemment les points faibles de la construction réticulée, car ils
travaillent dans des conditions défavorables aux points où les membrures sont interrompues
(arbalétrier, entrait) sont interrompus et même déviés. Bien que le calcul des goussets ne soit
pas justifiable des théories classiques de Résistance des Matériaux, On obtient avec celle-ci
une approximation suffisante.
Tracé des goussets :
- la forme d’un gousset doit permettre une répartition convenable des efforts des barres. Il
faut donc éviter les angles trop aigus.
- la forme d’un gousset doit être telle que le centre de gravité des boulons d’attache soit sen-
siblement confondu avec le point d’intersection des axes d’épure des barres fixées sur lui.
1 2
mauvais bon
44
- au croisement de deux diagonales, le gousset
doit présenter la même résistance que la
diagonale interrompue.
- autant que possible, les goussets d’un
système réticulé sont tous de même
épaisseur et de même forme.
- les dimensions des goussets doivent être
aussi réduites que possible dans les limites
imposées par la disposition des nœuds et la
sécurité des attaches.
Pour ce faire, l’écartement des boulons
est généralement réduit au minimum
admissible.
- la forme des goussets doit être aussi régulière que possible avec au moins deux bords
parallèles ou perpendiculaires. Cela conduit parfois à augmenter le nombre de boulons
strictement nécessaires lorsque les barres sont attachées par une seule file de boulons, les
angles des goussets ne sont pas abattus. Ils doivent l’être au contraire lorsque les barres
sont attachées par plusieurs files de boulons.
Calcul des goussets :
Il s’effectue en vérifiant les sections de rupture possibles (lignes de déchirure).
Les goussets de faîtage ou d’entrait doivent être d’une épaisseur au moins égale à celles des
cornières assemblées. Dans le cas où aucun renfort n’est prévu, vérifier le gousset dans la
section du plan de faîtage où il travaille en flexion déviée.
Liaisons « externes » :
Liaison ferme/poteau :
Articulation : l’attache des fermes peut être une « articulation » approximativement réalisée
par le repos direct de la pointe de la ferme sur la tête du poteau ou même par une attache
latérale lorsque les charges verticales sont prépondérantes.
45
Si l’entrait et l’arbalétrier n’aboutissent pas au même gousset, il faut prévoir des trous ovalisés
au gousset d’attache de la barre prolongeant l’entrait jusqu’au poteau, afin d’éviter le
flambement de cette barre ou des désordres dans les maçonneries de façade.
Encastrement :
Dans ce type de liaison, les attaches sur poteau
sont soumises à des efforts verticaux dûs aux
charges et des efforts horizontaux dûs au moment
d’encastrement de la ferme.
Il est toujours préférable de prévoir un gousset
unique pour l’attache de l’arba-létrier et de l’entrait.
BARRE SUPERFLUE
Poteau
Bon
Dispositions permettant
une bonne attache du
contreventement et un
assez bon
encastrement
Bonne attache
a
c
b
d
e
Mauvaises dispositions
d'encastrement:
les efforts passent en
dehors des attaches
Attache
d'une ferme
encastrée
Attache de
continuité
46
Liaison ferme/maçonnerie : la verticale de l’épure de la diagonale d’extrémité ou de l’arba-
létrier doit passer en principe au milieu de la surface d’appui.
Si cette condition n’est pas réalisée, le nœud est soumis à l’action d’un couple égal au produit
de la réaction d’appui par sa distance à l’épure. Le gousset a pour seul effet de répartir les
moments fléchissants entre les deux barres (ou les trois) proportionnellement à leur raideur. Il
peut résulter de cet effort « secondaire » des déformations permanentes qui peuvent être
dangereuses.
Si la diagonale d’extrémité est très couchée, il vaut mieux interrompre l’entrait pour l’attacher
correctement que de déplacer le point d’épure inconsidérément. Si les fermes doivent
apporter à la maçonnerie ou recevoir d’elle des efforts horizontaux, les boulons d’ancrage
devront être associés à une butée noyée dans le scellement.
Contreventement des fermes :
Contreventements verticaux : ils sont généralement formés de deux cornières en croix
attachées sur les montants des fermes. La triangulation est fermée par les pannes. Dans les
travées extrêmes, une diagonale renforcée doit généralement être prévue, soit pour
maintenir l’entrait de la dernière ferme, soit pour l’appui du montant intermédiaire de pignon
correspondant.
Ils peuvent aussi, lorsque les fermes sont de faible hauteur, être constitués par des bracons
reliant les pannes aux montants des fermes, formant ainsi des portiques assez rigides pour
s’opposer à un déplacement relatif des pieds et des traverses, c’est-à-dire faisant bénéficier
les entraits des points fixes des arbalétriers.
Moment d'excentrement RL
Mauvaise
disposition
Dispositions correctes
F
M=Fe
Mauvaise disposition
Disposition correcte
47
Contreventements des versants : les goussets de liaison des diagonales, sans angle
rentrant, sont solidaires de la panne et de l’arbalétrier si possible ou de l’un des deux.
Nœuds de contreventement
La solution (4) impose de fortes sollicitations à certains boulons ; il faut l’éviter à priori ou la
justifier par un calcul.
Pour éviter une flèche trop grande des diagonales sous leur poids propre, on peut les
suspendre aux pannes qu’elles croisent.
Gousset sous les
échantignolles
(cas d'une panne
renforcée HEA
100 remplaçant la
panne IPE 100
courante)
Gousset sous
l'arbalétrier
Demi-goussets
2
3 4
goussets
soudés
ferme
panne
diagonale
1
48
ASSEMBLAGE DES PORTIQUES
Les assemblages de portiques sont réalisés exclusivement à l’aide de boulons HR.
Voir exemples fig. D, E, F page 25.
49
ASSEMBLAGE DES POTEAUX
Liaison poteau/fondation :
Les efforts verticaux dirigés vers le bas sont transmis par appui direct au moyen d’une
platine de surface suffisante pour que les pressions maximales sur les fondations restent
dans les limites admissibles correspondant au matériau, et d’épaisseur telle que la
répartition des charges s’effectue correctement.
Les vérifications des platines portent sur leur résistance à la flexion (raidisseurs compris)
correspondant à l’hypothèse d’une répartition linéaire des pressions sur les fondations.
Les efforts verticaux dirigés vers le haut sont transmis au moyen d’ancrage : tiges à
extrémités filetées droites, à crosse, avec barre transversale, etc…. qui sont noyés, après
réglage des poteaux, dans un mortier de remplissage des logements réservés à cet effet
dans les massifs.
Exceptionnellement et moyennant de grandes précautions (tracé soigné et fourniture de
gabarits rigides), on peut sceller à l’avance les tiges d’ancrage ce qui donne une grande
rapidité de montage.
Les moments d’encastrement sont transmis aux fondations par la combinaison e
compression sous un bord de la platine et de traction dans les tiges d’ancrage à
l’extrémité opposée, lorsque la platine est en surface ou bien par compression horizontale
au contact des ailes des poteaux noyés dans le béton. Comme pour les platines, il peut
être nécessaire de raidir les ailes si elles sont trop flexibles.
Les efforts horizontaux ont deux modes de transmission :
- par frottement de la platine sur le béton dans la limite ou l’effort horizontal est inférieur
à 0,36 fois l’effort vertical vers le bas appliquant la platine sur la fondation. La
vérification de cette possibilité doit être faite dans le cas le plus défavorable (très
souvent avec le vent exceptionnel, l’effort vertical étant égal à la différence entre l’effort
de soulèvement et l’effort exercé par les tiges d’ancrage).
- par butée directe sur le béton : pied noyé dans le béton ou bêche d’ancrage dans le cas
de poteaux articulés.
Fichage : intervalle de
Réglage généralement
Compris entre 3 et 5 cm.
Bêche
50
Poteau articulé :
Le cas le plus courant consiste en une semi-articulation suivant l’axe de la ligne des boulons, et
un encastrement dans le sens perpendiculaire (fig. J et L page 25).
Les cas d’articulations plus élaborées correspondants aux figures I, K, M et N sont plus rares. Il
faut veiller à la désolidarisation des poteaux articulés et du revêtement de sol environnant,
sous peine de fissuration de ce dernier.
Calcul :
surface de la platine :
Elle est déterminée par la condition :
b
ba
N −
≤= σσ
.
épaisseur de la platine :
L’effort à droite de la ligne 1.1 est :
ubF ..σ=
Le moment correspondant a pour valeur :
2
..
2
.
2
U
b
U
FM σ==
Le moment résistant élastique de la platine est :
V
M ee
1
σ= avec
6
1 2
bt
V
=
Il faut donc vérifier que :
62
22
btU
ab eσ≤ , soit
e
Ut
σ
σ3
≥
Inversement, si t est fixé à priori, le problème sera de
vérifier la contrainte de flexion σ au droit de la ligne de
pliage.
Soit :
2
3






≤
U
teσ
σ
N centré
51
Goujons d’ancrage :
L’effort admissible par scellement, dans le cas de goujon
Avec crosse, fixé par les règles CM 66 (article 5,123), vaut :
1,0=aN 





+
000.1
7
1
gc
12
1
(
1
λ






+
d
φ
φ
+ 6,4r + 3,5 1λ )
gc étant le dosage en ciment du béton (Kg/m3
) et les valeurs
courantes étant :
r = 3 φ 1λ = 2 φ 1λ = 20 φ (cf. fig ci-dessous)
φ
52
Poteau encastré :
par platine et boulon d’ancrage : la platine est généralement renforcée pour éviter sa
déformation.
Calcul :
Dans ce cas, le poteau est sollicité en pied par
un effort normal centré N et un moment de
Flexion M, ce qui est équivalent à un effort
vertical N excentré de
N
M
Les boulons situés sur le côté opposé à l’effort
N sont soumis à un
effort de traction et le béton situé du côté de
l’effort N est soumis
à un effort de compression avec répartition
triangulaire (figure ci-contre).
- Effort de traction sollicitant les boulons de
gauche :T = A. aσ
- Effort de compression sollicitant le béton
sous la platine : C = '
2
1
bh bσ
Si n est le coefficient d’équivalence acier-béton






=
b
a
E
E
n , on a :
aσ = n bσ
'
'
h
hh −
Ecrivons l’équilibre des forces : N + T = C et
celui des moments :
C =





−
3
'h
h N λ = (C-T)λ
La combinaison des 3 relations précédentes conduit à (en faisant n = 15) :
h’ 3
+ 3 (λ-h) h’ 2
+ 90 A 'h
b
λ
- 90 A
b
λ
h = 0
La résolution permet d’obtenir h’ et par la suite de vérifier aσ et bσ :
aσ =
3
'
3
'
h
h
h
hN
−
+−λ
≤ aσ et bσ =






−
3
'
2
'
h
hbh
Nλ
≤ bσ
l
Section A
b
T
h'/3
h'
c
σb
σa/n
h
M
e
NN
53
Par scellement :
lorsque l’excentricité M/N de la résultante d’appui est
grande, on peut sceller directement le poteau dans
un logement réservé.
Des précautions doivent être prises pour éviter que le
poteau n’écrase le béton au voisinage de la surface :
réduction des pressions sur le béton par
augmentation de la longueur de scellement,
raidissement des ailes si celles-ci sont flexibles.
Il faut prévoir une platine en bout pour éviter l’effet de
couteau en cas de fortes charges ou d’effets
dynamiques.
Calcul :
La formule :
bσ =
bh
H
2
+ 





+
2
Hh
M x 2
3
bh
= 2
32
bh
MHh +
Suppose que les deux ailes participent à la répartition des pressions sur le béton et qu’elles
résistent aux flexions résultant des pressions ainsi calculées. bσ doit rester inférieure aux
contraintes de compression admissibles en surface.
Palées de stabilité :
Si le fonctionnement de la structure impose des palées de stabilité (cas des poteaux articulés par
exemple) les diagonales sont liées par une extrémité aux pieds des poteaux et à l’autre extrémité
à la sablière. Il faut de plus une liaison des deux diagonales à leur croisement.
Le point d’épure inférieur des palées sera le plus près possible du niveau du sol pour limiter au
maximum la flexion secondaire des pieds de poteaux. Si leur gousset d’attache est fixé sur l’âme
du poteau, il doit aussi être attaché horizontalement à la platine.
(Efforts directement transmis au sol)
M
H
h
b
PEU SOUHAITABLE
(effort secondaire à vérifier)
PREFERABLE
54
5. ASSEMBLAGES PAR SOUDAGE :
Le terme soudage est réservé à l’opération qui consiste à assembler des pièces, par fusion ou
plastification de leur zone de contact et mélange intime de leur matériau.
La soudure est la zone de liaison des pièces. Ce terme désigne également le procédé
d’assemblage.
Lorsque la matière est portée à l’état plastique, il est nécessaire d’appliquer une pression de
contact des pièces à assembler.
Lorsque la matière est portée à l’état fondu, il suffit que la masse fondue des deux pièces se
mélange intimement de manière à former, après refroidissement, une zone d’interprétation.
Le soudage implique donc :
- l’existence d’une source de chaleur qui peut être d’origine électrique (arc, résistance),
chimique (combustion de gaz), mécanique (friction, choc).
- une aptitude du matériau à être soudé, appelée soudabilité. La soudabilité dépend des
qualités propres du matériau (tous les matériaux ne sont pas soudables), des affinités
relatives entre matériaux (deux matériaux, par ailleurs soudables, peuvent ne pas l’être
entre eux) mais également de paramètres limitatifs tels que :
• les transformations de la structure du matériau sous l’effet de la chaleur, peuvent
conduire, par exemple, à sa fragilisation, à la chute de ses caractéristiques méca-
niques ou encore à une augmentation de sa susceptibilité à la corrosion.
•l’apparition de fissurations et de criques au refroidissement
• l’apparition de déformations des pièces dues aux effets de la dilatation et du retrait
• le risque de fortes contraintes internes résiduelles.
En tant que procédé d’assemblage, le soudage présente de nombreux avantages mais
nécessite d’observer certaines précautions dont les plus importantes sont résumées au
paragraphe 5.2.
Par rapport au boulonnage, le soudage :
- assure la continuité de la matière, et de ce fait garantit une bonne transmission des
sollicitations.
- limite l’utilisation de pièces secondaires (goussets, attaches, …)
- est moins encombrant et plus esthétique.
Par contre, il impose :
- un métal de base soudable
- un contrôle des soudures (onéreux)
- une main-d’œuvre qualifiée difficile à contrôler (essais d’agrément)
- un matériel spécifique (lourd, onéreux, pas toujours autonome).
55
L’association soudure/boulons ordinaires est interdite en raison de la différence de leur mode
de fonctionnement. Ces deux assemblages ne peuvent donc se compléter mais seulement
se remplacer pour la totalité des efforts à transmettre. Il faut donc être très prudent en
particulier lorsqu’on envisage un « renforcement » par soudure d’un assemblage boulonné.
5.1. Les procédés de soudage :
Le tableau synoptique de la page suivante, résume les principaux procédés de soudage
(soudage autogène) et de brassage appelé aussi soudage hétérogène.
En construction métallique, les procédés les plus courants actuellement sont :
- l’arc électrique avec électrode fusible enrobée
- le chalumeau oxyacétylénique
- le soudage électrique par point.
56
CHIMIQUE
ELECTRIQUE
PHYSIQUE
MECANIQUE
Sources
d'énergie
SOUDAGE
aux gaz
à l'arc
par résistance
par ultra-sons
à froid par
choc
BRASAGE
DIVERS
à la flamme
à la lampe
à la forge
au chalumeau
BRASAGE TENDRE
BRASAGE FORT
Travail unitaire
SOUDO-BRASAGE
ETAIN
PLOMB
LAITON +
BORAX
au fer
Electrique
ou chauffée
à la flamme
au four
électrique
Rayonnement
ou induction
bain de sels
nitrites, chlorures
O2
C2H2
Au chalumeau OA
au autres gaz
électrode couchée
-
+
électrode aux et flux
électrode enrobée
sous flux
électro-conducteur
bobine
électrode enrobée
+
-
procédé MIG
-
gaz
-
baguette
procédé TIG
+
étincelagechauffage direct
par points à la molette par brossages
avec électrode fusible
avec électrode réfractaire
par rapprochement
par recouvrement
Sous flux gazeux
Argon ou CO2
BRASAGE
Travaux
De série
57
En charpente les assemblages de profilés se font à l’arc électrique. Dans ce procédé, l’arc
électrique est créé entre une électrode fusible et les pièces à souder, grâce à un générateur
de courant, continu ou alternatif, de faible voltage, mais de fort ampérage (de 50 à 600
ampères). L’arc provoque la fusion progressive du métal de l’électrode et celle des deux
pièces au point d’impact. Les particules fondues de l’électrode sont projetées sur les pièces au
travers de l’arc. Il suffit alors de déplacer l’électrode le long du joint d’assemblage pour
constituer un cordon continu de soudure. Le phénomène de projection permet de faire des
soudures dans toutes les positions.
Les électrodes sont constituées d’une baguette de métal d ‘apport enrobée d’une gaine
réfractaire appelée enrobage. Toutes les électrodes ne sont pas constituées du même métal
d’apport. Une couleur conventionnelle est déposée à l’extrémité dénudée de l’électrode afin
d’indiquer les valeurs des caractéristiques mécaniques exigées pour chaque nuance.
Tableau des couleurs en fonction des nuances
Nuance Edx E 40 E 48 E 56 E 65
Couleur Rose Rouge Jaune Bleu Vert
Résistance en daN/mm2
< 40 40-48 48-56 56-65 > 65
A noter :
Tout ce qu’il faut connaître pour l’utilisation des électrodes est inscrit sur les emballages par
le fabricant. Il faut donc les lire attentivement et apprendre à les décrypter :
I. Caractèristiques hygiène. – 2. Classes des poussières émises en soudage. – 3. Intensité moyennes et maxi. – 4. Tension
minimale en CA. – 5. Nature du courant. – 6. Dimensions (mm). – 7 Symbolisation des positions de soudage. – 8.
Conditions d’étuvage. – 9. Agréments. – 10. Classification normalisation. – 11. Désignation commerciale. – 12. Numéro de
nomenclature. – 13. ∅ et longueur des électrodes. – 14. Quantité dans un emballage. – 15. Numéro de fabrication. – 16
Pictogramme SAF
d
L
Ame Enrobage
pénétration
Laitier
Métal déposé
Milieu ionisant
conducteur
Métal projeté
en fusion
Cratère
Pièce
58
5.2. Dispositions constructives :
521. Représentation et symbolisation des soudures :
La cotation des soudures fait intervenir la longueur des cordons et leur épaisseur ou gorge
« a » définie dans les extraits de normes dans les pages suivantes.
522. Types de soudures :
Soudures bout à bout :
Jusqu’à des épaisseurs de pièces de 5 à 6 mm, les soudures peuvent être effectuées sur
des pièces npn chanfreinées, découpées d’équerre. Au-delà de 6 mm, il faut réaliser des
chanfreins sur les bords des pièces. Le talon « c » doit être inférieur à la plus petite des
59
deux valeurs : 3 mm ou t/5. Les chanfreins en V et en U permettent de souder sans
retourner les pièces, mais donnent lieu, lors du refroidissement, à des déformations
angulaires fortes. Le chanfrein en U est plus onéreux du fait de l’usinage.
Les chanfreins en double U ou double V symétriques, minimisent les déformations et les
contraintes internes, si les cordons sont exécutés simultanément sur les deux faces, par
tronçons alternés. Les chanfreins en K constituent une solution intermédiaire.
Soudures d’angle :
• Joints à recouvrement (à clin) :
Aucune préparation particulière n’est à prévoir pour ce type de joints. La longueur de
recouvrement est au moins 5 fois l’épaisseur de la plus petite pièce à assembler. La
résistance à la fatigue des joints à clin est mauvaise en raison de la concentration des
efforts dans la zone des cordons.
• Joints d’angle :
Les joints d’angle résistent également mal aux efforts de fatigue et travaillent dans de
mauvaises conditions. Le cordon peut être, extérieur, intérieur ou en X.
t<6
60°
d = 1à3
t= 5 à 15
c
B
A
C D
E F
t/2 t= 10 à 25
C
C
t/2
t= 30 à 60
60°
t= 12 à 40 t= 12 à 40
50°
l
l>5t
t
60
• Joints en T :
Le joint en T à cordons d’angle des deux côtés n’est pas recommandable lorsque
l’assemblage est soumis à des efforts de fatigue. Il n’est utilisable que pour des épaisseurs
de pièces inférieures à 12 mm. Au-delà, la jambe du T est chanfreinée dans les mêmes
conditions qu’en soudage bord à bord.
• Joints en bouchon ou en entaille :
Les soudures en entaille sont à éviter. Elles se pratiquent lorsque les cordons de bords ont
une section insuffisante pour assurer la transmission des efforts (effort tranchant en parti-
culier). L’entaille doit être assez large pour permettre une soudure facile.
t ≤ 25 mm t > 25 mmt ≤ 12 mm
61
523. Désignation des cordons en fonction de leur position :
524. Précautions :
- Toujours décaper les pièces avant soudage
- Exécuter le soudage à l’abri des intempéries
- Faire des cordons réguliers impose des découpes correctes des pièces à assembler.
Ne pas compter sur la soudure pour compenser les irrégularités, il s’en suivrait une
perte de temps et de qualité du cordon ainsi qu’un retrait différentiel entre les zones de
cordon large et les zones de cordon étroit.
- Les soudures dont la difficulté d’exécution risque de compromettre la qualité sont
proscrites
- Le nombre de soudures à exécuter sur chantiers doit être réduit au maximum
- Eviter l’assemblage par soudure des pièces d’épaisseur supérieure à 30 mm
- Eviter l’assemblage des pièces de trop grande différence d’épaisseur, car il y a risque
de déformation de la pièce la plus mince et risque de fissuration du cordon de soudure
au refroidissement.
- Anticiper (prépositionnement, prédéformation, …) les effets dûs au retrait des soudures,
de manière à ce qu’après refroidissement, l’assemblage soit le moins déformé et le
moins contraint possible.
- Assurer la plus grande liberté aux déformations limite les contraintes internes.
- Rechercher la symétrie des dépôts
- S’efforcer de commencer la soudure au milieu des pièces, puis souder symétriquement
de part et d’autre de la première soudure.
- Eviter l’accumulation de soudures. Le croisement d’une soudure d’angle et d’une
soudure bout à bout est admis.
- Proscrire les cordons de moins de 50 mm et moins de 10 x a de longueur.
- L’ordre d’exécution des soudures peut avoir une grande importance. Il faut donc
respecter les instructions des séquences ou gammes de soudage quand elles existent.
- Les soudures d’éléments rapportés non prévues sur les plans (par exemple, sur les
poteaux, soudures de consoles destinées à supporter des canalisations) ne seront en
principe admises qu’après l’accord du maître d’œuvre. En particulier, toute soudure,
quelle que soit son importance, coupant transversalement la semelle tendue d’une
5 6
3
4
2 1
1. Cordon à plat
2. Cordon d'angle à plat
3. Cordon en corniche
4. Cordon vertical
5. Cordon en corniche
au plafond
5. Cordon au plafond
62
poutre est à proscrire, surtout si cette poutre est en charge. Il faut souligner que les
cordons de petite section peuvent être les plus dangereux et s’avérer cause de rupture
ultérieure.
Les soudures transversales ne peuvent être éventuellement admises que si elles sont
bien faites, larges, exécutées sur une pièce non en charge, et à condition qu’elles
n’apportent pas une variation brusque de section ou de charge.
La suppression, après soudure, d’un élément rapporté ne peut en aucune façon annuler
les contraintes de retrait dues à cette soudure ; le mal, si mal il y a est sans remède, te
le remplacement de la section du métal en cause doit être envisagé par un
renforcement.
- Veiller à une bonne corrélation entre l’épaisseur du cordon et l’épaisseur de la plus
faible des pièces.
Epaisseur à des cordons de soudure, en fonction de l’épaisseur t de la
plus faible des pièces.
t
4 6 7 8 10 12 14 16 18 20
a maxi
3 4 5 6 7 8 10 11 13 14
a mini
3 3,5 4 4 5
- Les risques d’oxydation entre les pièces assemblées plat sur plat conduisent souvent à
envisager un assemblage soudé avec cordon périphérique même si la soudure est alors
surabondante. Ainsi, les surfaces inaccessibles à l’entretien sont protégées.
- Lorsqu’un cordon doit être arasé pour des raisons constructives, faire en sorte que les
stries d’usinage (meulage) soient dans le sens de l’effort de traction sur l’assemblage.
- Les angles des goussets tendus ne doivent pas être abattus.
- Il faut « équilibrer » les soudures : le centre de gravité des cordons de soudure doit être
sur l’axe neutre portant l’effort normal. Alors le taux de travail de tous les cordons est
identique.
525. Défauts des soudures :
Les croquis ci-dessous indiquent les principaux types de défauts possibles.
a
t
1a 1b 1c
2a 2b
3 4
7 8 9
65
défauts des soudures
1a-1b-1c. Fissures
2a-2b.Manque de pénétration
3. Soufflures et porosités
4. Inclusions de laitier
5. Dénivellation des bords 9. Déformation angulaire
8. Affaissement de cordon
6. Caniveaux
7. Surépaisseur
63
Les conséquences de ces défauts sur le comportement des assemblages ne peut être jugé
que par un spécialiste. Dans la plupart des cas un certain pourcentage de défauts d’un type
donné est admissible.
526. Contrôle des soudures :
La norme reconnaît 3 classes de qualité des assemblages soudés. La classe 1 est la plus
sévère. Les plans d’exécution doivent comporter les classes de qualité des assemblages.
Voir plus loin le tableau des critères d’acceptation des défauts des soudures.
Etendue du contrôle : le contrôle doit porter sur les soudures exécutées au chantier,
mais aussi sur les soudures faites en atelier si aucun contrôle de fabrication n’y a été
assuré. Il ne peut qu’exceptionnellement être systématique : en principe, on opère par
sondage sur les soudures travaillant le plus dont l’exécution est la plus délicate.
Caractéristiques dimensionnelles des soudures : il faut contrôler, dans la mesure du
possible, l’épaisseur des cordons de soudure et pour les cordons discontinus, leur
longueur utile. Pour les soudures exécutées au chantier, vérifier la préparation des
bords à souder (chanfreins).
Qualité des soudures : seuls l’examen visuel et le ressuage peuvent être pratiqués par
le non spécialiste, les autres contrôles (ultrasons, radiographies, sondages, …)
nécessitent l’intervention d’un spécialiste.
L’examen visuel est souvent suffisant pour les soudures qui n’ont pas nécessitées un
grand nombre de passes.
527. Reprise des soudures défectueuses :
Les soudures reconnues défectueuses mais réparables doivent être dégagées au burin
jusqu’à ce que le métal sain soit atteint ; le vide ainsi créé est comblé par un apport de
soudure. Le simple matage suivi de rechargement est interdit.
5.3. Règles de dimensionnement et d’exécution des soudures :
Les pages suivantes sont des extraits de la norme NF 22-470 et suivantes.
Les calculs doivent s’y référer.
64
D E F I N I T O N S
1. PENETRATION D’UNE SOUDURE :
1.1. Soudure à pénétration partielle :
Soudure n’intéressant qu’une partie de l’épaisseur de chacun des éléments assemblés.
1.2. Soudure à pénétration totale :
Soudure effectuée par un (ou) plusieurs procédé (s), dans des conditions précises, assurant la
liaison sur toute l’épaisseur de l’un au moins des éléments assemblés.
1.3. Soudure à pénétration garantie :
Soudure effectuée par un (ou) plusieurs procédé (s), dans des conditions précises, assurant de
façon certaine la liaison des éléments assemblés sur une profondeur définie.
2. RACINE D’UNE SOUDURE « 0 » :
2.1. Soudure bout à bout avec chanfrein (figure. 1)
La racine d’une soudure est par convention, le sommet de l’angle dièdre formé par les faces
des chanfreins :
2.2. Soudure d’angle sans chanfrein (figure 2)
La racine d’une soudure à pénétration partielle est par convention, le sommet de l’angle dièdre
formé par les pièces assemblées.
a
a
o
a
o
Figure
a
o
a
o
a
o
a
o
Figure 2
65
2.3. Soudure d’angle avec chanfrein (figure 3)
La racine d’une soudure est par convention, le sommet de l’angle dièdre formé par les faces
des chanfreins :
2.4. Soudure d’angle avec chanfrein naturel (figure 4)
La racine d’une soudure est par convention, le sommet de l’angle dièdre formé par les pièces
assemblées :
a
o
a
o
a
o
a
o
a
o
a
o
Figure
a
o
a
o
Figure
66
2.5. Soudure à pénétration garantie (figure 5)
Dans le cas de soudage par un procédé à pénétration garantie, la racine est le point de la ligne
de joint que la pénétration atteint en toute certitude.
La pénétration garantie peut être totale ou partielle.
3. EPAISSEUR UTILE « a » :
L’épaisseur utile ou gorge d’une soudure est la distance minimale de la racine à la surface de
la soudure. Compte non tenu d’un bombé éventuel (figures 1 à 5).
4. LONGUEUR UTILE DU CORDON « / » :
La longueur utile d’un cordon de soudure est égale à sa longueur réelle diminuée de la
longueur des cratères d’extrémité lorsque aucune disposition n’est prise pour les éliminer.
La longueur de chacun des cratères est prise forfaitairement égale à l’épaisseur utile « a ».
a a
o
a
o
a a
o o
o
a
a
a
a
o
o
Pénétration totale Pénétration partielle
Figure
67
SYMBOLES - UNITES
1. Notations :
I moment d’inertie
M moment fléchissant relatif à l’état limite ultime appliqué à l’assemblage
N effort normal relatif à l’état limite ultime appliqué à l’assemblage
V effort tranchant relatif à l’état limite ultime appliqué à l’assemblage
S moment statique
a épaisseur utile d’un cordon ou gorge de soudure
b largeur d’une pièce
c valeur du talon dans une préparation en V ou en K.
d distance entre deux cordons de soudure
dv diamètre de perçage pour rivets et boulons
h hauteur des profilés
hw hauteur d’âme des profilés, mesurée entre ailes
↗ longueur utile d’un cordon de soudure
t épaisseur des pièces
tw épaisseur d’âme en profilés
tmin épaisseur de la pièce la plus mince
r rayon moyen de pliage
σa limite d’élasticité garantie des pièces assemblées
σ⊥ contrainte perpendiculaire à la section de gorge
σq contrainte parallèle à la section de gorge
contrainte de cisaillement perpendiculaire à la section de gorge
contrainte de cisaillement parallèle à la section de gorge
K coefficient minorateur fonction de la nuance d’acier
a. β angles d’inclinaison des efforts sur la section de gorge
2. Unités :
- efforts en newtons (N)
- moments en newtons millimètres (N.mm)
- contraintes en mégapascals (MPa) (N/mm2
)
- longueurs en millimètres (mm).
68
- La longueur des cordons ainsi que la section transversale (gorge) des passes de soudures
sont conditionnées par l’énergie minimale de soudage nécessaire à la bonne qualité de leur
exécution.
Les dimensions minimales à respecter sont données dans le tableau 2 ci-dessous, en
fonction des épaisseurs à souder et de la limite d’élasticité de l’acier de base.
TABLEAU 2
σa
(MPa)
Longueur
(mm)
Gorge « a »
(mm)
min t2 « a »min t2 « a »min
σa = 240 Sup (10 « a » : 50)° ≤ 3 t2 > 3 Sup (3 ; 0,5 t1 )
240 < σa ≤ 280°° Sup (10 « a » : 50) ≤ 4 t2 > 4 Sup (4 ; 0,5 t1 )
280 < σa ≤ 355 Sup (15 « a » : 100) ≤ 5 t2 > 5 Sup (5 ; 0,5 t1 )
355 < σa à déterminer dans chaque cas.
(°) Sup (a ; b) : la plus grande des deux valeurs « a » et « b »
(°°) pour tubes σa = 295 MPa . Norme NF A 49-501
t2
t1
Dans le cas où la condition relative à la section transversale ne peut être respectée, des
modalités particulières d’exécution doivent être spécifiées dans le mode opératoire de soudage
(préchauffage, post-chauffage, ….).
- Dans le cas d’un croisement de cordons dans les assemblages formant dièdre, l’une des
pièces peut comporter une échancrure si elle n’est pas ou peu sollicitée (figure 16).
Figure 16
69
- Le croisement d’une soudure bout à bout et d’une soudure d’angle est admis (figure 17).
- Quand plusieurs plats sont superposés, ils doivent toujours être assemblés sur leurs rives
par des cordons de soudure.
Pour des aciers de base de limite d’élasticité inférieure ou égale à 355 MPa, les cordons
peuvent être continus ou discontinus suivant que les pièces sont soumises ou non à des
conditions favorisant l’oxydation.
Dans le cas de cordons discontinus, les soudures doivent être répartis uniformément sur toute
la longueur des pièces (figure 18).
- les longueurs de soudure ( 1λ ) aux deux extrémités des pièces doivent être égales ou
supérieures à la largeur du plat à assembler.
- les longueurs des cordons intermédiaires ( 2λ ) doivent satisfaire aux conditions du
tableau 2.
- la distance (d) entre deux extrémités successives de deux soudures doit être inférieure ou
égale à :
• 22 tmm pour les aciers E 24 et E 28
• 18 tmm pour les autres nuances d’acier.
Figure 17
b
l1
d
l2
Figure 18
70
5. JUSTIFICATIONS DES SOUDURES :
5.1. Validité des justifications :
Les conditions de vérification des soudures ne sont valables que si les conditions d’exécution
des soudures définies par la norme NF P 22-471, sont strictement respectées.
5.2. Soudures bout à bout (figures 23, 24) :
521 Aucune vérification n’est exigée pour :
les pièces chanfreinées avec ou sans talon si celui-ci est égal à la plus faible des valeurs :
t/5 et 3 mm, t2 /5 et 3 mm.
522 - Si la valeur du talon est supérieure à celle indiquée ci-dessus, les soudures sont à
vérifier avec la valeur théorique de gorge « a » et doivent satisfaire à la relation :
∑ λa
N
≤ σa
5.3. Soudures d’angle sans chanfrein :
La justification des soudures sans chanfrein peut être effectuée par l’une des deux méthodes
suivantes :
531 - Formule de base (figure 25)
Les composantes σ⊥, T⊥ et T∥ doivent satisfaire aux inégalités :
K σ2
⊥ + (T2
⊥ + T2
∥) ≤ σa
et σ⊥ ≤ σa
avec
c
t
t1 t2
c
t1 t2
c
Figure 23
N N
t
c
a
a
c
N
t1
N
t2
Figure 24
71
σ⊥, T⊥ et T∥ composantes déterminées par la résistance des matériaux de la contrainte
moyenne rapportée à la section de gorge du cordon (section minimale de
surface ).
σ∥ contrainte normale rapportée à la section transversale de gorge du cordon (on
n’en tient pas compte dans les calculs de justification).
avec, quelque soit l’épaisseur du produit :
K = 0,7 pour les nuances E24, E24W, TSE235, TUE236
K = 0,8 pour les nuances E28, E275D, TSE275, TSE295, TUE276
K = 1 pour les nuances E36, E36W, E355, E375, E420, E460, TSE355, TSE450,
TUE355, TUE450, 355D, E390D, E430D, E445, E490D.
Dans le cas où l’assemblage est constitué d’aciers de nuances différentes, la limite
d’élasticité à retenir pour l’application de la formule est celle de la nuance la plus faible.
Des applications de cette formule de base, pour les principaux cas, sont données en annexe.
532 Formule simplifiée
On peut se dispenser de justification plus poussée dès que l’on vérifie pour chaque cordon,
quels que soient la direction de l’effort F et l’angle formé par les faces assemblées, la
condition suivante :
σ =
λa
KF
≤ 0,6.σa
5.4. Soudures d’angle avec chanfrein :
541 - Aucune justification n’est exigée pour les soudures effectuées sur pièces chanfreinées
avec talon si la valeur « c » de celui-ci est inférieure ou égale à la plus faible des valeurs :
t2 /5 et 3 mm.
et si la somme des gorges est égale ou supérieure à l’épaisseur de la pièce chanfreinée
(figure 26).
o
o'
o o'
a
σ⊥
τ
//
τ⊥
Section de gorge a, l
Figure 25
72
542 - Pour des valeurs de « c » plus grandes que celles indiquées ci-dessus, les soudures
sont à vérifier comme des soudures d’angle sans chanfrein.
543 - Aucune justification n’est exigée pour les soudures effectuées sur pièces chanfreinées
sans talon (figure 27).
5.5. Soudures sans chanfrein à pénétration garantie :
L’épaisseur utile « a » à prendre en compte dans les justifications doit être déterminée
expérimentalement suivant la nature du procédé de soudage, de ses conditions de mise en
œuvre et de contrôle d’exécution.
551 - Soudure bout à bout :
Aucune justification n’est exigée si les conditions d’exécution assurent une épaisseur des
cordons au moins égale à l’épaisseur de la plus faible des pièces assemblées, c’est le cas
pour :
- l’assemblage des tôles de 4 mm d’épaisseur au plus en soudage manuel avec
électrodes normales et 10 mm au plus en soudage à forte pénétration.
Dans les autres cas, les soudures sont à justifier avec la valeur théorique d’épaisseur utile
« a » et doivent satisfaire à la relation suivante :
∑ λa
N
≤ aσ
t2
c
aa a1
c
t2
a2
c
a
t2
t1
Figure 26
2a ≥ t2 a1+a2 ≥ t2
a ≥ t2
a
o
a
o
Figure 27
73
552 - Soudure d’angle :
Aucune justification n’est exigée si les conditions d’exécution assurent une épaisseur des
cordons au moins égale à l’épaisseur t2 (figure 28).
Dans les autres cas, les soudures sont à justifier avec la valeur théorique d’épaisseur
utile »a » et doivent satisfaire aux formules du chapitre 5.3 « Soudures d’angle sans
chanfrein ».
t2
t1
Figure 28
74
π/4 - β/2
π/4 - β/2
l1
N N/2
N N/2
N/2
l1
N N
NN
N/2
N
l1
N
l1
a1
a2
β
τ
τ
σ
N
l1
α
Nsinα
Ncosα
τ
σ
σ
l1
N
l1
N
N
N/2
l1
N
N/2
N
l1
a1
a2
Cordons latéraux
l1 étant la longueur utile d'un cordon
Cordons obliques :l1 étant la longueur utile d'un cordon
l1 étant la longueur utile d'un cordon
Cordons frontaux
Σli = 2l1
Σli = 2l1
Σli = 2.l1
Σli = 2l1
σ
Σli = 4.l1
( I )
( II )
( III )
( IV )
(V)
75
6. ASSEMBLAGES DE PIECES FLECHIES (FIGURE A.6 ) :
6.1. Cordons entre âme et semelles d’une poutre à âme pleine :
611 - Eléments de réduction :
- moment fléchissant M
- effort tranchant V.
612 - Contraintes dans les cordons :
σ⊥ = T⊥ = 0
T =
XXal
VS
2
où :
S = moment statique de la semelle par rapport à l’axe d’inertie de la section complète
lXX = moment d’inertie de la section complète par rapport à xx.
613 - Formule de vérification :
K 3
XXal
VS
2
≤ aσ
614 - Epaisseur utile :
a ≥
a
K
σ2
3
XXl
SV.
Dans les cas d’un cordon simple, la valeur de « a » ci-dessus est à multiplier par deux.
hha
a
X
ea
X
a
Figure A.6
76
615 - Formules simplifiées :
En se plaçant en sécurité, la formule simplifiée suivante peut être utilisée :
a ≥
a
K
σ2
3
ah
V
En admettant : T ≤
3
aσ
la condition ci-dessus devient avec V = T ha aa :
a ≥ K
2
aa
Dans le cas d’un cordon simple, les valeurs ci-dessus sont à multiplier par 2.
6.2. Attache d’une poutre sur un poteau (figure A.7) :
621 - Eléments de réduction :
- effort normal N
- moment fléchissant M
- effort tranchant V
622 - Hypothèses :
On admet que :
- l’effort N se répartit uniformément entre tous les cordons
- l’effort V se répartit uniformément entre les cordons d’âme
- le moment M est repris par les cordons des semelles avec M = N’h’ où h’ = h -4.
623 - Contraintes dans les cordons :
6231 - Cordons d’ailes :
Sous les efforts N et N’, les cordons d’ailes sont à considérer comme des cordons frontaux.
Les contraintes dans les cordons sont respectivement :
Pour N :
⊥σ = T⊥ =
( )∑ la
N
.2
Pour N’ :
=⊥
'
σ T’⊥ =
∑ '
'
).(2 la
N
77
avec dans le cas de la figure A.7 :
∑ 1.la = 2.a.l1 + 4.a.l2 + 2.a.l3
∑ ='
1 ).( la a.l1 + 2a.l3
l1 , l2 et l3 étant les longueurs utiles des cordons a1 , a2 et a3
6232 - Cordons d’âme :
Sous l’effort N, les cordons sont à considérer comme des cordons frontaux et les
contraintes ⊥σ et T⊥ sont celles indiquées précédemment (voir paragraphe 6.2.3.1).
Sous l’effort V, les cordons d’âme sont à considérer comme des cordons latéraux, la
contrainte dans ces cordons est :
T  =
3..2 la
V
624 - Formules de vérification :
L’application de la formule fondamentale conduit :
Pour les cordons d’ailes : K a
ii la
N
la
N
σ≤








+
∑∑ '
'
).(.
.2
Pour les cordons d’âme : a
ii l
V
la
N
σ≤





+








∑
22
.2
3
.
2
h' h
a1
V
a3
M N
a2
N'
N
l2
l1
l2
l2l2l3
Figure A.7
78
ANNEXE A
(Fait partie intégrante de la norme)
EXTRAIT DE LA NORME NF A 88-110 – DEFINITIONS DES TYPES D’ASSEMBLAGES
Sans reprise envers Avec reprise envers
Avec ou sans chanfrein Avec ou sans chanfrein
Chanfreinés A francs bords
Chanfreinés A francs bords
Piquages (type P)
Bout à bout (type B) D'angle (type A)Définition des soudures
I B I A
II B II Ba II A
III A
IV AIV B
V B
VI B VI A
1 P
2 P 2 Pa
I
II
III
IV
V
VI
1
2
Sans reprise envers et sans
support
Avec reprise à l'envers, les
cordons devant être
interpénétrés
Sans reprise à l'envers ou avec
reprise, les cordons ne devant
pas être nécessairement
interpénétrés.
Avec un support envers
subsistant ou provisoire
Avec bague fusible
Soudage vertical avec sabots
de maintien du bain de fusion
Piquage posé,emboîté,
traversant,soudé en angle
sans chanfrein
Piquage posé,chanfreiné et
soudé avec pénétration
Piquage traversant sur pièce
chanfreinée
79
Examen visuel des soudures : critères d’acceptation des défauts
Les numéros de référence sont ceux de la norme NF A 89-230
Critère d’acceptation
Classes de qualité
Nature du
Défaut
Symboles
1 2 3
Nota : les dimensions sont données
en millimètres
une
face
≤ 1
20
min
+
T
avec
d 3max =
≤ 1,5 1
10
min
+
t
avec
d 4max =
sans
axe
neutre
une
face
D’alignement
repriseàl’envers
avec
alignementdemandésur
axe
neutre
d
≤ 1
20
min
+
T
avec
d 6max =  d 8max =
≤ 1,5 1
10
min
+
t
avec
d 10max =
≤ 1/3
1/3 pour effort statique
1/4 pour effort dynamique
Pente de
Raccordement
p ≤ 1/4
≤ 1/4
≤ 1/3
b =
h
p2
Brisure b
≤ 4 ≤ 4 ≤ 6
Défauts
de raccordement
tgα ≤
3
1
En cas de soudures soumises à des variations de contraintes
importantes, il est conseillé de les arroser.
Surépaisseurs
endroit et envers
s
et
e
≤ 1
10
1
+
maxi 5
≤ 2
10
1
+
maxi 6 Maxi 7
Effondrement g
Position plafond sans reprise à l’envers.
Non admis.
Bords obligatoirement
Fondus.
t
tmin
d
tmin
h
l
p=h/2
h
p
θ
l = 200
α
s
e
l
g
80
Profondeur C
Non admis ≤ 0,5 ≤ 1
Longueur maxi
d’un défaut
lc1
0 20 sans limitation
Caniveaux
Longueur
cumulée
sur 300 mm
lc2
0 40 sans limitation
Manquede
pénétration
Profondeur m
Non admis ≤ 2
Longueur
cumulée
sur 300 mm
lm2
Non admis 80
La longueur minimale de zone
saine pour que deux défauts
soient considérés comme
isolés doit être de six fois la
longueur de défaut le plus
court.
Gorge
(soudure d’angle)
0,1
≥ a
Bombement b
≤ a/5 (1) ≤ a/3
sans limite
Symétrie
(soudure d’angle)
H
0,8 < h ≤ 1 0,7 < h ≤ 1 0,5 < h ≤ 1
Criques et
Fissures
t
Non admises
Cratères cn
Non admis
Voir article
8.2.6
Soufflures
débouchantes
Inclusions
Débouchantes
Non admises
Radiographie
Avant
Réparation
Tolérées
En qualité 2, si le sondage radiographique s’avère difficile, éliminer le
défaut sur 50 mm de part et d’autre.
511 Manque
d’épaisseur
t1
Non admis Non admis 1 ≤ 1/20
(1) En cas de soudures soumises à des variations de contraintes importantes, les raccordements seront progressifs.
c
c
E
h1
h2
a
s
β=120°h=h1/h2
h=h2/h1
ou
t1 c1
81
PROTECTION CONTRE LA CORROSION
La corrosion atmosphérique n’est pas, en général, la cause de désordres importants dans les
ossatures métalliques de bâtiments. Les éléments de structures soumis à l’atmosphère normale
peuvent rouiller superficiellement s’ils ne sont pas protégés convenablement, mais ce
phénomène est rarement à l’origine de ruines de bâtiments. Par contre, dans certains milieux
contenant des agents corrosifs (milieux industriels, maritimes,…) les structures en acier doivent
être protégées et entretenues.
Parmi les moyens de protection couramment utilisés, les revêtements de peinture tiennent une
place importante et certaines précautions sont à prendre pour les choisir et les appliquer.
D’autres modes de protection, tels que les revêtements métalliques, sont également utilisés
lorsque la corrosion risque d’être importante.
Enfin, outre le rôle de protection contre la corrosion, les revêtements appliqués sur les structures
en acier ont souvent un but esthétique : dans ce cas, une dégradation dans le temps des
revêtements n’affecte pas la résistance des ouvrages.
1. MOYENS USUELS DE PROTECTION CONTRE LA CORROSION :
Le tableau ci-après donne, à titre indicatif, quelques moyens de protection contre la corrosion en
fonction de différents milieux agressifs.
Lorsque les constructions ont un caractère exceptionnel ou lorsque les milieux ont un caractère
corrosif particulier, le recours à des spécialistes en matière de corrosion est recommandé.
Conditions d’emploi Revêtement antirouille traditionnel Produits sidérurgiques revêtus (*)
Eléments incorporés dans les
murs et les planchers, invisibles,
protégés par d’autres matériaux
et en l’absence d’humidité.
• 1 ou 2 couches de peinture
primaire antirouille.
40 à 50 microns d’épaisseur.
Produits grenaillés et peints avec
reconditionnement des zones
endommagées après montage.
15 – 20 microns d’épaisseur.
Eléments situés à l’intérieur de
locaux sans humidité persistante
ou climatisés.
• 1 couche de peinture primaire
antirouille.
• 1 couche de peinture de finition
décorative.
60 à 80 microns d’épaisseur.
Produits grenaillés et peints
1 couche de peinture de finition
décorative.
60 microns d’épaisseur.
Eléments situés à l’intérieur de
locaux où l’humidité est notable
ou qui ne sont pas chauffés.
Eléments au contact d’une
atmosphère extérieure peu
agressive : atmosphère rurale.
• 1 couche de peinture primaire
antirouille.
• 1 couche de peinture intermédiaire
• 1 couche de peinture de finition
80 à 120 microns d’épaisseur.
Produits grenaillés et peints plus
de 1 ou 2 couches de peinture de
finition.
80 – 100 microns d’épaisseur
ou bien produits galvanisés ou
prélaqués.
Eléments au contact d’une
atmosphère extérieure
agressive, climats humides,
pluvieux, régions urbaines ou
industrielles.
• 2 couches de peinture primaire
antirouille ou bien phosphatation
et 1 couche de peinture primaire
antirouille.
• 1 couche de peinture intermé-
diaire antirouille
• 1 couche de peinture de finition
120 à 200 microns d’épaisseur.
Produits grenaillés et peints plus
de deux couches de peinture de
finition.
100 – 120 microns d’épaisseur.
Produits prélaqués ou galvanisés
et peints.
Eléments au contact de
l’atmosphère marine et des
embruns.
• 2 coucheS de peinture primaire
antirouille ou mieux 1 couche de
zinc
par galvanisation ou métallisation
au pistolet.
• 2 couches de peinture intermé-
diaire antirouille
• 1 couche de peinture de finition
plus de 150 microns d’épaisseur.
Produits grenaillés et peints :
peinture à haute teneur en zinc.
Plus de 2 ou 3 couches à haute
Teneur en zinc.
ou bien galvanisation ou métalli-
sation au pistolet plus peinture
à haute teneur en zinc.
Produits prélaqués.
(*) Usines sidérurgiques ou en ateliers spécialisés.
82
2. EXECUTION DES TRAVAUX DE PEINTURE :
2.1. Surfaces à peindre :
Normalement, les pièces sont livrées sur chantier revêtues d’une couche primaire antirouille, les
retouches nécessaires étant effectuées, après montage, sur les parties de revêtement
détériorées accidentellement.
En principe, les pièces enrobées de béton ne sont pas peintes. Par contre, les risques de
corrosion étant plus importants aux endroits où les éléments en acier sortent du béton (par
exemple, pieds de poteaux encastrés), la protection doit y être renforcée.
Les revêtements bitumineux sont couramment utilisés à cet effet.
2.2. Préparation des surfaces :
Les surfaces à peindre doivent être propres : la rouille et la calamine doivent être éliminées par
brossage, martelage, piquage ou par projection d’abrasifs, à un degré de soins qui est fonction du
type de peinture appliquée. Les degrés de soins de décapage sont définis par l’Office National
d’Homologation des Garanties de Peinture Industrielle.
Lorsqu’un dégraissage, à l’aide de lessives alcalines ou de détergents est nécessaire, il est à
exécuter avant le décalaminage ou le dérouillage.
Les produits galvanisés doivent, en général, recevoir un traitement de surface spécifique avant
l’application de peinture.
2.3. Application des revêtements de peinture :
Les travaux de peinture doivent être exécutés à l’abri des poussières et des intempéries, par
ensoleillement modéré, en dehors des périodes de gel.
En raison de la sensibilité de l’acier nu à l’oxydation, l’efficacité de la protection est d’autant plus
grande que l’application de la couche primaire est exécutée plus rapidement après la préparation
de la surface.
S’il n’en est pas ainsi, un brossage énergique est nécessaire pour supprimer la rouille non
adhérente.
Les couches de peinture nécessaires doivent, autant que possible, être de teintes différentes, afin
d’éviter les manques.
Les parties à souder ne reçoivent pas de peinture avant l’exécution de la soudure, ni,
éventuellement, avant contrôle de celle-ci, sauf si des peintures primaires soudables sont
utilisées.
3. PRINCIPAUX DOCUMENTS DE REFERENCE :
DTU 59-1 « Travaux de peinturage »
Normes
Fascicules du Ministère de l’Equipement relatifs à la protection contre la corrosion des
ouvrages métalliques
Cahiers des Charges des Administrations telles que EDF, SNCF, GDF, Ponts et Chaussées, …
Echelle européenne d’enrouillement
Publications OTUA.
83
PROTECTION CONTRE L’INCENDIE
1. GENERALITES :
Toutes les ossatures en acier ne doivent pas être systématiquement protégées contre
l’incendie. Seules les « ossatures principales » sont visées par la réglementation. D’autre part,
un degré de stabilité au feu donné peut être obtenu par des moyens différents (absence de
protection, épaisseurs plus ou moins grandes d’une même protection, situation par rapport au
foyer, …), suivant les éléments de l’ossature (taux de chargement, massivité,…).
Une protection partielle ou totale peut aussi être efficace dans des conditions particu-
lières : éléments inégalement exposés, ossatures extérieures, poutres de planchers à dalle
associée, etc…
Enfin, une dégradation partielle limitée n’entraîne pas nécessairement une perte significative de
la protection, surtout si elle n’est pas dans une zone de sollicitations importantes.
2. APPLICATION DIRECTE SUR LES STRUCTURES :
Avertissement :
Les indications ci-après, destinées à des généralistes, sont naturellement très générales et
succinctes. Elles sont destinées à attirer l’attention du lecteur sur les conséquences possibles
de désordres dont il aurait à connaître sur la sécurité incendie, quitte à consulter, pour plus de
précisions, des organismes spécialisés (Bureaux de Contrôle, Organismes Professionnels,
Services de Sécurité) ou un spécialiste.
2.1. Peintures enduits intumescents :
Sous l’action de la chaleur dégagée au cours d’un incendie, ces produits forment une
« meringue » isolante qui protège la charpente. Il convient de se référer aux indications du
fabricant quant à :
- la préparation de la surface métallique (sablage,…)
- la composition du complexe à appliquer :
- nature et épaisseur de chacune des couches,
- compatibilité avec les couches de finition.
Entretien :
Ces peintures doivent être révisées, comme toute peinture. Les parties usées ou détériorées
(éventuellement sous l’action de l’humidité doivent être repeintes. Par contre, on sait
maintenant que l’intumescence se produit toujours dans le temps, le « vieillissement » semblant
même augmenter la protection (contrairement peut être aux peintures « ignifuges » qui leur
ressemblent ). Il n’est donc pas utile de les refaire tous les 3 ans, comme on le demande
quelquefois.
Il faut aussi éviter de les recouvrir d’une autre peinture d’aspect, et en tout cas de s’assurer de
sa compatibilité avec la peinture intumescente.
Certaines peintures intumescentes sont utilisables à l’extérieur, complétées par une couche
d’étanchéité d’une peinture spéciale.
La couche primaire antirouille doit, elle aussi, être compatible avec la peinture intumescente.
84
2.2. Enduits de plâtre ou de ciment mélangé à des particules minérales :
La composition de ces matériaux doit être conforme à celle des essais de résistance au feu ; de
même, les préparations de surface sont importantes pour assurer le maintien de la protection
pendant l’élévation de température des éléments chargés.
Ces enduits nécessitent souvent des armatures de maintien (grillages, cornières de protection
d’angles, …).
3. PROJECTION :
3.1. Plâtre :
On peut employer le plâtre ordinaire ou, mieux, des plâtres spéciaux obtenus par mélange de
plâtre et de fibres et particules minérales. (Mêmes observations que pour 2.2).
Les projections peuvent s’effectuer :
- directement sur la charpente,
- sur des lattis métalliques ou en plâtre accrochés à la charpente à protéger.
3.2. « Pierre liquide » :
à base de portlandite, de calcite et de particules minérales.
La projection peut s’effectuer directement sur la structure (nécessité de préparer la surface).
3.3. Fibres céramiques et minérales :
avec ciment portland, liants inorganiques…
Pour toutes les protections projetées, l’état de surface avant projection doit être soigné
(absence de calamine, de matières grasses , éventuellement protection anticorrosion qui doit
être compatible avec le produit de protection contre l’incendie).
4. PROTECTION RAPPORTEE :
4.1. Plaques, panneaux et coquilles :
Il convient de vérifier la conformité des systèmes éventuels d’attache et de fixation avec ceux
réellement mis en œuvre au cours des essais officiels.
Ils peuvent être constitués de :
- plâtre ordinaire ou plâtres spéciaux,
- particules minérales, genre mica, assemblées par des colles, du plâtre ou du ciment
- ciment alumineux
- amiante et amiante-ciment
- argile expansée : les nodules d’argile sont maintenus en place par des capotages
métalliques ou des plaques d’amiante-ciment
- maçonnerie, béton en plaques : il s’agit d’une protection lourde, rarement employée
comme protection seule.
4.2. Remplissage de béton :
Ce procédé s’applique aux structures tubulaires ; il peut être associé à un ferraillage.
Des trous doivent être disposés en pied et en tête des poteaux afin de ménager des exutoires
à la vapeur qui se formerait à l’intérieur du tube en cas d’incendie.
Dans ce cas, aucune protection extérieure n’est utile en général.
85
Documentation et renseignements :
Chambre Syndicale des Fabricants de Tubes d’Acier
37, avenue Georges V – 75008 PARIS – FRANCE
Tél. : 723.92.10
et
C O M E T U B E
5, rue Maurice RAVEL
92300 LEVALLOIS-PERRET – FRANCE
Tél. : 270.40.40.
5. I R R I G A T I ON :
Ce procédé, qui fait l’objet d’un brevet, s’applique aux structures tubulaires. Une circulation de
l’eau contenue dans les charpentes s’établit par thermosiphon en cas d’incendie et par
pompage.
On ajoute à l’eau un inhibiteur de corrosion et, éventuellement, un produit antigel.
Documentation et renseignements :
Chambre Syndicale des Fabricants de Tubes d’Acier et
et
COMETUBE
6. E L O I G N E M E N T :
Les poteaux extérieurs sont éloignés des façades d’une distance fonction du degré de résistance
au feu recherché.
Lorsque l’éloignement est insuffisant (en fonction du degré de stabilité au feu recherché), il suffit
souvent de protéger les faces des poteaux côté façades par un écran non-combustible . Cet
écran peut aussi être constitué par un panneau de façade simplement pare-flammes, placé
devant le poteau.
7. REPORT DE CHARGES :
Ce procédé consiste à prévoir, dès le projet, la ruine de certains éléments de l’ossature au cours
d’un incendie et à reporter les charges qu’ils supportaient sur d’autres éléments voisins.
Les structures tridimensionnelles présentent un exemple intéressant des reoirts de charges .
8. DOCUMENTATION ET RENSEIGNEMENTS :
O T U A
5 bis rue de Madrid
75379 PARIS Cedex 08 - FRANCE
Tél . : 522.83.00
C T I C M
(Centre Technique Industriel de la Construction Métallique)
20, rue Jean-Jaurès
92807 PUTEAUX - FRANCE
Tél. : 776.41.31
86
VERIFICATION DU FLAMBEMENT
1. RESISTANCE AU FLAMBEMENT :
11 – Eléments simplement comprimés :
La sollicitation N de compression simple sous
charges pondérées doit satisfaire à la condition
suivante :
1≤
P
D
N
N
K
Le coefficient DK est obtenu à partir des tableaux
A, B ou C, ci-dessous, en fonction du plus grand
des élancements réduits
−
Zλ et
−
Yλ :
où :
−
Xλ =
π
λZ
E
eσ
et
−
λ =
π
λZ
E
eσ
Zλ ,
−
Yλ = élancements calculés par :
Zλ =
Z
KZ
i
L
et Yλ =
Y
KY
i
L
LKX , LKY = longueurs de flambement.
IPN – PE - HEA - - UAP – UAN - L
TABLEAU B – Valeurs de DK TABLEAU C – Valeurs de DK
_
λ 0 0.01 0.02 0.03 0.04 0.05 0.06 0.07 0.08 0.09
_
λ 0 0.01 0.02 0.03 0.04 0.05 0.06 0.07 0.08 0.09
0.0 1.00 1.00 1.00 1.00 1.00 1.00 1.00 1.00 1.00 1.00 0.0 1.00 1.00 1.00 1.00 1.00 1.00 1.00 1.00 1.00 1.00
0.1 1.00 1.00 1.00 1.00 1.00 1.00 1.00 1.00 1.00 1.00 0.1 1.00 1.00 1.00 1.00 1.00 1.00 1.00 1.00 1.00 1.00
0.2 1.00 1.00 1.01 1.01 1.01 1.02 1.02 1.02 1.03 1.03 0.2 1.00 1.01 1.01 1.02 1.02 1.03 1.03 1.04 1.04 1.05
0.3 1.40 1.04 1.04 1.05 1.05 1.06 1.06 1.07 1.07 1.08 0.3 1.05 1.06 1.06 1.07 1.07 1.08 1.09 1.09 1.10 1.10
0.4 1.08 1.09 1.09 1.10 1.10 1.10 1.11 1.11 1.12 1.12 0.4 1.11 1.12 1.12 1.13 1.14 1.15 1.15 1.16 1.17 1.18
0.5 1.13 1.14 1.14 1.15 1.15 1.16 1.17 1.17 1.18 1.19 0.5 1.19 1.19 1.20 1.21 1.22 1.23 1.24 1.25 1.26 1.27
0.6 1.19 1.20 1.21 1.22 1.22 1.23 1.24 1.25 1.26 1.27 0.6 1.28 1.29 1.30 1.31 1.32 1.33 1.34 1.36 1.37 1.38
0.7 1.27 1.28 1.29 1.30 1.31 1.32 1.33 1.34 1.35 1.36 0.7 1.39 1.40 1.42 1.43 1.44 1.46 1.47 1.48 1.50 1.51
0.8 1.38 1.39 1.40 1.41 1.42 1.44 1.45 1.46 1.48 1.49 0.8 1.53 1.54 1.56 1.57 1.59 1.60 1.62 1.64 1.65 1.67
0.9 1.51 1.52 1.54 1.55 1.57 1.59 1.60 1.62 1.64 1.65 0.9 1.69 1.70 1.72 1.74 1.76 1.77 1.79 1.81 1.83 1.84
1.0 1.67 1.69 1.71 1.72 1.74 1.76 1.78 1.80 1.82 1.84 1.0 1.86 1.88 1.90 1.92 1.94 1.96 1.98 2.00 2.02 2.04
1.1 1.86 1.88 1.90 1.92 1.94 1.97 1.99 2.01 2.03 2.06 1.1 2.06 2.08 2.10 2.12 2.15 2.17 2.19 2.21 2.24 2.26
1.2 2.08 2.10 2.13 2.15 2.18 2.20 2.23 2.25 2.28 2.31 1.2 2.28 2.31 2.33 2.35 2.38 2.40 2.43 2.45 2.48 2.50
1.3 2.33 2.36 2.39 2.41 2.44 2.47 2.50 2.52 2.55 2.58 1.3 2.53 2.56 2.58 2.61 2.64 2.66 2.69 2.72 2.75 2.77
1.4 2.61 2.64 2.67 2.70 2.73 2.76 2.79 2.82 2.85 2.89 1.4 2.80 2.83 2.86 2.89 2.92 2.95 2.98 3.00 3.03 3.06
1.5 2.92 2.95 2.98 3.01 3.05 3.08 3.11 3.15 3.18 3.21 1.5 3.09 3.11 3.15 3.19 3.22 3.25 3.28 3.31 3.35 3.38
1.6 3.25 3.28 3.32 3.35 3.39 3.43 3.46 3.50 3.54 3.58 1.6 3.41 3.45 3.48 3.52 3.55 3.59 3.63 3.66 3.70 3.73
1.7 3.62 3.65 3.69 3.73 3.77 3.82 3.84 3.88 3.92 3.96 1.7 3.77 3.81 3.85 3.88 3.92 3.96 4.00 4.04 4.07 4.11
1.8 4.00 4.04 4.07 4.11 4.15 4.19 4.23 4.27 4.32 4.36 1.8 4.15 4.19 4.23 4.26 4.30 4.34 4.38 4.42 4.46 4.50
1.9 4.40 4.44 4.48 4.53 4.57 4.61 4.66 4.70 4.74 4.79 1.9 4.54 4.58 4.62 4.66 4.70 4.74 4.78 4.82 4.86 4.90
2.0 4.83 4.87 4.92 4.96 5.00 5.05 5.09 5.13 5.18 5.22 2.0 4.94 4.98 5.02 5.07 5.11 5.15 5.19 5.24 5.28 5.32
2.1 5.27 5.32 5.36 5.41 5.46 5.50 5.54 5.59 5.63 5.68 2.1 5.36 5.41 5.44 5.49 5.53 5.59 5.64 5.69 5.73 5.78
2.2 5.73 5.78 5.83 5.88 5.92 5.97 6.02 6.07 6.12 6.17 2.2 5.82 5.87 5.92 5.97 6.02 6.06 6.11 6.16 6.21 2.26
2.3 6.22 6.27 6.33 6.38 6.43 6.49 6.54 6.59 6.64 6.69 2.3 6.31 6.36 6.41 6.46 6.51 6.56 6.61 6.66 6.72 6.77
2.4 6.74 6.80 6.85 6.90 6.95 7.01 7.06 7.11 7.16 7.21 2.4 6.82 6.87 6.92 6.97 7.02 7.07 7.12 7.17 7.22 7.27
2.5 7.26 7.32 7.37 7.43 7.49 7.54 7.58 7.63 7.67 7.73 2.5 7.32 7.37 7.42 7.48 7.53 7.59 7.65 7.69 7.74 7.79

Poly etsher assemblage construction mã©tallique callaud 2003

  • 1.
    1 COURS DE CONSTRUCTIONMETALLIQUE Tome II Les assemblages C. FERRAND 1993 M.A.J. M. CALLAUD mars 2003 ECOLE INTER-ETATS DES TECHNICIENS SUPERIEURS DE L’HYDRAULIQUE ET DE L’EQUIPEMENT RURAL 01 BP 594 Ouagadougou 01 Burkina Faso Tél : (226) 31 92 03 / 31 92 04 / 31 92 18 Email : etsher@etsher.org Fax : (226) 31 92 34
  • 2.
  • 3.
    3 G E NE R A L I T E S 1. DOMAINES D’UTILISATION : 1.1. Bâtiment Les habitations : - habitat individuel, - petit immeuble, - tour et gratte-ciel. Dans ce domaine, la C.M. intervient sous forme d’ossature métalliques ou en partie métallique (combles et couverture par exemple). Les halles : Il s’agit de grandes surfaces couvertes plus ou moins fermées latéralement. La construction peut être partiellement ou entièrement métallique lorsque par exemple les parois latérales sont constituées par des « pans de fer » (système de traverses horizontales ou lisses et de poteaux intermédiaires) supportant des bardages en tôles. Les halles métalliques sont à usage d’entrepôts, de magasins de stockage, de bâtiment agricole ou industriel. Leur aspect fonctionnel est primordial. 1.2. Ponts Dans ce domaine, la C.M. est également en concurrence permanente avec le béton armé, actuellement elle s’impose dans les cas suivants : - grandes portées (L > 200 m), - élancement réduit (hauteur/portée), - ouvrage provisoire, - ponts mobiles. Selon le système porteur, on distingue : - les ponts à poutres - les ponts en arc, - les ponts à câbles porteurs. En équipement rural, les petits ouvrages de franchissement se construisent en B.A. 1.3. Structures porteuses La C.M. est souvent une solution économique pour réaliser des structures telles que : - pylône, mât (porteur de câble, d’antenne, d’éolienne…). Selon la liaison au sol, on distingue les dispositifs encastrés (pylône électrique) ou à haubans (antennes) ; - château d’eau ; - installations agricoles (silo, rampe d’arrosage …) - engins de levage (derrick, chèvre, grue, portique…) - installations industrielles.
  • 4.
    4 2. AVANTAGES DESC.M. SUR LES CONSTRUCTIONS B.A. Légèreté : - diminution des charges sur le sol, - encombrement réduit, - grandes portées. Transformations faciles : - modification, renforcement, allègement de structure Démontabilité : Même si elle n’a pas été prévue, il est toujours possible de récupérer la plus grande partie d’une structure. Souplesse : - adaptabilité, - sécurité. Préparation et montage : - Majeure partie du travail en atelier (indépendamment des aléas de chantier) avec montage à blanc pour éviter les mauvaises surprises. - Temps de montage court, faible encombrement sur chantier et moyens de levages réduits. Facilités de contrôle : - à la réception des matériaux, - pendant l’exécution, - après montage. Inconvénients : - résistance en compression moindre que le béton, - susceptibilité aux phénomènes d’installation élastique, - mauvaise tenue au feu, - entretien régulier à prévoir. 3. ACIERS UTILISES EN C.M. (Voir cours de structure – Tome 2 – cours de construction générale). 3.1. Critères de caractérisation d’un acier Deux catégories de critères principaux permettent de caractériser un acier : Caractéristiques chimiques : Elles précisent les teneurs des éléments (ou de certains d’entre eux) associés au fer pour constituer l’acier. Exemple : l’acier E24 contient environ 0,2 % de C. Caractéristiques mécaniques : Limite d’élasticité : apparente Re (Conventionnelle RPO, 2). La limite d’élasticité est notée σe dans les calculs, elle intervient dans les conditions de résistance des éléments de structure travaillant en traction, compression, cisaillement flexion, flambement…
  • 5.
    5 Pour un mêmeacier, sa valeur est fonction de l’épaisseur des pièces. Exemple : pour du E24, les industries métallurgiques garantissent : Re ≃ 235 MPa pour e ≃ 30 mm Re ≃ 215 MPa pour 30 < e < 100 m Résistance à la traction : (contrainte maxi avant rupture) Notée R ou σe, cette caractéristique n’intervient pas dans les calculs de charpente métallique. Elle est utilisée dans les calculs de chaudronnerie et de fatigue. Pour un même acier, la valeur dépend du mode d’élaboration et de la forme du produit. Exemple : E24 R ≃ 360 MPa produits massifs R ≃ 440 MPa poutrelles et laminés marchands R ≃ 460 MPa produits plats Allongement pour cent après rupture (sans dimension) : Noté A, ce critère n’intervient pas dans les calculs habituels de C.M., mais une valeur minimale de 20 % est imposée par les règlements. Pour E24, A ≃ 25 %. L’allongement caractérise la capacité de déformation de l’acier donc ses possibilités d’adaptation plastique. Module d’élasticité (Young) : Noté E, exprimé en MPa, il caractérise la rigidité de l’acier. C’est le coefficient de proportionnalité entre contrainte et déformation dans le domaine élastique : σ = E.ε Il est constant pour tous les aciers courants et sa valeur réglementaire est de 2,1 x 105 MPa. Il intervient dans les calculs de déformation (flèches). Module de cisaillement (Coulomb) : Il exprime le rapport entre contrainte de cisaillement et déformation correspondante. Il inter- vient dans les calculs des déformations en torsion notamment pour les aciers G ≃ 0,4E. Résilience : Il s’agit d’une caractéristique sous sollicitation dynamique. Notée K, la résilience mesure en J/cm2 l’énergie absorbée par la rupture par choc d’une éprouvette d’acier entaillée dans des conditions d’essai normalisées. Cette énergie est rapportée à l’unité de section au droit de l’entaille. Ce critère caractérise la fragilité de l’acier. L’acier devient fragile en-dessous d’une zone de température dite zone de transition et lorsqu’il est soumis à des contraintes de type multidirectionnelles qui peuvent apparaître notamment dans les constructions soudées.
  • 6.
    6 Une même nuanced’acier, E24 par exemple, existe en plusieurs qualités, fonction de la température de transition TK correspondant à un seuil conventionnel de fragilité. Il existe des méthodes permettant de relier TK à la température de service de la construction en fonction des concentrations de contraintes, de la vitesse d’application des sollicitations, de l’épaisseur du métal…, et donc de choisir l’acier de qualité appropriée. Toutefois, le risque de rupture fragile sera quasiment nul dans le cas de constructions métalliques courantes réalisées sous climat africain et pour lesquelles les dispositions constructives et les règles élémentaires de soudage auront été respectées. Dureté (Brinelle, Rockel, Vickers…) : Elle est déterminée à l’aide de différents essais non destructifs. Comme la dureté d’un métal est liée à sa résistance à la traction, il existe des tables de corrélation entre ces deux critères. On peut utiliser ces tables pour identifier rapidement des lots d’acier de résistances très différentes, mais elles ne sont pas assez rigoureuses pour permettre de départager deux nuances voisines. Contrainte limite d’endurance (limite à la fatigue) : Le phénomène de rupture par fatigue peut s’observer lorsqu’une pièce est soumise à des contraintes variables inférieures à σe mais exercées pendant un grand nombre de cycles. Des essais de fatigue permettent de déterminer σD, contrainte pour laquelle il n’y aura jamais rupture quelque soit le nombre de cycles (dans la pratique, si au-delà de 107 cycles il n’y a pas rupture on admet qu’il n’y aura jamais rupture) pour E24 σD ≃ 190 MPa. 3.2. Facteurs influençant les caractéristiques mécaniques : Forme et dimension des produits (ép ↗ → σe ↘ ) Température : ( θ ↗ → σe ↘ ) Exemple E24 : 200°C190 MPa 350°C 130 MPa Si la température dépasse une certaine valeur, à proximité d’un cordon de soudure par exemple, il y a risque local de trempe en fonction de la vitesse de refroidissement et de la composition chimique du métal dont la teneur en carbone notamment. Dans cette zone affectée thermiquement (ZAT) les caractéristiques mécaniques sont modifiées (la dureté augmente, la zone de ductilité devient moins grande) mais surtout il y a risque d’accumulation de contraintes et de développement de fissures. Tous les aciers ne se soudent pas facilement et la soudabilité est une caractéristique importante des aciers. Les aciers E24 ont une bonne soudabilité et si l’on respecte les règles de soudage, les modifications de caractéristiques sont minimes et les risques de fissures négligeables. Ecrouissage et vieillissement : Tout travail de mise en forme à froid entraîne l’apparition du phénomène d’écrouissage, dont l’effet est d’augmenter la résistance et la limite d’élasticité, dans la direction de la déformation surtout, et de diminuer l’allongement et la résistance à la rupture fragile.
  • 7.
    7 Le phénomène devieillissement, qui consiste essentiellement en une modification, dans le temps et jusqu’une certaine limite des propriétés de l'acier, se produit en particulier après écrouissage pour les aciers de C.M. les plus usuels, et ajoute ses effets à ceux de l’écrouissage. Effet de la rouille : En tant que matériau, l’acier présente une régularité de composition et une absence de porosité qui fait que son oxydation se développe assez régulièrement de la surface vers le cœur sans s’arrêter malheureusement puisque la rouille n’est pas étanche. Les caracté- ristiques du matériau sain ne sont pas affectées, mais la section utile de l’élément se trouve réduite donc l’état de contrainte augmente sous charges constantes (les caractéristiques mécaniques de la rouille sont négligeables). Pour pallier cet inconvénient, il faudra, soit prévoir des surépaisseurs ou un renforcement des éléments essentiels pour compenser la perte future de métal, soit prévoir au moyen de protection (peinture, traitement de surface…). Les industries sidérurgiques produisent des aciers de construction à résistance améliorée à la corrosion atmosphérique. Exemple : : E24 W (Il s’agit souvent d’acier au cuivre).
  • 8.
    8 3.3. Catégories d’acierrencontrées en C.M. : Catégories Normes principales Forme des produits Aciers de construction d’usage général NF A 35-501 Poutrelles, laminés marchands, produits plats. Aciers à haute limite d’élasticité soudables NF A 35-504 Poutrelles et profils NF A 36-201/36-204 Tôles et plaques Aciers à résistance améliorée à la corrosion atmosphérique. NF A 35-502 Poutrelles, laminés marchands, produits plats. Aciers spéciaux NF A 35-556 Aciers pour boulons à hautes performances (boulons hr) Aciers à surface préparée ou revêtue NF A 36-321/322 Tôles galvanisées NF P 34-301 Tôles galvanisées prélaquées NF A 35-511 Produits longs et plats grenaillés prépeints. Aciers inoxydables NF A 35-573 Produits plats NF A 35-574 Barres 3.4. Les aciers d’usage général : Désignation conventionnelle : Elle est basée sur les caractéristiques mécaniques. Exemple : E24 2 A33 nuance qualité nuance Nuances Qualités Limite d’élasticité min. N/mm2 épais, ≤ 30 mm Résistance à la traction N/mm2 (3) Observations A33 175 300-540 (2) E24 2, 2E , 2 NE 3 4 235 340-440 R ≤ 460 N/mm2 en produits plats E28 2 3 4 275 400-540 E36 2 3 4 235 490-630 La qualité 2 n’existe pas en tôles. (2) La nuance A33 n’est pas autorisée pour les poutrelles et les barèmes des sociétés sidérurgiques ne la prévoient pas non plus pour les cornières de largeur d’aile supérieure à 50 mm. (3) Valeur pour laminés marchands et poutrelles.
  • 9.
    9 Dans la constructiondes bâtiments, les conditions de faibles déformations (flèches limitées pour l’exploitation) et celles liées aux instabilités (flambement, voilement) conduisent généralement à rendre sans intérêt l’emploi d’aciers à haute résistance ; les exceptions concernent des éléments de fortes épaisseurs et ceux qui sont toujours simplement tendus (câbles, tirants, haubans…). Cela explique que l’acier doux courant de la nuance E24 soit de loin le plus utilisé. C’est donc aussi celui que l’on trouvera le plus facilement et dans des délais les plus courts, dans les produits de formes et dimensions courantes. 4. PRODUITS MARCHANDS UTILISES EN C.M. Un résumé des produits les plus courants est donné par les tableaux suivants : A, B. Leurs caractéristiques dimensionnelles normalisées sont données dans les tableaux du tome 2 du polycopié de structure de la page 16 à la page 53. Les longueurs produites couramment vont de 6 à 18 m mais avant d’envisager l’emploi de grandes longueurs (> 8 m) se renseigner sur leur disponibilité auprès des revendeurs locaux ou des importateurs. 5. CHOIX DU TYPE DE SECTION Du point de vue de la résistance des matériaux, la répartition de la matière par rapport à l’axe neutre d’une poutre à une très grande influence sur ses caractéristiques géométriques (Ix, Iy, I/v, Ms ….) donc sur les sollicitations auxquelles elle peut être économiquement soumise et en définitive sur l’usage qui en sera fait. Les différentes sections des profilés du commerce couvrent l’ensemble des besoins rencontrés en C.M. avec des domaines d’utilisation qui peuvent se chevaucher. Il en découle que le choix autres que ceux de résistance ou de déformation (prix, encombrement, facilité d’assemblage…). 5.1. Sections en I : IPN : cette forme est de moins en moins utilisée. IPE : ces profilés remplacent les IPN. Ils sont très économiques en flexion dans un sens. Ix >> Iy. 5.2. Section en H : Ils ont même allure que les I mais leurs ailes sont plus larges. HEA : Ix > Iy. (profil H allégé) On l’utilise pour les poteaux comprimés et fléchis (bonne tenue au flambement) ou exceptionnellement pour les poutres lorsque les IPE qui reprendraient la même charge ont une hauteur trop grande. HEB : Ix > Iy. (profil H normal) Plus lourd que le HEA, il est moins encombrant. Il est utilisé également comme poteau. Par exemple, dans les mêmes conditions d’usage, un poteau en HEB 260 pèse 325 kg et supporte une charge de 166.560 daN et en HEA 300 pèse 310 kg et supporte une charge de 163.9OO daN.
  • 10.
    10 Enveloppes dimensionnelles –Produits « sidérurgiques » - A - : Désignation Forme de la Section Dimensions extrêmes (mm) hauteur x largeur ou épaisseur Poids/mètre extrêmes (kg/m) Normes de référence pour les tolérances Poutrelles IPE ; IPE-A IPE-R 80 x 46 610 x 220 6,0 153,0 NF A 45-206 Poutrelles IPN 80 x 42 160 x 74 5,95 17,9 NF A 45-210 Poutrelles HE-A ; HE-B HE-M 96 x 100 620 x 305 16,7 285 NF A 45-211 Poutrelles UPN Et UAP 80 x 45 300 x 100 8,38 46,2 NF A 45-210 (UPN) NF A 45-255 (UAP) Cornières égales 20 x 3 200 x 20 0,88 60,0 NF A 45-001 Cornières inégales 30 x 20 x 3 150 x 90 x 11 1,12 20 NF A 45-001 Petits U 30 x 15 x 4 65 x 42 x 5,5 1,74 7 NF A 45-001 T égaux 30 x 4 100 x 11 1,77 16,4 NF A 45-001 Plats 20 x 4 150 x 20 0,63 23,6 NF A 45-001 Ronds 10 200 0,617 247 NF A 45-001 NF A 45-075 (rivets) Profilés spéciaux T inégaux Équerres T à angles vifs Profilés de menui- Serie métal. Etc. 20 à 120 mm 0,8 à 20 kg NF A 45-001 (T à congés) Tôles Il existe égale- ment des tôles à relief largeurs ≤ 2 000 épaisseurs ≤ 15 NF A 46-501 NF A 46-402 (tôles à froid). Plaques largeurs générale- ment > 2000 mm NF A 46-503 NF A 46-504 Larges-plats largeurs : 150 à 850 mm épaisseurs : 5 à 60 mm NF A 46-012 Feuillards largeurs : 9,5 à < 600 mm épaisseurs : 1 à 12 mm NF A 46-100 Tôles galvanisées Et/ou Prélaquées largeurs : 600 à 1 500 mm épaisseurs : 0,25 à 5 mm NF A 46-320 NF A 46-321 NF A 46-322 NF A 46-323 Produits pour béton, Fils et barres 4 à 50 0,15 à 15 NF A 35-015 à 023
  • 11.
    11 Produits transformés enacier – Profils creux pour construction (tubes) : Désignation Forme de la Section Dimensions extrêmes (mm) Poids/mètre extrêmes (kg/m) Normes dimensions et tolérances Profils creux Ronds extér : 21,3 à 1 620 épaisseur : 2,3 à 40 1 à 1 164 Profils creux Carrés côté : 22 à 350 épaisseur : 2,3 à 12 1,5 à 124 Profils creux rectangulaires 35 x 20 à 400 x 300 épaisseur : 2,3 à 12 1,8 à 124 NF A 49-501 (finis à chaud). et NF A 49-541 (finis à froid) Profilés formés à froid (courants) : Désignation Forme de la Section Dimensions extrêmes (mm) Poids/mètre extrêmes (kg/m) Normes dimensions et tolérances Cornières égales Ou inégales 15 x 1,5 ou 20 x 15 x 2 à 100 x 5 ou 100 x 50 x 5 0,3 à 7,5 Coulisses 11 x 30 à 200 x 80 épaisseur : 2 à 6 0,6 à 15,8 C 30 x 11,5 x 2 à 140 x 50 x 3 1,3 à 6 Omegas 17 x 25 x 12 x 1,5 70 x 38 x 30 x 4 0,8 à 6,5 Profilés en Z 120 à 250 épaisseur : 1,5 à 5 3 à 16,5 NFA 37-101 HEM : Ix > Iy (profil H renforcé) : Ses membrures sont très épaisses et il est essentiellement utilisé comme pieux pour les fondations (réserve de métal en cas de corrosion). 5.3. Section en U : Ix > > Iy Ces profilés sont souvent choisis à cause des trois surfaces planes extérieures (de liaison) qu’ils comportent. Associés entre eux ou à d’autres profilés ils peuvent constituer des poteaux ou des poutres composés. On les utilise seuls en flexion mais leur dissymétrie est généralement la cause d’une flexion non plane. On dispose d’UPN et de UAP (faces des ailes parallèles). 5.4. Sections en L : Les axes principaux d’inertie ne sont pas parallèles aux faces.
  • 12.
    12 Les cornières sontsurtout utilisées seules ou par paires comme éléments de poutres réticulées travaillant en traction ou en compression (à vérifier au flambement) ou dans les assemblages.
  • 13.
    13 5.5. Profils creuxronds : Ix = Iy Seuls ils sont utilisés comme poteaux. On les utilise pour la fabrication de poutres à treillis planes en concurrence avec les poutres à treillis à profilés ouverts. Par contre, ils sont pratiquement les seuls à être utilisés pour la confection des éléments porteurs tridimensionnels (poutres, dalles). 5.6. Profils creux carrés (Ix = Iy ) ou rectangulaires (Ix > Iy ) : On les trouve sous forme de poteaux ou sous forme de poutres pour les profils rectan- gulaires. Ils peuvent constituer également les éléments de poutres à treillis. REMARQUE : Bien que les constructions en treillis creux présentent des caractéristiques intéressantes, elles ne sont pas très épandues car leur mise en œuvre nécessite plus d’équipements et surtout plus de savoir-faire que les constructions classiques. Elles ne seront pas abordées dans la suite du cours. 5.7. Exemple de comparaison : Il s’agit d’une poutre sur appuis simples devant supporter une charge répartie de 7 800 kg. Les profilés sont calculés dans les mêmes conditions de sécurité. Pour une portée 6 m, on trouve : Poids d’acier utilisé • sans condition de flèche : (pour 6 m) HEB 180 charge admissible 8 774 kg 307 kg HEA 200 charge admissible 8 038 kg 253 kg IPE 270 charge admissible 8 933 kg 217 kg Profil creux carré 200 x 8 : 9 291 kg 268 kg Profil creux rectangulaire 250 x 150 x 6 : 8 013 kg 214 kg • condition de flèche = 300 (plancher courant HEB 200 charge admissible 8 139 kg 368 kg HEA 240 charge admissible 11 231 kg 362 kg IPE 270 charge admissible 8 430 kg 217 kg Profil creux carré 300 x 6 : 14 300 kg 327 kg Profil creux rectangulaire 300 x 100 x 10 : 10 380 kg 343 kg • condition de flèche = 500 (cloisons en maçonnerie) HEB 240 charge admissible 9 589 kg 499 kg HEA 260 charge admissible 8 959 kg 409 kg IPE 330 charge admissible 10 248 kg 295 kg Profil creux carré 300 x 6 : 8 447 kg 327 kg Profil creux rectangulaire 300 x 200 x 8 : 8 102 kg 355 kg Pour chaque cas, on peut contrôler que le profil immédiatement inférieur n’est pas suffisant (la charge admissible est inférieure à 7 800 kg).
  • 14.
    14 6. PRODUITS DERIVESDES PRODUITS SIDERURGIQUES : Poutrelles reconstituées soudées « PRS » : Les profils reconstitués soudés sont obtenus à partir de produits plats, assemblés sur un équipement de sondage entièrement automatique. Les fabrications de type artisanal sont à proscrire à priori. Pour les poutres de grande portée et faiblement chargées, l’emploi de poutrelles du commerce est peu économique (hauteur/poids : faible). On peut alors reconstituer un profil en I de grande hauteur en PRS à partir de deux semelles et d’une âme en tôle. En utilisant différente largeurs, épaisseurs et mêmes nuances, on peut créer des poutres très bien adaptées aux charges qu’elles supportent. Poutrelles ajourées : Les poutrelles alvéolaires, que l’on appelle aussi poutrelles ajourées, expansées ou nids d’abeille, sont obtenues à partir de poutrelles laminées à chaud, par découpage de l’âme selon une ligne polygonale, et reconstitution par soudage des deux éléments dent à dent (évidemment hexagonaux), ou après ajout de plats (« plaquettes ») intercalaires (évidemment octogonaux). pas M h h1 h’/2 h1 y y y y x xI x x y y a e b V1 V2 h1 r A H B M/4 A B M M/4 3M/4 h1 h1 h' h3 B A B A M 2M/3 M/ 3 M/3 h1 h1 h2 H POUTRELLE D'ORIGINE COUPE AA COUPE BB MEMBRURE EVIDEMENTS OCTOGONAUXEVIDEMENTS HEXAGONAUX
  • 15.
    15 Ces poutrelles sontintéressantes pour obtenir des poutres en travées simples sur appuis simples, supportant des charges réparties (pas de poteaux intermédiaires, pas de charges roulantes) lorsque la portée est assez grande et la charge relativement faible (c’est-à-dire lorsque la condition de flèche amène à surdimensionner beaucoup une poutrelle à âme pleine). Systèmes réticulés (réseau de barres) : Par exemple, poutres et poteaux à treillis, mâts, pylônes, etc… c’est la façon la plus « légère » d’éloigner la matière de l’axe neutre d’un élément porteur (on peut d’ailleurs calculer le moment d’inertie équivalent). 7. MODES D’ASSEMBLAGES : Les différents procédés d’assemblage couramment utilisés sont : - le rivetage, - le boulonnage par boulons ordinaires, - le boulonnage par boulons à haute résistance (hr) - le soudage. L’utilisation des boulons hr est de plus en plus fréquente. On obtient un assemblage différent par son calcul de celui obtenu par l’emploi des boulons ordinaires. Avec les boulons hr la transmission des efforts s’effectue par l’adhérence des pièces en contact et non par cisaillement du corps du boulon comme dans le cas des boulons ordinaires. Cette adhérence résulte d’un serrage énergique du boulon hr qui peut travailler fortement en traction car il est en acier à haute limite élastique. Le serrage nécessite une clé dynamométrique ou tout autre moyen garantissant sa valeur. Dans ce procédé, on peut se permettre un grand jeu (1 à 1,5 mm) dans les trous par rapport au diamètre des boulons car il n’est pas prévu de contact entre le corps du boulon et les bords des trous. Les boulons hr sont coûteux, leur emploi n’est économiquement envisageable que sur chantier pour assembler des éléments de charpente préfabriqués. De plus, pour que l’assemblage soit conforme aux calculs, il faut beaucoup de sérieux et de savoir-faire dans la préparation des pièces (sablage des surfaces de contact pour garantir l’adhérence), serrage des boulons hr (nécessité de respecter la gamme de serrage) et étanchéification de l’assemblage. Toutes ces raisons limitent la diffusion de cette technique dont les calculs ne seront pas abordées dans la suite du cours. 8. LA CONSTRUCTION METALLIQUE EST REGLEMENTEE : Les règles de calcul et les prescriptions réglementaires qui apparaîtront par la suite sont extraites des règles CM 66, des normes NF et de certains DTU. Certains phénomènes intervenant en construction métallique ne seront même pas abordés bien qu’ils puissent dans certains cas conduire une structure à la ruine. Tous ces phénomènes sont pris en compte par les règlements d’où le volume très important des recueils de norme et l’existence de bureaux d’études spécialisés en charpente métallique. Néanmoins, les quelques éléments de règlement qui seront abordés (une partie a déjà été vue en structure), permettent de construire en toute sécurité si on les respecte et si on reste dans les limites de validité des hypothèses sensées traduire la réalité concernant le matériau (caractéristiques, formes,…), l’application des charges, le fonctionnement de la structure et celui des assemblages.
  • 16.
    16 L’application des règlesexige un prédimensionnement des ouvrages (recherche des propor- tions économiques) car toutes les méthodes de calcul sont en fait des méthodes de vérification. RAPPELS : Les règles CM 66 sont fondées sur l’hypothèse d’un comportement élast oplastique de l’acier employé. C’est pourquoi, elles exigent d’une part, une limite d’élasticité garantie (est prise comme base de toutes les vérifications) et d’autre part, un allongement A au moins égal à 20 % (adaptation). Les charges et surcharges sont pondérées pour les vérifications de sécurité mais pas pour les calculs des déformations. Les valeurs limites des flèches couramment admises sont les suivantes : - 1/500 de la portée, pour linteaux, poutres et éléments de planchers sous murs en maçonnerie ou cloisons, et pour les poutres recevant des poteaux supportant eux-mêmes planchers et toitures, ainsi que les éléments recevant des vitrages. (ex. 3 m de long ⇒ 6 mm) - 1/300 de la portée dans les cas ci-dessus, avec les charges et surcharges pour les éléments fléchis des planchers. (ex. 3 m de long ⇒ 10 mm) - 1/200 de la portée pour les éléments fléchis de couverture, avec les charges et surcharges. (ex. 3 m de long ⇒ 15 mm) 0.1 % E=2.1*10 5 Mpa 20% σe σ
  • 17.
    17 BATIMENTS A OSSATUREMETALLIQUE 1. TERMINOLOGIE : (Voir cours de Technologie de construction) 2. TYPES D’OSSATURES : 2.1. Seuls les combles sont métalliques : L’infrastructure est généralement en maçonnerie porteuse ou en B.A. Les attaches de la charpente sur les murs ou poteaux doivent faire l’objet de la plus grande attention car elles doivent être capables de transmettre l’intégralité des efforts que subit la charpente, en particulier les efforts de soulèvement dûs au vent. Pour les petites constructions et les faibles portées (< 6 m) on utilise des pannes en profilé directement fixées sur les murs pignons et les murs de refend. toiture 3 ou comble Long pan Pignon 1 2 1 Poteau 2 Semelle Sablière3 Poutre4 Traverse5 Linteau6 Poitrail7 8 Remplissage Soubassement9 3 2 1 5 6 7 9 2 1 3 4 8
  • 18.
    18 Au fur età mesure que les portées et les surfaces couvertes augmentent, la structure économique se compose : - de poutres maîtresses (profilés, à âme pleine ou alvéolaire, fermes à treillis) supportant les pannes en profilé. - quand elles deviennent imposantes, on limite le nombre de fermes en les écartant d’avantage et on a alors recours à des pannes alvéolaires ou en treillis. Puis on a souvent intérêt à limiter le nombre de pannes composées que l’on appellera pannes principales sur lesquelles viendront se reprendre, parallèlement aux fermes, des empanons ou faux arbalétriers qui serviront eux-mêmes de support aux pannes secondaires en profilé. Ce dernier type d’organisation de la structure est généralement associé à une infrastructure métallique. 2.2. Ossature entièrement métallique : Il existe deux grandes catégories d’ossatures que l’on pourrait appeler « planes » par opposition aux structures tridimensionnelles qui ne seront pas abordées ici : - les portiques à âme pleine ou alvéolaire et quelquefois à treillis (systèmes plans à contour polygonal dont la rigidité est obtenue par un certain nombre d’encastrement des barres entre elles). PORTIQUES SIMPLES a poutre et poteaux à âmes pleines e à piedroits à treillis b d° à 2 versants f c par encastrement ferme sur poteaux g semi-portique d h portique à 3 articulations i poutres et poteaux à treillis - les fermes en treillis associés à des poteaux (profilés, composés ou treillis). a d g b e h c f i
  • 19.
    19 REMARQUE : Une fermeà treillis encastrée sur deux poteaux peut constituer un portique. La conduite des calculs sera différente pour chaque catégorie . On sera dans le cas d’un portique lorsque la rigidité de l’attache entre montant et traverse pourra être considérée comme un encastrement parfait qui imposera une dépendance mutuelle du montant et de la traverse d’inerties respectives Im et Tt. L’autre catégorie concerne les fermes dont la raideur est telle que l’on pourra les considérer comme indéformables. 3. STABILITE ET CONTREVENTEMENT : 3.1. Définitions : On entend par contreventement, tout dispositif assurant la stabilité d’une ossature vis-à-vis des efforts horizontaux (vent, ponts roulants, poussée des terres, …) et par extension ceux assurant la stabilité transversale (flambement, déversement) de certaines parties de l’ouvrage. Notion de stabilité : un ouvrage sera stable si, quelques soient les efforts qu’il sera amené à subir, directs ou dérivés, provisoires normaux ou exceptionnels, ni il ne pourra s’effondre ni se renverser mais également si le déplacement sera suffisamment faible pour ne pas compromettre sa conversation ou la poursuite de son exploitation. Les efforts subis devront donc pouvoir « cheminer » depuis leur zone d’application jusqu’aux matériaux des autres corps d’état (murs, poteaux, fondations,…) par tous les éléments constitutifs de l’ossature et de l’un à l’autre par leurs attaches sans provoquer la ruine de l’ouvrage ou des désordres locaux. La stabilité apparaîtra sous différents aspects :  de l’ensemble  d’un élément  statique  élastique stabilité  définitive  provisoire  horizontale  verticale  longitudinale  transversale Stabilité statique : C’est l’étude de l’équilibre de tout ou partie de l’ossature constituée d’éléments supposés indispensables. On rencontrera rarement de structures réellement isostatiques mais souvent des structures hyperstatiques de degrés divers. Stabilité élastique : La stabilité élastique d’un élément d’ossature est réalisée lorsque son état de contrainte demeure dans le domaine élastique de l’acier. C’est-à-dire, qu’il faut vérifier que les contraintes de traction, de compression, de flexion, de cisaillement, de torsion, etc… restent admissibles et ne risquent pas de provoquer un des phénomènes d’instabilité élastique suivant : - flambement (poteau, extrait de ferme…) - déversement (membrures comprimées de poutre fléchie) - voilement (déformation locale des âmes des poutres) - cloquage (paroi cylindrique,…).
  • 20.
    20 Des contreventements etentretoisements seront nécessaires pour se prémunir contre de tels phénomènes. Stabilité provisoire : La stabilité de l’ossature doit être assurée à tout moment pendant la phase de montage. Il faudra donc toujours faire une analyse minutieuse des efforts spécifiques pouvant solliciter chaque élément pendant le montage (transport, manutention, mise en place,…). Des renforts temporaires peuvent être nécessaires. Si le contreventement définitif doit être assuré par remplissage, il faudra prévoir des contreventements provisoires en attendant l’intervention des maçons et pendant la phrase de prise du béton. Stabilité « horizontale » ou « verticale » : Cette terminologie a rapport avec les plans dans lesquels est réalisée la stabilité. Stabilité « longitudinale » ou « transversale » : Cette notion concerne la direction de stabilité. 3.2. Contreventement d’ensemble : Il faut d’abord faire le bilan complet des efforts horizontaux agissants sur l’ossature dans les différentes directions, les différents sens et pendant les différentes phases. Ces efforts ont pour origine : - le vent (normal, extrême, longitudinal, transversal) - les ponts roulants (freinage, tamponnement) - les dilatations - la poussée des terres - les tassements différentiels des fondations - les composantes horizontales des charges. Contreventer consiste à résister à ces efforts horizontaux, les « recueillir » et les transmettre au sol, tout en limitant les déformations. La stabilité statique d’une ossature est généralement obtenue à l’aide de plans de contre- ventement (plans rigides) disposés suivant les 3 directions de l’espace et organisés de telle sorte que : - les efforts horizontaux sont recueillis par des plans de contreventements horizontaux - ces plans prennent appui sur les plans de contreventement verticaux parallèles aux efforts à descendre au sol.
  • 21.
    21 Exemple : soitl’ossature classique ci-dessous constituée de fermes sur poteaux supportant une couverture et un bardage sur les longs-pans et ses pignons. Tout effort F, d’inclinaison quelconque, peut se décomposer en un effort horizontal longitudinal FL. un effort horizontal transversal FT et un effort vertical FV . Il faut que ces trois composantes soient transférées aux fondations. L’effort FV est transmis par les poutres au vent suivant versants aux sablières des longs-pans puis aux fondations par les palées de stabilité triangulées des longs-pans. L’effort FT est transmis par les fermes aux poutres au vent suivant longs-pans puis aux fondations par les palées de terminologie : FTFL FV F Sablière Contrevt suivant versant Panne Ferme Faîtière arbalétrier de pignon montant de pignon lisse de pignon Ossature de pignon Lisse de long pan poteau Palée de stabilité longitudinale Palée de stabilité transversale 1 3 2 2 5 4 Contreventements 1 . longitudinaux 2 . transversaux 3 . de rampant 4 . d'entrait 5 . de poinçon
  • 22.
    22 Constitution des plansde contreventement : - par triangulation (croix de St-André, contre-flèche, système reticulé). - par portique (les fermes et les sablières encastrées sur les poteaux peuvent constituer des portiques). - par remplissage (maçonnerie, dalle B.A., …). REMARQUE : Même s’ils participent partiellement au contreventement, les bardages et couvertures ne sont pas pris en compte dans les calculs, sauf lorsqu’ils ont été étudiés pour cette fonction. Soit à contreventer la structure ci-contre (système instable – mécanisme) : Solutions : triangulation Portique Remplissage encastrement diagonale bielle
  • 23.
    23 LES A SS E M B L A G E S 1. ROLE ET TYPES D’ASSEMBLAGES : Les assemblages réalisent les liaisons entre les différentes pièces d’une structure métallique. Ils assurent la transmission des efforts des pièces entre elles mais leur conception ne doit pas générer des efforts secondaires. L’analyse des assemblages se fera dans des plans perpendi- culaires entre eux, contenant les efforts et dans lesquels on rencontrera l’un des types de liaisons planes suivantes : Encastrement : Liaison complète pouvant transmettre tous les types de sollicitations. Articulation : Elle ne peut pas transmettre de moment dan le plan qui la contient. Appui simple : Ne peut transmettre des efforts autres que ceux inclus dans le cône d’adhérence. L’axe du cône est perpendiculaire aux surfaces de contact. Les pièces assemblées pourront être soit en prolongement l’une de l’autre, il s’agira alors d’un assemblage « bout à bout », de « couture », de « raboutage », appelé joint (éclissage par exemple), soit concourantes et l’on parlera alors d’une attache ou d’un nœud (attache poutre sur poteau, nœud de treillis, …). Les assemblages sont classés en deux catégories selon les efforts transmissibles : - assemblages rigides : efforts et moments sont intégralement transmis - assemblages articulés : Ils transmettent uniquement les efforts normaux et tranchants. Les assemblages réels ne sont ni parfaitement rigides, ni parfaitement articulés. Ils ont un comportement intermédiaire et il ne sera pas toujours aisé de les classer.
  • 24.
    24 Dans la pratique,un assemblage théoriquement rigide pourra être considéré comme une articulation dans les cas suivants : - il relie entre eux des éléments suffisamment flexibles. Par exemple : un nœud de ferme à treillis ; - son mode d’assemblage lui confère une certaine souplesse : selon le procédé d’assem- blage utilisé, on distingue : Les assemblages souples : Ce sont ceux réalisés par boulons ordinaires (surtout s’ils ne sont pas ajustés), par rivets, par boulons hr sur calamine. Les assemblages rigides : Ce sont ceux réalisés par soudage ou par boulons hr sur surface préparée. - La conception de l’assemblage n’autorise pas la transmission d’un moment important. C’est en particulier le cas des attaches entre profilés (ou poutres à âme pleine) lorsqu’elles sont réalisées uniquement par les âmes. Une analyse fine des microdéplacements, des déformations et des adaptations plas-tiques possibles sera donc nécessaire pour classer un assemblage, c’est-à-dire évaluer son aptitude à transmettre un moment. En cas de doute, il faudra envisager plusieurs hypothèses, étudier le comportement dans chaque cas et choisir le cas qui offre le plus de sécurité. Mais attention, lorsque l’assemblage est assimilé à un type, il doit garder ce type pour tous les calculs de la structure. REMARQUE : Un même assemblage peut réaliser une articulation dans un plan et un encastrement dans un plan perpendiculaire au précédent. 1. EXEMPLES D’ASSEMBLAGES : 2.1. Réalisant un encastrement : A B C Appui encastré encastrement boulonné hr encastrement soudé
  • 25.
    25 Ferme de hauteurrelativement faible : une Seule attache continue : Solution A : fixation assurée par un H. Solution B : fixation assurée par une platine Soudée en bout avec un raidisseur vertical (interrompu pour éviter de fendre la diagonale). Exemple de jarret N.B. : Ces goussets ne sont pas nécessaires si les platines sont suffisamment épaisses. 2.2. Réalisant une articulation : Pieds de portiques articulés. SEMELLE - RAIDISSEUR D A B G RAIDISSEUR DE PLATINE D'ABOUT Exemples de clef ≥2h h Plats E F H KJI Sol fini L
  • 26.
    26 Sol fini 120 δ δ boulonsD20 18 9 8032 65 32 65 55 Noeud PARTIE DE GOUSSET A NE PAS COUPER COUPER (angle rentrant) M N O P Q Articulation cylindrique
  • 27.
    27 2.3. Réalisant unappui simple : R b g θ S V W T IPE 500 U 12 12 15 néoprène
  • 28.
    28 3. PRECAUTIONS CONSTRUCTIVES: Les assemblages constituent des zones particulières plus fragiles que les zones courantes des pièces, car les sections sont réduites du fait des perçages ou la nature de l’acier affaiblie par chauffage du soudage. C’est pourquoi, il faut être particulièrement vigilant dans la conception et le calcul des assemblages, afin de se prémunir contre tout risque de rupture brutale. Il faudra calculer les éléments d’assemblage (boulons, cordons de soudure) mais aussi les pièces assemblées. Mais un bon dimensionnement n’est pas suffisant, si la conception n’est pas correcte. Il faut assurer à travers l’assemblage la transmission des forces sans créer d’efforts ou de moments parasites. Pour cela, il faut respecter les dispositions constructives générales suivantes : - éviter les assemblages par recouvrement simple et utiliser si possible un assemblage symétrique par double couvre-joint. A résistance égale, il est toujours plus économique. - faire concourir les axes neutres des barres dans le système réticulés. Ce n’est souvent pas le cas pour les treillis réalisés en cornières du fait de la non superposition des axes neutres et des axes de trusquinage . Il faudra en tenir compte dans les calculs. Tous les axes neutres des barres (simples ou composées) doivent se trouver dans un même plan qui est le plan de symétrie de l’armature résistante et du système des forces appliquées. Les assemblages des barres doivent être les plus courts possible (répartition des contraintes, rigidité, économie) . 4. ASSEMBLAGES PAR BOULONS ORDINAIRES : 4.1. Fonctionnement d’un assemblage par boulons : Sous faibles sollicitations, la résistance de l’assemblage est due à l’adhérence des faces des pièces sous f’effort de serrage des boulons. Le coefficient d’adhérence acier/acier n’excédant pas 0,35, dès que les sollicitations dépassent le seuil d’adhérence il y a glissement brusque des pièces jusqu’à ce que les boulons bloquent le déplacement par appui dans les trous. Ceux qui sont en contact travaillent alors au cisaillement. Les déplacements dépendent des jeux (entre trous et boulons) dont la répartition est aléatoire si les pièces n’ont pas été usinées simultanément. Comme on n’est jamais sûr de la valeur du serrage, on considérera toujours que les boulons travaillent uniquement au cisaillement.
  • 29.
    29 Dans la pratique,tous les boulons d’un même plan de joint ne seront pas soumis aux mêmes efforts (ceux des extrémités seront plus chargées que ceux du centre) mais lorsque les assemblages sont courts, on considérera que l’adaptation plastique des matériaux répartit également les charges sur tous les boulons. Simples cisaillement (à proscrire) Double cisaillement Boulons employés : On utilise uniquement des boulons à Vis et Ecrou hexagonaux de différentes qualités repérées par deux chiffres généralement forgés sur la tête de la vis (voir normes). Il existe deux sortes de vis : - les vis des boulons ordinaires à corps brut - les vis ajustée au corps usiné à un diamètre précis. Compte-tenu de l’imprécision des assemblages réalisés à l’aide de boulons ordinaires, leur emploi est limité aux constructions sommaires ou provisoires ou à la liaison de sous ensembles en construction soudée ou rivée. En raison des déplacement possibles, les assemblages par boulons ordinaires ne doivent pas être soumis à des charges alternées. 4.2. Dispositions constructives et calculs : Les assemblages par boulons ordinaires, non précontraints, leurs dispositions constructives et leurs modes de calculs sont réglementés par la norme NF P 22-430. En plus du calcul des boulons, il faudra vérifier la résistance de toutes les pièces de l’assemblage (barres, goussets, …) dans leur zone de faiblesse. Pour les goussets par exemple, il faudra rechercher la ou les lignes de déchirure possible. Même lorsqu’un seul boulon suffirait à transmettre les efforts, les barres sont liées aux assemblages par ou moins 2 boulons. As
  • 30.
    30 N O RM E S 1. SYMBOLES ET UNITES 1.1. Symboles A : section nominale du boulon (de la tige lisse) ; AS : section résistante de la partie filetée (voir norme NF E 03-014) ; V1 : effort relatif à l’état limite ultime (effort pondéré), exercé sur un boulon perpendiculairement à son axe, par une pièce d’épaisseur t ; V2 : effort par un boulon relatif à l’état limite ultime (pondéré) exercé sur l’assemblage ; N : effort normal de traction relatif à l’état limite ultime (effort pondéré) exercé sur chaque boulon ; d : diamètre nominal des boulons ; dtr : diamètre définitif des trous ; s : distance entre axes des trous de boulons ; a/ / : distance de l’axe d’un boulon au bord le plus voisin de la pièce assemblée dans le sens de l’effort sollicitant l’assemblage (pince longitudinale) ; a⊥ : distance de l’axe d’un boulon au bord le plus voisin de la pièce assemblée dans la direction normale à l’effort sollicitant l’assemblage (pince transversale) ; t : épaisseur d’une quelconque des pièces assemblées ; tmin : épaisseur de la plus mince des pièces assemblées ; Σt : épaisseur totale des pièces assemblées ; m : nombre de plans de cisaillement ; σe : limite d’élasticité du métal constituant les pièces assemblées ; σred : contrainte caractéristique servant de contrainte de vérification des boulons ; ô : facteur de réduction de la résistance des boulons en fonction de la longueur des assemblages. Sx a// Sy a⊥ V
  • 31.
    31 1.2. Unités : -Efforts en newtons - Limite d’élasticité en MPa (1) - Contrainte caractéristique en MPa (1) - Dimensions linéaires en millimètres - Surfaces en millimètres carrés. QUALITES DES VIS ET DES ECROUS Les qualités des vis et des écrous sont celles définies par la norme NF E27-006 « Articles de boulonnerie d’usage général – Spécifications techniques » pour les classes de qualité 4.6 – 4.8 – 5.6 – 5.8 – 6.6 – 6.8 – 6.9 – 8.8 et 10.9. DISPOSITIONS CONSTRUCTIVES 1. CONDITIONS DE DISTANCE DES BOULONS : 1.1. Le diamètre des trous dtr est égal au diamètre nominal des boulons augmenté de : - 1 mm pour d ≤ 10 mm - 2 mm pour 12 ≤ d≤ 22 mm - 3 mm pour d ≤ 24 mm 1.2. Distances entre axes des boulons : Files extérieures (sur le contour de l’assemblage) - pour les pièces soumises aux intempéries ou situées dans des conditions favorisant la corrosion : 3 dtr ≤ s ≤ 7 dtr - pour les pièces non soumises aux influences précédentes : 3 dtr ≤ s ≤ 10 dtr Files intérieures : s ≤ s 30 tmin
  • 32.
    32 1.3. Longueur maximalede l’assemblage : Lorsque la distance entre le premier et le dernier boulon dans un assemblage n’est pas supérieure à 15 dtr, la résistance de l’assemblage doit être considérée égale à la somme des résistances des boulons concernés. Mais lorsqu’elle dépasse 15 dtr la résistance n’est qu’une fraction ô de la somme des résistances des boulons concernés. Bien évidemment, cette limitation ne s’applique pas lorsque les efforts sont uniformément répartis sur tous les boulons sur toute la longueur de l’assemblage : c’est-à-dire afin de transmettre les efforts de cisaillement de l’âme à la semelle, ou de l’âme aux raidisseurs aux appuis des poutres à âme pleine. 1.4. Pince longitudinale a/ / : La pince a/ / doit être supérieure à la plus grande des valeurs : Elle doit, cependant, pour éviter la corrosion, rester inférieure à 4 dtr pour les goussets pincés entre deux pièces assemblées et à 2,5 dtr dans les autres cas. (Voir figure). B1// 4 dtr pour les pièces pincées (1) B2// 2,5 dtr pour les pièces extérieures (2) 0.7 0.8 0.9 1 15d 30d 45d 60d 65dtr 0.05/10dtr δ d d a2 a2 (2) (2) V V V/2 V/2 V (2) (2) (1) a2a1
  • 33.
    33 1.5. Pince transversalea⊥ : 1,5 dtr ≤ a⊥ ≤ 2 dtr 1.6. Conditions d’épaisseur des pièces assemblées : Fourrure : Si une cale destinée à rattraper une tolérance de laminage ou de fabrication d’épaisseur supérieure à 0,2 d est interposée entre les pièces transmettant des efforts, elle doit être fixée par soudage. Epaisseur des pièces élémentaires : Les pièces assemblées étant classées par ordre d’épaisseurs décroissantes, en appelant t2 l’épaisseur de la deuxième, les relations suivantes doivent être respectées : d ≥ t2 + 2 mm avec t2 ≤ 20 mm d ≥ 22 mm avec t2 ≤ 20 mm Epaisseur totale Σt : Si une fourrure n’est pas fixée par soudage (épaisseur de la fourrure inférieure à 0,2 d), la relation suivante doit être respectée : Σt ≤ 4d Sans limitation dans le cas contraire. 1.7. Pression diamétrale : Dans le cas où des déformations appréciables apporteraient une gêne à l’exploitation : dt V1 ≤ 2 eσ Dans le cas des assemblages boulonnés courants : dt V1 ≤ 3 eσ
  • 34.
    34 CALCUL DES BOULONS 1.CONTRAINTE CARACTERISTIQUE : La contrainte caractéristique servant à la vérification des boulons est la plus petite des deux valeurs suivantes : - valeur de la limite d’élasticité garantie ; - valeur égale au 7/10 de la contrainte de rupture minimale garantie. Contrainte caractéristique pour les classes de qualité de la norme NF E 27-005 CLASSE DE QUALITE 4.6 4.8 5.6 5.8 6.6 6.8 6.9. 8.8. 10.9 σred (MPa) 240 280 300 340 350 410 410 550 670 2. SECTION DE CALCUL : Suivant la nature des efforts auxquels est soumis l’assemblage, les vérifications de la résistance du boulon font intervenir : - soit la section A de la tige lisse ; - soit la section résistante As de la partie filetée, donnée par la norme NF E 03-014. 3. RESISTANCE DES BOULONS : 3.1. A la traction : On vérifie : 1,25 sA N ≤ redσ 3.2. Au cisaillement : - Si aucune précaution spéciale n’est exigée pour l’exécution, on vérifie : 1,54 smA V 2 ≤ redσ - Si des dispositions spéciales sont prises pour que la partie lisse du boulon règne au droit de TOUTES les sections cisaillées, on vérifie : 1,54 mA V2 ≤ redσ
  • 35.
    35 3.3. A uneffort incliné sur le plan du joint : Admettant par boulon, une composante normale N suivant l’axe du boulon et une composante V2 dans le plan du joint : - dans le cas où la section cisaillée se trouve dans la partie lisse, on vérifie simultanément : 1,25 SA N ≤ redσ et A m V N 2 22 36,2       + ≤ redσ - dans le cas où la section cisaillée se trouve dans la partie filetée, on vérifie simultanément : 1,25 SA N ≤ redσ et SA m V N 2 22 36,2       + ≤ redσ DIAMETRE DES TROUS : Le diamètre des trous dtr est égal au diamètre nominal des boulons d augmenté de : 1 mm jusqu’à d ≤ 10 mm 2 mm pour 12 ≤ d ≤ 22 mm 3 mm pour d ≥ 24 mm Diamètre Tôles et Cornières Ailes de U Ailes de pou- CLASSE Charges en tonnes Charges en tonnes du ames de De de trelles H de 4.6 non pondérées Pondérées boulon Profilés Largeur hauteur profils de d d’épaisseur d’aile (mm) dimensions (mm) (mm) (mm) nominales de Ø mm Section Résistante AS (mm2) Traction Cisaille- Ment Traction Cisaille- Ment 8 36.6 0.47 0.38 0.70 0.57 8 2 30 10 58.0 0.74 0.60 1.11 0.90 10 3 35 12 84.3 1.07 0.87 1.61 1.31 12 4 40-45 80 14 115 1.47 1.19 2.20 1.79 14 5 50 100 à 130 100 et 120 16 157 2.01 1.63 3.01 2.44 16 6 60 140 à 160 140 18 192 2.45 1.99 3.68 2.99 18 7 70 175 et 180 150 et 160 20 245 3.13 2.54 4.70 3.81 20 8 80-90 200 et 220 180 22 303 3.87 3.15 5.81 4.72 22 10 à 14 100-120 240 à 300 200 à 240 24 353 4.51 3.67 6.77 5.50 24 > 14 >120 >240 Les boulons sont sauf stipulations contraires du marché, montés sans rondelles. Les têtes des vis et les écrous doivent porter convenablement sur toute la surface de contact avec les pièces assemblées. Dans le cas d’assemblages à faces obliques, le boulon doit être muni de rondelles biaises.
  • 36.
    36 ASSEMBLAGE DES PANNES Lespannes, qui ont pour fonction de supporter la couverture, sont disposées parallèlement à la ligne de faîtage, dans le plan des versants. Disposées à extraxes constants, elles sont jumelées au faîtage (pannes faîtières) et peuvent être renforcées en rive pour reprendre des efforts horizontaux dûs au vent (pannes sablières). Leur portée correspond à l’entraxe des fermes (travée) et leur extraxe est déterminé par la portée possible des bacs de couverture. Dans la majorité des cas, les pannes sont constituées de poutrelles laminées IPE, leur poids moyen ramené au m2 de toiture oscillant aux alentours de 5 à 7 daN/m2. Elles peuvent être également réalisées en profilés minces (tôles pliées à froid), en section de Z, U ou Σ . Les pannes sont calculées pour satisfaire aux conditions de résistance (flexion déviée), et aux conditions de déformation (flèche maxi < 1/200 portée). Liaison panne / panne : Le raccordement de deux pannes entre appuis est rarement réalisé par boulonnage. Si c’est le cas, la continuité n’est assurée qu’à la condition d’utiliser des éclisses de module d’inertie voisin de celui des pannes et d’assembler le joint au moins trois boulons sur chaque panne (2 boulons ajustés ou HR). Liaisons s’opposant au déversement des pannes : La faible inertie transversale des profils des pannes conduit, dès que la pente des toits atteint 8 à 10 %, à leur flexion transversale. Pour limiter ce phénomène, on préfère créer des appuis intermédiaires plutôt que d’augmenter la section des profils.
  • 37.
    37 TYPES DE LIERNES: 1. Liernes en ronds : Une solution consiste à relier les pannes entre elles par des liernes situées à mi- portée ou au tiers de la portée. Ces liernes sont des tirants, qui fonctionnent en traction et qui sont soumis à des efforts croissants, au fur et à mesure qu’ils se rapprochent du faîtage. Les efforts de traction sollicitant les liernes ne peuvent pas être repris par les pannes faîtières qui périraient transversalement. Ils sont donc transmis aux fermes ou aux portiques par des tirants en diagonale. sablière Lierne Pannes faîtières lierne tirant Lierne Panne Panne Lierne Lierne Panne A crochets (pas de réglage) A crapauds (pas de réglage) Usinage précis nécessaire 2. Liernes en plats 3. Liernes en cornières ou en U entretoise faîtière Panne Lierne A filetages (réglage facile)
  • 38.
    38 Les couvertures légères(tôles ondulées, bac alu, etc…) peuvent sous certaines conditions (voir catalogues constructeurs) jouer le rôle de liernes. Dans ce cas : - les pannes faîtières sont reliées entre elles par des entretoises - les portées des pannes sont limitées (4 à 5 m). Liaison panne/ferme ou portique : Les pannes sont posées sur les arbalétriers et assemblées par boulonnage. Les appuis sont considérés comme libres et articulés. Boulonnage direct : il est rarement possible étant donnée la faible largeur des ailes des poutrelles. Liaison par échantignole : Les boulons et les dimensions de l’échantignole doivent être calculés. REMARQUE : Pour limiter la flèche des pannes on a intérêt à utiliser des pannes continues sur trois appuis. Au signe près les contraintes sont identiques au cas isostatique des pannes reposant sur deux appuis mais les flèches sont réduites de plus de 60 %. Il faut dans ce cas, disposer les joints de pannes en quinconce sur l’arbalétrier du fait des valeurs différentes des réactions d’appui. Liaison panne/mur : Appui mobile : Ce type d’appui est nécessaire lorsqu’aucun effort ne doit être transmis du mur à la charpente et réciproquement (dilatations différentielles possibles). - en sommet de mur, cet appui peut être réalisé sur une platine liée à la maçonnerie et une liaison par crapaud de la panne sur la platine. - contre un mur on peut réaliser les dispositions suivantes : (de preference) (à éviter)
  • 39.
    39 Appuis fixes : Ilsdoivent assurer une liaison efficace de la panne et du mur et la transmission des efforts longitudinaux apportés par les pannes au mur, ou par le mur aux pannes. La solution avec boulon d’ancrage est préférable. coupe A-A A A
  • 40.
    40 ASSEMBLAGE DES FERMES Liaisons« internes » : Dans les fermes réticulées, les liaisons entre barres sont réalisées par soudure, quelquefois par rivets ou boulons HR, mais pratiquement jamais par boulonnage ordinaire. Par contre, par commodité de transport ou de montage, on est souvent amené à réaliser des fermes en plusieurs parties qui seront assemblées par boulonnage sur le chantier. Avant de calculer les assemblages, il est nécessaire de dimensionner correctement toutes les barres. Les longueurs de flambements des barres qui conditionnent le dimensionnement de la plus grande part d’entre elles se déterminent d’après la distance sur épure des points fixes dans le plan de flambement. Dans le plan des versants, les points fixes des arbalétriers sont ceux qui sont reliés par les pannes aux nœuds des poutres de contreventement (fig. a) et dans le plan des entraits on prend pour points fixes ceux qui sont reliés à ces mêmes nœuds par l’intermédiaire des contreventements verticaux : - pannes en treillis - croix de Saint-André - bracons sous pannes. Toutefois, pour les fermes de faibles portées en nombre réduit, on peut considérer les pannes intermédiaires comme points fixes si elles sont attachées dans les pignons à des éléments suffisamment rigides (fig. b). Longueur de flambement des arbalétriers dans le plan des versants RAPPEL : Longueurs de flambement dans le cas des treillis symétriques soumises à compression constante : If = 0,810 dans le plan de la ferme pour les treillis If = 0,910 dans le plan de la ferme pour les membrures If = 10 dans le plan perpendiculaire à la ferme pour toutes les barres. U Feuillure de pignon ba Croisement des diagonales non fixées à la panne l l Panne fixées au croisement des diagonales Ferme Ferme l Ferme
  • 41.
    41 ATTENTION : Contrôler impérativementle risque de flambement de l’entrait : - sous l’effet de soulèvement dû au vent - sous l’effet du vent sur le long-pan en cas d’absence de poutre au vent. On pourra renforcer le faîtage par : - des couvre-joints des ailes des cornières, placés sous les ailes pour les arbalétriers comprimés si au contraire l’effet de traction est prépondérant (soulèvement dû au vent), on renforcera par un couvre-joint placé au-dessus des ailes. Compression prépondérante Traction prépondérante Dispositions Disposition correcte Flambement du gousset de
  • 42.
    42 - des cornièresde doublage : elles sont meulées et soudées en angle. Leur usage est recommandé dans le cas de couvertures légères en région de fort vent. On obtient ainsi une résistance sensiblement équivalente en traction et en compression. Le gousset d’entrait doit être renforcé suivant les mêmes principes, avec la précaution supplémentaire de ne pas dessiner un gousset à angle rentrant dans le cas d’un entrait retroussé (voir fig. Q page 26). Les renforts précédents ont pour autre avantage d’éviter les déformations pendant la manutention. Solidarisation des barres comprimées : Pour deux cornières placées dos à dos, on prévoira des boulons de solidarisation avec rondelles maintenant l’écartement. Pour deux cornières placées en croix, on Prévoira des barrettes en plats soudées ou fixées par deux boulons au moins sur chaque cornière. Cornières 30 35 40 45 50 60 Espacement 285 340 375 435 475 575 Cornières 70 80 90 100 120 150 L’espacement des liaisons sera au maximum de 50 fois le rayon de giration minimal de chaque cornière, c’est-à-dire un peu moins de 100 fois l’épaisseur. La non observation de ces règles peut entraîner un flambage de chaque cornière indépendamment de l’autre. Espacement 675 775 875 970 1175 1460 Nombre minimal des liaisons : 2 par barre au moins. Solidarisation des barres tendues : La solidarisation des barres tendue est souhaitable pour éviter, dans chacune des barres élémentaires, la création de moments secondaires et les déformations correspondantes. Rectitude des barres comprimées : Elle doit être rigoureuse sous peine d’amorçage du flambement. Elle peut être obtenue par une légère pré-tension au montage. Continuité des membrures : La continuité des membrures principales doit être assurée dans une large mesure par des couvre-joints ; pour limiter l’épaisseur des goussets, il est en effet souhaitable de limiter leur rôle à la transmission des efforts entre barres secondaires (diagonales, montants, contre- ventements, …) et membrures. de doublage Alternés
  • 43.
    43 Calcul des couvre-joints: Pour les cornières doubles, ils sont obligatoirement combinés avec une fourrure. Les couvres-joints d’angle sont soit en cornières meulée, soit en tôle pliée. A résistance égale, la liaison (2) exige plus de boulons que la liaison (1) et ne doit être employée qu’avec des boulons ajustés ou des boulons HR lorsque l’assemblage est comprimé. Pour que la fourrure, souvent très sollicitée, travaille en traction simple ou en compression simple, il faut que ces perçages soient centrés sur son axe de symétrie. Cette disposition a pour autres avantage de donner une fourrure sans sens de pose donc sans risque d’erreur au montage. Si malgré tout la fourrure n’est pas symétrique (par exemple si elle a la même largeur que les cornières), pour rester proche de l’hypothèse de calcul précédente, on ne tiendra compte dans les calculs que de la section symétrique par rapport aux trous. Le dispositif est hyperstatique lorsqu’un élément (fourrure ou couvre-joint) arrive à la limite élastique, tout supplément de charge est intégralement transféré aux autres (comportement élasto-plastique de l’acier). Lorsque le joint transmet un effort tranchant important, les boulons seront situés le plus près possible des extrémités des membrures (pince du premier boulon minimale) pour diminuer l’importance du moment dans les éléments d’assemblage. Les goussets : Les goussets sont assez fréquemment les points faibles de la construction réticulée, car ils travaillent dans des conditions défavorables aux points où les membrures sont interrompues (arbalétrier, entrait) sont interrompus et même déviés. Bien que le calcul des goussets ne soit pas justifiable des théories classiques de Résistance des Matériaux, On obtient avec celle-ci une approximation suffisante. Tracé des goussets : - la forme d’un gousset doit permettre une répartition convenable des efforts des barres. Il faut donc éviter les angles trop aigus. - la forme d’un gousset doit être telle que le centre de gravité des boulons d’attache soit sen- siblement confondu avec le point d’intersection des axes d’épure des barres fixées sur lui. 1 2 mauvais bon
  • 44.
    44 - au croisementde deux diagonales, le gousset doit présenter la même résistance que la diagonale interrompue. - autant que possible, les goussets d’un système réticulé sont tous de même épaisseur et de même forme. - les dimensions des goussets doivent être aussi réduites que possible dans les limites imposées par la disposition des nœuds et la sécurité des attaches. Pour ce faire, l’écartement des boulons est généralement réduit au minimum admissible. - la forme des goussets doit être aussi régulière que possible avec au moins deux bords parallèles ou perpendiculaires. Cela conduit parfois à augmenter le nombre de boulons strictement nécessaires lorsque les barres sont attachées par une seule file de boulons, les angles des goussets ne sont pas abattus. Ils doivent l’être au contraire lorsque les barres sont attachées par plusieurs files de boulons. Calcul des goussets : Il s’effectue en vérifiant les sections de rupture possibles (lignes de déchirure). Les goussets de faîtage ou d’entrait doivent être d’une épaisseur au moins égale à celles des cornières assemblées. Dans le cas où aucun renfort n’est prévu, vérifier le gousset dans la section du plan de faîtage où il travaille en flexion déviée. Liaisons « externes » : Liaison ferme/poteau : Articulation : l’attache des fermes peut être une « articulation » approximativement réalisée par le repos direct de la pointe de la ferme sur la tête du poteau ou même par une attache latérale lorsque les charges verticales sont prépondérantes.
  • 45.
    45 Si l’entrait etl’arbalétrier n’aboutissent pas au même gousset, il faut prévoir des trous ovalisés au gousset d’attache de la barre prolongeant l’entrait jusqu’au poteau, afin d’éviter le flambement de cette barre ou des désordres dans les maçonneries de façade. Encastrement : Dans ce type de liaison, les attaches sur poteau sont soumises à des efforts verticaux dûs aux charges et des efforts horizontaux dûs au moment d’encastrement de la ferme. Il est toujours préférable de prévoir un gousset unique pour l’attache de l’arba-létrier et de l’entrait. BARRE SUPERFLUE Poteau Bon Dispositions permettant une bonne attache du contreventement et un assez bon encastrement Bonne attache a c b d e Mauvaises dispositions d'encastrement: les efforts passent en dehors des attaches Attache d'une ferme encastrée Attache de continuité
  • 46.
    46 Liaison ferme/maçonnerie :la verticale de l’épure de la diagonale d’extrémité ou de l’arba- létrier doit passer en principe au milieu de la surface d’appui. Si cette condition n’est pas réalisée, le nœud est soumis à l’action d’un couple égal au produit de la réaction d’appui par sa distance à l’épure. Le gousset a pour seul effet de répartir les moments fléchissants entre les deux barres (ou les trois) proportionnellement à leur raideur. Il peut résulter de cet effort « secondaire » des déformations permanentes qui peuvent être dangereuses. Si la diagonale d’extrémité est très couchée, il vaut mieux interrompre l’entrait pour l’attacher correctement que de déplacer le point d’épure inconsidérément. Si les fermes doivent apporter à la maçonnerie ou recevoir d’elle des efforts horizontaux, les boulons d’ancrage devront être associés à une butée noyée dans le scellement. Contreventement des fermes : Contreventements verticaux : ils sont généralement formés de deux cornières en croix attachées sur les montants des fermes. La triangulation est fermée par les pannes. Dans les travées extrêmes, une diagonale renforcée doit généralement être prévue, soit pour maintenir l’entrait de la dernière ferme, soit pour l’appui du montant intermédiaire de pignon correspondant. Ils peuvent aussi, lorsque les fermes sont de faible hauteur, être constitués par des bracons reliant les pannes aux montants des fermes, formant ainsi des portiques assez rigides pour s’opposer à un déplacement relatif des pieds et des traverses, c’est-à-dire faisant bénéficier les entraits des points fixes des arbalétriers. Moment d'excentrement RL Mauvaise disposition Dispositions correctes F M=Fe Mauvaise disposition Disposition correcte
  • 47.
    47 Contreventements des versants: les goussets de liaison des diagonales, sans angle rentrant, sont solidaires de la panne et de l’arbalétrier si possible ou de l’un des deux. Nœuds de contreventement La solution (4) impose de fortes sollicitations à certains boulons ; il faut l’éviter à priori ou la justifier par un calcul. Pour éviter une flèche trop grande des diagonales sous leur poids propre, on peut les suspendre aux pannes qu’elles croisent. Gousset sous les échantignolles (cas d'une panne renforcée HEA 100 remplaçant la panne IPE 100 courante) Gousset sous l'arbalétrier Demi-goussets 2 3 4 goussets soudés ferme panne diagonale 1
  • 48.
    48 ASSEMBLAGE DES PORTIQUES Lesassemblages de portiques sont réalisés exclusivement à l’aide de boulons HR. Voir exemples fig. D, E, F page 25.
  • 49.
    49 ASSEMBLAGE DES POTEAUX Liaisonpoteau/fondation : Les efforts verticaux dirigés vers le bas sont transmis par appui direct au moyen d’une platine de surface suffisante pour que les pressions maximales sur les fondations restent dans les limites admissibles correspondant au matériau, et d’épaisseur telle que la répartition des charges s’effectue correctement. Les vérifications des platines portent sur leur résistance à la flexion (raidisseurs compris) correspondant à l’hypothèse d’une répartition linéaire des pressions sur les fondations. Les efforts verticaux dirigés vers le haut sont transmis au moyen d’ancrage : tiges à extrémités filetées droites, à crosse, avec barre transversale, etc…. qui sont noyés, après réglage des poteaux, dans un mortier de remplissage des logements réservés à cet effet dans les massifs. Exceptionnellement et moyennant de grandes précautions (tracé soigné et fourniture de gabarits rigides), on peut sceller à l’avance les tiges d’ancrage ce qui donne une grande rapidité de montage. Les moments d’encastrement sont transmis aux fondations par la combinaison e compression sous un bord de la platine et de traction dans les tiges d’ancrage à l’extrémité opposée, lorsque la platine est en surface ou bien par compression horizontale au contact des ailes des poteaux noyés dans le béton. Comme pour les platines, il peut être nécessaire de raidir les ailes si elles sont trop flexibles. Les efforts horizontaux ont deux modes de transmission : - par frottement de la platine sur le béton dans la limite ou l’effort horizontal est inférieur à 0,36 fois l’effort vertical vers le bas appliquant la platine sur la fondation. La vérification de cette possibilité doit être faite dans le cas le plus défavorable (très souvent avec le vent exceptionnel, l’effort vertical étant égal à la différence entre l’effort de soulèvement et l’effort exercé par les tiges d’ancrage). - par butée directe sur le béton : pied noyé dans le béton ou bêche d’ancrage dans le cas de poteaux articulés. Fichage : intervalle de Réglage généralement Compris entre 3 et 5 cm. Bêche
  • 50.
    50 Poteau articulé : Lecas le plus courant consiste en une semi-articulation suivant l’axe de la ligne des boulons, et un encastrement dans le sens perpendiculaire (fig. J et L page 25). Les cas d’articulations plus élaborées correspondants aux figures I, K, M et N sont plus rares. Il faut veiller à la désolidarisation des poteaux articulés et du revêtement de sol environnant, sous peine de fissuration de ce dernier. Calcul : surface de la platine : Elle est déterminée par la condition : b ba N − ≤= σσ . épaisseur de la platine : L’effort à droite de la ligne 1.1 est : ubF ..σ= Le moment correspondant a pour valeur : 2 .. 2 . 2 U b U FM σ== Le moment résistant élastique de la platine est : V M ee 1 σ= avec 6 1 2 bt V = Il faut donc vérifier que : 62 22 btU ab eσ≤ , soit e Ut σ σ3 ≥ Inversement, si t est fixé à priori, le problème sera de vérifier la contrainte de flexion σ au droit de la ligne de pliage. Soit : 2 3       ≤ U teσ σ N centré
  • 51.
    51 Goujons d’ancrage : L’effortadmissible par scellement, dans le cas de goujon Avec crosse, fixé par les règles CM 66 (article 5,123), vaut : 1,0=aN       + 000.1 7 1 gc 12 1 ( 1 λ       + d φ φ + 6,4r + 3,5 1λ ) gc étant le dosage en ciment du béton (Kg/m3 ) et les valeurs courantes étant : r = 3 φ 1λ = 2 φ 1λ = 20 φ (cf. fig ci-dessous) φ
  • 52.
    52 Poteau encastré : parplatine et boulon d’ancrage : la platine est généralement renforcée pour éviter sa déformation. Calcul : Dans ce cas, le poteau est sollicité en pied par un effort normal centré N et un moment de Flexion M, ce qui est équivalent à un effort vertical N excentré de N M Les boulons situés sur le côté opposé à l’effort N sont soumis à un effort de traction et le béton situé du côté de l’effort N est soumis à un effort de compression avec répartition triangulaire (figure ci-contre). - Effort de traction sollicitant les boulons de gauche :T = A. aσ - Effort de compression sollicitant le béton sous la platine : C = ' 2 1 bh bσ Si n est le coefficient d’équivalence acier-béton       = b a E E n , on a : aσ = n bσ ' ' h hh − Ecrivons l’équilibre des forces : N + T = C et celui des moments : C =      − 3 'h h N λ = (C-T)λ La combinaison des 3 relations précédentes conduit à (en faisant n = 15) : h’ 3 + 3 (λ-h) h’ 2 + 90 A 'h b λ - 90 A b λ h = 0 La résolution permet d’obtenir h’ et par la suite de vérifier aσ et bσ : aσ = 3 ' 3 ' h h h hN − +−λ ≤ aσ et bσ =       − 3 ' 2 ' h hbh Nλ ≤ bσ l Section A b T h'/3 h' c σb σa/n h M e NN
  • 53.
    53 Par scellement : lorsquel’excentricité M/N de la résultante d’appui est grande, on peut sceller directement le poteau dans un logement réservé. Des précautions doivent être prises pour éviter que le poteau n’écrase le béton au voisinage de la surface : réduction des pressions sur le béton par augmentation de la longueur de scellement, raidissement des ailes si celles-ci sont flexibles. Il faut prévoir une platine en bout pour éviter l’effet de couteau en cas de fortes charges ou d’effets dynamiques. Calcul : La formule : bσ = bh H 2 +       + 2 Hh M x 2 3 bh = 2 32 bh MHh + Suppose que les deux ailes participent à la répartition des pressions sur le béton et qu’elles résistent aux flexions résultant des pressions ainsi calculées. bσ doit rester inférieure aux contraintes de compression admissibles en surface. Palées de stabilité : Si le fonctionnement de la structure impose des palées de stabilité (cas des poteaux articulés par exemple) les diagonales sont liées par une extrémité aux pieds des poteaux et à l’autre extrémité à la sablière. Il faut de plus une liaison des deux diagonales à leur croisement. Le point d’épure inférieur des palées sera le plus près possible du niveau du sol pour limiter au maximum la flexion secondaire des pieds de poteaux. Si leur gousset d’attache est fixé sur l’âme du poteau, il doit aussi être attaché horizontalement à la platine. (Efforts directement transmis au sol) M H h b PEU SOUHAITABLE (effort secondaire à vérifier) PREFERABLE
  • 54.
    54 5. ASSEMBLAGES PARSOUDAGE : Le terme soudage est réservé à l’opération qui consiste à assembler des pièces, par fusion ou plastification de leur zone de contact et mélange intime de leur matériau. La soudure est la zone de liaison des pièces. Ce terme désigne également le procédé d’assemblage. Lorsque la matière est portée à l’état plastique, il est nécessaire d’appliquer une pression de contact des pièces à assembler. Lorsque la matière est portée à l’état fondu, il suffit que la masse fondue des deux pièces se mélange intimement de manière à former, après refroidissement, une zone d’interprétation. Le soudage implique donc : - l’existence d’une source de chaleur qui peut être d’origine électrique (arc, résistance), chimique (combustion de gaz), mécanique (friction, choc). - une aptitude du matériau à être soudé, appelée soudabilité. La soudabilité dépend des qualités propres du matériau (tous les matériaux ne sont pas soudables), des affinités relatives entre matériaux (deux matériaux, par ailleurs soudables, peuvent ne pas l’être entre eux) mais également de paramètres limitatifs tels que : • les transformations de la structure du matériau sous l’effet de la chaleur, peuvent conduire, par exemple, à sa fragilisation, à la chute de ses caractéristiques méca- niques ou encore à une augmentation de sa susceptibilité à la corrosion. •l’apparition de fissurations et de criques au refroidissement • l’apparition de déformations des pièces dues aux effets de la dilatation et du retrait • le risque de fortes contraintes internes résiduelles. En tant que procédé d’assemblage, le soudage présente de nombreux avantages mais nécessite d’observer certaines précautions dont les plus importantes sont résumées au paragraphe 5.2. Par rapport au boulonnage, le soudage : - assure la continuité de la matière, et de ce fait garantit une bonne transmission des sollicitations. - limite l’utilisation de pièces secondaires (goussets, attaches, …) - est moins encombrant et plus esthétique. Par contre, il impose : - un métal de base soudable - un contrôle des soudures (onéreux) - une main-d’œuvre qualifiée difficile à contrôler (essais d’agrément) - un matériel spécifique (lourd, onéreux, pas toujours autonome).
  • 55.
    55 L’association soudure/boulons ordinairesest interdite en raison de la différence de leur mode de fonctionnement. Ces deux assemblages ne peuvent donc se compléter mais seulement se remplacer pour la totalité des efforts à transmettre. Il faut donc être très prudent en particulier lorsqu’on envisage un « renforcement » par soudure d’un assemblage boulonné. 5.1. Les procédés de soudage : Le tableau synoptique de la page suivante, résume les principaux procédés de soudage (soudage autogène) et de brassage appelé aussi soudage hétérogène. En construction métallique, les procédés les plus courants actuellement sont : - l’arc électrique avec électrode fusible enrobée - le chalumeau oxyacétylénique - le soudage électrique par point.
  • 56.
    56 CHIMIQUE ELECTRIQUE PHYSIQUE MECANIQUE Sources d'énergie SOUDAGE aux gaz à l'arc parrésistance par ultra-sons à froid par choc BRASAGE DIVERS à la flamme à la lampe à la forge au chalumeau BRASAGE TENDRE BRASAGE FORT Travail unitaire SOUDO-BRASAGE ETAIN PLOMB LAITON + BORAX au fer Electrique ou chauffée à la flamme au four électrique Rayonnement ou induction bain de sels nitrites, chlorures O2 C2H2 Au chalumeau OA au autres gaz électrode couchée - + électrode aux et flux électrode enrobée sous flux électro-conducteur bobine électrode enrobée + - procédé MIG - gaz - baguette procédé TIG + étincelagechauffage direct par points à la molette par brossages avec électrode fusible avec électrode réfractaire par rapprochement par recouvrement Sous flux gazeux Argon ou CO2 BRASAGE Travaux De série
  • 57.
    57 En charpente lesassemblages de profilés se font à l’arc électrique. Dans ce procédé, l’arc électrique est créé entre une électrode fusible et les pièces à souder, grâce à un générateur de courant, continu ou alternatif, de faible voltage, mais de fort ampérage (de 50 à 600 ampères). L’arc provoque la fusion progressive du métal de l’électrode et celle des deux pièces au point d’impact. Les particules fondues de l’électrode sont projetées sur les pièces au travers de l’arc. Il suffit alors de déplacer l’électrode le long du joint d’assemblage pour constituer un cordon continu de soudure. Le phénomène de projection permet de faire des soudures dans toutes les positions. Les électrodes sont constituées d’une baguette de métal d ‘apport enrobée d’une gaine réfractaire appelée enrobage. Toutes les électrodes ne sont pas constituées du même métal d’apport. Une couleur conventionnelle est déposée à l’extrémité dénudée de l’électrode afin d’indiquer les valeurs des caractéristiques mécaniques exigées pour chaque nuance. Tableau des couleurs en fonction des nuances Nuance Edx E 40 E 48 E 56 E 65 Couleur Rose Rouge Jaune Bleu Vert Résistance en daN/mm2 < 40 40-48 48-56 56-65 > 65 A noter : Tout ce qu’il faut connaître pour l’utilisation des électrodes est inscrit sur les emballages par le fabricant. Il faut donc les lire attentivement et apprendre à les décrypter : I. Caractèristiques hygiène. – 2. Classes des poussières émises en soudage. – 3. Intensité moyennes et maxi. – 4. Tension minimale en CA. – 5. Nature du courant. – 6. Dimensions (mm). – 7 Symbolisation des positions de soudage. – 8. Conditions d’étuvage. – 9. Agréments. – 10. Classification normalisation. – 11. Désignation commerciale. – 12. Numéro de nomenclature. – 13. ∅ et longueur des électrodes. – 14. Quantité dans un emballage. – 15. Numéro de fabrication. – 16 Pictogramme SAF d L Ame Enrobage pénétration Laitier Métal déposé Milieu ionisant conducteur Métal projeté en fusion Cratère Pièce
  • 58.
    58 5.2. Dispositions constructives: 521. Représentation et symbolisation des soudures : La cotation des soudures fait intervenir la longueur des cordons et leur épaisseur ou gorge « a » définie dans les extraits de normes dans les pages suivantes. 522. Types de soudures : Soudures bout à bout : Jusqu’à des épaisseurs de pièces de 5 à 6 mm, les soudures peuvent être effectuées sur des pièces npn chanfreinées, découpées d’équerre. Au-delà de 6 mm, il faut réaliser des chanfreins sur les bords des pièces. Le talon « c » doit être inférieur à la plus petite des
  • 59.
    59 deux valeurs :3 mm ou t/5. Les chanfreins en V et en U permettent de souder sans retourner les pièces, mais donnent lieu, lors du refroidissement, à des déformations angulaires fortes. Le chanfrein en U est plus onéreux du fait de l’usinage. Les chanfreins en double U ou double V symétriques, minimisent les déformations et les contraintes internes, si les cordons sont exécutés simultanément sur les deux faces, par tronçons alternés. Les chanfreins en K constituent une solution intermédiaire. Soudures d’angle : • Joints à recouvrement (à clin) : Aucune préparation particulière n’est à prévoir pour ce type de joints. La longueur de recouvrement est au moins 5 fois l’épaisseur de la plus petite pièce à assembler. La résistance à la fatigue des joints à clin est mauvaise en raison de la concentration des efforts dans la zone des cordons. • Joints d’angle : Les joints d’angle résistent également mal aux efforts de fatigue et travaillent dans de mauvaises conditions. Le cordon peut être, extérieur, intérieur ou en X. t<6 60° d = 1à3 t= 5 à 15 c B A C D E F t/2 t= 10 à 25 C C t/2 t= 30 à 60 60° t= 12 à 40 t= 12 à 40 50° l l>5t t
  • 60.
    60 • Joints enT : Le joint en T à cordons d’angle des deux côtés n’est pas recommandable lorsque l’assemblage est soumis à des efforts de fatigue. Il n’est utilisable que pour des épaisseurs de pièces inférieures à 12 mm. Au-delà, la jambe du T est chanfreinée dans les mêmes conditions qu’en soudage bord à bord. • Joints en bouchon ou en entaille : Les soudures en entaille sont à éviter. Elles se pratiquent lorsque les cordons de bords ont une section insuffisante pour assurer la transmission des efforts (effort tranchant en parti- culier). L’entaille doit être assez large pour permettre une soudure facile. t ≤ 25 mm t > 25 mmt ≤ 12 mm
  • 61.
    61 523. Désignation descordons en fonction de leur position : 524. Précautions : - Toujours décaper les pièces avant soudage - Exécuter le soudage à l’abri des intempéries - Faire des cordons réguliers impose des découpes correctes des pièces à assembler. Ne pas compter sur la soudure pour compenser les irrégularités, il s’en suivrait une perte de temps et de qualité du cordon ainsi qu’un retrait différentiel entre les zones de cordon large et les zones de cordon étroit. - Les soudures dont la difficulté d’exécution risque de compromettre la qualité sont proscrites - Le nombre de soudures à exécuter sur chantiers doit être réduit au maximum - Eviter l’assemblage par soudure des pièces d’épaisseur supérieure à 30 mm - Eviter l’assemblage des pièces de trop grande différence d’épaisseur, car il y a risque de déformation de la pièce la plus mince et risque de fissuration du cordon de soudure au refroidissement. - Anticiper (prépositionnement, prédéformation, …) les effets dûs au retrait des soudures, de manière à ce qu’après refroidissement, l’assemblage soit le moins déformé et le moins contraint possible. - Assurer la plus grande liberté aux déformations limite les contraintes internes. - Rechercher la symétrie des dépôts - S’efforcer de commencer la soudure au milieu des pièces, puis souder symétriquement de part et d’autre de la première soudure. - Eviter l’accumulation de soudures. Le croisement d’une soudure d’angle et d’une soudure bout à bout est admis. - Proscrire les cordons de moins de 50 mm et moins de 10 x a de longueur. - L’ordre d’exécution des soudures peut avoir une grande importance. Il faut donc respecter les instructions des séquences ou gammes de soudage quand elles existent. - Les soudures d’éléments rapportés non prévues sur les plans (par exemple, sur les poteaux, soudures de consoles destinées à supporter des canalisations) ne seront en principe admises qu’après l’accord du maître d’œuvre. En particulier, toute soudure, quelle que soit son importance, coupant transversalement la semelle tendue d’une 5 6 3 4 2 1 1. Cordon à plat 2. Cordon d'angle à plat 3. Cordon en corniche 4. Cordon vertical 5. Cordon en corniche au plafond 5. Cordon au plafond
  • 62.
    62 poutre est àproscrire, surtout si cette poutre est en charge. Il faut souligner que les cordons de petite section peuvent être les plus dangereux et s’avérer cause de rupture ultérieure. Les soudures transversales ne peuvent être éventuellement admises que si elles sont bien faites, larges, exécutées sur une pièce non en charge, et à condition qu’elles n’apportent pas une variation brusque de section ou de charge. La suppression, après soudure, d’un élément rapporté ne peut en aucune façon annuler les contraintes de retrait dues à cette soudure ; le mal, si mal il y a est sans remède, te le remplacement de la section du métal en cause doit être envisagé par un renforcement. - Veiller à une bonne corrélation entre l’épaisseur du cordon et l’épaisseur de la plus faible des pièces. Epaisseur à des cordons de soudure, en fonction de l’épaisseur t de la plus faible des pièces. t 4 6 7 8 10 12 14 16 18 20 a maxi 3 4 5 6 7 8 10 11 13 14 a mini 3 3,5 4 4 5 - Les risques d’oxydation entre les pièces assemblées plat sur plat conduisent souvent à envisager un assemblage soudé avec cordon périphérique même si la soudure est alors surabondante. Ainsi, les surfaces inaccessibles à l’entretien sont protégées. - Lorsqu’un cordon doit être arasé pour des raisons constructives, faire en sorte que les stries d’usinage (meulage) soient dans le sens de l’effort de traction sur l’assemblage. - Les angles des goussets tendus ne doivent pas être abattus. - Il faut « équilibrer » les soudures : le centre de gravité des cordons de soudure doit être sur l’axe neutre portant l’effort normal. Alors le taux de travail de tous les cordons est identique. 525. Défauts des soudures : Les croquis ci-dessous indiquent les principaux types de défauts possibles. a t 1a 1b 1c 2a 2b 3 4 7 8 9 65 défauts des soudures 1a-1b-1c. Fissures 2a-2b.Manque de pénétration 3. Soufflures et porosités 4. Inclusions de laitier 5. Dénivellation des bords 9. Déformation angulaire 8. Affaissement de cordon 6. Caniveaux 7. Surépaisseur
  • 63.
    63 Les conséquences deces défauts sur le comportement des assemblages ne peut être jugé que par un spécialiste. Dans la plupart des cas un certain pourcentage de défauts d’un type donné est admissible. 526. Contrôle des soudures : La norme reconnaît 3 classes de qualité des assemblages soudés. La classe 1 est la plus sévère. Les plans d’exécution doivent comporter les classes de qualité des assemblages. Voir plus loin le tableau des critères d’acceptation des défauts des soudures. Etendue du contrôle : le contrôle doit porter sur les soudures exécutées au chantier, mais aussi sur les soudures faites en atelier si aucun contrôle de fabrication n’y a été assuré. Il ne peut qu’exceptionnellement être systématique : en principe, on opère par sondage sur les soudures travaillant le plus dont l’exécution est la plus délicate. Caractéristiques dimensionnelles des soudures : il faut contrôler, dans la mesure du possible, l’épaisseur des cordons de soudure et pour les cordons discontinus, leur longueur utile. Pour les soudures exécutées au chantier, vérifier la préparation des bords à souder (chanfreins). Qualité des soudures : seuls l’examen visuel et le ressuage peuvent être pratiqués par le non spécialiste, les autres contrôles (ultrasons, radiographies, sondages, …) nécessitent l’intervention d’un spécialiste. L’examen visuel est souvent suffisant pour les soudures qui n’ont pas nécessitées un grand nombre de passes. 527. Reprise des soudures défectueuses : Les soudures reconnues défectueuses mais réparables doivent être dégagées au burin jusqu’à ce que le métal sain soit atteint ; le vide ainsi créé est comblé par un apport de soudure. Le simple matage suivi de rechargement est interdit. 5.3. Règles de dimensionnement et d’exécution des soudures : Les pages suivantes sont des extraits de la norme NF 22-470 et suivantes. Les calculs doivent s’y référer.
  • 64.
    64 D E FI N I T O N S 1. PENETRATION D’UNE SOUDURE : 1.1. Soudure à pénétration partielle : Soudure n’intéressant qu’une partie de l’épaisseur de chacun des éléments assemblés. 1.2. Soudure à pénétration totale : Soudure effectuée par un (ou) plusieurs procédé (s), dans des conditions précises, assurant la liaison sur toute l’épaisseur de l’un au moins des éléments assemblés. 1.3. Soudure à pénétration garantie : Soudure effectuée par un (ou) plusieurs procédé (s), dans des conditions précises, assurant de façon certaine la liaison des éléments assemblés sur une profondeur définie. 2. RACINE D’UNE SOUDURE « 0 » : 2.1. Soudure bout à bout avec chanfrein (figure. 1) La racine d’une soudure est par convention, le sommet de l’angle dièdre formé par les faces des chanfreins : 2.2. Soudure d’angle sans chanfrein (figure 2) La racine d’une soudure à pénétration partielle est par convention, le sommet de l’angle dièdre formé par les pièces assemblées. a a o a o Figure a o a o a o a o Figure 2
  • 65.
    65 2.3. Soudure d’angleavec chanfrein (figure 3) La racine d’une soudure est par convention, le sommet de l’angle dièdre formé par les faces des chanfreins : 2.4. Soudure d’angle avec chanfrein naturel (figure 4) La racine d’une soudure est par convention, le sommet de l’angle dièdre formé par les pièces assemblées : a o a o a o a o a o a o Figure a o a o Figure
  • 66.
    66 2.5. Soudure àpénétration garantie (figure 5) Dans le cas de soudage par un procédé à pénétration garantie, la racine est le point de la ligne de joint que la pénétration atteint en toute certitude. La pénétration garantie peut être totale ou partielle. 3. EPAISSEUR UTILE « a » : L’épaisseur utile ou gorge d’une soudure est la distance minimale de la racine à la surface de la soudure. Compte non tenu d’un bombé éventuel (figures 1 à 5). 4. LONGUEUR UTILE DU CORDON « / » : La longueur utile d’un cordon de soudure est égale à sa longueur réelle diminuée de la longueur des cratères d’extrémité lorsque aucune disposition n’est prise pour les éliminer. La longueur de chacun des cratères est prise forfaitairement égale à l’épaisseur utile « a ». a a o a o a a o o o a a a a o o Pénétration totale Pénétration partielle Figure
  • 67.
    67 SYMBOLES - UNITES 1.Notations : I moment d’inertie M moment fléchissant relatif à l’état limite ultime appliqué à l’assemblage N effort normal relatif à l’état limite ultime appliqué à l’assemblage V effort tranchant relatif à l’état limite ultime appliqué à l’assemblage S moment statique a épaisseur utile d’un cordon ou gorge de soudure b largeur d’une pièce c valeur du talon dans une préparation en V ou en K. d distance entre deux cordons de soudure dv diamètre de perçage pour rivets et boulons h hauteur des profilés hw hauteur d’âme des profilés, mesurée entre ailes ↗ longueur utile d’un cordon de soudure t épaisseur des pièces tw épaisseur d’âme en profilés tmin épaisseur de la pièce la plus mince r rayon moyen de pliage σa limite d’élasticité garantie des pièces assemblées σ⊥ contrainte perpendiculaire à la section de gorge σq contrainte parallèle à la section de gorge contrainte de cisaillement perpendiculaire à la section de gorge contrainte de cisaillement parallèle à la section de gorge K coefficient minorateur fonction de la nuance d’acier a. β angles d’inclinaison des efforts sur la section de gorge 2. Unités : - efforts en newtons (N) - moments en newtons millimètres (N.mm) - contraintes en mégapascals (MPa) (N/mm2 ) - longueurs en millimètres (mm).
  • 68.
    68 - La longueurdes cordons ainsi que la section transversale (gorge) des passes de soudures sont conditionnées par l’énergie minimale de soudage nécessaire à la bonne qualité de leur exécution. Les dimensions minimales à respecter sont données dans le tableau 2 ci-dessous, en fonction des épaisseurs à souder et de la limite d’élasticité de l’acier de base. TABLEAU 2 σa (MPa) Longueur (mm) Gorge « a » (mm) min t2 « a »min t2 « a »min σa = 240 Sup (10 « a » : 50)° ≤ 3 t2 > 3 Sup (3 ; 0,5 t1 ) 240 < σa ≤ 280°° Sup (10 « a » : 50) ≤ 4 t2 > 4 Sup (4 ; 0,5 t1 ) 280 < σa ≤ 355 Sup (15 « a » : 100) ≤ 5 t2 > 5 Sup (5 ; 0,5 t1 ) 355 < σa à déterminer dans chaque cas. (°) Sup (a ; b) : la plus grande des deux valeurs « a » et « b » (°°) pour tubes σa = 295 MPa . Norme NF A 49-501 t2 t1 Dans le cas où la condition relative à la section transversale ne peut être respectée, des modalités particulières d’exécution doivent être spécifiées dans le mode opératoire de soudage (préchauffage, post-chauffage, ….). - Dans le cas d’un croisement de cordons dans les assemblages formant dièdre, l’une des pièces peut comporter une échancrure si elle n’est pas ou peu sollicitée (figure 16). Figure 16
  • 69.
    69 - Le croisementd’une soudure bout à bout et d’une soudure d’angle est admis (figure 17). - Quand plusieurs plats sont superposés, ils doivent toujours être assemblés sur leurs rives par des cordons de soudure. Pour des aciers de base de limite d’élasticité inférieure ou égale à 355 MPa, les cordons peuvent être continus ou discontinus suivant que les pièces sont soumises ou non à des conditions favorisant l’oxydation. Dans le cas de cordons discontinus, les soudures doivent être répartis uniformément sur toute la longueur des pièces (figure 18). - les longueurs de soudure ( 1λ ) aux deux extrémités des pièces doivent être égales ou supérieures à la largeur du plat à assembler. - les longueurs des cordons intermédiaires ( 2λ ) doivent satisfaire aux conditions du tableau 2. - la distance (d) entre deux extrémités successives de deux soudures doit être inférieure ou égale à : • 22 tmm pour les aciers E 24 et E 28 • 18 tmm pour les autres nuances d’acier. Figure 17 b l1 d l2 Figure 18
  • 70.
    70 5. JUSTIFICATIONS DESSOUDURES : 5.1. Validité des justifications : Les conditions de vérification des soudures ne sont valables que si les conditions d’exécution des soudures définies par la norme NF P 22-471, sont strictement respectées. 5.2. Soudures bout à bout (figures 23, 24) : 521 Aucune vérification n’est exigée pour : les pièces chanfreinées avec ou sans talon si celui-ci est égal à la plus faible des valeurs : t/5 et 3 mm, t2 /5 et 3 mm. 522 - Si la valeur du talon est supérieure à celle indiquée ci-dessus, les soudures sont à vérifier avec la valeur théorique de gorge « a » et doivent satisfaire à la relation : ∑ λa N ≤ σa 5.3. Soudures d’angle sans chanfrein : La justification des soudures sans chanfrein peut être effectuée par l’une des deux méthodes suivantes : 531 - Formule de base (figure 25) Les composantes σ⊥, T⊥ et T∥ doivent satisfaire aux inégalités : K σ2 ⊥ + (T2 ⊥ + T2 ∥) ≤ σa et σ⊥ ≤ σa avec c t t1 t2 c t1 t2 c Figure 23 N N t c a a c N t1 N t2 Figure 24
  • 71.
    71 σ⊥, T⊥ etT∥ composantes déterminées par la résistance des matériaux de la contrainte moyenne rapportée à la section de gorge du cordon (section minimale de surface ). σ∥ contrainte normale rapportée à la section transversale de gorge du cordon (on n’en tient pas compte dans les calculs de justification). avec, quelque soit l’épaisseur du produit : K = 0,7 pour les nuances E24, E24W, TSE235, TUE236 K = 0,8 pour les nuances E28, E275D, TSE275, TSE295, TUE276 K = 1 pour les nuances E36, E36W, E355, E375, E420, E460, TSE355, TSE450, TUE355, TUE450, 355D, E390D, E430D, E445, E490D. Dans le cas où l’assemblage est constitué d’aciers de nuances différentes, la limite d’élasticité à retenir pour l’application de la formule est celle de la nuance la plus faible. Des applications de cette formule de base, pour les principaux cas, sont données en annexe. 532 Formule simplifiée On peut se dispenser de justification plus poussée dès que l’on vérifie pour chaque cordon, quels que soient la direction de l’effort F et l’angle formé par les faces assemblées, la condition suivante : σ = λa KF ≤ 0,6.σa 5.4. Soudures d’angle avec chanfrein : 541 - Aucune justification n’est exigée pour les soudures effectuées sur pièces chanfreinées avec talon si la valeur « c » de celui-ci est inférieure ou égale à la plus faible des valeurs : t2 /5 et 3 mm. et si la somme des gorges est égale ou supérieure à l’épaisseur de la pièce chanfreinée (figure 26). o o' o o' a σ⊥ τ // τ⊥ Section de gorge a, l Figure 25
  • 72.
    72 542 - Pourdes valeurs de « c » plus grandes que celles indiquées ci-dessus, les soudures sont à vérifier comme des soudures d’angle sans chanfrein. 543 - Aucune justification n’est exigée pour les soudures effectuées sur pièces chanfreinées sans talon (figure 27). 5.5. Soudures sans chanfrein à pénétration garantie : L’épaisseur utile « a » à prendre en compte dans les justifications doit être déterminée expérimentalement suivant la nature du procédé de soudage, de ses conditions de mise en œuvre et de contrôle d’exécution. 551 - Soudure bout à bout : Aucune justification n’est exigée si les conditions d’exécution assurent une épaisseur des cordons au moins égale à l’épaisseur de la plus faible des pièces assemblées, c’est le cas pour : - l’assemblage des tôles de 4 mm d’épaisseur au plus en soudage manuel avec électrodes normales et 10 mm au plus en soudage à forte pénétration. Dans les autres cas, les soudures sont à justifier avec la valeur théorique d’épaisseur utile « a » et doivent satisfaire à la relation suivante : ∑ λa N ≤ aσ t2 c aa a1 c t2 a2 c a t2 t1 Figure 26 2a ≥ t2 a1+a2 ≥ t2 a ≥ t2 a o a o Figure 27
  • 73.
    73 552 - Soudured’angle : Aucune justification n’est exigée si les conditions d’exécution assurent une épaisseur des cordons au moins égale à l’épaisseur t2 (figure 28). Dans les autres cas, les soudures sont à justifier avec la valeur théorique d’épaisseur utile »a » et doivent satisfaire aux formules du chapitre 5.3 « Soudures d’angle sans chanfrein ». t2 t1 Figure 28
  • 74.
    74 π/4 - β/2 π/4- β/2 l1 N N/2 N N/2 N/2 l1 N N NN N/2 N l1 N l1 a1 a2 β τ τ σ N l1 α Nsinα Ncosα τ σ σ l1 N l1 N N N/2 l1 N N/2 N l1 a1 a2 Cordons latéraux l1 étant la longueur utile d'un cordon Cordons obliques :l1 étant la longueur utile d'un cordon l1 étant la longueur utile d'un cordon Cordons frontaux Σli = 2l1 Σli = 2l1 Σli = 2.l1 Σli = 2l1 σ Σli = 4.l1 ( I ) ( II ) ( III ) ( IV ) (V)
  • 75.
    75 6. ASSEMBLAGES DEPIECES FLECHIES (FIGURE A.6 ) : 6.1. Cordons entre âme et semelles d’une poutre à âme pleine : 611 - Eléments de réduction : - moment fléchissant M - effort tranchant V. 612 - Contraintes dans les cordons : σ⊥ = T⊥ = 0 T = XXal VS 2 où : S = moment statique de la semelle par rapport à l’axe d’inertie de la section complète lXX = moment d’inertie de la section complète par rapport à xx. 613 - Formule de vérification : K 3 XXal VS 2 ≤ aσ 614 - Epaisseur utile : a ≥ a K σ2 3 XXl SV. Dans les cas d’un cordon simple, la valeur de « a » ci-dessus est à multiplier par deux. hha a X ea X a Figure A.6
  • 76.
    76 615 - Formulessimplifiées : En se plaçant en sécurité, la formule simplifiée suivante peut être utilisée : a ≥ a K σ2 3 ah V En admettant : T ≤ 3 aσ la condition ci-dessus devient avec V = T ha aa : a ≥ K 2 aa Dans le cas d’un cordon simple, les valeurs ci-dessus sont à multiplier par 2. 6.2. Attache d’une poutre sur un poteau (figure A.7) : 621 - Eléments de réduction : - effort normal N - moment fléchissant M - effort tranchant V 622 - Hypothèses : On admet que : - l’effort N se répartit uniformément entre tous les cordons - l’effort V se répartit uniformément entre les cordons d’âme - le moment M est repris par les cordons des semelles avec M = N’h’ où h’ = h -4. 623 - Contraintes dans les cordons : 6231 - Cordons d’ailes : Sous les efforts N et N’, les cordons d’ailes sont à considérer comme des cordons frontaux. Les contraintes dans les cordons sont respectivement : Pour N : ⊥σ = T⊥ = ( )∑ la N .2 Pour N’ : =⊥ ' σ T’⊥ = ∑ ' ' ).(2 la N
  • 77.
    77 avec dans lecas de la figure A.7 : ∑ 1.la = 2.a.l1 + 4.a.l2 + 2.a.l3 ∑ =' 1 ).( la a.l1 + 2a.l3 l1 , l2 et l3 étant les longueurs utiles des cordons a1 , a2 et a3 6232 - Cordons d’âme : Sous l’effort N, les cordons sont à considérer comme des cordons frontaux et les contraintes ⊥σ et T⊥ sont celles indiquées précédemment (voir paragraphe 6.2.3.1). Sous l’effort V, les cordons d’âme sont à considérer comme des cordons latéraux, la contrainte dans ces cordons est : T  = 3..2 la V 624 - Formules de vérification : L’application de la formule fondamentale conduit : Pour les cordons d’ailes : K a ii la N la N σ≤         + ∑∑ ' ' ).(. .2 Pour les cordons d’âme : a ii l V la N σ≤      +         ∑ 22 .2 3 . 2 h' h a1 V a3 M N a2 N' N l2 l1 l2 l2l2l3 Figure A.7
  • 78.
    78 ANNEXE A (Fait partieintégrante de la norme) EXTRAIT DE LA NORME NF A 88-110 – DEFINITIONS DES TYPES D’ASSEMBLAGES Sans reprise envers Avec reprise envers Avec ou sans chanfrein Avec ou sans chanfrein Chanfreinés A francs bords Chanfreinés A francs bords Piquages (type P) Bout à bout (type B) D'angle (type A)Définition des soudures I B I A II B II Ba II A III A IV AIV B V B VI B VI A 1 P 2 P 2 Pa I II III IV V VI 1 2 Sans reprise envers et sans support Avec reprise à l'envers, les cordons devant être interpénétrés Sans reprise à l'envers ou avec reprise, les cordons ne devant pas être nécessairement interpénétrés. Avec un support envers subsistant ou provisoire Avec bague fusible Soudage vertical avec sabots de maintien du bain de fusion Piquage posé,emboîté, traversant,soudé en angle sans chanfrein Piquage posé,chanfreiné et soudé avec pénétration Piquage traversant sur pièce chanfreinée
  • 79.
    79 Examen visuel dessoudures : critères d’acceptation des défauts Les numéros de référence sont ceux de la norme NF A 89-230 Critère d’acceptation Classes de qualité Nature du Défaut Symboles 1 2 3 Nota : les dimensions sont données en millimètres une face ≤ 1 20 min + T avec d 3max = ≤ 1,5 1 10 min + t avec d 4max = sans axe neutre une face D’alignement repriseàl’envers avec alignementdemandésur axe neutre d ≤ 1 20 min + T avec d 6max =  d 8max = ≤ 1,5 1 10 min + t avec d 10max = ≤ 1/3 1/3 pour effort statique 1/4 pour effort dynamique Pente de Raccordement p ≤ 1/4 ≤ 1/4 ≤ 1/3 b = h p2 Brisure b ≤ 4 ≤ 4 ≤ 6 Défauts de raccordement tgα ≤ 3 1 En cas de soudures soumises à des variations de contraintes importantes, il est conseillé de les arroser. Surépaisseurs endroit et envers s et e ≤ 1 10 1 + maxi 5 ≤ 2 10 1 + maxi 6 Maxi 7 Effondrement g Position plafond sans reprise à l’envers. Non admis. Bords obligatoirement Fondus. t tmin d tmin h l p=h/2 h p θ l = 200 α s e l g
  • 80.
    80 Profondeur C Non admis≤ 0,5 ≤ 1 Longueur maxi d’un défaut lc1 0 20 sans limitation Caniveaux Longueur cumulée sur 300 mm lc2 0 40 sans limitation Manquede pénétration Profondeur m Non admis ≤ 2 Longueur cumulée sur 300 mm lm2 Non admis 80 La longueur minimale de zone saine pour que deux défauts soient considérés comme isolés doit être de six fois la longueur de défaut le plus court. Gorge (soudure d’angle) 0,1 ≥ a Bombement b ≤ a/5 (1) ≤ a/3 sans limite Symétrie (soudure d’angle) H 0,8 < h ≤ 1 0,7 < h ≤ 1 0,5 < h ≤ 1 Criques et Fissures t Non admises Cratères cn Non admis Voir article 8.2.6 Soufflures débouchantes Inclusions Débouchantes Non admises Radiographie Avant Réparation Tolérées En qualité 2, si le sondage radiographique s’avère difficile, éliminer le défaut sur 50 mm de part et d’autre. 511 Manque d’épaisseur t1 Non admis Non admis 1 ≤ 1/20 (1) En cas de soudures soumises à des variations de contraintes importantes, les raccordements seront progressifs. c c E h1 h2 a s β=120°h=h1/h2 h=h2/h1 ou t1 c1
  • 81.
    81 PROTECTION CONTRE LACORROSION La corrosion atmosphérique n’est pas, en général, la cause de désordres importants dans les ossatures métalliques de bâtiments. Les éléments de structures soumis à l’atmosphère normale peuvent rouiller superficiellement s’ils ne sont pas protégés convenablement, mais ce phénomène est rarement à l’origine de ruines de bâtiments. Par contre, dans certains milieux contenant des agents corrosifs (milieux industriels, maritimes,…) les structures en acier doivent être protégées et entretenues. Parmi les moyens de protection couramment utilisés, les revêtements de peinture tiennent une place importante et certaines précautions sont à prendre pour les choisir et les appliquer. D’autres modes de protection, tels que les revêtements métalliques, sont également utilisés lorsque la corrosion risque d’être importante. Enfin, outre le rôle de protection contre la corrosion, les revêtements appliqués sur les structures en acier ont souvent un but esthétique : dans ce cas, une dégradation dans le temps des revêtements n’affecte pas la résistance des ouvrages. 1. MOYENS USUELS DE PROTECTION CONTRE LA CORROSION : Le tableau ci-après donne, à titre indicatif, quelques moyens de protection contre la corrosion en fonction de différents milieux agressifs. Lorsque les constructions ont un caractère exceptionnel ou lorsque les milieux ont un caractère corrosif particulier, le recours à des spécialistes en matière de corrosion est recommandé. Conditions d’emploi Revêtement antirouille traditionnel Produits sidérurgiques revêtus (*) Eléments incorporés dans les murs et les planchers, invisibles, protégés par d’autres matériaux et en l’absence d’humidité. • 1 ou 2 couches de peinture primaire antirouille. 40 à 50 microns d’épaisseur. Produits grenaillés et peints avec reconditionnement des zones endommagées après montage. 15 – 20 microns d’épaisseur. Eléments situés à l’intérieur de locaux sans humidité persistante ou climatisés. • 1 couche de peinture primaire antirouille. • 1 couche de peinture de finition décorative. 60 à 80 microns d’épaisseur. Produits grenaillés et peints 1 couche de peinture de finition décorative. 60 microns d’épaisseur. Eléments situés à l’intérieur de locaux où l’humidité est notable ou qui ne sont pas chauffés. Eléments au contact d’une atmosphère extérieure peu agressive : atmosphère rurale. • 1 couche de peinture primaire antirouille. • 1 couche de peinture intermédiaire • 1 couche de peinture de finition 80 à 120 microns d’épaisseur. Produits grenaillés et peints plus de 1 ou 2 couches de peinture de finition. 80 – 100 microns d’épaisseur ou bien produits galvanisés ou prélaqués. Eléments au contact d’une atmosphère extérieure agressive, climats humides, pluvieux, régions urbaines ou industrielles. • 2 couches de peinture primaire antirouille ou bien phosphatation et 1 couche de peinture primaire antirouille. • 1 couche de peinture intermé- diaire antirouille • 1 couche de peinture de finition 120 à 200 microns d’épaisseur. Produits grenaillés et peints plus de deux couches de peinture de finition. 100 – 120 microns d’épaisseur. Produits prélaqués ou galvanisés et peints. Eléments au contact de l’atmosphère marine et des embruns. • 2 coucheS de peinture primaire antirouille ou mieux 1 couche de zinc par galvanisation ou métallisation au pistolet. • 2 couches de peinture intermé- diaire antirouille • 1 couche de peinture de finition plus de 150 microns d’épaisseur. Produits grenaillés et peints : peinture à haute teneur en zinc. Plus de 2 ou 3 couches à haute Teneur en zinc. ou bien galvanisation ou métalli- sation au pistolet plus peinture à haute teneur en zinc. Produits prélaqués. (*) Usines sidérurgiques ou en ateliers spécialisés.
  • 82.
    82 2. EXECUTION DESTRAVAUX DE PEINTURE : 2.1. Surfaces à peindre : Normalement, les pièces sont livrées sur chantier revêtues d’une couche primaire antirouille, les retouches nécessaires étant effectuées, après montage, sur les parties de revêtement détériorées accidentellement. En principe, les pièces enrobées de béton ne sont pas peintes. Par contre, les risques de corrosion étant plus importants aux endroits où les éléments en acier sortent du béton (par exemple, pieds de poteaux encastrés), la protection doit y être renforcée. Les revêtements bitumineux sont couramment utilisés à cet effet. 2.2. Préparation des surfaces : Les surfaces à peindre doivent être propres : la rouille et la calamine doivent être éliminées par brossage, martelage, piquage ou par projection d’abrasifs, à un degré de soins qui est fonction du type de peinture appliquée. Les degrés de soins de décapage sont définis par l’Office National d’Homologation des Garanties de Peinture Industrielle. Lorsqu’un dégraissage, à l’aide de lessives alcalines ou de détergents est nécessaire, il est à exécuter avant le décalaminage ou le dérouillage. Les produits galvanisés doivent, en général, recevoir un traitement de surface spécifique avant l’application de peinture. 2.3. Application des revêtements de peinture : Les travaux de peinture doivent être exécutés à l’abri des poussières et des intempéries, par ensoleillement modéré, en dehors des périodes de gel. En raison de la sensibilité de l’acier nu à l’oxydation, l’efficacité de la protection est d’autant plus grande que l’application de la couche primaire est exécutée plus rapidement après la préparation de la surface. S’il n’en est pas ainsi, un brossage énergique est nécessaire pour supprimer la rouille non adhérente. Les couches de peinture nécessaires doivent, autant que possible, être de teintes différentes, afin d’éviter les manques. Les parties à souder ne reçoivent pas de peinture avant l’exécution de la soudure, ni, éventuellement, avant contrôle de celle-ci, sauf si des peintures primaires soudables sont utilisées. 3. PRINCIPAUX DOCUMENTS DE REFERENCE : DTU 59-1 « Travaux de peinturage » Normes Fascicules du Ministère de l’Equipement relatifs à la protection contre la corrosion des ouvrages métalliques Cahiers des Charges des Administrations telles que EDF, SNCF, GDF, Ponts et Chaussées, … Echelle européenne d’enrouillement Publications OTUA.
  • 83.
    83 PROTECTION CONTRE L’INCENDIE 1.GENERALITES : Toutes les ossatures en acier ne doivent pas être systématiquement protégées contre l’incendie. Seules les « ossatures principales » sont visées par la réglementation. D’autre part, un degré de stabilité au feu donné peut être obtenu par des moyens différents (absence de protection, épaisseurs plus ou moins grandes d’une même protection, situation par rapport au foyer, …), suivant les éléments de l’ossature (taux de chargement, massivité,…). Une protection partielle ou totale peut aussi être efficace dans des conditions particu- lières : éléments inégalement exposés, ossatures extérieures, poutres de planchers à dalle associée, etc… Enfin, une dégradation partielle limitée n’entraîne pas nécessairement une perte significative de la protection, surtout si elle n’est pas dans une zone de sollicitations importantes. 2. APPLICATION DIRECTE SUR LES STRUCTURES : Avertissement : Les indications ci-après, destinées à des généralistes, sont naturellement très générales et succinctes. Elles sont destinées à attirer l’attention du lecteur sur les conséquences possibles de désordres dont il aurait à connaître sur la sécurité incendie, quitte à consulter, pour plus de précisions, des organismes spécialisés (Bureaux de Contrôle, Organismes Professionnels, Services de Sécurité) ou un spécialiste. 2.1. Peintures enduits intumescents : Sous l’action de la chaleur dégagée au cours d’un incendie, ces produits forment une « meringue » isolante qui protège la charpente. Il convient de se référer aux indications du fabricant quant à : - la préparation de la surface métallique (sablage,…) - la composition du complexe à appliquer : - nature et épaisseur de chacune des couches, - compatibilité avec les couches de finition. Entretien : Ces peintures doivent être révisées, comme toute peinture. Les parties usées ou détériorées (éventuellement sous l’action de l’humidité doivent être repeintes. Par contre, on sait maintenant que l’intumescence se produit toujours dans le temps, le « vieillissement » semblant même augmenter la protection (contrairement peut être aux peintures « ignifuges » qui leur ressemblent ). Il n’est donc pas utile de les refaire tous les 3 ans, comme on le demande quelquefois. Il faut aussi éviter de les recouvrir d’une autre peinture d’aspect, et en tout cas de s’assurer de sa compatibilité avec la peinture intumescente. Certaines peintures intumescentes sont utilisables à l’extérieur, complétées par une couche d’étanchéité d’une peinture spéciale. La couche primaire antirouille doit, elle aussi, être compatible avec la peinture intumescente.
  • 84.
    84 2.2. Enduits deplâtre ou de ciment mélangé à des particules minérales : La composition de ces matériaux doit être conforme à celle des essais de résistance au feu ; de même, les préparations de surface sont importantes pour assurer le maintien de la protection pendant l’élévation de température des éléments chargés. Ces enduits nécessitent souvent des armatures de maintien (grillages, cornières de protection d’angles, …). 3. PROJECTION : 3.1. Plâtre : On peut employer le plâtre ordinaire ou, mieux, des plâtres spéciaux obtenus par mélange de plâtre et de fibres et particules minérales. (Mêmes observations que pour 2.2). Les projections peuvent s’effectuer : - directement sur la charpente, - sur des lattis métalliques ou en plâtre accrochés à la charpente à protéger. 3.2. « Pierre liquide » : à base de portlandite, de calcite et de particules minérales. La projection peut s’effectuer directement sur la structure (nécessité de préparer la surface). 3.3. Fibres céramiques et minérales : avec ciment portland, liants inorganiques… Pour toutes les protections projetées, l’état de surface avant projection doit être soigné (absence de calamine, de matières grasses , éventuellement protection anticorrosion qui doit être compatible avec le produit de protection contre l’incendie). 4. PROTECTION RAPPORTEE : 4.1. Plaques, panneaux et coquilles : Il convient de vérifier la conformité des systèmes éventuels d’attache et de fixation avec ceux réellement mis en œuvre au cours des essais officiels. Ils peuvent être constitués de : - plâtre ordinaire ou plâtres spéciaux, - particules minérales, genre mica, assemblées par des colles, du plâtre ou du ciment - ciment alumineux - amiante et amiante-ciment - argile expansée : les nodules d’argile sont maintenus en place par des capotages métalliques ou des plaques d’amiante-ciment - maçonnerie, béton en plaques : il s’agit d’une protection lourde, rarement employée comme protection seule. 4.2. Remplissage de béton : Ce procédé s’applique aux structures tubulaires ; il peut être associé à un ferraillage. Des trous doivent être disposés en pied et en tête des poteaux afin de ménager des exutoires à la vapeur qui se formerait à l’intérieur du tube en cas d’incendie. Dans ce cas, aucune protection extérieure n’est utile en général.
  • 85.
    85 Documentation et renseignements: Chambre Syndicale des Fabricants de Tubes d’Acier 37, avenue Georges V – 75008 PARIS – FRANCE Tél. : 723.92.10 et C O M E T U B E 5, rue Maurice RAVEL 92300 LEVALLOIS-PERRET – FRANCE Tél. : 270.40.40. 5. I R R I G A T I ON : Ce procédé, qui fait l’objet d’un brevet, s’applique aux structures tubulaires. Une circulation de l’eau contenue dans les charpentes s’établit par thermosiphon en cas d’incendie et par pompage. On ajoute à l’eau un inhibiteur de corrosion et, éventuellement, un produit antigel. Documentation et renseignements : Chambre Syndicale des Fabricants de Tubes d’Acier et et COMETUBE 6. E L O I G N E M E N T : Les poteaux extérieurs sont éloignés des façades d’une distance fonction du degré de résistance au feu recherché. Lorsque l’éloignement est insuffisant (en fonction du degré de stabilité au feu recherché), il suffit souvent de protéger les faces des poteaux côté façades par un écran non-combustible . Cet écran peut aussi être constitué par un panneau de façade simplement pare-flammes, placé devant le poteau. 7. REPORT DE CHARGES : Ce procédé consiste à prévoir, dès le projet, la ruine de certains éléments de l’ossature au cours d’un incendie et à reporter les charges qu’ils supportaient sur d’autres éléments voisins. Les structures tridimensionnelles présentent un exemple intéressant des reoirts de charges . 8. DOCUMENTATION ET RENSEIGNEMENTS : O T U A 5 bis rue de Madrid 75379 PARIS Cedex 08 - FRANCE Tél . : 522.83.00 C T I C M (Centre Technique Industriel de la Construction Métallique) 20, rue Jean-Jaurès 92807 PUTEAUX - FRANCE Tél. : 776.41.31
  • 86.
    86 VERIFICATION DU FLAMBEMENT 1.RESISTANCE AU FLAMBEMENT : 11 – Eléments simplement comprimés : La sollicitation N de compression simple sous charges pondérées doit satisfaire à la condition suivante : 1≤ P D N N K Le coefficient DK est obtenu à partir des tableaux A, B ou C, ci-dessous, en fonction du plus grand des élancements réduits − Zλ et − Yλ : où : − Xλ = π λZ E eσ et − λ = π λZ E eσ Zλ , − Yλ = élancements calculés par : Zλ = Z KZ i L et Yλ = Y KY i L LKX , LKY = longueurs de flambement. IPN – PE - HEA - - UAP – UAN - L TABLEAU B – Valeurs de DK TABLEAU C – Valeurs de DK _ λ 0 0.01 0.02 0.03 0.04 0.05 0.06 0.07 0.08 0.09 _ λ 0 0.01 0.02 0.03 0.04 0.05 0.06 0.07 0.08 0.09 0.0 1.00 1.00 1.00 1.00 1.00 1.00 1.00 1.00 1.00 1.00 0.0 1.00 1.00 1.00 1.00 1.00 1.00 1.00 1.00 1.00 1.00 0.1 1.00 1.00 1.00 1.00 1.00 1.00 1.00 1.00 1.00 1.00 0.1 1.00 1.00 1.00 1.00 1.00 1.00 1.00 1.00 1.00 1.00 0.2 1.00 1.00 1.01 1.01 1.01 1.02 1.02 1.02 1.03 1.03 0.2 1.00 1.01 1.01 1.02 1.02 1.03 1.03 1.04 1.04 1.05 0.3 1.40 1.04 1.04 1.05 1.05 1.06 1.06 1.07 1.07 1.08 0.3 1.05 1.06 1.06 1.07 1.07 1.08 1.09 1.09 1.10 1.10 0.4 1.08 1.09 1.09 1.10 1.10 1.10 1.11 1.11 1.12 1.12 0.4 1.11 1.12 1.12 1.13 1.14 1.15 1.15 1.16 1.17 1.18 0.5 1.13 1.14 1.14 1.15 1.15 1.16 1.17 1.17 1.18 1.19 0.5 1.19 1.19 1.20 1.21 1.22 1.23 1.24 1.25 1.26 1.27 0.6 1.19 1.20 1.21 1.22 1.22 1.23 1.24 1.25 1.26 1.27 0.6 1.28 1.29 1.30 1.31 1.32 1.33 1.34 1.36 1.37 1.38 0.7 1.27 1.28 1.29 1.30 1.31 1.32 1.33 1.34 1.35 1.36 0.7 1.39 1.40 1.42 1.43 1.44 1.46 1.47 1.48 1.50 1.51 0.8 1.38 1.39 1.40 1.41 1.42 1.44 1.45 1.46 1.48 1.49 0.8 1.53 1.54 1.56 1.57 1.59 1.60 1.62 1.64 1.65 1.67 0.9 1.51 1.52 1.54 1.55 1.57 1.59 1.60 1.62 1.64 1.65 0.9 1.69 1.70 1.72 1.74 1.76 1.77 1.79 1.81 1.83 1.84 1.0 1.67 1.69 1.71 1.72 1.74 1.76 1.78 1.80 1.82 1.84 1.0 1.86 1.88 1.90 1.92 1.94 1.96 1.98 2.00 2.02 2.04 1.1 1.86 1.88 1.90 1.92 1.94 1.97 1.99 2.01 2.03 2.06 1.1 2.06 2.08 2.10 2.12 2.15 2.17 2.19 2.21 2.24 2.26 1.2 2.08 2.10 2.13 2.15 2.18 2.20 2.23 2.25 2.28 2.31 1.2 2.28 2.31 2.33 2.35 2.38 2.40 2.43 2.45 2.48 2.50 1.3 2.33 2.36 2.39 2.41 2.44 2.47 2.50 2.52 2.55 2.58 1.3 2.53 2.56 2.58 2.61 2.64 2.66 2.69 2.72 2.75 2.77 1.4 2.61 2.64 2.67 2.70 2.73 2.76 2.79 2.82 2.85 2.89 1.4 2.80 2.83 2.86 2.89 2.92 2.95 2.98 3.00 3.03 3.06 1.5 2.92 2.95 2.98 3.01 3.05 3.08 3.11 3.15 3.18 3.21 1.5 3.09 3.11 3.15 3.19 3.22 3.25 3.28 3.31 3.35 3.38 1.6 3.25 3.28 3.32 3.35 3.39 3.43 3.46 3.50 3.54 3.58 1.6 3.41 3.45 3.48 3.52 3.55 3.59 3.63 3.66 3.70 3.73 1.7 3.62 3.65 3.69 3.73 3.77 3.82 3.84 3.88 3.92 3.96 1.7 3.77 3.81 3.85 3.88 3.92 3.96 4.00 4.04 4.07 4.11 1.8 4.00 4.04 4.07 4.11 4.15 4.19 4.23 4.27 4.32 4.36 1.8 4.15 4.19 4.23 4.26 4.30 4.34 4.38 4.42 4.46 4.50 1.9 4.40 4.44 4.48 4.53 4.57 4.61 4.66 4.70 4.74 4.79 1.9 4.54 4.58 4.62 4.66 4.70 4.74 4.78 4.82 4.86 4.90 2.0 4.83 4.87 4.92 4.96 5.00 5.05 5.09 5.13 5.18 5.22 2.0 4.94 4.98 5.02 5.07 5.11 5.15 5.19 5.24 5.28 5.32 2.1 5.27 5.32 5.36 5.41 5.46 5.50 5.54 5.59 5.63 5.68 2.1 5.36 5.41 5.44 5.49 5.53 5.59 5.64 5.69 5.73 5.78 2.2 5.73 5.78 5.83 5.88 5.92 5.97 6.02 6.07 6.12 6.17 2.2 5.82 5.87 5.92 5.97 6.02 6.06 6.11 6.16 6.21 2.26 2.3 6.22 6.27 6.33 6.38 6.43 6.49 6.54 6.59 6.64 6.69 2.3 6.31 6.36 6.41 6.46 6.51 6.56 6.61 6.66 6.72 6.77 2.4 6.74 6.80 6.85 6.90 6.95 7.01 7.06 7.11 7.16 7.21 2.4 6.82 6.87 6.92 6.97 7.02 7.07 7.12 7.17 7.22 7.27 2.5 7.26 7.32 7.37 7.43 7.49 7.54 7.58 7.63 7.67 7.73 2.5 7.32 7.37 7.42 7.48 7.53 7.59 7.65 7.69 7.74 7.79