Nom : ……………………..…
Prenom : ………………...….
Classe : ………………...…….
A.S : … 2019 … / … 2020…
TOLERANCES GEOMETRIQUES
I. INTRODUCTION:
Il existe trois grands types de tolérances géométriques :
□ Tolérances de forme : Eléments géométriques de base s’appliquant à l’élément lui-même (ligne ou
surface)
□ Tolérances d’orientation : Eléments associant deux éléments les uns par rapport aux autres.
□ Tolérances de position : Eléments permettant de définir une zone de tolérance dans une position
II. INDICATION D’UN ELEMENT :
Surfaces / lignes Axe de la pièce
Grand cylindre Axe du grand / petit cylindre Plan médian de la pièce
III. TOLERANCES GEOMETRIQUES :
TOLERANCES DE FORME TOLERANCES D’ORIENTATION TOLERANCES DE POSITION
SYMBOLE EXEMPLE SYMBOLE EXEMPLE SYMBOLE EXEMPLE
Planéité Parallélisme Coaxialité
Rectitude Perpendicularité Symétrie
Circularité Inclinaison Localisation
Cylindricité
Labo Génie Mécanique de Kélibia Page 71
10 COTATION FONCTIONNELLE
I. MISE EN SITUATION :
Un système mécanique est réalisé par un ensemble de pièces mises en relation (en contact) les unes avec les
autres. Or, pour que ce système remplisse les fonctions pour lesquelles il a été créé, il faut que certaines
conditions fonctionnelles soient assurées (par exemple : jeu, serrage, réserve de filetage, dépassement ...).
La cotation fonctionnelle permet la recherche des différentes cotes à respecter pour le bon fonctionnement
d’un mécanisme.
Les cotes obtenues par la cotation fonctionnelle sont appelées cotes fonctionnelles.
II. CHAÎNE DE COTES :
Une chaîne de cotes est un ensemble de cotes, disposés bout à bout, nécessaires et suffisantes au respect
de la cote condition.
■ Cote condition
Une cote condition est une cote tolérancée qui exprime une exigence liée à l'assemblage, ou au
fonctionnement du mécanisme, représentée sur le dessin par un vecteur à double trait orienté :
□ Horizontalement : de gauche à droite ⇒
□ Verticalement : du bas en haut ⇑
Remarques :
* Dans le cas d’une cote condition positive, on parle de jeu.
* Dans le cas d’une cote condition négative, on parle de serrage.
■ Surfaces terminales:
Surfaces d’un ensemble de plusieurs pièces entre lesquelles le jeu est compris.
■ Surfaces de liaison:
Nommées aussi surfaces d’appui, ce sont les surfaces de contact d’un ensemble de plusieurs pièces à tenir
en compte.
……………
Labo Génie Mécanique de Kélibia Page 72
III. PRESENTATION DU THEME D’ETUDE :
Dans ce qui suit, notre étude portera sur le système : axe d’articulation.
On demande de :
□ Tracer la cote condition Ja
□ Repérer les surfaces terminales.
□ Repérer les surfaces de liaison.
IV. ETABLISSEMENT D’UNE CHAINE DE COTES :
1. But:
Tracer une chaîne de cotes, c’est trouver efficacement et sans ambiguïtés toutes les cotes des pièces
influant sur la cote condition et les rassembler sous forme d'une chaîne de cotes (addition vectorielle de
toutes les cotes fonctionnelles mises bout à bout et formant une chaîne fermée).
1
1 – bâti
2 – axe
3, 4 – coussinet
5 – rondelle
6, 7 – écrou
4 5 6 72 3
Ja
… …….. …..…..…..…..
Labo Génie Mécanique de Kélibia Page 73
2. Règles à respecter:
Pour la bonne réalisation d’une chaîne de cotes, plusieurs règles sont à respecter :
□ La chaîne de cotes débute à l’origine du vecteur cote condition et se termine à son extrémité.
□ Chaque cote de la chaîne commence et se termine sur la même pièce, le problème initial de la
cotation fonctionnelle étant de coter les différentes pièces du mécanisme.
□ Il ne peut y avoir qu’une seule cote par pièce dans une même chaîne de cotes. La chaîne de cotes
doit être la plus courte possible afin de faire intervenir le moins de cotes possibles.
Si deux maillons d'une chaîne de cote appartiennent à la même pièce, c'est qu'il existe une chaîne
encore plus courte !
□ Le passage d’une cote à la suivante se fait par la surface d’appui entre les deux pièces.
VI. CALCUL D’UNE CHAINE DE COTES :
■ Ecriture vectorielle:
STO"""""" =	∑ UT VTOW 	XT	VAOVT 	YT 	 AVT 	ZA? V>A??TYYT
■ Ecriture algébrique:
STO 	∑ AVT 	(+ê+T	 T? ) 	∑ AVT 	( T? 	 A?VWM>WT)	
STO	+M8 	∑ AVT 	+M8	(+ê+T	 T? ) 	∑ AVT 		+>?	( T? 	 A?VWM>WT)	
STO	+>? 	∑ AVT 	+>?	(+ê+T	 T? ) 	∑ AVT 	+M8	( T? 	 A?VWM>WT)	
■ Intervalle de tolérance:
P . STO =	∑ P 	VAOVT 	YT 	 AVT 	ZA? V>A??TYYT
Labo Génie Mécanique de Kélibia Page 74
□ Sachant que :
S = 2±=._
; M = 45
c=.
= ; M = M; = 5±=.
; M_ = 3±=.
; MF = Md = 12,2±=.
Donner l’utilité de la cote condition Ja
…………………………..………………………………...………………………………..…………………………………………
Ecrire les équations relatives à la condition Ja
…………………………..………………………………...………………………………..…………………………………………
…………………………..………………………………...………………………………..…………………………………………
…………………………..………………………………...………………………………..…………………………………………
Calculer la cote nominale et les limites à donner à la cote a2 relative à la condition Ja
…………………………..………………………………...………………………………..…………………………………………
…………………………..………………………………...………………………………..…………………………………………
…………………………..………………………………...………………………………..…………………………………………
…………………………..………………………………...………………………………..…………………………………………
…………………………..………………………………...………………………………..…………………………………………
…………………………..………………………………...………………………………..…………………………………………
…………………………..………………………………...………………………………..…………………………………………
a2 = ………………………
Vérifier le résultat obtenu :
…………………………..………………………………...………………………………..…………………………………………
…………………………..………………………………...………………………………..…………………………………………
…………………………..………………………………...………………………………..…………………………………………
Labo Génie Mécanique de Kélibia Page 75
VII. EXERCICES D’APPLICATION :
* Système d’articulation :
On donne le dessin d’ensemble partiel d’un système d’articulation :
Tracer les chaines de cotes relatives aux conditions Ja , Jb , Jc et Jd
Reporter les cotes fonctionnelles obtenues sur les dessins des pièces séparées :
1 32 4 5 6
Jc Ja
Jb
Jd
Labo Génie Mécanique de Kélibia Page 76
Donner l’utilité conditions Ja , Jb , Jc et Jd
Ja …………………………….……..…..……………………………………………………………………
Jb ……………………….…………..…..……………………………………………………………………
Jc ………………………………………..……………………………………………………………………
Jc ………………………………………..……………………………………………………………………
Sachant que :
Se = 0,5
+0.1
−0.3 ; N = 20±=.
; N = 65
=
g=.
Ecrire les équations relatives à la condition Jb
…………………………..………………………………...………………………………..…………………………………………
…………………………..………………………………...………………………………..…………………………………………
…………………………..………………………………...………………………………..…………………………………………
Calculer la cote nominale et les limites à donner à la cote b4 relative à la condition Jb
…………………………..………………………………...………………………………..…………………………………………
…………………………..………………………………...………………………………..…………………………………………
…………………………..………………………………...………………………………..…………………………………………
……………………..………………………………...………………………………..………………………………………………
……………………..………………………………...………………………………..………………………………………………
…………………………..…………………………...………………………………..………………………………………………
b4 = ………………………
Vérifier le résultat obtenu :
…………………………..………………………………...………………………………..…………………………………………
…………………………..………………………………...………………………………..…………………………………………
…………………………..………………………………...………………………………..…………………………………………
Labo Génie Mécanique de Kélibia Page 77
* Butée de serrage :
Justifier la présence de la condition Ja
Ja …………………………………………………………………………………………………………………………
Compléter la chaîne de cote installant la condition Ja
Sachant que : M = 8±=.
; M = 10±=.
; M ; = 22
c=.
g=.
Calculer la condition Ja :
…………………………..………………………………...…………..………………………………………………………………
……….……..………………………………...………………………………..………………………………………………………
………………………..……………………………………...………………………………………………………..………………
……………………...………………………………..………………………………………………………………………………
Ja = ………………………
Vérifier le résultat obtenu :
…………………………..………………………………...………………………………..…………………………………………
…………………………..………………………………...………………………………..…………………………………………
…………………………..………………………………...………………………………..…………………………………………
Labo Génie Mécanique de Kélibia Page 78
11 FLEXION PLANE SIMPLE
I. PRESENTATION DU THEME D’ETUDE :
8 1 Ecrou en T M10
7 1 Table machine
6 1 Cale étagée
5 1 Rondelle d’appui M10
4 1 Goujon M10
3 1 Ecrou hexagonal M10
2 1 Bride
1 1 Pièce
REP QTT DESIGNATION MATIERE OBSERVATIONS
Echelle ………
Labo Génie Mécanique de Kélibia Page 79
1. Description :
Pour serrer une pièce de grandes dimensions, que l’étau ne peut recevoir, sur la table d’une machine outils
(Perceuse, fraiseuse. . .) on utilise des brides.
En serrant l’écrou (3) on développe un effort capable d’immobiliser la pièce (1) en position.
L’utilisation de la cale étagée (6) permet un serrage pour différentes hauteurs.
II. ETUDE STATIQUE :
1. Hypothèses :
La bride est assimilée à une poutre
- La section est rectangulaire
- la ligne moyenne formée par la droite passante
par le centre G de la section droite rectangulaire ;
- Le poids de la bride (2) est négligé
2. Modélisation :
a – Placer les actions appliquées sur la bride (2)
On donne : L’action de serrage est de 300N
b – Calculer les actions appliquées sur la bride (2)
……………………………………………………..………………………………….……………………………...……
………………………………………………...…………………..…………………….………………………………....
……………………………………………………..………………………………….……………………………...……
………………………………………………...…………………..…………………….………………………………....
……………………………………………………..………………………………….……………………………...……
………………………………………………...…………………..…………………….………………………………....
c – Donner le type de sollicitation : ……………………………………………………………...……………………
A B C
Labo Génie Mécanique de Kélibia Page 80
III. FLEXION PLANE SIMPLE :
Une poutre est sollicitée à la flexion plane simple lorsqu’elle est soumise à l’action de plusieurs forces
parallèles entre eux et perpendiculaires à la ligne moyenne.
1. Diagramme des efforts tranchants : jk
C’est la répartition des actions perpendiculaires à la ligne moyenne sur toute la longueur de la poutre.
……………………………………………………..………………………………….……………………………...……
………………………………………………...……………………………..………….………………………………....
Effort tranchant :
Zone (….) ..... ≤ 8 ≤ .....
= ……………………………………………………..……………………..………………………...……
Zone (….) ..... ≤ 8 ≤ .....
= ……………………………………………………..……………………..………………………...……
m = …………...……......
(5)
8
Echelle : 10mm …… N
Labo Génie Mécanique de Kélibia Page 81
2. Diagramme des moments fléchissants : .no
C’est la répartition des moments autour de l’axe (p, B) sur toute la longueur de la poutre.
……………………………………………………..………………………………….……………………………...……
………………………………………………...……………………………..………….………………………………....
Moment fléchissant :
Zone (….) ..... ≤ 8 ≤ .....
Z = ……………………………………………………..……………………..………………………...……
……………………………………………………..……………………..………………………...……
……………………………………………………..…………………………..………………………...……
Pour 8 = ...... Z = ……………………………………………
Pour 8 = ...... Z = ……………………………………………
Zone (….) ..... ≤ 8 ≤ .....
Z = ……………………………………………………..……………………..………………………...……
……………………………………………………..……………………..………………………...……
……………………………………………………..…………………………..………………………...……
Pour 8 = ...... Z = ……………………………………………
Pour 8 = ...... Z = ……………………………………………
Z m = …………...……......
(5)
8
Echelle : 10mm …… Nm
Labo Génie Mécanique de Kélibia Page 82
3. Contrainte normale maximale : qrs(
tm =
Z m
Pu
v
avec
□ tm : contrainte normale maximale (en 5/++ )
□ Z m : moment fléchissant maximal (en 5. ++)
□ Pu : moment quadratique (en ++;
)
□ v : désigne la valeur de 9 la plus élignée (en ++)
□
wxy
z
: module de flexion (en ++ )
4. Contrainte tangentielle : {r|k
}m~
m
•
avec
□ }m~ : contrainte tangentielle moyenne (en 5/++ )
□ m : effort tranchant maximal (en 5)
□ • : section de la poutre (en ++ )
5. Condition de résistance :
Pour qu’une poutre, sollicitée à la flexion plane simple, puisse résister en toute sécurité ; il faut que :
tm ≤ € où € = •
‚
avec
□ : résistance élastique d’extension du matériau (en 5/++ ou HM)
□ : résistance pratique à l’extension du matériau (en 5/++ ou HM)
□ : coefficient de sécurité (sans unité)
6. Moment quadratique de quelques surfaces usuelles :
Pu =
Nℎ
12
Pu =
6„ − Nℎ
12
Pu =
…†;
64
Pu =
…(†;
− X;
)
64
v =
ℎ
2
v =
„
2
v =
†
2
v =
†
2
Labo Génie Mécanique de Kélibia Page 83
Calculer le moment quadratique d’une poutre de section carré .
……………………………………………………..………………………
……………………………………………………..………………………
……………………………………………………..………………………
IV. EXERCICES D’APPLICATION :
Exercice 1:
Une poutre de section rectangulaire pleine de largeur b et de hauteur h est modélisée par la figure ci-
dessous :
On donne : 3 ‡3	 	450	5, 3 ˆ3	 	300	5
1. Calculer les réactions d’appuis 3 "#3 et 3 " ‰3 aux points A et C
………………………………………………………………………………………..………………………..………………………
………………………………………………………………………………………..………………………..………………………
………………………………………………………………………………………..………………………..………………………
………………………………………………………………………………………..………………………..………………………
………………………………………………………………………………………..………………………..………………………
………………………………………………………………………………………..………………………..………………………
………………………………………………………………………………………..………………………..………………………
………………………………………………………………………………………..………………………..………………………
A
B
FB
C D
FD
Y
x
15 mm 30 mm 15 mm
+
z
x
b
h
Labo Génie Mécanique de Kélibia Page 84
2. Tracer le diagramme des efforts tranchants et déduire la valeur de ‖j‹rs(‖
………………………………..…………………………………
…………………………………..………………………………
………………………………..…………………………………
…………………………………..………………………………
………………………………..…………………………………
………………………………..…………………………………
………………………………..…………………………………
………………………………..…………………………………
3. Tracer le diagramme des moments fléchissant et déduire la valeur de ‖.&Œrs(‖
………………………………..…………………………………
…………………………………..………………………………
………………………………..…………………………………
…………………………………..………………………………
………………………………..…………………………………
………………………………..…………………………………
………………………………..…………………………………
………………………………..…………………………………
………………………………..…………………………………
…………………………………..………………………………
………………………………..…………………………………
4. L’arbre est réalisé d’un acier de limite élastique •' = DŽ• •/rrC
, de largeur b = ‘’rr et
de hauteur h= ‘Crr
On adopte un coefficient de sécurité “ = ”
a. Calculer la valeur de la contrainte tangentielle moyenne {r|k
………………………………………………………………………………………..………………………..………………………
………………………………………………………………………………………..………………………..………………………
Ty (N)
x (mm)
Ech : …… mm ---> …… N
‖ •m ‖ = …………………
MFz (Nm)
x (mm)
‖ –m ‖ = …………………
Ech : …… mm ---> …… Nm
Labo Génie Mécanique de Kélibia Page 85
b. Calculer la valeur de la contrainte normale qrs( dans la section la plus sollicitée de la poutre
………………………………………………………………………………………..………………………..………………………
………………………………………………………………………………………..………………………..………………………
………………………………………………………………………………………..………………………..………………………
………………………………………………………………………………………..………………………..………………………
………………………………………………………………………………………..………………………..………………………
………………………………………………………………………………………..………………………..………………………
c. Tracer le diagramme de répartition des contraintes normales dans la section la plus sollicitée.
Ech : (hauteur) …… mm ---> …… mm
(contraintre) …… mm ---> …… Nm
d. Calculer la valeur de la résistance pratique •— de la poutre
………………………………………………………………………………………..………………………..………………………
e. Vérifier la résistance de la poutre
………………………………………………………………………………………..………………………..………………………
………………………………………………………………………………………..………………………..………………………
5. On désire utiliser une poutre de section circulaire de diamètre d fabriquée du même matériau.
Chercher le diamètre minimal de la poutre 2r˜™ à partir duquel la poutre peut résister aux efforts appliqués
………………………………………………………………………………………..………………………..………………………
………………………………………………………………………………………..………………………..………………………
………………………………………………………………………………………..………………………..………………………
………………………………………………………………………………………..………………………..………………………
………………………………………………………………………………………..………………………..………………………
………………………………………………………………………………………..………………………..………………………
………………………………………………………………………………………..………………………..………………………
x
t
Labo Génie Mécanique de Kélibia Page 86
12 DESSIN DE DEFINITION
I. MISE EN SITUATION :
Le dessin de définition représente une pièce ou une partie d'objet projeté sur un plan avec tous ses détails
comme les dimensions en cotations normalisées et les usinages. On l'appelle également plan de détails. Il doit
être conforme aux critères suivants
Le dessin de définition détermine complètement et sans ambiguïté les exigences fonctionnelles
auxquelles doit satisfaire le produit dans l’état de finition prescrit. Il est destiné à faire loi lors du
contrôle de réception du produit.
Un dessin de définition doit être coté fonctionnellement. La cote indiquée correspond à la dimension
de la pièce finie, y compris le revêtement de protection, le traitement de surface, etc.
Les dessins de définition servent souvent à établir des contrats entre concepteurs et réalisateurs
car ils représentent le cahier des charges.
En d’autres termes, le dessin de définition décrit, pour chacune des pièces du mécanisme, les formes, les
dimensions et les spécifications qui lui permettent de remplir ses fonctions.
II. ETAPES DE REALISATION D’UN DESSIN DE DEFINITION :
Lire attentivement le dessin d’ensemble et
relever les dimensions extérieures.
Choisir les vues principales et étudier la
mise en page.
Exécuter l’esquisse de tout le dessin
Reporter les cotes fonctionnelles et
inscrire les conditions géométriques et les
rugosités pour les surfaces fonctionnelles
Faire la mise au net. L’utilisation de l’outil
informatique (CAO) au cours de toutes les
étapes est recommandée.
Labo Génie Mécanique de Kélibia Page 87
III. DESSIN DE DEFINITION :
Echelle 1 :1
On demande de dessiner cette pièce à l’échelle
donnée en :
□ vue de face.
□ vue de droite.
□ vue de dessus.
Donner les noms des trois formes :
□ A : ………………………………..………..
□ B : ………………………………..………..
□ C : ………………………………..………..
Labo Génie Mécanique de Kélibia Page 88
IV. LA COUPE SIMPLE :
Une coupe ou vue en coupe est une représentation permettant une meilleure définition et une compréhension
plus aisée des formes intérieures d’un ou plusieurs composants.
Les surfaces coupées seront représentées par des hachures (traits fins) dont la forme dépend de la matière
la pièce
Métaux Ferreux (acier, fonte) Matières plastiques
Cuivre Aluminium
Cas particuliers:
Les pièces de révolution pleines (cylindriques ou sphériques telles que axes, arbres, billes….) ne se coupent
pas
Labo Génie Mécanique de Kélibia Page 89
Echelle 1 :1
On donne la vue de face, la vue de droite et la vue
de dessus incomplètes d’un étrier.
On demande de terminer :
□ La vue de face.
□ La vue de droite en coupe A-A
□ La vue de dessus.
Désigner le plan de coupe et la vue en coupe.
Labo Génie Mécanique de Kélibia Page 90
Exercice 1:
Pour chaque exercice, tracer la vue coupée manquante. Utiliser le plan de coupe indiqué.
Coupes locales :
II arrive fréquemment que l'on ait besoin de définir uniquement un seul détail (un trou, une forme particulière
etc.) du contour intérieur. Il est alors avantageux d'utiliser une coupe locale plutôt qu'une coupe complète
amenant trop de tracés inutiles. L'indication du plan de coupe est inutile dans ce cas. Un trait fin ondulé ou
en zigzags sert de limite aux hachures.
V. LES SECTIONS :
Les sections permettent d’améliorer la clarté et la lisibilité du dessin et d’éviter les vues surchargées tout
en isolant les formes qu’on désire préciser.
Principe :
Dans une coupe, normalement, toutes les parties visibles au-delà (en arrière) du plan de coupe sont dessinées.
Dans une section, seule la partie coupée est dessinée (là où la matière est réellement coupée ou sciée).
Labo Génie Mécanique de Kélibia Page 91
Les sections sont définies de la même manière que les coupes : plan de coupe, flèches, etc.
Sections sorties :
Elles sont dessinées, le plus souvent, au droit du plan de coupe si la place le permet. L'inscription du plan
de coupe peut être omise.
Labo Génie Mécanique de Kélibia Page 92
Sections rabattues :
Ces sections sont dessinées en traits continus fins (pas de traits
forts) directement sur la vue usuelle (en superposition). Pour plus
de clarté il est parfois préférable de gommer ou d'éliminer les
formes de l'objet vues sous la section ; si ces formes sont
nécessaires, préférer une section sortie. L'indication du plan de
coupe est en général inutile.
Exercice:
Tracer la vue coupée manquante. Utiliser le plan de coupe indiqué.
Labo Génie Mécanique de Kélibia Page 93
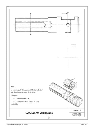
Echelle 1 :1
Nota :
Le trou taraudé débouchant M8 n’est effectué
que dans la partie avant de la pièce.
Effectuer :
□ La sec>on sor>e A-A
□ La sec>on raba?ue autour de l’axe
vertical (b)
Labo Génie Mécanique de Kélibia Page 94
Exercice:
D'après la pièce (1), exécuter la coupe A-A et la section A-A pour les pièces 2, 3 et 4.
coupe A-A section A-A
Labo Génie Mécanique de Kélibia Page 95
13 GUIDAGE EN TRANSLATION
I. MISE EN SITUATION :
La solution constructive qui réalise une liaison glissière est appelée guidage en translation.
Les termes courants associés sont nombreux : rail, guide, coulisseau, glissière, etc…
Représentation normalisée
en projection orthogonale
Représentation spatiale Degrés de liberté
x
y
z
Tx = 1 Rx = 0
Ty = 0 Ry = 0
Tz = 0 Rz = 0
II. PRESENTATION DU THEME D’ETUDE :
1. Présentation du mécanisme :
Le vé réglable se fixe sur une table d’une machine. Il permet de positionner l’axe d’une pièce cylindrique
horizontalement, à une hauteur déterminée par rapport à la table de la machine.
2. Fonctionnement :
On fait tourner la vis de manœuvre (2), la pièce guide (3) se translate verticalement pour déplacer le vé de
positionnement (4) vers le haut ou vers le bas suivant le sens de rotation de la vis.
Labo Génie Mécanique de Kélibia Page 96
6 1 Ecrou hexagonal ISO 4032 M6-08 C 35
5 1 Vis sans tête à téton long ISO 4026 M6x15
4 2 Vé de positionnement C 30
3 1 Guide EN-JM 1050
2 2 Vis d’entraînement …………….
1 1 Corps EN-JM 1050
REP QTT DESIGNATION MATIERE OBSERVATIONS
Echelle 1 : 1
3. Liaisons mécaniques :
Donner le nom et le symbole de chacune des liaisons suivantes.
Liaison 2/1 4/1 2/3 3/4
Dessin
Nom …………………….… …………………….… …………………….… …………………….…
Symbole
Labo Génie Mécanique de Kélibia Page 97
4. Schéma cinématique :
On donne les blocs A, B, C et D des pièces encastrées :
A = {1, 5, 6} B = {2}
C = {3} D = {4}
On demande de compléter le schéma cinématique en
plaçant dans les rectangles les symboles des liaisons
mécaniques correspondantes.
5. Etude de la fonction technique « guidage en translation » :
La liaison glissière entre le corps (1) et le vé (4) est réalisée à l’aide des
surfaces de contact qui assurent le guidage en translation du vé.
Plus généralement, dans une liaison glissière :
□ Les surfaces de guidage sont …………..……..…...............................
□ L’organe fixe s’appelle ……………………………….............................
□ L’organe mobile s’appelle ……………………………….........................
III. ACTIVITE TOUR PARALLELE :
B
D
A
C
Labo Génie Mécanique de Kélibia Page 98
1. Chariot longitudinal :
Faire déplacer le chariot longitudinal
Quel est son mouvement par rapport au banc du tour ?
……………………………………………………..…………………………..………………………...……
Quelle est la liaison entre les deux éléments soulignés ?
……………………………………………………..…………………………..………………………...……
Quelle est la forme des surfaces de frottement ?
……………………………………………………..…………………………..………………………...……
En cas d’usure des surfaces de frottement (surfaces fonctionnelles), comment le jeu sera rattrapé ?
……………………………………………………..…………………………..………………………...……
2. Chariot porte outil :
Faire déplacer le chariot porte outil
Quel est son mouvement par rapport au chariot transversal ?
……………………………………………………..…………………………..………………………...……
Quelle est la laison entre les deux éléments soulignés ?
……………………………………………………..…………………………..………………………...……
Quelle est la forme des surfaces de frottement ?
……………………………………………………..…………………………..………………………...……
En cas d’usure des surfaces de frottement (surfaces fonctionnelles), comment le jeu sera rattrapé ?
……………………………………………………..…………………………..………………………...……
3. Chariot transversal :
Faire déplacer le chariot transversal
Quel est son mouvement par rapport au chariot longitudinal ?
……………………………………………………..…………………………..………………………...……
Quelle est la laison entre les deux éléments soulignés ?
……………………………………………………..…………………………..………………………...……
Quelle est la forme des surfaces de frottement ?
……………………………………………………..…………………………..………………………...……
Remarquer l’existence d’une 3ème pièce intercalée entre les deux chariots ?
Quelle est sont rôle ?
……………………………………………………..…………………………..………………………...……
Quel nom peut-on lui attribuer ?
……………………………………………………..…………………………..………………………...……
4. Poupée mobile :
Faire débloquer la manette et faire tourner le volant
Quel est le mouvement du fourreau par rapport au corps de la poupée ?
……………………………………………………..…………………………..………………………...……
Quelle est la liaison entre les deux éléments soulignés ?
……………………………………………………..…………………………..………………………...……
Quelle est la forme des surfaces fonctionnelles ?
……………………………………………………..…………………………..………………………...……
Démonter le fourreau
Donner le nom de l’usinage réalisé sur le fourreau ?
……………………………………………………..…………………………..………………………...……
Remarquer l’existence d’une pièce implantée dans l’alésage du corps de la poupée
Donner le nom et le rôle de cette pièce.
Nom : …………………………… Rôle : ………..………………………………….…………..…………
Labo Génie Mécanique de Kélibia Page 99
IV. GUIDAGE EN TRANSLATION PAR FROTTEMENT DE GLISSEMENT :
1. Guidage par section prismatique :
Sans dispositif de réglage de jeu :
Guidage prismatique Forme en Té Queue d’aronde Guidage par forme en U
Sans jeu :
Plan + Surfaces latérales réduites Plan + Vé Plan + Vé
Ce guidage prismatique est utilisé sur les tables des machines-outils (exemple: trainard du tour). Le jeu sera
éliminé par le poids propre de l’élément mobile (coulisseau).
Avec dispositif de réglage de jeu :
Le guidage par forme prismatique impose souvent un mécanisme de rattrapage de jeu, sinon le processus de
fabrication doit être d’une grande précision si l’on désire un guidage précis.
Le dispositif de réglage de jeu permet de :
□ obtenir un jeu fonctionnel aussi réduit que possible sans imposer une fabrication d’excellente qualité
pour l’obtention d’un ajustement précis.
□ rattraper le jeu dû à l’usure au bout d’un certain temps de fonctionnement.
Le principe de ce réglage consiste à rendre la position de l’une des surfaces de contact réglable.
Réglages par cales à
section constante
Réglage par cale pentée Guidage par forme en U
Vis de
réglage
Vis de
réglage
Labo Génie Mécanique de Kélibia Page 100
Exercices d’application :
Sur chaque exemple :
- Repasser en couleur les surfaces fonctionnelles qui participent au guidage en translation de (2) sur (1).
- Dans quel ordre faut-il manœuvrer les éléments pour effectuer le réglage du jeu ?
▷ Manœuvrer dans l’ordre :
▷ Quel est la fonction de l’écrou (6) :
…………………………………………………………
▷ Manœuvrer dans l’ordre :
▷ Peut-on régler le jeu supérieur autrement
qu’en utilisant les clinquants (8) :
……………………………………………………………
▷ Manœuvrer dans l’ordre : ▷ Manœuvrer dans l’ordre :
Labo Génie Mécanique de Kélibia Page 101
Exercice :
Le guidage en translation du coulisseau (1) par rapport à la glissière (2) est assuré par la forme en queue
d’aronde. Le réglage du jeu fonctionnel est assuré par la cale (3) (Le réglage en position de la cale (3) est
obtenu par pression de la vis sans tête à six pans creux à téton court (4) freinée par l’écrou (5) et le
maintien en position est obtenu par la vis à tête cylindrique à six pans creux (6)).
On demande de compléter le dessin ci-dessous par les composants représentés ci-contre.
2. Guidage par forme cylindrique :
La forme des surfaces en contact permet une liaison pivot-glissant, pour réaliser une
liaison glissière, il suffit de supprimer le mouvement de rotation par obstacle (clavette, vis,
cannelures, méplat …)
Clavetage libre Arbre cannelé Profil polygon Guidage par double tige
Labo Génie Mécanique de Kélibia Page 102
ERGOT
▷ Colorier les surfaces fonctionnelles de guidage.
▷ Sans l’ergot, la liaison 1/2 est :
………………………...…………………………………
▷ Quel est le rôle de l’ergot :
…………………………..………………………………
VIS A TETON
▷ Colorier les surfaces fonctionnelles de guidage.
▷ Quel est le rôle du vis a têton :
………………………...…………………………………
▷ Donner l’expression de la course maximale :
C = ……………………...………………………………
CLAVETTE
▷ Colorier les surfaces fonctionnelles de guidage.
▷ Quel est le rôle de la clavette :
…………………………...…………..…………………
VIS A TETON
▷ Colorier les surfaces fonctionnelles de guidage.
▷ Quel est le rôle du vis a têton :
………………………...…………………………………
Labo Génie Mécanique de Kélibia Page 103
Exercice d’application :
Le guidage de l’arbre (1) est réalisé par centrage cylindrique et une vis sans tête fendue à téton long (3).
Le freinage de cette vis est assuré par un écrou hexagonal (4) .Le rattrapage du jeu dû à l’usure est obtenu
par serrage de la vis à tête fraisée à six pans creux (5).
On demande de compléter le dessin ci-dessous par les composants représentés ci-contre.
V. GUIDAGE EN TRANSLATION PAR ROULEMENT :
Introduction:
Pour réduire les résistances passives et faciliter les mouvements dans certains mécanismes, il est avantageux
de remplacer le frottement de ……………………………………… par le ……………………………….…….……
Frottement de ………………..……… Frottement de ………………………
Il existe une grande variété d’éléments roulants standards permettant de réaliser une liaison. Le coût de ces
éléments limite leur utilisation aux cas pour lesquels le frottement doit être réduit et les efforts sont
importants. Ces éléments admettent des vitesses importantes, un bon rendement et une grande précision
Galet sur rail Douille à billes Colonne à billes
☺
Labo Génie Mécanique de Kélibia Page 104
Cage à rouleaux croisés Cage à rouleaux parallèles Cage à billes
Patin à rouleaux
Cage à aiguilles Exemples de réalisation
Exercices d’application :
2
1
3 4 5
35 2
7
1
4
6
Guidage sur cage à rouleaux croisés
▷ Dans quel ordre faut-il manœuvrer les éléments
pour effectuer le réglage du jeu
Guidage sur plaquette à aiguilles
▷ Dans quel ordre faut-il manœuvrer les éléments
pour effectuer le réglage du jeu :
Labo Génie Mécanique de Kélibia Page 105
14 TRANSMISSION DE MOUVEMENT
I. MISE EN SITUATION :
Une transmission est un dispositif mécanique permettant de transmettre un mouvement d'une pièce à une
autre. Cet élément de la chaine d'énergie a pour fonction l'adaptation du couple et de la vitesse entre
l'organe moteur et l'organe entraîné.
La transmission du mouvement est l'une des fonctions les plus courantes des éléments de la mécanique
générale, c'est-à-dire des dispositifs mécaniques destinés à remplacer la main de l'homme.
II. TRANSMISSION PAR POULIE ET COURROIE :
1. Présentation du système d’étude : Machine à coudre
La poulie réceptrice est entraînée en rotation par l’intermédiaire d’une courroie. Cette courroie est entraînée
par une petite poulie (poulie motrice) montée sur l’arbre du moteur électrique.
2. Fonction des poulies et courroies :
Transmettre par ……........................ à l’aide d’un lien flexible « ……........................ » un mouvement de rotation
continu entre deux arbres éloignés
…………………………….….
…………………………….….
…………………………….…. ……………………
Labo Génie Mécanique de Kélibia Page 106
3. Différents types des courroies :
Courroie ………………… Courroie ………………… Courroie ………………… Courroie …………………
4. Etude cinématique de la transmission :
Vitesse de rotation : N exprimée en …..….......... soit :
□ 5 : vitesse de rotation de la poulie menante X : diamètre de la poulie menante
□ 5 : vitesse de rotation de la poulie menée X : diamètre de la poulie menée
Vitesse angulaire : ω exprimée en …..….......... : rayon de la poulie menante
□ š : vitesse angulaire de la poulie menante : rayon de la poulie menée
□ š : vitesse angulaire de la poulie menée
Vitesse linéaire : › exprimée en …..…..........
□ U : vitesse linéaire de la poulie menante
□ U : vitesse linéaire de la poulie menée
En négligeant le glissement entre les poulies et la courroie
U = …………..……..….. U = …………..……..…..
La courroie est considérée comme inextensible U = U ………………… ………………………
U""""
U
U""""
d1
d2
ω1 ω2
O1
O2
Poulie ………………….….
(………………………)
Poulie ………………….….
(………………………)
Labo Génie Mécanique de Kélibia Page 107
En tenant compte que : š = …………..……..….. š = …………..……..…..
………………………………..…………… ……………………………………
Le rapport de transmission (W) est :
œ =
•—|•ž˜' r'™é'
•—|•ž˜' r'™s™)'
=
2—|•ž˜' r'™s™)'
2—|•ž˜' r'™é'
•—|•ž˜' r'™s™)'
•—|•ž˜' r'™é'
1er cas W < 1 …………………………………………………….……
2eme cas W = 1 …………………………………………………….……
3eme cas W > 1 …………………………………………………….……
Exercice d’application : Machine à coudre
On donne :
- poulie motrice de diamètre X = 20 ++
- poulie réceptrice de diamètre X = 80 ++
- vitesse de rotation du moteur U¢ = 100 VW/
+>?
d'après la plaque signalétique du moteur.
▷ Calculer le rapport de transmission du moteur :
……………………………………………………….…………
▷ Calculer la vitesse de rotation de la poulie
réceptrice (2) :
……………………………………………………….…………
……………………………………………………….…………
4. Etude dynamique de la transmission :
Couple de transmission : £ exprimé en …………………………
£ = 3&"" 3 × •
Au repos En mouvement
=
""" : Tension de pose de la courroie " : Tension du brin tendu de la courroie
V : Tension du brin tendu de la courroie
Au repos, les deux brins de la courroie sont
soumis à deux tensions égales à = appelées
tension de pose.
La poulie motrice ne transmet pas de couple
£ = ( = − =) × = 0
En marche, on a une tension sur le brin tendu et
une tension V sur le brin mou tel que + V = 2 =
Soit = − V la force d’entraînement de la
poulie.
La poulie motrice transmet un couple
£ = ( − V) ×
Labo Génie Mécanique de Kélibia Page 108
Puissance transmissible : ¥ exprimé en …………………………
¥ = 	£ ¤ ¦
□ E : Couple de transmission
□ š : vitesse angulaire
Rendement : §
§ 	
¥œ
¥r
□ ¥œ : Puissance de l’arbre récepteur
□ ¥r : Puissance de l’arbre moteur
Exercice d’application : Machine à coudre
- D’après la plaque signalétique du moteur de la
machine à coudre : ¥r ‘C•¨
- Le rendement de la transmission par poulies et
courroies est évalué à § •, ©Ž
- poulie réceptrice de diamètre X 80	++
- vitesse de rotation du moteur U¢ 100	VW/+>?
d'après la plaque signalétique du moteur.
▷ Calculer le couple moteur de la machine à
coudre :
……………………………………………………….……
……………………………………………………….……
▷ Calculer la puissance sur l’arbre récepteur :
……………………………………………………….……
……………………………………………………….……
▷ Calculer le couple sur la poulie réceptrice :
……………………………………………………….……
5. Exercice : Perceuse sensitive
Présentation
La perceuse sensitive est une machine-outil servant à réaliser des opérations de
perçage sur des pièces.
Elle se compose essentiellement de :
- un moteur électrique
- un système de transmission de mouvement
- une broche (portant l’outil)
- un système de maintien de la pièce (étau).
Caractéristiques de la perceuse :
Moteur électrique Broche
- Tension d’alimentation : 220V-50 Hz
- Vitesse de rotation : 1430 tr/mn
- Puissance : Pm = 250 W
- Gamme des vitesses disponibles:
515 915 1 430 1950 2580 …. (en tr/min)
- Diamètre maximal de perçage : ∅13 mm
- Course du fourreau : 50 mm
Labo Génie Mécanique de Kélibia Page 109
Description du système de transmission de mouvement:
Les deux poulies motrice et réceptrice sont à gorges multiples
identiques et leur sens de montage sur l’axe du moteur et l’axe
de la broche est inversé.
Le réglage de la vitesse de rotation de la broche se fait en
plaçant la courroie sur le gradin (étage) souhaité.
On obtient ainsi quatre rapports de vitesse: œ‘, œC, œ” et œD
Travail demandé:
1 - Indiquer le nom du processeur assurant la transmission du mouvement de rotation de l’arbre moteur à
l’outil :
2 - On donne les diamètres des poulies
étagées :
∅ = 160	++
∅C 140	++
∅ 120	++
∅; 100	++
a - Calculer les 4 rapports de vitesses œ‘, œC, œ” et œD respectifs aux 4 étages.
œ‘ = …………………………..…….……………………………………..………………………………………..…….………
œC = …………………………..…….……………………………………..………………………………………..…….………
œ” = ………………………………………………………………………..………………………………………..…….………
œD = ………………………………………………………………………..………………………………………..…….………
b - Calculer les 4 vitesses de rotation de la broche
•‘ = …………………………..…….……………………………………..………………………………………..…….………
•C = …………………………..…….……………………………………..………………………………………..…….………
•” = …………………………..…….……………………………………..………………………………………..…….………
•D = …………………………..…….……………………………………..………………………………………..…….………
Transmettre la rotation de
l’arbre moteur à l’outil en 4
vitesses
FT11FT1
………………………………
……………………..………
Animer l’outil d’un mouvement
de rotation
Labo Génie Mécanique de Kélibia Page 110
3 - On désire percer un trou de diamètre X = 10++ sur une pièce en aluminium avec une vitesse de
coupe U« = ……… m/min
a - Calculer la vitesse de rotation •n du foret. (Sachant que : •n 	
‘•••	¤	›¬	
-	¤2
)
…………………………………..…….……………………………………..………………………………………..…….………
…………………………………..…….……………………………………..………………………………………..…….………
…………………………………..…….……………………………………..………………………………………..…….………
b - Choisir la vitesse convenable parmi les vitesses inscrites sur la plaque signalétique de la perceuse
…………………………………..…….……………………………………..………………………………………..…….………
…………………………………..…….……………………………………..………………………………………..…….………
III. TRANSMISSION PAR ROUES DE FRICTION :
1. Présentation du système d’étude : Dévidoir
L’appareil représenté ci-dessous sert à enrouler ou dérouler un tuyau de jardin sur une bobine.
2. Principe de fonctionnement :
Transmettre un mouvement de rotation continu par ……........................ entre deux arbres qui peuvent être :
□ ……............................ □ ……............................
Labo Génie Mécanique de Kélibia Page 111
Les roues de friction sont utilisées essentiellement dans des transmissions à faible puissance.
Les roues de friction. Afin de transmettre le mouvement de rotation, deux roues sont pressées l'une contre
l'autre. C'est le frottement qui en assure la liaison, c'est pourquoi ce mécanisme ne tolère aucun corps gras
Condition d’entraînement :
□ Coefficient de frottement important entre les deux roues
□ Forces pressante créant l’adhérence
Exemlpes
……………….…………… Galet ………………… et plateau Galet ………………… et plateau
3. Etude cinématique de la transmission :
AVANTAGES INCONVENIENTS
□ Fonctionnement silencieux
□ Réalisation simple et économique .
□ Glissement entre les roues en cas de variation
brusque du couple résistant
□ Efforts importants sur les paliers d’où usure
□ Transmission de faible puissance
Poulie ………………….….
(………………………)
Poulie ………………….….
(………………………)
Labo Génie Mécanique de Kélibia Page 112
Vitesse de rotation : N exprimée en …..….......... soit :
□ 5 : vitesse de rotation de la roue menante X : diamètre de la roue menante
□ 5 : vitesse de rotation de la roue menée X : diamètre de la roue menée
Vitesse angulaire : ω exprimée en …..….......... : rayon de la roue menante
□ š : vitesse angulaire de la roue menante : rayon de la roue menée
□ š : vitesse angulaire de la roue menée
Vitesse linéaire : › exprimée en …..…..........
□ U : vitesse linéaire de la roue menante
□ U : vitesse linéaire de la roue menée
En négligeant le glissement entre les poulies et la courroie
U = …………..……..….. U = …………..……..…..
On admet que les deux roues roulent sans glisser l’une sur l’autre
U = U ………………… ………………………
En tenant compte que : š = …………..……..….. š = …………..……..…..
………………………………..…………… ……………………………………
Le rapport de transmission (W) est :
œ =
•œ|•' r'™é'
•œ|•' r'™s™)'
=
2œ|•' r'™s™)'
2œ|•' r'™é'
•œ|•' r'™s™)'
•œ|•' r'™é'
* Le rapport de transmission n’est pas constant puisque le glissement est inévitable.
4. Etude dynamique de la transmission :
Labo Génie Mécanique de Kélibia Page 113
Couple de transmission : £ exprimé en …………………………
Pour un rayon donné, le couple à transmettre par le système roues de friction est proportionnel :
□ au coefficient de frottement Z entre les roues
□ à l’effort normal au contact des surfaces
d’où le couple est égal à : £ =	3&"" 3 ¤ n ¤ •
avec
□ • : rayon de la roue (en mm)
□ n : coefficient de frottement entre les roues (n )s™(®)
□ 3&"" 3 : Norme de la force pressante (en N)
Puissance transmissible : ¥ exprimé en ………………………… ¥ 	£ ¤ ¦
□ E : Couple de transmission □ š : vitesse angulaire
Rendement : § § 	
¥œ
¥r
□ ¥œ : Puissance de l’arbre récepteur □ ¥r : Puissance de l’arbre moteur
IV. APPLICATION : VARIATEUR DE VITESSE
1. Mise en situation :
Le mécanisme proposé est un variateur de vitesses à friction.
Il est utilisé pour transmettre et modifier la vitesse de rotation
entre deux arbres à axes perpendiculaire.
Il est formé principalement par:
- Un arbre d’entrée et un arbre de sortie.
- Un galet réglable en position pour varier la vitesse. 6
- Un plateau lié à l’arbre de sortie.
- Un ressort pour assurer l’adhérence entre le galet et le plateau
2. Nomenclature :
12 1 Ecrou hexagonal – M8 24 1 Joint à lèvres
11 1 Anneau élastique pour arbre 23 4 Vis à tête cylindrique
10 1 Flasque 22 1 Corps du variateur
09 4 Vis à tête fraisée plate – M4 21 1 Clavette parallèle
08 1 Galet 20 1 Coussinet cylindrique
07 1 Baladeur 19 1 Arbre de sortie
06 1 Roulement à billes 18 1 Butée à billes
05 1 Bague entretoise 17 1 Ressort
04 1 Roulement à billes 16 6 Vis à tête cylindrique
03 1 Anneau élastique 15 1 Plaque
02 1 Couvercle 14 1 Plateau
01 1 Arbre d’entrée 13 1 Rondelle d’appui
Rep. Nb. Désignation Rep. Nb. Désignation
Labo Génie Mécanique de Kélibia Page 114
3. Dessin d’ensemble :
4. Principe de fonctionnement :
La modification du rapport des vitesses s’obtient en
modifiant le rapport des diamètres des circonférences de
contact.
m¯ ≤ 	 l m 						 					 5°m¯ l 5° 	l 5°m
5. Travail demandé :
a/ Compléter le schéma cinématique du variateur
Coté
moteur
Coté
récepteur
Labo Génie Mécanique de Kélibia Page 115
b/ Quelle est la fonction du ressort (17) ? :
……………………………………………………..…………………………..………………………...……
c/ Proposer des matériaux pour le galet (8) et le plateau (14) :
……………………………………………………..…………………………..………………………...……
……………………………………………………..…………………………..………………………...……
d/ Relever sur les deux figures ci-dessous (à l’échelle 1:1), les rayons ± , ;m et ;m¯
± = ………………… ;m = ………………… ;m¯ = …………………
e/ Sachant que l’arbre d’entrée (1) est accouplé à l’arbre d’un moteur électrique tournant à la vitesse
5m = 750	VW/+>?. Calculer les vitesses limites 5°m¯ 	et 5°m de l’arbre de sortie (19).
……………………………………………………..…………………………..………………………...……
……………………………………………………..…………………………..………………………...……
……………………………………………………..…………………………..………………………...……
……………………………………………………..…………………………..………………………...……
3-6 : Calculer la puissance sur le plateau (14) dans la position ou sa vitesse est minimale sachant que :
L’effort exercé par le ressort (17) est || F || = 400 N
Le coefficient de frottement galet / plateau est f = 0,3.
……………………………………………………..…………………………..………………………...……
……………………………………………………..…………………………..………………………...……
……………………………………………………..…………………………..………………………...……
Labo Génie Mécanique de Kélibia Page 116
V. TRANSMISSION PAR PIGNONS ET CHAINES :
1. Présentation du système d’étude : Bicyclette
Les pédales, reliées au plateau denté (pignon menant) entraînent la roue arrière par l’intermédiaire d’une
chaîne.
2. Fonction des poulies et courroies :
Transmettre par ……........................ à l’aide d’un lien articulé « ……........................ » un mouvement de rotation
continu entre une roue dentée menante et une roue dentée menée sans contact entre elles.
3. Différents types des chaînes et pignons :
Chaîne ………………… Chaîne ………………… Chaîne …………………
4. Etude cinématique de la transmission :
………………
……………
…
pignon ……………….….
(………………………)
pignon ……………….….
(………………………)
Labo Génie Mécanique de Kélibia Page 117
Soit :
X³ : diamètre primitif du pignon menant
X³ : diamètre primitif du pignon mené
´ : nombre de dents du pignon menant
´ : nombre de dents du pignon mené
œ =
•—˜µ™|™ r'™é
•—˜µ™|™ r'™s™)
=
2—˜µ™|™ r'™s™)
2—˜µ™|™ r'™é
=
Œ—˜µ™|™ r'™s™)
Œ—˜µ™|™ r'™é
Exercice d’application : Transmission de vélo
On donne :
- ´ (m ) = 52 dents
- ´ (m é ) = 20 dents
▷ Exprimer et calculer le rapport de transmission
……………………………………………………….……
……………………………………………………….……
……………………………………………………….……
▷ Calculer le diamètre primitif X³ du pignon (1) :
…………………………………………………….…………
▷ Calculer la vitesse angulaire š du pignon (2 :
…………………………………………………….…………
…………………………………………………….…………
▷ Calculer la vitesse linéaire U de la chaîne :
…………………………………………………….…………
…………………………………………………….…………
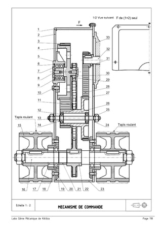
VI. APPLICATION : MECANISME DE POSE DE RUBAN ADHESIF
1. Présentation du système :
La figure ci-dessous représente partiellement le sous-système «module de pose de ruban adhésif» utilisé
dans une chaîne de fabrication de biscuits.
Après l'encaissage des paquets de biscuit dans le carton et la fermeture de celui-ci (rabattement des
volets supérieurs), ce dernier est entraîné par les quatre tapis roulants pour être définitivement fermé à
l'aide d'un ruban adhésif.
2. Nomenclature :
11 1 Chaîne 22 1 Roue de chaîne 33 1 Carter du moteur
10 3 Vis à tête hexagonale 21 2 Bague entretoise 32 1 Arbre moteur
9 2 Roulement 20 1 Boitier 31 1 Pignon
8 1 Vis à tête fraisée 19 2 Roulement 30 1 Bague
7 1 Rondelle spéciale 18 8 Vis H 29 1 Pignon chaîne
6 2 Anneau élastique 17 2 Bague entretoise 28 1 Courroie
5 1 Boîtier 16 1 Arbre de sortie 27 1 Carter droit
4 1 Roue arbrée 15 2 Rouleau 26 1 Roue dentée
3 1 Courroie 14 1 Anneau élastique 25 2 Ecrou hexagonal
2 1 Carter gauche 13 1 Arbre intermédiaire 24 2 Rondelle plate
1 1 Carter supérieur 12 1 Roulement 23 1 Carter inférieur
REP QTT DESIGNATION REP QTT DESIGNATION REP QTT DESIGNATION
Labo Génie Mécanique de Kélibia Page 118
Echelle 1 : 2
Labo Génie Mécanique de Kélibia Page 119
1. Compléter l’actigramme du niveau A-0 du module de pose de ruban adhésif.
2. En se référant au dossier technique, compléter le diagramme suivant en indiquant la fonction et/ou le
processeur convenable.
3. Chercher les classes d’équivalence :
A = { 1 , …………..…………………………………………………………………………………….……
B = { 32 , …………..…………………………………………………………………………………….……
C = { 26 , …………..…………………………………………………………………………………….……
D = { 4 , …………..…………………………………………………………………………………….……
E = { 15 , …………..…………………………………………………………………………………….……
……………………..……
………..………..
……………..…… ……………..……
Module de pose de ruban adhésif
Transmettrelemouvementderotationdel’arbremoteur(32)versl’aarbre(16)
A-0
………………………………………………………………
………………………………………………………………
Deux écrous (25)
Transmettre le mouvement de rotation de
l’arbre moteur (32) à l’arbre intermédiaire (13)
………………………………
………………………………
………..…………..……
……………………..……
……………………..……
………………………….
………………………………………………………………
……………………………………………………………… Deux roulements (12)
………..………..
………..…………..……
Transmettre le mouvement de rotation de
la roue dentée (26) à la roue arbrée (4)
………………………………
………………………………
………………………………………………………………
………………………………………………………………
Deux pignons (22) et (29)
chaîne (11)
………………………………………………………………
……………………………………………………………… Deux roulements (19)
Guider en rotation la roue arbrée (4) par rapport au
boitier (5)
………………………………
………………………………
………………………………………………………………
……………………………………………………………… Trois vis (10)
Labo Génie Mécanique de Kélibia Page 120
4. Compléter le graphe des liaisons :
…………………………………………………
…………………………………………………
…………………………………………………
…………………………………………………
…………………………………………………
…………………………………………………
5. Compléter le schéma cinématique minimal :
6. On cherche à choisir un moteur adéquat
On donne :
d31 = 30 mm d26b = 30 mm Z29 = …… dents
d26a = 60 mm d4 = …… mm Z22 = 36 dents
…
Moteur
Bâti
…
...
…
Rouleau
C
D
A
B
E
Moteur
Poulies / Courroie
(31 – 26a / 28)
r1 ; η1=0,85
Rouleau
N15=120 tr/min
C15= 7 N.m
Poulies / Courroie
(26b – 4 / 3)
r2 ; η2=0,85
Pignons / Chaîne
(29 – 22 / 11)
r3 ; η3=0,92
Labo Génie Mécanique de Kélibia Page 121
a/ Etude cinématique de la transmission [1] par poulies / courroie (31 – 26a)
a.1/ Quel est le type de la courroie (28)
……………..………………………..………………………………….………………………………….
a.2/ Calculer le rapport de transmission r1
……………..………………………..………………………………….………………………………….
b/ Etude cinématique de la transmission [2] par poulies / courroie (26b - 4)
b.1/ Calculer le diamètre de la poulie (4) sachant que le rapport de transmission r2 = 1/4
……………..………………………..………………………………….………………………………….
c/ Etude cinématique de la transmission [3] par pignonss / chaîne (29 - 22)
c.1/ Quel est le type de la chaîne (11)
…………..…………..……………..………………………………….………………………………….
c.2/ Calculer le rapport de transmission r3 sachant que le rapport global de la transmission est rg = 1/12
……………..………………………..………………………………….………………………………….
c.3/ En déduire le nombre de dents Z29 du pignon (29)
……………..………………………..………………………………….………………………………….
d/ Calculer la vitesse de rotation du moteur Nm
…………..…………..……………..………………………………….………………………………….
e/ Calculer le rapport global de la transmission ηg
…………..…………..……………..………………………………….………………………………….
f/ En déduire la puissance du moteur Pm
…………..…………..……………..………………………………….………………………………….
…………..…………..……………..………………………………….………………………………….
g/ Calculer la vitesse de translation du tapis roulant V15 sachant que R15 = 60mm
…………..…………..……………..………………………………….………………………………….
…………..…………..……………..………………………………….………………………………….
…………..…………..……………..………………………………….………………………………….
…………..…………..……………..………………………………….………………………………….
Labo Génie Mécanique de Kélibia Page 122
15 GUIDAGE EN ROTATION
I. MISE EN SITUATION :
La solution constructive qui réalise une liaison pivot est appelée guidage en rotation.
Le guidage en rotation est nécessaire dans de nombreux cas (moteurs, roues de véhicules, hélices d’avion
ou de turbine…).
On appelle arbre le contenu, logement ou alésage le contenant.
Représentation normalisée
en projection orthogonale Représentation spatiale Degrés de liberté
x
y
z
Tx = 0 Rx = 1
Ty = 0 Ry = 0
Tz = 0 Rz = 0
II. PRESENTATION DU THEME D’ETUDE :
1. Présentation du mécanisme :
Le tendeur de courroie représenté ci-dessous permet
le réglage de la tension d’une courroie avec
augmentation des angles d’enroulement α1 et α2.
2. Fonctionnement :
Le galet (4) tourne librement sur un axe (3) fixé sur un support (2). Celui-
ci peut osciller autour d’un axe (7) et être bloqué par un goujon (6) après
réglage de la tension de la courroie. L’angle d’oscillation maximum du
support est de 30°.
Labo Génie Mécanique de Kélibia Page 123
6 1 Anneau Elastique
8 1 Rondelle
7 1 Axe
6 1 Goujon
5 1 Ecrou
4 1 Galet
3 1 Axe
2 1 Support
1 1 Bâti
REP QTT DESIGNATION MATIERE OBSERVATIONS
Echelle 1 : 1
2. Etude du guidage en rotation du galet :
La liaison entre le galet (4) et l’axe (3) permet une rotation.
□ C’est une liaison …………..……..…..........................................................
□ Cette liaison réalise un ……………………………….............................
Le guidage en rotation consiste à réaliser une liaison PIVOT entre un
arbre et un alésage (moyeu).
Le guidage en rotation en phase d’utilisation doit assurer les fonctions suivantes :
Positionner l’arbre et le logement : notions de jeu et de précision de guidage ;
Permettre un mouvement relatif (rotation) : notions de rendement et de vitesse de rotation ;
Transmettre les efforts : dimensionnement des pièces et durée de vie du montage ;
Labo Génie Mécanique de Kélibia Page 124
III. GUIDAGE EN ROTATION PAR GLISSEMENT :
1. Guidage par contact direct :
Cette solution est la plus simple, et la plus économique.
Les surfaces directement en contact sont cependant soumises
du frottement, ainsi cette solution ne peut pas être envisagée
pour des vitesses élevées, ni même pour des pièces effectuant
de nombreuses rotations.
Il s’agira de prévoir un ajustement adapté sur le diamètre, ainsi
qu’un jeu axial.
La liaison pivot 2/1 est réalisée par contact direct.
Pour assurer un bon guidage, il faut respecter deux
conditions :
□ Un jeu axial (ou latéral) J.
□ Un jeu radial (ou diamétral), imposé par le choix d'un
ajustement tournant. Exemple : ∅ …………………
Questions :
Colorer les surfaces fonctionnelles de guidage en rotation de lavis (2).
Indiquer sur le dessin l’ajustement 2/1.
2. Guidage par contact indirect :
L'usure due au frottement est subie par une bague de frottement interposé entre le moyeu et l’arbre.
Cette bague appelé …………………….……... est en matériau à faible coefficient de frottement, à bas prix et
facile à remplacer.
Montage porte à faux Montage en chape
63
2
Jeu (J)
4 5
∅…….
1
Labo Génie Mécanique de Kélibia Page 125
Types de coussinets :
Coussinet …………………………… Coussinet ……………………………
Le coussinet peut être réalisé par :
□ Bronze fritté BP25
□ Alliage ferreux FP15
□ Matière plastique (Nylon)
Montage de coussinets :
Afin de limiter les frottements, le coussinet doit être monté :
□ serré sur l’alésage
□ glissant sur l’arbre
De cette façon la vitesse de glissement est la plus faible
Exercices d’application :
Galet tendeur de courroie
On donne dessin de l’articulation du tendeur de
courroie (D = 45mm ; d = 36mm)
▷ Compléter le guidage en rotation par deux
coussinets à collerette, une rondelle et un anneau
élastique
▷ Indiquer les ajustements nécessaires au montage
Porte à faux
On donne le dessin d’une articulation en porte à
faux.
▷ Compléter le dessin de la liaison pivot entre la
bielle (2) et l’axe (3) par un coussinet à collerette
et un anneau élastique pour arbre. (Penser à la
lubrification des surfaces fonctionnelles).
▷ Indiquer les ajustements nécessaires au
montage.
Labo Génie Mécanique de Kélibia Page 126
III. GUIDAGE EN ROTATION PAR ROULEMENT :
1. Principe :
En remplaçant le frottement de glissement par du frottement de roulement, on diminue la puissance
absorbée. Le rendement du guidage en rotation est donc meilleur.
On place alors des éléments de roulement (billes, rouleaux ou aiguilles) entre deux bagues.
L’une (la bague intérieure) est ajustée sur l’arbre, l’autre (la bague extérieure) est ajustée
sur l’alésage.
2. Composition d’un roulement :
3. Type de charges supportées par les roulements :
Charge …………………… Charge …………………… Charge ……………………
……………… …………………… ………………
…………………………………………………………………….…
…………………………………………………………………….…
…………………………………………………………………….…
…………………………………………………………………….…
.….
.….
Labo Génie Mécanique de Kélibia Page 127
4. Principaux types de roulements :
Il existe deux grandes familles de roulements
Le roulement à billes :
Le roulement à billes est le plus utilisé dans le monde industriel parce qu’il a le meilleur
rapport performance/prix.
On en trouve dans les roues, les transmissions d’automobile, les machines agricoles, les
broches de machine-outil…
Le roulement à rouleaux :
Il existe par ailleurs différents types de rouleaux :
* Cylindrique : Le roulement à rouleaux cylindriques est utilisé dans les boîtes
de vitesses automobile, sur le palier 4 du moteur CFM56 de Boeing et Airbus,
dans le ferroviaire.
* Conique : Le roulement à rouleaux coniques a l'avantage de pouvoir
supporter des charges combinées*, tout en étant peu encombrant. Il est
utilisé notamment dans les roues d'automobiles, les bogies ferroviaires…
Type de roulement et
désignation
Représentation Aptitude à la charge Aptitude à
la vitesse
Remarques
UtilisationsNormale Simplifiée Radiale Axiale
Roulement à billes à
contact radial
Type BC
+++ ++ +++
Le plus utilisé.
Très économique.
Existe en plusieurs variantes
(Etanche, avec rainure et segment
d’arrêt)
Roulement à une ou
deux rangées de billes
à contact oblique
+++ +++ ++
Les roulements à une rangée de billes
doivent être montés par paire.
Avec une rangée de billes, la charge
ne peut être appliquée que d’un côté.
Roulement à deux
Rangées de billes à
rotule
+++ + ++
Il se monte par paire.
Il est utilisé lorsque l’alignement des
paires est difficile ou dans le cas
d’arbre de grande longueur pouvant
fléchir sensiblement.
Roulement à rouleaux
cylindriques
++++ 0 +++
Il supporte des grandes charges
radiales. Les bagues sont séparables,
facilitant le montage.
Roulement à rouleaux
coniques
++++ +++ ++
Il se monte par paire et en opposition.
Les bagues sont séparables, facilitant
le montage.
Légende : ++++ Très élevé +++ Elevé ++ Modéré + Passable 0 Nul
Labo Génie Mécanique de Kélibia Page 128
5. Règles de montage des roulements :
Les roulements sont en général montés par paire. Les bagues intérieures et extérieures doivent être
convenablement ajustées sur l’arbre et dans leurs logements.
Ajustement des bagues avec l’arbre et l’alésage :
□ La bague TOURNANTE (par rapport à la direction de la charge) doit être montée SERREE sur sa
portée, sinon il y aurait « laminage ».
□ La bague FIXE (par rapport à la direction de la charge) doit être montée avec JEU (coulissante) sur sa
portée.
Montage arbre tournant
▷ La bague intérieure est ………
……..………………………….……..…
▷ La bague extérieure est ………
……..………………………….……..…
Montage moyeu tournant
▷ La bague extérieure est ………
……..………………………….……..…
▷ La bague intérieure est ……….
……..………………………….………..
6. Condition des portées de roulements des roulements :
□ Seul le diamètre des portées de l’arbre ∅d et de l’alésage ∅D sont à coter.
7. Immobilisation des bagues tournantes :
Immobilisation axiale des bagues intérieures d’un roulement :
Principe ………………… ………………… ………………… ………………………
Immobilisation axiale des bagues extérieures d’un roulement :
Principe ………………… ………………… ………………… ………………………
Labo Génie Mécanique de Kélibia Page 129
8. Montage des roulements à billes a contact radial :
Pour une paire de roulement :
□ Les deux bagues tournantes doivent être immobilisées axialement des deux cotés. ( 4 obstacles)
□ L’ensemble mobile doit être positionné axialement par rapport à l’ensemble fixe par deux arrêts
latéraux. Ces deux arrêts seront placés sur la bague fixe, soit sur un seul roulement, soit partagés
sur deux roulements. (2 obstacles)
Cas 1 : arbre tournant
□ Ajustements :
* Les bagues intérieures ………………...……… sont
montées ……………………………
Tolérance de l’arbre : …………
* Les bagues extérieures………………...……… sont
montées ……………………………
Tolérance de l’alésage …………
□ Arrêts axiaux des bagues :
- Les bagues intérieures ………………...……… sont
arrêtées en translation par …… obstacles : …...…
- Les bagues extérieures ………………...……... sont
arrêtées en translation par …… obstacles : ……
Cas 2 : moyeu tournant
□ Ajustements :
* Les bagues intérieures ………………...……… sont
montées ……………………………
Tolérance de l’arbre : …………
* Les bagues extérieures………………...……… sont
montées ……………………………
Tolérance de l’alésage …………
□ Arrêts axiaux des bagues :
- Les bagues intérieures ………………...……… sont
arrêtées en translation par …… obstacles : …...…
- Les bagues extérieures ………………...……... sont
arrêtées en translation par …… obstacles : ……
Labo Génie Mécanique de Kélibia Page 130
IV. EXERCICES D’APPLICATION :
Application 1 : Guidage d’un arbre pignon
24R11 R2 35 6
4
7
1- De quel type de roulement s’agit-il ? ……………………………………………………………………………………
2- Est-ce que le montage est à arbre ou moyeu tournant ? …………………………………………………………
3- Quelles sont les bagues qui doivent être monté serrées (extérieures ou intérieures) ? …………….………
4- Identifier les obstacles arrêtant ces bagues axialement (A, B, C, D, E, F, G, H) : ……………….……………
5- Les bagues extérieures sont-elles montées avec jeu ou avec serrage ? ………………………….……………
6- Identifier les obstacles arrêtant ces bagues axialement (A, B, C, D, E, F, G, H) : ……………….……………
7- Coter sur le dessin les portées des roulements sur l’arbre (4) et sur les alésages de (1) et de (2).
Labo Génie Mécanique de Kélibia Page 131
Application 2 : Galet tendeur de courroie
Le galet (9) est guidé en rotation par rapport à l’axe (1) par deux roulements (5) et (8).
1- Colorier l’ensemble des pièces en rotation.
2- Est-ce qu’il s’agit d’un arbre tournant ou moyeu tournant ? …………………………………………...…………
3- Quelles sont les bagues montées serrées ? ………………………………………………………………...…………
4- Identifier les obstacles arrêtant ces bagues axialement (A, B, C, D, E, F, G, H) : ……………………………
5- Les bagues intérieures sont-elles montées avec jeu ou avec serrage ? ………………………………..………
6- Identifier les obstacles arrêtant ces bagues axialement (A, B, C, D, E, F, G, H) : ……………………………
7- Coter les portées des roulements sur l’arbre (1) et sur l’alésage (9).
10 1 Ecrou à encoches
9 1 Galet (moyeu)
8 1 Roulement type BC
7 1 Joint feutre
6 1 Couvercle
5 1 Roulement type BC
4 1 Bague entretoise
3 6 Vis CHc M6-15
2 1 Couvercle
1 1 Axe (arbre)
Rep Nb Designation
GALET TENDEUR
7 8 9 10
31 2 4 5 6
A B
E F
C D
G H
Labo Génie Mécanique de Kélibia Page 132
Application 3 :
1- Montage des roulements :
a- Compléter le montage de ces roulements.
b- Indiquer les tolérances des portées des roulements
c- Compléter le dessin du couvercle (08) et assurer sa fixation sur le boîtier (04). (Ne représenter qu’une
seule vis)
2- Compléter la nomenclature des éléments ajoutés.
Joint
01
02
08
0503 04 0706
8 1 ………………………...………
7 4 ………………………...………
6 1 ………………………...………
5 1 ………………………...………
4 2 Support
3 1 Pignon
2 1 Roulement type …...…………
1 1 Couvercle
Rep Nb Designation
Labo Génie Mécanique de Kélibia Page 133
Application 4 :
L’arbre pignon (3) est guidé en rotation par deux roulements à billes de type BC (R1, R2).
1- Compléter le dessin de montage des roulements.
2- Assurer l’encastrement de la roue dentée (2) sur l’arbre (3).
3- Indiquer les ajustements nécessaires au montage des roulements.
N.B: Utiliser les composants standards fournis à la page suivante pour réaliser l’encastrement de la roue
dentée.
k
j
a
b
d
17 à 22inc
22 à 30
j
d-4
d-3,5
a
6
8
b
6
7
30 à 38 10 8 d-5
12 à 17inc d-35 5
Rondelles plates
N
C
9
7 1,2
1,5
2
2,5
2,5
Série
M L LL U
14 18 24
18 22 30
6,25
8,25
22 27 36 10,25
C
d
Z
6
8
10
12
16
20
30 36 45 14,5014 27
12 24 27 32 40 12,50
d
A
B
A B
Usin Brut
11
14
16
d
k b1=dl
l-xx
c
d
10
12
6
8
c
10
13
16
18
k
5
6
8
10
longueurs l x
10-12-16-18 l
12-16-18-20
16-18-20-25
18-20-25-30
l
l
l
Vis à tête cylindrique CHc
Clavette parallèle
Labo Génie Mécanique de Kélibia Page 134
Application 5 : Tambour de tapis roulant
Le tambour (1) actionné en rotation par le pignon (3) est guidé en rotation par rapport à l'arbre (4) par deux
roulements à billes de type BC (R1, R2).
On demande de compléter
□ L’encastrement du pignon (3) sur le plateau (2)
□ L’encastrement du plateau (2) sur le tambour (1) par 8 vis CHc 6-14 (représenter une seule vis)
□ Le montage des roulements R1 et R2.
□ Les ajustements des portées des roulements et du joint à lèvre.
V. PROTECTION DES ROULEMENTS :
1. Lubrification des roulements :
La lubrification des roulements a pour buts principaux :
- diminuer les frottements
- réduire l’usure
- éviter l’échauffement
- protéger contre la corrosion
Lubrification à la graisse :
La lubrification à la graisse est économique et relativement simple, mais
elle n’est pas indiquée pour les grandes fréquences de rotation.
En plus,
Lubrification à l’huile :
L’huile réalise une
excellente lubrification pour tous les types de roulements. On
utlisie des huiles minérales sans acide ni particule abrasive.
La lubrification peut être réalisée par bain ou par projection.
Ce procédé permet des vitesses plus élevées.
1. Etanchéité des roulements :
Labo Génie Mécanique de Kélibia Page 135
Une étanchéité est nécessaire pour retenir le lubrifiant dans le volume occupé par les roulements et pour
les protéger des agressions extérieures (eau, boue, poussière…)
Elle peut être assurée par : couvercles, joints d’étanchéité, succession de passages étroits remplies de
graisse (labyrinthe, chicanes,…).
Les roulements sont néanmoins souvent équipés de flasques permettant d'éviter d'avoir à effectuer
l'étanchéité. Pour un roulement de type classique, l'étanchéité est réalisée par des joints à lèvres.
Joint à lèvres :
Nommé aussi Bague d'étanchéité Rotative (joint spi). On peut l’utiliser lorsque la vitesse de rotation est
importante
Représentation générale :
Dans tous les cas, le contour exact du joint est représenté par un rectangle.
La croix centrale peut être complétée par une flèche indiquant l’étanchéité principale
assurée.
Représentation particulière :
Joint d’étanchéité à lèvre à
frottement radial
Joint d’étanchéité à lèvre à frottement
radial + lèvre anti-poussière
Joint d’étanchéité à lèvre à
frottement radial (V-Ring)
Symbole Rep. réelle Symbole Rep. réelle Symbole Rep. réelle
Tôle pliée et roulée
Ressort pour plaquer la lèvre
Un profil en élastomère
Le profil comporte parfois une lèvre secondaire
……………………..……..
……………………………
……………………..……..
……………………………

Cahier Meca 3 ST Part 2/2

  • 1.
    Nom : ……………………..… Prenom: ………………...…. Classe : ………………...……. A.S : … 2019 … / … 2020…
  • 2.
    TOLERANCES GEOMETRIQUES I. INTRODUCTION: Ilexiste trois grands types de tolérances géométriques : □ Tolérances de forme : Eléments géométriques de base s’appliquant à l’élément lui-même (ligne ou surface) □ Tolérances d’orientation : Eléments associant deux éléments les uns par rapport aux autres. □ Tolérances de position : Eléments permettant de définir une zone de tolérance dans une position II. INDICATION D’UN ELEMENT : Surfaces / lignes Axe de la pièce Grand cylindre Axe du grand / petit cylindre Plan médian de la pièce III. TOLERANCES GEOMETRIQUES : TOLERANCES DE FORME TOLERANCES D’ORIENTATION TOLERANCES DE POSITION SYMBOLE EXEMPLE SYMBOLE EXEMPLE SYMBOLE EXEMPLE Planéité Parallélisme Coaxialité Rectitude Perpendicularité Symétrie Circularité Inclinaison Localisation Cylindricité
  • 3.
    Labo Génie Mécaniquede Kélibia Page 71 10 COTATION FONCTIONNELLE I. MISE EN SITUATION : Un système mécanique est réalisé par un ensemble de pièces mises en relation (en contact) les unes avec les autres. Or, pour que ce système remplisse les fonctions pour lesquelles il a été créé, il faut que certaines conditions fonctionnelles soient assurées (par exemple : jeu, serrage, réserve de filetage, dépassement ...). La cotation fonctionnelle permet la recherche des différentes cotes à respecter pour le bon fonctionnement d’un mécanisme. Les cotes obtenues par la cotation fonctionnelle sont appelées cotes fonctionnelles. II. CHAÎNE DE COTES : Une chaîne de cotes est un ensemble de cotes, disposés bout à bout, nécessaires et suffisantes au respect de la cote condition. ■ Cote condition Une cote condition est une cote tolérancée qui exprime une exigence liée à l'assemblage, ou au fonctionnement du mécanisme, représentée sur le dessin par un vecteur à double trait orienté : □ Horizontalement : de gauche à droite ⇒ □ Verticalement : du bas en haut ⇑ Remarques : * Dans le cas d’une cote condition positive, on parle de jeu. * Dans le cas d’une cote condition négative, on parle de serrage. ■ Surfaces terminales: Surfaces d’un ensemble de plusieurs pièces entre lesquelles le jeu est compris. ■ Surfaces de liaison: Nommées aussi surfaces d’appui, ce sont les surfaces de contact d’un ensemble de plusieurs pièces à tenir en compte. ……………
  • 4.
    Labo Génie Mécaniquede Kélibia Page 72 III. PRESENTATION DU THEME D’ETUDE : Dans ce qui suit, notre étude portera sur le système : axe d’articulation. On demande de : □ Tracer la cote condition Ja □ Repérer les surfaces terminales. □ Repérer les surfaces de liaison. IV. ETABLISSEMENT D’UNE CHAINE DE COTES : 1. But: Tracer une chaîne de cotes, c’est trouver efficacement et sans ambiguïtés toutes les cotes des pièces influant sur la cote condition et les rassembler sous forme d'une chaîne de cotes (addition vectorielle de toutes les cotes fonctionnelles mises bout à bout et formant une chaîne fermée). 1 1 – bâti 2 – axe 3, 4 – coussinet 5 – rondelle 6, 7 – écrou 4 5 6 72 3 Ja … …….. …..…..…..…..
  • 5.
    Labo Génie Mécaniquede Kélibia Page 73 2. Règles à respecter: Pour la bonne réalisation d’une chaîne de cotes, plusieurs règles sont à respecter : □ La chaîne de cotes débute à l’origine du vecteur cote condition et se termine à son extrémité. □ Chaque cote de la chaîne commence et se termine sur la même pièce, le problème initial de la cotation fonctionnelle étant de coter les différentes pièces du mécanisme. □ Il ne peut y avoir qu’une seule cote par pièce dans une même chaîne de cotes. La chaîne de cotes doit être la plus courte possible afin de faire intervenir le moins de cotes possibles. Si deux maillons d'une chaîne de cote appartiennent à la même pièce, c'est qu'il existe une chaîne encore plus courte ! □ Le passage d’une cote à la suivante se fait par la surface d’appui entre les deux pièces. VI. CALCUL D’UNE CHAINE DE COTES : ■ Ecriture vectorielle: STO"""""" = ∑ UT VTOW XT VAOVT YT AVT ZA? V>A??TYYT ■ Ecriture algébrique: STO ∑ AVT (+ê+T T? ) ∑ AVT ( T? A?VWM>WT) STO +M8 ∑ AVT +M8 (+ê+T T? ) ∑ AVT +>? ( T? A?VWM>WT) STO +>? ∑ AVT +>? (+ê+T T? ) ∑ AVT +M8 ( T? A?VWM>WT) ■ Intervalle de tolérance: P . STO = ∑ P VAOVT YT AVT ZA? V>A??TYYT
  • 6.
    Labo Génie Mécaniquede Kélibia Page 74 □ Sachant que : S = 2±=._ ; M = 45 c=. = ; M = M; = 5±=. ; M_ = 3±=. ; MF = Md = 12,2±=. Donner l’utilité de la cote condition Ja …………………………..………………………………...………………………………..………………………………………… Ecrire les équations relatives à la condition Ja …………………………..………………………………...………………………………..………………………………………… …………………………..………………………………...………………………………..………………………………………… …………………………..………………………………...………………………………..………………………………………… Calculer la cote nominale et les limites à donner à la cote a2 relative à la condition Ja …………………………..………………………………...………………………………..………………………………………… …………………………..………………………………...………………………………..………………………………………… …………………………..………………………………...………………………………..………………………………………… …………………………..………………………………...………………………………..………………………………………… …………………………..………………………………...………………………………..………………………………………… …………………………..………………………………...………………………………..………………………………………… …………………………..………………………………...………………………………..………………………………………… a2 = ……………………… Vérifier le résultat obtenu : …………………………..………………………………...………………………………..………………………………………… …………………………..………………………………...………………………………..………………………………………… …………………………..………………………………...………………………………..…………………………………………
  • 7.
    Labo Génie Mécaniquede Kélibia Page 75 VII. EXERCICES D’APPLICATION : * Système d’articulation : On donne le dessin d’ensemble partiel d’un système d’articulation : Tracer les chaines de cotes relatives aux conditions Ja , Jb , Jc et Jd Reporter les cotes fonctionnelles obtenues sur les dessins des pièces séparées : 1 32 4 5 6 Jc Ja Jb Jd
  • 8.
    Labo Génie Mécaniquede Kélibia Page 76 Donner l’utilité conditions Ja , Jb , Jc et Jd Ja …………………………….……..…..…………………………………………………………………… Jb ……………………….…………..…..…………………………………………………………………… Jc ………………………………………..…………………………………………………………………… Jc ………………………………………..…………………………………………………………………… Sachant que : Se = 0,5 +0.1 −0.3 ; N = 20±=. ; N = 65 = g=. Ecrire les équations relatives à la condition Jb …………………………..………………………………...………………………………..………………………………………… …………………………..………………………………...………………………………..………………………………………… …………………………..………………………………...………………………………..………………………………………… Calculer la cote nominale et les limites à donner à la cote b4 relative à la condition Jb …………………………..………………………………...………………………………..………………………………………… …………………………..………………………………...………………………………..………………………………………… …………………………..………………………………...………………………………..………………………………………… ……………………..………………………………...………………………………..……………………………………………… ……………………..………………………………...………………………………..……………………………………………… …………………………..…………………………...………………………………..……………………………………………… b4 = ……………………… Vérifier le résultat obtenu : …………………………..………………………………...………………………………..………………………………………… …………………………..………………………………...………………………………..………………………………………… …………………………..………………………………...………………………………..…………………………………………
  • 9.
    Labo Génie Mécaniquede Kélibia Page 77 * Butée de serrage : Justifier la présence de la condition Ja Ja ………………………………………………………………………………………………………………………… Compléter la chaîne de cote installant la condition Ja Sachant que : M = 8±=. ; M = 10±=. ; M ; = 22 c=. g=. Calculer la condition Ja : …………………………..………………………………...…………..……………………………………………………………… ……….……..………………………………...………………………………..……………………………………………………… ………………………..……………………………………...………………………………………………………..……………… ……………………...………………………………..……………………………………………………………………………… Ja = ……………………… Vérifier le résultat obtenu : …………………………..………………………………...………………………………..………………………………………… …………………………..………………………………...………………………………..………………………………………… …………………………..………………………………...………………………………..…………………………………………
  • 10.
    Labo Génie Mécaniquede Kélibia Page 78 11 FLEXION PLANE SIMPLE I. PRESENTATION DU THEME D’ETUDE : 8 1 Ecrou en T M10 7 1 Table machine 6 1 Cale étagée 5 1 Rondelle d’appui M10 4 1 Goujon M10 3 1 Ecrou hexagonal M10 2 1 Bride 1 1 Pièce REP QTT DESIGNATION MATIERE OBSERVATIONS Echelle ………
  • 11.
    Labo Génie Mécaniquede Kélibia Page 79 1. Description : Pour serrer une pièce de grandes dimensions, que l’étau ne peut recevoir, sur la table d’une machine outils (Perceuse, fraiseuse. . .) on utilise des brides. En serrant l’écrou (3) on développe un effort capable d’immobiliser la pièce (1) en position. L’utilisation de la cale étagée (6) permet un serrage pour différentes hauteurs. II. ETUDE STATIQUE : 1. Hypothèses : La bride est assimilée à une poutre - La section est rectangulaire - la ligne moyenne formée par la droite passante par le centre G de la section droite rectangulaire ; - Le poids de la bride (2) est négligé 2. Modélisation : a – Placer les actions appliquées sur la bride (2) On donne : L’action de serrage est de 300N b – Calculer les actions appliquées sur la bride (2) ……………………………………………………..………………………………….……………………………...…… ………………………………………………...…………………..…………………….……………………………….... ……………………………………………………..………………………………….……………………………...…… ………………………………………………...…………………..…………………….……………………………….... ……………………………………………………..………………………………….……………………………...…… ………………………………………………...…………………..…………………….……………………………….... c – Donner le type de sollicitation : ……………………………………………………………...…………………… A B C
  • 12.
    Labo Génie Mécaniquede Kélibia Page 80 III. FLEXION PLANE SIMPLE : Une poutre est sollicitée à la flexion plane simple lorsqu’elle est soumise à l’action de plusieurs forces parallèles entre eux et perpendiculaires à la ligne moyenne. 1. Diagramme des efforts tranchants : jk C’est la répartition des actions perpendiculaires à la ligne moyenne sur toute la longueur de la poutre. ……………………………………………………..………………………………….……………………………...…… ………………………………………………...……………………………..………….……………………………….... Effort tranchant : Zone (….) ..... ≤ 8 ≤ ..... = ……………………………………………………..……………………..………………………...…… Zone (….) ..... ≤ 8 ≤ ..... = ……………………………………………………..……………………..………………………...…… m = …………...……...... (5) 8 Echelle : 10mm …… N
  • 13.
    Labo Génie Mécaniquede Kélibia Page 81 2. Diagramme des moments fléchissants : .no C’est la répartition des moments autour de l’axe (p, B) sur toute la longueur de la poutre. ……………………………………………………..………………………………….……………………………...…… ………………………………………………...……………………………..………….……………………………….... Moment fléchissant : Zone (….) ..... ≤ 8 ≤ ..... Z = ……………………………………………………..……………………..………………………...…… ……………………………………………………..……………………..………………………...…… ……………………………………………………..…………………………..………………………...…… Pour 8 = ...... Z = …………………………………………… Pour 8 = ...... Z = …………………………………………… Zone (….) ..... ≤ 8 ≤ ..... Z = ……………………………………………………..……………………..………………………...…… ……………………………………………………..……………………..………………………...…… ……………………………………………………..…………………………..………………………...…… Pour 8 = ...... Z = …………………………………………… Pour 8 = ...... Z = …………………………………………… Z m = …………...……...... (5) 8 Echelle : 10mm …… Nm
  • 14.
    Labo Génie Mécaniquede Kélibia Page 82 3. Contrainte normale maximale : qrs( tm = Z m Pu v avec □ tm : contrainte normale maximale (en 5/++ ) □ Z m : moment fléchissant maximal (en 5. ++) □ Pu : moment quadratique (en ++; ) □ v : désigne la valeur de 9 la plus élignée (en ++) □ wxy z : module de flexion (en ++ ) 4. Contrainte tangentielle : {r|k }m~ m • avec □ }m~ : contrainte tangentielle moyenne (en 5/++ ) □ m : effort tranchant maximal (en 5) □ • : section de la poutre (en ++ ) 5. Condition de résistance : Pour qu’une poutre, sollicitée à la flexion plane simple, puisse résister en toute sécurité ; il faut que : tm ≤ € où € = • ‚ avec □ : résistance élastique d’extension du matériau (en 5/++ ou HM) □ : résistance pratique à l’extension du matériau (en 5/++ ou HM) □ : coefficient de sécurité (sans unité) 6. Moment quadratique de quelques surfaces usuelles : Pu = Nℎ 12 Pu = 6„ − Nℎ 12 Pu = …†; 64 Pu = …(†; − X; ) 64 v = ℎ 2 v = „ 2 v = † 2 v = † 2
  • 15.
    Labo Génie Mécaniquede Kélibia Page 83 Calculer le moment quadratique d’une poutre de section carré . ……………………………………………………..……………………… ……………………………………………………..……………………… ……………………………………………………..……………………… IV. EXERCICES D’APPLICATION : Exercice 1: Une poutre de section rectangulaire pleine de largeur b et de hauteur h est modélisée par la figure ci- dessous : On donne : 3 ‡3 450 5, 3 ˆ3 300 5 1. Calculer les réactions d’appuis 3 "#3 et 3 " ‰3 aux points A et C ………………………………………………………………………………………..………………………..……………………… ………………………………………………………………………………………..………………………..……………………… ………………………………………………………………………………………..………………………..……………………… ………………………………………………………………………………………..………………………..……………………… ………………………………………………………………………………………..………………………..……………………… ………………………………………………………………………………………..………………………..……………………… ………………………………………………………………………………………..………………………..……………………… ………………………………………………………………………………………..………………………..……………………… A B FB C D FD Y x 15 mm 30 mm 15 mm + z x b h
  • 16.
    Labo Génie Mécaniquede Kélibia Page 84 2. Tracer le diagramme des efforts tranchants et déduire la valeur de ‖j‹rs(‖ ………………………………..………………………………… …………………………………..……………………………… ………………………………..………………………………… …………………………………..……………………………… ………………………………..………………………………… ………………………………..………………………………… ………………………………..………………………………… ………………………………..………………………………… 3. Tracer le diagramme des moments fléchissant et déduire la valeur de ‖.&Œrs(‖ ………………………………..………………………………… …………………………………..……………………………… ………………………………..………………………………… …………………………………..……………………………… ………………………………..………………………………… ………………………………..………………………………… ………………………………..………………………………… ………………………………..………………………………… ………………………………..………………………………… …………………………………..……………………………… ………………………………..………………………………… 4. L’arbre est réalisé d’un acier de limite élastique •' = DŽ• •/rrC , de largeur b = ‘’rr et de hauteur h= ‘Crr On adopte un coefficient de sécurité “ = ” a. Calculer la valeur de la contrainte tangentielle moyenne {r|k ………………………………………………………………………………………..………………………..……………………… ………………………………………………………………………………………..………………………..……………………… Ty (N) x (mm) Ech : …… mm ---> …… N ‖ •m ‖ = ………………… MFz (Nm) x (mm) ‖ –m ‖ = ………………… Ech : …… mm ---> …… Nm
  • 17.
    Labo Génie Mécaniquede Kélibia Page 85 b. Calculer la valeur de la contrainte normale qrs( dans la section la plus sollicitée de la poutre ………………………………………………………………………………………..………………………..……………………… ………………………………………………………………………………………..………………………..……………………… ………………………………………………………………………………………..………………………..……………………… ………………………………………………………………………………………..………………………..……………………… ………………………………………………………………………………………..………………………..……………………… ………………………………………………………………………………………..………………………..……………………… c. Tracer le diagramme de répartition des contraintes normales dans la section la plus sollicitée. Ech : (hauteur) …… mm ---> …… mm (contraintre) …… mm ---> …… Nm d. Calculer la valeur de la résistance pratique •— de la poutre ………………………………………………………………………………………..………………………..……………………… e. Vérifier la résistance de la poutre ………………………………………………………………………………………..………………………..……………………… ………………………………………………………………………………………..………………………..……………………… 5. On désire utiliser une poutre de section circulaire de diamètre d fabriquée du même matériau. Chercher le diamètre minimal de la poutre 2r˜™ à partir duquel la poutre peut résister aux efforts appliqués ………………………………………………………………………………………..………………………..……………………… ………………………………………………………………………………………..………………………..……………………… ………………………………………………………………………………………..………………………..……………………… ………………………………………………………………………………………..………………………..……………………… ………………………………………………………………………………………..………………………..……………………… ………………………………………………………………………………………..………………………..……………………… ………………………………………………………………………………………..………………………..……………………… x t
  • 18.
    Labo Génie Mécaniquede Kélibia Page 86 12 DESSIN DE DEFINITION I. MISE EN SITUATION : Le dessin de définition représente une pièce ou une partie d'objet projeté sur un plan avec tous ses détails comme les dimensions en cotations normalisées et les usinages. On l'appelle également plan de détails. Il doit être conforme aux critères suivants Le dessin de définition détermine complètement et sans ambiguïté les exigences fonctionnelles auxquelles doit satisfaire le produit dans l’état de finition prescrit. Il est destiné à faire loi lors du contrôle de réception du produit. Un dessin de définition doit être coté fonctionnellement. La cote indiquée correspond à la dimension de la pièce finie, y compris le revêtement de protection, le traitement de surface, etc. Les dessins de définition servent souvent à établir des contrats entre concepteurs et réalisateurs car ils représentent le cahier des charges. En d’autres termes, le dessin de définition décrit, pour chacune des pièces du mécanisme, les formes, les dimensions et les spécifications qui lui permettent de remplir ses fonctions. II. ETAPES DE REALISATION D’UN DESSIN DE DEFINITION : Lire attentivement le dessin d’ensemble et relever les dimensions extérieures. Choisir les vues principales et étudier la mise en page. Exécuter l’esquisse de tout le dessin Reporter les cotes fonctionnelles et inscrire les conditions géométriques et les rugosités pour les surfaces fonctionnelles Faire la mise au net. L’utilisation de l’outil informatique (CAO) au cours de toutes les étapes est recommandée.
  • 19.
    Labo Génie Mécaniquede Kélibia Page 87 III. DESSIN DE DEFINITION : Echelle 1 :1 On demande de dessiner cette pièce à l’échelle donnée en : □ vue de face. □ vue de droite. □ vue de dessus. Donner les noms des trois formes : □ A : ………………………………..……….. □ B : ………………………………..……….. □ C : ………………………………..………..
  • 20.
    Labo Génie Mécaniquede Kélibia Page 88 IV. LA COUPE SIMPLE : Une coupe ou vue en coupe est une représentation permettant une meilleure définition et une compréhension plus aisée des formes intérieures d’un ou plusieurs composants. Les surfaces coupées seront représentées par des hachures (traits fins) dont la forme dépend de la matière la pièce Métaux Ferreux (acier, fonte) Matières plastiques Cuivre Aluminium Cas particuliers: Les pièces de révolution pleines (cylindriques ou sphériques telles que axes, arbres, billes….) ne se coupent pas
  • 21.
    Labo Génie Mécaniquede Kélibia Page 89 Echelle 1 :1 On donne la vue de face, la vue de droite et la vue de dessus incomplètes d’un étrier. On demande de terminer : □ La vue de face. □ La vue de droite en coupe A-A □ La vue de dessus. Désigner le plan de coupe et la vue en coupe.
  • 22.
    Labo Génie Mécaniquede Kélibia Page 90 Exercice 1: Pour chaque exercice, tracer la vue coupée manquante. Utiliser le plan de coupe indiqué. Coupes locales : II arrive fréquemment que l'on ait besoin de définir uniquement un seul détail (un trou, une forme particulière etc.) du contour intérieur. Il est alors avantageux d'utiliser une coupe locale plutôt qu'une coupe complète amenant trop de tracés inutiles. L'indication du plan de coupe est inutile dans ce cas. Un trait fin ondulé ou en zigzags sert de limite aux hachures. V. LES SECTIONS : Les sections permettent d’améliorer la clarté et la lisibilité du dessin et d’éviter les vues surchargées tout en isolant les formes qu’on désire préciser. Principe : Dans une coupe, normalement, toutes les parties visibles au-delà (en arrière) du plan de coupe sont dessinées. Dans une section, seule la partie coupée est dessinée (là où la matière est réellement coupée ou sciée).
  • 23.
    Labo Génie Mécaniquede Kélibia Page 91 Les sections sont définies de la même manière que les coupes : plan de coupe, flèches, etc. Sections sorties : Elles sont dessinées, le plus souvent, au droit du plan de coupe si la place le permet. L'inscription du plan de coupe peut être omise.
  • 24.
    Labo Génie Mécaniquede Kélibia Page 92 Sections rabattues : Ces sections sont dessinées en traits continus fins (pas de traits forts) directement sur la vue usuelle (en superposition). Pour plus de clarté il est parfois préférable de gommer ou d'éliminer les formes de l'objet vues sous la section ; si ces formes sont nécessaires, préférer une section sortie. L'indication du plan de coupe est en général inutile. Exercice: Tracer la vue coupée manquante. Utiliser le plan de coupe indiqué.
  • 25.
    Labo Génie Mécaniquede Kélibia Page 93 Echelle 1 :1 Nota : Le trou taraudé débouchant M8 n’est effectué que dans la partie avant de la pièce. Effectuer : □ La sec>on sor>e A-A □ La sec>on raba?ue autour de l’axe vertical (b)
  • 26.
    Labo Génie Mécaniquede Kélibia Page 94 Exercice: D'après la pièce (1), exécuter la coupe A-A et la section A-A pour les pièces 2, 3 et 4. coupe A-A section A-A
  • 27.
    Labo Génie Mécaniquede Kélibia Page 95 13 GUIDAGE EN TRANSLATION I. MISE EN SITUATION : La solution constructive qui réalise une liaison glissière est appelée guidage en translation. Les termes courants associés sont nombreux : rail, guide, coulisseau, glissière, etc… Représentation normalisée en projection orthogonale Représentation spatiale Degrés de liberté x y z Tx = 1 Rx = 0 Ty = 0 Ry = 0 Tz = 0 Rz = 0 II. PRESENTATION DU THEME D’ETUDE : 1. Présentation du mécanisme : Le vé réglable se fixe sur une table d’une machine. Il permet de positionner l’axe d’une pièce cylindrique horizontalement, à une hauteur déterminée par rapport à la table de la machine. 2. Fonctionnement : On fait tourner la vis de manœuvre (2), la pièce guide (3) se translate verticalement pour déplacer le vé de positionnement (4) vers le haut ou vers le bas suivant le sens de rotation de la vis.
  • 28.
    Labo Génie Mécaniquede Kélibia Page 96 6 1 Ecrou hexagonal ISO 4032 M6-08 C 35 5 1 Vis sans tête à téton long ISO 4026 M6x15 4 2 Vé de positionnement C 30 3 1 Guide EN-JM 1050 2 2 Vis d’entraînement ……………. 1 1 Corps EN-JM 1050 REP QTT DESIGNATION MATIERE OBSERVATIONS Echelle 1 : 1 3. Liaisons mécaniques : Donner le nom et le symbole de chacune des liaisons suivantes. Liaison 2/1 4/1 2/3 3/4 Dessin Nom …………………….… …………………….… …………………….… …………………….… Symbole
  • 29.
    Labo Génie Mécaniquede Kélibia Page 97 4. Schéma cinématique : On donne les blocs A, B, C et D des pièces encastrées : A = {1, 5, 6} B = {2} C = {3} D = {4} On demande de compléter le schéma cinématique en plaçant dans les rectangles les symboles des liaisons mécaniques correspondantes. 5. Etude de la fonction technique « guidage en translation » : La liaison glissière entre le corps (1) et le vé (4) est réalisée à l’aide des surfaces de contact qui assurent le guidage en translation du vé. Plus généralement, dans une liaison glissière : □ Les surfaces de guidage sont …………..……..…............................... □ L’organe fixe s’appelle ………………………………............................. □ L’organe mobile s’appelle ………………………………......................... III. ACTIVITE TOUR PARALLELE : B D A C
  • 30.
    Labo Génie Mécaniquede Kélibia Page 98 1. Chariot longitudinal : Faire déplacer le chariot longitudinal Quel est son mouvement par rapport au banc du tour ? ……………………………………………………..…………………………..………………………...…… Quelle est la liaison entre les deux éléments soulignés ? ……………………………………………………..…………………………..………………………...…… Quelle est la forme des surfaces de frottement ? ……………………………………………………..…………………………..………………………...…… En cas d’usure des surfaces de frottement (surfaces fonctionnelles), comment le jeu sera rattrapé ? ……………………………………………………..…………………………..………………………...…… 2. Chariot porte outil : Faire déplacer le chariot porte outil Quel est son mouvement par rapport au chariot transversal ? ……………………………………………………..…………………………..………………………...…… Quelle est la laison entre les deux éléments soulignés ? ……………………………………………………..…………………………..………………………...…… Quelle est la forme des surfaces de frottement ? ……………………………………………………..…………………………..………………………...…… En cas d’usure des surfaces de frottement (surfaces fonctionnelles), comment le jeu sera rattrapé ? ……………………………………………………..…………………………..………………………...…… 3. Chariot transversal : Faire déplacer le chariot transversal Quel est son mouvement par rapport au chariot longitudinal ? ……………………………………………………..…………………………..………………………...…… Quelle est la laison entre les deux éléments soulignés ? ……………………………………………………..…………………………..………………………...…… Quelle est la forme des surfaces de frottement ? ……………………………………………………..…………………………..………………………...…… Remarquer l’existence d’une 3ème pièce intercalée entre les deux chariots ? Quelle est sont rôle ? ……………………………………………………..…………………………..………………………...…… Quel nom peut-on lui attribuer ? ……………………………………………………..…………………………..………………………...…… 4. Poupée mobile : Faire débloquer la manette et faire tourner le volant Quel est le mouvement du fourreau par rapport au corps de la poupée ? ……………………………………………………..…………………………..………………………...…… Quelle est la liaison entre les deux éléments soulignés ? ……………………………………………………..…………………………..………………………...…… Quelle est la forme des surfaces fonctionnelles ? ……………………………………………………..…………………………..………………………...…… Démonter le fourreau Donner le nom de l’usinage réalisé sur le fourreau ? ……………………………………………………..…………………………..………………………...…… Remarquer l’existence d’une pièce implantée dans l’alésage du corps de la poupée Donner le nom et le rôle de cette pièce. Nom : …………………………… Rôle : ………..………………………………….…………..…………
  • 31.
    Labo Génie Mécaniquede Kélibia Page 99 IV. GUIDAGE EN TRANSLATION PAR FROTTEMENT DE GLISSEMENT : 1. Guidage par section prismatique : Sans dispositif de réglage de jeu : Guidage prismatique Forme en Té Queue d’aronde Guidage par forme en U Sans jeu : Plan + Surfaces latérales réduites Plan + Vé Plan + Vé Ce guidage prismatique est utilisé sur les tables des machines-outils (exemple: trainard du tour). Le jeu sera éliminé par le poids propre de l’élément mobile (coulisseau). Avec dispositif de réglage de jeu : Le guidage par forme prismatique impose souvent un mécanisme de rattrapage de jeu, sinon le processus de fabrication doit être d’une grande précision si l’on désire un guidage précis. Le dispositif de réglage de jeu permet de : □ obtenir un jeu fonctionnel aussi réduit que possible sans imposer une fabrication d’excellente qualité pour l’obtention d’un ajustement précis. □ rattraper le jeu dû à l’usure au bout d’un certain temps de fonctionnement. Le principe de ce réglage consiste à rendre la position de l’une des surfaces de contact réglable. Réglages par cales à section constante Réglage par cale pentée Guidage par forme en U Vis de réglage Vis de réglage
  • 32.
    Labo Génie Mécaniquede Kélibia Page 100 Exercices d’application : Sur chaque exemple : - Repasser en couleur les surfaces fonctionnelles qui participent au guidage en translation de (2) sur (1). - Dans quel ordre faut-il manœuvrer les éléments pour effectuer le réglage du jeu ? ▷ Manœuvrer dans l’ordre : ▷ Quel est la fonction de l’écrou (6) : ………………………………………………………… ▷ Manœuvrer dans l’ordre : ▷ Peut-on régler le jeu supérieur autrement qu’en utilisant les clinquants (8) : …………………………………………………………… ▷ Manœuvrer dans l’ordre : ▷ Manœuvrer dans l’ordre :
  • 33.
    Labo Génie Mécaniquede Kélibia Page 101 Exercice : Le guidage en translation du coulisseau (1) par rapport à la glissière (2) est assuré par la forme en queue d’aronde. Le réglage du jeu fonctionnel est assuré par la cale (3) (Le réglage en position de la cale (3) est obtenu par pression de la vis sans tête à six pans creux à téton court (4) freinée par l’écrou (5) et le maintien en position est obtenu par la vis à tête cylindrique à six pans creux (6)). On demande de compléter le dessin ci-dessous par les composants représentés ci-contre. 2. Guidage par forme cylindrique : La forme des surfaces en contact permet une liaison pivot-glissant, pour réaliser une liaison glissière, il suffit de supprimer le mouvement de rotation par obstacle (clavette, vis, cannelures, méplat …) Clavetage libre Arbre cannelé Profil polygon Guidage par double tige
  • 34.
    Labo Génie Mécaniquede Kélibia Page 102 ERGOT ▷ Colorier les surfaces fonctionnelles de guidage. ▷ Sans l’ergot, la liaison 1/2 est : ………………………...………………………………… ▷ Quel est le rôle de l’ergot : …………………………..……………………………… VIS A TETON ▷ Colorier les surfaces fonctionnelles de guidage. ▷ Quel est le rôle du vis a têton : ………………………...………………………………… ▷ Donner l’expression de la course maximale : C = ……………………...……………………………… CLAVETTE ▷ Colorier les surfaces fonctionnelles de guidage. ▷ Quel est le rôle de la clavette : …………………………...…………..………………… VIS A TETON ▷ Colorier les surfaces fonctionnelles de guidage. ▷ Quel est le rôle du vis a têton : ………………………...…………………………………
  • 35.
    Labo Génie Mécaniquede Kélibia Page 103 Exercice d’application : Le guidage de l’arbre (1) est réalisé par centrage cylindrique et une vis sans tête fendue à téton long (3). Le freinage de cette vis est assuré par un écrou hexagonal (4) .Le rattrapage du jeu dû à l’usure est obtenu par serrage de la vis à tête fraisée à six pans creux (5). On demande de compléter le dessin ci-dessous par les composants représentés ci-contre. V. GUIDAGE EN TRANSLATION PAR ROULEMENT : Introduction: Pour réduire les résistances passives et faciliter les mouvements dans certains mécanismes, il est avantageux de remplacer le frottement de ……………………………………… par le ……………………………….…….…… Frottement de ………………..……… Frottement de ……………………… Il existe une grande variété d’éléments roulants standards permettant de réaliser une liaison. Le coût de ces éléments limite leur utilisation aux cas pour lesquels le frottement doit être réduit et les efforts sont importants. Ces éléments admettent des vitesses importantes, un bon rendement et une grande précision Galet sur rail Douille à billes Colonne à billes ☺
  • 36.
    Labo Génie Mécaniquede Kélibia Page 104 Cage à rouleaux croisés Cage à rouleaux parallèles Cage à billes Patin à rouleaux Cage à aiguilles Exemples de réalisation Exercices d’application : 2 1 3 4 5 35 2 7 1 4 6 Guidage sur cage à rouleaux croisés ▷ Dans quel ordre faut-il manœuvrer les éléments pour effectuer le réglage du jeu Guidage sur plaquette à aiguilles ▷ Dans quel ordre faut-il manœuvrer les éléments pour effectuer le réglage du jeu :
  • 37.
    Labo Génie Mécaniquede Kélibia Page 105 14 TRANSMISSION DE MOUVEMENT I. MISE EN SITUATION : Une transmission est un dispositif mécanique permettant de transmettre un mouvement d'une pièce à une autre. Cet élément de la chaine d'énergie a pour fonction l'adaptation du couple et de la vitesse entre l'organe moteur et l'organe entraîné. La transmission du mouvement est l'une des fonctions les plus courantes des éléments de la mécanique générale, c'est-à-dire des dispositifs mécaniques destinés à remplacer la main de l'homme. II. TRANSMISSION PAR POULIE ET COURROIE : 1. Présentation du système d’étude : Machine à coudre La poulie réceptrice est entraînée en rotation par l’intermédiaire d’une courroie. Cette courroie est entraînée par une petite poulie (poulie motrice) montée sur l’arbre du moteur électrique. 2. Fonction des poulies et courroies : Transmettre par ……........................ à l’aide d’un lien flexible « ……........................ » un mouvement de rotation continu entre deux arbres éloignés …………………………….…. …………………………….…. …………………………….…. ……………………
  • 38.
    Labo Génie Mécaniquede Kélibia Page 106 3. Différents types des courroies : Courroie ………………… Courroie ………………… Courroie ………………… Courroie ………………… 4. Etude cinématique de la transmission : Vitesse de rotation : N exprimée en …..….......... soit : □ 5 : vitesse de rotation de la poulie menante X : diamètre de la poulie menante □ 5 : vitesse de rotation de la poulie menée X : diamètre de la poulie menée Vitesse angulaire : ω exprimée en …..….......... : rayon de la poulie menante □ š : vitesse angulaire de la poulie menante : rayon de la poulie menée □ š : vitesse angulaire de la poulie menée Vitesse linéaire : › exprimée en …..….......... □ U : vitesse linéaire de la poulie menante □ U : vitesse linéaire de la poulie menée En négligeant le glissement entre les poulies et la courroie U = …………..……..….. U = …………..……..….. La courroie est considérée comme inextensible U = U ………………… ……………………… U"""" U U"""" d1 d2 ω1 ω2 O1 O2 Poulie ………………….…. (………………………) Poulie ………………….…. (………………………)
  • 39.
    Labo Génie Mécaniquede Kélibia Page 107 En tenant compte que : š = …………..……..….. š = …………..……..….. ………………………………..…………… …………………………………… Le rapport de transmission (W) est : œ = •—|•ž˜' r'™é' •—|•ž˜' r'™s™)' = 2—|•ž˜' r'™s™)' 2—|•ž˜' r'™é' •—|•ž˜' r'™s™)' •—|•ž˜' r'™é' 1er cas W < 1 …………………………………………………….…… 2eme cas W = 1 …………………………………………………….…… 3eme cas W > 1 …………………………………………………….…… Exercice d’application : Machine à coudre On donne : - poulie motrice de diamètre X = 20 ++ - poulie réceptrice de diamètre X = 80 ++ - vitesse de rotation du moteur U¢ = 100 VW/ +>? d'après la plaque signalétique du moteur. ▷ Calculer le rapport de transmission du moteur : ……………………………………………………….………… ▷ Calculer la vitesse de rotation de la poulie réceptrice (2) : ……………………………………………………….………… ……………………………………………………….………… 4. Etude dynamique de la transmission : Couple de transmission : £ exprimé en ………………………… £ = 3&"" 3 × • Au repos En mouvement = """ : Tension de pose de la courroie " : Tension du brin tendu de la courroie V : Tension du brin tendu de la courroie Au repos, les deux brins de la courroie sont soumis à deux tensions égales à = appelées tension de pose. La poulie motrice ne transmet pas de couple £ = ( = − =) × = 0 En marche, on a une tension sur le brin tendu et une tension V sur le brin mou tel que + V = 2 = Soit = − V la force d’entraînement de la poulie. La poulie motrice transmet un couple £ = ( − V) ×
  • 40.
    Labo Génie Mécaniquede Kélibia Page 108 Puissance transmissible : ¥ exprimé en ………………………… ¥ = £ ¤ ¦ □ E : Couple de transmission □ š : vitesse angulaire Rendement : § § ¥œ ¥r □ ¥œ : Puissance de l’arbre récepteur □ ¥r : Puissance de l’arbre moteur Exercice d’application : Machine à coudre - D’après la plaque signalétique du moteur de la machine à coudre : ¥r ‘C•¨ - Le rendement de la transmission par poulies et courroies est évalué à § •, ©Ž - poulie réceptrice de diamètre X 80 ++ - vitesse de rotation du moteur U¢ 100 VW/+>? d'après la plaque signalétique du moteur. ▷ Calculer le couple moteur de la machine à coudre : ……………………………………………………….…… ……………………………………………………….…… ▷ Calculer la puissance sur l’arbre récepteur : ……………………………………………………….…… ……………………………………………………….…… ▷ Calculer le couple sur la poulie réceptrice : ……………………………………………………….…… 5. Exercice : Perceuse sensitive Présentation La perceuse sensitive est une machine-outil servant à réaliser des opérations de perçage sur des pièces. Elle se compose essentiellement de : - un moteur électrique - un système de transmission de mouvement - une broche (portant l’outil) - un système de maintien de la pièce (étau). Caractéristiques de la perceuse : Moteur électrique Broche - Tension d’alimentation : 220V-50 Hz - Vitesse de rotation : 1430 tr/mn - Puissance : Pm = 250 W - Gamme des vitesses disponibles: 515 915 1 430 1950 2580 …. (en tr/min) - Diamètre maximal de perçage : ∅13 mm - Course du fourreau : 50 mm
  • 41.
    Labo Génie Mécaniquede Kélibia Page 109 Description du système de transmission de mouvement: Les deux poulies motrice et réceptrice sont à gorges multiples identiques et leur sens de montage sur l’axe du moteur et l’axe de la broche est inversé. Le réglage de la vitesse de rotation de la broche se fait en plaçant la courroie sur le gradin (étage) souhaité. On obtient ainsi quatre rapports de vitesse: œ‘, œC, œ” et œD Travail demandé: 1 - Indiquer le nom du processeur assurant la transmission du mouvement de rotation de l’arbre moteur à l’outil : 2 - On donne les diamètres des poulies étagées : ∅ = 160 ++ ∅C 140 ++ ∅ 120 ++ ∅; 100 ++ a - Calculer les 4 rapports de vitesses œ‘, œC, œ” et œD respectifs aux 4 étages. œ‘ = …………………………..…….……………………………………..………………………………………..…….……… œC = …………………………..…….……………………………………..………………………………………..…….……… œ” = ………………………………………………………………………..………………………………………..…….……… œD = ………………………………………………………………………..………………………………………..…….……… b - Calculer les 4 vitesses de rotation de la broche •‘ = …………………………..…….……………………………………..………………………………………..…….……… •C = …………………………..…….……………………………………..………………………………………..…….……… •” = …………………………..…….……………………………………..………………………………………..…….……… •D = …………………………..…….……………………………………..………………………………………..…….……… Transmettre la rotation de l’arbre moteur à l’outil en 4 vitesses FT11FT1 ……………………………… ……………………..……… Animer l’outil d’un mouvement de rotation
  • 42.
    Labo Génie Mécaniquede Kélibia Page 110 3 - On désire percer un trou de diamètre X = 10++ sur une pièce en aluminium avec une vitesse de coupe U« = ……… m/min a - Calculer la vitesse de rotation •n du foret. (Sachant que : •n ‘••• ¤ ›¬ - ¤2 ) …………………………………..…….……………………………………..………………………………………..…….……… …………………………………..…….……………………………………..………………………………………..…….……… …………………………………..…….……………………………………..………………………………………..…….……… b - Choisir la vitesse convenable parmi les vitesses inscrites sur la plaque signalétique de la perceuse …………………………………..…….……………………………………..………………………………………..…….……… …………………………………..…….……………………………………..………………………………………..…….……… III. TRANSMISSION PAR ROUES DE FRICTION : 1. Présentation du système d’étude : Dévidoir L’appareil représenté ci-dessous sert à enrouler ou dérouler un tuyau de jardin sur une bobine. 2. Principe de fonctionnement : Transmettre un mouvement de rotation continu par ……........................ entre deux arbres qui peuvent être : □ ……............................ □ ……............................
  • 43.
    Labo Génie Mécaniquede Kélibia Page 111 Les roues de friction sont utilisées essentiellement dans des transmissions à faible puissance. Les roues de friction. Afin de transmettre le mouvement de rotation, deux roues sont pressées l'une contre l'autre. C'est le frottement qui en assure la liaison, c'est pourquoi ce mécanisme ne tolère aucun corps gras Condition d’entraînement : □ Coefficient de frottement important entre les deux roues □ Forces pressante créant l’adhérence Exemlpes ……………….…………… Galet ………………… et plateau Galet ………………… et plateau 3. Etude cinématique de la transmission : AVANTAGES INCONVENIENTS □ Fonctionnement silencieux □ Réalisation simple et économique . □ Glissement entre les roues en cas de variation brusque du couple résistant □ Efforts importants sur les paliers d’où usure □ Transmission de faible puissance Poulie ………………….…. (………………………) Poulie ………………….…. (………………………)
  • 44.
    Labo Génie Mécaniquede Kélibia Page 112 Vitesse de rotation : N exprimée en …..….......... soit : □ 5 : vitesse de rotation de la roue menante X : diamètre de la roue menante □ 5 : vitesse de rotation de la roue menée X : diamètre de la roue menée Vitesse angulaire : ω exprimée en …..….......... : rayon de la roue menante □ š : vitesse angulaire de la roue menante : rayon de la roue menée □ š : vitesse angulaire de la roue menée Vitesse linéaire : › exprimée en …..….......... □ U : vitesse linéaire de la roue menante □ U : vitesse linéaire de la roue menée En négligeant le glissement entre les poulies et la courroie U = …………..……..….. U = …………..……..….. On admet que les deux roues roulent sans glisser l’une sur l’autre U = U ………………… ……………………… En tenant compte que : š = …………..……..….. š = …………..……..….. ………………………………..…………… …………………………………… Le rapport de transmission (W) est : œ = •œ|•' r'™é' •œ|•' r'™s™)' = 2œ|•' r'™s™)' 2œ|•' r'™é' •œ|•' r'™s™)' •œ|•' r'™é' * Le rapport de transmission n’est pas constant puisque le glissement est inévitable. 4. Etude dynamique de la transmission :
  • 45.
    Labo Génie Mécaniquede Kélibia Page 113 Couple de transmission : £ exprimé en ………………………… Pour un rayon donné, le couple à transmettre par le système roues de friction est proportionnel : □ au coefficient de frottement Z entre les roues □ à l’effort normal au contact des surfaces d’où le couple est égal à : £ = 3&"" 3 ¤ n ¤ • avec □ • : rayon de la roue (en mm) □ n : coefficient de frottement entre les roues (n )s™(®) □ 3&"" 3 : Norme de la force pressante (en N) Puissance transmissible : ¥ exprimé en ………………………… ¥ £ ¤ ¦ □ E : Couple de transmission □ š : vitesse angulaire Rendement : § § ¥œ ¥r □ ¥œ : Puissance de l’arbre récepteur □ ¥r : Puissance de l’arbre moteur IV. APPLICATION : VARIATEUR DE VITESSE 1. Mise en situation : Le mécanisme proposé est un variateur de vitesses à friction. Il est utilisé pour transmettre et modifier la vitesse de rotation entre deux arbres à axes perpendiculaire. Il est formé principalement par: - Un arbre d’entrée et un arbre de sortie. - Un galet réglable en position pour varier la vitesse. 6 - Un plateau lié à l’arbre de sortie. - Un ressort pour assurer l’adhérence entre le galet et le plateau 2. Nomenclature : 12 1 Ecrou hexagonal – M8 24 1 Joint à lèvres 11 1 Anneau élastique pour arbre 23 4 Vis à tête cylindrique 10 1 Flasque 22 1 Corps du variateur 09 4 Vis à tête fraisée plate – M4 21 1 Clavette parallèle 08 1 Galet 20 1 Coussinet cylindrique 07 1 Baladeur 19 1 Arbre de sortie 06 1 Roulement à billes 18 1 Butée à billes 05 1 Bague entretoise 17 1 Ressort 04 1 Roulement à billes 16 6 Vis à tête cylindrique 03 1 Anneau élastique 15 1 Plaque 02 1 Couvercle 14 1 Plateau 01 1 Arbre d’entrée 13 1 Rondelle d’appui Rep. Nb. Désignation Rep. Nb. Désignation
  • 46.
    Labo Génie Mécaniquede Kélibia Page 114 3. Dessin d’ensemble : 4. Principe de fonctionnement : La modification du rapport des vitesses s’obtient en modifiant le rapport des diamètres des circonférences de contact. m¯ ≤ l m 5°m¯ l 5° l 5°m 5. Travail demandé : a/ Compléter le schéma cinématique du variateur Coté moteur Coté récepteur
  • 47.
    Labo Génie Mécaniquede Kélibia Page 115 b/ Quelle est la fonction du ressort (17) ? : ……………………………………………………..…………………………..………………………...…… c/ Proposer des matériaux pour le galet (8) et le plateau (14) : ……………………………………………………..…………………………..………………………...…… ……………………………………………………..…………………………..………………………...…… d/ Relever sur les deux figures ci-dessous (à l’échelle 1:1), les rayons ± , ;m et ;m¯ ± = ………………… ;m = ………………… ;m¯ = ………………… e/ Sachant que l’arbre d’entrée (1) est accouplé à l’arbre d’un moteur électrique tournant à la vitesse 5m = 750 VW/+>?. Calculer les vitesses limites 5°m¯ et 5°m de l’arbre de sortie (19). ……………………………………………………..…………………………..………………………...…… ……………………………………………………..…………………………..………………………...…… ……………………………………………………..…………………………..………………………...…… ……………………………………………………..…………………………..………………………...…… 3-6 : Calculer la puissance sur le plateau (14) dans la position ou sa vitesse est minimale sachant que : L’effort exercé par le ressort (17) est || F || = 400 N Le coefficient de frottement galet / plateau est f = 0,3. ……………………………………………………..…………………………..………………………...…… ……………………………………………………..…………………………..………………………...…… ……………………………………………………..…………………………..………………………...……
  • 48.
    Labo Génie Mécaniquede Kélibia Page 116 V. TRANSMISSION PAR PIGNONS ET CHAINES : 1. Présentation du système d’étude : Bicyclette Les pédales, reliées au plateau denté (pignon menant) entraînent la roue arrière par l’intermédiaire d’une chaîne. 2. Fonction des poulies et courroies : Transmettre par ……........................ à l’aide d’un lien articulé « ……........................ » un mouvement de rotation continu entre une roue dentée menante et une roue dentée menée sans contact entre elles. 3. Différents types des chaînes et pignons : Chaîne ………………… Chaîne ………………… Chaîne ………………… 4. Etude cinématique de la transmission : ……………… …………… … pignon ……………….…. (………………………) pignon ……………….…. (………………………)
  • 49.
    Labo Génie Mécaniquede Kélibia Page 117 Soit : X³ : diamètre primitif du pignon menant X³ : diamètre primitif du pignon mené ´ : nombre de dents du pignon menant ´ : nombre de dents du pignon mené œ = •—˜µ™|™ r'™é •—˜µ™|™ r'™s™) = 2—˜µ™|™ r'™s™) 2—˜µ™|™ r'™é = Œ—˜µ™|™ r'™s™) Œ—˜µ™|™ r'™é Exercice d’application : Transmission de vélo On donne : - ´ (m ) = 52 dents - ´ (m é ) = 20 dents ▷ Exprimer et calculer le rapport de transmission ……………………………………………………….…… ……………………………………………………….…… ……………………………………………………….…… ▷ Calculer le diamètre primitif X³ du pignon (1) : …………………………………………………….………… ▷ Calculer la vitesse angulaire š du pignon (2 : …………………………………………………….………… …………………………………………………….………… ▷ Calculer la vitesse linéaire U de la chaîne : …………………………………………………….………… …………………………………………………….………… VI. APPLICATION : MECANISME DE POSE DE RUBAN ADHESIF 1. Présentation du système : La figure ci-dessous représente partiellement le sous-système «module de pose de ruban adhésif» utilisé dans une chaîne de fabrication de biscuits. Après l'encaissage des paquets de biscuit dans le carton et la fermeture de celui-ci (rabattement des volets supérieurs), ce dernier est entraîné par les quatre tapis roulants pour être définitivement fermé à l'aide d'un ruban adhésif. 2. Nomenclature : 11 1 Chaîne 22 1 Roue de chaîne 33 1 Carter du moteur 10 3 Vis à tête hexagonale 21 2 Bague entretoise 32 1 Arbre moteur 9 2 Roulement 20 1 Boitier 31 1 Pignon 8 1 Vis à tête fraisée 19 2 Roulement 30 1 Bague 7 1 Rondelle spéciale 18 8 Vis H 29 1 Pignon chaîne 6 2 Anneau élastique 17 2 Bague entretoise 28 1 Courroie 5 1 Boîtier 16 1 Arbre de sortie 27 1 Carter droit 4 1 Roue arbrée 15 2 Rouleau 26 1 Roue dentée 3 1 Courroie 14 1 Anneau élastique 25 2 Ecrou hexagonal 2 1 Carter gauche 13 1 Arbre intermédiaire 24 2 Rondelle plate 1 1 Carter supérieur 12 1 Roulement 23 1 Carter inférieur REP QTT DESIGNATION REP QTT DESIGNATION REP QTT DESIGNATION
  • 50.
    Labo Génie Mécaniquede Kélibia Page 118 Echelle 1 : 2
  • 51.
    Labo Génie Mécaniquede Kélibia Page 119 1. Compléter l’actigramme du niveau A-0 du module de pose de ruban adhésif. 2. En se référant au dossier technique, compléter le diagramme suivant en indiquant la fonction et/ou le processeur convenable. 3. Chercher les classes d’équivalence : A = { 1 , …………..…………………………………………………………………………………….…… B = { 32 , …………..…………………………………………………………………………………….…… C = { 26 , …………..…………………………………………………………………………………….…… D = { 4 , …………..…………………………………………………………………………………….…… E = { 15 , …………..…………………………………………………………………………………….…… ……………………..…… ………..……….. ……………..…… ……………..…… Module de pose de ruban adhésif Transmettrelemouvementderotationdel’arbremoteur(32)versl’aarbre(16) A-0 ……………………………………………………………… ……………………………………………………………… Deux écrous (25) Transmettre le mouvement de rotation de l’arbre moteur (32) à l’arbre intermédiaire (13) ……………………………… ……………………………… ………..…………..…… ……………………..…… ……………………..…… …………………………. ……………………………………………………………… ……………………………………………………………… Deux roulements (12) ………..……….. ………..…………..…… Transmettre le mouvement de rotation de la roue dentée (26) à la roue arbrée (4) ……………………………… ……………………………… ……………………………………………………………… ……………………………………………………………… Deux pignons (22) et (29) chaîne (11) ……………………………………………………………… ……………………………………………………………… Deux roulements (19) Guider en rotation la roue arbrée (4) par rapport au boitier (5) ……………………………… ……………………………… ……………………………………………………………… ……………………………………………………………… Trois vis (10)
  • 52.
    Labo Génie Mécaniquede Kélibia Page 120 4. Compléter le graphe des liaisons : ………………………………………………… ………………………………………………… ………………………………………………… ………………………………………………… ………………………………………………… ………………………………………………… 5. Compléter le schéma cinématique minimal : 6. On cherche à choisir un moteur adéquat On donne : d31 = 30 mm d26b = 30 mm Z29 = …… dents d26a = 60 mm d4 = …… mm Z22 = 36 dents … Moteur Bâti … ... … Rouleau C D A B E Moteur Poulies / Courroie (31 – 26a / 28) r1 ; η1=0,85 Rouleau N15=120 tr/min C15= 7 N.m Poulies / Courroie (26b – 4 / 3) r2 ; η2=0,85 Pignons / Chaîne (29 – 22 / 11) r3 ; η3=0,92
  • 53.
    Labo Génie Mécaniquede Kélibia Page 121 a/ Etude cinématique de la transmission [1] par poulies / courroie (31 – 26a) a.1/ Quel est le type de la courroie (28) ……………..………………………..………………………………….…………………………………. a.2/ Calculer le rapport de transmission r1 ……………..………………………..………………………………….…………………………………. b/ Etude cinématique de la transmission [2] par poulies / courroie (26b - 4) b.1/ Calculer le diamètre de la poulie (4) sachant que le rapport de transmission r2 = 1/4 ……………..………………………..………………………………….…………………………………. c/ Etude cinématique de la transmission [3] par pignonss / chaîne (29 - 22) c.1/ Quel est le type de la chaîne (11) …………..…………..……………..………………………………….…………………………………. c.2/ Calculer le rapport de transmission r3 sachant que le rapport global de la transmission est rg = 1/12 ……………..………………………..………………………………….…………………………………. c.3/ En déduire le nombre de dents Z29 du pignon (29) ……………..………………………..………………………………….…………………………………. d/ Calculer la vitesse de rotation du moteur Nm …………..…………..……………..………………………………….…………………………………. e/ Calculer le rapport global de la transmission ηg …………..…………..……………..………………………………….…………………………………. f/ En déduire la puissance du moteur Pm …………..…………..……………..………………………………….…………………………………. …………..…………..……………..………………………………….…………………………………. g/ Calculer la vitesse de translation du tapis roulant V15 sachant que R15 = 60mm …………..…………..……………..………………………………….…………………………………. …………..…………..……………..………………………………….…………………………………. …………..…………..……………..………………………………….…………………………………. …………..…………..……………..………………………………….………………………………….
  • 54.
    Labo Génie Mécaniquede Kélibia Page 122 15 GUIDAGE EN ROTATION I. MISE EN SITUATION : La solution constructive qui réalise une liaison pivot est appelée guidage en rotation. Le guidage en rotation est nécessaire dans de nombreux cas (moteurs, roues de véhicules, hélices d’avion ou de turbine…). On appelle arbre le contenu, logement ou alésage le contenant. Représentation normalisée en projection orthogonale Représentation spatiale Degrés de liberté x y z Tx = 0 Rx = 1 Ty = 0 Ry = 0 Tz = 0 Rz = 0 II. PRESENTATION DU THEME D’ETUDE : 1. Présentation du mécanisme : Le tendeur de courroie représenté ci-dessous permet le réglage de la tension d’une courroie avec augmentation des angles d’enroulement α1 et α2. 2. Fonctionnement : Le galet (4) tourne librement sur un axe (3) fixé sur un support (2). Celui- ci peut osciller autour d’un axe (7) et être bloqué par un goujon (6) après réglage de la tension de la courroie. L’angle d’oscillation maximum du support est de 30°.
  • 55.
    Labo Génie Mécaniquede Kélibia Page 123 6 1 Anneau Elastique 8 1 Rondelle 7 1 Axe 6 1 Goujon 5 1 Ecrou 4 1 Galet 3 1 Axe 2 1 Support 1 1 Bâti REP QTT DESIGNATION MATIERE OBSERVATIONS Echelle 1 : 1 2. Etude du guidage en rotation du galet : La liaison entre le galet (4) et l’axe (3) permet une rotation. □ C’est une liaison …………..……..….......................................................... □ Cette liaison réalise un ………………………………............................. Le guidage en rotation consiste à réaliser une liaison PIVOT entre un arbre et un alésage (moyeu). Le guidage en rotation en phase d’utilisation doit assurer les fonctions suivantes : Positionner l’arbre et le logement : notions de jeu et de précision de guidage ; Permettre un mouvement relatif (rotation) : notions de rendement et de vitesse de rotation ; Transmettre les efforts : dimensionnement des pièces et durée de vie du montage ;
  • 56.
    Labo Génie Mécaniquede Kélibia Page 124 III. GUIDAGE EN ROTATION PAR GLISSEMENT : 1. Guidage par contact direct : Cette solution est la plus simple, et la plus économique. Les surfaces directement en contact sont cependant soumises du frottement, ainsi cette solution ne peut pas être envisagée pour des vitesses élevées, ni même pour des pièces effectuant de nombreuses rotations. Il s’agira de prévoir un ajustement adapté sur le diamètre, ainsi qu’un jeu axial. La liaison pivot 2/1 est réalisée par contact direct. Pour assurer un bon guidage, il faut respecter deux conditions : □ Un jeu axial (ou latéral) J. □ Un jeu radial (ou diamétral), imposé par le choix d'un ajustement tournant. Exemple : ∅ ………………… Questions : Colorer les surfaces fonctionnelles de guidage en rotation de lavis (2). Indiquer sur le dessin l’ajustement 2/1. 2. Guidage par contact indirect : L'usure due au frottement est subie par une bague de frottement interposé entre le moyeu et l’arbre. Cette bague appelé …………………….……... est en matériau à faible coefficient de frottement, à bas prix et facile à remplacer. Montage porte à faux Montage en chape 63 2 Jeu (J) 4 5 ∅……. 1
  • 57.
    Labo Génie Mécaniquede Kélibia Page 125 Types de coussinets : Coussinet …………………………… Coussinet …………………………… Le coussinet peut être réalisé par : □ Bronze fritté BP25 □ Alliage ferreux FP15 □ Matière plastique (Nylon) Montage de coussinets : Afin de limiter les frottements, le coussinet doit être monté : □ serré sur l’alésage □ glissant sur l’arbre De cette façon la vitesse de glissement est la plus faible Exercices d’application : Galet tendeur de courroie On donne dessin de l’articulation du tendeur de courroie (D = 45mm ; d = 36mm) ▷ Compléter le guidage en rotation par deux coussinets à collerette, une rondelle et un anneau élastique ▷ Indiquer les ajustements nécessaires au montage Porte à faux On donne le dessin d’une articulation en porte à faux. ▷ Compléter le dessin de la liaison pivot entre la bielle (2) et l’axe (3) par un coussinet à collerette et un anneau élastique pour arbre. (Penser à la lubrification des surfaces fonctionnelles). ▷ Indiquer les ajustements nécessaires au montage.
  • 58.
    Labo Génie Mécaniquede Kélibia Page 126 III. GUIDAGE EN ROTATION PAR ROULEMENT : 1. Principe : En remplaçant le frottement de glissement par du frottement de roulement, on diminue la puissance absorbée. Le rendement du guidage en rotation est donc meilleur. On place alors des éléments de roulement (billes, rouleaux ou aiguilles) entre deux bagues. L’une (la bague intérieure) est ajustée sur l’arbre, l’autre (la bague extérieure) est ajustée sur l’alésage. 2. Composition d’un roulement : 3. Type de charges supportées par les roulements : Charge …………………… Charge …………………… Charge …………………… ……………… …………………… ……………… …………………………………………………………………….… …………………………………………………………………….… …………………………………………………………………….… …………………………………………………………………….… .…. .….
  • 59.
    Labo Génie Mécaniquede Kélibia Page 127 4. Principaux types de roulements : Il existe deux grandes familles de roulements Le roulement à billes : Le roulement à billes est le plus utilisé dans le monde industriel parce qu’il a le meilleur rapport performance/prix. On en trouve dans les roues, les transmissions d’automobile, les machines agricoles, les broches de machine-outil… Le roulement à rouleaux : Il existe par ailleurs différents types de rouleaux : * Cylindrique : Le roulement à rouleaux cylindriques est utilisé dans les boîtes de vitesses automobile, sur le palier 4 du moteur CFM56 de Boeing et Airbus, dans le ferroviaire. * Conique : Le roulement à rouleaux coniques a l'avantage de pouvoir supporter des charges combinées*, tout en étant peu encombrant. Il est utilisé notamment dans les roues d'automobiles, les bogies ferroviaires… Type de roulement et désignation Représentation Aptitude à la charge Aptitude à la vitesse Remarques UtilisationsNormale Simplifiée Radiale Axiale Roulement à billes à contact radial Type BC +++ ++ +++ Le plus utilisé. Très économique. Existe en plusieurs variantes (Etanche, avec rainure et segment d’arrêt) Roulement à une ou deux rangées de billes à contact oblique +++ +++ ++ Les roulements à une rangée de billes doivent être montés par paire. Avec une rangée de billes, la charge ne peut être appliquée que d’un côté. Roulement à deux Rangées de billes à rotule +++ + ++ Il se monte par paire. Il est utilisé lorsque l’alignement des paires est difficile ou dans le cas d’arbre de grande longueur pouvant fléchir sensiblement. Roulement à rouleaux cylindriques ++++ 0 +++ Il supporte des grandes charges radiales. Les bagues sont séparables, facilitant le montage. Roulement à rouleaux coniques ++++ +++ ++ Il se monte par paire et en opposition. Les bagues sont séparables, facilitant le montage. Légende : ++++ Très élevé +++ Elevé ++ Modéré + Passable 0 Nul
  • 60.
    Labo Génie Mécaniquede Kélibia Page 128 5. Règles de montage des roulements : Les roulements sont en général montés par paire. Les bagues intérieures et extérieures doivent être convenablement ajustées sur l’arbre et dans leurs logements. Ajustement des bagues avec l’arbre et l’alésage : □ La bague TOURNANTE (par rapport à la direction de la charge) doit être montée SERREE sur sa portée, sinon il y aurait « laminage ». □ La bague FIXE (par rapport à la direction de la charge) doit être montée avec JEU (coulissante) sur sa portée. Montage arbre tournant ▷ La bague intérieure est ……… ……..………………………….……..… ▷ La bague extérieure est ……… ……..………………………….……..… Montage moyeu tournant ▷ La bague extérieure est ……… ……..………………………….……..… ▷ La bague intérieure est ………. ……..………………………….……….. 6. Condition des portées de roulements des roulements : □ Seul le diamètre des portées de l’arbre ∅d et de l’alésage ∅D sont à coter. 7. Immobilisation des bagues tournantes : Immobilisation axiale des bagues intérieures d’un roulement : Principe ………………… ………………… ………………… ……………………… Immobilisation axiale des bagues extérieures d’un roulement : Principe ………………… ………………… ………………… ………………………
  • 61.
    Labo Génie Mécaniquede Kélibia Page 129 8. Montage des roulements à billes a contact radial : Pour une paire de roulement : □ Les deux bagues tournantes doivent être immobilisées axialement des deux cotés. ( 4 obstacles) □ L’ensemble mobile doit être positionné axialement par rapport à l’ensemble fixe par deux arrêts latéraux. Ces deux arrêts seront placés sur la bague fixe, soit sur un seul roulement, soit partagés sur deux roulements. (2 obstacles) Cas 1 : arbre tournant □ Ajustements : * Les bagues intérieures ………………...……… sont montées …………………………… Tolérance de l’arbre : ………… * Les bagues extérieures………………...……… sont montées …………………………… Tolérance de l’alésage ………… □ Arrêts axiaux des bagues : - Les bagues intérieures ………………...……… sont arrêtées en translation par …… obstacles : …...… - Les bagues extérieures ………………...……... sont arrêtées en translation par …… obstacles : …… Cas 2 : moyeu tournant □ Ajustements : * Les bagues intérieures ………………...……… sont montées …………………………… Tolérance de l’arbre : ………… * Les bagues extérieures………………...……… sont montées …………………………… Tolérance de l’alésage ………… □ Arrêts axiaux des bagues : - Les bagues intérieures ………………...……… sont arrêtées en translation par …… obstacles : …...… - Les bagues extérieures ………………...……... sont arrêtées en translation par …… obstacles : ……
  • 62.
    Labo Génie Mécaniquede Kélibia Page 130 IV. EXERCICES D’APPLICATION : Application 1 : Guidage d’un arbre pignon 24R11 R2 35 6 4 7 1- De quel type de roulement s’agit-il ? …………………………………………………………………………………… 2- Est-ce que le montage est à arbre ou moyeu tournant ? ………………………………………………………… 3- Quelles sont les bagues qui doivent être monté serrées (extérieures ou intérieures) ? …………….……… 4- Identifier les obstacles arrêtant ces bagues axialement (A, B, C, D, E, F, G, H) : ……………….…………… 5- Les bagues extérieures sont-elles montées avec jeu ou avec serrage ? ………………………….…………… 6- Identifier les obstacles arrêtant ces bagues axialement (A, B, C, D, E, F, G, H) : ……………….…………… 7- Coter sur le dessin les portées des roulements sur l’arbre (4) et sur les alésages de (1) et de (2).
  • 63.
    Labo Génie Mécaniquede Kélibia Page 131 Application 2 : Galet tendeur de courroie Le galet (9) est guidé en rotation par rapport à l’axe (1) par deux roulements (5) et (8). 1- Colorier l’ensemble des pièces en rotation. 2- Est-ce qu’il s’agit d’un arbre tournant ou moyeu tournant ? …………………………………………...………… 3- Quelles sont les bagues montées serrées ? ………………………………………………………………...………… 4- Identifier les obstacles arrêtant ces bagues axialement (A, B, C, D, E, F, G, H) : …………………………… 5- Les bagues intérieures sont-elles montées avec jeu ou avec serrage ? ………………………………..……… 6- Identifier les obstacles arrêtant ces bagues axialement (A, B, C, D, E, F, G, H) : …………………………… 7- Coter les portées des roulements sur l’arbre (1) et sur l’alésage (9). 10 1 Ecrou à encoches 9 1 Galet (moyeu) 8 1 Roulement type BC 7 1 Joint feutre 6 1 Couvercle 5 1 Roulement type BC 4 1 Bague entretoise 3 6 Vis CHc M6-15 2 1 Couvercle 1 1 Axe (arbre) Rep Nb Designation GALET TENDEUR 7 8 9 10 31 2 4 5 6 A B E F C D G H
  • 64.
    Labo Génie Mécaniquede Kélibia Page 132 Application 3 : 1- Montage des roulements : a- Compléter le montage de ces roulements. b- Indiquer les tolérances des portées des roulements c- Compléter le dessin du couvercle (08) et assurer sa fixation sur le boîtier (04). (Ne représenter qu’une seule vis) 2- Compléter la nomenclature des éléments ajoutés. Joint 01 02 08 0503 04 0706 8 1 ………………………...……… 7 4 ………………………...……… 6 1 ………………………...……… 5 1 ………………………...……… 4 2 Support 3 1 Pignon 2 1 Roulement type …...………… 1 1 Couvercle Rep Nb Designation
  • 65.
    Labo Génie Mécaniquede Kélibia Page 133 Application 4 : L’arbre pignon (3) est guidé en rotation par deux roulements à billes de type BC (R1, R2). 1- Compléter le dessin de montage des roulements. 2- Assurer l’encastrement de la roue dentée (2) sur l’arbre (3). 3- Indiquer les ajustements nécessaires au montage des roulements. N.B: Utiliser les composants standards fournis à la page suivante pour réaliser l’encastrement de la roue dentée. k j a b d 17 à 22inc 22 à 30 j d-4 d-3,5 a 6 8 b 6 7 30 à 38 10 8 d-5 12 à 17inc d-35 5 Rondelles plates N C 9 7 1,2 1,5 2 2,5 2,5 Série M L LL U 14 18 24 18 22 30 6,25 8,25 22 27 36 10,25 C d Z 6 8 10 12 16 20 30 36 45 14,5014 27 12 24 27 32 40 12,50 d A B A B Usin Brut 11 14 16 d k b1=dl l-xx c d 10 12 6 8 c 10 13 16 18 k 5 6 8 10 longueurs l x 10-12-16-18 l 12-16-18-20 16-18-20-25 18-20-25-30 l l l Vis à tête cylindrique CHc Clavette parallèle
  • 66.
    Labo Génie Mécaniquede Kélibia Page 134 Application 5 : Tambour de tapis roulant Le tambour (1) actionné en rotation par le pignon (3) est guidé en rotation par rapport à l'arbre (4) par deux roulements à billes de type BC (R1, R2). On demande de compléter □ L’encastrement du pignon (3) sur le plateau (2) □ L’encastrement du plateau (2) sur le tambour (1) par 8 vis CHc 6-14 (représenter une seule vis) □ Le montage des roulements R1 et R2. □ Les ajustements des portées des roulements et du joint à lèvre. V. PROTECTION DES ROULEMENTS : 1. Lubrification des roulements : La lubrification des roulements a pour buts principaux : - diminuer les frottements - réduire l’usure - éviter l’échauffement - protéger contre la corrosion Lubrification à la graisse : La lubrification à la graisse est économique et relativement simple, mais elle n’est pas indiquée pour les grandes fréquences de rotation. En plus, Lubrification à l’huile : L’huile réalise une excellente lubrification pour tous les types de roulements. On utlisie des huiles minérales sans acide ni particule abrasive. La lubrification peut être réalisée par bain ou par projection. Ce procédé permet des vitesses plus élevées. 1. Etanchéité des roulements :
  • 67.
    Labo Génie Mécaniquede Kélibia Page 135 Une étanchéité est nécessaire pour retenir le lubrifiant dans le volume occupé par les roulements et pour les protéger des agressions extérieures (eau, boue, poussière…) Elle peut être assurée par : couvercles, joints d’étanchéité, succession de passages étroits remplies de graisse (labyrinthe, chicanes,…). Les roulements sont néanmoins souvent équipés de flasques permettant d'éviter d'avoir à effectuer l'étanchéité. Pour un roulement de type classique, l'étanchéité est réalisée par des joints à lèvres. Joint à lèvres : Nommé aussi Bague d'étanchéité Rotative (joint spi). On peut l’utiliser lorsque la vitesse de rotation est importante Représentation générale : Dans tous les cas, le contour exact du joint est représenté par un rectangle. La croix centrale peut être complétée par une flèche indiquant l’étanchéité principale assurée. Représentation particulière : Joint d’étanchéité à lèvre à frottement radial Joint d’étanchéité à lèvre à frottement radial + lèvre anti-poussière Joint d’étanchéité à lèvre à frottement radial (V-Ring) Symbole Rep. réelle Symbole Rep. réelle Symbole Rep. réelle Tôle pliée et roulée Ressort pour plaquer la lèvre Un profil en élastomère Le profil comporte parfois une lèvre secondaire ……………………..…….. …………………………… ……………………..…….. ……………………………