LA COTATION FONCTIONNELLE
I- La cotation fonctionnelle : Pourquoi ?
 Un mécanisme est constitué de différentes pièces. Pour que ce mécanisme fonctionne, des
conditions doivent être assurées (jeu - dépassement - retrait - serrage -etc ... ). La cotation fonctionnelle
permet de rechercher les différentes cotes à respecter pour que les conditions soient assurées.
Les cotes obtenues sont appelées : cotes fonctionnelles.
 La cotation fonctionnelle permet de donner aux cotes fonctionnelles l’intervalle de tolérance
maximum admissible ; il en résulte une diminution du coût de fabrication des pièces.
II- Cote condition :
La condition est représentée sur le dessin par un vecteur à double trait, orienté.
Ce vecteur à double trait est appelé : « cote-condition ». Conventionnellement,
L’orientation adoptée pour les cotes-conditions (C.C.) est la suivante :
C.C. HORIZONTALE
de gauche à droite :
un point à gauche, une flèche à droite
C.C. VERTICALE
de bas en haut :
un point en bas, une
flèche en haut.
III- Surfaces terminales et surfaces de liaison :
Les surfaces terminales sont perpendiculaires ( ⊥ ) à la cote - condition et qui limitent celle-ci.
Pour assurer une condition, les surfaces de liaison (SL) sont les surfaces de contact entre les pièces,
perpendiculaire (⊥) à la direction de la cote condition (C.C.)
Traduisez : SL / ⊥ / CC
Cas particulier : Surface de liaison commune à trois pièces
Exemple1 :
Roulement à billes
Exemple2 :
Rondelle / Butée
3/1
2
1
1/2,2/3
3
1/3,2/3 1/2
1 2 3
IV- Etablissement d’une chaîne de cotes :
1- Partir de l’origine (point) de la C.C. Cette origine touche une pièce : coter cette pièce jusqu’à la
surface de liaison (SL) en contact avec une autre pièce.
2- Coter cette autre pièce… ainsi de suite jusqu’à ce que l’extrémité de la dernière cote touche la
surface terminale en contact avec l’extrémité (flèche) de la cote condition.
3- Repérer les cotes au fur et à mesure : (a1 pour la pièce 1, a2 pour la pièce 2, etc…).
Exemple 1 : Assemblage avec un boulon.
b2b1
b3
4/1 1/2
b4
T4T32/3
b
4 1 2 3
Exemple 2 : Vis de guidage
a- Rechercher les surfaces de liaison perpendiculaires à la cote-condition. Repérer ces surfaces sur le
dessin dans une fourchettes ( )
b- Etablir le diagramme des surfaces de liaison perpendiculaires à la cote-condition.
c- Interpréter le diagramme.
d- Tracer la chaîne de cotes en cotant les pièces dans l’ordre défini par le diagramme.
Dessin d’ensemble Diagramme Interprétation :
3 1 2
a
Coter
Coter (3), puis (2), puis (1), puis
(4).
4Anneau
élastique3Galet2Chape1Ax
e
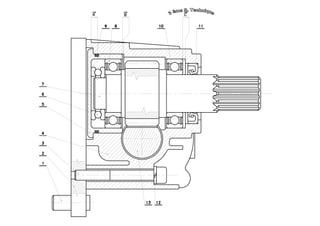
EXERCICE n°1 : MONTAGE D’UN GALET
• On demande :
1. Justifier les cotes-condition :
• Cote-condition a :……………….………………………………………………..
………………………………………………………………………………..
• Cote-condition b :………………………………………………………………..
………………………………………………………………………………..
2. Tracer la chaîne de cotes relative aux vecteurs cote-condition a et b .
3. Reporter sur les dessins ci-dessous,les cotes fonctionnelles issues des chaînes de cotes relatives aux
cotes-condition a et b :
4. Calculer la cote tolérancée b1, pour cela :
• On donne :
b = 0,1 b4 = 1,2 h11 (1,2 ) b2 = 25
a) Calculer b1 mini :
…………………………………………………………………………………………………………
…………………………………………………………………………………………………………
…………………………………………………………………………………………………………
b) Calculer b1 maxi :
…………………………………………………………………………………………………………
…………………………………………………………………………………………………………
…………………………………………………………………………………………………………
c) Donner la cote nominale puis calculer l’écart inférieur et l’écart supérieur de la cote tolérancée b1 :
…………………………………………………………………………………………………………
…………………………………………………………………………………………………………
…………………………………………………………………………………………………………
…………………………………………………………………………………………………………
Ecrire la cote b1 :
+0,2
0
0
-0,06
0
-0,05
b1 mini = …………….…….
b1 Maxi = ………………….
b1 = …………………...…….
La cotation fonc
La cotation fonc

La cotation fonc

  • 1.
    LA COTATION FONCTIONNELLE I-La cotation fonctionnelle : Pourquoi ?  Un mécanisme est constitué de différentes pièces. Pour que ce mécanisme fonctionne, des conditions doivent être assurées (jeu - dépassement - retrait - serrage -etc ... ). La cotation fonctionnelle permet de rechercher les différentes cotes à respecter pour que les conditions soient assurées. Les cotes obtenues sont appelées : cotes fonctionnelles.  La cotation fonctionnelle permet de donner aux cotes fonctionnelles l’intervalle de tolérance maximum admissible ; il en résulte une diminution du coût de fabrication des pièces. II- Cote condition : La condition est représentée sur le dessin par un vecteur à double trait, orienté. Ce vecteur à double trait est appelé : « cote-condition ». Conventionnellement, L’orientation adoptée pour les cotes-conditions (C.C.) est la suivante : C.C. HORIZONTALE de gauche à droite : un point à gauche, une flèche à droite C.C. VERTICALE de bas en haut : un point en bas, une flèche en haut. III- Surfaces terminales et surfaces de liaison : Les surfaces terminales sont perpendiculaires ( ⊥ ) à la cote - condition et qui limitent celle-ci. Pour assurer une condition, les surfaces de liaison (SL) sont les surfaces de contact entre les pièces, perpendiculaire (⊥) à la direction de la cote condition (C.C.) Traduisez : SL / ⊥ / CC Cas particulier : Surface de liaison commune à trois pièces Exemple1 : Roulement à billes Exemple2 : Rondelle / Butée 3/1 2 1 1/2,2/3 3 1/3,2/3 1/2 1 2 3
  • 2.
    IV- Etablissement d’unechaîne de cotes : 1- Partir de l’origine (point) de la C.C. Cette origine touche une pièce : coter cette pièce jusqu’à la surface de liaison (SL) en contact avec une autre pièce. 2- Coter cette autre pièce… ainsi de suite jusqu’à ce que l’extrémité de la dernière cote touche la surface terminale en contact avec l’extrémité (flèche) de la cote condition. 3- Repérer les cotes au fur et à mesure : (a1 pour la pièce 1, a2 pour la pièce 2, etc…). Exemple 1 : Assemblage avec un boulon. b2b1 b3 4/1 1/2 b4 T4T32/3 b 4 1 2 3 Exemple 2 : Vis de guidage a- Rechercher les surfaces de liaison perpendiculaires à la cote-condition. Repérer ces surfaces sur le dessin dans une fourchettes ( ) b- Etablir le diagramme des surfaces de liaison perpendiculaires à la cote-condition. c- Interpréter le diagramme. d- Tracer la chaîne de cotes en cotant les pièces dans l’ordre défini par le diagramme. Dessin d’ensemble Diagramme Interprétation : 3 1 2 a Coter Coter (3), puis (2), puis (1), puis (4).
  • 3.
    4Anneau élastique3Galet2Chape1Ax e EXERCICE n°1 :MONTAGE D’UN GALET • On demande : 1. Justifier les cotes-condition : • Cote-condition a :……………….……………………………………………….. ……………………………………………………………………………….. • Cote-condition b :……………………………………………………………….. ……………………………………………………………………………….. 2. Tracer la chaîne de cotes relative aux vecteurs cote-condition a et b . 3. Reporter sur les dessins ci-dessous,les cotes fonctionnelles issues des chaînes de cotes relatives aux cotes-condition a et b :
  • 4.
    4. Calculer lacote tolérancée b1, pour cela : • On donne : b = 0,1 b4 = 1,2 h11 (1,2 ) b2 = 25 a) Calculer b1 mini : ………………………………………………………………………………………………………… ………………………………………………………………………………………………………… ………………………………………………………………………………………………………… b) Calculer b1 maxi : ………………………………………………………………………………………………………… ………………………………………………………………………………………………………… ………………………………………………………………………………………………………… c) Donner la cote nominale puis calculer l’écart inférieur et l’écart supérieur de la cote tolérancée b1 : ………………………………………………………………………………………………………… ………………………………………………………………………………………………………… ………………………………………………………………………………………………………… ………………………………………………………………………………………………………… Ecrire la cote b1 : +0,2 0 0 -0,06 0 -0,05 b1 mini = …………….……. b1 Maxi = …………………. b1 = …………………...…….